三角形钢管悬挑式脚手架
- 格式:docx
- 大小:922.48 KB
- 文档页数:59
悬挑脚手架三角斜支撑施工工法悬挑脚手架三角斜支撑施工工法一、前言悬挑脚手架三角斜支撑施工工法是一种常用的施工工法,用于高空施工中的悬挑脚手架搭设和支撑,具有较好的稳定性和安全性。
本文将对该工法的特点、适应范围、工艺原理、施工工艺、劳动组织、机具设备、质量控制、安全措施、经济技术分析和工程实例进行详细介绍。
二、工法特点悬挑脚手架三角斜支撑施工工法的特点主要包括:1. 稳定性高:通过三角形结构的斜支撑可以增加悬挑脚手架的稳定性,提高施工安全性。
2. 简便快捷:该工法采用简单的施工工艺和机具设备,施工快速方便。
3. 适应性强:该工法适用于各种高空悬挑脚手架的施工,具有较广泛的适应范围。
三、适应范围悬挑脚手架三角斜支撑施工工法适用于高层建筑等高空场所的悬挑脚手架施工,可用于建筑物外墙的修缮、维护、安装和拆除等工程。
四、工艺原理悬挑脚手架三角斜支撑施工工法的工艺原理是利用三角形结构的斜支撑,将悬挑脚手架与建筑物进行支撑和固定,从而增强其稳定性。
施工工法与实际工程之间的联系体现在施工过程中采取的技术措施上,包括选择合适的支撑点、合理布置斜支撑和调整支撑的角度等。
通过这些措施,可以确保悬挑脚手架的稳定和安全性。
五、施工工艺悬挑脚手架三角斜支撑施工工法的施工工艺包括以下几个阶段:1. 准备工作:包括施工方案设计、准备材料和机具设备等。
2. 悬挑脚手架搭设:根据设计要求将脚手架搭设在悬挑位置上。
3. 斜支撑搭设:选择合适的支撑点,使用专用的支撑材料和工具进行斜支撑的搭设。
4. 支撑角度调整:根据实际情况和设计要求,调整斜支撑的角度,使其达到最佳的支撑效果。
5. 安全检查:对悬挑脚手架和斜支撑进行安全检查,确保没有松动和缺陷。
6. 施工结束:施工完成后,进行验收和清理工作。
六、劳动组织悬挑脚手架三角斜支撑施工工法的劳动组织包括施工人员的组织、配备和分工等,需根据具体的施工规模和工期制定相应的劳动组织方案。
主要施工人员包括搭设人员、支撑人员、安全员等,他们负责各个施工阶段的工作,并协同配合,确保施工工序的顺利进行。
悬挑外脚手架可拆装式三角形组合型钢悬挑支撑发布时间:2021-07-01T15:28:56.723Z 来源:《基层建设》2021年第10期作者:李文龙[导读]广西建工集团建筑工程总承包有限公司1前言随着高层建筑与超高层建筑的迅速发展,悬挑外脚手架施工技术得到广泛应用。
高层建筑最常采用结构形式为框架剪力墙结构,特别是在剪力墙部位若采用传统的型钢悬挑外脚手架施工较困难,型钢的搭设需穿过剪力墙(如图1.1-1),这造成剪力墙形成较大孔洞,使得搭设型钢位置的剪力墙受力性能、抗渗性能和外墙装修产生不利影响。
为了优化悬挑外架施工、提高施工质量和节约成本,我公司依据以往项目施工经验,积极开展技术攻关,在现有的悬挑外脚手架施工技术上进行创新,设计出新型的可拆装式三角形组合型钢悬挑支撑(如图1.1-2),通过实践表明,该悬挑支撑在施工质量、安全性能和施工成本节约等方面相较于传统悬挑外脚手架相比有很大程度的提高。
为了统一标准和便于施工,我公司将该悬挑支撑总结为工法,并在多个工程项目中推广应用,取得良好的经济效益和社会效益。
图1.1-1传统悬挑外脚手悬挑支撑图1.1-2可拆装式三角形组合型钢悬挑支撑2工法特点2.1本工法采用水平工字钢和下部斜撑工字钢组合成的三角支撑体系作为外脚手架的悬挑支撑,与传统外脚手架的悬挑支撑相比,该悬挑支撑受力性能更优秀,这使得外脚手架的支撑安全性得到有效的提高。
2.2该悬挑支撑通过穿墙螺栓固定在外剪力墙或框架柱上,不受室内结构和空间影响,可解决在结构楼梯、电梯井、结构阳角位置或室内空间狭小的外墙无法搭设传统外架支撑悬挑钢梁的难题。
2.3水平工字钢和下部斜撑工字钢与分别垂直钢板的连接为焊接,采用穿墙螺栓使垂直钢板固定于剪力墙或结构柱上,采用螺栓连接使斜撑工字钢在悬挑端部与水平工字钢固定。
整个悬挑支撑是由钢板(Q235b,厚度10mm)、工字钢(16号)、穿墙螺栓(Q235B钢筋φ25mm)和连接螺栓(M25)组成的钢构件。
三角形钢管悬挑脚手架计算书计算依据:1、《建筑施工扣件式钢管脚手架安全技术规范》JGJ130-20112、《建筑结构荷载规范》GB50009-20123、《钢结构设计规范》GB50017-20034、《施工技术》2006.2期由于国家未对钢管悬挑脚手架作出相应规定,故本计算书参考《施工技术》2006.2期编制,仅供参考。
一、参数信息1•脚手架参数悬挑梁离地高度20m,双排脚手架架体高度为 3.1 m ;搭设尺寸为:立杆的纵距为 2.49m,立杆的横距为1.2m,立杆的步距为1.8 m ;内排架距离墙长度为0.25m ;横向水平杆在上,搭接在纵向水平杆上的横向水平杆根数为2根;三角形钢管支撑点竖向距离为 3.60 m;采用的钢管类型为048X3;横杆与立杆连接方式为单扣件;单扣件连墙件布置取一步一跨,竖向间距1.8 m,水平间距2.49 m,采用扣件连接;连墙件连接方式为双扣件;2. 活荷载参数2 . .施工均布荷载(kN/m ): 1.000;脚手架用途:装修脚手架;同时施工层数:2层;1200 |3. 风荷载参数本工程地处浙江杭州市,查荷载规范基本风压为0.300kN/m2,风压高度变化系数“ 为0.796,风荷载体型系数西为1.254;计算中考虑风荷载作用;4. 静荷载参数每米立杆承受的结构自重荷载标准值(kN/m) : 0.1420;脚手板自重标准值(kN/m 2): 0.300;栏杆挡脚板自重标准值(kN/m) : 0.160;安全设施与安全网自重标准值(kN/m2): 0.010;脚手板铺设层数:5层;脚手板类别:冲压钢脚手板;栏杆挡板类别:冲压钢脚手板挡板;二、横向水平杆的计算横向水平杆按照简支梁进行强度和挠度计算,横向水平杆在纵向水平杆的上面。
按照上面的脚手板和活荷载作为均布荷载计算横向水平杆的最大弯矩和变形。
1.均布荷载值计算横向水平杆的自重标准值:P1= 0.033kN/m ;脚手板的荷载标准值:P2= 0.3 >2.49/3=0.249kN/m活荷载标准值:Q=1 >2.49/3=0.83kN/m ;荷载的计算q=1.2 ».033+1.2 >0.249+1.4 ».83=1.501kN/m ;1.501 kN/m1200 |横向水平杆计算简图2•强度计算最大弯矩考虑为简支梁均布荷载作用下的弯矩,计算公式如下:2M qmax =q| /82 最大弯矩 M qmax =1.501 x 1.2/8=0.27kN m ;最大应力计算值 (=M qmax /W =60.164N/mm 2;横向水平杆的最大弯曲应力 c =60.164N/mm 2小于横向水平杆的抗弯强度设计值[f]=205N/mm 2横向水平吧的弯曲应力满足要求!3•挠度计算最大挠度考虑为简支梁均布荷载作用下的挠度荷载标准值 q=0.033+0.249+0.83=1.112kN/m ;4v max =5ql /384EI最大挠度 v 5.0 X 1.112X 12004/(384 >2.06X 105X107800)=1.352 mm ;横向水平杆的最大挠度1.352 mm 小于 横向水平杆的最大容许挠度1200 / 150=8与 10 mm横向水平杆的挠度满足要求! 三、纵向水平杆的计算纵向水平杆按照三跨连续梁进行强度和挠度计算,横向水平杆在纵向水平杆的上 面。
三角形钢管悬挑斜撑脚手架计算书计算依据:1、《建筑施工扣件式钢管脚手架安全技术规范》JGJ13020112、《建筑结构荷载规范》GB5000920123、《钢结构设计规范》GB5001720034、《施工技术》2006、2期由于国家未对钢管悬挑脚手架作出相应规定,故本计算书参考《施工技术》2006、2期编制,仅供参考。
一、参数信息1、脚手架参数双排脚手架搭设高度为5 m;搭设尺寸为:立杆得纵距为1、5m,立杆得横距为1、05m,立杆得步距为1、8 m;内排架距离墙长度为0、30m;横向水平杆在上,搭接在纵向水平杆上得横向水平杆根数为2 根;三角形钢管支撑点竖向距离为3、60 m;采用得钢管类型为Φ48×3;横杆与立杆连接方式为双扣件;取扣件抗滑承载力系数0、80;连墙件布置取两步三跨,竖向间距3、6 m,水平间距4、5 m,采用扣件连接;连墙件连接方式为双扣件;2、活荷载参数施工均布荷载(kN/m2):2、000;脚手架用途:结构脚手架;同时施工层数:2 层;3、风荷载参数本工程地处浙江温州市,查荷载规范基本风压为0、350kN/m2,风压高度变化系数μz 为0、920,风荷载体型系数μs为1、254;计算中考虑风荷载作用;4、静荷载参数每米立杆承受得结构自重荷载标准值(kN/m):0、1250;脚手板自重标准值(kN/m2):0、350;栏杆挡脚板自重标准值(kN/m):0、170;安全设施与安全网自重标准值(kN/m2):0、010;脚手板铺设层数:2 层;脚手板类别:竹串片脚手板;栏杆挡板类别:竹串片脚手板挡板;二、横向水平杆得计算横向水平杆按照简支梁进行强度与挠度计算,横向水平杆在纵向水平杆得上面。
按照上面得脚手板与活荷载作为均布荷载计算横向水平杆得最大弯矩与变形。
1、均布荷载值计算横向水平杆得自重标准值:P1= 0、03kN/m ;脚手板得荷载标准值:P2= 0、35×1、5/3=0、17kN/m ;活荷载标准值:Q=2×1、5/3=1kN/m;荷载得计算值:q=1、2×0、03+1、2×0、17+1、4×1=1、65kN/m;横向水平杆计算简图2、强度计算最大弯矩考虑为简支梁均布荷载作用下得弯矩,计算公式如下:M qmax=ql2/8最大弯矩M qmax =1、65×1、052/8=0、23kN·m;最大应力计算值σ=M qmax/W =50、64N/mm2;横向水平杆得最大弯曲应力σ =50、64N/mm2小于横向水平杆得抗弯强度设计值[f]=205N/mm2横向水平吧得弯曲应力满足要求!3、挠度计算最大挠度考虑为简支梁均布荷载作用下得挠度荷载标准值q=0、03+0、17+1=1、21kN/m ;νqmax=5ql4/384EI最大挠度ν=5、0×1、21×10504/(384×2、06×105×107800)=0、86 mm;横向水平杆得最大挠度0、86 mm 小于横向水平杆得最大容许挠度1050 / 150=7 与10 mm横向水平杆得挠度满足要求!三、纵向水平杆得计算纵向水平杆按照三跨连续梁进行强度与挠度计算,横向水平杆在纵向水平杆得上面。
三角形螺栓链接支撑悬挑脚手架施工工法三角形螺栓链接支撑悬挑脚手架施工工法一、前言三角形螺栓链接支撑悬挑脚手架是一种常用的施工工法,通过螺栓链接的方式将支撑系统与悬挑脚手架连接起来,实现对悬挑脚手架的支撑和稳固。
该工法具有简单实用、效果可靠、施工安全等特点,适用于各种类型的悬挑脚手架施工。
二、工法特点1. 结构简单:三角形螺栓链接支撑悬挑脚手架采用钢管和螺栓组成的结构,具有简单、可靠的特点。
2. 施工安全:采用三角形支撑结构可以有效提高悬挑脚手架的稳定性和安全性,在施工过程中降低了事故发生的概率。
3. 方便拆装:支撑系统与悬挑脚手架之间通过螺栓进行连接,拆卸方便,节约了时间和人力成本。
4. 适应性广:该工法适用于各种类型的悬挑脚手架施工,如建筑物外墙、桥梁、高架等。
三、适应范围三角形螺栓链接支撑悬挑脚手架适用于建筑物外墙、桥梁、高架等不同类型的悬挑脚手架施工,尤其适用于高空作业和大跨度的工程。
四、工艺原理三角形螺栓链接支撑悬挑脚手架的工艺原理是通过螺栓将支撑系统与悬挑脚手架连接起来,形成一个稳定的结构。
在施工过程中,需要根据实际工程情况进行技术措施的选择和应用,以确保施工的安全性和稳定性。
五、施工工艺1. 螺栓连接:根据设计要求和现场实际情况,选择合适的螺栓进行连接,确保连接牢固。
2. 安装支撑系统:根据悬挑脚手架的形状和结构要求,选择和安装合适的支撑系统,包括钢管、连接件等。
3. 悬挑脚手架安装:根据设计要求和施工图纸,按序搭建悬挑脚手架的骨架结构,并进行连接和固定。
4. 螺栓链接:将支撑系统与悬挑脚手架通过螺栓进行链接,确保连接稳固。
5. 调整和检查:调整悬挑脚手架的水平度和垂直度,并进行全面检查和测试,确保施工质量符号设计要求。
六、劳动组织施工过程中需要根据实际情况进行人力组织,明确工作职责和任务分工,保证施工的有序进行。
七、机具设备 1. 螺栓:负责连接支撑系统与悬挑脚手架。
2. 支撑系统:包括钢管、连接件等,用于支撑和稳固悬挑脚手架。
建筑施工悬挑式脚手架的安全技术管理脚手架是建筑施工中必备的施工工具。
最初,竹木等材质的脚手架以经济优势成为南方地区的首选。
随着钢铁工业的逐步发展,钢管脚手架以自身通用性佳、搬运方便以及加工简便等优势成为使用量最高(占总体70%)、应用最广的脚手架。
脚手架及模板支撑系统既肩负着自重、建筑材料和工具等诸多荷载,又为施工人员提供工作平台,若仅依靠传统落地式脚手架,不仅难以满足脚手架的周转要求,而且会增加资源浪费,加重经济负担,甚至引发人员安全事故。
悬挑式脚手架却可以有效避免这些问题,正在以势不可挡的趋势占领市场。
1 脚手架安全事故实例随着建筑业的蓬勃发展,脚手架运用比例逐步提高,搭建高度增长的同时取得了诸多成就,但是出现的安全问题也成为建筑施工中亟待解决的对象。
笔者通过查阅相关资料,收集了3 年内典型的事故案例。
案例一,2021 年4 月15 日,江苏某建筑项目脚手架发生坍塌,致使10 名施工人员从10 余米高处坠落。
1 名工人透露,14:30 在和18 名工友进行砌墙作业时,突然发生脚手架坍塌事件,使其出现不同程度摔伤。
案例二,2020 年10 月8 日,汕尾陆河某工地浇筑天面架构时出现了模板支撑坍塌事件,应急救援队火速赶往现场。
该事故共造成9 人伤亡,其中7 人抢救无效死亡,1 人重伤,1 人轻伤。
案例三,2019 年1 月5 日,福建莆田大洋乡可山村因竹质脚手架滑落导致10 人掉落伤亡,其中5 人死亡,5 人不同程度轻重伤。
2 脚手架安全事故原因2.1 材料原因(1)钢管弯曲。
设计脚手架系统时,未充分考虑其使用年限,导致出现不同程度弯曲、变形,影响自身承载力。
笔者通过对脚手架安全事故进行分析,得知钢管合格率为50%。
(2)钢管壁厚。
根据《建筑施工扣件式钢管脚手架安全技术规范》(JGJ 130—2011)相关标准,扣件式脚手架焊接钢管应满足外径为48.3 mm、壁厚为3.6 mm。
但在施工现场抽检过程中,诸多钢管的壁厚仅为2.2 ~2.8 mm,厚度大于3.0 mm 的钢管极为少见。
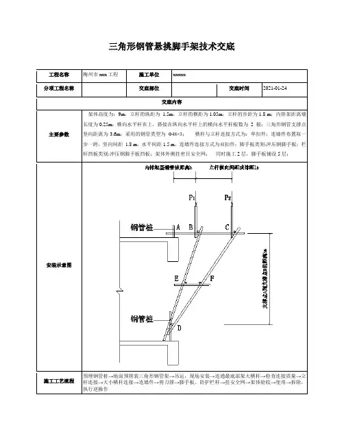
三角形钢管悬挑脚手架技术交底工程名称梅州市xxx工程施工单位xxxxx分项工程名称交底部位交底时间2021-01-24交底内容主要参数架体高度为:9m,立杆的纵距为1.5m,立杆的横距为1.05m,立杆的步距为1.8 m;内排架距离墙长度为0.25m;横向水平杆在上,搭接在纵向水平杆上的横向水平杆根数为 2 根;三角形钢管支撑点竖向距离为3.6m;采用的钢管类型为Φ48×3;横杆与立杆连接方式为:单扣件;连墙件布置取一步一跨,竖向间距 1.8 m,水平间距1.5 m,连墙件连接方式为双扣件;脚手板类别:冲压钢脚手板;栏杆挡板类别:冲压钢脚手板挡板;架体外侧挂密目安全网;同时施工2层,脚手板铺设5层;安装示意图施工工艺流程预埋钢管桩→地面预拼装三角形钢管架→吊运,现场安装→连通最底部架大横杆→检查连接质量→立杆连接→大小横杆连接→连墙件→剪刀撑→脚手板、防护栏杆→挂安全网→架体验收→使用→拆除,执行逆操作质量保证措施1、竹脚手架的各种材料,在进入施工现场时,应进行检查验收,经检查验收不合格的材料应及时清除出场;2、主要受力杆件的规格、杆件设置应符合专项施工方案的要求;3、地基应符合专项施工方案的要求,应平整坚实,垫板必须铺放平整,不得悬空;4、连墙件应设置牢固;5、剪刀撑、斜撑等的加固杆件应设置齐全,连接可靠;6、搭设过程中门洞、转角等部位的构造应符合《建筑施工扣件式钢管脚手架安全技术规程》JGJ130-2011的规定7、在使用过程中,应对竹脚手架经常性的检查与维护,并应及时清理架体上的垃圾和杂物。
安全保证措施1、脚手架搭设人员必须是经过国家现行标准<<特种作业人员安全技术考核管理规则>>考核合格的专业架子工。
搭设脚手架人员必须戴安全帽、安全带,穿防滑鞋。
2、脚手架搭设时应按下列阶段进行质量检查,发现问题应及时校正。
1)基础完工后及脚手架搭设前;2)作业层上施加荷载前;3)每搭设完6m~8m高度后;4)达到设计高度后;5)遇有六级强风及以上风或大雨后;冻结地区解冻后;6)停用超过一个月。
三角形钢管悬挑斜撑脚手架计算书计算依据:1、《建筑施工扣件式钢管脚手架安全技术规范》JGJ130-20112、《建筑结构荷载规范》GB50009-20123、《钢结构设计规范》GB50017-20034、《施工技术》2006.2期由于国家未对钢管悬挑脚手架作出相应规定,故本计算书参考《施工技术》2006.2期编制,仅供参考。
一、参数信息1.脚手架参数双排脚手架搭设高度为5 m;搭设尺寸为:立杆的纵距为1.5m,立杆的横距为1.05m,立杆的步距为1.8 m;内排架距离墙长度为0.30m;横向水平杆在上,搭接在纵向水平杆上的横向水平杆根数为2 根;三角形钢管支撑点竖向距离为3.60 m;采用的钢管类型为Φ48×3;横杆与立杆连接方式为双扣件;取扣件抗滑承载力系数0.80;连墙件布置取两步三跨,竖向间距3.6 m,水平间距4.5 m,采用扣件连接;连墙件连接方式为双扣件;2.活荷载参数施工均布荷载(kN/m2):2.000;脚手架用途:结构脚手架;同时施工层数:2 层;3.风荷载参数本工程地处浙江温州市,查荷载规范基本风压为0.350kN/m2,风压高度变化系数μz 为0.920,风荷载体型系数μs为1.254;计算中考虑风荷载作用;4.静荷载参数每米立杆承受的结构自重荷载标准值(kN/m):0.1250;脚手板自重标准值(kN/m2):0.350;栏杆挡脚板自重标准值(kN/m):0.170;安全设施与安全网自重标准值(kN/m2):0.010;脚手板铺设层数:2 层;脚手板类别:竹串片脚手板;栏杆挡板类别:竹串片脚手板挡板;二、横向水平杆的计算横向水平杆按照简支梁进行强度和挠度计算,横向水平杆在纵向水平杆的上面。
按照上面的脚手板和活荷载作为均布荷载计算横向水平杆的最大弯矩和变形。
1.均布荷载值计算横向水平杆的自重标准值:P1= 0.03kN/m ;脚手板的荷载标准值:P2= 0.35×1.5/3=0.17kN/m ;活荷载标准值:Q=2×1.5/3=1kN/m;荷载的计算值:q=1.2×0.03+1.2×0.17+1.4×1=1.65kN/m;横向水平杆计算简图2.强度计算最大弯矩考虑为简支梁均布荷载作用下的弯矩,计算公式如下:M qmax=ql2/8最大弯矩M qmax =1.65×1.052/8=0.23kN·m;最大应力计算值σ=M qmax/W =50.64N/mm2;横向水平杆的最大弯曲应力σ =50.64N/mm2小于横向水平杆的抗弯强度设计值[f]=205N/mm2横向水平吧的弯曲应力满足要求!3.挠度计算最大挠度考虑为简支梁均布荷载作用下的挠度荷载标准值q=0.03+0.17+1=1.21kN/m ;νqmax=5ql4/384EI最大挠度ν=5.0×1.21×10504/(384×2.06×105×107800)=0.86 mm;横向水平杆的最大挠度0.86 mm 小于横向水平杆的最大容许挠度1050 / 150=7 与10 mm横向水平杆的挠度满足要求!三、纵向水平杆的计算纵向水平杆按照三跨连续梁进行强度和挠度计算,横向水平杆在纵向水平杆的上面。
悬挑脚手架三角斜支撑施工工法悬挑脚手架三角斜支撑施工工法一、前言悬挑脚手架三角斜支撑施工工法是一种常用的施工技术,用于在高空作业时提供稳定的支撑结构。
本文将介绍该工法的特点、适应范围、工艺原理、施工工艺、劳动组织、机具设备、质量控制、安全措施、经济技术分析和工程实例。
二、工法特点悬挑脚手架三角斜支撑施工工法具有以下特点:1. 稳定性高:通过设置三角斜撑,能够有效增加脚手架的稳定性,确保施工人员的安全。
2. 灵活性强:可根据不同的施工要求进行调整和布置,适用于各种形状和高度的建筑物。
3. 施工效率高:设置该工法所需的时间相对较短,方便快捷,提升了施工效率。
4. 节省材料:相比其他施工工法,悬挑脚手架三角斜支撑工法所需的材料相对较少,减少了成本和资源的浪费。
三、适应范围悬挑脚手架三角斜支撑施工工法适用于各种建筑结构和工程项目,特别适合用于高空施工、外立面装饰、维修和大型设备安装等作业。
四、工艺原理悬挑脚手架三角斜支撑施工工法依据以下工艺原理进行操作:1. 三角斜撑原理:通过将三角形的结构布置在悬挑脚手架上,使施工现场形成一个稳定的平衡结构,提高整体的稳定性和承载能力。
2. 强度计算原理:根据实际工程要求和施工现场条件,通过力学计算和结构分析确定所需的材料和支撑措施,确保施工过程中的安全和稳定。
五、施工工艺悬挑脚手架三角斜支撑施工工艺主要包括以下几个阶段:1. 施工前准备:根据工程需要,制定安全计划、质量计划和施工组织设计,并进行必要的培训和技术交底。
2. 搭设脚手架:根据设计要求,在悬挑部分设置足够数量和位置合理的立杆、横杆和地脚,确保脚手架的稳定性。
3. 安装三角斜撑:根据结构设计,将三角形的斜撑设置在脚手架上,通过连接件将其固定牢固,提高整体的稳定性。
4. 调整和检查:对悬挑脚手架进行调整、拉直和检查,确保施工过程中的稳定性和安全性。
5. 施工作业:根据工程要求进行具体的施工作业,同时对脚手架进行定期检查和维护,确保施工过程中的稳定和安全。
建筑行业因脚手架倒塌而导致重大群死群伤的事故时有发生,脚手架的安全问题日益突出。
而悬挑式脚手架作为工程常用的脚手架,由于没有制定相应行业规定和标准,各施工单位的做法也各不相同。
经调查。
悬挑式脚手架的悬挑支座大体有如下两种类型:钢管扣件三角形支座和型钢支座。
现对这两种支座类型进行分析、比较。
1传统钢管扣件三角形支座悬挑架高层建筑施工扣件钢管外脚手架,一般用分段卸荷结构,传统的做法是利用钢管扣件三角形支座进行悬挑,该方法因取材容易、无需专门存放、经济等原因,被较广泛采用。
但因搭设结构不合理、未经设计计算、个别构件受力过大等原因,而发生坍塌的也不少。
以下是钢管扣件支座悬挑架存在的问题:1.1作为连接件的扣件,在传统做法中被当作受力件,承受最大荷载国内许多地方的通常做法是:用扣件、钢管组成水平支座,有时加钢管或钢丝绳反拉,水平钢管与预埋在楼板上的短钢管扣接,内外立杆直接扣接在水平杆上,连接件均为扣件。
整个外架最大受力点在扣件。
作为连接件的扣件,在传统做法中被当作受力件,承受最大荷载。
扣件的抗滑、抗扭、抗剪切能力如何?这正是我们所担忧的问题。
一旦其中的一点出现极限破坏,将导致整个外架的稳定性产生不良的连锁反应,很可能造成外架坍塌,产生灾难性的后果。
1.2扣件作为主要受力件是不允许的《建筑施工扣件式钢管脚手架安全技术规范}(JGJl30—2001)第6.3.5条(强制性条文)规定,立杆接长除顶层顶步可采用搭接外,其余各层各步接头必须采用对接扣件连接。
这一强制性条文的实质意义就是要避免扣件承受剪切和偏压,以及由此产生的扭力矩。
而扣件的抗剪、抗滑能力与其材质及螺栓拧紧扭力矩紧密相关。
1.3钢管、扣件的材质以及施工管理等方面都存在严重的问题1.3.1材质方面:一部分是先天性的,材质达不到国家标准,为非标产品。
如钢管壁厚不足,焊缝质量低。
扣件壁厚不足,存在砂眼、裂纹等;另一部分是保养不善。
如严重锈蚀、变形、滑丝,该报废的不报废等。
三角形钢管悬挑脚手架计算书计算依据:1、《建筑施工扣件式钢管脚手架安全技术规范》JGJ130-20112、《建筑结构荷载规范》GB50009-20123、《钢结构设计规范》GB50017-20034、《施工技术》2006.2期由于国家未对钢管悬挑脚手架作出相应规定,故本计算书参考《施工技术》2006.2期编制,仅供参考。
一、参数信息1.脚手架参数悬挑梁离地高度12m,双排脚手架架体高度为10 m;搭设尺寸为:立杆的纵距为1.5m,立杆的横距为1.05m,立杆的步距为1.8 m;内排架距离墙长度为0.25m;横向水平杆在上,搭接在纵向水平杆上的横向水平杆根数为2 根;三角形钢管支撑点竖向距离为3.60 m;采用的钢管类型为Φ48×3;横杆与立杆连接方式为单扣件;单扣件连墙件布置取一步一跨,竖向间距1.8 m,水平间距1.5 m,采用扣件连接;连墙件连接方式为双扣件;2.活荷载参数施工均布荷载(kN/m2):2.000;脚手架用途:装修脚手架;同时施工层数:2 层;3.风荷载参数本工程地处浙江杭州市,查荷载规范基本风压为0.300kN/m2,风压高度变化系数μz为0.796,风荷载体型系数μs为1.254;计算中考虑风荷载作用;4.静荷载参数每米立杆承受的结构自重荷载标准值(kN/m):0.1250;脚手板自重标准值(kN/m2):0.300;栏杆挡脚板自重标准值(kN/m):0.160;安全设施与安全网自重标准值(kN/m2):0.010;脚手板铺设层数:5 层;脚手板类别:冲压钢脚手板;栏杆挡板类别:冲压钢脚手板挡板;二、横向水平杆的计算横向水平杆按照简支梁进行强度和挠度计算,横向水平杆在纵向水平杆的上面。
按照上面的脚手板和活荷载作为均布荷载计算横向水平杆的最大弯矩和变形。
1.均布荷载值计算横向水平杆的自重标准值:P1= 0.033kN/m ;脚手板的荷载标准值:P2= 0.3×1.5/3=0.15kN/m ;活荷载标准值:Q=2×1.5/3=1kN/m;荷载的计算值:q=1.2×0.033+1.2×0.15+1.4×1=1.62kN/m;横向水平杆计算简图2.强度计算最大弯矩考虑为简支梁均布荷载作用下的弯矩,计算公式如下:M qmax=ql2/8最大弯矩M qmax =1.62×1.052/8=0.223kN·m;最大应力计算值σ=M qmax/W =49.722N/mm2;横向水平杆的最大弯曲应力σ =49.722N/mm2小于横向水平杆的抗弯强度设计值[f]=205N/mm2横向水平杆的弯曲应力满足要求!3.挠度计算最大挠度考虑为简支梁均布荷载作用下的挠度荷载标准值q=0.033+0.15+1=1.183kN/m ;νqmax=5ql4/384EI最大挠度ν=5.0×1.183×10504/(384×2.06×105×107800)=0.843 mm;横向水平杆的最大挠度0.843 mm 小于横向水平杆的最大容许挠度1050 /150=7mm 与10 mm横向水平杆的挠度满足要求!三、纵向水平杆的计算纵向水平杆按照三跨连续梁进行强度和挠度计算,横向水平杆在纵向水平杆的上面。
三角形钢管悬挑脚手架施工方案一、概述:二、施工准备:1.工地要做好整体布局设计,确定悬挑脚手架的位置和工作区域。
2.确认施工现场的地基承载力能够满足悬挑脚手架的安全要求。
3.检查和准备所需的工具和材料,如钢管、连接器、螺栓等。
4.指定专人负责悬挑脚手架的组装、拆卸和维护,确保工作人员熟悉相关操作规程和安全要求。
三、悬挑脚手架组装:1.悬挑脚手架的组装需要按照设计图纸进行,确保结构的稳定和安全。
2.首先,根据设计要求将三角形钢管进行切割,并根据需要进行打孔处理。
3.然后,将切割好的钢管通过连接器连接起来,确保连接牢固。
4.接着,将组装好的钢管架子依次安装到建筑物的悬挑部位,根据需要进行调整和固定。
5.安装好主体结构后,还需要根据需要安装安全扶手、防护网等附属设备。
四、悬挑脚手架使用:1.工作人员在进行悬挑作业时,必须佩戴安全帽、安全带等个人防护装备,并进行必要的安全培训。
2.在悬挑脚手架上施工时,禁止跳跃、奔跑和互相扔东西等危险行为。
3.在悬挑工作过程中,工作人员要随时检查脚手架的稳定性,发现问题及时报告并采取措施进行处理。
4.悬挑作业结束后,及时清理脚手架上的杂物,保持脚手架的整洁和安全。
五、悬挑脚手架拆卸:1.悬挑脚手架的拆卸需要按照逆序进行,确保安全和顺利。
2.首先,从顶部开始逐层拆除脚手架的结构件,确保下方的人员和设备安全。
3.在拆卸过程中,一定要注意下方的人员不得停留在脚手架附近,以免发生意外。
4.完成拆卸后,还需要对悬挑脚手架进行清点和整理,确保所有零部件齐全,并做好存放和保养。
六、安全措施:1.悬挑脚手架的组装和拆卸必须由经过培训和持证上岗的专业人员进行,不得擅自操作。
2.在使用悬挑脚手架过程中,要严格按照安全操作规程进行,禁止违章操作。
3.在悬挑作业过程中,要保持脚手架的整洁和干净,防止滑倒和跌落事故的发生。
4.在悬挑作业过程中,严禁超负荷使用脚手架,确保结构的稳定和安全。
5.悬挑脚手架的使用过程中,要定期进行检查和维护,及时处理发现的问题,确保工作人员的安全。
三角形型钢支撑悬挑外脚手架施工技术摘要:三角形型钢支撑悬挑外脚为我公司研发的新技术,实践表明,该技术在施工质量、安全性能和施工成本节约等方面相较于传统悬挑外脚手架相比有很大程度的提高,取得较好的经济效益和社会效益,有较好推广应用前景。
关键词:三角形型钢支撑;悬挑外脚手架;施工1、前言随着高层建筑与超高层建筑的迅速发展,悬挑外脚手架施工技术得到广泛应用。
我公司通过多年研究实践,研发的三角形型钢支撑悬挑外脚代替传统钢梁悬挑外脚手架,不受室内结构和空间影响,可解决在结构楼梯、电梯井、结构阳角位置或室内空间狭小的外墙无法搭设传统外架支撑悬挑钢梁的难题,安拆方便,加快施工进度,节约成本。
2、三角形型钢撑悬挑外脚手架概述三角型钢撑悬挑外脚手架采用水平工字钢和下部工字钢斜撑组合成的三角支撑体系作为外脚手架的悬挑支撑架,悬挑支撑架通过穿墙螺栓固定在剪力墙或框架柱上,如图1。
图1三角形型钢撑悬挑外脚手架3、三角形型钢撑悬挑外脚手架优点(1)工字钢与钢板的连接为焊接,委托有相应资质的工厂加工,检验合格后再运到现场,在施工现场只需采用螺栓安装,实现工具化施工。
(2)三角支撑悬挑架各部件通过螺栓连接,所有组件均可循环使用,符合绿色施工发展要求。
(3)三角支撑悬挑架采用穿墙螺栓固定在剪力墙或框架柱外侧,穿墙螺栓直径仅为φ25mm,相较于传统悬挑工字钢穿墙孔洞补洞便利、速度快、利于防渗漏水。
(4)三角支撑悬挑架经工厂加工后,单部件最大重量约为57kg,而且只需固定在外部垂直承重结构上,所以其搭设灵活,不受室内结构限制,不影响室内施工,利于安全文明施工。
4、施工要点(1)熟悉建筑平面、立面图、结构平面图,绘制三角形型钢支撑架图,并验算复核是否满足要求。
委托给有资质的钢结构生产厂家加工制作三角形型钢支撑架构配件,并附相关合格证。
(2)三角支撑悬挑架进场后,应根据设计尺寸要求进行全数验收,验收合格后方可投入使用。
在悬挑层下层结构混凝土剪力墙支模时,需进行孔洞预留。
悬挑外脚手架的设计计算本工程为文峰湖岸新城第三组团3#楼、4#楼。
悬挑脚手架基本尺寸:立杆纵距1.80m,横杆间距1.05m,步距为1.80m,内立杆距建筑物边缘0.25m,悬挑架上脚手搭设高度最高处为51m(16层)。
材料:挑架横梁用热轧普通槽钢[12,斜撑用Φ48*3.5钢管、扣件连接,脚手架为扣件式钢管脚手架。
挑架计算对象:选最不利的3排立杆荷载作用在挑梁上。
1、简图:R D3mR2、荷载荷载取值:施工荷载标准值3KN/m2脚手架自重标准值:G K1=0.11425*17.4=1.99KN作业层面材料自重标准值:G K2=1.8*0.385*2=1.38KN外立杆拉结材料及防护材料自重标准值:(由外立杆承担):G K3=0.0922*17.4=1.60KN施工活载标准值:Q K=1.8*1.58*2=5.68KN荷载设计值:P1=1.2*(1.99+1.38*0.5)+1.4*5.68*0.5=7.19KNP2=1.2*(1.99+1.38)+1.4*5.68=12.00KNP3=1.2*(1.99+1.38+1.60)+14*5.68*0.5=9.94KN 风荷载通过连墙件由建筑物承担。
3、支座反力及内几(1)、支座反力∑ME=0 2.9R AX-0.75*7.19-1.80*12.0-2.85*9.94=0R AX-19.08KN(2)、杆件内力a、DE杆内力,把AD杆件作脱离体P1R AX AR AY N ED取∑MA=02.85N ED*Sina-0.75*7.19-1.80*12.0-2.85*9.94=0tga=2.9/2.85=1.018 Sina=0.713N ED=27.22KNb、AD杆弯矩:Mmax=Mc=(27.22*0.713-9.94)*1.05=9.94KN•mc、R EY=(a/L)*N=(1.05/2.85)*29.13=10.73KN4、选料与验算(1)、AD杆选用热轧普通槽钢[12A=1569.2mm2 fx=3.91*106mm4,Wx=6.21*104mm3E=2.06*105N/mm2f=205N/mm2强度验算:σmax=19.08*10 3/1569.2+9.94*10 6/6.21*10 4=172.2N/mm2<205N/mm2(满足)(2)、DE杆选用2Φ48*3.5钢管A=4.89*10 4mm2 i=15.8mm E=2.06*105N/mm2F=205N/mm2DE杆长度:(2.852+2.92)1/2=4.06中间加一道水平系杆,节件长度为4.06/2=2.03mλ=2030/15.8=128.5 Ψ=0.4035σ=27.22*103/(0.4035*489)=137.95N/mm2<205(满足)(3)、楼面上钢筋环验算,取K=210.73*103*2/125=171.68mm2选用Φ12 A=113.1mm2二个截面为226.2mm2>171.68mm2(满足)5、风荷载计算施工地区设计基本风压取值w0为0.40KN/m2,脚手架连墙件为两步三跨,建筑高度49.4m,按50m高度计算,城市郊区地面粗糙度为C类,由《建筑荷载规范》得,风压高变化系数μz=1.35。
三角桁架式悬挑钢管脚手架的设计
廖伟
【期刊名称】《中外建筑》
【年(卷),期】2003()3
【摘要】本文结合一定的工程实例,介绍了三角桁架式钢管脚手架的一般设计和计算方法及注意事项。
【总页数】3页(P103-105)
【关键词】三角桁架式钢管脚手架;设计;高层建筑;风荷载;悬挑钢管
【作者】廖伟
【作者单位】湖南华雁建设公司
【正文语种】中文
【中图分类】TU731.2
【相关文献】
1.三角托架悬挑扣件式钢管脚手架设计实例 [J], 熊昱栋
2.扣件钢管三角形悬挑承重脚手架的施工设计 [J], 薛洪;张慧;薛惠敏
3.高层悬挑三角形桁架钢管脚手架搭设施工 [J], 李文平;王林;林伟洪;石小辉
4.三角托架悬挑扣件式钢管脚手架设计实例 [J], 熊昱栋
5.高层悬挑三角形桁架钢管脚手架的搭设 [J], 李恩泽;常自昌
因版权原因,仅展示原文概要,查看原文内容请购买。
银都佳园 A 区工程悬挑脚手架施工方案编制人:张兴_ 职务(称):安全员、助工审核人:徐龙江职务(称):质安科长、助工批准人:白素洁___ 职务(称):总工、工程师批准部门(章):龙元建设集团股份有限公司编制日期:2005年1月11日银都佳园 A 区工程悬挑脚手架施工方案一、银都佳园A区27#、28#、29#每幢主楼轴线外侧留置结构后浇带,南侧无设置后浇带。
①北侧留在地下车库基础与顶板板面上-0.65M。
②东西两侧从地下室基础到裙房屋面+5.20M,G 轴到OY轴。
③南侧27#C楼、28#A楼从基础到+5.20M为柱、梁板框架。
④28#B楼、28#C楼、27#A楼、27#B楼,B轴、OY轴为外悬挑梁板结构挑出轴线处3米。
⑤29#南立面、西侧部分设有后浇带。
二、外墙脚手架如底座搭设在后浇带结构梁板上,承载上部全部荷载的压力很有可能对后浇带挑梁板区的部位产生开裂、变形及质量安全事故,在6层楼面即17.40标高,28#C楼在7层楼面即20.40米标高,外架上下分离,上部用悬挑外架来承载上部外脚手架的荷载,下部份搭设在0.4~5.20后浇带梁板上。
下部份外脚手架在地下室底板到各楼面层后浇带不拆除梁底板柱子树及板底用木柱头树加固,28#A、B楼、27#A、B、C楼外墙全高29.40米,下部外架全高17.40米,上部剩全高12米,步距1.8共7步。
28#C楼全高35.4米,下部外架20.40米,上部剩全高15米,步距1.8米共9步。
27#C、28#A楼南立面除大转角①、⑨轴用外挑架其余不挑。
27#A楼西立面转角外挑,其它不挑,不挑部位应无后浇带及挑梁可在梁板底下用木柱头加固。
28#A楼东立面除大转角用外挑架,其余可到地上搭设加双立杆。
29#楼南立面、西立面局部有后浇带,大梁间距开间小及人防顶板厚250,Ф14@140双层双向C40砼,主梁250×800,次梁250×500,不考虑外挑架采用在地下室用木柱头加固撑牢,不设外挑脚手架,在梁板顶面用14#槽钢作底坐加强。
浙江品茗高新产业软件园工程脚手架安全专项施工方案编制人:职务:校对人:职务:审核人:职务:审批人:职务:目录第一章工程概况--------------------------------------------------- 2一、工程概况--------------------------------------------------- 3二、施工平面布置----------------------------------------------- 4三、施工要求--------------------------------------------------- 4四、技术保证条件----------------------------------------------- 4 第二章编制依据--------------------------------------------------- 5 第三章施工计划--------------------------------------------------- 6一、施工进度计划----------------------------------------------- 6二、材料与设备计划--------------------------------------------- 6 第四章施工工艺技术----------------------------------------------- 9一、技术参数--------------------------------------------------- 9二、工艺流程-------------------------------------------------- 10三、施工方法-------------------------------------------------- 12四、检查验收-------------------------------------------------- 21 第五章施工安全保证措施------------------------------------------ 23一、组织保障-------------------------------------------------- 23二、技术措施-------------------------------------------------- 26三、监测监控-------------------------------------------------- 32四、应急预案-------------------------------------------------- 33 第六章劳动力计划------------------------------------------------ 34一、专职安全生产管理人员-------------------------------------- 35二、特种作业人员---------------------------------------------- 35 第七章计算书及相关图纸------------------------------------------ 35一、计算书---------------------------------------------------- 36二、节点图---------------------------------------------------- 59 第一章工程概况一、工程概况【工程概况应针对该危险性较大的分部分项工程的特点及要求进行编写】1、工程基本情况2、各责任主体名称二、施工平面布置三、施工要求1、脚手架的设计力求做到结构安全可靠,造价经济合理。
2、确保脚手架在使用周期内安全、稳定、牢靠。
3、选用材料时,力求做到常见通用、可周转利用,便于保养维修。
4、脚手架在搭设及拆除过程中要符合工程施工进度要求。
操作人员需取得特殊作业人员资格上岗证。
四、技术保证条件1、安全网络2、脚手架的搭设和拆除需严格执行该《专项施工方案》。
第二章编制依据1、《建筑施工脚手架实用手册》2、《建筑地基基础设计规范》GB50007-20113、《建筑结构荷载规范》GB50009-20124、《混凝土结构设计规范》GB50010-20105、《钢结构设计规范》GB50017-20036、《《《《《《《《《GB50005-20037、《建筑施工脚手架安全技术统一标准》GB 51210-20168、《建筑施工安全检查标准》JGJ59-20119、《建筑施工高处作业安全技术规范》JGJ80-201610、《建筑施工扣件式钢管脚手架安全技术规范》JGJ130-201111、《建筑施工临时支撑结构技术规范》JGJ300-201312、《危险性较大的分部分项工程安全管理办法》(建质[2009]87号文)13、《建设工程安全生产管理条例》国务院令第393号14、本工程设计图纸15、本工程施工组织设计第三章施工计划一、施工进度计划二、材料与设备计划1、脚手架钢管应采用现行国家标准《直缝电焊钢管》GB/T13793或《低压流体输送用焊接钢管》GB/T3091中规定的Q235普通钢管,钢管的钢材质量应符合现行国家标准《碳素结构钢》GB/T700中Q235级钢的规定。
每根钢管的最大质量不应大于25.8kg。
新钢管表面应平直光滑,不应有裂缝、结疤、分层、错位、硬弯、毛刺、压痕和深的划道,钢管要有产品质量合格证、质量检验报告,钢管材质检验方法应符合现行国家标准《金属拉伸室温拉伸试验方法》GB/T228的有关规定,质量和钢管外径、壁厚、端面等的偏差应符合《建筑施工扣件式钢管脚手架安全技术规范》JGJ130的有关规定,应涂有防锈漆。
旧钢管表面锈蚀深度、钢管弯曲变形应符合《建筑施工扣件式钢管脚手架安全技术规范》JGJ130的有关规定。
锈蚀检查应每年一次。
检查时,应在锈蚀严重的钢管中抽取3根,在每根锈蚀严重部位横向截断取样检查,当锈蚀深度超过规定值时不得使用。
钢管上严禁打孔。
2、扣件应采用可锻铸铁或铸钢制作,其质量和性能应符合现行国家标准《钢管脚手架扣件》GB15831的要求,采用其他材料制作的扣件,应经试验证明其质量符合该标准的规定后方可使用。
扣件应有生产许可证、法定检测单位的测试报告和产品合格证。
扣件进入施工现场应检查产品合格证,并应进行抽样复试。
扣件在使用前应逐个挑选,有裂缝、变形、螺栓出现滑丝的严禁使用。
扣件在螺栓拧紧扭力矩达65N·m时,不得发生破坏。
新、旧扣件均应进行防锈处理。
3、搭设架子前应进行保养,除锈并统一涂色,力求环保美观。
4、脚手板(1)、脚手板可用钢、木、竹材料制作、单块脚手板的质量不大于30kg;(2)、竹脚手板宜采用由毛竹或楠竹制作的竹串片板、竹笆板;竹串片脚手板应符合现行行业标准《建筑施工木脚手架安全技术规范》JGJ164的相关规定;(3)、冲压钢脚手板的材质应符合现行国家标准《碳素结构钢》GB/T700中Q235级钢的规定。
新脚手板应有产品质量合格证,尺寸偏差应符合《建筑施工扣件式钢管脚手架安全技术规范》JGJ130的有关规定,且不得有裂纹、开焊与硬弯。
新、旧脚手板均应涂防锈漆,应有防滑措施;(4)、木脚手架材质应符合现行国家标准《木结构设计规范》GB50005《《a级材质的规定。
脚手板厚度不应小于50mm,两端宜各设置直径不小于4mm的镀锌钢丝箍两道。
宽度、厚度允许偏差应符合现行国家标准《木结构工程施工质量验收规范》GB50206的规定;不得使用扭曲变形、劈裂、腐朽的脚手架。
5、安全网采用密目式安全立网,应符合下列要求:(1)、网目密度不低于2000目/100cm2;(2)、网体各边缘部位的开眼环扣必须牢固可靠,孔径不低于1mm;(3)、网体缝线不得有跳针、露缝,缝边应均匀;(4)、一张网体上不得有一个以上的接缝,且接缝部位应端正牢固;(5)、不得有断沙、破洞、变形及有碍使用的编织缺陷;(6)、阻燃安全网的续燃、阻燃时间均不得大于4s。
使用的安全网必须有产品生产许可证和质量合格证,以及由相关建筑安全监督管理部门发放的准用证;(7)、做耐贯穿试验不穿透,1.6×1.8m的单张网重量在3kg《《《(8)、《《应满足环境效果要求,选用绿色;6、连墙件材料采用钢管或型钢制作,其材质应符合现行国家标准《碳素钢结构》GB/T700中Q235级钢或《低合金高强度结构钢》GB/T1591中Q345级钢的规定。
主要材料参数表第四章施工工艺技术一、技术参数【三角形钢管悬挑脚手架】二、工艺流程【多排脚手架】场地平整、夯实→基础承载力实验、材料配备→定位设置通长脚手板、底座→纵向扫地杆→立杆→横向扫地杆→横向水平杆→纵向水平杆(格栅)→立杆→横向水平杆→纵向水平杆(格栅)→剪刀撑→连墙件→铺脚手板→扎防护栏杆→扎安全网【三角形钢管悬挑脚手架】三角形支撑部分搭设→纵、横向扫地杆→立杆→横向水平杆→纵向水平杆(格栅)→剪刀撑→连墙件→铺脚手板→扎防护栏杆→挂安全网三、施工方法1、地基基础(1)、定距定位。
根据构造要求在建筑物四角用尺量出内、外立杆离墙距离,并做好标记;用钢卷尺拉直,分出立杆位置,并用小竹片点出立杆标记;垫板、底座应准确地放在定位线上,垫板必须铺放平整,不得悬空。
(2)、在搭设首层脚手架过程中,沿四周每框架格内设一道斜支撑,拐角处双向增设,待该部位脚手架与主体结构的连墙件可靠拉结后方可拆除。
当脚手架操作层高出连墙件以上两步时,宜先立外排,后立内排。
其余按以下构造要求搭设。
(3)、本工程脚手架地基础部位应在回填土完后夯实,采用强度等级不低于C15的混凝土进行硬化,混凝土硬化厚度不小于10cm。
地基承载能力能够满足外脚手架的搭设要求(具体计算数据参阅脚手架计算书),立杆垫板或底座面标高高于自然地坪50mm~100mm,两侧设置排水沟,排水通畅。
(4)、垫板尺寸采用长度不少于2跨、厚度不小于50mm、宽度不小于200mm 的木垫板或槽钢。
2、钢丝绳卸荷(5)、梁板内的受拉锚环,必须在混凝土达到设计强度的75%以上方可受力使用。
拉钩、吊环一定要采用圆钢制作,不允许用螺纹钢筋。
(6)、派工人扎接上部拉环的钢丝绳,至少采用3个卡头扎紧,钢丝绳扎头螺丝全要拧紧,不允许松动。
(7)、对整个架体进行安全检查,发现钢丝绳松动、锈蚀或焊缝脱焊等情况时要立即进行修复,合格后方可继续使用。
钢丝绳绳卡做法3、立杆设置(1)、立杆采用对接接头连接,立杆与纵向水平杆采用直角扣件连接。