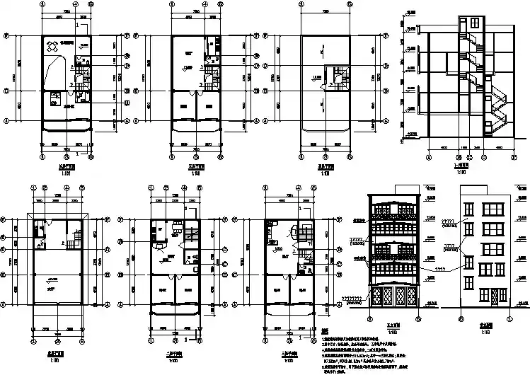
AABCDEFHG123134567餐厅厨房客厅书房工人用房一层平面1:1004上600屋顶平面1:100%%p0.0000.6001-10.51.1.1.51.59.14.上0.580-0.0200.580H189001050150010501500360030003600240015003000900189003600660024006300450450C67上上1800114002100330033003300330039003900150015001BAC二层平面1:10034567ACDEGH122.440下起居厅FH36715003000900114002400360030003600360010501500105021001020客厅上空卧室主卧室客房1500120030012001500卧室3.4509000720150015006007202700600240018011400300027002700300015006006002700300039001800150015006006004502700600189004501800180018001200120030072018001650180016501500105010501050900225036001200J33A1BCEH13.300(结)露台A45679.160(结)6C7JH189004500180036006300450180024003600300072010.200(结)6.450(结)189009000180045003600720570129002700870072015001140021001500450360045001200600450600600450450450600600i=1.5%i=1.5%3.300(结)露台450018002450018002-0.6207.790(结)6.150ቤተ መጻሕፍቲ ባይዱ结)8.450(结)3.000(结)180030090012001050150105030045015001800900900会签建 筑结 构给排水供 电暖 通动 力日 期浙 江 工 业 大 学 建 筑 设 计 研 究 院审 核证书编号 :证书等级 : 甲 级1201211审 定校 对设计总负责工种负责设计 计算制 图项 目工程名称名图 图 号工程号章本图纸无效未盖技术出图2/D1/D一,二层平面杭 州 生 态 园C型样板别墅设2002-1C建施-1设2002-1C建施-2C型样板别墅杭 州 生 态 园屋顶平面111-110.200%%p0.000-0.020A4.024J剖 面1:1003.4506.150-0.020剖面11BDEG150021001500027003000330024004.8000.5800.600%%p0.0004.80010.2003.00054001800620233250417210030001503000~34501020012005705702850405027009600195015010.200下杭 州 生 态 园建施-4设2002-1CC型样板别墅剖面2-20.600100012002.440-0.020预埋%%c50PVC排水管 @3000226.1503.450%%p0.0008.4506.45013.0004.1708.2564.80010.20079.1601800剖 面2-21:100520600GZL606620GZL606600520GZL6062360600116011602400.600-0.0200.6003.4506.15010.20028502700960015030101040%%p0.0003.0004.80010.2002502331800540030001501020011715504502001750R6001200100014401910上上10203.4502.440下0.600%%p0.000%%p0.0000.6002.440960扶手栏杆用户自理1840600150167 x11=1840150x4=600860168 x6=10103.450120300x3=900120270x4=108030030072012004801203.450102024003424001680342400900341020102024001203001080270x10=27002400900DE300012001201200120240120DE30001200120120210270x5=13509601440C1C1C11M116807201200480C2(C2)MC2MC124504509001800720720300700840C3C41500900C312001800810720114021200-0.4701202401206004踏步300x2H=150x3H=150x4踏步300x3900600600C11C113C5C6C8C12900300C9C7C7C9C101800720124016209001260900720540花池2400120120960214206001201201314024090018012004808.256(结)4231225015011:20A-0.020%%p0.0001502250120120606015050100301:202900140760-0.020703061206012010031:20仿木栏杆扶手由装饰设计另定预埋铁件间距由立杆位置定成品PVC檐沟(带篦板)6502502333.000120450屋面1或参99浙J157146.15041:202钢丝网板吊顶30050C24745015003.45090075060050100100303.4502030501002400.6001201201500.600i=2%801:20324150504.8006.450屋面2或参99浙J15712100厚侧板封边2120120720135020032472472003300300931369钢丝网板吊顶120906093120016503692020油膏收头1701704.9507屋面2或参99浙J1512屋面2或参99浙J15127A1201205020804502B21:20H见立面5021:201屋面38.450(结)3.300(结)120E1206003006090120603030-0.580%%p0.000750300x450铝合金百页排烟口7.950设于 轴21:50楼梯二层平面1:50楼梯一层平面楼梯剖面1:5011601206006007201201800300120210084070032072012012060080020803600600120012006001201200108030002407502709407207201203000420198024007201207501410270012060040084060012007002407502610600108012036001800700140054090012013807007405407004007003-0.020G6G3.430J3.430672/DF1/DF-0.020673-0.020G6G3.430J3.430672/DF1/DF-0.0206772030007205402700700140084070060012013802100180012072032030012012090072060012060018002400198014107501207407001207204206002610108024075036004005406001201204007008401200240300010801200600120120070094027075070012006003600600120208080045011902402701350105015009001#2#3#4#1201#卫生间1:502#卫生间1:50540540174036012036021005406001260ZRF-T-3排气管选用浙J16-944F型9004#卫生间1:503#卫生间1:5060060立砖后砌封余同12406003401040890750590154016305002610240750预埋%%c150PVC排风口孔底标高5.70750750750270270孔底标高2.300预埋%%c150PVC排风口预埋%%c150PVC排风口孔底标高5.700楼梯,卫生间大样预埋不锈钢厨房排烟气管(下弯150)管底标高2.100 参下图2.1007204204203003007201162200200200200雨落水管 本层共七根雨落水管 本层共二根MC1C1C13