圆台与梯形体计算公式
- 格式:xls
- 大小:10.50 KB
- 文档页数:3
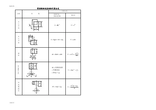
圆台体积V=π*h*(R2+R*r+r2)/3 V=π*h*(D2+d2+D*d)/12 圆柱体积V=π*R2*hV=π*D2*h/4球缺体积h-球缺高r-球半径a-球缺底半径V=πh(3a2+h2)/6V=πh2(3r-h)/3a2=h(2r-h)圆柱体的体积公式:体积=底面积×高,如果用h代表圆柱体的高,则圆柱=S底×h 长方体的体积公式:体积=长×宽×高如果用a、b、c分别表示长方体的长、宽、高则长方体体积公式为:V长=abc正方体的体积公式:体积=棱长×棱长×棱长.如果用a表示正方体的棱长,则正方体的体积公式为V正=a·a·a=a³锥体的体积=底面面积×高÷3 V 圆锥=S底×h÷3台体体积公式:V=[S上+√(S上S下)+S下]h÷3圆台体积公式:V=(R²+Rr+r²)hπ÷3球缺体积公式=πh²(3R-h)÷3球体积公式:V=4πR³/3棱柱体积公式:V=S底面×h=S直截面×l (l为侧棱长,h为高)棱台体积:V=〔S1+S2+开根号(S1*S2)〕/3*h注:V:体积;S1:上表面积;S2:下表面积;h:高。
-—--——几何体的表面积计算公式圆柱体:表面积:2πRr+2πRh 体积:πRRh (R为圆柱体上下底圆半径,h为圆柱体高)圆锥体:表面积:πRR+πR[(hh+RR)的平方根] 体积: πRRh/3 (r为圆锥体低圆半径,h为其高,平面图形名称符号周长C和面积S正方形a-边长C=4a S=a2 长方形a和b-边长C=2(a+b)S=ab 三角形a,b,c-三边长h-a边上的高s-周长的一半A,B,C-内角其中s=(a+b+c)/2 S=ah/2=ab/2·sinC =[s(s-a)(s—b)(s-c)]1/2=a2sinBsinC/(2sinA) 四边形d,D-对角线长α-对角线夹角S=dD/2·sinα 平行四边形a,b-边长h-a边的高α-两边夹角S=ah=absinα 菱形a-边长α-夹角D-长对角线长d-短对角线长S=Dd/2=a2sinα 梯形a和b-上、下底长h-高m-中位线长S=(a+b)h/2=mh 圆r-半径d-直径C=πd=2πr S=πr2=πd2/4 扇形r-扇形半径a—圆心角度数C=2r+2πr×(a/360) S=πr2×(a/360) 弓形l-弧长S=r2/2·(πα/180-sinα)b-弦长=r2arccos[(r-h)/r] —(r—h)(2rh-h2)1/2h-矢高=παr2/360 - b/2·[r2—(b/2)2]1/2r-半径=r(l—b)/2 + bh/2α-圆心角的度数≈2bh/3 圆环R-外圆半径S=π(R2—r2)r-内圆半径=π(D2—d2)/4D-外圆直径d-内圆直径椭圆D-长轴S=πDd/4d-短轴。
常用体积及表面积计算公式一些数学的体积和表面积计算公式3立方图形名称符号面积S和体积V正方体 a-边长 S=6a2 V=a3长方体 a-长 b-宽 c-高 S=2ab+ac+bc V=abc棱柱 S-底面积 h-高 V=Sh棱锥 S-底面积 h-高 V=Sh/3棱台 S1和S2-上、下底面积h-高 V=hS1+S2+S1S21/2/3正棱台拟柱体 S1-上底面积 S2-下底面积 S-中截面积 h-高V=hS1+S2+4S/6圆柱 r-底半径 h-高 C—底面周长 S底—底面积 S侧—侧面积S表—表面积 C=2πrS底=πr2 S侧=Ch S表=Ch+2S底V=S底h=πr2h空心圆柱 R-外圆半径 r-内圆半径 h-高V=πhR2-r2直圆锥 r-底半径 h-高V=πr2h/3圆台 r-上底半径 R-下底半径 h-高V=πhR2+Rr+r2/3球 r-半径 d-直径V=4/3πr3=πd2/6球缺 h-球缺高 r-球半径 a-球缺底半径V=πh3a2+h2/6 =πh23r-h/3a2=h2r-h球台 r1和r2-球台上、下底半径 h-高V=πh3r12+r22+h2/6圆环体 R-环体半径 D-环体直径 r-环体截面半径 d-环体截面直径V=2π2Rr2=π2Dd2/4桶状体 D-桶腹直径 d-桶底直径 h-桶V=πh2D2+d2/12 母线是圆弧形;圆心是桶的中心V=πh2D2+Dd+3d2/4/15 母线是抛物我用拟柱体公式来解决一下;至于公式本身证明需要用到积分知识需要同时推广牛顿-莱布尼茨公式;不详谈:任何立体的体积均可以归纳成:V=1/6×h×S1+S2+4SS1指上表面S2指下表面S指高线垂直平分面柱体:V=1/6×h×S1+S2+4SV=1/6×h×S1+S1+4S1V=1/6×h×6SV=Sh锥体:V=1/6×h×S1+S2+4SV=1/6×h×S2/4×4+S2V=1/6×h×2S2、、长方形的周长=长+宽×2 正方形的周长=边长×4 长方形的面积=长×宽正方形的面积=边长×边长三角形的面积=底×高÷2平行四边形的面积=底×高梯形的面积=上底+下底×高÷2直径=半径×2 半径=直径÷2圆的周长=圆周率×直径=圆周率×半径×2圆的面积=圆周率×半径×半径长方体的表面积=长×宽+长×高+宽×高×2长方体的体积 =长×宽×高正方体的表面积=棱长×棱长×6正方体的体积=棱长×棱长×棱长圆柱的侧面积=底面圆的周长×高圆柱的表面积=上下底面面积+侧面积圆柱的体积=底面积×高圆锥的体积=底面积×高÷3长方体正方体、圆柱体的体积=底面积×高平面图形名称符号周长C和面积S正方形 a—边长 C=4aS=a2长方形 a和b-边长 C=2a+b S=ab三角形 a;b;c-三边长h-a边上的高s-周长的一半A;B;C-内角其中s=a+b+c/2 S=ah/2=ab/2·sinC=ss-as-bs-c1/2=a2sinBsinC/2sinA四边形 d;D-对角线长α-对角线夹角 S=dD/2·sinα 平行四边形 a;b-边长h-a边的高α-两边夹角 S=ah=absinα菱形 a-边长α-夹角D-长对角线长d-短对角线长 S=Dd/2=a2sinα梯形 a和b-上、下底长h-高m-中位线长 S=a+bh/2=mh圆 r-半径d-直径 C=πd=2πrS=πr2=πd2/4扇形 r—扇形半径a—圆心角度数C=2r+2πr×a/360S=πr2×a/360弓形 l-弧长b-弦长h-矢高r-半径α-圆心角的度数 S=r2/2·πα/180-sinα =r2arccosr-h/r - r-h2rh-h21/2=παr2/360 - b/2·r2-b/221/2=rl-b/2 + bh/2≈2bh/3圆环 R-外圆半径r-内圆半径D-外圆直径d-内圆直径 S=πR2-r2=πD2-d2/4椭圆 D-长轴d-短轴 S=πDd/4立方图形名称符号面积S和体积V 正方体 a-边长 S=6a2V=a3长方体 a-长b-宽c-高 S=2ab+ac+bcV=abc棱柱 S-底面积h-高 V=Sh棱锥 S-底面积h-高 V=Sh/3棱台 S1和S2-上、下底面积h-高 V=hS1+S2+S1S11/2/3 拟柱体 S1-上底面积S2-下底面积S0-中截面积h-高 V=hS1+S2+4S0/6圆柱 r-底半径h-高C—底面周长S底—底面积S侧—侧面积S表—表面积 C=2πrS底=πr2S侧=ChS表=Ch+2S底V=S底h=πr2h空心圆柱 R-外圆半径r-内圆半径h-高 V=πhR2-r2直圆锥 r-底半径h-高 V=πr2h/3圆台 r-上底半径R-下底半径h-高 V=πhR2+Rr+r2/3 球 r-半径d-直径 V=4/3πr3=πd2/6 球缺 h-球缺高r-球半径a-球缺底半径 V=πh3a2+h2/6=πh23r-h/3a2=h2r-h球台 r1和r2-球台上、下底半径h-高 V=πh3r12+r22+h2/6圆环体 R-环体半径D-环体直径r-环体截面半径d-环体截面直径 V=2π2Rr2=π2Dd2/4桶状体 D-桶腹直径d-桶底直径h-桶高 V=πh2D2+d2/12母线是圆弧形;圆心是桶的中心V=πh2D2+Dd+3d2/4/15母线是抛物线形棱台体体积计算公式:V=1/3HS上+S下+√S上×S下H是高;S上和S下分别是上下底面的面积..棱台体积V=上底面积+下底面积+4×中截面面积÷6×高V=上口边长-0.025上口边宽-0.025杯深=下口边长+0.025下口边宽+0.025杯深V=h/3a2+ab+b2﹝其中a;b;h分别为正四棱台的上、下底边及高的大小棱台体积:V=〔S1+S2+开根号S1S2〕/3h注:V:体积;S1:上表面积;S2:下表面积;h:高..关于不等边长的四梭台的与手工计算偏差的原因关于不等边长的四梭台的与手工计算偏差的原因鲁班算量2006在计算独立基础时;发现所有的正四棱台计算正确;而计算有长边与短边的四棱台时;就不对了;量都偏大的原因:独立基础体积正确的计算公式为:四棱台计算公式为s1+s2+sqrs1s2h/3;sqrx对x求根或ABH+h/6AB+ab+A+aB+b其中A、B、H分别为独立基础下部长方体的长、宽、高;a、b、h分别为四棱台的长、宽、高;当然;A与a、B与b相对应..用ABH+h/6AB+ab+A+aB+b是偏小实际工作中;这两种公式都有人用;结果有时是不一样.而使用鲁班算量计算结果偏大;计算不等边长的四梭台与计算公式算出结果不一样是因为我们预算中的四梭台计算公式是近似的计算方法;而鲁班用的是微积分算法;结果相差很小另外鲁班的带马牙槎的构造柱计算结果也与实际算法有差别;其实我们算构造柱时是按如果有两边有马牙槎的为边长上加6cm计算;鲁班算量考虑了层高的不同与马牙槎的高度位也考虑了马牙槎在板底时正好为退时鲁班的计算结果就会小;但其实鲁班算的是实际的量..公式分类公式分类公式表达式乘法与因式分解 a2-b2=a+ba-b a3+b3=a+ba2-ab+b2 a3-b3=a-ba2+ab+b 2三角不等式|a+b|≤|a|+|b| |a-b|≤|a|+|b||a|≤b<=>-b≤a ≤b|a-b|≥|a|-|b| -|a|≤a≤|a|一元二次方程的解 -b+√b2-4ac/2a -b-b+√b2-4ac/2a根与系数的关系 X1+X2=-b/a X1X2=c/a 注:韦达定理判别式 b2-4a=0 注:方程有相等的两实根b2-4ac>0 注:方程有一个实根b2-4ac<0 注:方程有共轭复数根三角函数公式两角和公式 sinA+B=sinAcosB+cosAsinB sinA-B=sinAcosB-sinBcosAcosA+B=cosAcosB-sinAsinB cosA-B=cosAcosB+sinAsinBtanA+B=tanA+tanB/1-tanAtanB tanA-B=tanA-tanB/1+tanAtanBctgA+B=ctgActgB-1/ctgB+ctgA ctgA-B=ctgActgB+1/ctgB-ctgA倍角公式 tan2A=2tanA/1-tan2A ctg2A=ctg2A-1/2ctga cos2a=cos2a-sin2a=2cos2a-1=1-2sin2a半角公式sinA/2=√1-cosA/2 sinA/2=-√1-cosA/2cosA/2=√1+cosA/2 cosA/2=-√1+cosA/2tanA/2=√1-cosA/1+cosA tanA/2=-√1-cosA/1+cosActgA/2=√1+cosA/1-cosA ctgA/2=-√1+cosA/1-cosA和差化积 2sinAcosB=sinA+B+sinA-B 2cosAsinB=sinA+B-sinA-B 2cosAcosB=cosA+B-sinA-B -2sinAsinB=cosA+B-cosA-BsinA+sinB=2sinA+B/2cosA-B/2 cosA+cosB=2cosA+B/2sinA-B/2tanA+tanB=sinA+B/cosAcosB tanA-tanB=sinA-B/cosAcosBctgA+ctgBsinA+B/sinAsinB -ctgA+ctgBsinA+B/sinAsinB某些数列前n项和1+2+3+4+5+6+7+8+9+…+n=nn+1/2 1+3+5+7+9+11+13 +15+…+2n-1=n22+4+6+8+10+12+14+…+2n=nn+112+22+32+42+52+62+72+82+…+n2=nn +12n+1/613+23+33+43+53+63+…n3=n2n+12/4 12+23+34+45+56+67+…+nn+1=nn +1n+2/3正弦定理 a/sinA=b/sinB=c/sinC=2R 注:其中 R 表示三角形的外接圆半径余弦定理 b2=a2+c2-2accosB 注:角B是边a和边c的夹角圆的标准方程 x-a2+y-b2=r2 注:a;b是圆心坐标圆的一般方程 x2+y2+Dx+Ey+F=0 注:D2+E2-4F>0抛物线标准方程 y2=2px y2=-2px x2=2py x2=-2py直棱柱侧面积 S=ch 斜棱柱侧面积 S=c'h正棱锥侧面积 S=1/2ch' 正棱台侧面积 S=1/2c+c'h'圆台侧面积S=1/2c+c'l=πR+rl球的表面积S=4πr2圆柱侧面积S=ch=2πh圆锥侧面积S=1/2cl=πrl弧长公式 l=ar a是圆心角的弧度数r >0 扇形面积公式s=1/2lr锥体体积公式 V=1/3SH 圆锥体体积公式V=1/3πr2h斜棱柱体积 V=S'L 注:其中;S'是直截面面积; L是侧棱长柱体体积公式 V=sh 圆柱体V=πr2h声明:本资料由大家论坛公务员考试专区收集整理;转载请注明出自更多公务员考试信息;考试真题;模拟题:大家论坛;学习的天堂数列问题1.关键提示:一般而言;公务员考试中的数列问题仅限于数列的简单求和及其变化形式;一般难度不大..考生只要很好的掌握基本公式;尤其是要学会运用等差中项的相关知识解题..2.核心公式:1等差数列通项公式==2等差数列求和公式=+=3等差数列中项公式;当n为奇数时;等差中项为1项即 ; =;当n为偶数时;等差中项为2项即和 ;而+=;4等比数列通项公式==例题1:一张考试卷共有10道题;后面的每-道题的分值都比其前面一道题多2分..如果这张考卷的满分为100分;那么第八道题的分值应为多少A.9 B.14 C.15 D.16解析:显然可将此题转化为一个等差数列的问题..每道题的分值组成了一个公差d =2的等差数列 ;显然 =100;可利用等差数列的求和公式 = +求出 ;显然代入后可求 =1;然后根据等差数列的通项公式 = 求出 =15..注:此题亦可通过求等差中项的方法解;即等差数列 ;当n=10时其等差中项的和为+=100÷5=20;公差d=2;所以 =9; =11;所以 =15..例题2:一种挥发性药水;原来有一整瓶;第二天挥发后变为原来的1/2;第三天变为第二天的2/3;第四天变为第三天的3/4;请问第几天时药水还剩下1/30瓶A.5天 B.12天 C.30天 D.100天解析:依据题意;显然可将此题变为一个有规律的数列;即第1天剩下1;第2天剩下1/2;第3天剩下1/3;依此下去;第30天就剩下1/30..所以;答案为C..例题3:2004年江苏A类真题如果某一年的7月份有5个星期四;它们的日期之和为80;那么这个月的3日是星期几A.一 B.三C.五 D.日解析:设这5天分别为 ; ; ; ; ;显然这是一个公差为7的等差数列..等差中项==16..所以;则=2即第一个星期四为2号;则3号为星期五..所以;答案为C..平面图形名称符号周长C和面积S正方形 a—边长 C=4aS=a2长方形 a和b-边长 C=2a+bS=ab三角形 a;b;c-三边长h-a边上的高s-周长的一半A;B;C-内角其中s=a+b+c/2 S=ah/2=ab/2•sinC=ss-as-bs-c1/2=a2sinBsinC/2sinA四边形 d;D-对角线长α-对角线夹角 S=dD/2•sinα平行四边形 a;b-边长h-a边的高α-两边夹角 S=ah=absi nα菱形 a-边长α-夹角D-长对角线长d-短对角线长 S=Dd/2=a2sinα梯形 a和b-上、下底长h-高m-中位线长 S=a+bh/2=mh圆 r-半径d-直径 C=πd=2πrS=πr2=πd2/4扇形 r—扇形半径a—圆心角度数 C=2r+2πr×a/360S=πr2×a/360弓形 l-弧长b-弦长h-矢高r-半径α-圆心角的度数 S=r2/2•πα/180-sinα=r2arccosr-h/r - r-h2rh-h21/2=παr2/360 - b/2•r2-b/221/2=rl-b/2 + bh/2≈2bh/3圆环 R-外圆半径r-内圆半径D-外圆直径d-内圆直径 S=πR2-r2=πD2-d2/4椭圆 D-长轴d-短轴 S=πDd/4立方图形名称符号面积S和体积V 正方体 a-边长 S=6a2V=a3长方体 a-长b-宽c-高 S=2ab+ac+bcV=abc棱柱 S-底面积h-高 V=Sh棱锥 S-底面积h-高 V=Sh/3棱台 S1和S2-上、下底面积拟柱体 S1-上底面积S2-下底面积S0-中截面积h-高 V=hS1+S2+4S0/6 圆柱 r-底半径h-高C—底面周长S底—底面积S侧—侧面积S表—表面积 C=2πrS底=πr2S侧=ChS表=Ch+2S底V=S底h=πr2h空心圆柱 R-外圆半径r-内圆半径h-高 V=πhR2-r2直圆锥 r-底半径h-高 V=πr2h/3圆台 r-上底半径R-下底半径球 r-半径d-直径 V=4/3πr3=πd2/6球缺 h-球缺高r-球半径a-球缺底半径 V=πh3a2+h2/6=πh23r-h/3a2=h2r-h球台 r1和r2-球台上、下底半径h-高 V=πh3r12+r22+h2/6圆环体 R-环体半径D-环体直径r-环体截面半径d-环体截面直径 V=2π2Rr2=π2Dd2/4桶状体 D-桶腹直径d-桶底直径h-桶高 V=πh2D2+d2/12母线是圆弧形;圆心是桶的中心V=πh2D2+Dd+3d2/4/15母线是抛物线形计算人体表面积的公式较多;但大多数可写成1或2的形式.. SA=cHα1Wα2这里SA为人体表面积m2;H为身高cm;W为体重kg;c、α1、α2为常数项..等式两边取自然对数;可将1式线性化为:lnSA=α0+α1lnH+α2lnW2其中α0=lnc;ln为自然对数符号..1916年由DuBois等直接测得9名观察者的身高、体重和体表面积;采用最小变异系数法;建立了第1个公认的人体表面积计算公式1;目前仍被广泛应用..1975年Gehan和George利用Boyd等直接测量的401例身高、体重和体表面积;应用最小二乘法拟合了2式〔1〕..1987年Mosteller按1式给出了容易记忆的简单公式c=1/60〔2〕..1973年Stevenson根据10例实测数据;提出了由身高与体重推算表面积的二元一次线性公式〔3〕;80年代赵松山等〔4;5〕分别报道了中国成年男女的计算公式..国内大多数教科书介绍的计算公式是:SA= 0.035W+0.1 W≤301.05+W-30×0.02 W>30几何体的表面积体积计算公式圆柱体:表面积:2πRr+2πRh 体积:πRRh R为圆柱体上下底圆半径;h为圆柱体高圆锥体:表面积:πRR+πRhh+RR的平方根体积: πRRh/3 r为圆锥体低圆半径;h为其高;平面图形名称符号周长C和面积S长方形a和b-边长C=2a+b S=ab三角形a;b;c-三边长h-a边上的高s-周长的一半A;B;C-内角其中s=a+b+c/2 S=ah/2=ab/2·sinC =ss-as-bs-c1/2=a2sinBsinC/2sinA 四边形d;D-对角线长α-对角线夹角S=dD/2·sinα平行四边形a;b-边长h-a边的高α-两边夹角S=ah=absinα菱形a-边长α-夹角D-长对角线长d-短对角线长S=Dd/2=a2sinα梯形a和b-上、下底长h-高m-中位线长S=a+bh/2=mh圆r-半径d-直径C=πd=2πr S=πr2=πd2/4扇形r—扇形半径a—圆心角度数C=2r+2πr×a/360 S=πr2×a/360 弓形l-弧长S=r2/2·πα/180-sinαb-弦长=r2arccosr-h/r - r-h2rh-h21/2h-矢高=παr2/360 - b/2·r2-b/221/2r-半径=rl-b/2 + bh/2α-圆心角的度数≈2bh/3圆环R-外圆半径S=πR2-r2r-内圆半径=πD2-d2/4D-外圆直径d-内圆直径椭圆D-长轴S=πDd/4d-短轴。
一些数学的体积和表面积计算公式3立方图形名称符号面积S和体积V正方体 a-边长 S=6a2 V=a3长方体 a-长 b-宽 c-高 S=2(ab+ac+bc)V=abc棱柱 S-底面积 h-高 V=Sh棱锥 S-底面积 h-高 V=Sh/3棱台 S1和S2-上、下底面积h-高 V=h[S1+S2+(S1S2)1/2]/3正棱台拟柱体 S1-上底面积 S2-下底面积 S0-中截面积 h-高V=h(S1+S2+4S0)/6圆柱 r-底半径 h-高 C—底面周长 S底—底面积 S侧—侧面积S表—表面积 C=2πr S底=πr2 S侧=Ch S表=Ch+2S底V=S底h=πr2h空心圆柱 R-外圆半径 r-内圆半径 h-高V=πh(R2-r2)直圆锥 r-底半径 h-高V=πr2h/3圆台 r-上底半径 R-下底半径 h-高V=πh(R2+Rr+r2)/3球 r-半径 d-直径V=4/3πr3=πd2/6球缺 h-球缺高 r-球半径 a-球缺底半径V=πh(3a2+h2)/6 =πh2(3r-h)/3a2=h(2r-h)球台 r1和r2-球台上、下底半径 h-高V=πh[3(r12+r22)+h2]/6圆环体 R-环体半径 D-环体直径 r-环体截面半径 d-环体截面直径V=2π2Rr2=π2Dd2/4桶状体 D-桶腹直径 d-桶底直径 h-桶高V=πh(2D2+d2)/12 (母线是圆弧形,圆心是桶的中心)V=πh(2D2+Dd+3d2/4)/15 (母线是抛物、、长方形的周长=(长+宽)×2 正方形的周长=边长×4长方形的面积=长×宽正方形的面积=边长×边长三角形的面积=底×高÷2平行四边形的面积=底×高直径=半径×2 半径=直径÷2圆的周长=圆周率×直径=圆周率×半径×2圆的面积=圆周率×半径×半径长方体的表面积=(长×宽+长×高+宽×高)×2 长方体的体积 =长×宽×高正方体的表面积=棱长×棱长×6 正方体的体积=棱长×棱长×棱长圆柱的侧面积=底面圆的周长×高圆柱的表面积=上下底面面积+侧面积圆柱的体积=底面积×高圆锥的体积=底面积×高÷3长方体(正方体、圆柱体)的体积=底面积×高平面图形名称符号周长C和面积S正方形 a—边长 C=4aS=a2长方形 a和b-边长 C=2(a+b) S=ab三角形 a,b,c-三边长h-a边上的高s-周长的一半A,B,C-内角其中s=(a+b+c)/2 S=ah/2=ab/2·sinC=[s(s-a)(s-b)(s-c)]1/2=a2sinBsinC/(2sinA)四边形 d,D-对角线长α-对角线夹角 S=dD/2·sinα平行四边形 a,b-边长h-a边的高α-两边夹角 S=ah=absinα菱形 a-边长α-夹角D-长对角线长d-短对角线长 S=Dd/2=a2sinα梯形 a和b-上、下底长h-高m-中位线长 S=(a+b)h/2=mh=πd2/4扇形 r—扇形半径a—圆心角度数C=2r+2πr×(a/360)S=πr2×(a/360)弓形 l-弧长b-弦长h-矢高r-半径α-圆心角的度数 S=r2/2·(πα/180-sinα) =r2arccos[(r-h)/r] - (r-h)(2rh-h2)1/2=παr2/360 - b/2·[r2-(b/2)2]1/2=r(l-b)/2 + bh/2≈2bh/3圆环 R-外圆半径r-内圆半径D-外圆直径d-内圆直径 S=π(R2-r2)=π(D2-d2)/4椭圆 D-长轴d-短轴 S=πDd/4立方图形名称符号面积S和体积V正方体 a-边长 S=6a2V=a3长方体 a-长b-宽c-高 S=2(ab+ac+bc)V=abc棱柱 S-底面积h-高 V=Sh棱锥 S-底面积h-高 V=Sh/3棱台 S1和S2-上、下底面积h-高 V=h[S1+S2+(S1S1)1/2]/3拟柱体 S1-上底面积S2-下底面积S0-中截面积h-高 V=h(S1+S2+4S0)/6圆柱 r-底半径h-高C—底面周长S底—底面积S侧=ChS表=Ch+2S底V=S底h=πr2h空心圆柱 R-外圆半径r-内圆半径h-高 V=πh(R2-r2)直圆锥 r-底半径h-高 V=πr2h/3圆台 r-上底半径R-下底半径h-高 V=πh(R2+Rr+r2)/3球 r-半径d-直径 V=4/3πr3=πd2/6球缺 h-球缺高r-球半径a-球缺底半径 V=πh(3a2+h2)/6=πh2(3r-h)/3a2=h(2r-h)球台 r1和r2-球台上、下底半径h-高 V=πh[3(r12+r22)+h2]/6圆环体 R-环体半径D-环体直径r-环体截面半径d-环体截面直径 V=2π2Rr2=π2Dd2/4桶状体 D-桶腹直径d-桶底直径h-桶高 V=πh(2D2+d2)/12(母线是圆弧形,圆心是桶的中心)V=πh(2D2+Dd+3d2/4)/15(母线是抛物线形)棱台体体积计算公式:V=(1/3)H(S上+S下+√[S上×S下])H是高,S上和S下分别是上下底面的面积。
圆台的体积与表面积圆台是由一个上底半径为R1、下底半径为R2、高为h的圆锥截去一个底面的一部分形成的几何体。
在几何学中,研究圆台的性质包括其体积和表面积。
本文将探讨如何计算圆台的体积和表面积,并探讨一些与圆台相关的实际应用。
一、圆台的体积我们从圆锥的体积计算开始,然后减去一个圆台的截去部分。
圆锥的体积公式为V1=(1/3)πR1²h1,其中R1是圆锥的底面半径,h1是圆锥的高度。
圆台的体积可以通过减去圆锥的一部分来计算。
由于圆台是由截去圆锥的一部分形成的,截去的半锥的体积为V2=(1/3)πR2²h2,其中R2是圆台的下底半径,h2是圆台的高度。
因此,圆台的体积可以表示为V=V1-V2=(1/3)π(R1²h1-R2²h2)。
二、圆台的表面积计算圆台的表面积需要考虑圆锥和圆台的表面积。
圆锥的表面积可以通过使用母线L1和底面半径R1计算得到,公式为A1=πR1(R1+L1),其中L1为圆锥的母线长度。
圆台的表面积则是圆锥表面积减去圆台下底面的面积,再加上圆台的侧面积。
由于圆台的侧面形状是一个梯形,可以通过使用上底边长r1、下底边长r2和梯形高度L2来计算梯形的面积,公式为A2=(r1+r2)L2/2。
因此,圆台的表面积可以表示为A=A1-A2+πR2²。
三、圆台的实际应用圆台在实际生活中有许多应用。
一个常见的例子是建筑物的屋顶,特别是当屋顶呈圆台形状时。
通过计算圆台的体积和表面积,建筑师和工程师可以确定所需的材料数量和成本,并确保屋顶的稳定性。
此外,圆台还应用于一些容器的设计,如圆台形状的水塔、漏斗等。
综上所述,圆台的体积和表面积可以通过一些简单的几何计算公式得出。
了解这些公式可以帮助我们在解决实际问题时进行准确的计算和决策。
对于对圆台有兴趣的人来说,进一步研究圆台的性质和应用将是有益的。
图形公式大全表所有图形的公式一、平面图形公式:1、正方形 s=a²或对角线×对角线÷2 c=4a2、平行四边形 s=ah3、三角形s=ah÷24、梯形s=(a b)×h÷25、圆形s=πr2 c=πd6、椭圆s=πr7、扇形 s=lr/2二、立体图形公式:1、长方体的表面积=2×(长×宽长×高宽×高) 用符号表示是:s=2(ab bc ca)2、长方体的体积 =长×宽×高用符号表示是:v=abh 或底面积×高用符号表示是:v=sh3、正方体的表面积=棱长×棱长×6 用符号表示是:s=a²×64、正方体的体积=棱长×棱长×棱长用符号表示是:v=a³5、圆柱的侧面积=底面周长×高用符号表示是:s侧=πd×h6、圆柱的表面积=2×底面积侧面积用符号表示是:s=πr²×2 dπh7、圆柱的体积=底面积×高用符号表示是:v=πr²×h8、圆锥的体积=底面积×高÷3 用符号表示是:v=πr²×h÷39、圆锥侧面积=1/2*母线长*底面周长10、圆台体积=[s s′ √(ss′)]h÷311、球体体积=(1/3*s*h)*(4*pi*r²)/s=4/3*pi*r²三、立体几何图形:1、柱体:包括圆柱和棱柱。
棱柱又可分为直棱柱和斜棱柱,按底面边数的多少又可分为三棱柱、四棱柱、n棱柱;棱柱体积都等于底面面积乘以高,即v=sh;2、锥体:包括圆锥体和棱锥体,棱锥分为三棱锥、四棱锥及n棱锥;棱锥体积为v=sh/3 ;3、旋转体:包括圆柱、圆台、圆锥、球、球冠、弓环、圆环、堤环、扇环、枣核形等。
圆台体积公式是什么?
圆台体积怎么计算,计算公式⼜是怎样的呢?不清楚的考⽣赶紧看过来,下⾯由店铺⼩编为你精⼼准备了“圆台体积公式是什么?”,持续关注本站将可以持续获取更多的考试资讯!
圆台体积公式是什么?
圆台体积公式:V=[S+S′+√(SS′)]h÷3=πh(R^2+Rr+r^2)/3。
⽤⼀个平⾏于圆锥底⾯的平⾯去截圆锥,底⾯与截⾯之间的部分叫做圆台。
⼀、圆台体积公式
公式中r为上底半径、R为下底半径、h为⾼。
圆台的表⾯积公式:S=πr²+πR²+πRl+πrl=π(r²+R²+Rl+rl)
r-上底半径、R-下底半径、h-⾼、l—母线=根号下[(R-r)²+h²]
⼆、圆台的性质
1、平⾏于底⾯的截⾯是圆。
2、过轴的截⾯是等腰梯形。
3、同别的棱台⼀样,若它是⼀个圆锥体在½处截断,则上底半径也应为下底的1/2,截下⾯积是整个圆锥⾯积的1/7。
过圆台侧⾯⼀点有且只有⼀条母线。
4、如果沿⼀个直⾓梯形垂直于底边的腰旋转⼀周,将得到⼀个圆台。
5、圆台任意两条母线延长后交于⼀点。
各形状物体体积计算公式⼀些数学的体积和表⾯积计算公式3 ⽴⽅图形名称符号⾯积S和体积V正⽅体 a-边长 S=6a2 V=a3长⽅体 a-长 b-宽 c-⾼ S=2(ab+ac+bc)V=abc棱柱 S-底⾯积 h-⾼ V=Sh棱锥 S-底⾯积 h-⾼ V=Sh/3棱台 S1和S2-上、下底⾯积h-⾼ V=h[S1+S2+(S1S2)1/2]/3正棱台拟柱体 S1-上底⾯积 S2-下底⾯积 S0-中截⾯积 h-⾼V=h(S1+S2+4S0)/6圆柱 r-底半径 h-⾼ C—底⾯周长 S底—底⾯积 S侧—侧⾯积S表—表⾯积 C=2πr S底=πr2 S侧=Ch S表=Ch+2S底V=S底h=πr2h空⼼圆柱 R-外圆半径 r-内圆半径 h-⾼V=πh(R2-r2)直圆锥 r-底半径 h-⾼V=πr2h/3圆台 r-上底半径 R-下底半径 h-⾼V=πh(R2+Rr+r2)/3球 r-半径 d-直径V=4/3πr3=πd2/6球缺 h-球缺⾼ r-球半径 a-球缺底半径V=πh(3a2+h2)/6 =πh2(3r-h)/3a2=h(2r-h)球台 r1和r2-球台上、下底半径 h-⾼V=πh[3(r12+r22)+h2]/6圆环体 R-环体半径 D-环体直径 r-环体截⾯半径 d-环体截⾯直径V=2π2Rr2=π2Dd2/4桶状体 D-桶腹直径 d-桶底直径 h-桶⾼V=πh(2D2+d2)/12 (母线是圆弧形,圆⼼是桶的中⼼)V=πh(2D2+Dd+3d2/4)/15 (母线是抛物、、长⽅形的周长=(长+宽)×2正⽅形的周长=边长×4长⽅形的⾯积=长×宽正⽅形的⾯积=边长×边长三⾓形的⾯积=底×⾼÷2平⾏四边形的⾯积=底×⾼梯形的⾯积=(上底+下底)×⾼÷2直径=半径×2 半径=直径÷2圆的周长=圆周率×直径=圆周率×半径×2圆的⾯积=圆周率×半径×半径长⽅体的表⾯积=(长×宽+长×⾼+宽×⾼)×2长⽅体的体积=长×宽×⾼正⽅体的表⾯积=棱长×棱长×6正⽅体的体积=棱长×棱长×棱长圆柱的侧⾯积=底⾯圆的周长×⾼圆柱的表⾯积=上下底⾯⾯积+侧⾯积圆柱的体积=底⾯积×⾼圆锥的体积=底⾯积×⾼÷3长⽅体(正⽅体、圆柱体)的体积=底⾯积×⾼平⾯图形名称符号周长C和⾯积S正⽅形a—边长C=4aS=a2长⽅形a和b-边长C=2(a+b)S=ab三⾓形a,b,c-三边长h-a边上的⾼s-周长的⼀半其中s=(a+b+c)/2 S=ah/2=ab/2·sinC=[s(s-a)(s-b)(s-c)]1/2=a2sinBsinC/(2sinA)四边形d,D-对⾓线长α-对⾓线夹⾓S=dD/2·sinα平⾏四边形a,b-边长h-a边的⾼α-两边夹⾓S=ah=absinα菱形a-边长α-夹⾓D-长对⾓线长d-短对⾓线长S=Dd/2=a2sinα梯形a和b-上、下底长h-⾼m-中位线长S=(a+b)h/2=mh圆r-半径d-直径C=πd=2πrS=πr2=πd2/4扇形r—扇形半径a—圆⼼⾓度数C=2r+2πr×(a/360)S=πr2×(a/360)⼸形l-弧长b-弦长h-⽮⾼r-半径α-圆⼼⾓的度数S=r2/2·(πα/180-sinα)=r2arccos[(r-h)/r] - (r-h)(2rh-h2)1/2 =παr2/360 - b/2·[r2-(b/2)2]1/2=r(l-b)/2 + bh/2≈2bh/3圆环R-外圆半径r-内圆半径D-外圆直径d-内圆直径S=π(R2-r2)=π(D2-d2)/4椭圆D-长轴d-短轴S=πDd/4⽴⽅图形名称符号⾯积S和体积V正⽅体a-边长S=6a2V=a3长⽅体a-长b-宽c-⾼S=2(ab+ac+bc)V=abc棱柱S-底⾯积h-⾼V=Sh棱锥S-底⾯积h-⾼V=Sh/3棱台S1和S2-上、下底⾯积h-⾼V=h[S1+S2+(S1S1)1/2]/3 拟柱体S1-上底⾯积S0-中截⾯积h-⾼V=h(S1+S2+4S0)/6圆柱r-底半径h-⾼C—底⾯周长S底—底⾯积S侧—侧⾯积S表—表⾯积C=2πrS底=πr2S侧=ChS表=Ch+2S底V=S底h=πr2h空⼼圆柱R-外圆半径r-内圆半径h-⾼V=πh(R2-r2)直圆锥r-底半径h-⾼V=πr2h/3圆台r-上底半径R-下底半径h-⾼V=πh(R2+Rr+r2)/3球r-半径d-直径V=4/3πr3=πd2/6球缺h-球缺⾼a-球缺底半径V=πh(3a2+h2)/6=πh2(3r-h)/3a2=h(2r-h)球台r1和r2-球台上、下底半径h-⾼V=πh[3(r12+r22)+h2]/6圆环体R-环体半径D-环体直径r-环体截⾯半径d-环体截⾯直径V=2π2Rr2=π2Dd2/4桶状体D-桶腹直径d-桶底直径h-桶⾼V=πh(2D2+d2)/12(母线是圆弧形,圆⼼是桶的中⼼)V=πh(2D2+Dd+3d2/4)/15(母线是抛物线形)棱台体体积计算公式:V=(1/3)H(S上+S下+√[S上×S下])H是⾼,S上和S下分别是上下底⾯的⾯积。
圆台体积V=7i*h*(R2+R*r+r2)/3 V=7i*h*(D2+d2+D*d)/12 圆柱体积V=K*R2*hV=TI*D2 *h/4球缺体积h—球缺高L球半径a—球缺底半径V=7ih(3a2+h2)/6V=7ih2(3r-h)/3a2=h(2r-h)图形・尺寸捋号-体积(町底面积(F)表而积(強表而积山)力-球缺的髙L球碱半径「平切圆亘径球缺表而稅S萨2加吟+M)$=呦如“)/皿⑵")长方体的体积公式:体积=弘宽X高如果用a、b、c分别表示长方体的长、宽、高则长方体体积公式为:vy=abc正方体的体积公式:体积=棱长x棱长X棱长.如果用a表示正方体的棱长,则正方体的体积公式为V j£=a-a-a=a3锥体的体积=底面面积X高三3V圆锥=$底汕乂台体体积公式:V=[ S上+7(S上S下)+S T]h-3圆台体积公式:V=(R2+Rr+r2)hn-3球缺体积公式=TTh2(3R-h)-3球体积公式:V=4IT R3/3棱柱体积公式:V=S底面xh=S直截面xl (I为侧棱长,h为高)棱台体积:V= (S1+S2+开根号(S1*S2) ) /3*h注:V:体积;S1:上表面积;S2:下表面积;h:高。
儿何体的表面积计算公式圆柱体:表面积:2TTRr+2iTRh体积:uRRh (R为圆柱体上下底圆半径,h为圆柱体高)圆锥体: 表面积:7TRR+TTR[(hh+RR)的平方根]体积:TTRRh/3 (r为圆锥体低圆半径,h为其高, 平面图形名称符号周长C和面积S正方形a—边长C=4aS=a2长方形a和b—:S长C=2(a+b)S=ab三角形a,b,c—三边长h-a边上的高s—周长的一半A,B,C 一内角其中s=(a+b+c)/2 S=ah/2=ab/2・sinC =[s(s-a)(s-b)(s-c)]1/2=a2sinBsinC/(2sinA)四边形d,D-对角线长a—对角线夹角S=dD/2・sina平行四边形a.b-边长h-a边的高a-两边夹角S=ah=absina菱形a-边长a—夹角D—长对角线长d-短对角线长S=Dd/2=a2sina梯形a和b—上、下底长h—高m—中位线长S=(a+b)h/2= mh圆r—半径d—直径C=TTd=2TrrS=TTr2=Trd2/4扇形r—扇形半径a—圆心角度数C=2r+2Trrx(a/360)S=TTr2x(a/360)弓形I一弧长S=r2/2(TTO/180-sina) b—弦长=r2arccos[(r-h)/r] - (r-h)(2rh-h2)1/2h—矢高=TTar2/360-b/2・[r2-(b/2)2]1/2r—半径=r(l-b)/2 + bh/2a—圆心角的度数=2bh/3圆环R—外圆半径S=TT(R2-r2) r—内圆半径=TT(D2£2)/4D—外圆直径d—内圆直径椭圆D—长轴S=TTDd/4d—短轴。
圆台的侧面积公式怎样推出来的之欧阳理创编假设我们有一个圆台,在其底面和顶面上分别有两个半径为r1和r2的圆形,两个圆之间的垂直距离为h。
____________\/r1\/r2\/\/\/\/h我们先求出梯形的高度。
梯形的高度等于圆台的垂直距离h。
接下来,我们将梯形的底边和顶边分别延长,使其与地面相交,并设交点为A和B。
连接OA和OB。
根据勾股定理,我们知道三角形OAB为直角三角形,其中AB为梯形的斜边,OA和OB分别为梯形的底边和顶边。
由于圆台为旋转体,侧面积等于旋转体在其中一高度处的截面积。
我们可以将圆台按照高度h切割成无数个微小的圆环,每个圆环的宽度为Δx,高度为h。
设圆环的半径为r(x),其中x为圆环与底面汇合的位置。
对于每个圆环,其面积可以表示为2πr(x)Δx(圆环的周长乘以宽度)。
整个圆台的侧面积就是将所有圆环的面积进行叠加。
因此,圆台的侧面积S可以表示为:S = ∫[0,h] 2πr(x)dx接下来我们来求解r(x)。
根据梯形的性质,我们可以得到以下等式:r1/h=r(x)/x通过变换可以得到:r(x)=(r2-r1)/h*x+r1将r(x)代入上面的积分式中,我们可以得到:S = ∫[0,h] 2π [(r2 - r1)/h * x + r1] dx对上式进行积分,我们可以得到:S=2π[(r2-r1)/h*(x^2/2)+r1x],[0,h]经过运算,得到:S=π(r1+r2)√((r2-r1)^2+h^2)这就是圆台的侧面积公式。
通过以上推导,我们可以得到圆台的侧面积公式为S=π(r1+r2)√((r2-r1)^2+h^2)。
圆台的性质及计算方法圆台是一个几何体,由一个圆和与圆平行的底面组成。
在本文中,我们将探讨圆台的性质以及如何计算圆台的重要参数。
一、圆台的性质1.底面:圆台的底面是一个圆。
圆的直径或半径将直接影响到圆台的其他性质。
2.侧面:圆台的侧面是由多个与底面圆相切的直线段组成。
这些直线段的长度将决定圆台的高度。
3.高度:圆台的高度是指圆台的中心到底面的垂直距离。
圆台高度的测量单位通常与底面半径的单位保持一致。
4.斜高:圆台的斜高是指从底面上某一点到顶点的直线距离。
这条线段将与侧面相切,并垂直于底面。
5.顶点角:圆台的顶点角是指底面圆的圆心、顶点和底边的夹角。
它的大小将影响到圆台的外形。
二、圆台的计算方法1.底面积:圆台的底面积可以通过以下公式计算:底面积= π × 底面半径²2.侧面积:圆台的侧面积可以通过以下公式计算:侧面积= π × 斜高 ×侧边半长3.表面积:圆台的表面积是指底面积和侧面积的总和。
可以通过以下公式计算:表面积 = 底面积 + 侧面积4.体积:圆台的体积可以通过以下公式计算:体积 = 底面积 ×高度 ÷ 35.斜高的计算:斜高可以通过使用勾股定理来计算。
将斜高平方等于底边半长的平方加上高度的平方。
三、应用举例假设我们有一个圆台,底面半径为8 cm,底边半长为10 cm,高度为12 cm。
我们可以使用上述计算方法来计算圆台的各项参数。
首先,计算底面积:底面积= π × 8² ≈ 201.06 cm²其次,计算斜高:斜高² = 10² + 12² = 244斜高≈ √244 = 15.62 cm然后,计算侧面积:侧面积≈ π × 15.62 × 10 ≈ 490.87 cm²接下来,计算表面积:表面积≈ 201.06 + 490.87 ≈ 691.93 cm²最后,计算体积:体积≈ 201.06 × 12 ÷ 3 ≈ 804.48 cm³综上所述,对于给定的圆台,底面积约为201.06 cm²,侧面积约为490.87 cm²,表面积约为691.93 cm²,体积约为804.48 cm³。
空间几何体的表面积与体积公式大全一、全(表)面积(含侧面积)①棱柱、②圆柱.2・锥体①棱锥:S^ = ^h [②圆锥:= /3、台体①棱台• S梭台侧=空(6?上底+c下底)方'» S全= s±+s『s下②圆台:S杭台側=*(6底+cQZ -4、球体①球:S球=勿/②球冠:略③球缺:略二、体积1、柱体①棱柱} V,=S h②圆柱S S 2、锥体①棱锥} v.=\sh②圆锥S S3、 台体V 台肓//(S 匕+ JS 上S F + S 下)台=齐方(厂上+Jr 上厂下+厂下) 4、 球体①球:V 球② 球冠:略VyT/③ 球缺:略说明:棱锥、棱台计算侧面积时使用侧面的斜高力计算;而圆锥、圆台的 侧面积计算时使用母线/计算。
三、拓展提高1、 祖眶原理:(祖璀:祖冲之的儿子)夹在两个平行平面间的两个几何体,如果它们在任意高度上的平行截面面积都相等,那么这两个几何体的体积相等。
最早推导出球体体积的祖冲之父子便是运用这个原理实现的。
2、 阿基米德原理:(圆柱容球)圆柱容球原理:在一个高和底面直径都是2厂的圆柱形容器内装一个最大 的球体,则该球体的全面积等于圆柱的侧面积,体积等于圆柱体积的?。
①棱台 ②圆台丿分析:圆柱体积:V H1 = s h =(^r)x2r = 2^/圆柱侧面积:S叭削= c/z = (2岔)X2广=4兀/2 彳4 彳因lit :球体体积:|/厅=—x2/r^ =_龙厂球体表面积:S球=4兀厂通过上述分析,我们可以得到一个很重要的关系(如图)即底面直径和高相等的圆柱体积等于与它等底等高的圆锥与同直径的球体积之和3、台体体积公式公式:几冷〃(S上+、恳瓦+ S』证明:如图过台体的上下两底面中心连线的纵切面为梯形ABCD。
延长两侧棱相交于一点P 0设台体上底面积为Si,下底面积为S下高为// °易知:\PDCs 型AB,设卩£ =人,则Pf+h由相似三角形的性质得:孚=袋AB PF即:(相似比等于面积比的算术平方根)、用hi整理得:人=尺刃又因为台体的体积二大锥体体积一小锥体体积u台=§s下(九+力r s上人人(S下-S上)+§s下方即:(、瓦+丫瓦)+扣下力=|/z $ + 应7+S卜)4、球体体积公式推导分析:将半球平行分成相同高度的若干层(兀层),〃越大,每一层越近似于圆柱'"T -HZ)时»每一层都可以看作是一个圆柱。
圆台体积V=π*h*(R2+R*r+r2)/3V=π*h*(D2+d2+D*d) /12圆柱体积V=π*R2*hV=π*D2*h/4球缺体积h-球缺高r-球半径a-球缺底半径V=πh(3a2+h2)/6V=πh2(3r-h)/3a2=h(2r-h)圆柱体的体积公式:体积=底面积×高,如果用h代表圆柱体的高,那么圆柱=S底×h长方体的体积公式:体积=长×宽×高如果用a、b、c分别表示长方体的长、宽、高那么长方体体积公式为:V长=abc正方体的体积公式:体积=棱长×棱长×棱长.如果用a表示正方体的棱长,那么正方体的体积公式为V正=a·a·a=a³锥体的体积=底面面积×高÷3 V 圆锥=S底×h÷3台体体积公式:V=[ S上+√(S上S下)+S下]h÷3圆台体积公式:V=(R²+Rr+r²)hπ÷3球缺体积公式=πh²(3R-h)÷3球体积公式:V=4πR³/3棱柱体积公式:V=S底面×h=S直截面×l 〔l为侧棱长,h为高)棱台体积:V=〔S1+S2+开根号〔S1*S2〕〕/3*h注:V:体积;S1:上外表积;S2:下外表积;h:高。
几何体的外表积计算公式圆柱体:外表积:2πRr+2πRh 体积:πRRh (R为圆柱体上下底圆半径,h为圆柱体高) 圆锥体:外表积:πRR+πR[(hh+RR)的平方根] 体积: πRRh/3 (r为圆锥体低圆半径,h为其高, 平面图形名称符号周长C和面积S正方形 a—边长 C=4a S=a2 长方形 a和b-边长 C=2(a+b) S=ab 三角形 a,b,c-三边长h-a边上的高s-周长的一半A,B,C-内角其中 s=(a+b+c)/2 S=ah/2=ab/2·sinC =[s(s-a)(s-b)(s-c)]1/2=a2sinBsinC/(2sinA) 四边形 d,D-对角线长α-对角线夹角 S=dD/2·sinα 平行四边形 a,b-边长h-a边的高α-两边夹角 S=ah=absinα 菱形 a-边长α-夹角D-长对角线长d-短对角线长 S=Dd/2=a2sinα 梯形 a和b-上、下底长h-高m-中位线长 S=(a+b)h/2=mh 圆 r-半径 d-直径 C=πd=2πr S=πr2=πd2/4 扇形 r—扇形半径 a—圆心角度数 C=2r+2πr×(a/360) S=πr2×(a/360) 弓形 l -弧长 S=r2/2·(πα/180-sinα)b-弦长=r2arccos[(r-h)/r] - (r-h)(2rh-h2)1/2h-矢高=παr2/360 - b/2·[r2-(b/2)2]1/2r-半径=r(l-b)/2 + bh/2α-圆心角的度数≈2bh/3 圆环 R-外圆半径 S=π(R2-r2)r-内圆半径=π(D2-d2)/4D-外圆直径d-内圆直径椭圆 D-长轴 S=πDd/4d-短轴。
圆台公式表面积公式
表面积公式:S=πr²+πR²+πRl+πrl=π(r²+R²+Rl+rl)。
r-上底半径、R-下底半径、h-高、l—母线=根号下[(R-r)²+h²]
公式
体积公式
九章算术记载的圆台体积公式:“上下周相乘,又各自乘,并之,以高乘之,三十六而一。
”这是将圆周率的值取为3得到的。
其中r'是上底面半径,r是下底面半径。
表面积公式
S=πr²+πR²+πRl+πrl=π(r²+R²+Rl+rl)
r-上底半径、R-下底半径、h-高、l—母线=根号下[(R-r)²+h ²]
侧面积公式
圆台侧面展开是扇环,扇环和梯形共享同一个面积公式:(上底+下底)*高/2这里上下底分别是圆周2πr,2πr',高是母线l,所以得出面积公式π(r'l+rl)。
具体的说:对比三角形和扇形面积公式一致都是(底*高/2),梯形是2个三角形之差,同样,扇环也是2个扇形之差,所以可以推导出扇环和梯形面积公式一致。
性质
平行于底面的截面是圆。
过轴的截面是等腰梯形。
同别的棱台一样,若它是一个圆锥体在½处截断,则上底半径也应为下底的1/2。
过圆台侧面一点有且只有一条母线。
如果沿一个直角梯形的一条直角边旋转一周,将得到一个圆台。
圆台任意两条母线延长后交于一点。
台体的公式
台体是一种常见的几何体,它由两个平面相交而成,可以看作是圆锥的变形。
台体的体积公式可以通过将台体分解成小锥体和台体本身,并计算它们的体积来推导得出。
具体来说,可以将台体朝着较小的一端延长棱至某交点,变成一个包含一个小锥体加台体本身的大锥体。
大锥体的体积减去小锥体的体积即为台体的体积。
台体的面积公式可以通过计算台体的上底面积、下底面积和侧面积来确定。
对于圆台和棱台,体积公式分别为:V 台体 = 13h(S 上 (S 下·S 上)S 下) 和 V 台体 = 13h(SS"SS"),其中 S 上表示台体上体面,S 下表示台体下底面,h 表示高,SS"表示台体的侧面积。