上海大众 波罗POLO 劲情劲取基本配置电路图——原厂2006
- 格式:pdf
- 大小:8.18 MB
- 文档页数:99
前风挡下格栅6Q1819415B125800件遮阳板(L)6Q0857551B2F4带灯17600件遮阳板(R)6Q0857552B2F4带灯17600件前挡雨刮电机6Q1955119A179400件雨刮电机支架6Q1955601B含雨刷连杆1148000件前车门壳(L) 6QE831055D118561400400件前门外拉手盖(L)3B0837879A15700件前门外拉手底座(L)6Q0837885111600件前门外拉手(L)3B0837207C16100件前车门锁芯(L)141700件前车门锁总成(L)3B1837015AM127100件前车门玻璃(L)6Q4845201C15800件6Q4837477A110900件前车门玻璃外压条(L)6Q4837471A112300件前车门玻璃内压条(L)6Q4853515AGRU#L13800件前车门防擦板(L)前车门防擦板(L)6Q4853515A131700件前车门密封条(L)6Q4837701A127000件6Q0837173D113600件前车门内开启手柄(L)前车门玻璃升降器总成(L)147700件前门升降器架(L)6Q4837461145700件前车门上铰链(L)6Q0831401B13500件前车门下铰链(L)6Q0831********件前门电动升降器开关(L)119500件6Q4837901G124300件在左前门玻璃框外的竖向装饰条(通常为黑色)前车门壳(R) 6QE831056D118561400400件前门外拉手盖(R)3B0837879A15700件前门外拉手底座(R)6Q0837886111600件前门外拉手(R)3B0837208C16100件前车门锁芯(R)141700件前车门锁总成(R)3B1837016BP186000件前车门玻璃(R)6Q4845202C15800件6Q4837478A110900件前车门玻璃外压条(R)6Q4837471A112300件前车门玻璃内压条(R)6Q4853516AGRU#L13800件前车门防擦板(R)前车门防擦板(R)6Q4853516A131700件前车门密封条(R)6Q4837702A127000件前车门内开启手柄(R)6Q0837174E118000件前车门玻璃升降器总成(R)147700件前门升降器架(R)6Q4837462145700件前车门上铰链(R)6Q0831402B13200件前车门下铰链(R)6Q0831********件前门电动升降器开关(R)119500件6Q4837902G124300件在右前门玻璃框外的竖向装饰条(通常为黑色)后车门壳(L) 6QE833055A115701200585件后车门外拉手总成(L)10450件后门外拉手盖(L)3B4839879A15800件后门外拉手底座(L)6Q4839885111500件后门外拉手(L)3B0837207C16100件后车门锁总成(L)3B4839015AG带中控193900件后车门玻璃(L)6Q6845025C15700件6Q6839477BB411130450件后车门玻璃外压条(L)6Q6839471AB41117350件后车门玻璃内压条(L)后车门防擦条(L)10450件后车门密封条(L)6Q6839701A128000件后车门内饰板(L)米色103200件6Q0839173E112500件后车门内开启手柄(L)后门升降器架(L)6Q4839461155200件后车门上铰链(L)6Q0831401B13500件后车门下铰链(L)6Q4833411119400件后车门角窗总成(L)10900件后门角窗玻璃(L)6Q4845297B16800件后门玻璃密封条(L)154000件6Q4839901F14200件后门内开手柄装饰框(L)后车门壳(R) 6QE833056A115701200858件后车门外拉手总成(R)10450件后门外拉手盖(R)3B4839879A15800件后门外拉手底座(R)6Q483988614900件后门外拉手(R)3B0837207C16100件后车门锁总成(R)3B4839016AG193900件后车门玻璃(R)6Q6845026C15700件6Q6839478BB411130450件后车门玻璃外压条(R)6Q6839471AB41117350件后车门玻璃内压条(R)后车门防擦条(R)10450件后车门密封条(R)6Q6839702A128000件后车门内饰板(R)米色103200件后车门内开启手柄(R)6Q0839174E112500件后门升降器架(R)6Q4839462155200件后车门上铰链(R)6Q0831402B13200件后车门下铰链(R)6Q4833411119400件后车门角窗总成(R)10900件后门角窗玻璃(R)6Q4845298B16800件后门电动升降器开关(R)10300件后门玻璃密封条(R)154000件6Q4839902F14200件在右后门玻璃框外的竖向装饰条(通常为黑色)前门框密封条(L)6Q4867911C151700件前门框密封条(R)6Q4867912C151700件后门框密封条(L)6Q6867911C151700件后门框密封条(R)6Q6867912C151700件倒车镜壳(L)1Z0857537A15000件倒车镜座(L)6Q1857507AC120700件倒车镜座(L)6Q1857507AD加热的后视镜124900件倒车镜片(L)6QD85752112100件倒车镜片(L) 6QD857521A加热的后视镜14000件倒车镜壳(R) 1Z0857538A15000件倒车镜座(R)6Q1857508AD120700件倒车镜座(R)6Q1857508AE124900件倒车镜片(R) 6Q0857522J12200件倒车镜片(R) 6Q0857522K14000件车内中央后视镜6Q1857511138300件倒车镜控制开关6Q1959565H127800件铁顶盖总成6Q6817111144600件铁顶盖总成6Q6817101带滑动天窗的车型1183700件车顶内衬6Q4867501R带滑动天窗的车型1268200件6N0877051C1493000件天窗玻璃带密封条总成天窗电机6Q0959591A1261200件天窗底座总成6N08770491598800件前中央顶灯6Q0947105C米色137800件前中央顶灯6Q0947106A带滑动天窗的车型124800件市场价为福耀报价176212000件后风挡玻璃6Q6845051BL后风挡雨刮电机6Q6955711174400件后风挡雨刮电机6Q6955711#L125700件后风挡雨刮臂6Q6955707111300件后风挡雨刮片6Q695542513500件后风挡雨刮喷水嘴3B9955985A17100件尾门壳6Q6827025S1141600件尾门铰链6Q6827301B2124350件尾门内护板上10800件尾门内护板下101200件尾门锁6Q6827505B1671450件尾门字标16N0853687H POLO17700件尾门字标16N0853687H739#POLO11100件尾门字标11J0853675A 1.4'16600件尾门字标11J0853675A739#L 1.4'1500件尾门字标11J0853675'1.6'1500件尾门徽标6Q0853630A11800件尾门外拉手6Q6827565A1122650件尾门密封条6Q6827705C137700件尾门撑杆6Q6827550225300件尾门玻璃雨刮臂6Q6955707111300件尾门玻璃雨刮片6Q695542513500件尾门玻璃雨刮电机6Q6955711174400件尾门玻璃雨刮电机6Q6955711#L125700件3B9955985A17100件尾门玻璃雨刮喷水嘴尾门玻璃喷水电机1T0955651A130700件尾灯总成(L) 6QD945095A115300件尾灯总成(R) 6QD945096A115300件高位刹车灯总成2K0945087A12481330件后牌照灯6QD943021A11700件后保险杠皮6Q6807417E16144800件6Q6807521B41124300件后保险杠下导流板后杠饰条6Q6807423E15300件后杠左支架6Q680737511700件后杠右支架6Q680737611700件后保险杠内衬6Q680786317400件6Q080730513722900件后保险杠骨架(后杠铁)后保险杠雷达探头7H0919275C434500件水箱框架总成6Q0805588S1152013500件前轮旋(L)6Q0809101K1175600件前纵梁(L)6Q0803091E1163800件前轮旋(R)6Q0809102H1175600件前纵梁(R)6Q0803092D1192400件元宝梁(副车架)6Q0199287L1221914800件侧框架总成(L) 6Q48098351134300件侧框架总成(R)6Q48098361134300件加油口盖板总成6Q6809857D18600件后围总成6Q6813301B149300件后侧围玻璃(L)17000件后侧围玻璃(R)17000件后叶子板内衬(L)6Q0810971A13700件后叶子板内衬(R)6Q0810972A13700件前下摆臂总成(L)6Q0407151E160926070件前下摆臂球头(L)6Q0407365A139400件前下摆臂总成(R)6Q0407151E160926070件前下摆臂球头(R)6Q0407365A139400件前稳定杆6Q0411305AA15342400件前转向节(L)6Q0407255AC110017010件前转向节(R)6Q0407256AC110017010件前减震器(L) 6QD413031C136527585件前弹簧(L)142600件前减震器(R) 6QD413031C136527585件前弹簧(R)142600件前半轴总成(L)6QD407271 1.4L16856200件前半轴总成(L)6QD407271B 1.6L190200件前半轴总成(L)6QD407271G 自动变速器1105600件前半轴总成(R)6QD407271 1.4L16856200件前半轴总成(R)6QD407271B 1.6L190200件前半轴总成(R)6QD407272L自动变速器1105600件前轮轴承230500件后减震器(L)6QD51302512802200件后减震器(R)6QD51302512802200件后轮轴头6Q0501117215700件后轮轴头6Q0501117#L214000件后轮轴承6Q0598611294800件后桥6Q0500051AJ1352824500件车轮轮圈6QD601025Z31458500件轮圈盖/罩6Q0601149G411300件轮胎6Q0601307P437000件6Q0407621S232100件前轮法兰盘(前轮毂)前稳定杆小连杆6Q0411315G218400件真空助力器6QD614106A142500件制动总泵带油壶总成12000件制动总泵6QD611019C167000件制动油壶总成6Q0611301A117500件ABS前轮传感器6Q0927803B234300件ABS后轮传感器6Q0927807B247100件前制动底板(L)13000件前制动底板(R)13000件前制动盘(L)6QD615301123200件前制动盘(R)6QD615301123200件前制动片6Q069815113422800件前制动器总成(L)1J0615123A110629600件前制动器总成(R)1J0615124A1120000件后制动鼓(L)6Q0609617125000件后制动鼓(R)6Q0609617125000件后制动蹄1H0698545A419000件ABS制动泵总成6QD614117C1298300件转向机总成6Q1423061S1613850000件转向横拉杆总成6Q0423803E267112440件转向横拉杆球头6Q0423811225400件助力转向泵支架6Q0423845D189200件方向盘6Q0419091T1197600件组合开关总成6Q095351314113600件喇叭总成6QD95122315600件转向助力泵6Q0423155AE1403228300件助力转向泵进油管6Q1423893F184000件助力转向泵出油管6Q1423891F146400件转向柱总成6Q1419501AD183300件离合器压盘03C141031B126000件离合器压盘03C141031C146000件离合器片03C141025B126000件离合器片03C141025C136500件离合器分离轴承02T14117015042600件手动变速箱总成02T300053F11053500件手动变速箱总成02T300053M11053500件手动变速箱壳体02T301103K1448300件02T301107B1462900件手动变速箱前盖(即离合器罩壳)手动变速箱后盖02T301211D114700件手动变速箱一轴02T311103J1150500件手动变速箱二轴02T311205E122700件手动变速箱二轴02T311205AE126500件液力变矩器总成09G323571J11333300件液力变矩器总成09G323571C11333300件变速箱电脑09G927750DR1138100件变速箱电脑09G927750FS1138100件手自一体变速箱总成09G300037P14018600件09G3213611164800件手自一体变速箱油底壳手自一体变速箱油底壳09G321361A199800件09G321370146400件手自一体变速箱油底垫09G325429141500件手自一体变速箱油滤清器自动变速箱阀体09G325039A11617100件发动机总成03C100031K11736700件发动机总成03C100031L11816400件发动机总成03C100033J11736700件发动机总成03C100033N11816400件正时皮带/正时链条03C109158120500件曲轴皮带轮03D105255D112100件飞轮03C105269E171600件飞轮03C105269F171600件机油滤清器03C115403F129900件机油尺03C115611R11600件曲轴瓦036105561D007103500件曲轴03C105101AN1471000件曲轴03C105101AS1485300件活塞连杆瓦036105701AQ84900件活塞连杆瓦036105701AR84900件活塞连杆036198401D1211300件活塞连杆036198401E1198400件活塞环03C198151D47900件活塞环03C198151411400件活塞036107065CT活塞带环416400件活塞036107065CS活塞带环415700件凸轮轴正时轮03C109571F12700件发动机油底壳03C103601AA 1.4发动机,133700件发动机油底壳03C103601MA 1.6发动机,142100件缸盖03C1033511491000件排气门036109611AC430300件排气门036109611AC130300件进气门036109601AJ419800件进气门036109601AJ119800件排气凸轮轴03C109101AQ1114100件排气凸轮轴03C109101AN1114100件进气凸轮轴03C109101AM1114100件进气凸轮轴03C109101AP1114100件气门室盖03C103475AF1109500件气门室盖03C103475AG1109500件03C103101H带活塞的汽缸体1616600件发动机中缸/发动机中段03C103101J带活塞的汽缸体1616600件发动机中缸/发动机中段机油泵03C115105L150000件曲轴正时齿轮03C105209AC19300件发动机顶部装饰板03C103925B14800件发动机顶部装饰板03C10392515700件发动机下护板6Q0825235E13573200件发动机下护板6Q0825237R111200件发动机电脑03C906057A1137311000件发电机03C903023B11053800400件起动机02T911023S155000件起动机02M911023M15866400件火花塞101905601B44700件蓄电池1J0915105AC153200件6Q09153311221150件蓄电池固定架/固定盒点火线圈036905715A427100件带支架的点火开关4B0905851B167600件蓄电池罩11800件油箱盖107201594A14600件油箱6QD201021B1182500件燃油泵总成6Q0919051F142300件燃油滤清器6Q0201051C113000件节气门总成03C133062E1196600件空气滤清器总成03C129611M118200件空气滤清器滤芯15400件空气滤清器进气口6QD12961817800件进气歧管03C129711R 1.4发动机,1111200件进气歧管03C129711M 1.6发动机,1114000件排气歧管036253020F 1.6发动机,1296800件排气歧管隔热罩15500件排气管氧传感器126000件排气管前段(不含三元)6Q0253209BB135200件6Q6253609AM156300件排气管后段(含消声器)碳罐总成6Q0201801A15000件三元催化6Q0253059GC1157000件水箱总成6Q0121253Q13432400件膨胀箱6Q012140712600件膨胀箱盖1J0121321B18100件水箱电子扇风圈6Q0121207F15700件6QD95945512642150件电子扇叶带电机(1号)6QD959455B12792300件电子扇叶带电机(1号)水泵03C121005D160500件水泵皮带轮03C121031B12800件水温传感器06A91950112700件节温器总成03C121110K15900件水箱上水管6Q0122051CS116900件水箱下水管6Q0122101BQ114500件水箱支架(水箱吊耳)2800件冷凝器6QD82041115653600件空调干燥瓶6Q0820193A140000件空调泵总成6Q0820803H1254021500件空调管(1号) 6Q0820741A冷凝器-空调管41192600件空调管(2号)6Q0820721AB冷凝器-空调泵121700件空调管(3号) 6Q0820744S空调泵-蒸发箱117800件空调管(4号)6Q1820741J蒸发箱-空调管1197300件仪表台骨架总成6Q1857017K166400件6Q0819703黑色133700件仪表台左出风口总成6QD819703铝银色16500件仪表台左出风口总成6Q0858069M黑色170700件仪表台中出风口总成6QD858069铝银色134200件仪表台中出风口总成6Q0819704黑色133700件仪表台右出风口总成6QD819704铝银色16500件仪表台右出风口总成组合仪表总成6Q0920800X1100600件CD/DVD机1JD035119B1145600件仪表台副驾驶杂物箱总成155000件副驾驶杂物箱壳6Q1857101F151700件副驾驶杂物箱盖6QD857121129600件主气囊+副气囊圆形主气囊1070000件主气囊1T0880201E圆形主气囊1264900件副气囊总成6Q0880204F1670900件副厂为下线配件128891800540件气囊电脑1C0909601A016气囊游丝6Q095965314431800件仪表台壳6Q1857001DP无烟煤色/米色1286819000件空调控制面板6Q0820045G198800件6Q4881045M1146200件前座椅靠背骨架(L)前座椅靠背靠垫(L)6QD881775125200件靠垫蒙皮(L) 6QD881805A座椅面罩(布料)134400件6Q4881105CH178500件前座椅座垫骨架(L)前座椅座垫(L)6QD881375D19100件座垫蒙皮(L) 6QD881405A座椅面罩(布料)124300件6Q4881045M1146200件前座椅靠背骨架(R)前座椅靠背靠垫(R)6QD881775125200件靠垫蒙皮(R) 6QD881805A座椅面罩(布料)134400件6Q4881106BD147100件前座椅座垫骨架(R)前座椅座垫(R)6QD881375D19100件座垫蒙皮(R) 6QD881405A座椅面罩(布料)124300件6QD885805B座椅面罩(布料)147000件后座椅靠背蒙皮(整体式靠背)6Q6885501D1147900件后座椅靠背骨架(整体式靠背)6QD885775119000件后座椅靠背垫(整体式靠背)后座椅座垫蒙皮6QD885405A座椅面罩(布料)140500件后座椅座垫骨架6Q0885305B168000件后座椅座垫6QD885375120100件前座安全带(L)6QD857705139400件前座安全带锁扣(L)6Q0857755D14000件前座安全带(R)6QD857706139400件6Q0857756D14000件前座安全带锁扣(R)后座安全带(L)6QD857805112500件后座安全带(R)6QD857806112500件后座中安全带6QD857487B112000件6QD857488B19400件后座中安全带锁扣。
前风挡下格栅6Q1819415B125800件遮阳板(L)6Q0857551B2F4带灯17600件遮阳板(R)6Q0857552B2F4带灯17600件前挡雨刮电机6Q1955119A179400件雨刮电机支架6Q1955601B含雨刷连杆1148000件前车门壳(L) 6QE831055D118561400400件前门外拉手盖(L)3B0837879A15700件前门外拉手底座(L)6Q0837885111600件前门外拉手(L)3B0837207C16100件前车门锁芯(L)141700件前车门锁总成(L)3B1837015AM127100件前车门玻璃(L)6Q4845201C15800件6Q4837477A110900件前车门玻璃外压条(L)6Q4837471A112300件前车门玻璃内压条(L)6Q4853515AGRU#L13800件前车门防擦板(L)前车门防擦板(L)6Q4853515A131700件前车门密封条(L)6Q4837701A127000件6Q0837173D113600件前车门内开启手柄(L)前车门玻璃升降器总成(L)147700件前门升降器架(L)6Q4837461145700件前车门上铰链(L)6Q0831401B13500件前车门下铰链(L)6Q0831********件前门电动升降器开关(L)119500件6Q4837901G124300件在左前门玻璃框外的竖向装饰条(通常为黑色)前车门壳(R) 6QE831056D118561400400件前门外拉手盖(R)3B0837879A15700件前门外拉手底座(R)6Q0837886111600件前门外拉手(R)3B0837208C16100件前车门锁芯(R)141700件前车门锁总成(R)3B1837016BP186000件前车门玻璃(R)6Q4845202C15800件6Q4837478A110900件前车门玻璃外压条(R)6Q4837471A112300件前车门玻璃内压条(R)6Q4853516AGRU#L13800件前车门防擦板(R)前车门防擦板(R)6Q4853516A131700件前车门密封条(R)6Q4837702A127000件前车门内开启手柄(R)6Q0837174E118000件前车门玻璃升降器总成(R)147700件前门升降器架(R)6Q4837462145700件前车门上铰链(R)6Q0831402B13200件前车门下铰链(R)6Q0831********件前门电动升降器开关(R)119500件6Q4837902G124300件在右前门玻璃框外的竖向装饰条(通常为黑色)后车门壳(L) 6QE833055A115701200585件后车门外拉手总成(L)10450件后门外拉手盖(L)3B4839879A15800件后门外拉手底座(L)6Q4839885111500件后门外拉手(L)3B0837207C16100件后车门锁总成(L)3B4839015AG带中控193900件后车门玻璃(L)6Q6845025C15700件6Q6839477BB411130450件后车门玻璃外压条(L)6Q6839471AB41117350件后车门玻璃内压条(L)后车门防擦条(L)10450件后车门密封条(L)6Q6839701A128000件后车门内饰板(L)米色103200件6Q0839173E112500件后车门内开启手柄(L)后门升降器架(L)6Q4839461155200件后车门上铰链(L)6Q0831401B13500件后车门下铰链(L)6Q4833411119400件后车门角窗总成(L)10900件后门角窗玻璃(L)6Q4845297B16800件后门玻璃密封条(L)154000件6Q4839901F14200件后门内开手柄装饰框(L)后车门壳(R) 6QE833056A115701200858件后车门外拉手总成(R)10450件后门外拉手盖(R)3B4839879A15800件后门外拉手底座(R)6Q483988614900件后门外拉手(R)3B0837207C16100件后车门锁总成(R)3B4839016AG193900件后车门玻璃(R)6Q6845026C15700件6Q6839478BB411130450件后车门玻璃外压条(R)6Q6839471AB41117350件后车门玻璃内压条(R)后车门防擦条(R)10450件后车门密封条(R)6Q6839702A128000件后车门内饰板(R)米色103200件后车门内开启手柄(R)6Q0839174E112500件后门升降器架(R)6Q4839462155200件后车门上铰链(R)6Q0831402B13200件后车门下铰链(R)6Q4833411119400件后车门角窗总成(R)10900件后门角窗玻璃(R)6Q4845298B16800件后门电动升降器开关(R)10300件后门玻璃密封条(R)154000件6Q4839902F14200件在右后门玻璃框外的竖向装饰条(通常为黑色)前门框密封条(L)6Q4867911C151700件前门框密封条(R)6Q4867912C151700件后门框密封条(L)6Q6867911C151700件后门框密封条(R)6Q6867912C151700件倒车镜壳(L)1Z0857537A15000件倒车镜座(L)6Q1857507AC120700件倒车镜座(L)6Q1857507AD加热的后视镜124900件倒车镜片(L)6QD85752112100件倒车镜片(L) 6QD857521A加热的后视镜14000件倒车镜壳(R)1Z0857538A15000件倒车镜座(R)6Q1857508AD120700件倒车镜座(R)6Q1857508AE124900件倒车镜片(R)6Q0857522J12200件倒车镜片(R) 6Q0857522K14000件车内中央后视镜6Q1857511138300件倒车镜控制开关6Q1959565H127800件铁顶盖总成6Q6817111144600件铁顶盖总成6Q6817101带滑动天窗的车型1183700件车顶内衬6Q4867501R带滑动天窗的车型1268200件6N0877051C1493000件天窗玻璃带密封条总成天窗电机6Q0959591A1261200件天窗底座总成6N08770491598800件前中央顶灯6Q0947105C米色137800件前中央顶灯6Q0947106A带滑动天窗的车型124800件市场价为福耀报价176212000件后风挡玻璃6Q6845051BL后风挡雨刮电机6Q6955711174400件后风挡雨刮电机6Q6955711#L125700件后风挡雨刮臂6Q6955707111300件后风挡雨刮片6Q695542513500件后风挡雨刮喷水嘴3B9955985A17100件尾门壳6Q6827025S1141600件尾门铰链6Q6827301B2124350件尾门内护板上10800件尾门内护板下101200件尾门锁6Q6827505B1671450件尾门字标16N0853687H POLO17700件尾门字标16N0853687H739#POLO11100件尾门字标11J0853675A 1.4'16600件尾门字标11J0853675A739#L 1.4'1500件尾门字标11J0853675'1.6'1500件尾门徽标6Q0853630A11800件尾门外拉手6Q6827565A1122650件尾门密封条6Q6827705C137700件尾门撑杆6Q6827550225300件尾门玻璃雨刮臂6Q6955707111300件尾门玻璃雨刮片6Q695542513500件尾门玻璃雨刮电机6Q6955711174400件尾门玻璃雨刮电机6Q6955711#L125700件3B9955985A17100件尾门玻璃雨刮喷水嘴尾门玻璃喷水电机1T0955651A130700件尾灯总成(L) 6QD945095A115300件尾灯总成(R) 6QD945096A115300件高位刹车灯总成2K0945087A12481330件后牌照灯6QD943021A11700件后保险杠皮6Q6807417E16144800件6Q6807521B41124300件后保险杠下导流板后杠饰条6Q6807423E15300件后杠左支架6Q680737511700件后杠右支架6Q680737611700件后保险杠内衬6Q680786317400件6Q080730513722900件后保险杠骨架(后杠铁)后保险杠雷达探头7H0919275C434500件水箱框架总成6Q0805588S1152013500件前轮旋(L)6Q0809101K1175600件前纵梁(L)6Q0803091E1163800件前轮旋(R)6Q0809102H1175600件前纵梁(R)6Q0803092D1192400件元宝梁(副车架)6Q0199287L1221914800件侧框架总成(L) 6Q48098351134300件侧框架总成(R) 6Q48098361134300件加油口盖板总成6Q6809857D18600件后围总成6Q6813301B149300件后侧围玻璃(L)17000件后侧围玻璃(R)17000件后叶子板内衬(L)6Q0810971A13700件后叶子板内衬(R)6Q0810972A13700件前下摆臂总成(L)6Q0407151E160926070件前下摆臂球头(L)6Q0407365A139400件前下摆臂总成(R)6Q0407151E160926070件前下摆臂球头(R)6Q0407365A139400件前稳定杆6Q0411305AA15342400件前转向节(L)6Q0407255AC110017010件前转向节(R)6Q0407256AC110017010件前减震器(L) 6QD413031C136527585件前弹簧(L)142600件前减震器(R) 6QD413031C136527585件前弹簧(R)142600件前半轴总成(L) 6QD407271 1.4L16856200件前半轴总成(L)6QD407271B 1.6L190200件前半轴总成(L)6QD407271G自动变速器1105600件前半轴总成(R)6QD407271 1.4L16856200件前半轴总成(R)6QD407271B 1.6L190200件前半轴总成(R)6QD407272L自动变速器1105600件前轮轴承230500件后减震器(L)6QD51302512802200件后减震器(R)6QD51302512802200件后轮轴头6Q0501117215700件后轮轴头6Q0501117#L214000件后轮轴承6Q0598611294800件后桥6Q0500051AJ1352824500件车轮轮圈6QD601025Z31458500件轮圈盖/罩6Q0601149G411300件轮胎6Q0601307P437000件6Q0407621S232100件前轮法兰盘(前轮毂)前稳定杆小连杆6Q0411315G218400件真空助力器6QD614106A142500件制动总泵带油壶总成12000件制动总泵6QD611019C167000件制动油壶总成6Q0611301A117500件ABS前轮传感器6Q0927803B234300件ABS后轮传感器6Q0927807B247100件前制动底板(L)13000件前制动底板(R)13000件前制动盘(L)6QD615301123200件前制动盘(R)6QD615301123200件前制动片6Q069815113422800件前制动器总成(L)1J0615123A110629600件前制动器总成(R)1J0615124A1120000件后制动鼓(L)6Q0609617125000件后制动鼓(R)6Q0609617125000件后制动蹄1H0698545A419000件ABS制动泵总成6QD614117C1298300件转向机总成6Q1423061S1613850000件转向横拉杆总成6Q0423803E267112440件转向横拉杆球头6Q0423811225400件助力转向泵支架6Q0423845D189200件方向盘6Q0419091T1197600件组合开关总成6Q095351314113600件喇叭总成6QD95122315600件转向助力泵6Q0423155AE1403228300件助力转向泵进油管6Q1423893F184000件助力转向泵出油管6Q1423891F146400件转向柱总成6Q1419501AD183300件离合器压盘03C141031B126000件离合器压盘03C141031C146000件离合器片03C141025B126000件离合器片03C141025C136500件离合器分离轴承02T14117015042600件手动变速箱总成02T300053F11053500件手动变速箱总成02T300053M11053500件手动变速箱壳体02T301103K1448300件02T301107B1462900件手动变速箱前盖(即离合器罩壳)手动变速箱后盖02T301211D114700件手动变速箱一轴02T311103J1150500件手动变速箱二轴02T311205E122700件手动变速箱二轴02T311205AE126500件液力变矩器总成09G323571J11333300件液力变矩器总成09G323571C11333300件变速箱电脑09G927750DR1138100件变速箱电脑09G927750FS1138100件手自一体变速箱总成09G300037P14018600件09G3213611164800件手自一体变速箱油底壳手自一体变速箱油底壳09G321361A199800件09G321370146400件手自一体变速箱油底垫09G325429141500件手自一体变速箱油滤清器自动变速箱阀体09G325039A11617100件发动机总成03C100031K11736700件发动机总成03C100031L11816400件发动机总成03C100033J11736700件发动机总成03C100033N11816400件正时皮带/正时链条03C109158120500件曲轴皮带轮03D105255D112100件飞轮03C105269E171600件飞轮03C105269F171600件机油滤清器03C115403F129900件机油尺03C115611R11600件曲轴瓦036105561D007103500件曲轴03C105101AN1471000件曲轴03C105101AS1485300件活塞连杆瓦036105701AQ84900件活塞连杆瓦036105701AR84900件活塞连杆036198401D1211300件活塞连杆036198401E1198400件活塞环03C198151D47900件活塞环03C198151411400件活塞036107065CT活塞带环416400件活塞036107065CS活塞带环415700件凸轮轴正时轮03C109571F12700件发动机油底壳03C103601AA1.4发动机,133700件发动机油底壳03C103601MA 1.6发动机,142100件缸盖03C1033511491000件排气门036109611AC430300件排气门036109611AC130300件进气门036109601AJ419800件进气门036109601AJ119800件排气凸轮轴03C109101AQ1114100件排气凸轮轴03C109101AN1114100件进气凸轮轴03C109101AM1114100件进气凸轮轴03C109101AP1114100件气门室盖03C103475AF1109500件气门室盖03C103475AG1109500件03C103101H带活塞的汽缸体1616600件发动机中缸/发动机中段03C103101J带活塞的汽缸体1616600件发动机中缸/发动机中段机油泵03C115105L150000件曲轴正时齿轮03C105209AC19300件发动机顶部装饰板03C103925B14800件发动机顶部装饰板03C10392515700件发动机下护板6Q0825235E13573200件发动机下护板6Q0825237R111200件发动机电脑03C906057A1137311000件发电机03C903023B11053800400件起动机02T911023S155000件起动机02M911023M15866400件火花塞101905601B44700件蓄电池1J0915105AC153200件6Q09153311221150件蓄电池固定架/固定盒点火线圈036905715A427100件带支架的点火开关4B0905851B167600件蓄电池罩11800件油箱盖107201594A14600件油箱6QD201021B1182500件燃油泵总成6Q0919051F142300件燃油滤清器6Q0201051C113000件节气门总成03C133062E1196600件空气滤清器总成03C129611M118200件空气滤清器滤芯15400件空气滤清器进气口6QD12961817800件进气歧管03C129711R 1.4发动机,1111200件进气歧管03C129711M 1.6发动机,1114000件排气歧管036253020F 1.6发动机,1296800件排气歧管隔热罩15500件排气管氧传感器126000件排气管前段(不含三元)6Q0253209BB135200件6Q6253609AM156300件排气管后段(含消声器)碳罐总成6Q0201801A15000件三元催化6Q0253059GC1157000件水箱总成6Q0121253Q13432400件膨胀箱6Q012140712600件膨胀箱盖1J0121321B18100件水箱电子扇风圈6Q0121207F15700件6QD95945512642150件电子扇叶带电机(1号)6QD959455B12792300件电子扇叶带电机(1号)水泵03C121005D160500件水泵皮带轮03C121031B12800件水温传感器06A91950112700件节温器总成03C121110K15900件水箱上水管6Q0122051CS116900件水箱下水管6Q0122101BQ114500件水箱支架(水箱吊耳)2800件冷凝器6QD82041115653600件空调干燥瓶6Q0820193A140000件空调泵总成6Q0820803H1254021500件空调管(1号)6Q0820741A冷凝器-空调管41192600件空调管(2号)6Q0820721AB冷凝器-空调泵121700件空调管(3号)6Q0820744S空调泵-蒸发箱117800件空调管(4号)6Q1820741J蒸发箱-空调管1197300件仪表台骨架总成6Q1857017K166400件6Q0819703黑色133700件仪表台左出风口总成6QD819703铝银色16500件仪表台左出风口总成6Q0858069M黑色170700件仪表台中出风口总成6QD858069铝银色134200件仪表台中出风口总成仪表台右出风口总成6Q0819704黑色133700件6QD819704铝银色16500件仪表台右出风口总成组合仪表总成6Q0920800X1100600件CD/DVD机1JD035119B1145600件仪表台副驾驶杂物箱总成155000件副驾驶杂物箱壳6Q1857101F151700件副驾驶杂物箱盖6QD857121129600件主气囊+副气囊圆形主气囊1070000件主气囊1T0880201E圆形主气囊1264900件副气囊总成6Q0880204F1670900件副厂为下线配件128891800540件气囊电脑1C0909601A016气囊游丝6Q095965314431800件仪表台壳6Q1857001DP无烟煤色/米色1286819000件空调控制面板6Q0820045G198800件前座椅靠背骨架(L)6Q4881045M1146200件前座椅靠背靠垫(L)6QD881775125200件靠垫蒙皮(L) 6QD881805A座椅面罩(布料)134400件6Q4881105CH178500件前座椅座垫骨架(L)前座椅座垫(L)6QD881375D19100件座垫蒙皮(L) 6QD881405A座椅面罩(布料)124300件6Q4881045M1146200件前座椅靠背骨架(R)前座椅靠背靠垫(R)6QD881775125200件靠垫蒙皮(R) 6QD881805A座椅面罩(布料)134400件6Q4881106BD147100件前座椅座垫骨架(R)前座椅座垫(R)6QD881375D19100件座垫蒙皮(R) 6QD881405A座椅面罩(布料)124300件6QD885805B座椅面罩(布料)147000件后座椅靠背蒙皮(整体式靠背)6Q6885501D1147900件后座椅靠背骨架(整体式靠背)6QD885775119000件后座椅靠背垫(整体式靠背)后座椅座垫蒙皮6QD885405A座椅面罩(布料)140500件后座椅座垫骨架6Q0885305B168000件后座椅座垫6QD885375120100件前座安全带(L) 6QD857705139400件6Q0857755D14000件前座安全带锁扣(L)前座安全带(R)6QD857706139400件6Q0857756D14000件前座安全带锁扣(R)后座安全带(L) 6QD857805112500件后座安全带(R)6QD857806112500件后座中安全带6QD857487B112000件后座中安全带锁扣6QD857488B19400件。
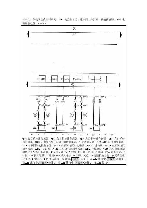
三十八、车载网络的控制单元、ABS的控制单元、进油阀、排油阀、转速传感器、ABS电G44-右后轮转速传感器;G45-右前轮转速传感器;G46-左后轮转速传感器;G47-左前轮转
速传感器;J104-防抱死系统(ABS)的控制单元,在发动机左侧;J106-ABS电磁阀继电器;J519-车载网络的控制单元;N133-右后防抱死制动系统(ABS)进油阀;N134-左后防抱死制动系统(ABS)进油阀;N135-右后防抱死制动系统(ABS)排油阀;N136-左后防抱死制动系统(ABS)排油阀;T2k-插头连接,2针脚; T2L-插头连接,2针脚; T2m-插头连接,2针脚; T2n-插头连接,2针脚; T9a-插头连接,9针脚,黄色,在前隔板的左侧,在紧凑型组合插座M号位上;T47-插头连接,47针脚;(J8)-连接4,在ABS线束中;(J3)-连接1,在ABS线束中;(J5)-连接2,在ABS线束中;(J7)-连接3,在ABS线束中。
5/1车载网络的控制单元、蓄电池、发电机、电压调节器、启动马达、保险丝 ( 1-14 ) T6n 插头连接6 针脚蓝色在前隔板的左面 B 号位上,,,,在紧凑型组合插座T11a插头连接11 针脚白色在前隔板的左面 D 号位上,,,,在紧凑型组合插座BCC 发动机电路图 A蓄电池B启动马达C 发电机C1电压调节器D 点火/启动开关J519 车载网络的控制单元S162保险丝 -1- ( 30 )在保险丝支架/蓄电池内,175A,S180保险丝 -8- ( 30 )在保险丝支架/蓄电池内,T2v插头连接2 针脚,插头连接18 针脚棕色XS 4 ,,,号位接地点发动机舱左侧左悬挂前,T2a插头连接2 针脚,,在起动机下方J293冷却液风扇的控制单元,在左纵梁下方T4π插头连接,4 针脚 5/2车载网络的控制单元、喷嘴发动机转速传感器进气管压力进气管温度与冷却液温度、、、、G28发动机转速传感器G62 冷却液温度传感器G71 进气压力传感器G72 进气管温度传感器G163 2霍尔脉冲发生器J519 车载网络的控制单元J5374MV ( )的控制单元喷油装置N30 喷嘴,气缸 1N31 2喷嘴,气缸 N32 喷嘴,气缸 3N33 喷嘴,气缸 4T3m 3 插头连接针脚,,黑色,在曲轴箱通风口上方T3j 3 插头连接针脚,T4g 4 插头连接针脚, 2插头连接针脚,T2y T121插头连接针脚121 ,连接喷嘴在发动机舱预敷设的线束内 ( ),连接在发动机前电缆接头的线束内 ( 5V ) , ( )接地连接传感器接地在发动机预敷设的线束内,T14插头连接,针脚,黑色,在发动机舱的左面,左悬挂前14 BCC发动机电路图车载网络的控制单元、4MV 的控制单元 ( 喷油装置 )、带有次级输出的点火线圈 1-3、火花塞的插头、J519车载网络的控制单元J5374MV的控制单元 ( 喷油装置 )N70带有功率终放级的点火线圈 1N127 带有功率终放级的点火线圈 2N291带有功率终放级的点火线圈 3P 火花塞的插头Q 火花塞T4b 插头连接,4 针脚T4L插头连接,4 针脚T4m插头连接, 4 针脚T14插头连接,14 针脚,黑色,在发动机舱的左面,左悬挂前T121插头连接,121 针脚N79 加热电阻 ( 曲轴箱通风 ) 连接正极 ( 15 ),在全电子化点火系统的线束内接地连接 -1-,在发动机舱预敷设的线束内接地连接点,在全电子化点火系统的线束内车载网络的控制单元、4MV 的控制单元 ( 喷油装置 )、节气门的控制单元、油门踏板位置传感器、G79 油门踏板位置传感器G185 油门踏板位置传感器 2G186节气门驱动装置 ( 电子节气门 )G187节气门驱动装置的角度传感器-1( 电子节气门 )G188节气门驱动装置的角度传感器-2( 电子节气门 )J338节气门的控制单元J519 车载网络的控制单元J5374MV 的控制单元 ( 喷油装置 )N292带有次级输出的点火线圈 4P Q 火花塞的插头 火花塞T4 g插头连接,4 针脚,在点火线圈 4 处T6t 插头连接,6 针脚T6u插头连接,6 针脚T11c插头连接,11 针脚,蓝色,在前隔板的左面T121 插头连接,121 针脚连接正极 ( 15 ) 在全电子化点火系统的线束内接地点,在气缸盖上接地连接 -1-,在发动机舱预敷设的线束内接地连接点,在全电子化点火系统的线束内cab车载网络的控制单元、4MV 的控制单元 ( 喷油装置 )、λ传感器、活性炭罐装置的电磁阀 1、G130λ传感器J519车载网络的控制单元J5374MV 的控制单元 ( 喷油装置 )N80活性炭罐装置的电磁阀 1T2z插头连接,2 针脚,在电磁阀旁T4b 插头连接,4 针脚,黑色,在起动机下方T11a插头连接,11 针脚,白色,在前隔板的左面, D 号位上在紧凑型组合插座插头连接,11 针脚,红色,在前隔板的左面, K 号位上在紧凑型组合插座T11b T14插头连接,14 针脚,在发动机舱的左面T16a 插头连接,16 针脚,黑色,XS 6 号位 T121插头连接,121 针脚 Z29λ传感器的加热器 连接 ( High-Bus ),在仪表板线束中连接 ( Low-Bus ),在仪表板线束中连接 ( High-Bus ),在发动机舱的线束内连接 ( 87a ),在发动机的线束内连接 ( Low-Bus ),在发动机舱的线束内车载网络的控制单元、4MV 的控制单元 ( 喷油装置 )、爆震传感器、制动灯开关、离合器踏板开关 ( 71-84 )F制动灯开关F36 离合器踏板开关 G61 爆震传感器J519 车载网络的控制单元J5374MV 的控制单元 ( 喷油装置 )SB26 保险丝 -26-,在保险丝支架内,10A T2e 插头连接,2 针脚T4d 插头连接,4 针脚T4h插头连接,4 针脚T6n T11a插头连接,6 针脚,蓝色,在前隔板的左面, B 在紧凑型组合插座号位上插头连接,11 针脚,白色,在前隔板的左面, D 在紧凑型组合插座号位上T11c插头连接,11 针脚,蓝色,在前隔板的左面, I 在紧凑型组合插座号位上插头连接,121 针脚 连接 -1-,在发动机舱的线束内连接正极 ( 54 ),在发动机舱的线束内 连接 -2- ( 87 ),在仪表板线束中连接 -2- ( 54 ),在仪表板线束中接地点,在发动机舱的左面,在蓄电池的后面,在前悬挂里侧车身上接地连接 -2-,在发动机舱的线束内接地连接 ( 屏蔽 ),在发动机舱预装敷设的线束内8586878889909192939495969798J519J533车载网络的控制单元、数据总线的诊断接口、4MV 的控制单元 ( 喷油装置 )、燃料预供应的继电器、燃料泵的继电器、保险丝、诊断接口 ( 85-98 )连接正极 ( 30a ), 在仪表板线束中连接正极 ( 15 ), 在仪表板线束中连接正极 ( 15 ),在仪表板线束内连接正极 ( 30 ),在仪表板线束内连接正极 -1- ( 30 ),仪表板线束内连接正极 -2- ( 30 ),在仪表板线束中连接 ( K-诊断接口 ),在仪表板线束中连接正极 -3- ( 15 ),在仪表板线束中A15A32A76A139A1A2A52A40T121/43KT18a/1T6n/6T16b/7T11b/1T6r/2T6r/3T6n/5T121/445a45b7bT121/35a5b7a37a37bdD1530J173/865/85T121/65T6r/12/871/30T16a/93/11/35/22/5J643J537SB7SB37SB45SB55A15A15A5A29320.50.50.51.52.50.52.51.51.01.5蓝/黄红0.5红0.5红黑/绿黑/蓝黑/蓝红/黄黑黑0.5黑黑黑2.5黑0.5红A76A139A15125950.351.50.52.5灰/白黑/黄红/黑黑/紫0.5黑1.5红0.5红6.0红2.5红4.0红10.0红A40A1A52A3213124.0红0.5蓝/黄4.02.50.5白/红白/红蓝/黄109110850.35蓝/黄TV2/3TV2/2D点火/启动开关J17燃料泵的继电器 ( 167 继电器 ) J519车载网络的控制单元J533数据总线的诊断接口J537 4MV 的控制单元 ( 喷油装置 )J643燃料预供应继电器 ( 404 继电器 ) SB5 保险丝 -5-,在保险丝支架的上面SB7 保险丝 -7-,在保险丝支架的上面SB37 保险丝 -37-,在保险丝支架的上面SB45保险丝 -45-,在保险丝支架的上面T6n 插头连接,6 针脚,蓝色,在前隔板的左面, B 号位上在紧凑型组合插座T6r 插头连接,6 针脚,棕色,在前隔板的左面, C 号位上在紧凑型组合插座T11b插头连接,11 针脚,红色,在前隔板的左面, K 号位上在紧凑型组合插座T16b插头连接,16 针脚,诊断接口T18a插头连接,18 针脚,棕色,XS 4 号位T121插头连接,121 针脚TV2 接线柱 30 的导线连接T16a 插头连接,16 针脚,黑色,XS 6 号位 0.5黑/绿1.0黑/黄302.5黑A26/150.5红KJ537车载网络的控制单元、仪表板中带显示单元的控制单元、油压开关、油压控制灯、车速表、保险丝 ( 99-112 )F1油压开关G21 车速表J285仪表板中带显示单元的控制单元J519车载网络的控制单元K3 油压控制灯SB4保险丝 -4- 在保险丝支架的上面SB9保险丝 -9- 在保险丝支架的上面SB14保险丝 -14- 在保险丝支架的上面SB25保险丝 -25- 在保险丝支架的上面SB41保险丝 -41- 在保险丝支架的上面 T6r 插头连接,6 针脚,棕色,在前隔板的左面, C 在紧凑型组合插座号位上T11b插头连接,11 针脚,红色,在前隔板的左面, K 在紧凑型组合插座号位上T14 插头连接,14 针脚,在发动机舱的左面插头连接,32 针脚连接正极 ( 15 ),仪表板线束内连接 ( 车速信号 ),在仪表板线束中连接 -1- ( 87 ),在仪表板线束中df车载网络控制单元、燃油剩余量传感器、燃油剩余量指示器、燃油泵 ( 预供油泵 )、车速表的传感器、指示灯G 燃油剩余量传感器G1 燃油剩余量指示器G6 燃料泵 ( 预供油泵 )G22车速传感器,在变速箱上,右侧传动法兰上方J285 仪表板中带显示单元的控制单元J519车载网络的控制单元K83K105 排气警告灯 燃油不足警告灯K132电子加速踏板故障灯T3L插头连接,3 针脚T4a插头连接,4 针脚T11a插头连接,11 针脚,白色,在前隔板的左面, D 在紧凑型组合插座号位上T11b插头连接,11 针脚,红色,在前隔板的左面, K 在紧凑型组合插座号位上T14插头连接,14 针脚,在发动机舱的左面T32a插头连接,32 针脚接地连接 -1-,在仪表板线束中接地连接,在仪表板线束中连接正极 ( 15 ),在仪表板线束中接地点,在中间控制台的下面,在换档杆的前面 ( Km7 ) 接地点,在中间控制台的下面,在变速操纵杆的旁边。
PO LO 1. 6电路图例解21716 1514�I 180/2 I 180/19r w 棕/红灰/白2. 5 0. 5 13一I i '•* 叶归"红/蓝1. 0 12 11 10 3015x 31-` 匿3073 OI N r 紫1L 七如1v _吁P 18 Iii o l8031 I N r ?山中4l 82 53 I N r i 荨41竺@. I . . T ,51i _可,51.0 59 60 @ D13 芍乍尺180/4丙红O 1l 3015x 31c 5 i @ I 5l l i l I 2 3/ 4 TS0/3� 7 89d / 61 62 63 64 65 66 61 68 69 70 71 1—三角箭头表示下接下一页电路图。
2—保险丝代号图中S 5表示该保险丝位千保险丝座第5号位,10安培。
3—继电器板上插头连接代号表示多针或单针插头连接和导线的位置,例如D13表示多针插头连接,D位置触点134—接线端子代号表示电器元件上接线端子数/多针插头连接触点号码。
5—元件代号在电路图下方可以查到元件的名称。
6—元件的符号可参见电路图符号说明。
7—内部接线(细实践)该接线井不是作为导线设置的,而是表示元件或导线束内部的电路。
8—指示内部接线的去向字母表示内部接线在下一页电路图中与标有相同字母的内部接线相连。
9—接地点的代号在电路图下方可查到该代号接地点在汽车上的位置。
10—线束内连接线的代号在电路图下方可查到该不可拆式连接位千哪个导线束内。
11—插头连接例如T Ba/6表示8针a插头触点612—附加保险丝符号例如S123表示在中央电器附加继电器板上第23号位保险丝,10安培。
13—导线的颜色和截面积(单位:平方毫米)14—三角箭头指示元件接续上一页电路图。
15—指示导线的去向框内的数字指示导线连接到哪个接点编号。
16—继电器位置编号表示继电器板上的继电器位置编号。
17—继电器板上的继电器或控制器接线代号该代号表示继电器多针插头的各个触点。