建筑工程计量与计价课件_第13章 超高施工增加费
- 格式:ppt
- 大小:158.50 KB
- 文档页数:20
超高施工增加费清单计价实例一、建筑物超高施工增加费计算原则1、人工降效增加费按规定内容中的全部人工费乘以相应子目人工费含量计算。
2、机械降效增加费按规定内容中的全部机械费乘以相应子目机械费含量计算。
3、建筑物有高低时,应根据不同高度建筑面积占总建筑面积的比例分别计算不同高度的人工费及机械费。
4、超高施工加压水泵和其他费用按层高3.6m以内考虑,如层高超过3.6m,按每增加1m相应定额计算;超高不足1m的,按每增加1m相应定额的比例调整。
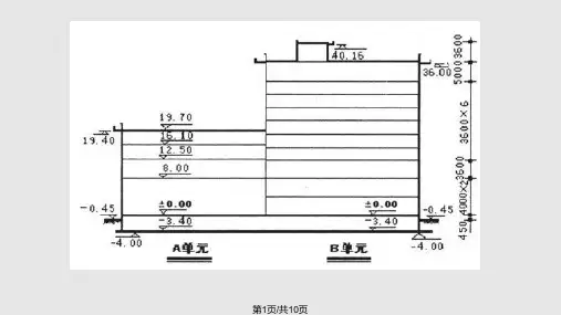
二、实例讲解某综合楼分为A和B两个单元,檐高及建筑面积如图1所示。
假设人工、材料、机械台班的价格与定额取定价相同,经分析计算该单位工程(包括地下室)扣除垂直运输、脚手架、构件制作和水平运输后的人工费为240万元,机械费为150万元;企业管理费、利润分别按人工费加机械费的15%和10%计取;风险费按工料机费的5%计取。
试编制该工程超高施工增加费项目清单,并计算超高施工增加费用。
图1【解】:A单元檐高19.85m<20m,不计算超高施工增加费。
B单元檐高36.45m>20m,应计算超高施工增加费。
超高部分(B单元)的首层及以上超高建筑面积=11620-1200=10420m2工程量清单中应描述超高部分的建筑面积和其中各种层高的建筑面积。
现编制清单如下表:根据题意列出有关超高施工增加费的计算基数:超高面积占建筑物总面积的比例=10420÷(4000+11620)=0.6671人工费=240×0.6671=160.1040万元机械费=150×0.6671=100.0650万元根据预算定额规则计算超高施工增加费相关子目的工程量并套用定额:18-2 人工降效:1601040元每元人工费=568/10000=0.0568元18-20 机械降效:1000650元每元机械费=568/10000=0.0568元18-38 加压水泵及其他(层高3.6m):7020m2每m2材料费=1.82元机械费=1.01元18-38+55H 加压水泵及其他(层高4m):2400每m2材料费=1.82元机械费=1.01+0.1082×(4-3.6)=1.05元18-38+55H 加压水泵及其他(层高5m):1000m2每m2材料费=1.82元机械费=1.01+0.1082×(5-3.6)=1.16元按下表计算该工程超高施工增加费工程量清单项目的综合单价:清单综合单价=226023÷10420=21.69元/m2。
超高施工增加费、施工技术措施费清单计价实例一、建筑物超高施工增加费:当建筑物檐高超过20m时,工程量清单编制人应考虑在分部分项工程量清单中增加建筑物超高施工增加费用项目。
超高施工增加费在计价时,应考虑计算超高施工人工降效、机械降效和超高施工加压水泵台班及其他费用。
超高施工人工、机械降效的计算基数范围:建筑物首层室内地坪以上的全部工程项目,但不包括垂直运输、各项脚手架、各类构件(预制混凝土及金属构件)制作和水平运输项目。
人工降效增加费按规定内容中的全部人工费乘以相应子目人工费含量计算。
机械降效增加费按规定内容中的全部机械费乘以相应子目机械费含量计算。
建筑物有高低时,应根据不同高度建筑面积占总建筑面积的比例分别计算不同高度的人工费及机械费。
超高施工加压水泵和其他费用按层高3.6m以内考虑,如层高超过3.6m,按每增加1m 相应定额计算,超高不足1m的,按每增加1m相应定额的比例调整。
例1:某综合楼各层及檐高如图1所示, A、B单元各层建筑面积如左表所示。
超高施工增加费项目清单如下表所列。
假设人工、材料、机械台班的价格与定额取定价相同;经分析计算该单位工程(包括地下室)扣除垂直运输、脚手架、构件制作和水平运输后的人工费为240万元,机械费为150万元;企业管理费、利润分别按人工费加机械费的15%和10%计取,风险费按工料机费的5%计取,试编制该工程超高施工增加费项目清单,并计算超高工增加费用。
图1解:A 单元檐高19.85m <20m ,不计算超高施工增加费。
B 单元檐高36.45m >20m ,应计算超高施工增加费,超高部分(B 单元)的首层及以上超高建筑面积=11620-1200=10420m 2。
清单中应描述超高部分的建筑面积和其中各种层高的建筑面积。
现编制清单如下表:建筑物超高施工增加费层数 A 单元B 单元层数 层高 建筑面积 (m 2)层数 层高 建筑面积(m 2) 地下室 1 3.4 800 1 3.4 1200 首层 1 8 800 1 4 1200 二层 1 4.5 800 1 4 1200 标准层 1 3.6 800 7 3.6 7000 顶层 1 3.6 800 1 5 1000 屋顶 1 3.6 20 合计540001211620序号项目编码项目名称计量单位工程数量1 Z010********* 建筑物超高施工增加费:人工降效,机械降效,超高施工加压水泵台班及其他;A单元檐高19.85m建筑面积4000 m2;B单元檐高36.45m建筑面积11620 m2,其中首层地坪及以上建筑面积10420m2,包括3.6m层高7020 m2,,4m层高2400 m2,5m层高1000m2。
超高施工增加费、施工技术措施费清单计价实例马光鸿一、建筑物超高施工增加费:当建筑物檐高超过20m时,工程量清单编制人应考虑在分部分项工程量清单中增加建筑物超高施工增加费用项目。
超高施工增加费在计价时,应考虑计算超高施工人工降效、机械降效和超高施工加压水泵台班及其他费用。
超高施工人工、机械降效的计算基数范围:建筑物首层室内地坪以上的全部工程项目,但不包括垂直运输、各项脚手架、各类构件(预制混凝土及金属构件)制作和水平运输项目。
人工降效增加费按规定内容中的全部人工费乘以相应子目人工费含量计算。
机械降效增加费按规定内容中的全部机械费乘以相应子目机械费含量计算。
建筑物有高低时,应根据不同高度建筑面积占总建筑面积的比例分别计算不同高度的人工费及机械费。
超高施工加压水泵和其他费用按层高3.6m以内考虑,如层高超过3.6m,按每增加1m相应定额计算,超高不足1m的,按每增加1m相应定额的比例调整。
例1:某综合楼各层及檐高如图1所示, A、B单元各层建筑面积如左表所示。
超高施工增加费项目清单如下表所列。
假设人工、材料、机械台班的价格与定额取定价相同;经分析计算该单位工程(包括地下室)扣除垂直运输、脚手架、构件制作和水平运输后的人工费为240万元,机械费为150万元;企业管理费、利润分别按人工费加机械费的15%和10%计取,风险费按工料机费的5%计取,试编制该工程超高施工增加费项目清单,并计算超高施工增加费用。
图1层数A单元B单元层数层高建筑面积(m2)层数层高建筑面积(m2)地下室1 3.48001 3.41200首层188********二层1 4.5800141200标准层1 3.68007 3.67000顶层1 3.6800151000屋顶1 3.620合计540001211620解:A单元檐高19.85m<20m,不计算超高施工增加费。
B单元檐高36.45m>20m,应计算超高施工增加费,超高部分(B单元)的首层及以上超高建筑面积=11620-1200=10420m2。