学校食堂设计图
- 格式:doc
- 大小:133.26 KB
- 文档页数:1
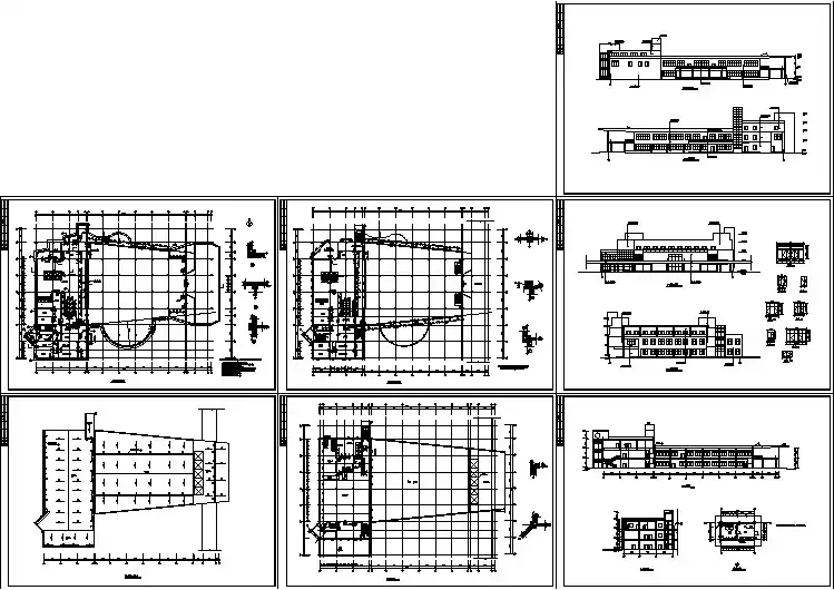
中国海洋大学课程设计任务书学院(系)工程学院专业土木工程1.课程设计题目:高校学生食堂层设计2.课程设计起止时间:年月日至年月日3.工程概况及设计要求:中国海洋大学为使将来的医学、文学院学生就餐方便,计划在崂山校区中间的小山东边建设新的学生食堂,场地见附图。
就餐学生5000-6000人,教工就餐人数200人。
其中后一层餐厅要求24小时营业,为考试和毕业设计“开夜车”的学生备餐。
为方便顶层做礼堂演出用,应按人数计算楼梯宽度、数量及疏散口数量,主入口前应设疏散广场。
餐厅部分按每人1.2平米计算,教工餐厅按每人1.5平米计算。
餐厅与加工间面积比按1:0.6计算。
层数以2-3层为宜,其中顶层应有室内无柱大厅(不小于800平米),兼具小礼堂功能(可另加舞台面积200平米)。
总建筑面积控制在12000平米内。
加工间分设红案、白案所需操作台、灶台(管道燃气)及洗池,热加工灶台上方设拔气罩或通风排烟设施。
主食、副食、冰柜库房各1间(25平米/间),调料库1间15平米,管理办公室2-3间(15平米/间)。
备餐间可单设也可与加工间合并,但要做好防烟处理,洗消间必须单独设置(20-30平米/间),集中设男女更衣室并附设厕所(共50平米),每个售饭口平均人数150-200人,教工餐厅可用自助餐形式,也可用售饭口形式。
结构设计选型、材料及构造要求:用全钢结构,楼板可用压型钢板与混凝土复合板。
按二级防火设计。
天然采光照度2.5。
冬天最冷计算温度-9摄氏度,夏天为35摄氏度。
4.图纸要求1. 总平面图:道路、出入口及消防通道,建筑定位尺寸2. 平面图(1:100),主要剖面图(1:100),除墙、柱、门、窗及室内布置外应画出轴线等。
3. 立面图(1:100)4. 外墙大样:主要立面外墙、屋檐、雨篷等3-4个大样图一张(1:20)5、设计说明:1.工程概况:建设单位、位置、周围环境。
建筑结构形式、材料、构造要求,设备基础及地面设计要求、承载力等;建筑面积(总建筑平面图、各部分建筑面积),外装修及消防空调、通风等。