【流程管理】大公司的全套管理工作流程图
- 格式:ppt
- 大小:1.12 MB
- 文档页数:15
等级: 绝密级流程目录一、人事行政部行政—01 会议管理流程 (04)行政—02专项档案管理流程 (05)行政—03固定资产采购领用管理流程 (06)行政—04 公文管理(发文)流程 (07)行政—05 公文管理(收文)流程 (08)行政—06办公用品采购领用管理流程 (09)行政—07网络信息管理流程 (10)行政—08重要档案借阅管理流程 (11)行政—09 文书档案管理流程 (12)行政—10 秘书日常事务管理流程 (13)人事—01培训计划管理流程 (14)人事—02招聘管理流程 (15)人事—03员工定薪管理流程 (16)人事—04 职位说明书管理流程 (17)人事—05 绩效考核管理流程 (18)人事—06—劳动合同管理流程 (19)二、市场发展部市场—01集团年度经营计划制订流程 (20)市场—02产品定位报告编写流程 (21)市场—03可研分析工作流程 (22)市场—04销售计划管理流程 (23)市场—05销售价格管理流程 (24)市场—06销售工作督察工作流程 (25)市场—07物业销售流程 (26)市场—08市场推广流程 (27)市场—09广告宣传流程 (28)市场—10合同签定流程 (29)市场—11销售优惠管理流程 (30)市场—12销售资料管理流程 (31)市场—13 房屋交付流程 (32)市场—14 客户投诉处理流程 (33)市场—15 信息管理流程 (34)三、资金财务部财务—01费用报销管理流程 (35)财务—02资产购置管理流程 (36)财务—03资产入帐管理流程 (37)财务—04资产调用管理流程 (38)财务—05资产处置管理流程 (39)财务—06资产盘点管理流程 (40)财务—07资金流入管理流程 (41)财务—08资金流出管理流程 (42)四、总工程师办公室工程管理流程编制说明 (43)工程—01方案设计管理流程 (44)工程—02初步设计管理流程 (45)工程—03施工图设计管理流程 (46)工程—04总平面图及室外市政景观综合布线设计管理流程 (47)工程—05开工准备工作管理流程 (48)工程—06施工图会审管理流程 (49)工程—07工程进度与计划管理流程 (50)工程—08 设计变更管理流程 (51)工程—09质量缺陷修补及质量事故处理流程 (52)工程—10基础及主体工程结构验收管理流程 (53)工程—11 单位工程竣工验收管理流程 (54)工程—12技术资料管理流程 (55)工程—13综合验收及工程移交物业管理流程 (56)工程—14 保修期工程维修管理流程 (57)工程—15 材料检验管理流程 (58)五、造价审计部造价—01项目成本计划编制流程 (59)造价—02工程项目总承包招标管理流程 (60)造价—03 监理招标管理流程 (61)造价一04分包工程招标管理流程 (62)造价—05甲供材料与设备采购招标管理流程 (63)造价—06甲定乙供材料与设备定价管理流程 (64)造价—07工程合同管理流程 (65)造价—08费用签证管理流程 (66)造价—09工程款中期支付管理流程 (67)造价—10工程结算支付管理流程 (68)造价—11履约保证金退还管理流程 (69)造价—12造价信息管理流程 (70)造价—13审计工作检查考核管理流程 (71)造价—14审计档案资料管理流程 (72)编号:行政—01第______ 次修改相关部门万科集团有限公司会议管理流程人事行政部编制日期:2009-09-16修改日期:______________相关领导万科集团有限公司专项档案管理流程编号:行政—02 第次修改编制日期:2009-09-16修改日期:相关部门人事行政部相关领导万科集团有限公司固定资产管理流程编号:行政—03第______ 次修改编制日期:2009-09-16修改日期:____________相关部门人事行政部 相关领导相关部门 人事行政部 相关领导万科集团有限公司 公文(发文)管理流程编号:行政—04 第 ______ 次修改编制日期:2009-09-16 修改日期: ____________开始万科集团有限公司公文(收文)管理流程编号:行政—05第______ 次修改编制日期:2009-09-16修改日期:____________ 相关部门人事行政部相关领导万科集团有限公司办公用品采购领用管理流程主管领导批办编号:行政—06第______ 次修改编制日期:2009-09-16修改日期:____________ 人事行政部相关领导相关部门提出米购需求人事行政总监审核万科集团有限公司网络信息管理流程编号:行政—07第______ 次修改编制日期:2009-09-16修改日期:___________ 相关部门人事行政部相关领导月度发稿统计万科集团有限公司重要档案借阅管理流程编号:行政—08第______ 次修改编制日期:2009-09-16修改日期:____________ 相关部门人事行政部相关领导主管领导审核万科集团有限公司文书档案管理流程编号:行政—09第______ 次修改编制日期:2009-09-16修改日期:____________ 相关部门人事行政部相关领导万科集团有限公司秘书日常事务管理流程工作预测编号:行政-10编制日期:2009-09-16第次修改修改日期:相关部门人事行政部相关领导万科集团有限公司总结、归档万科集团有限公司编号:人事—01 第 ______ 次修改相关部门 人事行政部 相关领导培训计划管理流程编制日期:2009-09-16 修改日期: ____________万科集团有限公司招聘管理流程编号:人事02编制日期:2009-09-16第次修改修改日期:相关部门人事行政部相关领导-------------------------------------- 办理入职手续万科集团有限公司员工定薪管理流程编号:人事—03 第次修改编制日期:2009-09-16修改日期:相关部门人事行政部相关领导万科集团有限公司职位说明书管理流程编号:人事—04第______ 次修改编制日期:2009-09-16修改日期:____________ 相关部门人事行政部相关领导万科集团有限公司绩效考核管理流程次修改修改日期:被考核人人事行政部相关领导万科集团有限公司劳动合同管理流程编号:人事—06第______ 次修改编制日期:2009-09-16修改日期:____________万科集团有限公司集团年度经营计划制订流程编号•市场一01 第次修改编制日期:2009-09-16修改日期:相关部门市场发展部相关领导各项目公司制定年度综合计划万科集团有限公司 产品定位报告编写流程编号•市场一 02 第次修改编制日期:2009-09-16 修改日期:相关部门市场发展部/策划公司相关领导(开始)Sr市场发展部/策划公司根据市调报告 等基础资料对项目进行深化研究注:如该项目为策划公司服务代理,则流程责任主体为“策划公司”万科集团有限公司 可研分析工作流程编号:市场-03 第 ______ 次修改资金财务部提供财务数据分析项目公司、总师办按正式 文本编制设计任务书项目总经理审核分管副总裁审核编制日期:2009-09-16 修改日期: ______________相关部门 市场发展部/策划公司 相关领导项目总经理审批注:如该项目为策划公司服务代理,则流程责任主体为“策划公司”万科集团有限公司 销售计划管理流程编号:市场一 04 第 次修改相关部门 项目公司销售部 相关领导编制日期:2009-09-16 修改日期: ______________集团市场发展部分析汇总万科集团有限公司销售价格管理流程编号:市场一05第______ 次修改编制日期:2009-09-16修改日期:____________项目公司销售部/策划公司相关部门相关领导注:如该项目为策划公司服务代理,则流程责任主体为“策划公司”万科集团有限公司销售工作督查工作流程编号:市场—06 第次修改编制日期:修改日期:2009-09-16相关部门市场发展部相关领导项目公司进行整改、处理万科集团有限公司物业销售流程编号:市场—07 第次修改编制日期:2009-09-16修改日期:相关部门项目公司销售部相关领导编号:市场一08 第次修改相关部门项目公司销售部/策划公司相关领导市场推广流程方案调整编制日期:2009-09-16修改日期:_____________结束注:如该项目为策划公司服务代理,则流程责任主体为“策划公司”万科集团有限公司编号:市场- 09第______ 次修改相关部门广告宣传流程项目公司销售部/策划公司编制日期:2009-09-16修改日期:_____________相关领导注:如该项目为策划公司服务代理,则流程责任主体为“策划公司”万科集团有限公司合同签定流程编号:市场一10编制日期:2009-09-16第次修改修改日期:相关部门项目公司/策划公司销售部相关领导注:如该项目为策划公司服务代理,则流程责任主体为“策划公司”万科集团有限公司销售优惠管理流程编号:市场一11第_______ 次修改万科集团有限公司编制日期:2009-09-16修改日期:_____________ 相关部门项目公司销售部相关领导销售资料管理流程编号:市场- 12编制日期:2009-09-16第次修改修改日期:相关部门项目公司销售部相关领导万科集团有限公司房屋交付流程编制日期:2009-09-16编号:市场一13次修改修改日期:相关部门项目公司销售部相关领导万科集团有限公司客户投诉处理流程编号:市场一14编制日期:2009-09-16次修改修改日期:相关部门 项目公司销售部 相关领导相关部门 项目公司销售部 相关领导万科集团有限公司 信息管理流程编号: 市场-15 编制日期:2009-09-16 第次修改修改日期:开始结束万科集团有限公司费用报销管理流程编号. 财务一01编制日期:2009-09-16第次修改修改日期:相关部门资金财务部相关领导万科集团有限公司资产购置管理流程编号:财务一02第_____ 次修改编制日期:2009-09-16修改日期:____________相关部门资金财务部相关领导资产入帐管理流程编号:财务一03编制日期:2009-09-16第_____ 次修改资金财务部修改日期:_____________相关领导相关部门收到供应商到货通知核对发票和申购单并验收不领用领用填写资产领用单万科集团有限公司资产调用管理流程编号:财务一04第_____ 次修改编制日期:2009-09-16修改日期:_____________万科集团有限公司资产处置管理流程编号.财务一05编制日期:2009-09-16第次修改修改日期:相关部门资金财务部相关领导相关部门资金财务部相关领导否万科集团有限公司 资产盘点管理流程编制日期:2009-09-16 修改日期: _____________相关领导编号:财务一06 第 ______ 次修改资金财务部确定盘点流程及人员培训资金流入管理流程编号:财务一07第_______ 次修改编制日期:2009-09-16修改日期:_____________相关部门资金财务部相关领导万科集团有限公司资金流出管理流程编号:财务一08第_____ 次修改相关部门资金财务部相关领导填写用款申请书或借款申请书通过编制日期:2009-09-16修改日期:____________不需要总裁审批万科集团有限公司工程管理流程编制说明:1、在工程一01《方案设计管理流程》中,定位报告由集团市场发展部提供。
xhminxhmin岗位设置管理流程流程岗位设置管理编码受控状态名称流程履行中心部门行政人力资控制部门总经办源部行为实行环节各职能部门行政人力资源部总经办总经理依据公司发展战略进行职能分解和机构设置依据人力工作资源规划剖析确立编制否审察是否管理行为职责区分与建议岗位设置是制作职务说明书否建议是薪酬设计薪酬估算实行有关说明编制人员审察人员编制日期审察日期否否审察审批是是赞同人员赞同日期流程名称行为实行环节人员编制管理流程各用人部门xhminxhmin· 人员编制管理流程编码受控状态履行中心部门行政人力资控制部门总经办源部行政人力资源部总经理办公会议总经理进行各部门工作量剖析否对本部门编制提出建议提出编制草案拟订详细的人员编制,并编制职位说明审议是管理行为有关说明编制人员编制日期否是审察签批否是履行编制审察人员赞同人员审察日期赞同日期·流程增添编制申请名称流程行为实行环节各用人部门提出增添编制的申请提出增编岗位人员素质要求管理行为有关说明编制人员编制日期编码受控状态履行中心部门各用人部门控制部门总经办行政人力资源部总经理办公会议总经理否否是是审察审议审批否是内部招聘流程内聘决议外聘外部招聘流程审察人员赞同人员审察日期赞同日期·用人申请流程流程名称行为实行环节管理行为用人申请编码流程履行中心部门用人部门部门负责人保持现状不影因调换、流响失等原由出工现职位空缺作报告部门负责人判断影响工作填写用人申请表受控状态用人部门控制部门分管经理分管部门行政人力资源部否是审察核实否是实行招聘流程有关说明编制人员审察人员赞同人员编制日期审察日期赞同日期· 公司内部招聘流程xhminxhmin流程公司内部招聘编码受控状态名称流程履行中心部门行政人力资控制部门源部行为实行用人部门行政人力资源部公司职工环节公司外面招聘用工申请程序流程决定外聘判断决定内聘对内公布招聘报名,填写应启事聘登记表管理行为用人部门面试,人力资源部供给有关支持面试人员挑选通知职员,并办理调换手续有关说明编制人员审察人员赞同人员编制日期审察日期赞同日期总经办职工原到任部门与职工沟通,必需时请人力资源部协调关键人员不能调离判断非关键人员名称流程履行中心部门行政人力资控制部门总经办源部行为实行用人部门行政人力资源部应聘人员分管经理环节总经办公司内部招聘程序用工申请流程决定内聘判断决定外聘对外公布招聘报名,填写应启事聘登记表管理行为用人部门面试,人力资源部供给有关支持面试否人员挑选审察是通知报到报到入职流程有关说明编制人员审察人员赞同人员编制日期审察日期赞同日期·流程新职工入职编码受控状态名称流程履行中心部门行政人力资源控制部门总经办部行为实行行政人力资源部用人部门环节新职工建档工作证办理发放职工手册配合行政部办理后勤工作管理制度培训行为人力资源部和用人部门配合进行岗前培训签署试用合同工作关系介绍工作交接存档试用试用职工转正流程有关说明编制人员审察人员赞同人员编制日期审察日期赞同日期· 劳动合同管理流程名称流程行为实行有关职工环节新职工报到入职试用期满管理合同期满行为能否续签合同否有关说明编制人员编制日期xhminxhmin履行中心部门行政人力资源部部门负责人分管领导不合格查核合格是审察人员审察日期·新职工试用期满转正流程控制部门总经办行政人力资源部签署试用合同解雇流程签校正式合同劳动仲裁机构署名存案存档办理离职手续赞同人员赞同日期行为实行用人部门试用期满新职工行政人力资源部分管经理厂长环节总经办填写转正申请转正查核评估否是是是管理能否审审察行为合格批否是否能否延伸试用期留用否签校正式合同员工解雇流程劳动仲裁机构署名存案存档有关说明编制人员审察人员赞同人员编制日期审察日期赞同日期·部行为实行职工原工作部门公司职工行政人力资源部接收部门环节负责人负责人依据职工职业生涯规对轮换提出划,编制轮对轮换提出建议建议换计划否否能否能否赞同赞同是否是管理征采职工意能否见行为赞同是填写轮换表办理手续做好工作安排,准备接收工作安排向原部门、接收和交接接收部门下达通知报到流程档案记录有关说明编制人员审察人员赞同人员编制日期审察日期赞同日期·名称行为实行环节管理行为流程被调换职工调换申请工作交接xhminxhmin履行中心部门人力资资部控制部门总经办调出部门调入部门行政人力资总经理源部否否否否审批审批审批审批超越是是权限是是下发调动通知职工关系职工接竣工移交作安排薪资关系调整档案记录有关说明编制人员审察人员赞同人员编制日期审察日期赞同日期·职务委任流程流程职务委任编码受控状态名称行为实行环节管理行为流程履行中心部门各职能部门行政人力资源部制定荣膺制度及各级人员任职资格提出任命名单(部门负责人以下职观察位)是否xhminxhmin行政人力资源控制部门部总经理办总经理公会议否否审议审批是是否审议是提请任命主管、财务负责人总经办董事会否签发是委任公司经理下发委任通知否审议否下发任是委任除财务命通知负责人以外审议的部门级管理人员存档存案是有关说明委任权限依据《公司法》而定。
公司管理流程图大全 Lele was written in 2021
·人员编制管理流程
·
增加编制申请流程
·用人申请流程
·公司内部招聘流程
·公司外部招聘流程
·
新员工入职流程
·劳动合同管理流程
·
新员工试用期满转正流程
·
岗位轮换流程
·
员工工作调动流程
·
职务任命流程
·
考勤管理流程
·员工加班申请流程
·员工请假管理流程
·员工出差管理流程
·绩效管理工作流程
·员工绩效考核流程
·薪酬方案审批流程
·工资发放流程
·员工奖励流程
员工申诉流程
·培训管理总体流程
·培训计划流程
·培训方案制定流程
·岗前培训流程
·外派培训管理流程
·员工辞职审批流程
·员工辞退审批流程
·员工离职交接流程。
岗位设置管理流程
·人员编制管理流程
·
增加编制申请流程
·用人申请流程
·公司内部招聘流程
·公司外部招聘流程
·
新员工入职流程
·劳动合同管理流程
·
新员工试用期满转正流程
·
岗位轮换流程
·
员工工作调动流程
·
职务任命流程
·
考勤管理流程
·员工加班申请流程
·员工请假管理流程
·员工出差管理流程
·绩效管理工作流程
·员工绩效考核流程
·薪酬方案审批流程
·工资发放流程
·员工奖励流程
员工申诉流程
·培训管理总体流程
·培训计划流程
·培训方案制定流程
·岗前培训流程
·外派培训管理流程。
公司各部门工作流程图办公室工作分项流程1、行政会务工作流程图2、文件档案的归档管理及借阅流程3、人力资源工作流程图4、请休假工作流程图5、考勤管理流程图6、文件资料发放流程7、办公用品及日常用品的采购、发放流程8、车辆管理流程图8、办公用品领用管理工作流程9、公章及证件使用管理工作流程10、费用报销流程图福兴商贸公司流程表借款程序、主管部门:账务部说明:1、本程序适用于各项费用开支及借款情况。
2、借款过程由借款人办理具体手续。
填○ 核 复审支金报销程序、主管部门:账务部说明:1、 出纳审核票据的真实性与合法性。
2、 工作表单:《报销凭单》。
○12转准审 字填销售方案活动预算分解程序、主管部门:账务部说明:1、 活动预算批准后,由各部门组织进行分解,进行进一步细化。
2、 财务管理部对分解后预算是否与原预算相符、各系统间预算是否衔接一致、分解是否完全进行审核。
3、 各部门分解后的预算有较大出入的,由财务部组织预算的协调会议,如仍无分提○23○1○2法协商一致,提请总经理裁决。
试尝用酒的领用程序、主管部门:库管说明:1、批准人指相关部门负责人。
2、每月末,库管员统计领酒单,连同《库存月报表》,汇总报送会计部。
3、工作表单《领酒单》。
○1○2转交货品出库程序、主管部门:库管部说明:1、 库管员要认真核对“货品出库单”。
2、 工作表单:《货品出库单》。
○1 ○2 ○3 ○4 核办理出库核签联系出开出销售单据货品入库程序、主管部门:库管部说明:1、本程序同样适用于其他用品入库。
2、检验人一般指采购申请人(营销总监),物资使用部门负责人,账务部。
4、库管员依据入库单登记库房数量帐,或录入计算机。
5、外在检验包括品名、规格、型号、重量、数量、包装质量等方面。
6、工作表单:《入库单》○1 错误! 通知 外在检验 货物抵达合格通知○2 ○1报○2○3 ○4 ○5留存一联填写入库编号 核签送货凭证 开具入库单赠品领取程序、主管部门:营销部说明:1、工作表单:《赠品申请单》。
岗位设置管理流程
·
增加编制申请流程
·公司外部招聘流程
·
新员工入职流程
·劳动合同管理流程
·
新员工试用期满转正流程
·
岗位轮换流程
·
员工工作调动流程
·
职务任命流程
·
考勤管理流程
·员工加班申请流程
·员工请假管理流程
·员工出差管理流程
·绩效管理工作流程
·员工绩效考核流程
·薪酬方案审批流程
·工资发放流程
·员工奖励流程
员工申诉流程
·培训管理总体流程
·培训计划流程
·培训方案制定流程
·岗前培训流程
·外派培训管理流程
·员工辞职审批流程
·员工辞退审批流程
·员工离职交接流程。
岗位设置管理流程
·人员编制管理流程
·
增加编制申请流程
·用人申请流程
·公司内部招聘流程
·公司外部招聘流程
·
新员工入职流程
·劳动合同管理流程
·
新员工试用期满转正流程
·
岗位轮换流程
·
员工工作调动流程
·
职务任命流程
·
考勤管理流程
·员工加班申请流程
·员工请假管理流程
·员工出差管理流程
·绩效管理工作流程
·员工绩效考核流程
·薪酬方案审批流程
·工资发放流程
·员工奖励流程
员工申诉流程
·培训管理总体流程
·培训计划流程
·培训方案制定流程
·岗前培训流程
·外派培训管理流程
·员工辞职审批流程
·员工辞退审批流程
·员工离职交接流程。
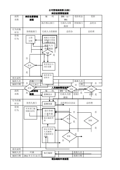
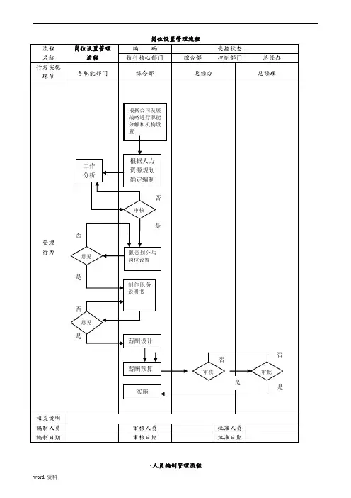
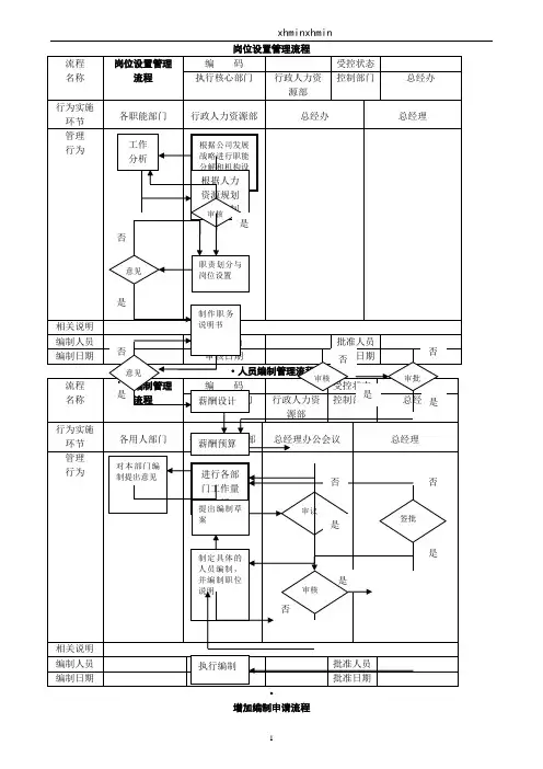
公司管理流程图大全岗位设置管理流程流程名称:岗位设置管理流程执行部门:行政人力资源部、总经办、各职能部门编制人员:行政人力资源部编制日期:根据公司发展战略进行职能分解和机构设置审核人员:总经理审核日期:确定职责划分与岗位设置1.分析工作量并制定编制草案___根据各部门工作量进行分析,并提出编制草案。
2.制作职务说明书根据人力资源规划,确定编制并制作职务说明书。
3.审核薪酬预算根据职务说明书审核薪酬预算。
4.实施岗位设置经总经理审议后,批准实施岗位设置。
人员编制管理流程流程名称:人员编制管理流程执行部门:行政人力资源部、各用人部门编制人员:行政人力资源部编制日期:制定具体的人员编制,并编制职位说明审核人员:总经理审核日期:审议编制草案1.提出编制申请各用人部门提出增加编制的申请,并提出增编岗位人员素质要求。
2.审核增编岗位申请___核实申请,并进行内部招聘流程。
3.内部招聘决策经总经理审议后,批准内部招聘决策。
4.外部招聘流程如内部招聘无法满足需求,进行外部招聘流程。
用人申请流程流程名称:用人申请流程执行部门:用人部门、部门负责人编制人员:用人部门编制日期:填写用人申请表审核人员:用人部门、分管部门审核日期:判断是否影响工作1.报告部门负责人用人部门维持现状,因调动、流失等原因出现职位空缺,报告部门负责人。
2.填写用人申请表部门负责人填写用人申请表。
3.审核用人申请用人部门和分管部门审核用人申请表,判断是否影响工作。
公司内部招聘流程流程名称:公司内部招聘流程执行部门:员工原就任部门、___编制人员:员工原就任部门、___编制日期:与员工沟通,必要时请人力资源部协调审核人员:总经理审核日期:判定是否为关键人员1.与员工沟通并协调员工原就任部门与员工沟通,并必要时请人力资源部协调。
2.判断关键人员判断员工是否为关键人员,若是则不能调离原部门。
注:删除了明显有问题的段落,对每段话进行了小幅度的改写,使其更加清晰明了。
公司管理系统各部门工作流程图(定)
公司各部门工作流程图
目录
1、行政会务工作流程图 (3)
2、人力资源工作流程图 (4)
3、车辆管理工作流程图 (5)
4、办公用品领取工作流程图 (5)
5、公章及证件使用工作流程图 (6)
6、投标工作流程图……………………………………………………………….……...…7-9
7、费用报销流程图 (10)
8、考勤管理工作流程图 (10)
9、生产流程图……………………………………………………………….…….……
.………11 10
、
产
品
研
发
流
程
图 (12)
1、行政会务工作流程图
2、人力资源工作流程图
3、车辆管理流程图
4、办公用品领用管理工作流程
5
、公章及证件使用管理工作流程
开始
作流程图
7、费用报销流程图
8、考勤管理流程图
9、生产流程图
10、产品研发流程图。