接触氧化池外观图
- 格式:ppt
- 大小:4.27 MB
- 文档页数:30
生物接触氧化池设计―、接触氧化池主要由池体、填料床、曝气装置及进出水装置等构成,具体结构如图所示。
空XA逬图3-3生物接触氧化池的构造示意图生物接触氧化池设计要点:(1)生物接触氧化池一般不应少于2座;(2)设计时采用的B0D5负荷最好通过实际确定。
也可以采用经验数据,一般处理城市污水可用1.0~1.8kgBOD5/(m3・d,处理BOD5s500mg/L的污水时可用1.0~3.0kgBOD5/(m3・d;(3)污水在池中的停留时间不应小于1~2h(按有效容积计);(4)进水B0D5浓度过高时,应考虑设出水回流系统;(5)填料层高度一般大于3.0m,当采用蜂窝填料时,应分层装填,每层高度为1m,蜂窝孔径不小于25mm;当采用小孔径填料时,应加大曝气强度,增加生物膜脱落速度;(6)每单元接触氧化池面积不宜大于25m2,以保证布水、布气均匀;j乙(7)气水比控制在(10~15:1。
因废水的有机物浓度较高,本次设计采用二段式接触氧化法。
设计一氧池填料高取3.5m,二氧池填料高取3m。
3.5.1填料容积负荷Nv=0.2881Se0.7246=0.2881*9.240.7246=1.443[kgBOD5/(m3*d]式中Nv—接触氧化的容积负荷,kgBOD5/(m3*d;Se-出水B0D5值,mg/l3.5.2污水与填料总接触时间t=24*S0/(1000*Nv=24*231/(1000*1.443=3.842(h式中SO——进水BOD5值,mg/L。
设计一氧池接触氧化时间占总接触时间的60%:t1=0.6t=0.6*3.842=2.305(h设计二氧池接触氧化时间占总接触时间的40%:t2=0.4t=0.4*3.842=1.537(h3.5.3接触氧化池尺寸设计一氧池填料体积V1V1=Qt1=1500*2.305/24=144m3—氧池总面积A1-总:A1-总詡1/,-3=144/3.5=41.2口2>25m2—氧池格数n取2格,设计一氧池宽B1取4米,则池长L1:L1=144/(3.5*4=10.3m剩余污泥量:在《生物接触氧化池设计规程》中推荐该工艺系统污泥产率为0.3~ 0.4kgDS/kgBOD5,含水率96%~98%。
第六节生物接触氧化法一、概述生物接触氧化法的处理构筑物是浸没曝气式生物滤鸺,也称生物接触氧化池。
其基本流程包括:初次沉淀池→生物接触氧化池→二次沉淀池。
生物接触氧化池内设置填料,填料淹没在废水中,填料上长满生物膜,废水与生物膜接触过程中,水中的有机物被微生物吸附、氧化分解和转化为新的生物膜。
从填料上脱落的生物膜,随水流到二沉池后被去除,废水得到净化。
在接触氧化池中,微生物所需要的氧气来自水中,而废水则自鼓人的空气不断补充失去的溶解氧。
空气是通过设在池底的布气系统供给。
图13-33集中布气式浸没曝气生物滤池示意图生物接触氧化法具有下列特点:(1) 由于填料的比表面积大,池内的充氧条件良好。
生物接触氧化池内单位容积的生物固体量高于活性污泥法曝气池及普通生物滤池,因此,生物接触氧化池具有较高的容积负荷;(2) 生物接触氧化法不需要污泥回流,也就不存在污泥膨胀问题,运行管理简便;(3) 由于生物固体量多,水流又属完全混合型,因此生物接触氧化池对水质水量的骤变有较强的适应能力;(4) 生物接触氧化池有机容积负荷较高时,其F/M保持在较低水平,污泥产量较低。
二、生物接触氧化池的构造图13—34为接触氧化池构造示意图。
图13-34接触氧化池构造示意图接触氧化池的主要组成部分有池体、填料和布水布气装置。
板状填料蜂窝状填料图13-35填料1) 池体反应器池体的作用是接受被处理废水,在池内的固定部位充填填料,设置曝气系统;为微生物创造适宜的环境条件;强化有机污染物的降解反应,排放处理水及污泥。
反应器的结构形状,在表面上可为圆形,方形和矩形,表面尺寸以满足配水布气均匀,便于填料充填和便于维护管理等要求确定,并应尽量考虑与前处理构筑物及二沉池的表面形式相协调,以降低水头损失。
反应器的高度则由填料层、配水层、布气层、填料层上的稳定水层高度及保护高度而定。
同时也要考虑曝气系统的压力以及水泵的提升高度等因素。
在一般情况下。
填料层高度介于2.0~3.5m之间,多采用3.Om,池底部曝气布气层高度取值0.6~0.7m,填料上稳定水层高0.5~0.6m,反应器总高度介于4.5~5.Om左右。
生物接触氧化法生物接触氧化法是生物膜法的主要设施之一,生物膜法是一大类生物处理法的统称,其主要利用附着生长于某些固体物表面的微生物(即生物膜)进行有机污水处理的方法。
生物膜是由高度密集的好氧菌、厌氧菌、兼性菌、真菌、原生动物以及藻类等组成的生态系统,其附着的固体介质称为滤料或载体。
生物膜自滤料向外可分为庆气层、好气层、附着水层、运动水层。
其原理是,生物膜首先吸附附着水层有机物,由好气层的好气菌将其分解,再进入厌气层进行厌气分解,流动水层则将老化的生物膜冲掉以生长新的生物膜,如此往复以达到净化污水的目的。
老化的生物膜不断脱落下来,随水流入二次沉淀被沉淀去除。
生物接触氧化法是从生物膜法派生出来的一种废水生物处理法,即在生物接触氧化池内装填一定数量的填料,利用栖附在填料上的生物膜和充分供应的氧气,通过生物氧化作用,将废水中的有机物氧化分解,达到净化目的。
19世纪末,德国开始把生物接触氧化法用于废水处理,但限于当时的工业水平,没有适当的填料,未能广泛应用。
到20世纪70年代合成塑料工业迅速发展,轻质蜂窝状填料问世,日本、美国等开始研究和应用生物接触氧化法。
中国在70年代中期开始研究用此法处理城市污水和工业废水,并已在生产中应用。
特点生物接触氧化法具有生物膜法的基本特点,但又与一般生物膜法不尽相同。
一是供微生物栖附的填料全部浸在废水中,所以生物接触氧化池又称淹没式滤池。
二是采用机械设备向废水中充氧,而不同于一般生物滤池靠自然通风供氧,相当于在曝气池中添加供微生物栖附的填料,也可称为曝气循环型滤池或接触曝气池。
三是池内废水中还存在约2—5%的悬浮状态活性污泥,对废水也起净化作用。
因此生物接触氧化法是一种具有活性污泥法特点的生物膜法,兼有生物膜法和活性污泥法的优点。
生物接触氧化法净化废水的基本原理与一般生物膜法相同,就是以生物膜吸附废水中的有机物,在有氧的条件下,有机物由微生物氧化分解,废水得到净化。
生物接触氧化池内的生物膜由菌胶团、丝状菌、真菌、原生动物和后生动物组成。
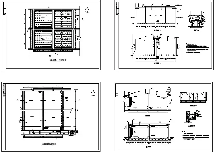
3.5 生物接触氧化池设计接触氧化池主要由池体、填料床、曝气装置及进出水装置等构成,具体结构如图所示。
图3-3 生物接触氧化池的构造示意图生物接触氧化池设计要点:(1)生物接触氧化池一般不应少于2 座;(2)设计时采用的BOD5负荷最好通过实际确定。
也可以采用经验数据,一般处理城市污水可用1.0~1.8kgBOD5/(m3·d),处理BOD5≤500mg/L的污水时可用1.0~3.0 kgBOD5/(m3·d);(3)污水在池中的停留时间不应小于1~2h(按有效容积计);(4)进水BOD5浓度过高时,应考虑设出水回流系统;(5)填料层高度一般大于3.0 m,当采用蜂窝填料时,应分层装填,每层高度为1 m,蜂窝孔径不小于25 mm;当采用小孔径填料时,应加大曝气强度,增加生物膜脱落速度;(6)每单元接触氧化池面积不宜大于25m2,以保证布水、布气均匀;(7)气水比控制在(10~15):1。
因废水的有机物浓度较高,本次设计采用二段式接触氧化法。
设计一氧池填料高取3.5m,二氧池填料高取3m 。
3.5.1 填料容积负荷Nv=0.2881Se0.7246=0.2881*9.240.7246=1.443[ kgBOD5/(m3*d)]式中 N v —接触氧化的容积负荷, kgBOD 5/(m3*d); S e —出水BOD 5值,mg/l3.5.2 污水与填料总接触时间t=24*S 0/(1000* Nv)=24*231/(1000*1.443)=3.842(h)式中S 0 ——进水BOD 5值,mg/L 。
设计一氧池接触氧化时间占总接触时间的60%: t 1=0.6t=0.6*3.842=2.305(h)设计二氧池接触氧化时间占总接触时间的40%: t 2=0.4t=0.4*3.842=1.537(h)3.5.3接触氧化池尺寸设计一氧池填料体积V 1V 1=Q t 1=1500*2.305/24=144m 3 一氧池总面积A 1-总:A 1-总=V 1/h 1-3=144/3.5=41.2(m 2)>25 m 2 一氧池格数n 取2格,设计一氧池宽B 1取4米,则池长L 1: L 1=144/(3.5*4)=10.3m剩余污泥量:在《生物接触氧化池设计规程》中推荐该工艺系统污泥产率为0.3~0.4 kgDS/kgBOD 5,含水率96%~98%。
生物接触氧化法与曝气生物氧化池的异同点以及应用1.生物接触氧化法特点生物接触氧化法是一种兼有活性污泥法和生物膜法特点的一种新的废水生化处理法。
这种方法的主要设备是生物接触氧化滤地。
在不透气的曝气地中装有焦炭、砾石、塑料蜂窝等填料,填料被水浸没,用鼓风机在填料底部曝气充氧;空气能自下而上,夹带待处理的废水,自由通过滤料部分到达地面,空气逸走后,废水则在滤料间格自上向下返回池底。
活性污泥附在填料表面,不随水流动,因生物膜直接受到上升气流的强烈搅动,不断更新,从而提高了净化效果。
生物接触氧化法具有处理时间短、体积小、净化效果好、出水水质好而稳定、污泥不需回流也不膨胀、耗电小等优点。
1、进水采用进水堰的方式,进水与进气逆向,增加水与生物膜的接触面积。
具有活性污泥法的优点,辅以机械设备供氧,生物活性高,泥龄短;2、载体生物填料采用新式生物浮球,球内能固定和包藏生物膜。
不用填料固定支架,可以解决修理更换的困难。
采用新式罗茨鼓风机供气,充氧设备采用微孔曝气器。
3、由于填料比表面积大,池内充氧条件良好,池内单位容积的生物固体量较高,因此,生物接触氧化池具有较高的容积负荷,耐冲击负荷能力强;4、由于生物接触氧化池内生物固体量多,水流完全混合,故对水质水量的骤变有较强的适应能力,能分解其它生物处理难分解的物质;5、剩余污泥量少,不存在污泥膨胀问题,运行管理简便。
6。
生物膜只能自行脱落,剩余污泥不易排走,滞留在滤料之间易引起水质恶化,影响处理效果。
2.1 生物接触氧化池接触氧化池由池体、填料、支架、曝气装置、布水装置及排泥管道等部件所组成。
池体为矩形钢结构,JW-Ⅰ填料均匀分层装填,下部中心进水、PPR穿孔管布气,水、气同向流动。
污水处理设备运行15~20d后,填料微孔发生堵塞造成接触氧化池涌水,加大曝气量,定期进行反冲洗。
接触氧化池构造示意见图1。
图1 接触氧化池构造示意图2.2生物过滤沉淀池该过滤沉淀池的结构下部为沉淀区,为减小设备整体占地面积并增加沉淀体积,沉淀区设计为矩形结构,下部设置排泥管,将沉淀区污泥排出。
一级接触氧化池和二级氧化池好,今天咱们聊聊一级接触氧化池和二级氧化池。
听起来好像一门深奥的科学,实际上,咱们生活中也离不开这些“小家伙”。
你要知道,这两个氧化池就像是咱们城市里不可或缺的“清道夫”,默默无闻却极其重要。
想象一下,咱们的生活、工业活动,各种污水就像是那路上的垃圾,如果没有这些氧化池,整个城市可就得瘫痪了。
一级接触氧化池,听这个名字,第一反应是不是有点复杂?别担心,这玩意儿其实就是个处理污水的好帮手。
它的工作原理简单来说就是把污水和氧气混合在一起,咱们就像是在给水里的小细菌开个派对。
这些小细菌一见到食物,简直是兴奋得不得了,纷纷过来大吃特吃。
这样一来,污水里的有机物就被分解掉了,变得干干净净。
就像把家里搞得乱七八糟的孩子叫来收拾,忙得不可开交,最后一片整洁。
可见,一级接触氧化池的工作真是太重要了,帮咱们减轻了不少负担。
可能有人会想,一级池子就能搞定一切吗?当然不是!这就好比你想让一个孩子既能打篮球,又能学好数学,光靠一个班可不够。
二级氧化池就像是这个孩子的补习班,让它进一步提升。
在这里,水质被进一步处理,污染物更彻底地被分解。
二级氧化池里的环境更为复杂,小细菌们又一次开起了盛大的“聚会”。
不过,这次不是随便吃,而是要精细挑剔,选择性地吃掉那些顽固的污水成分。
于是,水质就越变越好,甚至能达到可以直接排放的标准。
你看,二级氧化池不仅仅是个“升级版”,它的工作原理更像是一个复杂的生态系统。
里面的细菌、氧气、水流,都是在精密地运转。
就像是一场交响乐,各个乐器齐心协力,才能奏出美妙的乐曲。
水处理过程中,不同种类的细菌通力合作,有的负责降解,有的则是调节环境,让水变得更清澈。
简直就是大自然的奇妙设计,和谐共生。
不光是技术,这两个氧化池在日常生活中也给我们带来了不少好处。
想象一下,如果没有这两个“小能手”,我们的生活可想而知。
河水变黑,空气变臭,大家出门都得捂着鼻子,简直没法过日子。
水质变好之后,鱼儿也能欢快地游来游去,景色也变得美丽。
生物接触氧化法是生物膜法的主要设施之一,生物膜法是一大类生物处理法的统称,其主要利用附着生长于某些固体物表面的微生物(即生物膜)进行有机污水处理的方法。
生物膜是由高度密集的好氧菌、厌氧菌、兼性菌、真菌、原生动物以及藻类等组成的生态系统,其附着的固体介质称为滤料或载体。
生物膜自滤料向外可分为庆气层、好气层、附着水层、运动水层。
其原理是,生物膜首先吸附附着水层有机物,由好气层的好气菌将其分解,再进入厌气层进行厌气分解,流动水层则将老化的生物膜冲掉以生长新的生物膜,如此往复以达到净化污水的目的。
老化的生物膜不断脱落下来,随水流入二次沉淀被沉淀去除。
生物接触氧化法的处理构筑物是浸没曝气式生物滤池,也称生物接触氧化池。
图所示其基本流程。
生物接触氧化池内设置填料,填料淹没在废水中,填料上长满生物膜,废水与生物膜接触过程中,水中的有机物被微生物吸附、氧化分解和转化为新的生物膜。
从填料上脱落的生物膜,随水流到二沉池后被去除,废水得到净化。
在接触氧化池中,微生物所需要的氧气来自水中,而废水则自鼓人的空气不断补充失去的溶解氧。
空气是通过设在池底的穿孔布气管进入水流,当气泡上升时向废水供应氧气,有时并借以回流池水。
参见图2。
图2 集中布气式浸没曝气生物滤池图2布气式浸没曝气生物生物接触氧化法的特点:(1)由于填料的比表面积大,池内的充氧条件良好。
生物接触氧化池内单位容积的生物固体量高于活性污泥法曝气池及生物滤池,因此,生物接触氧化池具有较高的容积负荷;(2)生物接触氧化法不需要污泥回流,也就不存在污泥膨胀问题,运行管理简便;(3)由于生物固体量多,水流又属完全混合型,因此生物接触氧化池对水质水量的骤变有较强的适应能力;(4)生物接触氧化池有机容积负荷较高时,其F/M保持在较低水平,污泥产量较少。
生物接触氧化法的优点① BOD容积负荷高,污泥生物量大,相对而言处理效率较高,而且对进水冲击负荷(水力冲击负荷及有机浓度冲击负荷)的适应力强。