线槽桥架支架安装方法图示
- 格式:doc
- 大小:893.00 KB
- 文档页数:7
弱电桥架、强电桥架、母线槽、桥架安装图解桥架:跨接表识,弯曲度一致
▲桥架跨接线连接要注意:用抓垫、平垫或把喷塑桥架的漆刮掉再用平垫、弹簧垫压紧。
镀锌电缆桥架间连接板的两端不跨接接地线,但连接板两端不少于2个有防松螺帽或防松垫圈的连接固定螺栓(强标)。
至于支架的接地,就是把支架与桥架连接处固定刮漆就可以(或是抓垫)。
接地线最小截面不小于4平方米。
▲金属电缆桥架及其支架全长应不少于2处与接地(PE)或接零(PEN)干线相连接;
▲跨接线压线处细部做法:
注意垫片及顺序及螺栓外露的长度及接地标识、螺栓的位置;不能用连接螺栓固定跨接线。
螺栓的个数;压接位置
破漆压接不够规范,没弹簧垫及平垫
错误的压接,顺序不对
重要房间桥架的接地
重要房间桥架的接地
电井内桥架接地及表识
▲桥架的安装:横平竖直,弯头处要平缓。
当桥架分层时,最好用组合架。
▲桥架内部要加设防火封堵或加设防火包。
▲钢制30米,铝合金及塑料的15米要加伸缩节。
过建筑物变形缝处(伸缩缝、沉降缝)加补偿装置。
▲桥架的支架间距一般要求水平的为1.5-3米,垂直的为2米一个。
▲螺母位于桥架的外侧。
当支架与铝合金桥架连接时,注意防电化措施。
▲注意转弯处支架的设置。
▲配电室大型桥架要采用可调式组合支架大型工程桥架弯曲度要一致。
三通变径使用合理
桥架与水管交叉处桥架在上,实在没法布置的在桥架上方要做一挡水罩
桥架提早做在上
漂亮的桥架支墩。
电缆桥架安装施工1 一般规定1.1 本章适用于电压为10KV及以下新建扩建的一般工业与民用建筑电缆、桥架安装和桥架内电缆敷设。
1.2 电缆桥架安装和桥架内电缆敷设,应按已批准的设计文件施工。
1.3 由支、吊、托架支撑的托盘(槽)或梯架直线段、弯通非直线段组合而成,敷设电缆具有连续性的刚性结构系统,为电缆桥架。
见图12。
1。
31.4 金属电缆桥架及其支架和引入或引出的金属电缆导管必须接地(PE)或接零(PEN)可靠,且必须符合下列规定:1.金属电缆桥架及支架全长应不少于2处与接地(PE)或接零(PEN)干线相连接;2.非镀锌电缆桥架间连接板的两端跨接线铜芯接地线,接地线最小允许截面积不小于4mm2;3.镀锌电缆桥架间连接板的两端不跨接接地线,但连接板两端不少于2个有防松螺帽或防松垫圈的连接固定螺栓。
1.5 电缆敷设严禁有绞拧、铠装压扁、护层断裂和表面严重划伤等缺陷。
1.6 电缆桥架处如有防火要求的场所,应采取防火隔离措施。
12.2 施工准备2.1 技术准备:1.按照已批准的施工组织设计(施工方案)进行技术、安全交底。
2.施工执行工艺标准、图集、规范齐全。
3.电缆桥架敷设前,应检查桥架敷设有无与其他设备、管线交叉或重叠无法施工的地方,施工前应与各工种、监理或建设单位及设计单位协商好,并作好记录,以保证施工顺利进行。
4.根据施工图或施工所用电缆应作好电缆牵引力的计算。
1.电缆桥架规格及型号必须符合设计要求,附件齐全;桥架与配件、附件和紧固件各种型钢均应采用镀锌标准件。
2.各种规格电缆桥架的直线段、弯通、桥架附件及支、吊架立柱及型钢等有产品合格证,桥架内外应光滑平整,无棱刺,不应有扭曲翘边等变形现象。
3.桥架订货或制作应按设计要求进行,不应有误,应反复校核以免造成浪费。
4.桥架安装选择需屏蔽电气干扰的电缆回路,有腐蚀的场所、易燃粉尘场所,应选用无盖无孔封闭型托盘,当需要因地制宜的场所,宜选用组装式托盘或有孔托盘及梯架;在容易积灰和其它需遮盖的环境或户外场所,宜带有盖板。
桥架支吊架制作安装图例(2008)精彩文档编制说明1.电缆桥架支架应根据图纸要求及现场情况制作;安装时应拉通线控制水平及垂直度;2.电缆桥架水平安装的支架间距为1.5~2m;垂直安装的支架间距不大于2m;在水平长度超过20米或在转弯、转角处应设固定支架;3.采用顶爆螺丝工艺安装时,钻头选择应与顶爆螺丝匹配,然后在通丝螺杆上带双螺母锁定,采用扳手与顶爆螺丝连接牢固;4.非镀锌电缆桥架间连接板的两端跨接铜芯接地线,接地线最小截面积不小于4mm2,采用焊锡铜接线端子连接,连接处应进行除漆处理;精彩文档精彩文档Φ8×30mm顶爆螺丝Φ8通丝螺杆L30×3角钢楼 板桥 架50×50~200×50Φ8×25mm六角螺丝50×50~200×100桥架水平支架制作图楼 板Φ8×50mm膨胀螺丝L30×3角钢桥 架Φ8×25mm六角螺丝50×50~200×100桥架水平固定支架制作图(正视)精彩文档楼 板L30×3角钢Φ8×50mm膨胀螺丝L30×3角钢桥 架Φ8×25mm六角螺丝50×50~200×100桥架水平固定支架制作图(侧视)精彩文档精彩文档Φ10×40mm顶爆螺丝Φ10通丝螺杆L40×4角钢楼 板桥 架300×100~400×150300×100~400×150桥架水平支架制作图Φ8×25mm六角螺丝楼 板Φ10×65mm膨胀螺丝L40×4角钢桥 架Φ8×25mm六角螺丝300×100~400×150桥架水平固定支架制作图(正视)精彩文档楼 板L40×4角钢Φ10×65mm膨胀螺丝L40×4角钢桥 架Φ8×25mm六角螺丝300×100~400×150桥架水平固定支架制作图(侧视)精彩文档精彩文档Φ12×50mm顶爆螺丝Φ12通丝螺杆L50×5角钢楼 板桥 架500×100~600×150500×100~600×150桥架水平支架制作图Φ8×30mm六角螺丝楼 板Φ12×70mm膨胀螺丝L50×5角钢桥 架Φ8×30mm六角螺丝500×100~600×150桥架水平固定支架制作图(正视)精彩文档楼 板L50×5角钢Φ12×70mm膨胀螺丝L50×5角钢桥 架Φ8×30mm六角螺丝500×100~600×150桥架水平固定支架制作图(侧视)精彩文档精彩文档Φ12×70mm膨胀螺拴6.3#槽钢6.3#槽钢楼 板桥 架800×150~1000×150150×150×8mm钢板Φ8×30mm六角螺丝800×150~1000×150桥架水平支架制作图(正视)楼 板桥 架Φ12×70mm膨胀螺拴150×150×8mm钢板6.3#槽钢6.3#槽钢Φ8×30mm六角螺丝800×150~1000×150桥架水平支架制作图(侧视)精彩文档精彩文档墙 体50×50~200×100桥架垂直安装支架制作图(俯视)Φ8×50mm膨胀螺丝L30×3角钢L30×3角钢Φ8×25mm六角螺丝50×50~200×100桥架垂直安装支架制作图(侧视)精彩文档精彩文档墙 体300×100~400×150桥架垂直安装支架制作图(俯视)Φ10×65mm膨胀螺丝L40×4角钢L40×4角钢Φ8×30mm六角螺丝300×100~400×150桥架垂直安装支架制作图(侧视)精彩文档精彩文档墙 体500×150~600×150桥架垂直安装支架制作图(俯视)Φ12×70mm膨胀螺丝L50×5角钢L50×5角钢Φ10×30mm六角螺丝500×150~600×150桥架垂直安装支架制作图(侧视)精彩文档精彩文档墙 体800×150~1000×150桥架垂直安装支架制作图(俯视)Φ12×70mm膨胀螺丝L60×6角钢L60×6角钢Φ10×30mm六角螺丝800×150~1000×150桥架垂直安装支架制作图(侧视)精彩文档精彩文档 Φ10×40mm~Φ12×50mm顶爆螺丝Φ10~Φ12通丝螺杆L30×3~L40×4角钢楼 板桥 架200×100~300×150双层桥架(宽度相加小于600mm)水平支架制作图Φ8×25mm六角螺丝桥 架200×100~300×150楼 板Φ10×65mm~Φ12×70膨胀螺丝桥 架L30×3~L40×4角钢桥 架Φ8×25mm六角螺丝双层桥架(宽度相加小于600mm)水平固定支架正视图精彩文档精彩文档 楼 板桥 架Φ8×25mm六角螺丝桥 架双层桥架(宽度相加小于600mm)水平固定支架制作侧视图Φ10×65mm~Φ12×70膨胀螺丝L30×3~L40×4角钢L30×3~L40×4角钢楼 板Φ12×70膨胀螺丝桥 架L50×5角钢桥 架Φ8×30mm六角螺丝双层桥架(宽度相加700~1000mm)水平固定支架图精彩文档楼 板Φ12×70膨胀螺丝桥 架L60×6角钢桥 架Φ8×30mm六角螺丝双层桥架(宽度相加1100~1400mm)水平固定支架图精彩文档。
电缆桥架支架安装方法(图)电缆桥架系指电缆梯架、电缆托盘及金属线槽。
电缆桥架主要有钢制、铝合金制及玻璃钢制等。
钢制桥架表面处理分为喷漆、喷塑、电镀锌,热镀锌、粉沫静电喷涂等工艺。
电缆桥架的安装主要有沿顶板安装。
沿墙水平和垂直安装、沿竖井安装、沿地面安装。
沿电缆沟及管道支架安装等。
安装所用支(吊)架可选用成品或自制。
支(吊)架的固定方式主要有预埋铁件上焊接,膨胀螺栓固定等。
桥架安装应符合以下规定:1。
直线段钢制电缆桥架长度超过30m,铝合金或玻钢制桥架长度超过15m时,设有伸缩节;电缆桥架跨越建筑变形缝处设置补偿装置。
2.电缆桥架应在下列地方设置吊架或支架:2。
1 桥架接头两端0。
5m处;2。
2 每间距1。
5~3m处;2.3 转弯处;2.4 垂直桥架每隔1.5米处。
3. 吊架和支架安装保持垂直、整齐、牢固、无歪斜现象.4. 桥架连接板螺栓固定紧固无遗漏,螺母位于桥架外侧.5。
缆桥架应敷设在易燃易爆气体管道和热力管道的下方。
6。
金属桥架及其支架全长应不少于2处接地或接零.7。
金属桥架间连接片两端不少于2个有防松螺帽或防松垫圈的连接固定螺栓,并且连接片两端跨接不小于4mm2的铜芯接地线。
8. 桥架安装应符合下列要求:8.1 桥架左右偏差不大于50mm;8。
2 桥架水平度每米偏差不应大于2mm;8.3 桥架垂直度偏差不应大于3mm建筑电气工程中的电缆桥架均为钢制产品,较少采用在工业工程中为了防腐蚀而使用的非金属桥架或铝合金桥架.所以其接地或接零至为重要,目的是不了保证供电干线电路的使用安全,有的施工设计在桥架内底部,全线敷设一支铜或镀锌扁钢制成的保护地线(PE),且与桥架每段有数个电气连通点,则桥的接地或接零保护十分可靠,因而验收时可不做本条2、3款的检查9 电缆桥架敷设易燃易爆气体管道和热力管道的下方,当设计无要求时,与管道的最小净距,符合表12。
2.1—2的规定;电缆桥架型号表示方法桥架安装示意图电缆桥架托臂安装方法1、托臂在工字钢、角钢立柱上安装用M10*50螺栓连接固定。
线槽及桥架安装
支架安装:安装时,先用M12 膨胀螺栓固定底座(底座若与钢结构构件连接,可采用焊接,焊接后涂化),然后用M12×30 连接螺栓固定立柱,最后选好配套托臂用六角螺栓连接固定。
安装的支架吊架应牢固且横平竖直,其沿桥架走向左右偏差不应大于10mm。
桥架安装:安装时应注意横平、竖直、固定牢靠、排列整齐、进出线的开孔应采用机械开孔器,不得用电气焊开孔;进出管应采用丝接,连接件要齐全,不得松脱;选用的三通弯头要符合所敷设电缆的弯曲半径,接口处应平整光滑。
桥架接地:桥架全长应有可靠接地,在每段桥架与桥架接头处用软铜片可靠连接。
线槽安装:线槽应敷设在干燥和不易受机械损伤的场所。
线槽连接应连续,每节线槽的固定点不应少于两个,在转角、分支处和端部均应有固定点。
线槽接口应平直,槽盖应齐全、平整、无翘角。
固定或连接线槽的螺钉或其他紧固部件,紧固后其端部应与线槽内表面光滑相接,出线口应位置正确、光滑、无毛刺。
线槽敷设应平直整齐,水平或垂直允许偏差应为其长度的2‰,且全长允许偏差为20mm,并列安装时,槽盖应便于开启。
桥架支吊架制作安装图例(2019)安装分公司深圳经理部编制说明1.电缆桥架支架应根据图纸要求及现场情况制作;安装时应拉通线控制水平及垂直度;2.电缆桥架水平安装的支架间距为1.5~2m;垂直安装的支架间距不大于2m;在水平长度超过20米或在转弯、转角处应设固定支架;3.采用顶爆螺丝工艺安装时,钻头选择应与顶爆螺丝匹配,然后在通丝螺杆上带双螺母锁定,采用扳手与顶爆螺丝连接牢固;4.非镀锌电缆桥架间连接板的两端跨接铜芯接地线,接地线最小截面积不小于4mm2,采用焊锡铜接线端子连接,连接处应进行除漆处理;Φ8×30mm顶爆螺丝Φ8通丝螺杆L30×3角钢楼 板桥 架50×50~200×50Φ8×25mm六角螺丝50×50~200×100桥架水平支架制作图楼 板Φ8×50mm膨胀螺丝L30×3角钢桥 架Φ8×25mm六角螺丝50×50~200×100桥架水平固定支架制作图(正视)楼 板L30×3角钢Φ8×50mm膨胀螺丝L30×3角钢桥 架Φ8×25mm六角螺丝50×50~200×100桥架水平固定支架制作图(侧视)Φ10×40mm顶爆螺丝Φ10通丝螺杆L40×4角钢楼 板桥 架300×100~400×150300×100~400×150桥架水平支架制作图Φ8×25mm六角螺丝楼 板Φ10×65mm膨胀螺丝L40×4角钢桥 架Φ8×25mm六角螺丝300×100~400×150桥架水平固定支架制作图(正视)楼 板L40×4角钢Φ10×65mm膨胀螺丝L40×4角钢桥 架Φ8×25mm六角螺丝300×100~400×150桥架水平固定支架制作图(侧视)Φ12×50mm顶爆螺丝Φ12通丝螺杆L50×5角钢楼 板桥 架500×100~600×150500×100~600×150桥架水平支架制作图Φ8×30mm六角螺丝楼 板Φ12×70mm膨胀螺丝L50×5角钢桥 架Φ8×30mm六角螺丝500×100~600×150桥架水平固定支架制作图(正视)楼 板L50×5角钢Φ12×70mm膨胀螺丝L50×5角钢桥 架Φ8×30mm六角螺丝500×100~600×150桥架水平固定支架制作图(侧视)Φ12×70mm膨胀螺拴6.3#槽钢6.3#槽钢楼 板桥 架800×150~1000×150150×150×8mm钢板Φ8×30mm六角螺丝800×150~1000×150桥架水平支架制作图(正视)楼 板桥 架Φ12×70mm膨胀螺拴150×150×8mm钢板6.3#槽钢6.3#槽钢Φ8×30mm六角螺丝800×150~1000×150桥架水平支架制作图(侧视)墙 体50×50~200×100桥架垂直安装支架制作图(俯视)Φ8×50mm膨胀螺丝L30×3角钢L30×3角钢Φ8×25mm六角螺丝50×50~200×100桥架垂直安装支架制作图(侧视)墙 体300×100~400×150桥架垂直安装支架制作图(俯视)Φ10×65mm膨胀螺丝L40×4角钢L40×4角钢Φ8×30mm六角螺丝300×100~400×150桥架垂直安装支架制作图(侧视)墙 体500×150~600×150桥架垂直安装支架制作图(俯视)Φ12×70mm膨胀螺丝L50×5角钢L50×5角钢Φ10×30mm六角螺丝500×150~600×150桥架垂直安装支架制作图(侧视)墙 体800×150~1000×150桥架垂直安装支架制作图(俯视)Φ12×70mm膨胀螺丝L60×6角钢L60×6角钢Φ10×30mm六角螺丝800×150~1000×150桥架垂直安装支架制作图(侧视)Φ10×40mm~Φ12×50mm顶爆螺丝Φ10~Φ12通丝螺杆L30×3~L40×4角钢楼 板桥 架200×100~300×150双层桥架(宽度相加小于600mm)水平支架制作图Φ8×25mm六角螺丝桥 架200×100~300×150楼 板Φ10×65mm~Φ12×70膨胀螺丝桥 架L30×3~L40×4角钢桥 架Φ8×25mm六角螺丝双层桥架(宽度相加小于600mm)水平固定支架正视图楼 板桥 架Φ8×25mm六角螺丝桥 架双层桥架(宽度相加小于600mm)水平固定支架制作侧视图Φ10×65mm~Φ12×70膨胀螺丝L30×3~L40×4角钢L30×3~L40×4角钢楼 板Φ12×70膨胀螺丝桥 架L50×5角钢桥 架Φ8×30mm六角螺丝双层桥架(宽度相加700~1000mm)水平固定支架图楼 板Φ12×70膨胀螺丝桥 架L60×6角钢桥 架Φ8×30mm六角螺丝双层桥架(宽度相加1100~1400mm)水平固定支架图。
安装示意图安装要求示意图线槽内电缆填充率多层电缆桥架铺设时层间距一般要求金属线槽规格线槽需配用连接螺栓、盖板及扣锁线槽高度125mm及以下时连接片为6个螺栓孔;线槽高度过150mm及以上时连接片为12个螺栓孔。
电缆桥架托臂安装方法托臂在工字钢、角钢立柱上安装用M10*50螺栓连接固定。
托臂长度B由设计确定。
电缆桥架落地安装方法支架要进行防腐处理。
电缆桥架延墙安装方法线槽固定点间距,线槽宽100mm以下式为1500mm,线槽宽150mm以上时由工程设计确定。
线槽延楼板或延墙铺设,线槽宽150mm以上时,应采用双螺栓固定。
电缆桥架吊装方法托臂上度B由设计确定电缆桥架垂直安装方法电缆桥架延竖井安装方法金属线槽垂直安装时电缆(线)固定支架安装方法电缆桥架与配电盘连接方法配电盘开口处要用橡胶条护口电缆桥架配件安装方法:镀锌电缆桥架用连接片接地,不可用跨接地线电缆桥架穿楼板、穿墙防火安装方法施工前将要封堵部位清理干净钢丝网应刷防火涂料防火枕应按顺序依次摆放整齐,防火枕与电缆之间空隙不大于1平方厘米防火枕摆放厚度不小于24cm防火枕规格为三种:I型——320X120X25II型——160X120X25III型——160X75X25组合式电缆托盘组装示意图电缆托盘规格有盖电缆桥架(槽宽50 - 200mm)无盖电缆桥架(槽宽50 - 250mm)有盖电缆桥架(槽宽250 - 1000mm)无盖电缆桥架(槽宽300 - 1000mm)宽度钢板厚度高度宽度钢板厚度高度有盖无盖有盖无盖50 1.0 50 12 400 1.5 100 20100 1.0 50 12 500 1.5 150 20 150 1.0 75 12 600 2.0 150 20 200 1.0 75 12 700 2.0 150 20 250 1.5 100 12 800 2.0 150 20 300 1.5 100 20 1000 2.0 150 20 安装说明:电缆托盘长度为2.44m,托盘开有孔洞,并采用热度锌处理。
电缆桥架支架安装与图例电缆桥架系指电缆梯架、电缆托盘及金属线槽。
电缆桥架主要有钢制、铝合金制及玻璃钢制等。
钢制桥架表面处理分为喷漆、喷塑、电镀锌,热镀锌、粉沫静电喷涂等工艺。
电缆桥架的安装主要有沿顶板安装。
沿墙水平和垂直安装、沿竖井安装、沿地面安装。
沿电缆沟及管道支架安装等。
安装所用支(吊)架可选用成品或自制。
支(吊)架的固定方式主要有预埋铁件上焊接,膨胀螺栓固定等。
桥架安装应符合以下规定:1.直线段钢制电缆桥架长度超过 30m,铝合金或玻钢制桥架长度超过15m 时,设有伸缩节; 电缆桥架跨越建筑变形缝处设置补偿装置.2.电缆桥架应在下列地方设置吊架或支架:2.1桥架接头两端 0.5m 处;2.2 每间距 1.5~3m 处;2.3转弯处;2.4垂直桥架每隔 1.5 米处.3.吊架和支架安装保持垂直、整齐、牢固、无歪斜现象。
4.桥架连接板螺栓固定紧固无遗漏,螺母位于桥架外侧。
5.缆桥架应敷设在易燃易爆气体管道和热力管道的下方。
6.金属桥架及其支架全长应不少于 2 处接地或接零。
7.金属桥架间连接片两端不少于 2 个有防松螺帽或防松垫圈的连接固定螺栓,并且连接片两端跨接不小于 4mm2 的铜芯接地线。
8.桥架安装应符合下列要求:8.1桥架左右偏差不大于 50mm;8.2桥架水平度每米偏差不应大于 2mm;8.3桥架垂直度偏差不应大于 3mm建筑电气工程中的电缆桥架均为钢制产品,较少采用在工业工程中为了防腐蚀而使用的非金属桥架或铝合金桥架。
所以其接地或接零至为重要,目的是不了保证供电干线电路的使用安全,有的施工设计在桥架内底部,全线敷设一支铜或镀锌扁钢制成的保护地线(PE),且与桥架每段有数个电气连通点,则桥的接地或接零保护十分可靠,因而验收时可不做本条 2、3 款的检查9 电缆桥架敷设易燃易爆气体管道和热力管道的下方,当设计无要求时,与管道的最小净距,符合表 12.2.1-2 的规定;电缆桥架型号表示方法桥架安装示意图电缆桥架托臂安装方法1、托臂在工字钢、角钢立柱上安装用 M10*50 螺栓连接固定。
电缆桥架安装图集
电缆桥架是一种用于电缆敷设的支架结构,主要分为槽式、托盘式和梯架式等不同结构。
其组成部分包括支架、托臂和安装附件等。
在选型时,需要注意所有零部件是否符合系列化、通用化、标准化的成套要求。
为了确保电缆桥架的安装质量,需要参考相关的安装要求示意图和多层电缆桥架安装间距及金属线槽内电缆填充率电缆梯架组装示意图。
如需了解更多桥架知识。
除了以上内容,还有一些与电缆桥架相关的具体规格和安装方法。
例如,电缆梯架的规格和引线装置示意、电缆桥架托臂的安装方法、电缆桥架的吊装方法和落地安装方法、金属线槽连接及引线方法、金属线槽穿防火墙安装方法、金属线槽过梁安装方法、电缆桥架与配电盘连接方法、金属桥架与配电盘连接方法、金属线槽垂直安装时电缆(线)固定支架安装方法、电缆桥架穿楼板、穿墙防火安装方法、金属线槽盖板安装方法以及电缆在线槽内敷设及线槽跨接地等。
最后,吊装金属线槽组装示意图也是与电缆桥架相关的重要内容之一。
以上这些内容都需要注意格式和清晰度,以便更好地理解和应用。
电缆桥架分为槽式、托盘式和梯架式等结构,由支架、托臂和安装附件等组成。
选型时应注意桥架的所有零部件是否符合系列化、通用化、标准化的成套要求。
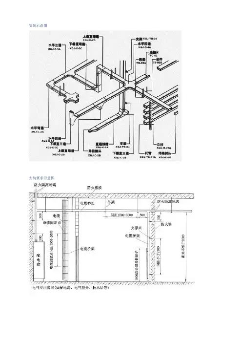
电缆桥架安装要求示意图
多层电缆桥架安装间距及金属线槽内电缆填充率电缆梯架组装示意图
更多桥架知识:
电缆梯架规格
电缆梯架引线装置示意
电缆桥架托臂安装方法电缆桥架吊装方法1
电缆桥架吊装方法2电缆桥架吊装方法3
电缆桥架落地安装方法电缆桥架壁装方法1
电缆桥架壁装方法2电缆桥架垂直方法1
电缆桥架垂直方法2
金属线槽连接及引线方法金属线槽穿防火墙安装方法金属线槽过梁安装方法
电缆桥架与配电盘连接方法金属桥架与配电盘连接方法
金属线槽垂直安装时电缆(线)固定支架安装方法
电缆桥架穿楼板、穿墙防火安装方法金属线槽盖板安装方法
电缆在线槽内敷设及线槽跨接地
吊装金属线槽组装示意图┅┅┅┅┅END ┅┅┅┅┅。
电缆桥架安装及支吊架制作图电缆桥架的安装主要有吊顶安装、沿墙水平和垂直安装、沿竖井安装、沿地面安装、沿电缆沟及管道支架安装等。
安装所用支(吊)架可选用成品或自制。
支(吊)架的固定方式主要有预埋铁件上焊接,膨胀螺栓固定等。
一.金属线槽布线1.金属线槽布线一适用于正常环境的室内干燥和不易受机械损伤的场所明敷,但不应采用对金属线槽有严重腐蚀的场所。
2.同一回路的所有相线和中性线,要敷设在同一金属线槽内。
同一路径无防干扰要求的线路,可敷设于同一金属线槽内,线槽内电线或电缆的总截面(包括外护层)不应超过线槽内截面的20%,载流导线不宜超过30根。
控制、信号或其他相类似的线路,电线或电缆的总截向下应超过线槽内截面的50%。
3.金属线槽倾斜或垂直安装时,应采取措施防止电线或电缆在线槽内移动。
4.由金属线槽引出的线路,可采用金属管,硬质塑料管、半硬塑料管、金属软管等布线方式。
电线或电缆在引出部分不得有损伤。
5.线糟要平整、无扭曲或变形,内壁光滑无毛刺。
6.金属线槽应要接地或接零,但不应作为设备的接地导体来使用。
二、电缆桥架布线1.在室内采用电缆桥架布线时,其电缆不应有易延燃材料外护层。
2.在有腐蚀或特别潮湿的场所采用电缆桥架布线时,应根据腐蚀介质的不同采取相应的防护措施。
3.电缆桥架(托盘)水平安装时的距地高度一般要高于于2.50m,垂直安装时距地2m以下部分应加金属盖板保护,但敷设在电气专用房间(如配电室,电气竖井、技术层等)内时除外。
4.电缆桥架水平安装时,宜按荷载曲线选取最佳跨距进行支撑,跨距一般为1.5~3m。
垂直敷设时,其固定点间距不宜大于2m。
5.几组电缆桥架在同一高度平行安装时,各相邻电缆桥架间应考虑干扰、维护、检修距离。
6.在电缆桥架上可以无间距敷设电缆,电缆在桥架内横断面的填充率:控制电缆不应大于50%,电力电缆不应大于40%。
7.下列不同电压,不同用途的电缆,不宜敷设在同一层桥架上:1)1kV以下和lkV以上的电缆。
电缆桥架分为槽式、托盘式和梯架式等结构,由支架、托臂和安装附件等组成。
选型时应注意桥架的所有零部件是否符合系列化、通用化、标准化的成套要求。
电缆桥架安装要求示意图
多层电缆桥架安装间距及金属线槽内电缆填充率
电缆梯架组装示意图
电缆梯架规格
电缆梯架引线装置示意图
电缆桥架托臂安装方法
电缆桥架吊装方法1
电缆桥架吊装方法2
电缆桥架吊装方法3
电缆桥架落地安装方法
电缆桥架壁装方法1
电缆桥架壁装方法2
电缆桥架垂直方法1
电缆桥架垂直方法2
金属线槽连接及引线方法
金属线槽穿防火墙安装方法
金属线槽过梁安装方法
电缆桥架与配电盘连接方法
金属桥架与配电盘连接方法
金属线槽垂直安装时电缆(线)固定支架安装方法
电缆桥架穿楼板、穿墙防火安装方法
金属线槽盖板安装方法
电缆在线槽内敷设及线槽跨接地
吊装金属线槽组装示意图。
铝合金电缆桥架垂直出口铝合金电缆桥架垂直出口2 铝合金电缆桥架高低通
电缆桥架入配电柜电缆桥架入配电柜2 桥架盖板锁扣固定方式
铝合金桥架内电缆固定方式铝合金桥架内电缆固定方
式
梯架内电缆固定
重型设备.铝合金桥架1 重型设备.铝合金桥架2 重型设备.铝合金桥架3
重型设备.铝合金桥架4 重型设备.铝合金桥架5 重型设备.铝合金桥架6
港口.铝合金电缆桥架工程港口.铝合金电缆桥架工程港口.铝合金电缆桥架工程
食品加工厂.电缆桥架食品加工厂.电缆桥架食品加工厂.电缆桥架
工业厂房.铝合金电缆桥架食品加工厂.电缆桥架食品加工厂.铝合金电缆桥
架
工业厂房.铝合金电缆桥架工业厂房.铝合金电缆桥架隧道内.铝合金桥架。
电缆桥架分为槽式、托盘式和梯架式等结构,由支架、托臂和安装附件等组成。
选型时应注意桥架的所有零部件是否符合系列化、通用化、标准化的成套要求。
电缆桥架安装要求示意图
多层电缆桥架安装间距及金属线槽内电缆填充率
电缆梯架组装示意图
电缆梯架规格
电缆梯架引线装置示意图
电缆桥架托臂安装方法
电缆桥架吊装方法1
电缆桥架吊装方法2
电缆桥架吊装方法3
电缆桥架落地安装方法
电缆桥架壁装方法1
电缆桥架壁装方法2
电缆桥架垂直方法1
电缆桥架垂直方法2
金属线槽连接及引线方法
金属线槽穿防火墙安装方法
金属线槽过梁安装方法
电缆桥架与配电盘连接方法
金属桥架与配电盘连接方法
金属线槽垂直安装时电缆(线)固定支架安装方法
电缆桥架穿楼板、穿墙防火安装方法
金属线槽盖板安装方法
电缆在线槽内敷设及线槽跨接地
吊装金属线槽组装示意图。
桥架支吊架制作安装图例(2008)编制说明1.电缆桥架支架应根据图纸要求及现场情况制作;安装时应拉通线控制水平及垂直度;2.电缆桥架水平安装的支架间距为 1.5 ~2m;垂直安装的支架间距不大于 2m;在水平长度超过 20 米或在转弯、转角处应设固定支架;3.采用顶爆螺丝工艺安装时,钻头选择应与顶爆螺丝匹配,然后在通丝螺杆上带双螺母锁定,采用扳手与顶爆螺丝连接牢固;4. 非镀锌电缆桥架间连接板的两端跨接铜芯接地线,接地线最小截面积不小于2采用4mm,焊锡铜接线端子连接,连接处应进行除漆处理;楼板Φ 8× 30mm顶爆螺丝Φ 8通丝螺杆L30×3角钢桥架50×50~200×50Φ 8× 25mm六角螺丝50×50~200×100桥架水平支架制作图楼板Φ8× 50mm膨胀螺丝L30×3角钢桥架Φ8× 25mm六角螺丝50×50~200×100桥架水平固定支架制作图( 正视)楼板L30×3角钢Φ 8× 50mm膨胀螺丝L30×3角钢桥架Φ 8× 25mm六角螺丝50×50~200×100桥架水平固定支架制作图( 侧视)楼板桥架300×100~400×150Φ10× 40mm顶爆螺丝Φ10通丝螺杆L40×4角钢Φ 8× 25mm六角螺丝300×100~400×150桥架水平支架制作图楼板Φ 10× 65mm膨胀螺丝L40×4角钢桥架Φ 8× 25mm六角螺丝300×100~400×150桥架水平固定支架制作图( 正视)楼板L40×4角钢Φ10× 65mm膨胀螺丝L40×4角钢桥架Φ8× 25mm六角螺丝300×100~400×150桥架水平固定支架制作图( 侧视)楼板Φ12×50mm顶爆螺丝Φ12通丝螺杆桥架500×100~600×150L50×5角钢Φ 8× 30mm六角螺丝500×100~600×150桥架水平支架制作图楼板Φ 12× 70mm膨胀螺丝L50×5角钢桥架Φ 8× 30mm六角螺丝500×100~600×150桥架水平固定支架制作图( 正视)楼板L50×5角钢Φ 12× 70mm膨胀螺丝L50×5角钢桥架Φ 8× 30mm六角螺丝500×100~600×150桥架水平固定支架制作图( 侧视)楼板150×150×8mm钢板Φ12× 70mm膨胀螺拴6.3# 槽钢桥架800×150~1000×1506.3# 槽钢Φ8× 30mm六角螺丝800×150~1000×150桥架水平支架制作图 ( 正视)楼板150×150×8mm钢板Φ12×70mm膨胀螺拴6.3# 槽钢桥架Φ 8× 30mm六角螺丝 6.3# 槽钢800×150~1000×150桥架水平支架制作图 ( 侧视)墙体L30×3角钢Φ 8× 50mm膨胀螺丝L30×3角钢Φ 8× 25mm六角螺丝50×50~200×100桥架垂直安装支架制作图(俯视)墙体.桥架Φ8× 50mm膨胀螺丝L30×3角钢Φ8× 25mm六角螺丝50×50~200×100桥架垂直安装支架制作图(侧视).墙体L40×4角钢Φ10× 65mm膨胀螺丝L40×4角钢Φ8× 30mm六角螺丝300×100~400×150桥架垂直安装支架制作图(俯视)墙体.桥架Φ10× 65mm膨胀螺丝L40×4角钢Φ8× 30mm六角螺丝300×100~400×150桥架垂直安装支架制作图(侧视).墙体L50×5角钢Φ12×70mm膨胀螺丝L50×5角钢Φ10×30mm六角螺丝500×150~600×150桥架垂直安装支架制作图(俯视).墙体桥架Φ12× 70mm膨胀螺丝L50×5角钢Φ10× 30mm六角螺丝500×150~600×150桥架垂直安装支架制作图(侧视).墙体L60×6角钢Φ12× 70mm膨胀螺丝L60×6角钢Φ10× 30mm六角螺丝800×150~1000×150桥架垂直安装支架制作图(俯视)墙体.桥架Φ12× 70mm膨胀螺丝L60×6角钢Φ10× 30mm六角螺丝800×150~1000×150桥架垂直安装支架制作图(侧视)楼板桥架200×100~300×150桥架200×100~300×150.Φ10× 40mm~Φ12× 50mm顶爆螺丝Φ10~Φ12通丝螺杆L30×3~L40×4角钢Φ8× 25mm六角螺丝双层桥架(宽度相加小于600mm)水平支架制作图楼板Φ 10× 65mm~Φ 12× 70膨胀螺丝桥架L30×3~L40×4角钢桥架Φ 8× 25mm六角螺丝双层桥架(宽度相加小于600mm)水平固定支架正视图楼板L30×3~L40×4角钢Φ10×65mm~Φ12×70膨胀螺丝L30×3~L40×4角钢桥架桥架Φ8×25mm六角螺丝双层桥架(宽度相加小于600mm)水平固定支架制作侧视图楼板Φ 12× 70膨胀螺丝桥架L50×5角钢桥架Φ 8× 30mm六角螺丝双层桥架(宽度相加 700~1000mm)水平固定支架图楼板Φ 12× 70膨胀螺丝桥架L60×6角钢桥架Φ8× 30mm六角螺丝双层桥架(宽度相加 1100~1400mm)水平固定支架图单纯的课本内容,并不能满足学生的需要,通过补充,达到内容的完善教育之通病是教用脑的人不用手,不教用手的人用脑,所以一无所能。
电缆桥架支架安装方法(图)
电缆桥架系指电缆梯架、电缆托盘及金属线槽。
电缆桥架主要有钢制、铝合金制及玻璃钢制等。
钢制桥架表面处理分为喷漆、喷塑、电镀锌,热镀锌、粉沫静电喷涂等工艺。
电缆桥架的安装主要有沿顶板安装。
沿墙水平和垂直安装、沿竖井安装、沿地面安装。
沿电缆沟及管道支架安装等。
安装所用支(吊)架可选用成品或自制。
支(吊)架的固定方式主要有预埋铁件上焊接,膨胀螺栓固定等。
桥架安装应符合以下规定:
1. 直线段钢制电缆桥架长度超过30m,铝合金或玻钢制桥架长度超过15m时,设有伸缩节;电缆桥架跨越建筑变形缝处设置补偿装置.
2.电缆桥架应在下列地方设置吊架或支架:
2.1 桥架接头两端0.5m处;
2.2 每间距1.5~3m处;
2.3 转弯处;
2.4 垂直桥架每隔1.5米处.
3. 吊架和支架安装保持垂直、整齐、牢固、无歪斜现象。
4. 桥架连接板螺栓固定紧固无遗漏,螺母位于桥架外侧。
5. 缆桥架应敷设在易燃易爆气体管道和热力管道的下方。
6. 金属桥架及其支架全长应不少于2处接地或接零。
7. 金属桥架间连接片两端不少于2个有防松螺帽或防松垫圈的连接固定螺栓,并且连接片两端跨接不小于4mm2的铜芯接地线。
8. 桥架安装应符合下列要求:
8.1 桥架左右偏差不大于50mm;
8.2 桥架水平度每米偏差不应大于2mm;
8.3 桥架垂直度偏差不应大于3mm
建筑电气工程中的电缆桥架均为钢制产品,较少采用在工业工程中为了防腐蚀而使用的非金属桥架或铝合金桥架。
所以其接地或接零至为重要,目的是不了保证供电干线电路的使用安全,有的施工设计在桥架内底部,全线敷设一支铜或镀锌扁钢制成的保护地线(PE),且与桥架每段有数个电气连通点,则桥的接地或接零保护十分可靠,因而验收时可不做本条2、3款的检查
9 电缆桥架敷设易燃易爆气体管道和热力管道的下方,当设计无要求时,与管道的最小净距,符合表12.2.1-2的规定;
电缆桥架型号表示方法桥架安装示意图
电缆桥架托臂安装方法
1、托臂在工字钢、角钢立柱上安装用M10*50螺栓连接固定。
2、托臂长度B由设计确定。
电缆桥架落地安装方法
支架要进行防腐处理
电缆桥架延墙安装方法
1、线槽固定点间距,线槽宽100mm以下式为1500mm,线槽宽150mm以上时由工
程设计确定。
2、线槽延楼板或延墙铺设,线槽宽150mm以上时,应采用双螺栓固定。
电缆桥架吊装方法
托臂上度B由设计确定
电缆桥架延竖井安装方法
电缆桥架与配电盘连接方法配电盘开口处要用橡胶条护口。