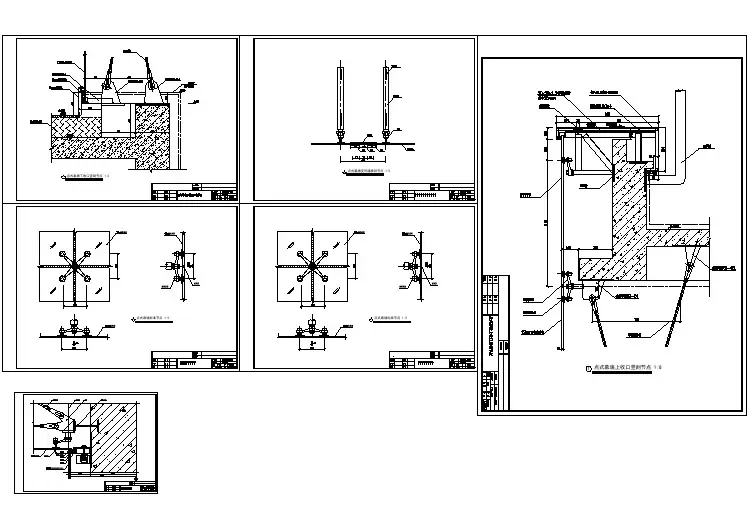
GB5781六角头螺栓 M6×50高强度自攻钉 ST9.5×20GB 845-85GB5781六角头螺栓 M6×5050×50×5钢角码不锈钢弹簧垫圈 10 GB 93-87不锈钢六角螺母 M10 GB 41-86不锈钢六角头螺栓 M10×90 GB 5780-86不锈钢平垫圈 10 GB 95-85胶皮垫竖向扣板氟碳喷涂明框玻璃幕墙横向装饰竖剖节点横向扣板氟碳喷涂喷涂立柱压 板密封胶条喷涂横梁不锈钢平垫圈 6 GB 95-85不锈钢六角头螺栓 M6×20 GB 5780-86不锈钢弹簧垫圈 6 GB 93-87喷涂单铝板中空玻璃(6+9A+6)120×60×480×60×3横 梁射钉预埋板不锈钢六角头螺栓 M12X110 GB 5780-86方垫片 (30X30 厚4)不锈钢平垫片 12 GB 95-85不锈钢弹簧垫片 12 GB 93-87不锈钢六角螺母 M12 GB 41-86立 柱明框玻璃幕墙侧封边节点岩棉角 钢60×80×8中空玻璃(6+9A+6)明框玻璃幕墙阴角节点高强度自攻钉ST9.5×20GB 5285-85GB5781六角头螺栓 M6×50明框玻璃幕墙阳角节点六角头螺栓 M6×50GB5781六角头螺栓 M6×50GB5781GB5781六角头螺栓 M6×50GB5781六角头螺栓 M6×50GB5781六角头螺栓 M6×50密封胶条胶皮垫中空玻璃(6+9A+6)立 柱横 梁钢插芯2mm厚橡胶垫明框玻璃幕墙横剖典型节点压 板氟碳喷涂氟碳喷涂竖向扣板横向扣板硅酮耐候密封胶120×60×480×60×4σ=2.5喷涂单铝板中空玻璃(6+9A+5)立 柱横 梁硅酮耐候密封胶120×60×480×60×3120×60×4喷涂横梁横 梁80×60×3120×60×4120×60×4σ=2.56×12氟碳喷涂竖向扣板GB 845-85高强度自攻钉 ST9.5×20GB5781六角头螺栓 M6×50硅酮耐候密封胶密封胶条密封胶条GB 5285-85高强度自攻钉ST9.5×20铝合金喷涂立柱120×60×380×60×3120×60×3竖向扣板氟碳喷涂铝合金喷涂立柱铝合金喷涂横梁中空玻璃(6+9A+6)氟碳喷涂竖向扣板50×50×5钢角码50×50×5钢角码喷涂单铝板80×60×380×60×3不锈钢六角头螺栓 M10×90 GB 5780-86不锈钢平垫圈 10 GB 95-85不锈钢弹簧垫圈10 GB 93-87不锈钢六角螺母 M10 GB 41-86横 梁立 柱2-2剖面图1-1剖面图立 柱31.8×31.8×3铝角码横 梁1212横 梁立 柱明框玻璃幕墙横梁与立柱组装节点喷涂立柱横向扣板硅酮耐候密封胶密封胶条压 板氟碳喷涂明框玻璃幕墙上封顶节点不锈钢平垫片 12 GB 95-85不锈钢六角头螺栓 M12X45 GB 5780-86不锈钢弹簧垫片 12 GB 93-87不锈钢六角螺母 M12 GB 41-86方垫片 (30X30 厚4)方垫片 (30X30 厚4)不锈钢六角螺母 M112 GB 95-85不锈钢六角头螺栓 M12X110 GB 5780-86接缝处垫板4mm铝塑板压 板密封胶条方垫片 (30X30 厚4)不锈钢六角头螺栓 M12X110 GB 5780-86不锈钢平垫片 12 GB 95-85不锈钢弹簧垫片 12 GB 93-87不锈钢六角螺母 M12 GB 41-86明框玻璃幕墙下封边节点射钉钢插芯2mm厚橡胶垫硅酮耐候密封胶横 梁立 柱压 板氟碳喷涂竖向扣板硅酮耐候密封胶明框玻璃幕墙横剖典型节点中空玻璃(6+9A+6)立 柱横 梁密封胶条GB 845-85GB5285-85开启扇固定框高强度自攻钉 M6×50高强度自攻钉 ST9.5×20执 手不锈钢六角头螺栓 M10×90 GB 5780-86开启扇活动框双面垫条压 板横向扣板氟碳喷涂胶皮垫不锈钢平垫圈 10 GB 95-85不锈钢六角螺母 M10 GB 41-86不锈钢弹簧垫圈 10 GB 93-87明框玻璃幕墙开启扇竖剖典型节点硅酮耐候密封胶竖向扣板氟碳喷涂氟碳喷涂横向扣板硅酮耐候密封胶横向扣板压 板密封胶条氟碳喷涂竖向扣板氟碳喷涂喷涂横梁喷涂立柱不锈钢六角头螺栓 M10×90 GB 5780-86不锈钢平垫圈 10 GB 95-85不锈钢弹簧垫圈 10 GB 93-87不锈钢六角螺母 M10 GB 41-86胶皮垫明框玻璃幕墙竖剖典型节点插 芯不锈钢六角头螺栓 M12X45 GB 5780-86不锈钢弹簧垫片 12 GB 93-87不锈钢六角螺母 M12 GB 41-86方垫片 (30X30 厚4)立 柱不锈钢平垫片 12 GB 95-85B--B剖面明框玻璃幕墙立柱与主体连接节点ABBA夹持角钢200×300×8 预埋钢板 主体结构插 芯立 柱A--A剖面80×80×6不锈钢六角螺母 M12 GB 41-86不锈钢弹簧垫片 12 GB 93-87不锈钢平垫片 12 GB 95-85不锈钢六角头螺栓 M12X110 GB 5780-86方垫片 (30X30 厚4)转接角钢80×80×62mm厚绝缘垫30×20×3mmU铝合金槽铝喷涂钢方管120×60×4mm立柱伸缩缝1M5×16避雷铜螺钉A向视图4mm×40mm避雷连接钢筋建筑物均压环甩出钢带避雷钢带δ2mmM5×16铝板膨胀节避雷铜螺钉1--1剖面明框玻璃幕墙防雷节点1A4mm×40mm避雷铜螺钉避雷钢带M6×90技术说明:三角形焊接,焊接长度不小于100mm.1.避雷连接板、避雷钢筋表面热镀锌处理。横梁每隔二层用铝片膨胀节进行连接,形成避雷网络后,再与主体避雷相连。3.避雷连接板与避雷钢筋、避雷钢筋与建筑物均压环的焊接,全部采用2.避雷连接板安装前,要将连接处喷涂层去掉。4.幕墙避雷网络,每樘两侧边立柱的伸缩缝要做膨胀节连接,动力建筑艺工通暖构水给结排气图电总名称工程项目负责人专业负责人校 对设 计 台所 长邢研审 核筑市建设计究院日 期图 号工程编号图 别注册章师2004.6建 施2004043-5(新西街储运公司地段旧城改造项目)#亿德隆购物休闲广场二期工程5 楼明框玻璃幕墙开启扇横剖典型节点中空玻璃(6+9A+5)80×60×3横 梁胶皮垫硅酮结构密封胶密封胶条竖向扣板氟碳喷涂6×12双面垫条横向扣板氟碳喷涂不锈钢铰链六角头螺栓 M6×50GB578180×60×4立 柱GB 845-85不锈钢盘头自攻钉 ST4.8×32开启扇固定框开启扇活动框硅酮耐候密封胶压 板2mm厚橡胶垫5652301518843015754376875475411305716075377543391188415074111575.51096150720345137036514391507411120411150710964111365545912041114509,532878120110815074111109641119592878479695954816203652014961205459365411202041111507109615074111411180203652034541114110,84575.5120545920411143936510961507150741114111120287811084805112880028785481203654111149634520工 程 目 录图 纸 内 容21序 号图别图号856734建施-JD-01建施-JD-02建施-JD-03建施-JD-04建施-JD-05建施-JD-06建施-JD-07建施-JD-08131011129建施-JD-13建施-JD-12建施-JD-11建施-JD-10建施-JD-0914建施-JD-14明框玻璃幕墙上封顶节点明框玻璃幕墙横剖典型节点明框玻璃幕墙立柱与主体连接节点明框玻璃幕墙防雷节点明框玻璃幕墙侧封边节点明框玻璃幕墙开启扇竖剖典型节点明框玻璃幕墙阳角节点明框玻璃幕墙横剖典型节点明框玻璃幕墙开启扇横剖典型节点明框玻璃幕墙阴角节点明框玻璃幕墙侧封边节点明框玻璃幕墙竖剖典型节点明框玻璃幕墙横向装饰竖剖节点明框玻璃幕墙下封边节点==网易 NETEASE 网易 建筑 中国建筑行业网络家园;因为专业,所以完美本图纸由浩辰ICAD软件提供技术支持编辑部:ivpinfo@