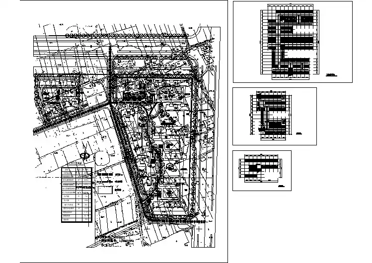
19114.7平方米居住区规划设计图纸(比较详细的)
- 格式:dwg
- 大小:739.31 KB
- 文档页数:1
居住区规划设计图纸汇总
居住区规划是在城市总体规划的基础上,根据计划任务和城市现状条件,进行城市中生活居住用地综合性设计工作。
它涉及使用、卫生、经济、安全、施工、美观等几方面的要求。
综合解决它们之间的矛盾,为居民创造一个适用、经济、美观的生活居住用地条件。
某住宅小区规划设计图纸
某居住区规划设计图纸
某居住小区规划设计图纸
某居住小区详细规划设计图纸
某居住小区规划设计图纸
某居住小区规划设计图纸
某居住区修建性详细规划设计图纸
某住宅小区规划设计图纸。