别墅户型说辞
- 格式:docx
- 大小:24.67 KB
- 文档页数:6
别墅样板房说辞现场样板房带看说辞要点(别墅)思路:现场样板房能让客户身临其境,最大限度激发客户购买欲望~从出售楼处出发就要开始现身说法:1. 带看路上要求介绍项目周边配套规划及建设进展情况;2. 进入小区,到达样板房之前,要求介绍设计理念,风水,景观植被,外立面;3. 进入样板房院子,需要介绍样板房设计特点,展示墙面材料,介绍地上及下沉式庭院;4. 进入样板房,介绍动线:先一楼,再地下室,再二楼。
带看路上:那边就是太湖文化论坛。
再往前就是太湖。
(指示给客户看)出门是烟波路,左拐就是香山南路。
(指示给客户看)从香山南路往北,前往我们6号地块现场,在售的一期项目,您看到香山南路是度假区南北向的主要交通要道。
这边就是超五星级酒店(舒丽舍酒店),(指示给客户看)它是太湖文化论坛指定的专属配套酒店,由全球百大设计师JAYA主持室内设计,建成后由知名酒店管理公司威培斯提供服务。
背面是13万方的度假区商贸中心,再往北进入度假区腹地,是度假区酒店管委会所在地,您现在看到的那幢楼就是管委会行政大楼(指示给客户看)。
再往北就是孙子兵法诞生地穹窿山了。
东面这边就是我们在建的一期。
走一期北面的承祖路,驱车往西不到五分钟就是太湖高尔夫球场大门。
与一期一路之隔规划建设一个5万方的市政生态公园。
一期别墅面朝太湖,背靠市政公园,远眺穹窿峰峦延绵,靠山面湖,风水绝佳。
第一排别墅临水而建,驳岸设计,不会因为围墙而阻碍前面的视野,又体现姑苏人家枕河风情。
进入小区:介绍小区整体设计风水---主出入口设计理念风格 ---车行动线---景观植被我们从南面入口进入小区,您看到我们一期规划是南低北高布局,整体布局上风上水。
公寓布置在西面和北面,阻挡了两个方向车辆穿行的噪声。
留最好的中间及东南沿河位置布置别墅。
沿岸南面是林荫大道和景观驳岸,河岸对面是掩映在树丛中的别墅建筑。
南面主入口设计非常宽敞,配合流水景观,引人入胜。
沿河别墅每户北面设地上双停车位。
户型说辞范文尊敬的客户:非常荣幸您能关注本楼盘的户型,我们将为您提供最具性价比的住宅选择。
以下是我们的户型说辞,为您详细介绍户型的设计理念和优势。
1. 套型简洁、功能实用:本楼盘的户型设计注重舒适度和实用性。
每个房型都精心打造,保证了室内空间的最大化利用,同时提供了充足的功能区域。
我们在设计过程中充分考虑了家庭成员的不同需求,确保了整个生活空间的便利性和效率。
2. 空间布局合理、流线设计完美:每个户型的空间布局都经过精心思考和调整,确保了每一平米的价值最大化。
同时,我们注重流线设计,让您的日常生活更加便捷和无缝链接。
采光和通风也是我们的考虑因素之一,保证了室内空间的明亮和舒适度。
3. 装修风格现代简约、品味独特:我们的户型装修风格走现代简约的路线,以简单、纯粹、自然的设计风格来打造室内空间。
同时,我们注重细节和品质,选用高品质的装修材料,以保证您的居住品质和健康水平。
4. 通风和采光效果出色:本楼盘的户型均为南北通透的设计,保证了每个房间的通风和采光效果。
无论是清晨的阳光还是傍晚的余晖,都可以自然地照进室内,让您在舒适的环境中享受生活。
5. 设备设施齐全、智能化管理:我们致力于为您提供最便利的居住体验,因此在每个户型中都配备了齐全的设备和设施。
无论是洗衣机、冰箱还是智能家居系统,您都可以放心使用。
智能化的管理系统还可以帮助您更好地管理生活,提高生活品质。
总之,我们的户型是精心设计和打造的,注重实用性和舒适度,同时追求现代简约的装修风格。
每一户型都经过精心的空间布局和流线设计,保证了整个室内空间的完美利用。
我们致力于为您提供一个舒适、宜居的家,让您在这里生活得心满意足。
盼望着您能来参观我们的示范房,亲眼感受这些户型的魅力。
期待与您一起共同打造一个美丽的家园!谢谢!楼盘销售团队。
正阳正中心样板房BN1说辞大双立BN1户型说辞(五房三厅四卫):您现在看到的这套户型是大双立别墅BN1户型,总建筑面积372平方米左右,其中地上面积372平方米(地下室136平方米左右)该户基本是北入口设计,车库及主入口均设置在北面。
下面我为您详细介绍下这套户型:首先我们可以看下这套户型的入户设计室非常大气的,外立面、底座基础部分运用了大量的石材、红褐色的防古面砖进行装饰,提升了它的大气度、英红彩瓦点缀了它的防古度。
一层说辞:我们可从北入口近二米宽的楼梯上来,上来后是一个露台,在露台处您可按您的喜好,放一些盆景来点缀一下,拱形的门廊突显出主人在设计方面的大气度。
可以看到旁边的下层式庭院,增加了使用面积。
入户门采用的是字母门设计,品牌选用了意大利进口品牌—卡门,在质量和材质相比东区都有了明显提升。
入户玄关采用挑空设计,十分气派大气,在右边我们也做了壁橱,既可以收纳小物品又方便主人随时更换外套,来了客人也方便挂放。
随着玄关继续往里走,正式进入一层空间,一层北面为餐厅与厨房,餐厅的面宽达5.7米,使用面积超过15个平方左右,足够容纳10人用餐,这也秉承了双立别墅的设计理念,统一大门大户大尺寸,圆桌,长桌在这路均可摆放的。
厨房被安排在北侧独立区域,面积也足够大约12平方米左右。
南面是一个客厅,通过台阶下沉式的设计,增强了室内的空间感,使得整个一层的布局错落有致5.7米的面宽,面积近26个平方左右,布艺沙发,水晶灯,在南面我们也设计了一扇很大的落地窗,显得整个一层都宽敞,明亮。
并且所有大双立的户型的门窗我们都提供两种不同的开启方式。
由于客厅采用的是下沉式的设计,因此挑空层高达到6.6米,就算装了中央空调,吊顶及铺设地暖之后,空间也不会觉得压抑。
地下室说辞:现在我们顺着楼梯去地下室看看楼梯本来设计在我们的房型西边,现在装修我们给它改到了东边靠墙的位置,不占用面积。
楼梯我们都是铺设了大理石,采用的是钢用花式栏杆。
别墅D户型说辞阐述核心思想:不挣扎的人生才称得上优雅总括您请看,这就是我为您推荐的面积为324平米的合院别墅户型,方位是上北下南左西右东。
共分为地下一层,地上三层,采用了北边下沉庭院,南边庭院设计。
是我们xx最为大气别致的一款户型。
可遇不可求。
地下一层,休闲娱乐区您看,就是地下一层,在这一层我们为您配备了多功能室、车库、储藏室、洗衣房、佣人房,您可以通过地下车道开车直接进入南边的地下车库。
车库的开间达到了7.5米。
可以并排停放两辆车。
停车非常方便,通过这边的楼梯,您可以直接进入健身娱乐区。
在这一区域内,我们为您设计了储藏室、洗衣房、佣人房。
最北边的就是开间为7.5米的娱乐室,我们为您做了4.2米的层高,整个空间非常大气,如果您喜欢喝红酒的话,这边可以做一个红酒窖,存放您喜爱的红酒,这边可以做一张台球桌。
闲暇时,约3-5朋友,喝红酒,打打台球,一起娱乐的时候,也增进了彼此的感情。
下沉庭院与娱乐室相连的就是下沉式庭院,您可以直接把它用玻璃封闭起来,做好天窗,避免灰尘,因为是北向庭院,可以种一些蕨类植物,像是铁线蕨、孔雀羊齿、凤尾蕨等,一年四季,映入眼帘的都是深深浅浅的绿,能给您带来完全不一样的心情。
这边可以摆一石桌,闲暇时,可以与好友对弈,偷得浮生半日闲。
或在夏日晚上,邀得明月,伴与清风,约3-5知己小酌。
这是很多中国人最终的生活理想,可遇而不可求。
地上庭院您看到的这个就是地上一层,这边是地上一层的入户门,也是我们刚刚跟您提到大3进规制的第三进,私家院墅的入户门。
进门后就是一个南向的庭院,采光非常好,您可以种植几颗金桂,古人多在庭院中种植桂树,寓意为美好。
《吕氏春秋》赞称:“物之美者,招摇之桂”。
意指世界上最美好的东西,是招摇山上的桂树。
说明桂花在古人的心目中,已成为美的化身。
自汉代至魏晋南北朝时期,桂花成为名贵的花卉与贡品。
西汉刘歆的《西京杂记》记载:“汉武帝初修上林苑,群臣所献奇花异木两千余种,其中有桂十株。
别墅样板房说辞边户集团企业公司编码:(LL3698-KKI1269-TM2483-LUI12689-ITT289-别墅样板间说辞(边户)XX先生/女士:您好!您现在看到的就是我们的景观示范区,这里的绿化和水景,都是和我们别墅的建筑风格相呼应,整体给人一种田园气息。
我们这边的小溪,也是引的尹山湖的活水资源,水质也比较好。
边上的树木,也都是从全球各地精选的绿植,以保证一年四季这边都有不一样的风景。
这边请,面前您看到的就是我们北入户的边户户型,也就是四联排的东边户。
从整个外观可以看出,我们的外立面风格和整个小区的环境还是相得益彰的。
整个墙面都是由文化石以及金色的涂料构成,凸显了我们托斯卡纳的自然风情。
从东边入户,您看到的这块就是我们的边花园,虽然这一户的花园面积并不算太大,但是内部的绿化都做的比较精致,从这里也可以看出我们整体的绿化都是花了很多的心思。
进门这块,我们是有一个入户平台,来客人的时候也可以避免日晒雨淋。
从这边进去就是我们一楼,它整体的内部设计是法式风格。
这个地方设计有玄关,可以充分保证您居家生活的私密性,而且从风水上说也是聚气的。
左手边就是我们大开间的客厅,客厅的整体开间5.1米,而且三面采光。
内部的装修也是采用了饱含现代元素的装修,给人一种简约高贵的感觉。
整体的家具材质都是榉木石材,而且桌面上的茶具也都是选用的爱马仕的系列产品,全方位展示了现代的美式家居装修风格。
而且墙面上的贴花选用也都比较简约,很好的烘托出了这样一种氛围。
这边摆放画框的地方,您完全可以根据您自身的居住需求做成一面电视墙。
再看这边的阳台,闲暇的时候可以在这边摆上茶几与家人朋友喝茶聊天,而且这一块也可以和地下室形成湖东,让您的家居生活更加温馨方便。
客厅边上我们设计有意见长辈房,如果您有长辈一起居住,可以避免长辈上下楼不便。
整个房间的采光比较好,而且空间也比较宽敞,还是比较实用的。
北面就是我们的餐厅,这边一块本来是一块挑高的共享空间,我们在装修的时候把这边增加了一层。
西地块别墅户型说辞西地块别墅户型户型方正,南北通透,空间格局巧妙实用,功能分区合理有序。
一、宽大空间:独栋别墅一层层高3.7米,二层层高3.2米,三层层高2.8—3.5米;双拼别墅一层层高3.6米,二层层高3米,三层层高2.8—3.5米。
二、布局考究:一层设置超大客厅、宽敞餐厅、厨房及老人房;二层设置的豪华主卧套房、家庭活动室和次卧;三层设计有家庭影音室、健身房及超大露台。
不同车三、大车库设计:车库进深最小为6米,宽最小为3.6米,全面满足主人型的乘放需求。
四、观景露台:每层均设置观景露台,开窗见景,享受充足的阳光和室外美景。
五、家庭活动室:独栋别墅在二楼专设家庭活动室,客厅之外的又一家庭活动交流空间,凸现出浓郁的家庭氛围。
六、豪华主卧:主卧设置在二层,配有专属卫生间、衣帽间、书房及观景露台,主人尊贵地位演绎淋漓尽致。
家庭影音室:超大空间视听室,隐秘安逸,可摆放超大的投影屏幕,极致生七、活享受。
八、阳光健身房:超大面宽,挑高空间,尽享工作之余的运动情趣。
九、户内楼梯:别墅内置户内楼梯宽2.6米,既方便您的居家装饰又与别墅整体大空间相得益彰,让楼梯升华为家居美学的一部分。
十、入户门廊:西方建筑风格的入户门廊,揉和中式居住理念,简约、大气而又内敛。
十一、其它采暖方式:独栋别墅、双屏别墅采用壁挂炉独立采暖,联体别墅、电梯洋房市政集中供暖窗:隔热断桥铝合金中空玻璃屋面:屋顶由上而下防水英红瓦、SBS防水层、聚氨酯发泡保温层水:一户一表制,IC卡智能预付费水表天燃气:市政天然气管引进小区,低压环网供气,一户一表,IC卡智能预付费气表电:三相电入户(380V)低压配电,每户计量实行一户一表,户内设配电箱电梯:预留电梯接口1、双拼1#户型层数长度(米) 宽度(米) 面积(平方米)客厅 6.3 5.7 35.9一层餐厅 5.7 4.5 25.7厨房 4.5 2.4 10.8二层主卧 8.1 4.5 36.4次卧1 4.2 3.6 15.1次卧2 5.7 3.6 20.5影视房 4.2 3.6 15.1 三层健身房 6.3 5.7 35.9 客厅空间格局方正,宽敞舒适,自然开阔餐厅与厨房相连,与客厅相望,空间组合非常的巧妙自然大面宽主卧,采光充分超大观景露台,园区美景一览无余2、独栋2#户型层数长度(米) 宽度(米) 面积(平方米)客厅 5.7 5.4 30.8餐厅 6.6 3.9 25.7 一层厨房 3.6 3 10.8卧室 4.5 4.2 18.9主卧 5.7 5.4 30.8二层次卧1 4.2 4.2 17.6次卧2 4.2 3.6 15.1三层影视房/健身房 9.6 6.6 63.3 全明空间,南北对流,三面采光采景客厅搭配生活大阳台,方正实用,宽敞明亮,优雅大度居室设计动静分区,巧妙的次卧室搭配灵活空间设计,主卧专享独立卫生间、步入式衣帽间3、独栋3#户型层数长度(米) 宽度(米) 面积(平方米)客厅 5.7 4.8 27.3餐厅 5.7 3.9 22.2 一层厨房 4.2 3.9 16.3卧室 4.2 3.6 15.1主卧 8.7 4.8 41.8二层次卧1 4.2 3.6 15.1次卧2 4.2 3.9 16.3影视房 8.7 8.7 75.7 三层健身房 4.2 3.9 16.34、独栋4#户型层数长度(米) 宽度(米) 面积(平方米)客厅 6.3 6.3 39.7一层餐厅 6.6 4.5 29.7厨房 4.5 4.2 18.9卧室 4.5 3.9 17.6主卧 6.9 4.5 31二层次卧1 4.5 3.9 17.6次卧2 4.5 3.9 17.6影视房 6.3 6.3 39.7 三层健身房 6.3 6 37.8 高挑空豪华客厅,大面积落地窗设计私属的独立电梯、豪华双车位私家超级影院,私家健身房,私家独立电梯,尊享高贵生活专设家庭活动室,客厅之外的又一家庭活动交流空间屋顶超大观景露台,尽览无限美景户型 5、独栋5#层数长度(米) 宽度(米) 面积(平方米)客厅 6.3 6 37.8餐厅 4.5 4.5 20.2 一层厨房 4.5 3.3 14.6卧室 4.5 3.9 17.6主卧 7.8 4.5 35.1二层次卧1 4.5 3.9 17.6次卧2 3.9 3.9 15.2影视房 6.3 6 37.8 三层健身房 6.6 6 39.66、独栋6#户型层数长度(米) 宽度(米) 面积(平方米)客厅 6 5.7 34.2餐厅 6 3 18 一层厨房 4.2 3.9 16.4卧室 4.5 4.2 18.9主卧 6 5.7 34.2二层次卧1 4.5 4.2 18.9次卧2 4.2 3.6 15.1影视房 6 5.7 34.2 三层健身房 6 3 18 大面宽的客居空间,大面积景观窗客厅、玄关、餐厅、观景露台流畅连贯7、独栋7#户型层数长度(米) 宽度(米) 面积(平方米)客厅 7.2 8.4 60.5餐厅 5.4 4.8 25.9 一层厨房 4.8 3 14.4卧室 4.2 3.6 15.1主卧 6.9 5.4 37.3二层次卧1 4.35 4.2 18.3次卧2 4.3 3.6 15.5影视房 5.4 3.8 20.5 三层健身房 5.4 2.1 11.38、独栋8#户型层数长度(米) 宽度(米) 面积(平方米)客厅 5.6 5.4 30.2餐厅 5.4 4.5 24.3 一层厨房 3.9 3.6 14卧室 4.2 3.6 15.1主卧 5.6 4.5 25.2二层次卧1 3.9 3.6 14次卧2 3.9 3.6 14三层影视房/健身房 9.9 5.6 55.4 高挑空豪华客厅超宽观景阳台,又是阳光室的功能,让全家人与健康时刻相伴圆弧形旋转式楼梯,彰显别墅生活的气派与奢华豪华主卧套房,私属衣帽间、静谧书房、观景露台,尽显尊贵气派9、独栋9#户型层数长度(米) 宽度(米) 面积(平方米)客厅 5.4 4.2 22.7餐厅 6.3 3.9 24.6 一层厨房 3.9 3.3 12.9卧室 4.2 3.6 15.1主卧 6.3 4.8 30.2二层次卧1 4.2 3.6 15.1次卧2 3.9 3.6 14三层影视房 3.6 2.1 7.6健身房 6.3 6 37.810、独栋10#户型层数长度(米) 宽度(米) 面积(平方米)客厅 5.4 4.5 24.3餐厅 6.6 4.8 31.7 一层厨房 6 4.2 25.2卧室 4.5 3.6 16.2主卧 6.6 4.8 31.7二层次卧1 4.5 3.6 16.2次卧2 4.2 3.6 15.1影视房 5.7 4.2 23.9 三层健身房 5.4 4.5 24.3。
别墅道辞之阳早格格创做咱们的别墅是沂源唯一北好田园风格的兴办;所有景瞅战兴办依时势而建,北下北矮,使户户瞅湖景,家家享山色;名目坐降正在天湖(省内海拔最下的湖,省内距离乡区迩去的湖)吞噬沂源的制下面,俯瞰天湖与沂河;用材上正在沂源尾伸一指,大门是别墅独有的铁艺门,坡屋顶使用英白瓦,中墙采与真石漆,部分采与文化石;整各别墅区采与智能家居系统,采温使用国家提议的节能环保的天源热泵;共时拥有所有沂源最佳的火量;那些皆是其余名目无法比较的劣势.名目北里是凤鸣山,北里是龙洞山,所有名目被山与湖所环绕,产死一个杂天然氧吧,为所有园区提供源源不竭的浑新气氛.咱们别墅的安排充谦了人情化的闭怀集恬静真用于一体,人情化体当前智能家居圆里,智能家居系统包罗了遥控统制功能、电话近程统制功能、定时统制功能,搜集近程统制功能、安防报警功能、指纹锁等系统.那些智能家居系统能让您的死计越收便当:正在家中所有位子皆不妨统制灯光、家电、窗帘等设备.恬静:任性安排家中灯光的明暗.享受:无需起身,启门、闭灯尽正在掌控.超前:通过电话便不妨对付住房举止近程统制.让您享受那里的湖光山色的共时,也享受科技给您戴去的便利.咱们的别墅冬季采温,夏季制热采与的是天源热泵系统,是利用浅层天能举止供热制热的新式能源.本理是变化天下土壤中热量大概热量到别墅,共时利用天下土壤巨大的蓄热蓄热本领,冬季把热量从天下变化到兴办物内,夏季再把天下热量变化到兴办物内,产死一个热热循环系统,真止节能减排.便宜是下效节能,宁静稳当,不环境传染,维护费用矮,节省空间,省去了热却塔、锅炉房战其余设备,使所有园区越收整净.咱们名目是沂源独有的皆会别墅名目,与乡核心仅5分钟车程,所有园区共时配套星级旅店战下端会所,正在那些场合您不妨享受到星级的待逢.游泳池、温泉越收体现名手段下端本量.忙暇之时,品尝好食之后,不妨游泳、垂钓、沐浴温泉、SPA等.园区内还设有游艇码头,您不妨乘坐游艇从码头出收,欣赏沿途的湖光山色,到达死态景区天湖干天.单拼别墅道辞您当前瞅到的是咱们的单拼别墅,一共分三层,天下一层兴办里积约103㎡,一层兴办里积约131㎡,二层兴办里积约111㎡.咱们沙盘上别墅区的第一排局部皆是单拼别墅.一栋单拼别墅占大天积达到300多仄圆米,简朴去道将近半亩天,让您充分享受别墅给您戴去的枯耀感.单拼别墅正在整各别墅区的最前端,也是最下端,距离湖里迩去,瞅景效验更好.独力进户俭享尊贵,共时单拼别墅的特性之一便是三里采光,使阳光洒谦您房间的每个角降.像您那样身份职位的人,是比较道究格调战死计本量的,对付室内空间的央供也是最热烈的,果此咱们正在安排中频频建改,正在进户树坐玄闭,包管您房间的公稀性;将过厅挑空,减少下度,虽然那样搞咱们益坏一些里积,兴办成本也会减少,然而是那样会使您的住所更有豪宅的气量,体现尊贵感战仪式感,咱们益坏的一些物品也是值得的.一般住房中是无法享受到那种尊贵的.B1层的庭院是免费赠收给您的,戚息日正在院子里战伙伴畅聊古今的共时,欣赏着湖光山色,会是一种很谦意得享受.室内103㎡的超大里积,任您安插,如果您喜欢疏通,您不妨把那里动做您室内疏通的场合,搁置一些跑步机等疏通器械;如果您是影音快乐喜爱者,还不妨把那里安插坐室庭影院;如果您喜欢躲酒,那那里真足不妨成为您躲酒的场合.戚忙室里您不妨搁一弛台球桌大概者动做棋牌室皆是不妨的.那样的安插,正在您戚忙娱乐的共时,不会做用家人的戚息,一举二得.别墅的一层筹备为厨房、客厅、卫死间战卧室.思量到老人爬楼梯大概会有艰易,所以咱们正在一层博门安排了一件卧室,便当老人居住,让女母安享健壮无忧早年.您也瞅到了咱们正在一楼树坐了二个厨房,中式厨房安插考究,西式厨房充谦浪漫情调.3.6米宽的餐厅晃设西式启搁厨房,谦脚您家人便餐的共时,您也不妨正在那里举止小型party.享受一般住房无法达到的兴趣.再瞅咱们二层的安排,二层为主要戚息空间,阳光豪华主卧附戴博属卫浴空间,并设有步进式衣帽间,既不妨井然有序天存搁衣物,又不妨拥有真足自尔的公稀空间.共时主卧与阳台贯串,让您恣意享受空中瞅景的悠然.再瞅其余二个次卧,也皆戴有独力卫死间,让一家人既能亲稀交触又互不搞扰.共时北背次卧拥有二个露台,那二个露台皆是赠收的,正在露台上享受阳光之时,您还不妨搁一些您喜欢的花草,常常刻刻与大自然亲稀交触.北进联排别墅道辞联排别墅一公有4层,天下一层,天上三层.总兴办里积约210㎡从咱们的大门处便体现出了别墅的豪华气量,咱们的大门使用的是铁艺门,那正在一般住房中是瞅不到的,铁艺门起源于欧洲,背去此后皆伴伴着兴办艺术的死长.铁艺门的主要资料是钢,那种钢的采用也有道究,表面的纹饰也是通过特殊处理的,那种宽苛的搞工央供,也正好体现了别墅仆人的尊贵.从那个模型咱们不妨瞅到,从铁艺门进去,逆着楼梯下去便到了咱们别墅的天下一层,天下一层有北背庭院,那个庭院是赠收的,您不妨正在那里培植花草树木,炎热的夏日,正在遮阳伞下战家人伙伴边谈天涯喝着热饮,享受着湖里吹去的凉凉微风,是如许的谦意.天下一层共时还配有多功能室、储躲间、洗衣房、卫死间,多功能室您不妨根据您的兴趣快乐喜爱,随意安插.如果您喜欢疏通,您不妨把那里动做您室内疏通的场合,搁置一些跑步机等疏通器械;如果您是影音快乐喜爱者,还不妨把那里安插坐室庭影院;如果您喜欢躲酒,那那里真足不妨成为您躲酒的场合.您也不妨把那里挨制成棋牌室,战伙伴家人正在那里戚忙娱乐,丝毫不会做用楼上家人的戚息.逆着那个楼梯便到了咱们联排别墅的天上一层,独力进户,一步花园,彰隐尊贵,进户玄闭,公稀性更强,挑空的过厅减少了局部空间战下度,彰隐出住房的豪华气度,您进住之后也不妨把挑空部分分成二层,减少一些使用里积.挑空部分的里积是赠收的,那样的安排咱们虽然会益坏一些里积,共时兴办成本也会减少;然而是会您的死计越收的便当战恬静.启间7.2m的超豪华客厅,共时配备北背瞅景阳台,使所有客厅通透明明;共时那里也是您会客的绝好之所.一楼另有一间客人房,伙伴去家里搞客,早上不妨住正在那里.二楼北有阳台,北有露台,北北通透,透气采光效验非常棒.而且露台免费赠收给您,您不妨正在露台上晃搁喜欢的花草,搁上一弛小桌,茶余饭后,坐正在躺椅上,享受着阳光与谦意凉风,死计与处事的琐事扔之脑后.二楼有二个北背卧室,其中一个卧室与阳台贯串,享受阳光的共时,也可尽享天湖好景.通过室内L型楼梯便不妨加进三楼.三楼是仆人房,阳光豪华主卧附戴博属卫浴空间,并设有步进式衣帽间,既不妨井然有序天存搁衣物,又不妨拥有真足自尔的公稀空间.北北各赠收露台,挨制您的公家花园.虽然联排总兴办里积不大,然而是多露台的安排,不妨尽享至尊俭侈空间北进联排户型道辞:北进联排与北进的分歧正在于,北进是从一层加进,北进联排则是从北侧庭院加进.共时,北进联排天下一层的客厅是挑空的,挑空部分减少了客厅空间战层下,相对付于一般仄层住房更能体现出尊贵感.(其余参照北进联排)叠加别墅户型道辞:叠加别墅正在整各别墅区的北侧,也是整各别墅区天理位子最下的,背靠青山.阳台战多露台的安排,使阳光洒谦您的每个房间.叠加别墅一栋4层,1、2层是一户;3、4层是一户;1、2层咱们称为下叠里积正在180㎡,3、4层咱们称为上叠,兴办里积约160㎡安排.虽然里积与仄层住房相称,然而多露台及庭院的安排,让您恣意享受别墅独有的空间,共时享受到别墅独有的尊贵,铁艺大门,一步花园,独力进户等,那些正在仄层住房中皆是无法享受到的.尔先给您介绍一下一层,从那个模型里咱们也不妨瞅到,加进别墅独有的铁艺大门,便瞅到了庭院.庭院战车位是免费赠收的,一步花园让您时刻与自然亲稀交触.一层真足筹备为二室二厅一卫一厨,一层博设老人房,让老人安享无忧健壮早年.书籍房您也不妨变革成一间卧室.共时一层筹备合理,动静分区,缩小了相互之间的搞扰.二层是您戚息的主要场合,一共三个卧室.阳光豪华主卧附戴博属卫浴空间,并设有步进式衣帽间,既不妨井然有序天存搁衣物,又不妨拥有真足自尔的公稀空间.共时主卧配有瞅景阳台,享受阳光的共时也不妨,尽揽天湖好景.从那个模型上您也不妨瞅到,咱们正在北侧博设有下重式庭院,充分谦脚了一层北侧的采光与透气.最要害的是给您一种天天合一的体验.三四层便是其余一户,从北侧通过楼梯加进,从户型图上也能瞅出,三四层也拥有自己独力的庭院与停车位.共时由于1、2层与3、4层的进户办法纷歧样,灵验天预防了二家相互搞扰的问题.3、4层与1、2层相比,不太大的不共,四层少了一个卧室,多出了一个免费赠收给您的北背大露台,180度瞅景.夜早躺正在露台上的椅子上,,欣赏着天湖独有的夜空,也是一种非常谦意的死计.。
1.梦幻般的别墅,地处私家园林之中,绿树环绕,鸟语花香。
独特的建筑风格融入了现代与古典元素,为你打造别样的家居风尚。
室内设施一应俱全,让你享受宾至如归的温馨。
2.这座具有古典风格的别墅融合了东西方建筑的精粹,为您呈现一个别样的家居生活。
绿意盎然的庭院、花香四溢的私家花园,让您置身于一个完美的世外桃源。
3.沉醉于这座至臻别墅,感受无尽的奢华与舒适。
精雕细琢的建筑风格,让你感受到时光的沉淀。
配备最先进的生活设施,为你的生活增添无限可能。
4.这座别墅以其宽敞的室内空间和优雅的设计赢得了众多赞誉。
一进门,您就能感受到它的宽敞明亮,精心设计的家具和装饰品更显奢华。
5.这座别墅可谓是自然与艺术的完美结合。
从室内的精致装饰到户外的私人花园,每一个角落都充满了设计师的匠心独运。
在这里,你可以与家人欢度美好时光,畅享天伦之乐。
6.这座别墅巧妙地将自然与科技相结合,为你打造一个宜居的生活空间。
节能环保的建筑材料,智能化的家居系统,让你在这座别墅中尽享科技带来的便捷和舒适。
7.豪华别墅,尽享品质生活这栋别墅拥有高品质的装修和一流的设施,所有的细节都经过精心设计,为您打造一个完美的居住空间。
独立的客厅和餐厅区域,让您邀请亲朋好友共度美好时光。
宽敞的卧室和私人阳台,让您尽情享受生活的美好。
此外,别墅还配备了全套的现代化的厨房设备和顶级家居品牌家具,为您提供舒适便捷的生活体验。
8.梦幻般的度假别墅,让您尽享私密奢华这座坐落在青山绿水之间的别墅,让您尽享自然之美。
独特的地理位置让您远离喧嚣,同时又交通便利,享受都市的便利。
房型设计充满艺术感,带给您舒适的居住体验。
装修风格独具匠心,运用最新的家居理念,为您提供奢华而舒适的居住环境。
9.尽享优雅品质的别墅生活“生活是一种优雅的艺术,而别墅则是其最佳的表现形式。
”这座位于城市核心区域的别墅,将为你提供一种前所未有的生活体验。
它拥有高贵典雅的建筑风格,内部设施一应俱全,为你打造一个尽享优雅品质的居住空间。
第五园上叠说辞您好,刚才为您介绍了下叠,现在为您介绍的是万科第五园260平方上叠产品(5房5卫),和下叠一样,上叠也是毛坯交付,由您按照自己的想法来打造。
整个户型图的左边是我们的交付标准,右边是装修建议(装修建议还是由凌子达先生倾力设计)。
后期我们是毛坯交付,您可以根据自己的想法自由设计,也可以借鉴我们的装修建议图,负一层是停车空间及私家电梯厅,楼上三层的整体格局您可以把三层设计成一个家庭的交流空间、四层设计成休息加学习空间、五层作为主人的豪华私密空间。
我们装修建议图也是按照这个思路来的,下面为您介绍下装修建议图。
负一层、一层:负一层我们配置了2个车位,正常可以满足一个家庭的停车需求,相对独立的车位配置可谓是终极置业的梦想,您以后不需要再为停车难而烦恼。
当您在负一层停好车后,旁边就是私家电梯厅的入户防盗门,可以直接进入电梯厅乘电梯上楼(电梯厅预留电梯井,上叠电梯停靠楼层为负一、一层、三层、四层,如不坐电梯也可以从安全楼梯步行到三楼)电梯厅可以做简单装修设置,舒缓主人从工作到归家的心情。
后期您如果步行回家也可以从一楼乘坐电梯入户,一楼北侧会设置入户花园(北花园上下叠都有,具体大小根据楼栋位置再定),扬州千载本是园,园林浓缩了人们对美好生活的所有想象,后期您可以在花园种植花草树木,或者养只心爱的宠物,精致的入户园林设置能够体现主人的品味,也能改变您的生活品质,也一定会让来访的朋友羡慕您有一套好房子。
三层:三层就是我们上叠的一楼,这一层我们设计的是一个家庭的交流空间:乘坐电梯到三楼(也可以步行走安全楼梯),下电梯(或从楼梯进门后)便是玄关的位置,您可以做一个简单的玄关柜,包包、钥匙还有外出的一些小物件都可以放在这个区域,(指着户型图)再向里走映入眼帘的就是7米大开间客厅(您也可以参考我们下叠关于客厅的改造,将卧室改成茶室,10.5米的超大开间客厅,不仅超越了市场上的联排及双拼,而且用大面积玻璃窗(交付时茶室窗户区域为落地窗,因消防原因窗户内侧有90公分高实体栏板)代替传统实墙也是一大创新,结合三楼视野的优势,能让主人心情开朗、愉悦,餐桌、客厅、茶室都可以设计在这边,将各种家庭生活方式在一个空间里进行融合,既增加了家人的交流空间也体现出了融合的东方文化精神,10.5米超大面宽的玻璃窗,直接把阳光引进客厅,而茶室的设计也将喝茶融入了家庭交流的公共空间、融入到了生活中,品茶的同时可能还可以看到栖灵塔(部分楼栋可能可以看到),这种先天地理位置带来视觉上的享受,也能为您带来一种心灵上的宁静与安详。
样板间说辞您现在看到的是我们**精装联排户型样板间,是由**集团精心打造的纯中式别墅,整个建筑风格以灰白色调为主,抱鼓石墩,五排五丁的朱红色木质大门,扇形镂窗,每一个细节都能体现出我们的中国文化情节。
我们的产品均为正南正北的朝向,并且赠送南北双向花园(前后花园),还有露台,而您现在所看到的样板间,是联排的NC户型,总建筑面积在456平米左右,分为地上三层,地下一层,地上建面256平米左右,地下200平米左右。
整个样板间的装修以美式简约、大气的风格为主,中式的建筑,西式的内部设计充分体现了主人对中式传统文化传承的同时,不失对现代生活品质生活的追求。
整个样板间的内装:包括家私、灯饰、配饰,每一件都是我们精心挑选,并从国外原装进口,整套别墅无论是在硬装还是软准都做的很完美,让您整真享受到有天有地的别墅生活.XX我带您到样板间参观一下,现在我们所处的位置是入户的北花园,用青石砖铺设的小路,也是我们中式元素的细节体现,花园里面种植了很多绿植,如果您自己喜欢养花的话,完全可以把它打造成一个四季常绿的花园。
阶梯式的入户门,象征这主人步步高升。
打开房门,您现在看到的是首层,首层的面积大约在100多平米,我们在入户门设计了玄关做过渡,这样可以保证整个客厅的私密性,门口的花开富贵图案,还有古典中式家具,体现出主人尊贵的身份。
穿过玄关看到的是首层的大客厅,客厅采用的是错落式的设计,层高3.3,面宽达到6米多,超大的落地式窗户,充分使您享受的极佳的空间效果和充足的采光效果。
客厅是接待朋友和家人交流的重要场所,整个家具采用的是围合式的摆设,这样更能体现出其乐融融的感觉,而且在细节方面像国际地图、象棋桌以及国外的书籍,都能体现出主人丰富的知识内涵和游览世界的阅历。
像这样的大客厅无论您摆什么样的家具都能显示出尊贵大气的效果。
XX我带您到客卧参观一下,客卧的设计主要出于方便您的亲朋好友到访时,可暂住一下,所以客卧的设计相对而言比较简单大方,但却不失周到,您可以看到,客卫单独配备了卫生间,这样一来很好的尊重的客人的隐私,让客人感到不会太拘束,再加上温馨的摆设,充分显示主人好客之道;同时,如果家里有老人的话,您也完全可以把它当作老人房,老人不用爬上爬下,而且窗外就是南院,院子种上,不用出门,真正达到了一层卧室实用方便的原理。
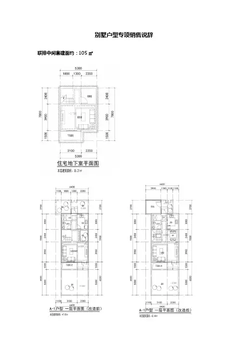
别墅户型专项销售说辞联排中间套建面约:105㎡别墅而言,优质的低密度居住环境、高尚的社区氛围是身份的标志;其分层设计享受居住的立体空间从而使得家庭成员有了更加私密性、独立的活动空间且各功能区互不影响;附赠面积大,地下室、车库、挑空、露台都是不计入产证面积;独立的土地使用空间,有自家的花园庭院享受室外新鲜空气,养花养草,地上地下建筑都属自家,成为地的真正主人;毛坯交付,更能体验做一回设计师的兴奋,每处角落都可灵机变动,做出自己喜好的格局;整体尺寸:面宽5.3米进深18.5米(含前后庭院,建筑物实际进深9.3米)销售说辞:附赠地下2层,地下室2.55米,车库3米;整层的地下室约有35㎡的建筑面积是不计入产证面积,而且比较实用,第一方面,不受潮,因为部分地下还有车库架空于土壤的;第二方面,有3.1乘1.5的采光庭院设计,充分保障地下室的采光及通风需求,类似双首层;第三方面,使用面积规整,无浪费死角,利用率高,影音室、棋牌室、桌球室、健身室、保姆房等都是可以的(多于C户型的1间棋牌室的面积)。
车库位于本户型地下2层,方便停放直接入户,省去出门走到停车位的时间,及避免他人乱停车占用车位的骚扰,车库空间另外也可做仓库使用,一举两得。
南北双庭院,人车分离;给您独享的院落空间,不仅是南北双院子的设计,而且是真正的前庭后院,整个别墅区人车分离的设计,所有私家车都停入地下车库,花园就是您平时养花种草户外调养身心的地方,特别是对小孩也不必担心他们的安全。
南北入户花园面积近32平米。
1楼整体提高,高出室外花园的水平面,步入式台阶入户,这样不会受外部地面雨水的影响。
整体户型规整,进深面宽黄金比例;面宽与进深达到别墅户型的黄金比例1:1.75,室内采光及空间布置(卫生间、厨房与客厅、卧室功能区的依次南北分布)都是最佳的,而且要知道接近正方形的房型越不宜布置,家具就很难摆,如3人沙发和单人沙发是配合摆放的整体布局长方型视觉感受更加舒服,但进深太深又会影响采光,所以我们的户型长宽比是最佳设计。
户型介绍常用说辞在房地产领域中,户型介绍是非常重要的一环。
通过清晰、生动、吸引人的说辞,能够有效地吸引客户的注意力,增加他们对房屋的兴趣和购买意愿。
下面是一些常用的户型介绍常用说辞。
1.奢华大气这套户型是我们项目中的明星户型,设计师用心打造,奢华大气。
宽敞明亮的起居室和餐厅可以满足您与家人和朋友的聚会需求,宽敞的卧室和浴室可以给您提供私密的休息空间。
此外,阳台可以欣赏到美丽的风景,让您每天都能感受到宁静和舒适。
2.空中花园这是一套拥有独立空中花园的户型。
无论您是喜欢种植花草还是享受户外烧烤,这个空中花园都能满足您的需求。
在这里,您可以自由地打造一个属于您自己的小天地,让您每天都能沉浸在大自然的怀抱中。
3.开放式设计这套户型采用开放式设计,起居室、餐厅和厨房相互连接,营造出一个宽敞、通透的空间。
无论是家庭聚餐还是娱乐客人,您都能够一边做饭一边和家人朋友交流。
此外,卧室与起居室分离,保护您的私密空间,让您能够在舒适的环境中放松休息。
4.设备齐全这套户型配备有现代化的设备和家具。
厨房配备有高端厨具和嵌入式烤箱,让您在烹饪时更加便捷。
卧室配备有舒适的床垫和衣柜,能够满足各种人群的需求。
此外,还有中央空调、地暖、洗衣机等设备,让您的生活更加舒适。
5.高楼层视野好这套户型位于高楼层,视野非常好。
您可以欣赏到城市的美景和壮丽的日出和日落。
此外,高楼层也能提供更好的通风和采光效果,让您的居住环境更加舒适和健康。
6.多功能活动室这套户型特别设计了一个多功能活动室,可以根据您的需求进行自由布置。
您可以将它打造成您的工作室、娱乐室、健身室或者儿童游戏室。
这个活动室给您提供了更多选择和可能性,让您的生活更加有趣和多彩。
7.精装修交付这套户型是精装修交付的,无需您再花费时间和精力去装修。
我们的设计师已经为您精心挑选了高品质的建材和装饰,让您能够立即入住。
此外,我们还提供一年的质量保证,确保您的居住体验不会受到任何质量问题的困扰。
别墅户型销售说辞户型的六大特点:1、纯粹墅感,多重庭院:上中下叠独立入户、多重私属庭院都是墅感的关键,室内赠送私家电梯;2、高附加值空间:地下6.85米挑空设计,客户可根据自行需求,通过地上地下空间拓展,充分提高空间感受,单层使用面积大多可超100平米,整体可达300-400平米左右的使用面积。
3、全家庭多功能空间设计,全四居设计其中三居朝南,4、豪华主卧设计,主卧合计面积约65平米,主卧南北通透;5、地下空间地上拓展化,通过采光窗井设计,地下空间实用舒适;6、空间灵动,框架结构,充分预留满足个性化需求。
下面就我们的下叠产品展示效果进行示意,本户型是地上两层,地下一层(含夹层),整体空间拓展后使用面积接近400平米。
首层会客空间首层以家庭会客空间为主,8.1米南向面宽,客厅4.6米,客厅、餐厅、社交型厨房同在一侧即可互动、又彼此独立形成一个约70平米的家庭公共活动区域,在家中待客也尽显主人气派。
客厅、餐厅方正,能够同时容纳八到十个人用餐,完全可以举行家族聚会或社交party。
近14平米的厨房可设计为中西厨,U型的布局增大了使用空间及收纳空间,使洗、切、炒一体化, 布局合理、动线流畅。
中间岛台的设计,能极大提高厨房空间的使用效率,同时可作为早餐台使用。
而厨房和餐厅相连接,在做饭时,也方便您和家人、朋友交流,是一种新型的社交方式。
一层带有一个南向的老人套房,也是我们是适老的贴心设计,让老人更好的享受阳光、享受便捷、享受院落生活,而且此房间也可做客房使用。
二层主人生活区二层由奢华的豪华主卧套房和两个儿童房组成,主卧套面宽4.6米,面积约65平米。
可分区设置男女主人衣帽间,可设置大尺度主卫生间,明卫设计,三分离设计,尽显别墅的舒适尺度。
南北分设两个儿童房,3.5米面宽,南向大采光,与二层客卫直接相连,实现第二舒适套房设计,满足儿童的空间,同时与家庭厅的合理动线,实现了儿童与家长间的共融生活。
地下一层部分整个地下部分6.85米层高,该区域为夹层,是附加值空间。
叠拼复式户型说辞
叠拼复式户型说辞
叠拼复式户型说辞
1、叠拼复式户型您看它整体高度不高,通常整栋由四层带阁楼的复式叠加组合而成,一般一二层为一户,下层有花园。
三四层为另一户,屋顶有花园,好的一点是每户都设置了独立的院子、扶梯、花园等设施。
此外叠墅户型造型丰富,而且内含居住文化。
2、叠拼复式户型就是叠加别墅的意思。
您看它的外形,似于把两幢独立别墅叠加在一起,但它又不是简单的叠拼建筑,其内部空间具有独幢别墅的一切元素,是一种和一般别墅一样有天、有地、有花园的私密生活空间。
3、咱们这个叠拼复式户型大部分是四至五层。
由于层高受限,通常是两套别墅住宅上下叠加。
叠加式别墅容积率大致在1左右。
这个容积率比联体别墅要高,但比多层公寓要低。
介于公寓与联体别墅之间,叠加式别墅建筑面积多在150平方米以上,大多数在200平方米至300平方米。
一梯两户,另加设空中花园,使您进门就像回到一片野开阔的空中庭院。
下单元住户拥有小花园,上单元住户拥有面积较大的露台。
良好的不可替代的自然环境,每户有入户花园或阳台花园,架空层避免了潮湿和视野不开阔。
建筑科技含量高,设计多种回家方式,这样可以彰显您的尊贵身份,相比其他别墅类型价格也较低。
房地产户型解说词大全(一)引言概述:本文将介绍房地产户型解说词大全(一)。
房地产户型是指房屋建筑中不同房间的布局和设计。
不同的户型设计采用不同的空间划分和功能布置,以满足不同人群的居住需求。
本文将分为五个大点,对不同类型的房地产户型进行详细解读。
从小户型到大户型,从简单布局到复杂布局,我们将为您提供全面的户型解说。
正文内容:一、小户型解说词小户型是现代城市居住的主要形式之一。
小户型的设计注重有效利用有限的空间,兼顾功能性和美观性。
以下是小户型解说词的几个小点:1. 精简的空间布局,提供舒适的起居空间。
2. 创意设计,妥善利用每一寸空间来满足居住需求。
3. 高效利用储物空间,增加收纳功能。
4. 细致打磨每个细节,增加整体空间的舒适感。
5. 窗户设计带来良好的通风和采光效果。
二、复式户型解说词复式户型是一种将两层或以上的空间通过楼梯等连接起来的住宅形式。
复式户型具有独特的设计魅力和空间层次感。
以下是复式户型解说词的几个小点:1. 开放式的空间格局,营造宽敞明亮的居住环境。
2. 上下楼层的布局合理分隔出私密与公共空间。
3. 楼梯的设计既兼顾实用性又注重美观度。
4. 充分利用双层空间,创造多样化的功能和活动区域。
5. 大面积的落地窗提供良好的自然光线和视野。
三、复式loft户型解说词复式loft户型是一种集工作、生活和娱乐于一体的多功能开放空间。
它兼具功能与个性,是年轻人追求自由与创造力的理想选择。
以下是复式loft户型解说词的几个小点:1. 开放式设计,创造通透、宽敞的居住空间。
2. 嵌入式隔断,将生活区、工作区和休闲区划分开来。
3. 裸露的天花板和独特的装饰风格,展示个人独特的品味。
4. 利用挑高设计,使空间显得更为开阔和舒适。
5. 强调功能性与创意性的融合,满足年轻人对多样化生活方式的需求。
四、别墅户型解说词别墅户型是大型住宅建筑中的一种高档住宅形式,通常拥有大面积的室内和室外空间。
以下是别墅户型解说词的几个小点:1. 建筑与自然环境巧妙融合,营造宜居的生活氛围。
别墅说辞我们的别墅是沂源唯一北美田园风格的建筑;所有景观和建筑依地势而建,北高南低,使户户观湖景,家家享山色;项目坐落在天湖(省内海拔最高的湖,省内距离城区最近的湖)占据沂源的制高点,俯瞰天湖与沂河;用材上在沂源首屈一指,大门是别墅独有的铁艺门,坡屋顶使用英红瓦,外墙采用真石漆,部分采用文化石;整个别墅区采用智能家居系统,采暖使用国家提倡的节能环保的地源热泵;同时拥有整个沂源最好的水质;这些都是其他项目无法比拟的优势。
项目北面是凤鸣山,南面是龙洞山,整个项目被山与湖所环绕,形成一个纯天然氧吧,为整个园区提供源源不断的清新空气.我们别墅的设计充满了人性化的关怀集舒适实用于一体,人性化体现在智能家居方面,智能家居系统包含了遥控控制功能、电话远程控制功能、定时控制功能,网络远程控制功能、安防报警功能、指纹锁等系统.这些智能家居系统能让您的生活更加方便:在家中任何位置都可以控制灯光、家电、窗帘等设备。
舒适:任意调节家中灯光的明暗。
享受:无需起身,开门、关灯尽在掌控.超前:通过电话就可以对住宅进行远程控制。
让您享受这里的湖光山色的同时,也享受科技给您带来的便捷。
我们的别墅冬季采暖,夏季制冷采用的是地源热泵系统,是利用浅层地能进行供热制冷的新型能源。
原理是转移地下土壤中热量或冷量到别墅,同时利用地下土壤巨大的蓄热蓄冷能力,冬季把热量从地下转移到建筑物内,夏季再把地下冷量转移到建筑物内,形成一个冷热循环系统,实现节能减排.优点是高效节能,稳定可靠,没有环境污染,维护费用低,节省空间,省去了冷却塔、锅炉房和其他设备,使整个园区更加整洁.我们项目是沂源独有的城市别墅项目,与城中心仅5分钟车程,整个园区同时配套星级酒店和高端会所,在这些地方您可以享受到星级的待遇。
游泳池、温泉更加体现项目的高端品质。
闲暇之时,品尝美食之后,可以游泳、垂钓、沐浴温泉、SPA等。
园区内还设有游艇码头,您可以乘坐游艇从码头出发,欣赏沿途的湖光山色,到达生态景区天湖湿地。
样板房说辞联排别墅的说辞:您好,欢迎参观!请穿上鞋套。
您现在看到的这套样板房是我们的260联排别墅户型,五房两厅四卫的,建筑面积260平米。
超高客厅层高:我们的别墅产品设计非常独特,普通别墅层高只有3米左右,而我们的别墅采用进行了下沉设计,层高可达3.6米,主卧室层高甚至达到了3.8米,因此空间感非常强,居住舒适度更高。
挑空的设计让整个空间感觉更加的大气,会让室内的空间更加有层次感。
八面玲珑的风水采光设计:我们的别墅造型为欧式宫廷设计,客厅的造型就像一座古堡的塔楼,让你享受宫殿般的奢华,同时采用这种造型达到了八面采光的功能性,八面玲珑风水设计讲究给业主带来好运。
超高花园赠送率:这个户型的赠送面积也是非常多,包括前花园、后花园和侧花园,一共80平米,还有56平米露台、3平米阳台赠送,以及67平米地下室,总共赠送面积达到206平米,赠送比例达到173%。
超级全功能主卧:主卧室除了常规书房、衣帽间、独立洗手间之外,还带有单独的会客室,居住是非常舒适的。
奢适顶楼景观超大露台:在三楼赠送了超大景观露台,您可以在这里做一个休闲茶室,也可以做夏季纳凉的露天小花园,欧式的小亭给您享受生活的诗意。
极致美景卧室:我们的产品不仅仅卧室多,开进尺度阔绰,还有5面采光窗设计,不仅房间清新明亮,也让美景走入了您的房间。
就算是小孩房,我们也带有宽阔的阳台,让您欣赏我们的园林美景。
联排别墅的说辞:您好,欢迎参观!请穿上鞋套。
您现在看到的这套样板房是我们的236联排别墅户型,四房三厅四卫+书房的,建筑面积236平米。
客厅采取了下沉式的设计,这样不但增加了客厅的空间感,同时还会让室内的空间更加有层次感。
此外,还赠送了别致的中庭院,可放置绿色植物于其中,随意享受自然的惬意感。
这个户型前花园、后花园,一共赠送47平米,还有95平米地下室、阳台、大露台及中庭的赠送,总共赠送达142平米,赠送比例达到160%。
这个户型最大的特色就是3.6米的特色层高,缔造别墅非凡高度,另外还有地下室空间包括半地下室内车库的全赠送;我们3层只有一个主卧室,有效保证私密性之外,还带有衣帽间、独立洗手间等,居住是非常舒适的;同时赠送一个近40平米的超大露台,观景和休闲都是非常方便的。
别墅说辞
我们的别墅是沂源唯一北美田园风格的建筑;所有景观和建筑依地势而建,北高南低,使户户观湖景,家家享山色;项目坐落在天湖(省内海拔最高的湖,省内距离城区最近的湖)占据沂源的制高点,俯瞰天湖与沂河;用材上在沂源首屈一指,大门是别墅独有的铁艺门,坡屋顶使用英红瓦,外墙采用真石漆,部分采用文化石;整个别墅区采用智能家居系统,采暖使用国家提倡的节能环保的地源热泵;同时拥有整个沂源最好的水质;这些都是其他项目无法比拟的优势。
项目北面是凤鸣山,南面是龙洞山,整个项目被山与湖所环绕,形成一个纯天然氧吧,为整个园区提供源源不断的清新空气。
我们别墅的设计充满了人性化的关怀集舒适实用于一体,人性化体现在智能家居方面,智能家居系统包含了遥控控制功能、电话远程控制功能、定时控制功能,网络远程控制功能、安防报警功能、指纹锁等系统。
这些智能家居系统能让您的生活更加方便:在家中任何位置都可以控制灯光、家电、窗帘等设备。
舒适:任意调节家中灯光的明暗。
享受:无需起身,开门、关灯尽在掌控。
超前:通过电话就可以对住宅进行远程控制。
让您享受这里的湖光山色的同时,也享受科技给您带来的便捷。
我们的别墅冬季采暖,夏季制冷采用的是地源热泵系统,是利用浅层地能进行供热制冷的新型能源。
原理是转移地下土壤中热量或冷量到别墅,同时利用地下土壤巨大的蓄热蓄冷能力,冬季把热量从地下转移到建筑物内,夏季再把地下冷量转移到建筑物内,形成一个冷热循环系统,实现节能减排。
优点是高效节能,稳定可靠,没有环境污染,维护费用低,节省空间,省去了冷却塔、锅炉房和其他设备,使整个园区更加整洁。
我们项目是沂源独有的城市别墅项目,与城中心仅5分钟车程,整个园区同
时配套星级酒店和高端会所,在这些地方您可以享受到星级的待遇。
游泳池、温泉更加体现项目的高端品质。
闲暇之时,品尝美食之后,可以游泳、垂钓、沐浴温泉、SPA等。
园区内还设有游艇码头,您可以乘坐游艇从码头出发,欣赏沿途的湖光山色,到达生态景区天湖湿地。
双拼别墅说辞
您现在看到的是我们的双拼别墅,一共分三层,地下一层建筑面积约103㎡,一层建筑面积约131㎡,二层建筑面积约111㎡。
我们沙盘上别墅区的第一排全部都是双拼别墅。
一栋双拼别墅占地面积达到300多平方米,简单来说将近半亩地,让您充分享受别墅给您带来的荣耀感。
双拼别墅在整个别墅区的最前端,也是最高端,距离湖面最近,观景效果更佳。
独立入户奢享尊贵,同时双拼别墅的特点之一就是三面采光,使阳光洒满您房间的每个角落。
像您这样身份地位的人,是比较讲究格调和生活品质的,对室内空间的要求也是最强烈的,因此我们在设计中几次修改,在入户设置玄关,保证您房间的私密性;将过厅挑空,增加高度,虽然这样做我们损失一些面积,建筑成本也会增加,但是这样会使您的住所更有豪宅的气质,体现尊贵感和仪式感,我们损失的一些东西也是值得的。
普通住宅中是无法享受到这种尊贵的。
B1层的庭院是免费赠送给您的,休息日在院子里和朋友畅聊古今的同时,欣赏着湖光山色,会是一种很惬意得享受。
室内103㎡的超大面积,任您安排,如果您喜欢运动,您可以把这里作为您室内运动的场所,放置一些跑步机等运动器械;如果您是影音爱好者,还可以把这里布置成家庭影院;如果您喜欢藏酒,那这里完全可以成为您藏酒的地方。
休闲室里您可以放一张台球桌或者作为棋牌室都是可以的。
这样的布置,在您休闲娱乐的同时,不会影响家人的休息,一举
两得。
别墅的一层布局为厨房、客厅、卫生间和卧室。
考虑到老人爬楼梯可能会有困难,所以我们在一层专门设计了一件卧室,方便老人居住,让父母安享健康无忧晚年。
您也看到了我们在一楼设置了两个厨房,中式厨房布置考究,西式厨房充满浪漫情调。
3.6米宽的餐厅配置西式开放厨房,满足您家人就餐的同时,你也可以在这里举行小型party。
享受普通住宅无法达到的乐趣。
再看我们二层的设计,二层为主要休息空间,阳光豪华主卧附带专属卫浴空间,并设有步入式衣帽间,既可以井然有序地存放衣物,又可以拥有完全自我的私密空间。
同时主卧与阳台相连,让您尽情享受空中观景的悠然。
再看另外两个次卧,也都带有独立卫生间,让一家人既能亲密接触又互不干扰。
同时北向次卧拥有两个露台,这两个露台都是赠送的,在露台上享受阳光之时,您还可以放一些您喜欢的花草,时时刻刻与大自然亲密接触。
北入联排别墅说辞
联排别墅一共有4层,地下一层,地上三层。
总建筑面积约210㎡
从我们的大门处就体现出了别墅的豪华气质,我们的大门使用的是铁艺门,这在普通住宅中是看不到的,铁艺门起源于欧洲,一直以来都伴随着建筑艺术的发展。
铁艺门的主要材料是钢,这种钢的选用也有讲究,表面的纹饰也是经过特殊处理的,这种严苛的做工要求,也正好体现了别墅主人的尊贵。
从这个模型我们能够看到,从铁艺门进去,顺着楼梯下去就到了我们别墅的地下一层,地下一层有南向庭院,这个庭院是赠送的,您可以在这里种植花草树木,炎热的夏日,在遮阳伞下和家人朋友边聊天边喝着冷饮,享受着湖面吹来的凉凉微风,是多么的惬意。
地下一层同时还配有多功能室、储藏间、洗衣房、卫
生间,多功能室您可以根据您的兴趣爱好,随意布置。
如果您喜欢运动,您可以把这里作为您室内运动的场所,放置一些跑步机等运动器械;如果您是影音爱好者,还可以把这里布置成家庭影院;如果您喜欢藏酒,那这里完全可以成为您藏酒的地方。
您也可以把这里打造成棋牌室,和朋友家人在这里休闲娱乐,丝毫不会影响楼上家人的休息。
顺着这个楼梯就到了我们联排别墅的地上一层,独立入户,一步花园,彰显尊贵,入户玄关,私密性更强,挑空的过厅增加了局部空间和高度,彰显出住宅的豪华气度,您入住之后也可以把挑空部分分成两层,增加一些使用面积。
挑空部分的面积是赠送的,这样的设计我们虽然会损失一些面积,同时建筑成本也会增加;但是会您的生活更加的便利和舒适。
开间7.2m的超豪华客厅,同时配备南向观景阳台,使整个客厅通透明亮;同时这里也是您会客的绝佳之所。
一楼还有一间客人房,朋友来家里做客,晚上可以住在这里。
二楼南有阳台,北有露台,南北通透,通风采光效果非常棒。
并且露台免费赠送给您,您可以在露台上摆放喜欢的花草,放上一张小桌,茶余饭后,坐在躺椅上,享受着阳光与惬意凉风,生活与工作的琐事抛之脑后。
二楼有两个南向卧室,其中一个卧室与阳台相连,享受阳光的同时,也可尽享天湖美景。
通过室内L型楼梯就可以进入三楼。
三楼是主人房,阳光豪华主卧附带专属卫浴空间,并设有步入式衣帽间,既可以井然有序地存放衣物,又可以拥有完全自我的私密空间。
南北各赠送露台,打造您的私家花园。
虽然联排总建筑面积不大,但是多露台的设计,可以尽享至尊奢侈空间
南入联排户型说辞:
南入联排与北入的不同在于,北入是从一层进入,南入联排则是从南侧庭院进入。
同时,南入联排地下一层的客厅是挑空的,挑空部分增加了客厅空间和层高,相对于普通平层住宅更能体现出尊贵感。
(其他参照北入联排)
叠加别墅户型说辞:
叠加别墅在整个别墅区的北侧,也是整个别墅区地理位置最高的,背靠青山。
阳台和多露台的设计,使阳光洒满您的每个房间。
叠加别墅一栋4层,1、2层是一户;3、4层是一户;1、2层我们称为下叠面积在180㎡,3、4层我们称为上叠,建筑面积约160㎡左右。
虽然面积与平层住宅相当,但多露台及庭院的设计,让您尽情享受别墅独有的空间,同时享受到别墅独有的尊贵,铁艺大门,一步花园,独立入户等,这些在平层住宅中都是无法享受到的。
我先给您介绍一下一层,从这个模型里我们也可以看到,进入别墅独有的铁艺大门,就看到了庭院。
庭院和车位是免费赠送的,一步花园让您时刻与自然亲密接触。
一层整体布局为两室两厅一卫一厨,一层专设老人房,让老人安享无忧健康晚年。
书房您也可以改造成一间卧室。
同时一层布局合理,动静分区,减少了相互之间的干扰。
二层是您休息的主要地方,一共三个卧室。
阳光豪华主卧附带专属卫浴空间,并设有步入式衣帽间,既可以井然有序地存放衣物,又可以拥有完全自我的私密空间。
同时主卧配有观景阳台,享受阳光的同时也可以,尽揽天湖美景。
从这个模型上您也可以看到,我们在北侧专设有下沉式庭院,充分满足了一层北侧的采光与通风。
最重要的是给你一种天地合一的感受。
三四层就是另外一户,从北侧通过楼梯进入,从户型图上也能看出,三四层
也拥有自己独立的庭院与停车位。
同时由于1、2层与3、4层的入户方式不一样,有效地避免了两家相互干扰的问题。
3、4层与1、2层相比,没有太大的差别,四层少了一个卧室,多出了一个免费赠送给您的南向大露台,180度观景。
夜晚躺在露台上的椅子上,,欣赏着天湖独有的夜空,也是一种非常惬意的生活。