光伏幕墙施工工法
- 格式:docx
- 大小:202.50 KB
- 文档页数:15
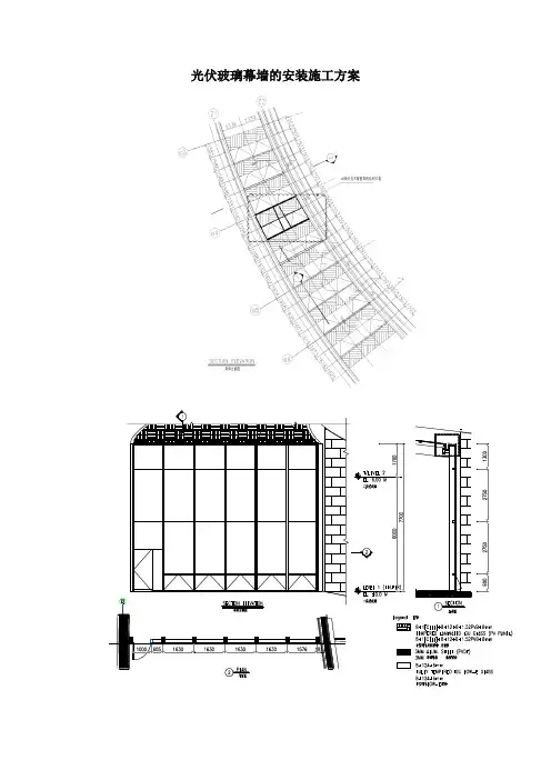
光伏玻璃幕墙的安装施工方案3.1幕墙系统的安装本项目使用的框架式幕墙为全断桥式框架式幕墙,详见下列图:从图中可见,由于本项目玻璃较大,为了防止LOW-E中空玻璃外层玻璃在负风压情况下脱落,我们将玻璃外片和内片形成错边,将胶打在第一片玻璃上,保证了框玻璃幕墙安全。
3.2 框架式玻璃幕墙的三维调节框架式玻璃幕墙系统的三维调节是靠以下设计完成的:法向内外方向—靠带有腰孔的钢码与立柱之间做内外方向调节,用方垫片焊接完成定位;上下水平方向—靠钢码与埋铁之间上下左右平移完成调节,用焊接方法完成定位。
3.3 框架式幕墙的施工步骤搭外脚手架测量放线钢码安装安装立柱安装横档调整中期隐蔽工程验收防火层安装玻璃安装打胶交作业底、顶部收口验收质量节点排烟窗安装3.4 框架式幕墙的施工工法本项目框架式玻璃幕墙的立面特征是:玻璃幕墙分成若干块,因此,我们确定了以下工法:A.工法一:框架式玻璃幕墙系统支承系统安装目的:通过支承系统安装,为玻璃面板安装创造条件。
工具:全站仪、线锤、卷尺、钢丝、扳手、点焊机等步骤:a.先用全站仪打线,绷出每片ц型幕墙角部的钢丝垂线;b.用卷尺量出立柱所在位置,用线锤上下放线,安装钢角码;c.由下而上安装立柱;d.调整立柱在同一垂直面,大焊定位;e.安装铝横通。
B.工法二:框架式玻璃幕墙系统面板与窗扇安装目的:本系统固定面板与窗扇是同步安装的,本作业完成即系统完成。
工具:倒顺钻、套管、卷扬机、塞规步骤:a.将玻璃单元用卷扬机吊到相应位置的脚手架上;b.用倒顺钻将固定玻璃单元用螺栓初固定在相应位置上;c.用塞规调整固定玻璃单元间隙并加以固定;d.防水作业。
3.5 框架式玻璃幕墙注意事项框架式玻璃幕墙系统施工注意事项:A.测量玻璃幕墙土建结构体的测量:根据土建提供的轴线和标高为依据,进行复测工作。
各准点之间应成90 夹角并呈闭合状态。
准点间联线距离用50米钢卷尺。
光伏幕墙施工的工艺流程1.施工前需对幕墙结构进行检查和测量。
Before construction, it is necessary to inspect and measure the curtain wall structure.2.确保幕墙结构的稳固和平整,以确保光伏组件的安装。
Ensure that the curtain wall structure is stable and flat to ensure the installation of photovoltaic modules.3.对幕墙表面进行清洁和处理,以保证光伏组件的粘附力。
Clean and treat the curtain wall surface to ensure the adhesion of photovoltaic modules.4.单位化设计光伏组件的安装方案,确保安全和稳定。
Design the installation plan of the photovoltaic modules in a unitized manner to ensure safety and stability.5.安装支架和连接件,为光伏组件的安装做准备。
Install brackets and connectors to prepare for the installation of photovoltaic modules.6.按照设计要求进行光伏组件的安装,确保安装的准确性和稳固性。
Install the photovoltaic modules according to the design requirements to ensure the accuracy and stability of the installation.7.进行光伏组件的电气连接和测试,确保连接的可靠性和安全性。
Perform electrical connection and testing of photovoltaic modules to ensure the reliability and safety of the connection.8.对光伏幕墙的整体进行检查和测试,确保施工质量。
超大面积曲面一体式光伏屋面施工工法超大面积曲面一体式光伏屋面施工工法一、前言光伏屋面作为清洁能源发电的一种重要形式,在现代建筑中得到了广泛应用。
随着科技的发展,超大面积曲面一体式光伏屋面施工工法应运而生,它具有独特的工法特点和适应范围,能够更好地满足大面积曲面建筑的光伏发电需求。
二、工法特点超大面积曲面一体式光伏屋面施工工法具有以下特点:1. 适应性强:能够适应各种形状和尺寸的建筑物,包括球面、曲面等非常规形状。
2. 自成体系:光伏屋面与屋面本体融为一体,不需要额外的框架和支撑结构。
3. 高效施工:采用工厂化预制模块和现场快速连接的方式,施工速度快,工期短。
4. 水密性好:采用特殊的胶粘剂和密封材料,确保屋面的水密性和防渗漏性。
5. 高度集成化:光伏模块与其他屋面材料的集成性好,能够保持建筑外观的统一。
三、适应范围超大面积曲面一体式光伏屋面施工工法适用于以下范围:1. 商业、工业和居住建筑的屋面发电系统。
2.大型体育场馆、会展中心和景区的曲面屋面光伏发电项目。
3. 其他需要满足建筑外观要求的大面积屋面光伏项目。
四、工艺原理超大面积曲面一体式光伏屋面施工工法基于以下原理进行工程实施:1. 结构适应性原则:光伏组件的尺寸和形状要与建筑屋面相匹配,确保屋面的完整性和稳定性。
2. 材料选择原则:选择适合曲面屋面工程的光伏模块材料和胶粘剂,确保良好的粘结强度和防水性能。
3. 施工流程原则:合理划分施工阶段,确保施工过程的有序进行,减少施工风险。
4. 质量控制原则:通过严格的质量控制措施,确保工程施工质量和建筑安全性。
五、施工工艺超大面积曲面一体式光伏屋面施工工法的具体施工工艺包括以下阶段:1. 设计和方案制定:根据建筑物的尺寸和形状,进行光伏屋面的设计和方案制定。
2. 材料准备:准备光伏模块、胶粘剂、密封材料等施工所需材料。
3.屋面处理:对屋面进行清洁和处理,确保施工的基础环境良好。
4. 模块安装:将预制的光伏模块按照设计要求进行安装和连接。
光伏幕墙施工工法光伏幕墙施工工法1. 简介光伏幕墙是利用太阳能光伏发电技术嵌入建造幕墙中,将阳光转化为电能的一种新型建造立面装饰材料。
光伏幕墙施工工法是指在幕墙安装过程中,将光伏组件与幕墙结构相结合,实现光伏发电功能。
2. 材料准备2.1 光伏组件:选用符合国家标准的光伏组件,具备高性能、高可靠性和长寿命等特点。
2.2 幕墙结构:选择适合搭载光伏组件的幕墙结构,确保承载能力和稳定性。
2.3 连接件:使用专门的光伏幕墙连接件,确保光伏组件与幕墙结构的坚固连接。
3. 施工步骤3.1 预处理:对幕墙结构进行清理、防锈、涂漆等处理,确保表面光洁。
3.2 安装光伏组件支架:根据设计要求,将光伏组件支架固定在幕墙结构上。
3.3 安装光伏组件:将光伏组件按照设计图纸要求进行布置和固定,同时确保组件之间的间距和对称性。
3.4 连接路线:根据设计要求,将光伏组件之间的连接路线进行布置和连接,同时与电网系统连接。
3.5 电气连接:将光伏组件的正负极与逆变器连接,确保光伏发电系统的正常运行。
3.6 安装其他幕墙辅材:根据设计要求,安装其他幕墙辅材,如玻璃、隔热材料等。
3.7 完成验收:进行光伏幕墙施工的验收工作,包括系统的电气性能、光伏组件的固定度和外观质量等。
4. 施工注意事项4.1 安全防护:施工人员应遵守相关安全规定,佩戴防护装备,确保工作的安全进行。
4.2 质量控制:严格按照施工工艺要求进行施工,保证光伏幕墙的质量。
4.3 施工现场管理:做好施工现场的管理工作,确保施工过程的有序进行。
4.4 定期维护:完成施工后,定期对光伏幕墙进行维护和检查,保证其正常运行。
5. 本文档所涉及附件如下:附件一:光伏幕墙施工工法设计图纸附件二:光伏组件选型报告附件三:光伏幕墙施工验收标准6. 本文档所涉及的法律名词及注释:(1) 光伏发电:利用光伏效应将太阳能转化为电能的过程。
(2) 幕墙:建造外墙的一种装饰材料,由支撑结构、幕墙板和透明材料组成。
光伏发电玻璃幕墙施工工法一、前言近年来,光伏发电被广泛应用于各种建筑物的建设中。
其中,光伏发电玻璃幕墙施工工法是一种能够提高建筑物节能性能的新型技术。
本文将介绍光伏发电玻璃幕墙施工工法的工艺原理、施工工艺、机具设备、质量控制、安全措施、经济技术分析以及实际工程应用实例。
二、工法特点光伏发电玻璃幕墙施工工法以透明钢化玻璃作为发电模块,采用特殊处理工艺将光伏电池片嵌入玻璃内部,形成玻璃幕墙的一部分。
光伏发电玻璃幕墙具有以下几个特点:1. 玻璃幕墙和光伏发电一体化,从而节省了建筑外表面积;2. 墙体从原来的单一功能防护转变成了光伏发电发电墙,增加了墙体的功能性;3. 改善了建筑物外立面的隔热保温性能,提高了建筑的节能性;4. 具有良好的美观性和装饰性,可以满足建筑物的装饰需要。
三、适应范围光伏发电玻璃幕墙施工工法适用于各种建筑物(如商业建筑、行政办公楼、体育馆、博物馆等)。
它可以替代传统墙面材料,并增加了光伏发电的功能。
同时,它也可以作为新建建筑物的一个组成部分,以满足国家节能和环保要求。
四、工艺原理光伏发电玻璃幕墙施工工法的核心是将光伏电池组件嵌入到玻璃中,并保证玻璃本身强度和安全性。
该工法的理论基础是利用太阳光线照射光伏电池组件发电的原理。
在实际施工中,该工法的核心工艺是玻璃加工工艺。
即将由几块玻璃片组成的幕墙玻璃按照光伏电池组件的尺寸和排列方式进行切割、钻孔、磨边、冲击、钢化等工艺处理,然后进行光伏电池组件的封装集成,使其具有光伏发电的功能。
五、施工工艺1. 玻璃加工:按照光伏电池组件的尺寸和排列方式,对幕墙玻璃进行切割、钻孔、磨边、冲击、钢化等工艺处理,以满足光伏电池组件的加工要求。
2. 光伏电池组件的加工和集成:将光伏电池、载流板、I-V转换器等电气元件封装成光伏电池组件,然后与玻璃进行集成。
3. 玻璃幕墙的安装:将单个光伏发电玻璃幕墙模块安装在幕墙支架上,进行连接、接线和测试等工作。
4. 接线和测试:连接电缆,测试电性能以及保证安全性。
光伏幕墙施工工法xxxxxxxxxxxxxxxxxxx xxx1.前言光伏幕墙是太阳光电池与建筑围护结构或建筑材料相结合形成光伏组件,光伏电池组件安装在建筑外墙面作为建筑围护结构的一部分,通过逆变器转换提供建筑物用电或并入电网。
我国太阳能资源极其丰富,年日照时间在2500h的地区占国土面积的2/3以上,陆地表面每年接受的太阳辐射能约为50x1018kJ,全国各地太阳年辐射总量达335~837kJ/cm2·a,平均值为586kJ/cm2·a。
利用太阳能发电是一种清洁、环保能源,它简单可行,安全可靠,具有可持续永久性、无需消耗燃料及机械转动部件、亦无需架设输电线路,因此受到世界各国的欢迎,太阳能电力系统以其供电稳定可靠、安装方便,已得到越来越广泛的应用,逐步成为常规电力的一种补充和替代。
在国际光伏市场蓬勃发展的拉动和国家政策的引导激励下,近年来我国光伏产业发展迅猛,光伏技术得到了大幅度提高,逐渐克服了发电成本高的障碍,在建筑工程中得到了推广和应用,并作为太阳能—建筑一体化的重要内容,在节能工程中取得了显著效益。
2.工法特点2.1 光伏幕墙发电原材料采用太阳能是一种清洁、环保能源,而且取之不尽用之不竭,是丰富永久性天然能源。
2.2 太阳光电转化安全可靠,并直接通过并网逆变器,把电能送上电网,由于不需要蓄电池,无需机械部件与传动系统,可节省设备投入费用。
2.3 光伏幕墙既可作发电部件、集热系统,又可做建筑墙体外围护结构,有利于降低建筑结构与装饰成本。
2.4 光伏幕墙不用单独建设厂房、车间,依附在房屋工程上,可节地、节省发电基建费用。
2.5 系统采用太阳能电池组件,使用寿命长,≥25年,衰减小,具备良好的耐候性,防风、防雹。
能有效抵御湿气和盐雾腐蚀,无毒无害。
2.6 太阳光能转换为电能,转换效率高,不产生垃圾及废弃物,有利于环境保护,减少常年维修与处理费用。
2.7 太阳光电安装简单方便,无噪音,无污染,建设周期短,自动调控,无需人员值守,也无需线路架设,减少常年运行费用。
单元式双层光伏幕墙快速安装施工工法一、前言近年来,随着环保意识的不断提升,绿色建筑的概念逐渐成为建筑界的热点话题。
而其中,以光伏幕墙为代表的可再生能源建筑已成为了近年来建筑界所追求的一种新型建筑设计理念,其已经成为未来建筑设计的发展趋势。
在光伏幕墙的建设过程中,单元式双层光伏幕墙快速安装施工工法就是其中的一种比较先进的建设方式。
二、工法特点单元式双层光伏幕墙快速安装施工工法采用的是单元式组装设备,在施工时可以实现快速插接式搭建,大大提高了施工效率,缩短了施工周期,同时也提高了安装质量,减少了安装中产生的质量问题,节省了很多人力成本。
三、适应范围单元式双层光伏幕墙快速安装施工工法适用于各种形状的建筑物,如综合办公楼、商业建筑和公共建筑等。
适用于建筑物的外墙、幕墙和顶部的太阳能电池板的安装。
四、工艺原理单元式双层光伏幕墙快速安装施工工法的理论依据主要基于“单元式组装”和“插接式搭建”两个方面。
它结合了单元式的组装设备和工艺流程从而实现了光伏幕墙在建筑设计中的快速搭建和安装。
具体操作流程如下:1、选择合适的安装位置和方位,并测量出相应的尺寸和面积;2、质量有保障的情况下,选用优质的幕墙制品,并进行裁剪;3、在制品的表面涂抹适当的胶水或双面胶,将幕墙与墙体连接,同时用夹具进行固定;4、插接幕墙之间需要连接的部分,并进行固定,完成安装。
五、施工工艺1、质量检验:在安装之前必须要进行一次严格的质量检验,以确保幕墙的质量满足施工要求。
2、现场测量:对安装位置进行现场测量,以准确的计算出需要使用幕墙的数量。
在现场测量的同时,还要对墙体的平整度、垂直度、水平度、面积等进行测量并记录下来,以便于后续的安装工作。
3、幕墙制品的准备:从供应商的库存中选择合适的幕墙制品,进行必要的裁剪和加工。
同时还要检查幕墙制品的质量,如表面的平整度、线条的粗细以及幕墙的边缘和接口是否平整。
4、涂胶安装:在幕墙制品的表面涂上适量的胶水或双面胶,然后将幕墙置于墙体上,用夹具夹紧并进行固定。
光伏幕墙一体化安装施工工法光伏幕墙一体化安装施工工法一、前言光伏幕墙一体化安装施工工法是一种集光伏发电和建筑幕墙于一体的创新型建筑技术,通过安装光伏组件在建筑幕墙上,利用太阳能发电,既增加了建筑的美观性,又实现了清洁能源的利用。
本文将详细介绍该工法的特点、适应范围、工艺原理、施工工艺、劳动组织、机具设备、质量控制、安全措施、经济技术分析和工程实例。
二、工法特点光伏幕墙一体化安装施工工法具有以下特点:一是充分利用建筑幕墙的可利用面积,提高太阳能发电效益;二是能够增加建筑的外观美观性,提高建筑的整体形象;三是具有一定的隔热和保温效果,改善室内舒适度;四是减少对土地的占用,节省资源;五是便于维护和管理,延长使用寿命。
三、适应范围光伏幕墙一体化安装施工工法适用于各类建筑,特别是大型商业综合体、高档写字楼、宾馆酒店、医院等场所。
在城市建筑中,光伏幕墙一体化工法可以充分利用高层建筑的外墙空间,最大程度地提高电力发电量。
四、工艺原理施工工法与实际工程之间的联系:通过将光伏组件与建筑幕墙结合,利用光伏组件吸收太阳能的特性,将太阳能转化为电能,通过逆变器转换为直流电,供电使用。
光伏组件的安装位置需根据建筑幕墙的结构和设计来确定,其中夹层式幕墙可通过加装夹层板完成。
采取的技术措施:1. 预处理:清洁建筑幕墙,确保表面无灰尘和油污。
2. 定位安装:根据建筑幕墙结构和设计,确定光伏组件的安装位置。
3. 固定连接:使用专用的夹具将光伏组件固定在建筑幕墙上,并确保牢固连接,防止组件松动或掉落。
4. 电气接线:将光伏组件与逆变器连接,完成输电线路的接线和接地工作。
五、施工工艺1. 预处理:清洁幕墙表面,确保无灰尘和油污;2. 定位安装:根据设计要求确定光伏组件的安装位置;3. 固定连接:使用夹具将光伏组件固定在幕墙上,并确保连接牢固;4. 电气接线:将光伏组件与逆变器连接,完成电气接线;5. 联调测试:进行组件功率输出测试,确保正常工作。
单元式双层光伏幕墙快速安装施工工法单元式双层光伏幕墙快速安装施工工法一、前言随着可再生能源的重要性逐渐增强,光伏幕墙作为一种新型建筑外墙装饰和发电系统,受到了广泛的关注。
在传统光伏幕墙的基础上,单元式双层光伏幕墙快速安装施工工法应运而生。
该工法通过采用特定的设计与施工流程,提高了施工效率和安装质量,满足了快速、便捷、高效的施工需求。
二、工法特点1.快速:单元式双层光伏幕墙工法采用组件化设计,将光伏组件预先装配成单元,然后再进行现场快速安装。
2.便捷:由于预先组装完成的单元,现场安装时无需进行繁琐的操作,可以大幅度节约施工时间。
3.高效:通过工厂化生产和现场模块安装的方式,实现了光伏幕墙的快速交付,提高了工程进度。
4.节能环保:光伏幕墙可以将阳光转化为电能,减少对传统能源的依赖,达到节能环保的效果。
三、适应范围该工法适用于各类建筑幕墙,尤其适用于高层建筑和大型商业建筑。
同时,该工法也适用于各种光伏组件类型,如多晶硅、单晶硅和非晶硅等。
四、工艺原理单元式双层光伏幕墙工法是基于传统光伏幕墙施工工法的改进与发展。
通过预先装配光伏组件成单元,再进行整体安装,增加了施工效率和质量。
此外,该工法采用了先进的安装技术,如幕墙拉杆系统、预制单元式支撑结构等,以提高安装的稳定性和耐久性。
五、施工工艺1.光伏组件预装:在厂房中,将光伏组件预先安装成单元,并组装完成光伏支架和连接器。
2.现场施工准备:确定安装位置和支撑结构,进行现场清理和布置材料。
3.单元安装:使用专用工具将预装好的单元进行按序安装,并连接光伏组件和电气系统。
4.连接测试:对光伏组件和电气系统进行电气连接测试,确保正常工作。
5.固定与调整:对安装完成的单元进行固定和调整,以保证整体平整和稳定。
6.清理与验收:清理现场并进行质量验收,确认工程质量达到要求。
六、劳动组织为了保证工程的施工效率和质量,需要有一套完善的劳动组织方案。
具体包括施工管理人员、工程技术人员、施工人员等。
引言:光伏幕墙施工工法是一种利用太阳能发电的新兴建筑技术,它将太阳能电池板集成在建筑外立面,实现建筑外墙的发电功能。
光伏幕墙不仅具备建筑外观美观的功能,还能够向建筑提供清洁能源。
本文将介绍光伏幕墙施工工法的具体过程和要点,以及相关注意事项。
概述:光伏幕墙施工工法是在建筑外墙上安装太阳能电池板,通过光伏发电技术将太阳能转化为电能。
这样的设计不仅可以美化建筑外观,还可以利用可再生能源满足建筑的部分电力需求,降低燃煤和化石燃料的使用,减少对环境的污染。
光伏幕墙施工工法虽然在一定程度上增加了施工难度,但它的发展前景广阔,已经在一些地区和建筑中得到了广泛应用。
正文:一、设计和选材1.根据建筑外观设计要求,确定光伏幕墙的位置、尺寸、形状和排列方式。
2.选择适合幕墙施工的太阳能电池板,并考虑其性能、框架材料、玻璃表面处理等因素。
3.设计支撑结构和安装方式,确保光伏幕墙的稳定性和安全性。
二、基础工程1.根据设计要求,进行基础的土建工程。
2.在建筑外墙上设置支撑结构,确保光伏幕墙的稳定性。
3.进行电气布线工程,确保光伏幕墙的电力输出和接入建筑用电系统。
三、光伏模块安装1.根据设计要求,将太阳能电池板安装在支撑结构上。
2.确保电池板之间的间距合理,光照均匀,并根据需要进行电池板的固定和连接。
3.安装逆变器和其他光伏组件,确保光伏幕墙的正常运行和连接建筑用电系统。
四、光伏幕墙辅助设施安装1.根据设计要求,安装光伏幕墙辅助设施,如防水层、绝缘层、隔热层等。
2.确保幕墙的密封性、保温性和防水性能。
五、验收和维护1.进行光伏幕墙的验收,检查其运行情况和施工质量。
2.进行光伏幕墙的日常维护和保养,如清洁玻璃表面、检查电线接头等。
3.定期检查光伏幕墙的运行状况,确保其正常发电和安全运行。
总结:光伏幕墙施工工法是一项利用太阳能发电的新兴建筑技术,它不仅能美化建筑外观,还能够向建筑提供清洁能源。
本文详细介绍了光伏幕墙施工工法的具体过程和要点,包括设计和选材、基础工程、光伏模块安装、光伏幕墙辅助设施安装以及验收和维护。
光伏幕墙施工工法河北建设集团有限公司河北建设集团装饰工程有限公司XXXXXX1.前言光伏幕墙是太阳光电池与建筑围护结构或建筑材料相结合形成光伏组件,光伏电池组件安装在建筑外墙面作为建筑围护结构的一部分,通过逆变器转换提供建筑物用电或并入电网。
我国太阳能资源极其丰富,年日照时间在2500h的地区占国土面积的2/3以上,陆地表面每年接受的太阳辐射能约为50x1018kJ,全国各地太阳年辐射总量达335~837kJ/cm2〃a,平均值为586kJ/cm2〃a。
利用太阳能发电是一种清洁、环保能源,它简单可行,安全可靠,具有可持续永久性、无需消耗燃料及机械转动部件、亦无需架设输电线路,因此受到世界各国的欢迎,太阳能电力系统以其供电稳定可靠、安装方便,已得到越来越广泛的应用,逐步成为常规电力的一种补充和替代。
在国际光伏市场蓬勃发展的拉动和国家政策的引导激励下,近年来我国光伏产业发展迅猛,光伏技术得到了大幅度提高,逐渐克服了发电成本高的障碍,在建筑工程中得到了推广和应用,并作为太阳能—建筑一体化的重要内容,在节能工程中取得了显著效益。
2.工法特点1.1 光伏幕墙发电原材料采用太阳能是一种清洁、环保能源,而且取之不尽用之不竭,是丰富永久性天然能源。
1.2 太阳光电转化安全可靠,并直接通过并网逆变器,把电能送上电网,由于不需要蓄电池,无需机械部件与传动系统,可节省设备投入费用。
1.3 光伏幕墙既可作发电部件、集热系统,又可做建筑墙体外围护结构,有利于降低建筑结构与装饰成本。
1.4 光伏幕墙不用单独建设厂房、车间,依附在房屋工程上,可节地、节省发电基建费用。
1.5 系统采用太阳能电池组件,使用寿命长,≥25年,衰减小,具备良好的耐候性,防风、防雹。
能有效抵御湿气和盐雾腐蚀,无毒无害。
1.6 太阳光能转换为电能,转换效率高,不产生垃圾及废弃物,有利于环境保护,减少常年维修与处理费用。
1.7 太阳光电安装简单方便,无噪音,无污染,建设周期短,自动调控,无需人员值守,也无需线路架设,减少常年运行费用。
何为光伏幕墙工程施工一、光伏幕墙工程施工流程1.方案设计阶段:在进行光伏幕墙工程施工之前,需要进行详细的设计方案确定。
设计方案包括光伏组件的选型、布置方式、支架系统设计、接线方式等内容。
设计方案定稿后,需要提交给相关部门审批,获得相关资质证书。
2.基础施工阶段:在确定好光伏幕墙设计方案后,需要进行基础施工。
基础施工主要包括地基承载力测试、基础支架的安装等工作。
在进行基础施工时,需要根据设计方案确定好支架的位置和数量。
3.光伏组件安装阶段:在完成基础施工后,需要进行光伏组件的安装工作。
光伏组件的安装需要根据设计方案确定好布置方式,保证光伏组件的密封性和稳定性。
在安装过程中,需要保证施工队伍的专业技术和作业安全。
4.电气连接阶段:在完成光伏组件的安装后,需要进行电气连接工作。
电气连接工作主要包括光伏组件之间的串联和并联连接、光伏组件与逆变器之间的接线、逆变器与电网之间的连接等工作。
在进行电气连接工作时,需要严格遵守相关安全规定,确保施工质量。
5.验收阶段:在完成光伏幕墙工程施工后,需要进行验收工作。
验收工作主要包括光伏组件的性能测试、系统的运行测试、系统的安全测试等工作。
在完成验收工作后,需要颁发施工合格证书,保证光伏幕墙工程的质量。
二、光伏幕墙工程施工技术要点1.光伏组件选型:在进行光伏幕墙工程施工之前,需要选择合适的光伏组件。
光伏组件的选型需要考虑到能效比、光伏组件的尺寸、耐候性等因素。
在选择光伏组件时,需要查看供应商的资质证书和产品测试报告,确保产品质量。
2.支架系统设计:在进行光伏幕墙工程施工之前,需要设计支架系统。
支架系统的设计需要考虑到支架的安装位置、数量、材料质量等因素。
在设计支架系统时,需要严格遵循相关标准和规范,确保支架的稳定性和耐用性。
3.光伏组件安装:在进行光伏幕墙工程施工时,需要进行光伏组件的安装工作。
光伏组件的安装需要考虑到光伏组件的密封性、外观美观性和稳定性。
在进行光伏组件安装时,需要根据设计方案进行布置,确保光伏组件的整体性。
光伏发电玻璃幕墙施工工法一、前言随着可再生能源的不断提升,在建筑业领域中,光伏发电玻璃幕墙已成为一种新型的节能环保建筑材料。
其独特的结构设计和材料选择,使得其具备了百叶窗和光伏发电的双重优势,可以在满足建筑美学要求的同时,通过吸收太阳能来为建筑体提供能量,降低建筑能耗。
本文将针对光伏发电玻璃幕墙施工工法进行详细阐述。
二、工法特点光伏发电玻璃幕墙是一种新型的外墙装饰材料,采用的是半透明的光伏电池板,其特点如下:1、光伏发电:可以通过吸收太阳能来发电,可以为建筑体提供能量。
2、能量回收:通过光伏板吸收的太阳能可以回收利用,用于照明、供暖、空调等方面。
3、保温隔热:采用优质玻璃,具有较好的保温隔热效果,可有效降低建筑的能耗。
4、美观大方:采用的是透明玻璃,可以看到外面的景色,美观大方。
三、适应范围光伏发电玻璃幕墙适用于高层建筑、商业建筑、体育场馆等建筑物。
可以改善建筑物的外观效果,提供独特的设计理念,受到广泛的欢迎。
四、工艺原理在光伏发电玻璃幕墙的施工过程中,采取的技术措施主要是对玻璃表面进行切割、钻孔、贴膜、安装、调试和电气接线等工序。
在实际工程中,必须要确保光伏电池板的质量和安装精度,这是保证光伏发电玻璃幕墙工程质量的关键。
在此基础上,还需要保证施工质量符合相关标准和规范。
五、施工工艺1、预处理:确定玻璃幕墙的长度、宽度和高度等技术参数,依据设计图纸对尺寸进行切割和加工。
2、预定位:在玻璃幕墙位置上进行定位,确定玻璃幕墙的轴线和水平线。
3、贴膜:在切割好的玻璃表面上,贴上有机硅透明胶,以保证电池片与玻璃表面紧密贴合,防止玻璃表面受损。
4、组装:将玻璃从下往上顺次装配,然后和钢结构连接固定。
5、调试:将玻璃和电气装置连接后,进行电气接线,并对内部电路进行调试。
六、劳动组织光伏发电玻璃幕墙的施工需要多种人员协作,包括设计师、方案经理、施工人员、电气工程师、验收人员等,其劳动组织需要具备专业性、协调性和配合性。
光伏发电玻璃幕墙施工工法光伏发电玻璃幕墙施工工法一、前言光伏发电玻璃幕墙是一种将太阳能光伏发电与建筑幕墙相结合的创新技术,通过在建筑外立面覆盖光伏发电组件,可以实现建筑外墙的能源转化和发电。
本文将详细介绍光伏发电玻璃幕墙施工工法。
二、工法特点光伏发电玻璃幕墙施工工法具有以下特点:1. 能源转化效率高:通过光伏发电技术,将太阳能转化为电能,提供建筑所需的电力。
2. 美观度高:光伏发电组件与建筑幕墙融为一体,外观整洁、美观,并且可以根据需要选择不同颜色和透明度的玻璃材料。
3. 节能环保:光伏发电玻璃幕墙能够实现自给自足的电力供应,减少对传统电网的依赖,降低能源消耗,减少碳排放。
4. 低噪音:光伏发电玻璃幕墙使用光伏电池板发电,没有机械运动和燃烧过程,不会产生噪音。
三、适应范围光伏发电玻璃幕墙施工工法适用于各类建筑项目,包括商业办公楼、住宅楼、公共建筑等。
可以与不同类型的建筑幕墙材料结合使用。
四、工艺原理光伏发电玻璃幕墙施工工法的核心是将光伏发电组件与建筑幕墙材料相结合。
光伏发电组件集成了太阳能电池板,能够将太阳能转化为直流电,通过逆变器将直流电转化为交流电,供给建筑所需。
在施工过程中,首先需要选定合适的建筑幕墙材料,如玻璃幕墙。
然后将特制的光伏发电组件嵌入到幕墙材料中,确保光伏电池板可以正常吸收太阳能。
接下来,将组件与建筑幕墙进行固定和连接,确保整个系统的稳定性。
最后,对光伏发电系统进行调试和检测,确保正常工作。
五、施工工艺光伏发电玻璃幕墙施工工艺包括以下阶段:1. 施工准备:确定施工方案、计划施工进度,采购所需材料和设备,并组织施工人员进行培训。
2. 幕墙材料安装:根据设计要求安装建筑幕墙材料,如玻璃幕墙。
3. 光伏发电组件嵌入:根据设计方案,在幕墙材料中安装光伏发电组件,确保组件与幕墙材料的紧密结合。
4. 固定和连接:对光伏发电组件进行固定和连接,确保组件在风吹雨打的环境中不会受损,保证系统的稳定性。
季节可控型集通风、遮阳、发电为一体的多功能光伏幕墙施工工法一、前言随着可再生能源的不断发展和利用,光伏幕墙在建筑领域中应用得越来越广泛。
传统的光伏幕墙只能起到发电的作用,而现今的季节可控型集通风、遮阳、发电为一体的多功能光伏幕墙施工工法则为建筑提供了更多的功能和灵活性。
本文将重点介绍该工法的特点、适应范围、工艺原理、施工工艺、劳动组织、机具设备、质量控制、安全措施、经济技术分析以及相关的工程实例。
二、工法特点季节可控型集通风、遮阳、发电为一体的多功能光伏幕墙施工工法的主要特点如下:1. 多功能性:该工法集通风、遮阳和发电为一体,能够在不同季节实现不同功能,如冬季可以通过温室效应来提供温暖,夏季可以通过通风和遮阳来降温,还可以通过光伏发电来减少能源消耗。
2. 可控性:根据不同的季节和气候条件,可以调节光伏幕墙的通风、遮阳和发电效果,使建筑内部的温度和光照得到最佳的调节和利用。
3. 节能环保:该工法通过光伏发电、遮阳和通风系统的合理配置,可以有效地节约能源和减少碳排放,对环境友好。
4.外观美观:根据设计需求,可以根据不同建筑风格和要求来设计光伏幕墙,使建筑外观更加美观大方。
5. 维护方便:该工法在施工过程中考虑了光伏模块和通风设备的维护问题,方便后续的维修和更换。
三、适应范围季节可控型集通风、遮阳、发电为一体的多功能光伏幕墙施工工法适用于各类建筑,尤其适用于高层建筑、商业综合体、办公楼等需要大量采光和通风的场所。
四、工艺原理该工法基于以下原理:光伏幕墙的光伏模块可以通过太阳能将光能转化为电能;遮阳系统可以通过控制遮阳板的闭合程度来调节建筑内部的光照;通风系统可以通过调节通风口的开启程度来调节建筑内部的温度和湿度。
五、施工工艺施工工艺分为以下几个阶段:1. 准备工作:包括测量和设计、材料准备、场地清理等。
2. 安装光伏模块:根据设计要求和规范,安装光伏模块,并进行连接和固定。
3. 安装遮阳系统:根据设计要求,安装遮阳板,调整遮阳板和光伏模块之间的间距,保证遮阳效果。
第1篇一、工程概况1. 工程名称:XX大厦光电幕墙工程2. 工程地点:XX市XX区XX路XX号3. 工程规模:建筑面积约10万平方米4. 工程结构:框剪结构5. 工程设计单位:XX建筑设计研究院6. 工程施工单位:XX建筑有限公司二、施工组织设计1. 施工单位组织架构(1)项目经理部(2)施工技术部门(3)施工安全部门(4)施工物资部门(5)施工质量部门2. 施工人员配备(1)项目经理:1名(2)技术负责人:1名(3)施工员:3名(4)安全员:2名(5)质量员:2名(6)施工班组:若干三、施工工艺及流程1. 施工工艺(1)光电幕墙面板施工(2)光电幕墙骨架施工(3)光电幕墙安装施工(4)光电幕墙调试与验收2. 施工流程(1)施工准备(2)骨架安装(3)面板安装(4)调试与验收四、施工准备1. 施工图纸及技术文件(1)审查施工图纸,确保设计合理、规范(2)收集相关技术文件,如产品说明书、施工规范等2. 材料设备(1)光电幕墙面板:符合设计要求的产品,并经过检验合格(2)光电幕墙骨架:符合设计要求的产品,并经过检验合格(3)辅助材料:如连接件、密封胶、防雷接地等3. 施工工具及设备(1)施工电梯(2)吊装设备(3)测量工具(4)施工平台五、骨架安装1. 施工准备(1)根据设计图纸,对骨架进行加工、组装(2)检查骨架质量,确保符合设计要求(3)对施工人员进行技术交底2. 施工步骤(1)在主体结构上设置锚固点,并检查锚固点的可靠性(2)安装骨架立柱,确保垂直度及水平度(3)安装横梁,确保横梁与立柱的连接牢固(4)安装防雷接地系统,确保防雷接地有效六、面板安装1. 施工准备(1)检查面板质量,确保符合设计要求(2)对施工人员进行技术交底2. 施工步骤(1)在骨架上安装固定件,确保固定件与骨架连接牢固(2)安装面板,确保面板与骨架连接牢固(3)调整面板间距,确保面板安装平整(4)检查面板安装质量,确保符合设计要求七、调试与验收1. 调试(1)检查光电幕墙系统各部件运行状态(2)对光电幕墙系统进行调试,确保系统正常运行(3)检查光电幕墙系统与建筑物的连接,确保连接牢固2. 验收(1)检查光电幕墙系统运行数据,确保符合设计要求(2)检查光电幕墙系统外观,确保美观、整洁(3)组织验收小组进行验收,确保光电幕墙工程符合设计要求八、施工注意事项1. 施工过程中,确保施工安全,遵守相关安全规范2. 严格按照设计要求施工,确保工程质量3. 加强施工过程中的质量控制,确保施工质量符合设计要求4. 加强施工过程中的协调与沟通,确保施工顺利进行5. 做好施工记录,为工程验收提供依据九、施工进度计划1. 施工准备阶段:1个月2. 骨架安装阶段:2个月3. 面板安装阶段:2个月4. 调试与验收阶段:1个月5. 总工期:6个月十、施工成本控制1. 材料成本控制:严格控制材料采购,确保材料质量2. 人工成本控制:合理调配施工人员,提高施工效率3. 施工设备成本控制:合理使用施工设备,降低设备损耗4. 施工现场管理成本控制:加强施工现场管理,降低施工成本十一、施工总结1. 工程完成后,对施工过程进行总结,分析施工过程中的优点和不足2. 对施工过程中出现的问题进行整改,提高施工质量3. 优化施工工艺,提高施工效率4. 为类似工程提供参考,提高施工水平本施工方案旨在为XX大厦光电幕墙工程提供全面、合理的施工指导,确保工程顺利进行,达到预期效果。
光伏幕墙施工工法xxxxxxxxxxxxxxxxxxx xxx1.前言光伏幕墙是太阳光电池与建筑围护结构或建筑材料相结合形成光伏组件,光伏电池组件安装在建筑外墙面作为建筑围护结构的一部分,通过逆变器转换提供建筑物用电或并入电网。
我国太阳能资源极其丰富,年日照时间在2500h的地区占国土面积的2/3以上,陆地表面每年接受的太阳辐射能约为50x1018kJ,全国各地太阳年辐射总量达335~837kJ/cm2·a,平均值为586kJ/cm2·a。
利用太阳能发电是一种清洁、环保能源,它简单可行,安全可靠,具有可持续永久性、无需消耗燃料及机械转动部件、亦无需架设输电线路,因此受到世界各国的欢迎,太阳能电力系统以其供电稳定可靠、安装方便,已得到越来越广泛的应用,逐步成为常规电力的一种补充和替代。
在国际光伏市场蓬勃发展的拉动和国家政策的引导激励下,近年来我国光伏产业发展迅猛,光伏技术得到了大幅度提高,逐渐克服了发电成本高的障碍,在建筑工程中得到了推广和应用,并作为太阳能—建筑一体化的重要内容,在节能工程中取得了显著效益。
2.工法特点2.1 光伏幕墙发电原材料采用太阳能是一种清洁、环保能源,而且取之不尽用之不竭,是丰富永久性天然能源。
2.2 太阳光电转化安全可靠,并直接通过并网逆变器,把电能送上电网,由于不需要蓄电池,无需机械部件与传动系统,可节省设备投入费用。
2.3 光伏幕墙既可作发电部件、集热系统,又可做建筑墙体外围护结构,有利于降低建筑结构与装饰成本。
2.4 光伏幕墙不用单独建设厂房、车间,依附在房屋工程上,可节地、节省发电基建费用。
2.5 系统采用太阳能电池组件,使用寿命长,≥25年,衰减小,具备良好的耐候性,防风、防雹。
能有效抵御湿气和盐雾腐蚀,无毒无害。
2.6 太阳光能转换为电能,转换效率高,不产生垃圾及废弃物,有利于环境保护,减少常年维修与处理费用。
2.7 太阳光电安装简单方便,无噪音,无污染,建设周期短,自动调控,无需人员值守,也无需线路架设,减少常年运行费用。
光伏幕墙施工工法xxxxxxxxxxxxxxxxxxx xxx1. 前言光伏幕墙是太阳光电池与建筑围护结构或建筑材料相结合形成光伏组件,光伏电池组件安装在建筑外墙面作为建筑围护结构的一部分,通过逆变器转换提供建筑物用电或并入电网。
我国太阳能资源极其丰富,年日照时间在2500h的地区占国土面积的2/3以上,陆地表面每年接受的太阳辐射能约为50x1018kJ,全国各地太阳年辐射总量达335〜837kJ/ cm i • a,平均值为586kJ/cm i • a。
利用太阳能发电是一种清洁、环保能源,它简单可行,安全可靠,具有可持续永久性、无需消耗燃料及机械转动部件、亦无需架设输电线路,因此受到世界各国的欢迎,太阳能电力系统以其供电稳定可靠、安装方便,已得到越来越广泛的应用,逐步成为常规电力的一种补充和替代。
在国际光伏市场蓬勃发展的拉动和国家政策的引导激励下,近年来我国光伏产业发展迅猛,光伏技术得到了大幅度提高,逐渐克服了发电成本高的障碍,在建筑工程中得到了推广和应用,并作为太阳能—建筑一体化的重要内容,在节能工程中取得了显著效益。
2. 工法特点2.1 光伏幕墙发电原材料采用太阳能是一种清洁、环保能源,而且取之不尽用之不竭,是丰富永久性天然能源。
2.2 太阳光电转化安全可靠,并直接通过并网逆变器,把电能送上电网,由于不需要蓄电池,无需机械部件与传动系统,可节省设备投入费用。
2.3 光伏幕墙既可作发电部件、集热系统,又可做建筑墙体外围护结构,有利于降低建筑结构与装饰成本。
2.4 光伏幕墙不用单独建设厂房、车间,依附在房屋工程上,可节地、节省发电基建费用。
2.5系统采用太阳能电池组件,使用寿命长,>25年,衰减小,具备良好的耐候性,防风、防雹。
能有效抵御湿气和盐雾腐蚀,无毒无害。
2.6 太阳光能转换为电能,转换效率高,不产生垃圾及废弃物,有利于环境保护,减少常年维修与处理费用。
2.7 太阳光电安装简单方便,无噪音,无污染,建设周期短,自动调控,无需人员值守,也无需线路架设,减少常年运行费用。
2.8 太阳光电不仅可供自有房屋使用,亦可并网利用。
2.9 在建筑结构外表面铺设光伏组件提供电力,将太阳能发电系统与屋顶、天窗、幕墙等建筑融为一体,建造绿色环保建筑师太阳光能发电系统与现代建筑的完美结合。
2.10 享受财政补贴及相应优惠政策。
自2009 年,中华人民共和国财政部按装机容量每瓦20 元给予补贴,各市亦有政策支持。
3. 适用范围适用于房屋及附属设施的外围护结构幕墙工程,包括隐框幕墙、明框幕墙、点式幕墙、及采光顶等。
4. 工艺原理把能将太阳光转换为电能的未用电池组件,安装在建筑物或构筑物上,使其成为建筑物的构造部分,通过逆变器等未用设施把转换成的电能传输至用电器终端或并网传入供电线路。
5. 施工工艺流程及操作要点5.1 光伏幕墙安装工艺流程方案设计一部件加工、购置T预埋件安装一光电施工准备一测量放线一光电器材安装一玻璃光伏幕墙施工一线缆安装一设备就位一系统运行(工艺流程图5.1.1见下页)图5.1.1光伏幕墙安装工艺流程图5.2操作要点5.2.1方案设计:光伏幕墙程设计应遵循技术先进、科学合理、安全可靠、经济实用的基本要求,其设计原则是:1先进性原则:使系统在一定的周期内保持技术领先性,保证系统具有较长的生命周期。
2实用性原则:选用有大规模实际工程应用经验的产品,并保证其稳定性、可靠性和可维修(护)性。
3 经济性原则:在保证系统各项技术指标的前提下,努力降低工程、设备成本,提高系统的性价比。
4 建筑一体化设计:必须与建筑工程有机结合,把太阳能电池组件和屋面或墙面相结合,形成建筑物的组成部分并增加建筑整体美感。
5 选址依据:太阳能组件的放置应在建筑物上,系统不受周边建筑物的遮挡,缩短并网距离,减少输电损失与线路费用。
5.2.2 预埋件安装:由于光伏幕墙附着固定于建筑物上,因此,土建结构施工时按照图纸设计,做好系统安装部件的预埋、预留,没有预留或位置不正确的的要增加后置埋件,后置埋件用锚栓固定,并经设计计算锚栓大小,做好现场拉拔实验。
根据建筑物的屋面、墙面尺寸,设计太阳光伏幕墙的尺寸及部件组合,按照组装图做好部件的加工与购置配套工作。
5.2.3 光电施工准备:根据工程特点,准备好脚手架或电动吊篮设备,准备好技术人员与劳动力安排。
按照设计图纸进行测量放线、标注部件安装位置。
5.2.4 器件安装:主要是太阳光电系统中的转换件、连接件安装。
5.2.5 玻璃光伏幕墙施工:首先安装固定龙骨框架与结构体上的预埋件连接牢固后,然后安装太阳能光伏组件,安装过程中边对光伏组件的线缆进行连接。
质量检查无误后,对缝隙打耐候胶,并及时对玻璃幕墙清理干净,防止污染、粘结。
5.2.6 线缆连接:将各处连接件、光电转换件用线缆连接,并与变压器、开关、使用设备等,形成完整供电线路系统。
5.2.7 设备就位:将电池方阵、直流接线箱、逆变器、交流配电箱、转换器、电脑等设备分别安装就位于配电室、监控室等位置。
5.2.8 系统运行:将用电器具与设施与太阳光电系统通过配电箱、变压器联接好后,进行系统整个运行调试。
6. 材料与设备6.1 高效晶体硅太阳电池片具体要求及技术指标:无螺钉内置角键连接,紧固密封,抗机械强度高,高透光率钢化玻璃封装,采用密封防水多功能接线盒,确保组件使用安全。
表面覆盖深蓝色碳化硅碱反射膜,颜色均匀,外观精美。
产能:100mw规格:125X 125mm156X 156mm6.2 单晶体全玻电池组件技术指标要求:功率:165wp尺寸:1800X 1500mm重量:84kg峰值电压:26.5V峰值电流:6.23A开路电压:34.0V短路电流:6.74A6.3 非晶硅薄膜电池组件技术指标要求功率:95wp尺寸:1100X 1300mm重量:24kg厚度:6.8mm峰值电压:102V峰值电流:0.93A开路电压:138V短路电流:1.17A6.4 逆变器具体要求及技术指标:交流输出频率:50Hz±1%输出电压:380VAC或220VAC交流输出谐波含量:三5%逆变器效率:三94%功率因数:三0.98满载连续工作时间:〉12h6.5 电源汇流箱具体要求及技术指标:直流汇流箱:光伏幕墙和逆变器的电气连接,包括直流保护、防雷设备交流控制柜:逆变器和内部电源网络的电器连接,包括交流保护和汇流作用,电源接入电网装置、电网控制。
6.6 电网接入及监控并网系统一般由光伏方阵、并网逆变器、交直流硅电设备、监控系统等设备组成,其运行操作流程如下:所有设备连接完毕一检查系统是否正确一合上直流侧开关一并网逆变器自检-并网逆变器运行一并网成功,信息监控6.7 防雷系统及连接电缆6.7.1 防雷保护:工程中采用具有欧洲专利技术的菲尼克斯浪涌保护器,可以直、交流保护及单相、多项保护,能高速能量释放,低残压等级,快速响应 U 100ns),高绝缘电阻值。
6.7.2 电线、电缆技术参数1 硅橡胶电缆-40 C〜+ 80 r 基本要求:抗紫外线性能强,耐压等级高,绝缘性能好,机械强度大。
额定电压:1000V额定温度:-60r〜+180r导体:镀镉铜丝绝缘体:硅橡胶2 电力电缆:采用阻燃聚氯乙烯电线电缆与普通电线相比具有以下特点:不易着火或着火后防止延燃,为预防火灾提供了安全保证。
主要技术指标:额定电压:300/300V; 300/500V; 450/750V; 0.6/1KV系统配置7.质量控制7.1工程设计与施工依据标准文件7.1.1光伏幕墙连接在建筑物上;7.1.2周围的建筑物全年不遮挡整个太阳能系统;7.1.3尽量缩短到并网点距离,以减少输电损失;7.1.4能产生附加的经济、生态效益,有助于抵消部分电价成本;7.1.5当地政府的积极参与和支持,提供优惠政策和各种便利条件;7.2质量控制措施在项目设备安装调试过程中实施有效管理,以保证安装质量达到规定要求7.2.1施工组织设计施工组织设计应体现进度可控、质量优良、安全环保的思想,选择合理的施工方案。
产品安装调试过程中须有施工组织结构、人员及设备配备、安装进度、作业指导书等文件的内容。
7.2.2 施工前的准备工作1)技术资料的准备产品安装前,项目经理将安装订货合同及相关技术资料、图纸等交付现场施工负责人。
2)人员、仪器及工具的配置选用技术数量的小组承担该工程的施工作业,这样能从现场施工作业的第一道环节上控制施工质量、减少浪费、缩短工期、降低成本和造价。
3)产品的清点及摆放施工现场负责人在施工现场将产品依据清单予以清点验收,并作好记录。
产品按安装顺序摆放,作好标识并予以监护。
4)基础验收对现场提供的设备,施工现场负责人组织专业技术人员对设备进行测量验收,并作好记录。
7.2.3 实施过程中的质量控制按照施工组织计划进行有序安装。
材料设备进入施工现场要有严格的验收制度,对其数量和质量进行签收,不符合要求的,坚决拒签;材料在使用过程中,要严格按照施工材料消耗定额和工程进度安排用料,限额领用,并对材料使用量上进行监督,防止浪费,合理使用资料。
在安装中发现产品质量问题及时提出更改申请,由项目经理认定并更改。
设计变更通知书由施工现场负责人负责存档保存。
1)检验工作在产品安装期间,施工现场负责人指派专职人员对产品各部安装精度进行测量与检验。
并做好《设备安装检验、调试记录》,署名检验日期和检验人。
2)设备调试设备安装完毕,对设备进行检查和测试,测试结果作好记录。
3)系统调试工程安装完毕,对系统进行测试,测试结果作好记录。
7.2.4 试运行前设备移交系统最终交付业主时,项目经理应为客户提供交付系统设备清单,并共同签字认可,保证系统进入试运行阶段。
7.2.5 试运行及服务措施系统运行期间,将根据实际情况对系统进行优化,应派技术专家或工程师到用户指定的地点,提供现场技术支持及服务。
7.3 质量验收标准7.3.1 主控项目1、光伏幕墙工程所使用的各种材料,材料和组件应有产品合格证书、进场验收记录、性能检测报告和材料的复验报告,其质量应符合设计要求及国家现行产品标准和工程技术规范的规定。
检验方法:检查材料、构件、组件的产品合格证书、进场验收记录、性能检测报告和材料的复验报告。
2、玻璃幕墙的造型和立面分格应符合设计要求。
检验方法:观察;尺量检查。
3、幕墙玻璃品种、厚度、颜色、光学性能以及组件夹层玻璃中PVB夹层胶片的厚度应符合设计要求和产品标准。
检验方法:观察和尺量检查。
4、光伏幕墙与主体结构连接的各种预埋件、连接件、紧固件必须安装牢固,其数量、规格、位置、连接方法和防腐处理应符合设计要求。
检验方法:观察;检查隐蔽工程验收记录和施工记录。
5、各种连接件、紧固件的螺栓应有防松动措施,焊接连接应符合设计要求和焊接规范的规定。