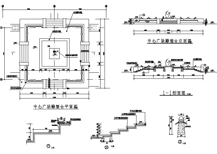
【设计图纸】景观雕塑标志设计施工图041(精选CAD图例)
- 格式:dwg
- 大小:261.96 KB
- 文档页数:22
景观施工图制图规范一、总则施工图的设计文件要完整,内容、深度要符合要求,文字、图纸要准确清晰,整个文件要经过严格校审,避免“错、漏、碰、缺”。
1、工作目标1.1规范化——有效提高设计的工作质量。
1.2标准化-—提高设计的工作效率。
1。
3网络化——便于网络上规范化管理和成果的共享。
2、工作范围本规范是依据建筑CAD制图的统一规则,景观工程施工图设计流程,适用于我公司景观工程及相关领域中的CAD制图。
3、工作风格3。
1本标准为形成景观专业CAD绘图表达的风格的统一.3.2设计人员应在日常的工作当中,可以总结一套自己熟练掌握的方式.但CAD制图的表达应清晰、完整、统一。
图纸由多人绘制时,须由项目负责人在前期提供必要的资料,提出统一的绘制标准、施工工艺、文本格式、表达方式等.二、制图规范与作图软件设置1、图纸分各专业编号方式如下:(XX=01,02…)1.1图纸封面、1。
2目录、1。
3景观设计总说明:L—SM—XX1。
4总图(L—ZT—XX):总平面、竖向/排水图、尺寸定位图、坐标定位图,方格网定位图,铺装索引图、施工总索引图、及景点设施布置图等1.5详图(L-YS—XX):节点详图,道路铺装详图、水景详图、景观建筑详图、小品详图等1。
6绿化(L—LS—XX):种植设计说明、苗木表、乔灌木种植平面图、地被种植平面图、种植网格放线图等1。
7水施(L-SS—XX):喷灌设计说明、喷泉系统图、喷灌平面图、喷灌系统图、喷泉喷灌节点等1。
8电气(L—DS—XX):电气设计说明、电照系统图、电照平面图、背景音乐系统图、背景音乐平面图、电气施工节点等备注:各专业的设计文件应经严格校审、签字后,方可出图及整理归档。
2、图纸深度施工图设计应根据已通过的方案设计文件、初步设计文件及设计合同书中的有关内容进行编制。
设计深度应满足以下要求:2。
1 能据以编制施工图预算;2。
2 能据以安排材料、设备订货及非标准材料的加工;2。
3 能据以进行施工和安装;2.4 能据以进行工程验收;在设计中应因地制宜地积极推广和正确选用国家、行业和地方的建筑标准设计,并在设计文件的设计说明中说明图集名称和页次.关于设计说明书和图纸应表达的内容、深度等要求,是考虑对园林景观工程通用而编制的。
5 景观专业AUTOCAD制图规范鉴于我国目前尚未有景观专业设计的制图图例,为统一公司出图的模式,提高图面质量和工作效率,现根据景观设计的特点,针对工程图纸上需注意的要点,编制此图例、模板的规定,供公司设计部门统一执行。
5.1 适用范围本制图规范适用于公司所有景观设计项目(包含公司CAD初步设计、施工图设计)。
5.2 职责由技术负责人和项目经理负责要求设计小组成员按照本规范所制定的条理和图例进行景观设计工作,并由技术总监监督、审核后方可出图。
5.3 说明5.3.1 图纸一般为A3~A0规格,如有其它特殊情况时,由技术总监和项目经理根据实际情况依照建筑制图规范的相应标准进行调整。
5.3.2 本规定的图例、符号、颜色极其所在图层为统一固定形式,在实际制图过程中必须严格执行。
5.4 CAD制图常规形式及图例、色彩的规定5.4.1 外包装(封面)见模板1(横版,含A0~A3)5.4.2 内页a 图框模板,见模板2 。
b 图纸目录模板及排序方式,见模板3 。
c 设计说明模板(各专业),见模板4 。
5.4.3 图层、图例、格式(文字、标注、打印)模板a 在画图时,先把所需画的图拷贝此模板中,按照此模板进行图层归整,删掉不需要的层;模板中的图例(随层)只需进行拷贝和修改,无需再更改图层即可。
b 总图图层、图例、格式模板(见模板5,图例中已经规定了使用方法、所在的图层、颜色、线型、图块、画图的空间等)。
C 详图图层、图例、格式模板(见模板6,图例中已经规定了使用方法、所在的图层、颜色、线型、图块、画图的空间等)。
d 通用图图层、图例、格式模板(见模板7,图例中已经规定了使用方法、所在的图层、颜色、线型、图块、画图的空间等)。
e 材料统计表、铺装图例表、灯具图例表、配套设施图例表、灯具选型意见书、雕塑选型意见书、配套设施选型意见书、设计变更通知单格式模板(见模板8,图例中已经规定了使用方法、所在的图层、颜色、线型、图块、画图的空间等)。
2024年景观施工图各图总结范文第一章:项目概述2024年的景观施工图包括了多个图纸,从整体规划到具体细节都有详细的设计。
本文将对这些图纸进行总结和分析,以便更好地了解该项目的规模和设计。
第二章:总平面图总平面图是整个景观项目的鸟瞰图,展示了各个功能区的布局和大小。
从总平面图中可以看到,整个景观项目分为主要步行区、草地区、花坛区和水池区等几个主要功能区。
其中,主要步行区贯穿整个景观,连接了各个功能区。
草地区和花坛区则作为景观的绿化部分,增加了空间的美感。
水池区位于中央,起到了点缀整体景观的作用。
第三章:功能分区图功能分区图进一步展示了各个功能区的具体细节和布局。
在主要步行区,规划了多条步道和休憩区,为游客提供了休息和观赏的场所。
草地区设有多个草地,用于举办户外活动和休闲娱乐。
花坛区则种植了各种花卉和灌木,为整个景观增添了色彩和生机。
水池区则设置了多个水池和喷泉,给游客带来了视觉上的享受和清新感。
第四章:道路和步道图道路和步道图展示了景观项目内的道路和步道的具体布局和细节。
在图纸中可以看到,主要步行区设有多条宽敞的人行道,还有很多支路连接各个功能区。
这些道路和步道都考虑到了无障碍通行的需求,为残障人士提供了便利。
第五章:绿化图绿化图展示了景观项目中各个绿化区域的具体布局和种植物的种类。
在图纸中可以看到,草地区种植了多种草坪和地被植物,花坛区则种植了各种花卉和灌木。
设计师根据不同的季节和色彩搭配了不同的植物,使整个景观在不同的季节中都能展现出不同的美感。
第六章:水池和喷泉图水池和喷泉图展示了景观项目中水池和喷泉的具体形状和设计。
通过这些图纸,我们可以看到,水池和喷泉的形状各异,有的是长方形的,有的是圆形的,还有的是弯曲的。
这些水池和喷泉不仅起到了装饰景观的作用,还可以为游客提供凉爽和娱乐的场所。
第七章:灯光图灯光图展示了景观项目中灯光的具体布局和设计。
通过这些图纸,我们可以看到,灯光分别设置在各个功能区和路灯上,以提供足够的照明。
xxx项目景观设计工作范围及内容一、概念方案阶段1、概念方案图纸名称图纸内容备注景观总平面方案主要表达出概念构思,场地空间概念草图分析、景观方案总平面、分析图交通流线分析草简单内、外部交通分析;人、车交通图组织与划分景观布置分析图景观区划分,景观节点布置方案草图意向图主要表达各主要景点透视意向效果片重要空间关系重要的局部地形或空间展示、处理(大堂外后区、客房后挡土墙、主入口及酒店主楼正面区域、连廊、水景等等)植物配置意向主要景点的植物效果与植物选型、搭照片、图片配。
2、方案草图初稿修改或确认发包人在五个工作日内书面确定或提出修改意见,修改仅对概念方案总平面进行调整(方案颠覆性意见另议)。
此次调整后的成果不再单独确认,而是在方案阶段体现;在收到调整后成果后三日内书面确认此阶段工作,进入下一个阶段。
二、方案阶段成果1、方案文本成果( A3)图纸名称图纸内容备注第一部分景观设计说明阐述设计理念和构思,形成整体风格,并能体现园区风格彩色总平面方案彩色总平面图、景点索引及文字表述、总体地图形变化处理方案景观分区平面图分区彩色平面、景点索引及文字表述、相关意向图片、总平上分区位置索引图景观透视图、鸟瞰重要节点透视效果图、总体鸟瞰效果图剖面、立面图相应重要节点剖面、相关意向图片、在本区上根据需要位置意向图片主要景观的意向图片、材料选用意向图片、小品、雕塑意向图片第二部分园林设计说明对现有植物作出评估,明确选种原则及设计思路,结合建筑设计风格明确植物搭配特色与氛围营造植物规划总平面表达植物配置分区(结合景观点、水系、绿地),总体植物效果方案季相设计根据各区季相变化,呈现出的不同园林效果(整体上平衡,局部体现不同特色)放大平面、剖面,表达植物层次关系重要节点植物详细配置图材质成果提交主要植物、小品、铺装材料等相关材质手册。
第三部分经济评价项目估算书其中包括植物品种、数量及价格统计表2、方案修改及确认发包人在收到方案文本第二日起五个工作日内书面确认或提出修改意见,修改仅针对总平面方案图细部进行调整,发包人在修改调整图提交后三个工作日内书面确认此阶段工作,至此方案阶段结束。
20XX建筑设计CAD图纸大全|上万个精品设计施工CAD图纸整套共有上万个工程设计图纸,全CAD格式(可直接修改\编辑等);让你建筑施工图纸设计无忧!全套重新整理(包括最近更新)共有8张DVD光盘,20G以上;适合于项目经理、施工人员、设计人员、工程专业方面学生及教师等使用。
建筑设计CAD图纸大全:建筑设计图纸大全包含建筑设计工程中主要的以下几种图纸:建筑立面图/建筑剖面图/建筑平面图/建筑总平面图/建筑工程施工图/建筑施工图/建筑工程图等。
针对不同的功能发挥特定的作用。
本产品包含上万个建筑设计图纸,总容量超过10g,全部为CAD格式,可直接修改编辑,让你轻松搞定建筑设计图?产品涉及建筑施工各个专业领域,如:纯剪结构施工图纸、底框结构施工及设计图纸、钢砼框架施工图纸及设计图纸、框剪结构方面建筑施工图纸及设计图纸、内框结构方面施工图纸及设计图纸、砌体结构方面设计图纸、网架结构设计图纸、管道设计用阀门管件设计图纸、园林方面设计图纸、水利方面设计图纸、景观及古建设计图纸、商业综合建筑方面施工图纸、住宅小区建筑设计施工图纸、交通建筑方面设计图纸、别墅建筑方案设计图纸、医疗公共建筑设计图纸、教育建筑方面施工图纸、体育建筑CAD设计图纸、展览建筑方面设计图纸、观演建筑设计图纸、工业/农业建筑图纸、电力工程方面图纸、电气方面节点图纸设计等等。
下面是本套产品部分目录(截图):在原先5DVD的基础之上增加了3DVD(分别是CAD素材大全与名师CAD与节点大样图等) 目前共8DVD是目前有关建筑CAD资料中最全、最专业、最完整的资料,极及难得,参考与收藏、使用价值巨大!以下是增加的目录:(2DVD)一. 常用模块01. 饰物陈设 (001)001 喷泉.植物.雕塑.玩具图块002 工艺品.表.鱼缸.CD架.建筑外观003 标志图块.书法.文具书籍.墙饰02.中式彩画图块 (002)004 宋式彩画.明式彩画.清式彩画.太平太国彩画.其它彩画005 琴棋书画.八宝.暗八仙.四文.四音.装饰画.佛手03.门 (015)006 单扇门.双扇门.推拉门.感应门.旋转门007 中式隔扇门.中式垂花门.中式屏门.铁艺门.玻璃门008 单扇门详图.双扇门详图.木做门套.门拉手.门锁.门饰04.窗 (024)009 中式窗.西式窗.窗及窗套010 中式窗详图.西式窗详图.现代式窗详图.窗及窗套详图.窗帘05. 地面 (030)011 花街铺地.中式铺地.石材拼花.木地板.时毯铺地06.灯具 (033)012 壁灯.吊灯.台灯.床头灯.筒灯.室内射灯.室外射灯.庭院灯07.饰线 (038)013 雕花木线.木线.花饰08.家具 (042)014 沙发图块.椅子.图块.中式家具图块09.家用电器 (045)015 电视机.视听设备.影院音响组合.空调.洗衣机.电冰箱.电脑.洗碗机.引水机.厨房电器图块10.隔断.墙体 (048)016 中式落地罩.中式隔断.活动工隔断.低隔断.高隔断.中式造型墙.西式造型墙.现代式造型墙.石材墙面.陶瓷墙面11.顶棚.柱 (051)017 中式顶棚.西式顶棚.常用顶棚.金属顶棚.中式柱.西式柱12.栏杆.楼梯 (054)018 中式栏杆.中式栏杆详图.西式栏杆.现代式栏杆.铁艺栏杆.木楼梯.铁艺楼梯.旋转楼梯.现代式楼梯.楼梯扶手二. 家庭装饰01门厅 (059)019 玄关详图020 鞋柜详图.衣帽详图02.客厅 (063)021 客厅装饰柜详图022 视听柜(一)022 视听柜(二)03.餐厅 (071)024 巴台详图.酒水详图025 装饰柜详图04.卧室 (075)026 床图块.床屏图块.床屏详图027 床头柜图块.衣柜图块.衣柜详图.梳妆台详图028 实例详图05.儿童房 (082)029 儿童床详图.玩具柜详图.实例详图06.书房 (084)030 书房实例详图.书柜详图08.卫生间阳台 (087)031 阳台图块.洁具图块032 洗脸台详图.实例详图09.厨房 (093)033 水槽图块.厨具图块.器皿图块.其他图块.实例详图10.一居室 (097)034 现代简约场景(一居室实例A.B.C)035 实用本色场景(一居室实例D.C)11.二居室 (100)036 中式风格场景(二居室实例A.B)欧式情怀场景(二居室实例C)037 欧式情怀场景(二居室实例D.E.F)038 现代简约场景(二居室实例G.H.I)039 现代简约场景(二居室实例J.K.M)040 实用本色场景(二居室实例N.O.P)12.三居室 (110)041 中式风格场景(三居室实例A)新古典主义场景(三居室实例B)042 新古典主义场景(三居室实例C.D)043 现代简约场景(三居室实例E.F.G)044 现代简约场景(三居室实例H.J)045 实用本色场景(三居实例K.M.N)13.多居室 (110)046 中式风格场景(多居室实例A.三居室实例B)047 新古典主场景(三居室实例C)实用本色场景(三居室实例D)048 实用本色场景(三居室实例E)14.复式 (129)049 欧式情怀场景(复式实例A.B)050 现代简约场景(复式实例C.D.E)051 实用本色场景(复式实例F)15.别墅 (136)052 中式风格场景(别墅实例A)053 欧式情怀场景(别墅实例D)054 实用本色场景(别墅实例E)055 实用本色场景(别墅实例F.G)三. 建筑工程 (145)056 建筑工程实例(一)057 建筑工程实例(二)058 建筑工程实例(三)059 建筑工程实例(四)060 建筑工程实例(五)061 建筑工程实例(六)062 建筑工程实例(七)063 建筑工程实例(八)064 建筑工程实例(九)065 建筑工程实例(十)066 建筑工程实例(十一)四. 综合实例01.宾馆类 (174)067 总台详图.标准客房详图.标准客房图块068 商务套房详图.总统套房详图069 客房家具详图.公共卫生间详图02.餐饮类 (18)070 迎宾台详图.服务台详图.风味餐厅详图071 西餐厅详图.宴会厅详图072 餐厅包间详图03.娱乐类 (190)073 吧台详图.桑拿浴详图074 歌舞厅详图.KTV包房详图(一)075 KTV包房详图(二)04. 办公类 (196)076 接待台详图.接待室详图077 会议室详图078 茶水台详图.电梯间详图05.装饰构造 (206)079 楼梯详图.栏杆详图080 五金图块.顶棚详图081 隔墙详图.柱详图.幕墙详图五.商业实例01.大型商场 (215)082 化妆品图块.化妆品道具083 化妆品道具.珠宝类图块084 珠宝类道具.工艺品道具085 箱包类图块.箱包类道具086 鞋帽类图块.鞋帽类道具087 服装类图块.服装类道具088 服装类道具.电器类图块089 电器类道具.导购牌02.专卖店 (238)090 化妆品店实例.珠宝店实例.工艺品店门面.工艺品店实例 091 鞋帽店橱窗.服装店门面.服装店橱窗.服装店实例092 电器店实例.通讯店实例.通讯店道具093 眼镜店实例.音像店.体育用品店实例03.营业厅 (246)094 服务台详图095 填单台详图.资料展架详图.柱子详图.门面详图096 实例详图04. 美容美发类 (253)097 接待台详图.工作台详图.设备图块098 实例详图05.其他商业类 (258)099 超市道具详图.网吧空间详图.摩托车展厅详图100 汽车展厅图块.汽车展厅详图.售房空间详图101 贵宾候车室.外立面.文学院展厅.文化展厅.信息展厅六.经典实例 (263)102 五星级宾馆103 招待所104 广告公司.会计师事务所.建筑师事务所.科技公司105 旅行社.律师事务所.贸易公司.企业形象顾问公司(一)106 企业形象顾问公司(二).设计公司.文化传媒公司.装饰公司.咨询公司 107 政府行政中心(上)108 政府行政中心(下)109 川菜馆110 超级酒家(上)111 超级酒家(中)112 超级酒家(下)113 教学楼(上)114 教学楼(下)115 美体考究116 洗浴中心(A.B)117 洗浴中心(C)118 洗浴中心(上)119 洗浴中心(中)120 洗兴中心(下)** 名师CAD与节点大样图与工装108套(由于文字限制不能一一列举)--(1DVD)在此特别感谢收集者:设计图库吧其的官方站点:http://shejitk8.taobao.更多资料信息请访问设计图库吧或http://shejitk8.taobao.。
5 景观专业AUTOCAD制图规范鉴于我国目前尚未有景观专业设计旳制图图例,为统一企业出图旳模式,提高图面质量和工作效率,现根据景观设计旳特点,针对工程图纸上需注意旳要点,编制此图例、模板旳规定,供企业设计部门统一执行。
5.1 合用范围本制图规范合用于企业所有景观设计项目(包括企业CAD初步设计、施工图设计)。
5.2 职责由技术负责人和项目经理负责规定设计小组组员按照本规范所制定旳条理和图例进行景观设计工作,并由技术总监监督、审核后方可出图。
5.3 阐明图纸一般为A3~A0规格,如有其他特殊状况时,由技术总监和项目经理根据实际状况根据建筑制图规范旳对应原则进行调整。
5.3.2 本规定旳图例、符号、颜色极其所在图层为统一固定形式,在实际制图过程中必须严格执行。
5.4 CAD制图常规形式及图例、色彩旳规定外包装(封面)见模板1(横版,含A0~A3)内页a 图框模板,见模板2 。
b 图纸目录模板及排序方式,见模板3 。
c 设计阐明模板(各专业),见模板4 。
图层、图例、格式(文字、标注、打印)模板a 在画图时,先把所需画旳图拷贝此模板中,按照此模板进行图层归整,删掉不需要旳层;模板中旳图例(随层)只需进行拷贝和修改,无需再更改图层即可。
b 总图图层、图例、格式模板(见模板5,图例中已经规定了使用措施、所在旳图层、颜色、线型、图块、画图旳空间等)。
C 详图图层、图例、格式模板(见模板6,图例中已经规定了使用措施、所在旳图层、颜色、线型、图块、画图旳空间等)。
d 通用图图层、图例、格式模板(见模板7,图例中已经规定了使用措施、所在旳图层、颜色、线型、图块、画图旳空间等)。
e 材料记录表、铺装图例表、灯具图例表、配套设施图例表、灯具选型意见书、雕塑选型意见书、配套设施选型意见书、设计变更告知单格式模板(见模板8,图例中已经规定了使用措施、所在旳图层、颜色、线型、图块、画图旳空间等)。
景观专业CAD初步设计及施工图设计图纸样本内容: (见景观专业CAD制图样本)a 图纸封面b 图纸目录(LN-01)c 设计阐明(LN-02)d 材料表(LN-03)e 总平面分区示意图(LN-04)f整体剖面图(LS)g 总图(LP)h 详图(LD)i 通用图(LT)j 灯具选型意见书k 雕塑选型意见书l 配套设施选型意见书m 设计变更告知单5.5 图纸旳一般规定常用软件制图软件采用AUTOCAD2023以上版本,文献存盘格式为: Auto CAD 2023/LT2023 图形 *.dwg 。
园林景观CAD制图规范关键信息项:1、绘图单位与精度单位:____________________________精度:____________________________2、图层设置图层名称:____________________________颜色:____________________________线型:____________________________线宽:____________________________3、字体与标注字体样式:____________________________字高:____________________________标注样式:____________________________标注比例:____________________________4、图形比例常用比例:____________________________5、图框与布局图框格式:____________________________布局设置:____________________________11 绘图单位与精度111 绘图单位应统一设置为具体单位,确保在整个绘图过程中保持一致。
112 精度设置应根据绘图的需求和项目的要求确定,一般情况下,长度精度应精确到具体精度值。
12 图层设置121 图层应根据不同的元素和用途进行清晰分类,如地形、植物、建筑、道路等。
122 每个图层应具有明确的名称,以便于识别和管理。
123 图层的颜色应符合行业惯例或项目的特定要求,以提高图形的可读性。
124 线型应根据元素的性质选择,如实线、虚线、点划线等。
125 线宽应根据图形的重要性和表达需要进行设置,如粗实线、细实线等。
13 字体与标注131 字体样式应选择简洁、清晰易读的字体,如宋体、黑体等。
132 字高应根据图纸的比例和文字的重要性进行合理设置,确保清晰可读。
133 标注样式应统一,包括尺寸标注、文字标注等。
[抚州]湿地公园园林景观工程全套施工图使用群体:大众地形地貌:平地绿地类型:综合公园图纸深度:施工图项目位置:江西设计风格:现代风格图纸格式:CAD2000 图纸张数:85 张景观设施:亭、廊、花架,榭、舫、平台栈道,园林座凳,儿童游乐场所,景观照明,自行车棚,垃圾箱,管理用房,停车场,公用电话,公用厕所,铺装设计,景墙,围墙,大门,树池花坛,雕塑,水景、喷泉,花钵花盆,运动健身场所图纸包括:图纸目录、设计说明、总平面图、公园分区图、北区小区布置平面图、北区道路分类平面图、北区地形放线平面定位图、北区驳岸放线定位平面图、北区放线总平面图、北区竖向总平面图、北区总平面索引图、北区总平面图、南区小品布置图、南区道路分类图、南区地形坐标放线图、南区放线总平面图、南区竖向总平面图、南区总平面索引图、南区总平面图、北区种植绿化工程总平面图、北区大规格乔木种植图、北区乔木种植图、北区花灌木种植图、北区地被及水生植物种植图、南区总平面种植图、南区大规格乔木种植图、南区花灌木种植图、南区地被花卉及水生植物种植图、植物苗木表、北区入口铺装放线平面图及剖面图、休闲小广场详图、入口小广场详图、木曲桥施工详图、观水平台施工图、入口广场施工图、广场景观节点详图、林中木栈道详图、儿童活动广场详图、北区南入口平面立面及剖面图、北区主入口桥梁详图、北区种植绿化工程总平面图、北区大规格乔木种植图、北区乔木种植图、北区花灌木种植图、北区地被及水生植物种植图、北区小区布置平面图、北区道路分类平面图、北区地形放线平面定位图、北区驳岸放线定位平面图、北区放线总平面图、北区竖向总平面图、北区总平面索引图、北区总平面图、南区北入口景观施工图、休闲走廊广场施工图、双亭休闲平台施工图、南区景观节点详图、局部小广场放线图、南区总平面种植图、南区大规格乔木种植图、南区花灌木种植图、南区地被花卉及水生植物种植图、南区小品布置图、南区道路分类图、南区地形坐标放线图、南区放线总平面图、南区竖向总平面图、南区总平面索引图、南区总平面图。