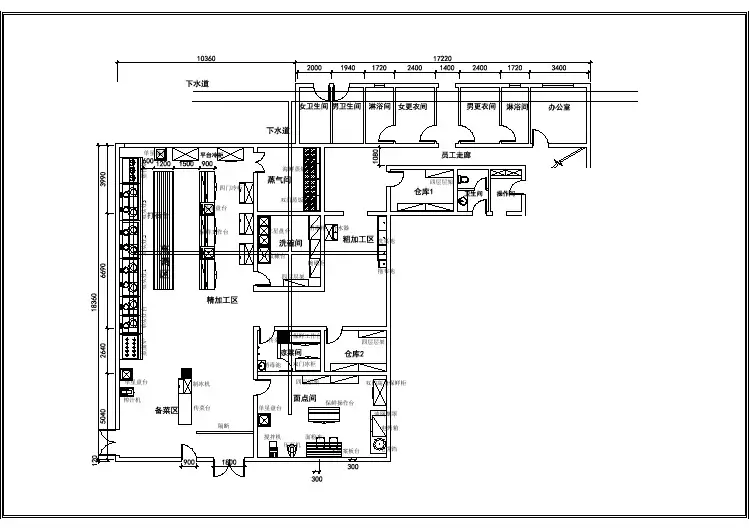
3900廣田裝飾GUANGTIAN深圳市廣田建筑装飾设计工程有限公司 SHENZHEN GUANGTIAN DECORATE ENGINERING CO.APPROVED BY日期DATEDRAWING BYDESIGNED BYCHECKED BY制图核准校对比例尺GENERAL ENGINEERPROJECT APPROVED工程负责人SCALE设计总工程师PROJECT NO.DRAWING NO.SHEET NO.图号设计号张数1.本图按中华人民共和国GB50222-95\P<<建筑内部装饰设计规范>>进行设计,图中固定木装饰部分必须作防火处理,织物须作阻燃处理.\C1\C256西式餐厅平面天花施工图图纸名称TITLEPROJECT工程名称DESCRIPTION说明 SHENZHEN GUANGTIAN DECORATE ENGINERING CO.深圳市廣田建筑装飾设计工程有限公司CHECKED BYDESIGNED BYDRAWING BYAPPROVED BYDATE日期校对核准制图SHEET NO.DRAWING NO.PROJECT NO.PROJECT APPROVEDGENERAL ENGINEER比例尺总工程师设计SCALE工程负责人张数设计号图号西式餐厅A、B、C、C立面施工图\C1图纸名称TITLEPROJECT\C2561.本图按中华人民共和国GB50222-95\P<<建筑内部装饰设计规范>>进行设计,图中固定木装饰部分必须作防火处理,织物须作阻燃处理.工程名称DESCRIPTION说明 SHENZHEN GUANGTIAN DECORATE ENGINERING CO.深圳市廣田建筑装飾设计工程有限公司CHECKED BYDESIGNED BYDRAWING BYAPPROVED BYDATE日期校对核准制图SHEET NO.DRAWING NO.PROJECT NO.PROJECT APPROVEDGENERAL ENGINEER比例尺总工程师设计SCALE工程负责人张数设计号图号餐厅平面施工561.本图按中华人民共和国GB50222-95\P<<建筑内部装饰设计规范>>进行设计,图中固定木装饰部分必须作防火处理,织物须作阻燃处理.工程名称DESCRIPTION说明深圳市廣田建筑装飾设计工程有限公司 SHENZHEN GUANGTIAN DECORATE ENGINERING CO.APPROVED BY核准校对日期DATECHECKED BY1.本图按中华人民共和国GB50222-95\P<<建筑内部装饰设计规范>>进行设计,图中固定木装饰部分必须作防火处理,织物须作阻燃处理.\C256餐厅天花施工图比例尺GENERAL ENGINEERPROJECT APPROVED工程负责人SCALE设计总工程师制图DRAWING BYDESIGNED BY图号设计号张数PROJECT NO.DRAWING NO.SHEET NO.工程名称\C1PROJECTTITLE图纸名称说明DESCRIPTION编辑部:ivpinfo@给排水在线 网易 NetEase市场部:ivpmarket@ 技术部:ivptech@中国专业人士的网络家园;因为专业,所以完美==GUANGTIAN SHENZHEN GUANGTIAN DECORATE ENGINERING CO.深圳市廣田建筑装飾设计工程有限公司廣田裝飾图号SCALEDRAWING NO.SHEET NO.张数比例尺图纸名称煤电宾馆厨房\P平面施工图PROJECT NO.设计号TITLE1.本图按中华人民共和国GB50222-95\P<<建筑内部装饰设计规范>>进行设计,图中固定木装饰部分必须作防火处理,织物须作阻燃处理.\C256DESCRIPTION说明面点间四门冷柜仓库2凉菜间洗碗间洗菜池男更衣间蒸气间仓库1卫生间员工走廊淋浴间女卫生间男卫生间女更衣间操作间淋浴间办公室50401836012018009003990669026401080340017202400140024001720194020001722010360烹\P调\P区备菜区制冰机传菜台收糠台精加工区三星盘台消毒柜碗碟柜四层层架油网烟罩电饼铛双门高身保鲜柜面粉车保鲜工作台保鲜工作台粗加工区下水道消毒池双门蒸饭车单星盘台下水道D05打荷台煤气炉堡仔炉双头灶1煮面炉单头灶台双头灶2双头灶3堡仔炉海鲜蒸炉四层层架四层层架600双门冰柜300300搅拌机木质案板台保鲜操作台压面机电烤箱90015001200单星盘台开水器平台冷柜单星盘台榨汁机传菜台四层层架四层层架双头灶1单头灶台煮面炉堡仔炉双头灶2双头灶3隔断单星盘台拖布池网易编辑部:ivpinfo@市场部:ivpmarket@ 技术部:ivptech@结构工程师与建材商的专业网站==穃u7ed3构 网易 NetEase网易 NetEase穃u5efa筑 建筑工程师与建材商的专业网站市场部:ivpmarket@ 技术部:ivptech@编辑部:ivpinfo@=网易=