结构动力学_克拉夫(第二版)课后习题
- 格式:pdf
- 大小:628.79 KB
- 文档页数:23
例题E2-1 如图E2-1所示,一个单层建筑理想化为刚性大梁支承在无重的柱子上。
为了计算此结构的动力特性,对这个体系进行了自由振动试验。
试验中用液压千斤顶在体系的顶部(也即刚性大梁处)使其产生侧向位移,然后突然释放使结构产生振动。
在千斤顶工作时观察到,为了使大梁产生0.20in[0.508cm]位移需要施加20 kips[9 072 kgf]。
在产生初位移后突然释放,第一个往复摆动的最大位移仅为0.16 in[0. 406 cm],而位移循环的周期为1.4 s。
从这些数据可以确定以下一些动力特性:(1)大梁的有效重量;(2)无阻尼振动频率;(3)阻尼特性;(4)六周后的振幅。
2- 1图E2-1所示建筑物的重量W为200 kips,从位移为1.2 in(t=0时)处突然释放,使其产生自由振动。
如果t=0. 64 s时往复摆动的最大位移为0.86 in,试求(a)侧移刚度k;(b)阻尼比ξ;(c)阻尼系数c。
2-2 假设图2- la 所示结构的质量和刚度为:m= kips ·s 2/in ,k=40 kips/in 。
如果体系在初始条件in 7.0)0(=υ、in/s 6.5)0(=υ&时产生自由振动,试求t=1.0s 时的位移及速度。
假设:(a) c=0(无阻尼体系); (b) c=2.8 kips ·s/in 。
2-3 假设图2- 1a 所示结构的质量和刚度为:m=5 kips ·s 2/in ,k= 20 kips/in ,且不考虑阻尼。
如果初始条件in 8.1)0(=υ,而t=1.2 s 时的位移仍然为1.8 in ,试求:(a) t=2.4 s 时的位移; (b)自由振动的振幅ρ。
例题E3-1 一种便携式谐振荷载激振器,为在现场测量结构的动力特性提供了一种有效的手段。
用此激振器对结构施以两种不同频率的荷载,并分别测出每种情况下结构反应的幅值与相位。
由此可以确定单自由度体系的质量、刚度和阻尼比。
前言结构动力学是比较难学的一门课程,但是你一旦学会并且融会贯通,你就会为成为结构院士、大师和总工垫定坚实的基础。
结构动力学学习的难点主要有以下两个方面。
1 概念难理解,主要表现在两个方面,一是表达清楚难,如果你对概念理解的很透彻,那么你写的书对概念的表述也会言简意赅,切中要害(克里夫的书就是这个特点),有的书会对一个概念用了很多文字进行解释,但是还是没有说清楚,也有的书受水平限制,本身表述就不清楚。
二是理解难,有点只可意会不可言传的味道,老师讲的头头是道,自己听得云山雾绕。
2 公式推导过程难,一是力学知识点密集,推导过程需要力学概念清析,并且需要每一步的力学公式熟悉;二是需要一定的数学基础,而且有的是在本科阶段并没有学习的数学知识。
克里夫《结构动力学》被称为经典的结构动力学教材,但是也很难看懂。
之所以被称为经典,主要就是对力学的概念表达的语言准确,概念清楚。
为什么难懂呢?是因为公式的推导过程比较简单,省略过多。
本来公式的推导过程既需要力学概念清楚也需要数学公式熟悉,但是一般人不是力学概念不清楚,就是数学公式不熟悉,更有两者都不熟悉者。
所以在学习过程中感觉很难,本学习详解是在该书概念清楚的基础上,对力学公式推导过程进行详细推导,并且有的加以解释,帮助你在学习过程中加深理解和记忆。
达到融会贯通,为你成为结构院士、大师和总工垫定坚实的基础。
以下黑体字是注释,其它为原书文字。
[美] R∙克里夫《结构动力学》辅导学习详解第1章结构动力学概述… …第Ⅰ篇单自由度体系第2章基本动力体系的组成… …§2-5 无阻尼自由振动分析如上一节所述,有阻尼的弹簧-质量体系的运动方程可表示为mv̈(t)+cv̇(t)+kν(t)=p(t)(2-19)其中ν(t)是相对于静力平衡位置的动力反应;p(t)是作用于体系的等效荷载,它可以是直接作用的或是支撑运动的结构。
为了获得方程(2-19)的解,首先考虑方程右边等于零的齐次方程,即mv̈(t)+cv̇(t)+kν(t)=0(2-20)mv(t)+kν(t)=0(2-20a)此处公式应该为mv(t)+kν(t)=0,因为该节是无阻尼自由振,而且(2-20)的解,式(2-21)也是公式mv(t)+kν(t)=0的解在作用力等于零时产生的运动称为自由振动,现在要研究的即为体系的自由振动反应。
1.解:根据势能相等原理:则系统的等效刚度为2解:分别对圆盘左右两边的轴求刚度,由于两轴并联,所以系统的等效刚度:。
3解:有材料力学得,中间点的静挠度为:所以固有角频率为:。
则,于是只需要求出系统的等效质量即可。
有材料力学得:设中间点的挠度为,令物体m在振动过程中的最大速度为:。
于是梁上各点的最大运动速度为:。
中间点的最大动能为:系统的最大动能为:系统的等效质量为:将该式子带入到4.解:在空气中: (1在液体中有系统的振动方程:(2)(3结合(1(3可得:将上式变形后得:5解质量m产生的离心惯性力是。
它在L法线方向的分量(是摆线与O之间的夹角)由几何关系可以得到:(是摆线与水平线之间的夹角)当摆角很小时有:质量m的切向加速度:,(是摆线与质量到O连线的夹角)二力对点取力矩的合力应等于零。
整理后得到(1)无阻尼受迫振动方程为:(2)将(1)(2)对比后得到:系统的固有角频率为:6解:杆与水平面的夹角为,则利用等效质量和等效刚度先把原系统简化到B 点,根据简化后动能相等。
简化前后势能相等。
固有频率:7解:在临界位置系统的自由振动方程的解为:其中,到达平衡位置时,令带入相关数据得8解:在临界点状态时系统的自由度振动方程解为:其中(1)(2)到达平衡位置时,由(1)可得令带入相关数据得到达最远位置时,由(2)可得带入到(1)可得9解:系统的振动方程为其解为式中常数由初始条件确定,利用(1)可得带入(1)得初始响应为:(2)由已知条件可知,。
带入(2)近似得到。
式子中固有频率为,10解:有图示可得F(t)的方程式由傅里叶级数求各项系数分别为将带入。
系统的振动方程为:其中解方程后得:。
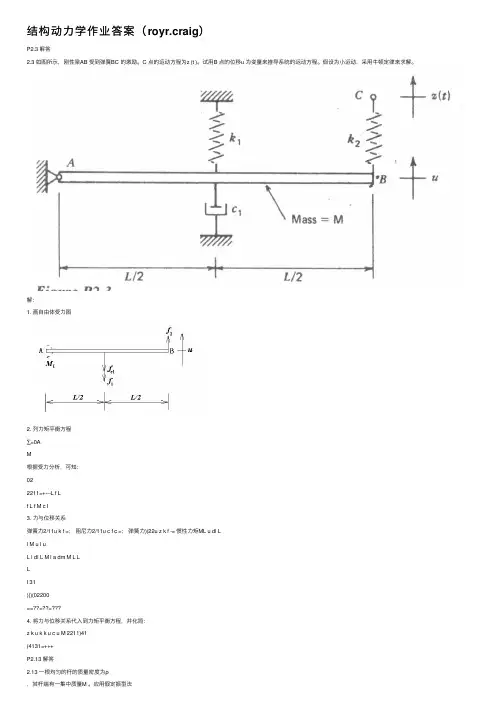
结构动⼒学作业答案(royr.craig)P2.3 解答2.3 如图所⽰,刚性梁AB 受到弹簧BC 的激励。
C 点的运动⽅程为z (t )。
试⽤B 点的位移u 为变量来推导系统的运动⽅程。
假设为⼩运动,采⽤⽜顿定律来求解。
解:1. 画⾃由体受⼒图2. 列⼒矩平衡⽅程∑=0AM根据受⼒分析,可知:022211=+---L f Lf L f M c I3. ⼒与位移关系弹簧⼒2/11u k f =;阻尼⼒2/11u c f c =;弹簧⼒)(22u z k f -= 惯性⼒矩ML u dl Ll M u l uL l dl L M l a dm M L LLI 31)()(02200==??=??=4. 将⼒与位移关系代⼊到⼒矩平衡⽅程,并化简:z k u k k u c u M 2211)41(4131=+++P2.13 解答2.13 ⼀根均匀的杆的质量密度为ρ,其杆端有⼀集中质量M 。
应⽤假定振型法(L x x /)(=ψ)推导如下系统的轴向⾃由振动的运动⽅程。
解:1. 形函数及⼏何边界条件0),0(=t U )()(),(t u x t x U ψ=2. 建⽴虚功⽅程0'=+-=inertia nc W V W W δδδδ因为没有外⼒,所以0=nc W δu LAEudx L u L u AE Udx AEU V LL δδδδ===?)'( 对于惯性⼒⽽⾔,其虚功包括杆本⾝的虚功1inertia W δ和杆端集中质量的虚功2 inertia W δ。
u uALdx x Lu u A Udx UA W LLinertia δρδρδρδ 3)(02201-=-=-=?u u M t L U t L UM W inertia δδδ -=-=),(),(2 3. 化简0)3(=++-u u L AE u M ALδρ因为u δ为虚位移,即0≠u δ,所以运动⽅程为0)3(=++u L AEu M AL ρP3.7 解答3.7 ⼀台机器的质量为70kg ,安装在弹簧上,弹簧的总刚度为15kN/m ,总阻尼为1.2kN.s/m 。
第三章 多自由度系统3.1试求图3-10所示系统在平衡位置附近作微振动的振动方程。
图3-10解:〔1〕系统自由度、广义坐标图示系统自由度N=2,选x1、x2和x3为广义坐标; 〔2〕系统运动微分方程根据牛顿第二定律,建立系统运动微分方程如下:;)(;)()(;)(34233332625323122222121111x K x x K x m x K x K x x K x x K xm x x K x K xm ---=------=---= 整理如下;0)(;0)(;0)(3432333332653212222212111=++-=-++++-=-++x K K x K xm x K x K K K K x K xm x K x K K xm 写成矩阵形式;000)(0)(0)(00000321433365322221321321⎪⎭⎪⎬⎫⎪⎩⎪⎨⎧=⎪⎭⎪⎬⎫⎪⎩⎪⎨⎧⎥⎥⎥⎦⎤⎢⎢⎢⎣⎡+--+++--++⎪⎭⎪⎬⎫⎪⎩⎪⎨⎧⎥⎥⎥⎦⎤⎢⎢⎢⎣⎡x x x K K K K K K K K K K K K x x x m m m 〔1〕 〔3〕系统特征方程设)sin(,)sin(,)sin(332211ϕωϕωϕω+=+=+=t A x t A x t A x 代入系统运动微分方程〔1〕得系统特征方程;000)(0)(0)(321234333226532222121⎪⎭⎪⎬⎫⎪⎩⎪⎨⎧=⎪⎭⎪⎬⎫⎪⎩⎪⎨⎧⎥⎥⎥⎦⎤⎢⎢⎢⎣⎡-+---+++---+A A A m K K K K m K K K K K K m K K ωωω〔2〕 〔4〕系统频率方程系统特征方程〔2〕有非零解的充要条件是其系数行列式等于零, 即;0)(0)(0)(234333226532222121=-+---+++---+ωωωm K K K K m K K K K K K m K K展开得系统频率方程;0))(())(()))(())(()((21212323432223432265322121=-+--+--+-+++-+ωωωωωm K K K m K K K m K K m K K K K m K K进一步计算得;0;0)()())()(()))(())((())()()(()()()()())(()())(())(())()(())(())(()))(()()())((())(())(()))(())(()((02244662123432265324321236532214321231233224316532214332216321231232123232243226321421434322124321243165322165324323653221653243212121232343222343421221265322165322121212323432223432265322121==++++-+-+++++++++++-++-+++++++++++-=++-++--++++++-++++++++-++++-+++++=-+--+--+++-+++-++++=-+--+--+-+++-+a a a a K K K K K K K K K K K K K K m K K K K K K K K K K m m m K m K m m K K K K m m K K m m K K m m m m m K K K K m K K K K m m m m m K K m m K K K K K K m m m K K K K m K K K K K K m K K K K K K K K K K K K K K m K K K m K K K m K K m m K K m K K K K m K K K K K K m K K K m K K K m K K m K K K K m K K ωωωωωωωωωωωωωωωωωωωωωωωωωω (3)其中;3216m m m a -= ;)()()(316532214332214m m K K K K m m K K m m K K a +++++++=;))(())((36532214321231233222m K K K K K K K K K K m m m K m K a ++++-++-+=);()())()((21234322653243210K K K K K K K K K K K K K K a +-+-+++++=求解方程〔3〕得系统固有频率;)3,2,1(),,,,,,,,,(654321321==i K K K K K K m m m f i i ω 〔4〕 〔5〕系统固有振型 将系统固有频率代入系统特征方程〔2〕得系统固有振型, 即各阶振型之比:)3(3)3(1)3(3)3(2)3(1)3(2)2(3)2(1)2(3)2(2)2(1)2(2)1(3)1(1)1(3)1(2)1(1)1(21,1;1,1,1,1A A A A A A A A A A A A ======γγγγγγ 〔5〕 〔6〕系统振动方程)sin()sin()sin()sin()sin()sin(33)3(1)3(3)3(1)3(2)3(122)2(1)2(3)2(1)2(2)2(111)1(1)1(3)1(1)1(2)1(133)3(3)3(2)3(122)2(3)2(2)2(111)1(3)1(2)1(1321ϕωγγϕωγγϕωγγϕωϕωϕω+⎪⎭⎪⎬⎫⎪⎩⎪⎨⎧++⎪⎭⎪⎬⎫⎪⎩⎪⎨⎧++⎪⎭⎪⎬⎫⎪⎩⎪⎨⎧==+⎪⎭⎪⎬⎫⎪⎩⎪⎨⎧++⎪⎭⎪⎬⎫⎪⎩⎪⎨⎧++⎪⎭⎪⎬⎫⎪⎩⎪⎨⎧=⎪⎭⎪⎬⎫⎪⎩⎪⎨⎧t A A A tA A A tA A A t A A A t A A A t A A A x x x 〔6〕在方程〔6〕中含有6个待定常数:)1(1A 、)2(1A 、)3(1A 、1ϕ、2ϕ和3ϕ。
第二章自由振动分析2-1(a )由例2 2W Tgk22()W K Tg 因此max()()D t kT 其中k=0、1、2……T D =0.64sec如果很小,T D =T222200()49.9/0.64sec 386/sec kips k kips inin 50/k kips in(b )211ln ln n n v v v v 222121()11.2ln0.3330.86210.05292()10.33320.053025.3%(a ’)21D2T21D TT 249.950/1kkips in(c)2c mW mg2T4cTg21D T T 241WcTg2240.05292000.64sec 386/sec 10.0529kipsc in 0.539sec/ckips inT=T D 0.538sec/ckips in 0.54sec/ckips in2-22k m40 4.472(1/sec )(0)(0)()sin(0)costDDDv v t et v t(0)(0)()sin(0)(0)(0))costDDDv v t et v v v t22(0)(0)()(0)cossinDtDDDv v t ev tt21D()(0)cos(0)(0)sintDDDt ev t v v t2(0)(0)()(0)c o s s i n1tD D v v t ev tt 0.055922(2)(4.47)c c cm(a) c=00D5.6(1)sin 4.470.7cos4.47 1.384.47v t in(1) 5.6cos 4.47 4.47(0.7)sin 4.47 1.69/secv t in (1) 1.4v in ,(1) 1.7/secv in (b) c=2.80.0559(2.8)0.15724.4710.1574.41D(1/sec )(0.157)(4.41)5.60.7(0.157)(4.47)(1)sin 4.410.7cos 4.414.41t e(1)0.764t in(0.157)(4.41)20.157(5.6) 4.41(0.7)(1) 5.6cos 4.41sin 4.4110.157t e (1) 1.10/sect in (1)0.76v in ,(1) 1.1/secv in 第三章谐振荷载反应3-1根据公式有21sin sin 1R t wt wt0.8w w2.778sin 0.8sin1.25R twt wt将t 以80°为增量计算)(t R 并绘制曲线如下:0 80°160°240°320°400°480°560°640°720°800°00.5471.71 -0.481 -3.214 0.357 4.33-0.19 -4.9244.9241.25w wt)(t R3-2解:由题意得:22mkips s in ,20kkips in ,(0)(0)0v v ,w w20 3.162sec2k w rad m8wt(a )0c1sin cos 2R twt wt wt将8wt 代入上式得:()412.566R t (b )0.5ck s in0.50.0395222 3.162cc c c mw1exp1cos exp sin 2R twtwtwt wt将8wt 代入上式得:()7.967R t (c ) 2.0ck s in2.00.158222 3.162cc c c mw1exp1cos exp sin 2R twtwtwt wt将8wt 代入上式得:() 3.105R t 3-3解:(a ):依据共振条件可知:1003860.0810.983sec4000k kg wwrad m W由2LTVw 得:10.9833662.96022wL V ft s(b ):122max2221212tgovv 1w w 0.41.2gov in 代入公式可得:max1.921tv in(c ):2L T Vw45m i n 66Vhf t s226611.51336V wrad secL11.513 1.04810.983w w0.4代入数据得:122max22212=1.85512t govv in3-4解:按照实际情况,当设计一个隔振系统时,将使其在高于临界频率比2下运行,在这种情况下,隔振体系可能有小的阻尼。
第一章 单自由度系统1.1 总结求单自由度系统固有频率的方法和步骤。
单自由度系统固有频率求法有:牛顿第二定律法、动量距定理法、拉格朗日方程法和能量守恒定理法。
1、 牛顿第二定律法适用范围:所有的单自由度系统的振动。
解题步骤:(1) 对系统进行受力分析,得到系统所受的合力;(2) 利用牛顿第二定律∑=F x m,得到系统的运动微分方程;(3) 求解该方程所对应的特征方程的特征根,得到该系统的固有频率。
2、 动量距定理法适用范围:绕定轴转动的单自由度系统的振动。
解题步骤:(1) 对系统进行受力分析和动量距分析;(2) 利用动量距定理J ∑=M θ,得到系统的运动微分方程;(3) 求解该方程所对应的特征方程的特征根,得到该系统的固有频率。
3、 拉格朗日方程法:适用范围:所有的单自由度系统的振动。
解题步骤:(1)设系统的广义坐标为θ,写出系统对于坐标θ的动能T 和势能U 的表达式;进一步写求出拉格朗日函数的表达式:L=T-U ; (2)由格朗日方程θθ∂∂-∂∂∂LL dt )( =0,得到系统的运动微分方程; (3) 求解该方程所对应的特征方程的特征根,得到该系统的固有频率。
4、 能量守恒定理法适用范围:所有无阻尼的单自由度保守系统的振动。
解题步骤:(1)对系统进行运动分析、选广义坐标、写出在该坐标下系统的动能T 和势能U 的表达式;进一步写出机械能守恒定理的表达式 T+U=Const (2)将能量守恒定理T+U=Const 对时间求导得零,即0)(=+dtU T d ,进一步得到系统的运动微分方程;(3) 求解该方程所对应的特征方程的特征根,得到该系统的固有频率。
1.2 叙述用衰减法求单自由度系统阻尼比的方法和步骤。
用衰减法求单自由度系统阻尼比的方法有两个:衰减曲线法和共振法。
方法一:衰减曲线法。
求解步骤:(1)利用试验测得单自由度系统的衰减振动曲线,并测得周期和相邻波峰和波谷的幅值i A 、1+i A 。
结构动力学*本章讨论结构在动力荷载作用下的反应。
**学习本章注重动力学的特征------惯性力。
*结构动力计算的目的在于确定结构在动力荷载作用下的位移、内力等量值随时间变化的规律,从而找出其最大值作为设计的依据。
*动力学研究的问题:动态作用下结构或构件的强度、刚度及稳定性分析。
一、本章重点1.振动方程的建立2.振动频率和振型的计算3.振型分解法求解多自由度体系4.最大动位移及最大动应力二、基础知识1.高等数学2.线性代数3.结构力学三、动力荷载的特征1.大小和方向是时间t的函数例如:地震作用,波浪对船体的作用,风荷载,机械振动等2.具有加速度,因而产生惯性力四、动力荷载的分类1.周期性动力荷载例如:①机械运转产生的动力荷载,②打桩时的锤击荷载。
P(t) Pt t(机械运转荷载)(打桩荷载)2.冲击荷载例如:①爆炸力产生的动力荷载,②车轮对轨道连接处的冲击。
P(t)P(t)P(t)t t t(爆炸力动力荷载)(吊车起吊钢索的受力)(随机动力荷载)3.突加常量荷载例如:吊车起吊重物时钢索的受力。
4.随机动力荷载前3类荷在是时间t的确定函数,称为确定性动力荷载;而地震作用,波浪对船体的作用,风荷载等其作用大小只能用统计的方法获得。
五、动力荷载的计算方法1.原理:达朗贝尔原理,动静法建立方程2.计算工具:微分方程,线性代数,结构力学六、体系振动的自由度---------动力自由度结构具有质量,有质量在运动时就有惯性力。
在进行动力计算时,一般把结构的质量简化为若干质点的质量,整个结构的惯性力就成为各质点的惯性力问题。
1.质点简化的一般要求①简单,②能反映主要的振动特性例如:楼房;质量集中在各层楼板平面内水塔:质量集中在水箱部分梁:无限自由度集中质量(楼房质量集中)(水塔质量集中)(梁的质量集中)2.位移y(t)即指质点的位移y(t),其加速度为y&&)(t3.动力自由度的确定即质点位移数量的确定。
建筑结构第二版课后练习题含答案第一章绪论1.构造力学的研究对象是什么?其基本问题包括哪些?–研究对象:结构变形、应力、应变、变形中的能量。
–基本问题:结构的平衡、变形及建筑物的稳定性分析、荷载和变形的关系、强度、屈曲、疲劳和稳固。
2.简述结构的稳定性及其破坏机理。
–稳定性:结构在正常使用状态下,不发生不稳定的变形或破坏。
–破坏机理:结构的破坏主要有塑性破坏和脆性破坏两种机理。
第二章极限平衡状态下的结构1.屈曲是结构的一种失稳形态,如何判断结构的屈曲稳定性?–判断构件是否屈曲的临界荷载。
–临界荷载是对应于构件初始弯曲形态的最小荷载,即当荷载增加到临界荷载时,构件发生由稳定到不稳定的全局屈曲。
2.计算机分析结构稳定性及其存在的问题。
–优点:可以将极限状态的几何非线性与材料非线性一起考虑,适合分析“流变”效应的结构。
–缺点:计算结果依赖于结构的前期初始状态、裂缝的演化方式和精度。
附答案:1.1 答案:构造力学的研究对象为:结构变形、应力、应变、变形中的能量。
基本问题包括:结构的平衡、变形及建筑物的稳定性分析、荷载和变形的关系、强度、屈曲、疲劳和稳固。
1.2 答案:稳定性:结构在正常使用状态下,不发生不稳定的变形或破坏。
破坏机理:结构的破坏主要有塑性破坏和脆性破坏两种机理。
2.1 答案:判断构件是否屈曲的临界荷载。
临界荷载是对应于构件初始弯曲形态的最小荷载,即当荷载增加到临界荷载时,构件发生由稳定到不稳定的全局屈曲。
2.2 答案:计算机分析结构稳定性及其存在的问题:优点:可以将极限状态的几何非线性与材料非线性一起考虑,适合分析“流变”效应的结构。
缺点:计算结果依赖于结构的前期初始状态、裂缝的演化方式和精度。
结构动力学习题2.1 建立题2.1图所示的三个弹簧-质点体系的运动方程(要求从刚度的基本定义出发确定体系的等效刚度)。
题2.1图2.2 建立题2.2图所示梁框架结构的运动方程(集中质量位于梁中,框架分布质量和阻尼忽略不计)。
题2.2图2.3 试建立题2.3图所示体系的运动方程,给出体系的广义质量M、广义刚度K、广义阻尼C和广义荷载P(t),其中位移坐标u(t)定义为无重刚杆左端点的竖向位移。
题2.3图2.4 一总质量为m1、长为L的均匀刚性直杆在重力作用下摆动。
一集中质量m2沿杆轴滑动并由一刚度为K2的无质量弹簧与摆轴相连,见题 2.4图。
设体系无摩擦,并考虑大摆角,用图中的广义坐标q1和q2建立体系的运动方程。
弹簧k2的自由长度为b。
题2.4图2.5 如题2.5图所示一质量为m1的质量块可水平运动,其右端与刚度为k的弹簧相连,左端与阻尼系数为c的阻尼器相连。
摆锤m2以长为L的无重刚杆与滑块以铰相连,摆锤只能在图示铅垂面内摆动。
建立以广义坐标u和θ表示的体系运动方程(坐标原点取静平衡位置)。
题2.5图2.6如题2.6图所示一质量为m1的质量块可水平运动,其上部与一无重刚杆相连,无重刚杆与刚度为k2的弹簧及阻尼系数为c2的阻尼器相连,m1右端与刚度为k1的弹簧相连,左端与阻尼系数为c1的阻尼器相连。
摆锤m2以长为L的无重刚杆与滑块以铰相连,摆锤只能在图示铅垂面内摆动。
建立以广义坐标u和θ表示的体系运动方程(坐标原点取静平衡位置,假定系统作微幅振动,sinθ=tanθ=θ)。
计算结果要求以刚度矩阵,质量矩阵,阻尼矩阵的形式给出。
3.1单自由度建筑物的重量为900kN,在位移为3.1cm时(t=0)突然释放,使建筑产生自由振动。
如果往复振动的最大位移为2.2cm(t =0.64s),试求:(1)建筑物的刚度k;(2)阻尼比ξ;(3)阻尼系数c。
3.2 单自由度体系的质量、刚度为m=875t,k=3500kN/m,且不考虑阻尼。
结构动力学习题参考答案2.3一根刚梁AB ,用力在弹簧BC 上去激励它,其C 点的运动规定为Z (t ),如图P2.3. 按B 点的垂直运动u 来确定系统的运动方程,假定运动是微小的。
解:以在重力作用下的平衡位置作为基准点,则方程建立时不考虑重力。
根据达朗贝尔原理,通过对A 点取矩建立平衡方程,刚体上作用有弹簧弹力1s f ,2s f ,以及阻尼力D f ,惯性力2M 。
B 点的垂直位移是u ,则有几何关系知2/L 处的位移为2/u 。
根据位移图和受力图可得:02221=⨯-⨯+⨯+L f Lf L f M s D s I 其中.22221....221)(2123131uc f u z k f u k u R f umL L u mL M D s s I =-==⨯=== 代入○1式得: 0)(L 4141ML 3121...=--++L u z k u k u cL u 合并化简得:)(12)123(3M 4221...t Z k u k k u c u =+++2.5 系统如图P2.5 , 确定按下形式的运动方程:)(...t P ku u c u m u =++。
其中u 为E 点的垂直运动。
假定薄刚杆AE 的质量为M,其转动很小。
解:根据牛顿定律,运动几何关系,对B 点取矩得L u L m mL L u k L u c L L t f p 43)4(1214343854)(..22.0⨯⎥⎦⎤⎢⎣⎡+=⨯⨯-⨯-⨯⨯化简合并得:)()()(845.,3,3,M 7)(845337......t P ku u c u m t P L t f P K k C c m L t f P ku u c u M u u O O =++=====++得令2.13 一根均匀杆,图P2.13 其单位体积质量密度ρ,并具有顶部质量M ,应用假定法L x x =()ψ来推导该系统轴向自由振动的运动方程。
假定=AE 常数。
第2章平面机构运动简图及自由度补充、答:(1)构件数目与实际相同(2)运动副的性质、数目与实际相符(3 )运动副之间的相对位置以及构件尺寸与实际机构成比例。
2-1 答:两构件之间直接接触并能保证一定形式的相对运动的连接称为运动副。
平面高副是点或线相接触,其接触部分的压强较高,易磨损。
平面低副是面接触,受载时压强较低,磨损较轻,也便于润滑。
2-4 答:(1)虚约束是指机构中与其它约束重复而对机构运动不起新的限制作用的约束。
(2)局部自由度是指机构中某些构件的局部运动不影响其它构件的运动,对整个机构的自由度不产生影响,这种局部运动的自由度称为局部自由度。
(3)说虚约束是不存在的约束,局部自由度是不存在的自由度是不正确的,它们都是实实在在存在的。
2-6 答:(1)在分析和研究机构的运动件性时,机构运动简图是必不可少的;(2)绘制机构运动简图时,应用规定的线条和符号表示构件和运动副,按比例绘图。
具体可按教材P14步骤(1) ~ (4)进行。
2-7解:运动简图如下:2-10 答:(a)n=9 P L=13P H=0F=3〃一2P L—F H=3 x9—2x 13—0= 1该机构需要一个原动件。
(b)机构中有局部自山度=3 PL=3P H=2F=3n - 2P L—P H=3 x3—2x3—2=1 该机构需要一个原动件。
(c)n=5 Pi=7 P h=0F=3n-2P L-P H =3x5—2x7—0=1该机构需要一个原动件。
(d)机构中有局部自由度。
乃=6 P L=8F H=1F=3n — 2P^—P^ =3x6—2x8 —1=1该机构需要一个原动件。
(e)77=5 P L=7F H=。
F=3H-2P L-P H =3x5-2x7-0=1该机构需要一个原动件。
(f)机构中A处为复合皎链、B处存在局部自山度。
/7=9 F L=12 Fh=lF=3〃一2P L—F H =3x9—2x 12 — 1=2该机构需要两个原动件。
例题E2-1 如图E2-1所示,一个单层建筑理想化为刚性大梁支承在无重的柱子上。
为了计算此结构的动力特性,对这个体系进行了自由振动试验。
试验中用液压千斤顶在体系的顶部(也即刚性大梁处)使其产生侧向位移,然后突然释放使结构产生振动。
在千斤顶工作时观察到,为了使大梁产生0.20in[0.508cm]位移需要施加20 kips[9 072 kgf]。
在产生初位移后突然释放,第一个往复摆动的最大位移仅为0.16 in[0. 406 cm],而位移循环的周期为1.4 s。
从这些数据可以确定以下一些动力特性:(1)大梁的有效重量;(2)无阻尼振动频率;(3)阻尼特性;(4)六周后的振幅。
2- 1图E2-1所示建筑物的重量W为200 kips,从位移为1.2 in(t=0时)处突然释放,使其产生自由振动。
如果t=0. 64 s时往复摆动的最大位移为0.86 in,试求(a)侧移刚度k;(b)阻尼比ξ;(c)阻尼系数c。
2-2 假设图2- la 所示结构的质量和刚度为:m= kips ·s 2/in ,k=40 kips/in 。
如果体系在初始条件in 7.0)0(=υ、in/s 6.5)0(=υ&时产生自由振动,试求t=1.0s 时的位移及速度。
假设:(a) c=0(无阻尼体系); (b) c=2.8 kips ·s/in 。
2-3 假设图2- 1a 所示结构的质量和刚度为:m=5 kips ·s 2/in ,k= 20 kips/in ,且不考虑阻尼。
如果初始条件in 8.1)0(=υ,而t=1.2 s 时的位移仍然为1.8 in ,试求:(a) t=2.4 s 时的位移; (b)自由振动的振幅ρ。
例题E3-1 一种便携式谐振荷载激振器,为在现场测量结构的动力特性提供了一种有效的手段。
用此激振器对结构施以两种不同频率的荷载,并分别测出每种情况下结构反应的幅值与相位。
由此可以确定单自由度体系的质量、刚度和阻尼比。
在一个单层建筑上做这种测试,激振器工作频率分别为s rad /161=ϖ和s rad /251=ϖ,每种情况下力的幅值均为500 lbf[226.8 kgf]。
测出两种情况下的反应幅值和相位为ρ1=7.2x10-3 in[18.3x10-3 cm],o 151=θ,966.0cos 1=θ,259.0sin 1=θ ρ2=14.5x10-3in[36.8x10-3cm],o 552=θ,574.0cos 2=θ,819.0sin 2=θ例题E3-2 混凝土桥梁有时将由于蠕变而产生挠度,如果桥面由一系列等跨度的梁组成,当车辆在桥上匀速行驶时,这些挠度将产生谐波干扰。
当然,车辆弹簧和冲击减震器的设计意图就是作为一个隔振体系,用以限制来自路面传给乘客的竖向运动。
图E3-1展示了这种体系的高度理想化的模型,图中车辆重量是4000 lbf[1814 kgf],弹簧刚度由试验确定。
试验结果为加100 lbf[45. 36 kgf]将产生0. 08 in[0.203 cm]的挠度。
用一个波长为40 ft[12. 2 m](梁的跨度)、(单)幅值为1.2 in[3. 05 cm]的正弦曲线代表桥的剖面,当车辆以45 mi/h[72.4 km/h]的速度行驶并假定阻尼为临界阻尼的40%时,要求利用这些数据预测一下车辆的稳态竖向运动。
例题E3-3 一个往复式机器重20000 lbf[9072 kgf],已知当机器的运转速度为40 Hz 时,产生幅值为500 lbf[226.5 kgf]的竖向谐振力。
为了限制这个机器对所在建筑物的振动,在它矩形底面的四角各用一个弹簧支承。
设计者想要知道,为了使机器传给建筑物的全部谐振力限制80 lbf[36.3 kgf],所需采用的弹簧刚度应该为多少。
例题E3-4 单自由度体系频率-反应试验所得的数据已画在图E3-2中。
计算阻尼比所需的数据也示于图中。
曲线绘出后,分析的步骤如下:3-1 假定图2- 1a 所示的基本结构无阻尼,并在频率比8.0=β下承受谐振干扰,试绘出既包含稳态又包括瞬态效应的反应比R(t)的曲线。
计算反应时采用增量o 80t =∆ϖ,连续分析10个增量。
3-2 假定图2-1a 所示的基本体系具有如下特性:m=2 kips ·s 2/in 和k= 20 kips/in ,如果体系承受从静止条件开始的共振简谐荷载()ωϖ=,试确定四周后()πϖ8=t 反应比R(t)的值。
假设: (a) c= 0[用式(3- 38)];(b) c=0.5 kips. s/in[用式(3-37)];(c) c=2.0 kips. s/in[用式(3-37)]。
3-3 除假定梁跨度减小到L=36 ft外,车辆和桥梁结构都和例题E3-2一样。
试确定:(a)车辆的速度为多少时将在车辆弹簀体系内产生共振;υ;(b)在共振时竖向运动的总振幅tmaxυ。
(c)在速度为45 mi/h时,竖向运动的总振幅tmax3-4 一个安装有精密仪器的支架放置在试验室的地板上,而地板以20 Hz的频率作竖向振动,振幅为0.03 in。
如果支架的重量为800 lbf,试确定为使支架的竖向运动振幅减小到0.005 in所需隔振系统的刚度。
3-5 一个重6500 lbf 的筛分机,当满载运行时将在其支承上产生12 Hz 700 lbf的谐振力。
当把机器安装在弹簧式隔振器上后,作用于支承上的谐振力幅值减小到50 lbf。
试确定隔振装置的弹簧刚度k。
3-6 图P3- la 所示的结构可理想化为图P3-1b 所示的等效体系。
为了确定这个数学模型的c 和k 值,按图P3- 1c 对混凝土柱子进行了谐振荷载试验,当试验频率为s rad /10=ϖ时,得到如图P3- ld 所示的力-变位(滞变)曲线,根据这些数据: (a)确定刚度k ;(b)假定为粘滞阻尼机理,试确定名义粘滞阻尼比ξ和阻尼系数c ; (c)假定为滞变阻尼机理,试确定名义滞变阻尼系数ζ。
3-7 用频率s rad /20=ϖ重做习题3-6中的试验,并假设所得到的力-变位曲线(图P3- ld )不变,在这种情况下:(a)试确定名义粘滞阻尼值ξ和c ; (b)试确定名义滞变阻尼系数ζ;(c)根据这两次试验(s rad /10=ϖ和s rad /20=ϖ),试问用哪种阻尼机理显得更合理——粘滞阻尼还是滞变阻尼?3-8 如果习题3-6中体系的阻尼确实用图P3-1b 所示的粘滞阻尼器来提供,试求用:s rad /20=ϖ进行试验时所得E D 的值为多少?例题E4-1作为一个受周期性荷载作用结构反应的分析例子,研究图E4-1所示的体系和荷载。
此时荷载由简单正值的正弦半波函数组成。
4-1 图P4-1所示周期荷载的表达式如下所示,试用式(4 - 3)的方法确定系数a n 和b n ,将周期荷载表示成式(4- 1)形式的Fourier 级数。
4-2 对如图P4-2所示周期荷载,重做习题4-1。
4-3 假定结构有10%的临界阻尼,试求解例题E4-1的问题。
4-4 类似于图3-6那样,按规定比例建立一个表示作用力、稳态惯性力、阻尼力和弹性恢复力矢量的Argand 图。
假定结构具有15%的临界阻尼,承受谐振荷载()()t i p p t ϖexp 0=作用,其中()ωϖ5/6=(也即5/6=ω),在4/πϖ=t 时绘制图形。
4-5 周期荷载如图P4-3所示,可用如下级数表示()∑∞==1n sin t b p n n t ϖ 其中:()n n n p 12b 0−−=π对此荷载的一个完整周期,仅考虑级数的前四项,计算时的时间增量取为o 30=∆t ϖ,绘制图E4-la 所示结构稳态反应。
例题E5-1 作为一个利用上述反应谱(或震动谱)计算在冲击荷载下单自由度结构最大反应的例子,讨论图E5-1所示承受三角形冲击波荷载的单层建筑物体系的最大弹性力。
例题E5- 2 作为应用这个近似公式的一个例子,讨论图E5-2的结构在所示冲击荷载下的反应。
5-1 考察图2-1a中具有如下特性的基本动力体系:W= 600 lbf(m= W/g)而k=1000 lbf/in。
假定体系承受幅值为p0 = 500 lbf,持续时间为t1=0.15 s的半正弦冲击波(图5-2)。
试确定:(a)最大反应出现的时间;(b)由这个荷载引起的最大弹簧力;利用图5-6获得的结果来校核这个结果。
5-2 从零线性增大到峰值的三角形脉冲可用p (t)= p 0 (t/t 1)表示(0<t<t),(a)试推导在此荷载作用下从“静止”条件开始的单自由度结构反应的表达式; (b)如果ωπ/31=t ,试确定由此荷载引起的最大反应比kp R /0maxmax υ=。
5-3 一个四分之一余弦波脉冲用下式表示()t p p t ϖcos 0= ϖπ20<<t (a)试推导从静止开始由此脉冲荷载引起的反应表达式; (b)如果ωϖ=,试确定最大反应比kp R /0maxmax υ=5-4 图2-la 所示基本的单自由度体系,其特性为k= 20 kips/in ,m=4 kips ·s 2/in ,承受图5-5所示的三角形脉冲,其中p 0=15 kips ,t 1=0. 15T 。
(a)利用图5-6的震动反应谱,试确定最大弹性力max s f ;(b)利用式(5- 21),近似地计算最大位移和弹簧力,并与(a)所得结果比较。
5-5 图P5- la 所示的水塔可当作单自由度结构来处理,它具有如下特性:m=4 kips ·s 2/in ,k= 40 kips/in 。
由于爆炸的结果,水塔承受的动力荷载时程如图P5- 1b 所示。
利用式(5- 21)近似计算水塔基底的最大倾覆力矩M 0,并借助Simpson 法则计算冲量积分()∫++++∆=432104243dt p p p p p tp例题E6-1 现在来计算一个承受冲击波荷载的水塔的动力反应,以便说明根据式(6-14)求无阻尼时域反应的数值方法。
图E6-1给出了结构和冲击波荷载的理想化模型。
在数值积分中所用的时间增量为s 005.0=∆τ例题E6-2为了说明在Duhamel积分数值计算中可以包括阻尼,重新分析图E6-1所示阻尼比为5%(ξ=0.05)的体系的反应。
对于这个小阻尼体系来说,其阻尼频率可以认为等于无阻尼频率。
6-1 图P6-la 所示的无阻尼单自由度体系承受图P6- 1b 所示的半正弦波的荷载。
取s 1.0=∆τ,试用Duhamel 积分的数值计算法计算0<t<0.6s 的弹性力时程: (a)用简单求和;(b)用梯形法则;(c)用Simpson 法则。