(有全套图纸)蜗轮蜗杆传动减速器设计
- 格式:doc
- 大小:2.54 MB
- 文档页数:24
机械设计课程设计设计说明书题目设计者指导教师班级提交日期全套CAD图纸加153893706目录一、设计任务 (1)1、工作条件 (1)2、原始数据 (1)3、传动方案 (1)二、总体设计 (2)1、传动方案 (2)2、选择电机 (4)3、确定传动装置的总传动比和分配传动比 (5)4、减速器各轴转速、功率、转距的计算 (6)5、蜗轮蜗杆传动的设计 (7)6、轴的结构设计 (12)7、轴的校核 (16)8、平键联接计算 (19)9、滚动轴承校核 (20)10、润滑设计 (21)11、箱体及附件的设计 (22)三、设计心得与体会 (23)四、参考文献 (24)一设计任务1.题目F:设计一级蜗杆减速器,拉力F=7000N,速度v=0.538m/s,直径D=400mm,每天工作小时数:16小时,工作寿命:8年,工作天数(每年):300天,2.原始数据3.传动方案项目数据运输带拉力 F(KN)7000二 总体设计1、传动方案:已经给出,如第1页附图12、选择电动机(1)选择电动机的类型:无特殊要求,电机类型通常选用Y系列的三相笼型异步电动机,因其结构简单,工作可靠,价格低廉,维护方便。
(2)选择电动机的容量工作机所需功率为370.53810 3.76610001000w FV P KW KW KW ⨯⨯=== 式中g r c ηηη、、、1η分别为蜗轮蜗杆传动、一对滚动轴承、联轴器、工作机传动效率,。
取gη=0.8、r η=0.99、c η=0.99、10.95η=则312..a g r c ηηηηηη=⋅⋅=0.8×0.993×0.99×0.95×0.96=0.7电动机所需工作功率为: 3.7665.020.75wd aP P KW η===(3)确定电动机转速卷筒工作速度为6010006010000.538/min 25.71/min 400w v n r r D ππ⨯⨯⨯===⋅⋅按高等教育出版社出版的机械设计课程设计指导书表3-1,常见机械传动的主要性能推荐的传动比合理范围,一级蜗杆减速器传动比10~40,根据V 带的传动比范围2 ~4经查表按推荐的合理传动比范围,一级蜗杆减速器传动比范围为:10--80,可选择的电动机转速范围为nd=(10-80)×25.71=257.1--2056.8r/min 。
项目课程说明书题目:运输机减速器二级学院机械工程学院年级专业机械设计制造及其自动化学号学生姓名指导教师新余学院项目课程任务书二级学院:说明:此表一式叁份,学生、指导教师、二级学院各一份。
年月日目录1.电机选择 (1)2.选择传动比 (2)2.1总传动比 (3)2.2减速装置的传动比分配 (3)3.各轴的参数 (4)3.1各轴的转速 (4)3.2各轴的输入功率 (4)3.3各轴的输出功率 (4)3.4各轴的输入转矩 (4)3.5各轴的输出转矩 (5)3.6各轴的运动参数表 (6)4.蜗轮蜗杆的选择 (7)4.1选择蜗轮蜗杆的传动类型 (7)4.2选择材料 (7)4.3按计齿面接触疲劳强度计算进行设 (7)4.4蜗杆与蜗轮的主要参数与几何尺寸 (8)4.5校核齿根弯曲疲劳强度 (9)4.6验算效率 (10)4.7精度等级公差和表面粗糙度的确定 (10)5.轴的设计计算 (11)5.1蜗杆轴 (11)5.1.1按扭矩初算轴径 (11)5.1.2蜗杆的结构设计 (11)5.2蜗轮轴 (12)5.2.1输出轴的设计计算 (12)5.2.2轴的结构设计 (13)5.3蜗杆轴的校核 (14)5.3.1求轴上的载荷 (14)5.3.2精度校核轴的疲劳强度 (15)5.4蜗轮轴的强度校核 (18)5.4.1精度校核轴的疲劳强度 (20)5.4.2精度校核轴的疲劳强度 (20)6.滚动轴承的选择及校核计算 (24)6.1蜗杆轴上的轴承的选择和寿命计算 (24)6.2蜗杆轴上轴承的选择计算 (25)7.键连接的选择及校核计算 (29)7.1输入轴与电动机轴采用平键连接 (29)7.2输出轴与联轴器连接采用平键连接 (29)7.3输出轴与蜗轮连接用平键连接 (29)8.联轴器的选择计算 (31)8.1与电机输出轴的配合的联轴器 (31)8.2与一级齿轮降速齿轮轴配合的联轴器........................................................ 错误!未定义书签。
蜗轮蜗杆减速器(带式输送机传动装置) 蜗轮蜗杆减速器(带式输送机传动装置)蜗轮蜗杆减速器是一种常见的传动装置,广泛应用于工业生产中的带式输送机。
它使用蜗轮和蜗杆来实现减速传动的功能,具有稳定性高、传动效率高等特点。
本文将从结构原理、工作原理及应用领域等方面进行介绍。
1. 结构原理蜗轮蜗杆减速器主要由蜗轮、蜗杆、轴承、外壳等部分组成。
蜗轮是一种呈圆盘状的齿轮,蜗杆则是一种呈螺旋形的直轴,两者结合构成传动机构。
轴承则用来支撑和固定蜗轮、蜗杆等部件。
外壳则起到保护内部部件的作用。
蜗轮蜗杆减速器的传动原理是利用蜗轮的齿轮与蜗杆螺旋副的啮合传动,通过蜗轮不断旋转并与蜗杆相互啮合,实现输入轴的旋转转换为输出轴的减速转动。
2. 工作原理蜗轮蜗杆减速器的工作原理如下:1. 输入轴带动蜗轮旋转,蜗轮的旋转将沿螺旋线方向移动的蜗杆推动进行旋转。
2. 蜗杆的旋转使输出轴相对于输入轴发生减速旋转。
3. 通过合理的传动比设计,可以实现输入轴的高速旋转转换为输出轴的低速大扭矩旋转。
蜗轮蜗杆减速器的工作原理基于蜗杆的螺旋结构,蜗杆与蜗轮之间的啮合接触点逐渐增多,从而使得传动效率较高,也能实现较大的减速比。
3. 应用领域蜗轮蜗杆减速器广泛应用于带式输送机传动装置中。
带式输送机作为一种常见的物料传输设备,被广泛应用在矿山、港口、电厂、化工等行业。
蜗轮蜗杆减速器在带式输送机中的应用主要体现在以下几个方面:- 提供稳定的传动力矩:蜗轮蜗杆减速器能够提供较大的扭矩输出,使得带式输送机能够承受较大的物料负荷,并保持稳定的运行。
- 实现减速传动:带式输送机的传动要求通常是低速、大扭矩的传动,蜗轮蜗杆减速器正是满足这一需求的理想选择。
- 保证输送线速度稳定:蜗轮蜗杆减速器的传动比是固定的,能够通过合理设计,保证输送带的线速度稳定,从而实现物料输送的稳定性。
除了带式输送机传动装置,蜗轮蜗杆减速器还能够应用于其他需要减速传动的设备,如搅拌设备、切削设备等。
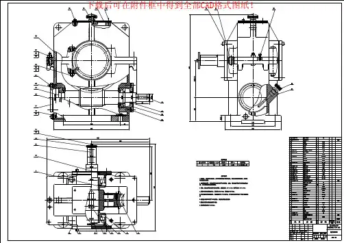
蜗轮蜗杆减速器设计书一、二、传动装置总体设计:根据要求设计单级蜗杆减速器,传动路线为:电机——连轴器——减速器——连轴器——带式运输机。
(如图 2.1所示)图2.1根据生产设计要求可知,该蜗杆的圆周速度V≤4——5m/s,所以该蜗杆减速器采用蜗杆下置式见(如图2.2所示),采用此布置结构,由于蜗杆在蜗轮的下边,啮合处的冷却和润滑均较好。
蜗轮及蜗轮轴利用平键作轴向固定。
蜗杆及蜗轮轴均采用圆锥滚子轴承,承受径向载荷和轴向载荷的复合作用,为防止轴外伸段箱内润滑油漏失以及外界灰尘,异物侵入箱内,在轴承盖中装有密封元件。
图2.1 该减速器的结构包括电动机、蜗轮蜗杆传动装置、蜗轮轴、箱体、滚动轴承、检查孔与定位销等附件、以及其他标准件等。
图2.2三、电动机的选择:由于该生产单位采用三相交流电源,可考虑采用Y 系列三相异步电动机。
三相异步电动机的结构简单,工作可靠,价格低廉,维护方便,启动性能好等优点。
一般电动机的额定电压为380V根据生产设计要求,该减速器卷筒直径D=350mm 。
运输带的有效拉力F=6000N ,带速V=0.5m/s ,载荷平稳,常温下连续工作,工作环境多尘,电源为三相交流电,电压为380V 。
1、按工作要求及工作条件选用三相异步电动机,封闭扇冷式结构,电压为380V ,Y 系列 2、传动滚筒所需功率3、传动装置效率:(根据参考文献《机械设计基础课程设计》 陈立德主编 高等教育出版社 第6-7页表.-3得各级效率如下)其中: 蜗杆传动效率η1=0.70 滚动轴承效率(一对)η2=0.98 联轴器效率η3=0.99 传动滚筒效率η4=0.96 所以:ηw=η1•η23•η32•η4 =0.7×0.983×0.992×0.96 =0.626 r/min电动机所需功率: P r = P w /η =3.0/0.633=4.7KW传动滚筒工作转速: n =60×1000×v / ×400=62.1r/min按推荐的合理传动比范围,取蜗杆传动比i 1 =8-40 根据(《机械设计基础》 陈立德主编 高等教育出版社 第263页表13.5,故电动机可选范围为Nd=i ’•ηw=(8-40)×62.1 r/minNd=497-2484 r/min符合这一范围的同步转速的有;720 r/min , 970 r/min , 1440 r/min , 2900 r/min,根据(《机械设计基础课程设计指导书》陈立德主编 高等教育出版社 第119-120页 附表8.1如图表3-1表3-1方案1-2电动机转速低,外廓尺寸及重量较大,价格较高,导致传动装置尺寸较大。
燕山大学机械设计课程设计说明书题目:带式输送机传动装置学院(系):机械工程学院年级专业:学号:学生姓名:指导教师:目录一、传动方案分析 (1)1.蜗杆传动 (1)2.斜齿轮传动 (1)二.电动机选择计算 (1)1.原始数据 (1)2.电动机型号选择 (1)三.总传动比确定及各级传动比分配 (3)四.传动装置的运动和动力参数 (3)五.传动零件的设计计算 (4)1.蜗杆蜗轮的选择计算 (4)2.齿轮传动选择计算 (9)六.轴的设计和计算 (17)1.初步计算轴径 (17)2.轴的结构设计 (17)3.输出轴的弯扭合成强度计算 (19)七. 角接触轴承的选择校核 (22)八.键的选择 (24)九.传动装置的附件及说明 (25)十.联轴器的选择 (26)十一.润滑和密封说明 (27)1.润滑说明 (27)2.密封说明 (27)十二.拆装和调整的说明 (27)十三.设计小结 (27)十四.参考资料 (29)=95'24"4.66=9.091.375⨯=.399%<60C C+1.66 1.06cos100.992=0.78⨯0.992=361.27mm3.7559.5mm 2 3.75247.5mm⨯=⨯=mm mm蜗杆的初步设计如下图:轴的径向尺寸:当直径变化处的端面用于固定轴上零件或承受轴向力时,直径变化值要大些,可取(3~8)mm,否则可取(1~3)mm或者更小。
轴的轴向尺寸:轴上安装传动零件的轴段长度是由所装零件的轮毂宽度决定的,而轮毂宽度一般是和轴的直径有关,确定了直径,即可确定轮毂宽度。
轴的端面与零件端面应留有距离L,以保证零件端面与套筒接触起到轴向固定作用,一般可取L=(1~3)mm。
轴上的键槽应靠近轴的端面(1~3)mm 处。
中间轴的初步设计如下图:装配方案:左端:从左到右依次安装角接触轴承、挡油板和小齿轮;右端:从右到左依次安装角接触轴承、挡油板、蜗轮。
输出轴的初步设计如下图:装配方案:左端:从左到右依次安装角接触轴承、甩油板、大齿轮;右端:从右到左依次安装联轴器、密封圈、角接触轴承、甩油板。
蜗轮蜗杆齿轮减速器设计说明书蜗轮蜗杆齿轮减速器设计说明书一、引言本文档旨在提供蜗轮蜗杆齿轮减速器设计的详细说明。
减速器是一种常用于机械设备的传动装置,通过将高速旋转的输入轴转换成低速并具有更大扭矩的输出轴,以适应不同工作环境和需求。
二、设计要求本章详细描述蜗轮蜗杆齿轮减速器设计的要求,包括但不限于:1.减速比要求2.输出扭矩要求3.输入功率限制4.设计寿命要求等三、设计原理本章介绍蜗轮蜗杆齿轮减速器的设计原理,并详细阐述蜗杆传动、蜗轮传动和齿轮传动的工作原理,以便更好地理解减速器的工作方式和特点。
四、设计参数计算本章详细说明蜗轮蜗杆齿轮减速器设计过程中涉及的各项参数计算方法,包括蜗杆蜗轮的齿数、模数、齿宽等参数的计算方法,并给出具体的计算示例。
五、零件选型本章常用的蜗轮蜗杆齿轮减速器的相关标准,并介绍如何根据设计要求和参数计算结果进行零件的选型,包括蜗轮、蜗杆、齿轮和轴承等。
六、结构设计本章详细描述蜗轮蜗杆齿轮减速器的结构设计过程,包括各个零件的布局、装配方式、皮带传动装置的设计等。
七、强度校核本章介绍蜗轮蜗杆齿轮减速器的强度校核方法,包括齿轮强度校核、轴承强度校核和装配强度校核等。
八、润滑与密封本章介绍蜗轮蜗杆齿轮减速器的润滑和密封设计要求,包括润滑方式的选择、润滑油的选用和密封装置设计等。
九、安全与可靠性本章重点阐述蜗轮蜗杆齿轮减速器的安全与可靠性设计要求和考虑因素,以确保减速器的正常、安全、可靠运行。
十、附件本文档涉及的附件如下:1.设计图纸:包括装配图、零件图和尺寸图等。
2.计算数据表格:包括参数计算结果和零件选型结果等。
3.测试报告:包括减速器性能测试结果等。
附:法律名词及注释1.著作权:指法律对著作成果所赋予的权利和义务的总称。
2.专利权:指法律对发明创造者在技术领域所创造的技术方案所给予的专有权利。
目录一、课程设计任务书 (2)二、传动方案 (3)三、选择电动机........................................................................ 错误!未定义书签。
四、计算传动装置的总传动比及其分配各级传动比.............. 错误!未定义书签。
五、传动装置的运动和动力参数.............................................. 错误!未定义书签。
六、确定蜗杆的尺寸.................................................................. 错误!未定义书签。
七、减速器轴的设计计算.......................................................... 错误!未定义书签。
八、键联接的选择与验算........................................................ 错误!未定义书签。
九、密封和润滑.......................................................................... 错误!未定义书签。
十、铸铁减速器箱主要结构尺寸.............................................. 错误!未定义书签。
十一、减速器附件的设计.......................................................... 错误!未定义书签。
十二、小结.. (5)十三、参考文献 (5)一、课程设计任务书2007—2008学年第 1 学期机械工程学院(系、部)材料成型及控制工程专业 05-1 班级课程名称:机械设计设计题目:蜗轮蜗杆传动减速器的设计完成期限:自 2007年 12 月 31 日至 2008年 1 月 13 日共 2 周指导教师(签字):年月日系(教研室)主任(签字):年月日选A型,则:[1]、《机械设计》(第八版)濮良贵,纪名刚主编[2]、《机械设计课程设计》金清肃主编华中科技大学出版社。
目录
一、课程设计任务书 (2)
二、传动方案 (3)
三、选择电动机 (3)
四、计算传动装置的总传动比及其分配各级传动比 (5)
五、传动装置的运动和动力参数 (5)
六、确定蜗杆的尺寸 (6)
七、减速器轴的设计计算 (9)
八、键联接的选择与验算 (17)
九、密封和润滑 (18)
十、铸铁减速器箱主要结构尺寸 (18)
十一、减速器附件的设计 (20)
十二、小结 (23)
十三、参考文献 (23)
一、课程设计任务书
2007—2008学年第 1 学期
机械工程学院(系、部)材料成型及控制工程专业 05-1 班级课程名称:机械设计
设计题目:蜗轮蜗杆传动减速器的设计
完成期限:自 2007年 12 月 31 日至 2008年 1 月 13 日共 2 周
指导教师(签字):年月日
系(教研室)主任(签字):年月日
二、传动方案
我选择蜗轮蜗杆传动作为转动装置,传动方案装置如下:
三、选择电动机
1、电动机的类型和结构形式
按工作要求和工作条件,选用选用笼型异步电动机,封闭式结构,电压380v,
Y型。
2、电动机容量
工作机所需功率
w
p
KW
Fv
p
w
w
30
.1
96
.0
1000
5.2
500
1000
=
⨯
⨯
=
=
η
根据带式运输机工作机的类型,可取工作机效率96
.0
=
w
η。
电动机输出功率
d
p
η
w
d
p
p=
传动装置的总效率
4
3
3
2
2
1
η
η
η
η
η⋅
⋅
⋅
=
式中,
2
1
η
η、…为从电动机至卷筒之间的各传动机构和轴承的效率。
由表10-2
KW
P
w
3.1
=
电动机外形尺寸:
四、计算传动装置的总传动比及其分配各级传动比
传动装置总传动比:
由选定的电动机满载转速m n 和工作机主轴的转速n ,可得传动装置的传动比是:
98.82
.1591430===
n n i m 所得i 符合单级蜗杆减速器传动比的常用范围。
五、传动装置的运动和动力参数
1、各轴转速
1n 为蜗杆的转速,因为和电动机用联轴器连在一起,其转速等于电动机的转
速,则:
min /14301r n n m ==
2n 为蜗轮的转速,由于和工作机连在一起,其转速等于工作主轴转速,则:
m in /2.1592r n n ==
各轴输入功率
按电动机额定功率cd P 计算各轴输入功率,设1P 为蜗杆轴的功率,2P 为蜗轮轴的功率,3P 为工作机主轴的功率。
则:
KW P P cd 178.299.02.211=⨯=⋅=η KW P P 028.298.095.0178.22312≈⨯⨯=⋅⋅=ηη
98.8=i
m in
/14301r n =
m in
/2.1592r n =
KW
P KW P KW P 889.1028.2178.2321===
2.1=p f
N C 8731)72000101430
60(144.5302.13
101
6
≈⨯⨯⨯⨯=
从参考文献2中查表13-2得: 轴承型号 外形尺寸(mm ) 安装尺寸(mm ) 基本额定动载荷 C r /kN
基本额定
静载荷
C r /kN
7000AC
d D B d a min D a max r a
max
30 55 13 36 49 1 14.5 9.85
因此轴环处的直径d 34=d 78=30mm,而L 78=18mm 。
右端滚动轴承采用轴肩进行轴向
定位。
由手册上查得6006型轴承轴肩高度h=6mm ,因此,取d 67=d 45=42mm 。
所选轴承的外形如下图所示:
由已知可以取齿宽b 1=25mm ,蜗杆齿顶圆直径为45mm ,齿根圆直径为30mm ,
齿顶圆左端长10mm ,右端长15mm 。
参考文献1表15-2取轴端倒角为︒⨯452。
蜗杆轴的校核
N C 8731=
设蜗杆齿宽的法向中心线的有侧长为L ',左侧的长度为L '',则: mm
L L L mm L mm
L 26817494=''+'==''='
水平面的支承反力(图a )
N
L L F F N
L L F F t h t h 42.287268
9444.81902.532268
17444.8191211=⨯='⨯==⨯=''⨯=
垂直面的支承反力(图b )
N
L M L F F N L L F M F mm N d F M a r v r a v a a 53.89268
5.258689444.53091.440268
17444.5305.2586850.258682
5
.3538.14572121111≈-⨯=-'⋅=≈⨯+=''⋅+=⋅≈⨯=⨯=
mm
L mm L mm L 26817494==''='
N
F N F h h 42.28702.53221==
N
F N F m N M v v a 53.8991.44087.2521==⋅=
mm
N M M M mm N M M M v h v h ⋅≈-+=+=⋅≈+=+=96.89262)62.3397(8.882515.10399086.550058.882512
2
2
22
2222
121
该轴所受扭矩为: mm N T ⋅=1216552
按弯扭合成应力校核轴的强度
由图可知轴承上截面C 为危险截面,根据文献1式(15-5)及以上数据,以及轴单向旋转,扭转切应力为脉动循环变应力,取α=0.6,轴的计算应力
()()
MPa MPa W
T M ca 05.13461.01216556.05.1039903
2
22
121=⨯⨯+=+=
ασ
前已选定轴的材料为45钢,调质处理,由文献1表15-1查得MPa 60][1=-σ。
因此ca σ<][1-σ,故安全。
由于轴的最小直径是按扭转强度很宽裕地确定的,由蜗杆轴受力情况知截面C 处应力最大,但其轴径也较大,且应力集中不大,各处应力集中都不大,故蜗杆轴疲劳强度不必校核。
m
N M m
N M ⋅=⋅=26.8910421
a ca MP 05.13=σ
外箱壁至轴承座端面距离 1l )10~5(21++C C
40 蜗轮顶圆与内壁的距离 1∆
δ2.1≥ 10 蜗轮轮毂端面与内壁距离
2∆
δ≥
10
箱盖、箱座肋厚
m
m 1
δ
δ85.085.011≈≈m m
7
7
1==m m
轴承端盖外径 2D 3)5.5~5(d D +
110 轴承旁联结螺栓距离 S
2D S =
110
十一、减速器附件的设计
1、窥视孔及视孔盖
参考文献2表4-3得:
1l
2l
3l 4l 1b
2b 3b
d
δ
R
直径 孔数 90
75
60
-
70
55
40
7
4
4
5
2、通气器
由已知选5.118⨯M 型号 外型安装图:
放油孔的位置
外六角螺塞、封油垫圈
5、起盖螺钉
起盖螺钉设置在箱盖连接凸缘上,其螺纹有效长度应大于箱盖凸缘的厚度。
长度L=15mm 6、定位销
外型尺寸:
选A 型,则:
mm
b b l d d 2412128~710)8.0~7.0()8.0~7.0(12=+=+≥=⨯==
则可得下表: 公称直径d
a c
l
8 1.0 1.6 25
7、起吊装置
为便于拆卸和搬运减速器,应在箱体上设置起吊装置,综合考虑选择吊耳。
查参考文献2表4-14得吊耳外形尺寸如下表:
3c 4c b R
1r
r 1)5~4(δ 3)5.1~3.1(c 12δ 4c 3225.0c 3275.0c
1δ为箱盖厚度
吊环螺钉的外形图如下:
十二、小 结
从整体上来说通过详细的计算和仔细的校核并且结合了实际情况,设计的过程基本正确,结果基本合理,可以满足设计的要求。
课程设计使我们对所学的知识得到了一次系统,完整的复习,让我们初步了解到机械的选择、设计与加工基本知识。
课程设计的过程中,进一步增强了数据的处理和一些细节处理的能力。
在设计的过程中,还有一些小的问题还未能处理的很好,我会努力找的到不足,多加注意,以便以后能做的更好。
十三、参考文献
[1]、《机械设计》(第八版)濮良贵,纪名刚主编 高等教育出版社。
[2]、《机械设计课程设计》金清肃主编 华中科技大学出版社。