钣金展开图计算方法
- 格式:doc
- 大小:32.50 KB
- 文档页数:3
当前位置: > >钣金展开图计算方法钣金展开图计算方法一般铁板0.5—4MM之内的都是A + B - 1.645 T。
(A,B代表的是折弯的外形尺寸,T就是板厚)计算方法是工件的外形尺寸相加,再减去1.645 * 板厚* 折弯的次数,例如,折一个40 * 60的”U”形槽钢用T=3.0的冷板折,那么计算方法就是40+40+60(外形尺寸相加)—1.645(系数)* 3(板厚)* 2(弯的个数)=130.13(下料尺寸)一般6毫米之内都是这样计算的了展开的计算法板料在弯曲过程中外层受到拉应力,内层受到压应力,从拉到压之间有一既不受拉力又不受压力的过渡层--中性层,中性层在弯曲过程中的长度和弯曲前一样,保持不变,所以中性层是计算弯曲件展开长度的基准.中性层位置与变形程度有关, 当弯曲半径较大,折弯角度较小时,变形程度较小,中性层位置靠近板料厚度的中心处,当弯曲半径变小, 折弯角度增大时,变形程度随之增大,中性层位置逐渐向弯曲中心的内侧移动.中性层到板料内侧的距离用λ表示.展开的基本公式:展开长度=料内+料内+补偿量一般折弯:(R=0, θ=90°)L=A+B+K0.3时, K=0≤T'1. 当02. 对于铁材:(如GI,SGCC,SECC,CRS,SPTE, SUS等)1.5时, K=0.4T'T'a. 当0.32.5时, K=0.35T'T≤b. 当1.52.5时, K=0.3T/c. 当T3. 对于其它有色金属材料如AL,CU:0.3时,∃当T K=0.5T2.0时, 按R=0处理.≤注: R一般折弯(R≠0 θ=90°)L=A+B+KK值取中性层弧长1.5 时'1. 当T λ=0.5T1.5时/2. 当T λ=0.4T一般折弯(R=0 θ≠90°)L=A+B+K’0.3 时≤1. 当T K’=00.3时∃2. 当T /90)*KυK’=(注: K为90∘时的补偿量一般折弯(R≠0 θ≠90°)L=A+B+K1.5 时'1. 当T λ=0.5T1.5时/2. 当T λ=0.4TK值取中性层弧长注: 2.0, 且用折刀加工时, 则按R=0来计算, A、B依倒零角后的直边长度取值'当RZ折1(直边段差).5T时, 分两次成型时,按两个90°折弯计算/1. 当H5T时, 一次成型, L=A+B+K'2. 当HK值依附件中参数取值Z折2(非平行直边段差).展开方法与平行直边Z折方法相同(如上栏),高度H取值见图示Z折3(斜边段差).2T时'1. 当H当θ≤70∘时,按Z折1(直边段差)的方式计算, 即:ϕ展开长度=展开前总长度+K (此时K=0.2) 当θκ>70∘时完全按Z折1(直边段差)的方式计算2T时, 按两段折弯展开(R=0 θ≠90°)./2. 当HZ折4(过渡段为两圆弧相切):1. H≤2T 段差过渡处为非直线段为两圆弧相切展开时,则取两圆弧相切点处作垂线,以保证固定边尺寸偏移以一个料厚处理,然后按Z折1(直边段差)方式展开2. H>2T,请示后再行处理抽孔抽孔尺寸计算原理为体积不变原理,即抽孔前后材料体积不变;一般抽孔,按下列公式计算, 式中参数见右图(设预冲孔为X, 并加上修正系数–0.1):1. 若抽孔为抽牙孔(抽孔后攻牙), 则S按下列原则取值:T≤0.5时取S=100%T0.5<T<0.8时取S=70%TT≥0.8时取S=65%T一般常见抽牙预冲孔按附件一取值2. 若抽孔用来铆合, 则取S=50%T, H=T+T’+0.4 (注: T’是与之相铆合的板厚, 抽孔与色拉孔之间隙为单边0.10~0.15)3. 若原图中抽孔未作任何标识与标注, 则保证抽孔后内外径尺寸;4. 当预冲孔径计算值小于1.0时, 一律取1.0反折压平L= A+B-0.4T1. 压平的时候,可视实际的情况考虑是否在折弯前压线,压线位置为折弯变形区中部;2. 反折压平一般分两步进行V折30°反折压平故在作展开图折弯线时, 须按30°折弯线画, 如图所示:N折1. 当N折加工方式为垫片反折压平, 则按L=A+B+K 计算, K值依附件中参数取值.2. 当N折以其它方式加工时, 展开算法参见“一般折弯(R≠0 θ≠90°)”3. 如果折弯处为直边(H段),则按两次折弯成形计算:L=A+B+H+2K (K=90∘展开系数)备注:a.标注公差的尺寸设计值:取上下极限尺寸的中间值作设计标准值.b.对于方形抽孔和外部包角的展开,其角部的处理方法参照<产品展开工艺处理标准>,其直壁部分按90°折弯展开。
一、展开计算原理板料在弯曲过程中外层受到拉应力,内层受到压应力,理论上内外层之间有一既不受拉也不受压的过渡层------中性层,中性层为一假想层,在弯曲过程中中性层被假想为与弯曲前状态保持一致,即长度始终不变,所以中性层是计算弯曲件长度的基准。
中性层位置与变形程度有关,当弯曲半径较大,折弯角度较小时,变形程度较小,中性层位置靠近板料厚度的中心处;当弯曲半径变小,折弯角度增大时,变形程度随之增大。
中性层位置逐渐向弯曲中心的内侧移动。
中性层到板料内侧的距离用A表示(图1)。
二、折弯方法的确定折弯方法有单发冲床模具折弯和折弯机模具折弯两种方法。
单发冲床模具折弯的方式及精度是由模具来实现的。
因此只要做出合格的模具,就能够生产出合格的折弯产品。
而采用折弯机折弯不仅需要选用合适的折弯模,还必须调试折弯参数。
因此,如采用折弯机折弯,计算展开尺寸时就必须考虑折弯机的折弯方法。
1.一次一道弯。
此种折弯由普通通用折弯模来完成。
包括折直角,钝角和锐角(图2)。
2. 一次折两道弯——压锻差。
此种折弯由专用特殊模来完成,但折弯难度比普通折弯大(图3)。
3. 压死边。
此种折弯也须用特殊模来完成(图4)。
4.大R圆弧折弯。
些种折弯如R在一定范围内,可用专用R模压成形,如R值过大,则须用小R模多次压制成形(图5)。
这四种折弯的展开计算是不同的。
因此在看图时,要根据零件的折弯尺寸来确定使用何种折弯方法。
其折弯机所配套的普通通用折弯模具V形槽宽度通常为适用该折弯模的板厚的5-6倍。
如采用一次折一道弯的方法,必须考虑到折弯模的V形槽的宽度W1及V形槽一边到模具外侧的宽度L1,如图6所示。
折弯高度H的经验值根据产品形状有如下三种(以90度为例,钝角和锐角与直角相近相似)。
1.简单的90度单边折弯(图7)。
如图7所示,此种折弯只需考虑下模V形槽中心到折弯机定位挡块的距离即可确定。
通常H值为H≥3.5 T + R (R 在1mm 以下)。
钣金展开计算方法钣金展开计算是钣金工艺中的重要内容,也是完成钣金产品制作的关键步骤之一、钣金展开计算的目的是根据钣金产品的三维图纸,确定其展开长度和表面形状,以便进行钣金零件的切割和加工。
钣金展开计算主要包括平展面展开和曲面展开两种方法。
平展面展开是指将平面图形进行展开,形成展开图。
平展面展开计算方法主要适用于钣金产品的各种平面零件,如箱体、支架等。
(1)定积法展开计算方法:该方法适用于钣金产品的部分各种平面形状,如圆筒、弯管等。
定积法展开计算需要确定钣金材料的长度、重量、宽度等参数。
具体计算步骤如下:1)根据钣金产品的图纸,确定钣金的外径、内径、高度等参数。
2)计算钣金的周长和截面积,得到钣金的长度和重量。
3)根据钣金的长度和宽度,计算出钣金的展开图纸。
4)根据展开图纸进行钣金零件的切割和加工。
(2)图形展开计算方法:该方法适用于钣金产品的各种复杂平面形状,如弯曲的盖板、折弯的箱体等。
图形展开计算需要根据钣金产品的图纸,利用图形的几何关系和三角函数等知识进行计算。
具体计算步骤如下:1)根据钣金产品的图纸,将图纸投影到平面上。
2)根据图纸上的线段长度和角度,利用几何关系和三角函数等知识,推导出展开图形的边长和角度。
3)根据展开图形的边长和角度,计算出展开图纸。
4)根据展开图纸进行钣金零件的切割和加工。
曲面展开是指将曲面图形进行展开,形成展开图。
曲面展开计算方法主要适用于钣金产品的各种曲面零件,如球体、圆锥体等。
曲面展开计算方法较为复杂,需要借助计算机辅助设计和数学知识进行计算。
常用的曲面展开计算方法有拉伸展开法、分割展开法和均分展开法等。
具体计算步骤如下:1)根据钣金产品的图纸,将曲面投影到平面上。
2)根据曲面的曲率半径和展开的高度,进行拉伸和分割。
3)利用数学知识,计算出展开图形的边长和曲率。
4)根据展开图形进行钣金零件的切割和加工。
当前位置: > >钣金展开图计算方法钣金展开图计算方法一般铁板0.5—4MM之内的都是A + B - 1.645 T。
(A,B代表的是折弯的外形尺寸,T就是板厚)计算方法是工件的外形尺寸相加,再减去1.645 * 板厚* 折弯的次数,例如,折一个40 * 60的”U”形槽钢用T=3.0的冷板折,那么计算方法就是40+40+60(外形尺寸相加)—1.645(系数)* 3(板厚)* 2(弯的个数)=130.13(下料尺寸)一般6毫米之内都是这样计算的了展开的计算法板料在弯曲过程中外层受到拉应力,内层受到压应力,从拉到压之间有一既不受拉力又不受压力的过渡层--中性层,中性层在弯曲过程中的长度和弯曲前一样,保持不变,所以中性层是计算弯曲件展开长度的基准.中性层位置与变形程度有关, 当弯曲半径较大,折弯角度较小时,变形程度较小,中性层位置靠近板料厚度的中心处,当弯曲半径变小, 折弯角度增大时,变形程度随之增大,中性层位置逐渐向弯曲中心的内侧移动.中性层到板料内侧的距离用λ表示.展开的基本公式:展开长度=料内+料内+补偿量一般折弯:(R=0, θ=90°)L=A+B+K0.3时, K=0≤T'1. 当02. 对于铁材:(如GI,SGCC,SECC,CRS,SPTE, SUS等)1.5时, K=0.4T'T'a. 当0.32.5时, K=0.35T'T≤b. 当1.52.5时, K=0.3T/c. 当T3. 对于其它有色金属材料如AL,CU:0.3时,∃当T K=0.5T2.0时, 按R=0处理.≤注: R一般折弯(R≠0 θ=90°)L=A+B+KK值取中性层弧长1.5 时'1. 当T λ=0.5T1.5时/2. 当T λ=0.4T一般折弯(R=0 θ≠90°)L=A+B+K’0.3 时≤1. 当T K’=00.3时∃2. 当T /90)*KυK’=(注: K为90∘时的补偿量一般折弯(R≠0 θ≠90°)L=A+B+K1.5 时'1. 当T λ=0.5T1.5时/2. 当T λ=0.4TK值取中性层弧长注: 2.0, 且用折刀加工时, 则按R=0来计算, A、B依倒零角后的直边长度取值'当RZ折1(直边段差).5T时, 分两次成型时,按两个90°折弯计算/1. 当H5T时, 一次成型, L=A+B+K'2. 当HK值依附件中参数取值Z折2(非平行直边段差).展开方法与平行直边Z折方法相同(如上栏),高度H取值见图示Z折3(斜边段差).2T时'1. 当H当θ≤70∘时,按Z折1(直边段差)的方式计算, 即:ϕ展开长度=展开前总长度+K (此时K=0.2) 当θκ>70∘时完全按Z折1(直边段差)的方式计算2T时, 按两段折弯展开(R=0 θ≠90°)./2. 当HZ折4(过渡段为两圆弧相切):1. H≤2T 段差过渡处为非直线段为两圆弧相切展开时,则取两圆弧相切点处作垂线,以保证固定边尺寸偏移以一个料厚处理,然后按Z折1(直边段差)方式展开2. H>2T,请示后再行处理抽孔抽孔尺寸计算原理为体积不变原理,即抽孔前后材料体积不变;一般抽孔,按下列公式计算, 式中参数见右图(设预冲孔为X, 并加上修正系数–0.1):1. 若抽孔为抽牙孔(抽孔后攻牙), 则S按下列原则取值:T≤0.5时取S=100%T0.5<T<0.8时取S=70%TT≥0.8时取S=65%T一般常见抽牙预冲孔按附件一取值2. 若抽孔用来铆合, 则取S=50%T, H=T+T’+0.4 (注: T’是与之相铆合的板厚, 抽孔与色拉孔之间隙为单边0.10~0.15)3. 若原图中抽孔未作任何标识与标注, 则保证抽孔后内外径尺寸;4. 当预冲孔径计算值小于1.0时, 一律取1.0反折压平L= A+B-0.4T1. 压平的时候,可视实际的情况考虑是否在折弯前压线,压线位置为折弯变形区中部;2. 反折压平一般分两步进行V折30°反折压平故在作展开图折弯线时, 须按30°折弯线画, 如图所示:N折1. 当N折加工方式为垫片反折压平, 则按L=A+B+K 计算, K值依附件中参数取值.2. 当N折以其它方式加工时, 展开算法参见“一般折弯(R≠0 θ≠90°)”3. 如果折弯处为直边(H段),则按两次折弯成形计算:L=A+B+H+2K (K=90∘展开系数)备注:a.标注公差的尺寸设计值:取上下极限尺寸的中间值作设计标准值.b.对于方形抽孔和外部包角的展开,其角部的处理方法参照<产品展开工艺处理标准>,其直壁部分按90°折弯展开。
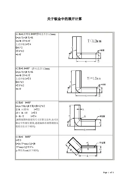
关于钣金中的展开计算4.1 R=0,折彎角θ=90°(T<1.2,不含1.2mm)L=(A-T)+(B-T)+K=A+B-2T+0.4T上式中取:λ=T/4K=λ*/2=T/4*π/2=0.4T4.2 R=0, θ=90°(T≧1.2,含1.2mm)L=(A-T)+(B-T)+K=A+B-2T+0.5T上式中取:λ=T/3K=λ*π/2=T/3*π/2=0.5T4.3 R≠0θ=90°L=(A-T-R)+(B-T-R)+(R+λ)*π/2當R ≧5T時λ=T/21T≦R <5T λ=T/30 < R <T λ=T/4(實際展開時除使用尺寸計算方法外,也可在確定中性層位置後,通過偏移再實際測量長度的方法.以下相同)4.4 R=0 θ≠90°λ=T/3L=[A-T*tan(a/2)]+[B-T*tan(a/2)]+T/3*a(a單位為rad,以下相同)4.5 R≠0θ≠90°L=[A-(T+R)* tan(a/2)]+[B-(T+R)*tan(a/2)]+(R+λ)*a當R ≧5T時λ=T/21T≦R <5T λ=T/30 < R <T λ=T/44.6 Z折1.計算方法請示上級,以下幾點原則僅供參考: (1)當C≧5時,一般分兩次成型,按兩個90°折彎計算.(要考慮到折彎沖子的強度)L=A-T+C+B+2K(2)當3T<C<5時<一次成型>:L=A-T+C+B+K(3)當C≦3T時<一次成型>:L=A-T+C+B+K/24.7 Z折2.C≦3T時<一次成型>:L=A-T+C+B+D+K4.8 抽芽抽芽孔尺寸計算原理為體積不變原理,即抽孔前后材料體積不變;ABCD四邊形面積=GFEA所圍成的面積.一般抽孔高度不深取H=3P(P為螺紋距離),R=EF見圖∵T*AB=(H -EF)*EF+π*(EF)2/4∴AB={H*EF+(π/4-1)*EF2}/T∴預沖孔孔徑=D – 2ABT≧0.8時,取EF=60%T.在料厚T<0.8時,EF的取值請示上級.4.9 方形抽孔方形抽孔,當抽孔高度較高時(H>Hmax),直邊部展開與彎曲一致, 圓角處展開按保留抽高為H=Hmax的大小套彎曲公式展開,連接處用45度線及圓角均勻過渡, 當抽孔高度不高時(H≦Hmax)直邊部展開與彎曲一致,圓角處展開保留與直邊一樣的偏移值.以下Hmax取值原則供參考.當R≧4MM時:材料厚度T=1.2~1.4取Hmax =4T材料厚度T=0.8~1.0取Hmax =5T材料厚度T=0.7~0.8取Hmax =6T材料厚度T≦0.6取Hmax =8T當R<4MM時,請示上級.4.10壓縮抽形1 (Rd≦1.5T)原則:直邊部分按彎曲展開,圓角部分按拉伸展開,然后用三點切圓(PA-P-PB)的方式作一段與兩直邊和直徑為D的圓相切的圓弧.當Rd≦1.5T時,求D值計算公式如下:D/2=[(r+T/3)2+2(r+T/3)*(h+T/3)]1/24.11壓縮抽形2 (Rd>1.5T)原則:直邊部分按彎曲展開,圓角部分按拉伸展開,然后用三點切圓(PA-P-PB)的方式作一段與兩直邊和直徑為D的圓相切的圓弧.當Rd>1.5T時:l按相應折彎公式計算.D/2={(r+T/3)2+2(r+T/3)*(h+T/3)-0.86*(Rd-2T/3)*[(r+T/3)+0.16*(Rd-2T/3)]}1/24.12捲圓壓平圖(a): 展開長度L=A+B-0.4T圖(b): 壓線位置尺寸A-0.2T圖(c): 90°折彎處尺寸為A+0.2T圖(d): 捲圓壓平後的產品形狀4.13側沖壓平圖(a): 展開長度L=A+B-0.4T圖(b): 壓線位置尺寸A-0.2T圖(c): 90°折彎處尺寸為A+1.0T圖(d): 側沖壓平後的產品形狀4.14 綜合計算如圖:L=料內+料內+補償量=A+B+C+D+中性層弧長(AA+BB+CC)(中性層弧長均按“中性層到板料內側距離λ=T/3”來計算)備註:a標注公差的尺寸設計值:取上下極限尺寸的中間值作為設計標准值.b孔徑設計值:一般圓孔直徑小數點取一位(以配合沖頭加工方便性),例:3.81取3.9.有特殊公差時除外,例:Φ3.80+0.050取Φ3.84.c 產品圖中未作特別標注的圓角,一般按R=0展開.附件一:常見抽牙孔孔徑一覽表料厚0.6 0.8 1.0 1.2類型M3 3.5 3.7 4.0 4.2M3.5 3.9 4.2 4.4 4.7M4 4.4 4.6 4.9 5.1#6-32 3.8 4.1 4.3 4.6附件二:常見預沖孔孔徑一覽表料厚0.6 0.8 1.0 1.2在R≠0,θ=90°时;的折弯系数列表:(单位:mm)注意:折弯系数不是绝对的,各加工工厂的钣金工艺工程师会根据所用GB材料以及加工机器而略有微弱变化。
钣金展开图计算方法一般铁板0.5—4MM之内的都是A + B - 1.645 T。
(A,B代表的是折弯的外形尺寸,T就是板厚)计算方法是工件的外形尺寸相加,再减去1.645 * 板厚* 折弯的次数,例如,折一个40 * 60的‖U‖形槽钢用T=3.0的冷板折,那么计算方法就是40+40+60(外形尺寸相加)—1.645(系数)* 3(板厚)* 2(弯的个数)=130.13(下料尺寸)一般6毫米之内都是这样计算的了展开的计算法板料在弯曲过程中外层受到拉应力,内层受到压应力,从拉到压之间有一既不受拉力又不受压力的过渡层--中性层,中性层在弯曲过程中的长度和弯曲前一样,保持不变,所以中性层是计算弯曲件展开长度的基准.中性层位置与变形程度有关, 当弯曲半径较大,折弯角度较小时,变形程度较小,中性层位置靠近板料厚度的中心处,当弯曲半径变小, 折弯角度增大时,变形程度随之增大,中性层位置逐渐向弯曲中心的内侧移动.中性层到板料内侧的距离用λ表示.展开的基本公式:展开长度=料内+料内+补偿量一般折弯:(R=0, θ=90°)L=A+B+K0.3时, K=0≤T'1. 当02. 对于铁材:(如GI,SGCC,SECC,CRS,SPTE, SUS等)1.5时, K=0.4T'T'a. 当0.32.5时, K=0.35T'T≤b. 当1.52.5时, K=0.3T/c. 当T3. 对于其它有色金属材料如AL,CU:0.3时,∃当T K=0.5T2.0时, 按R=0处理.≤注: R一般折弯(R≠0 θ=90°)L=A+B+KK值取中性层弧长1.5 时'1. 当T λ=0.5T1.5时/2. 当T λ=0.4T一般折弯(R=0 θ≠90°)L=A+B+K’0.3 时≤1. 当T K’=00.3时∃2. 当T /90)*KυK’=(注: K为90∘时的补偿量一般折弯(R≠0 θ≠90°)L=A+B+K1.5 时'1. 当T λ=0.5T1.5时/2. 当T λ=0.4TK值取中性层弧长注: 2.0, 且用折刀加工时, 则按R=0来计算, A、B依倒零角后的直边长度取值'当RZ折1(直边段差).5T时, 分两次成型时,按两个90°折弯计算/1. 当H5T时, 一次成型, L=A+B+K'2. 当HK值依附件中参数取值Z折2(非平行直边段差).展开方法与平行直边Z折方法相同(如上栏),高度H取值见图示Z折3(斜边段差).2T时'1. 当H当θ≤70∘时,按Z折1(直边段差)的方式计算, 即:ϕ展开长度=展开前总长度+K (此时K=0.2) 当θκ>70∘时完全按Z折1(直边段差)的方式计算2T时, 按两段折弯展开(R=0 θ≠90°)./2. 当HZ折4(过渡段为两圆弧相切):1. H≤2T 段差过渡处为非直线段为两圆弧相切展开时,则取两圆弧相切点处作垂线,以保证固定边尺寸偏移以一个料厚处理,然后按Z折1(直边段差)方式展开2. H>2T,请示后再行处理抽孔抽孔尺寸计算原理为体积不变原理,即抽孔前后材料体积不变;一般抽孔,按下列公式计算, 式中参数见右图(设预冲孔为X, 并加上修正系数–0.1):1. 若抽孔为抽牙孔(抽孔后攻牙), 则S按下列原则取值:T≤0.5时取S=100%T0.5<T<0.8时取S=70%TT≥0.8时取S=65%T一般常见抽牙预冲孔按附件一取值2. 若抽孔用来铆合, 则取S=50%T, H=T+T’+0.4 (注: T’是与之相铆合的板厚, 抽孔与色拉孔之间隙为单边0.10~0.15)3. 若原图中抽孔未作任何标识与标注, 则保证抽孔后内外径尺寸;4. 当预冲孔径计算值小于1.0时, 一律取1.0反折压平L= A+B-0.4T1. 压平的时候,可视实际的情况考虑是否在折弯前压线,压线位置为折弯变形区中部;2. 反折压平一般分两步进行V折30°反折压平故在作展开图折弯线时, 须按30°折弯线画, 如图所示:N折1. 当N折加工方式为垫片反折压平, 则按L=A+B+K 计算, K值依附件中参数取值.2. 当N折以其它方式加工时, 展开算法参见―一般折弯(R≠0 θ≠90°)‖3. 如果折弯处为直边(H段),则按两次折弯成形计算:L=A+B+H+2K (K=90∘展开系数)备注:a.标注公差的尺寸设计值:取上下极限尺寸的中间值作设计标准值.b.对于方形抽孔和外部包角的展开,其角部的处理方法参照<产品展开工艺处理标准>,其直壁部分按90°折弯展开。
展开图钣金展开图的计算默认分类2010-08-24 18:11:41 阅读58 评论0 字号:大中小订阅展开图钣金展开图的计算钣金展开图的计算是要用一个系数来计算的,这个系数一般都用1.645!计算方法是工件的外形尺寸相加,再减去1.645*板厚*弯的个数,例如,折一个40*60的槽钢用板厚3的冷板折,那么计算方法就是40+40+60(外形尺寸相加)—1.645(系数)*3(板厚)*2(弯的个数)=130.13(下料尺寸)一般6毫米之内都是这样计算的了一般铁板0.5—4MM之内的都是A+B-1.6T。
(A,B代表的是折弯的长度,T就是板厚.例如用2.5mm的铁板折180mm*180mm的直角,那么你下的料长就是180mm+180mm再减去2.5mm*1.6也就是4mm就好了,也就是356mm展开的计算法板料在弯曲过程中外层受到拉应力,内层受到压应力,从拉到压之间有一既不受拉力又不受压力的过渡层--中性层,中性层在弯曲过程中的长度和弯曲前一样,保持不变,所以中性层是计算弯曲件展开长度的基准.中性层位置与变形程度有关, 当弯曲半径较大,折弯角度较小时,变形程度较小,中性层位置靠近板料厚度的中心处,当弯曲半径变小, 折弯角度增大时,变形程度随之增大,中性层位置逐渐向弯曲中心的内侧移动.中性层到板料内侧的距离用λ表示.展开的基本公式:展开长度=料内+料内+补偿量一般折弯:(R=0, θ=90°)L=A+B+K1. 当0T0.3时, K=02. 对于铁材:(如GI,SGCC,SECC,CRS,SPTE, SUS等)a. 当0.3T1.5时, K=0.4Tb. 当1.5T2.5时, K=0.35Tc. 当T2.5时, K=0.3T3. 对于其它有色金属材料如AL,CU:当T0.3时, K=0.5T注: R2.0时, 按R=0处理.一般折弯(R≠0 θ=90°)L=A+B+KK值取中性层弧长1. 当T1.5 时λ=0.5T2. 当T1.5时λ=0.4T一般折弯(R=0 θ≠90°)L=A+B+K’1. 当T0.3 时K’=02. 当T0.3时K’=(/90)*K注: K为90∘时的补偿量一般折弯(R≠0 θ≠90°)L=A+B+K1. 当T1.5 时λ=0.5T2. 当T1.5时λ=0.4TK值取中性层弧长注: 当R2.0, 且用折刀加工时, 则按R=0来计算, A、B依倒零角后的直边长度取值Z折1(直边段差).1. 当H5T时, 分两次成型时,按两个90°折弯计算2. 当H5T时, 一次成型, L=A+B+KK值依附件中参数取值Z折2(非平行直边段差).展开方法与平行直边Z折方法相同(如上栏),高度H取值见图示Z折3(斜边段差).1. 当H2T时当θ≤70∘时,按Z折1(直边段差)的方式计算, 即:展开长度=展开前总长度+K (此时K=0.2)当θ>70∘时完全按Z折1(直边段差)的方式计算2. 当H2T时, 按两段折弯展开(R=0 θ≠90°).Z折4(过渡段为两圆弧相切):1. H≤2T 段差过渡处为非直线段为两圆弧相切展开时,则取两圆弧相切点处作垂线,以保证固定边尺寸偏移以一个料厚处理,然后按Z折1(直边段差)方式展开2. H>2T,请示后再行处理抽孔抽孔尺寸计算原理为体积不变原理,即抽孔前后材料体积不变;一般抽孔,按下列公式计算, 式中参数见右图(设预冲孔为X, 并加上修正系数–0.1):1. 若抽孔为抽牙孔(抽孔后攻牙), 则S按下列原则取值:T≤0.5时取S=100%T0.5<T<0.8时取S=70%TT≥0.8时取S=65%T一般常见抽牙预冲孔按附件一取值2. 若抽孔用来铆合, 则取S=50%T, H=T+T’+0.4 (注: T’是与之相铆合的板厚, 抽孔与色拉孔之间隙为单边0.10~0.15)3. 若原图中抽孔未作任何标识与标注, 则保证抽孔后内外径尺寸;4. 当预冲孔径计算值小于1.0时, 一律取1.0反折压平L= A+B-0.4T1. 压平的时候,可视实际的情况考虑是否在折弯前压线,压线位置为折弯变形区中部;2. 反折压平一般分两步进行V折30°反折压平故在作展开图折弯线时, 须按30°折弯线画, 如图所示:N折1. 当N折加工方式为垫片反折压平, 则按L=A+B+K 计算, K值依附件中参数取值.2. 当N折以其它方式加工时,展开算法参见―一般折弯(R≠0 θ≠90°)‖3. 如果折弯处为直边(H段),则按两次折弯成形计算:L=A+B+H+2K (K=90∘展开系数)备注:a.标注公差的尺寸设计值:取上下极限尺寸的中间值作设计标准值.b.对于方形抽孔和外部包角的展开,其角部的处理方法参照<产品展开工艺处理标准>,其直壁部分按90°折弯展开。
钣金展开计算方法及工艺处理一、钣金件展开方法:1、展开的计算原理:板材在弯曲过程中外层客观存在到拉应力,内层受以压应力,从拉到压之间有一既不受拉力又不受压力的过渡层——中性层,中性层的长度在弯曲后与弯曲前一样,保持不变,所以中性层是计算折弯件展开长度的基准。
中性层位置与变形程度有关,当弯曲半径(下图所示的R角)较大,折弯角度(下图所示θ角)增大时,变形程度随之增大,中性层位置逐渐向弯曲中心的内侧移动,中性层到板料内层的距离用<90时)2.计算方法:2.1展开的基本公式:展开长度=料内+料内+补偿量展开长度=料外+料外-补偿量2.2.标注公差的尺寸设计值:取上下极限尺寸的中间值作设计标准值3、预开底孔3.1.展开过程中,除了对外形展开以外,对一些比如抽牙(翻边)攻丝,攻牙(挤牙.切削)翻边胀铆螺母(Z类产品).花齿压铆螺母(S类产品).压铆螺钉(FH类产品).压铆螺钉(NY类产品).压铆螺母柱(SO、BSO、SOO、SOPC类产品)(注意3.5M3与M3底孔的差异).展开过程中,要先进行预开底孔(详细见附表五)4.开工艺孔:对于一些精度要求不高,需焊接打磨的产品,折弯转角处我们可以开一个折弯工艺孔,大小由板厚来决定,要比板厚大一些,也不宜过大,编程过程中尽量选用已使用过的合适的模具。
(便于减少模具及加工时间)。
4.1图有三种情况:全包、半包、搭边。
①所有搭边关系的,无需开工艺孔;②对于有包边板厚T〈1.5mm,无需开工艺孔;③对于有包边且板厚T≥1.5mm,需在转角处加开工艺孔。
工艺孔有两种方式:圆和U形;长圆孔的圆心在折弯线上。
如图a.b所示1.展开后为线段的部分,将其处理成下图所示工艺孔形式:如图c所示工艺孔宽度取0.5(LASER)或2.0(NCT)。
3当抽形边缘与折弯边(内尺寸)距离小于2.0mm,则会影响折弯加工,此时,相应折弯变形区作割孔处理或更改抽形尺寸,如附图e所示:1)在下列情况下,一律不允许开工艺孔:①有外观面或装配关系要求,未经客户允许的工件;②单独出货,未经客户允许的散件。
钣金展开计算公式(最终定稿)第一篇:钣金展开计算公式钣金展开计算公式当角度为钝角时:L=L1+L2-[2×(180-角度)/90×材料厚度+M×角度/90]当角度为锐角时:L=L1+L2-[180/角度×材料厚度-(180-角度)/180 ]第二篇:钣金展开计算公式--很实用先说一个名词:折弯余量折弯余量这个名词我在论坛别的贴子已经说过,这里再重复一下:一个已成形的钣金折弯,它有三个尺寸:两个轮廓尺寸和一个厚度尺寸,定义两个轮廓尺寸为L1、L2,厚度尺寸为T,我们都已知道,L1+L2是要大于展开长度L的,它们的差值就是折弯余量,我定义为K,那么一个弯的展开尺寸L=L1+L2-K。
一般冷轧钢板的K值(条件:90度弯,标准折弯刀具T=0.8 K=1.6 T=1.0K=1.8 T=1.2K=2.1 T=1.5K=2.5 T=2.0K=3.5 T=2.5K=4.3 T=3.0K=5.0 T=3.5 K=6.5 T=4.0 K=7.0 T=5.0 K=8.5)1.6-0.8=0.8 1.8-1.0=0.82.1-1.2=0.9 2.5-1.5=1.03.5-2.0=1.54.3-2.5=1.85.0-3.0=2.06.5-3.5=3.07.0-4.0=3.08.5-5.0=3.5实例二:实例三:不规则折弯按K因子=0.5,直接用AUTOCAD画中性层测量。
如有偏差再根据具体情况调整。
一般也差不了多少。
折弯时调整下模槽宽也可将偏差的展开尺寸调整成合格的折弯外形(当然在一定的范围内)。
还有一外钣金件总有一些壁外形偏差允许大一些,可将偏差累积到那些壁去。
死边按L1+L2-0.5t 在模型中直接修改dev.l值为1.5*t 就可以了!第三篇:钣金展开基于Pro/Engineer 钣金件展开的应用研究引言人造卫星和航天飞船上使用大量的钣金成形零件,如有效载荷铝合金支架、飞船蒙皮桁条等。
展开的计算法
板料在弯曲过程中外层受到拉应力,内层受到压应力,从拉到压之间有一既不受拉力又不受压力的过渡层--中性层,中性层在弯曲过程中的长度和弯曲前一样,保持不变,所以中性层是计算弯曲件展开长度的基准.中性层位置与变形程度有关, 当弯曲半径较大,折弯角度较小时,变形程度较小,中性层位置靠近板料厚度的中心处,当弯曲半径变小, 折弯角度增大时,变形程度随之增大,中性层位置逐渐向弯曲中心的内侧移动.中性层到板料内侧的距离用λ表示.
展开的基本公式:
展开长度=料内+料内+补偿量。
要考
. 见图
的大
来
备注:
a标注公差的尺寸设计值:取上下极限尺寸的中间值作为设计标准值.
b孔径设计值:一般圆孔直径小数点取一位(以配合冲头加工方便性),例:3.81取3.9.有特殊公差时除外,例:Φ3.80+0.050取Φ3.84.
c 产品图中未作特别标注的圆角,一般按R=0展开.
附件一:常见抽牙孔孔径一览表
注意:折弯系数不是绝对的,各加工工厂的钣金工艺工程师会根据所用GB材料以及加工机
注意:折弯系数不是绝对的,各加工工厂的钣金工艺工程师会根据所用GB材料以及加工机器而略有微弱变化。
当前位置: > >钣金展开图计算方法钣金展开图计算方法一般铁板0.5—4MM之内的都是A + B - 1.645 T。
(A,B代表的是折弯的外形尺寸,T就是板厚)计算方法是工件的外形尺寸相加,再减去1.645 * 板厚* 折弯的次数,例如,折一个40 * 60的”U”形槽钢用T=3.0的冷板折,那么计算方法就是40+40+60(外形尺寸相加)—1.645(系数)* 3(板厚)* 2(弯的个数)=130.13(下料尺寸)一般6毫米之内都是这样计算的了展开的计算法板料在弯曲过程中外层受到拉应力,内层受到压应力,从拉到压之间有一既不受拉力又不受压力的过渡层--中性层,中性层在弯曲过程中的长度和弯曲前一样,保持不变,所以中性层是计算弯曲件展开长度的基准.中性层位置与变形程度有关, 当弯曲半径较大,折弯角度较小时,变形程度较小,中性层位置靠近板料厚度的中心处,当弯曲半径变小, 折弯角度增大时,变形程度随之增大,中性层位置逐渐向弯曲中心的内侧移动.中性层到板料内侧的距离用λ表示.展开的基本公式:展开长度=料内+料内+补偿量一般折弯:(R=0, θ=90°)L=A+B+K0.3时, K=0≤T'1. 当02. 对于铁材:(如GI,SGCC,SECC,CRS,SPTE, SUS等)1.5时, K=0.4T'T'a. 当0.32.5时, K=0.35T'T≤b. 当1.52.5时, K=0.3T/c. 当T3. 对于其它有色金属材料如AL,CU:0.3时,∃当T K=0.5T2.0时, 按R=0处理.≤注: R一般折弯(R≠0 θ=90°)L=A+B+KK值取中性层弧长1.5 时'1. 当T λ=0.5T1.5时/2. 当T λ=0.4T一般折弯(R=0 θ≠90°)L=A+B+K’0.3 时≤1. 当T K’=00.3时∃2. 当T /90)*KυK’=(注: K为90∘时的补偿量一般折弯(R≠0 θ≠90°)L=A+B+K1.5 时'1. 当T λ=0.5T1.5时/2. 当T λ=0.4TK值取中性层弧长注: 2.0, 且用折刀加工时, 则按R=0来计算, A、B依倒零角后的直边长度取值'当RZ折1(直边段差).5T时, 分两次成型时,按两个90°折弯计算/1. 当H5T时, 一次成型, L=A+B+K'2. 当HK值依附件中参数取值Z折2(非平行直边段差).展开方法与平行直边Z折方法相同(如上栏),高度H取值见图示Z折3(斜边段差).2T时'1. 当H当θ≤70∘时,按Z折1(直边段差)的方式计算, 即:ϕ展开长度=展开前总长度+K (此时K=0.2) 当θκ>70∘时完全按Z折1(直边段差)的方式计算2T时, 按两段折弯展开(R=0 θ≠90°)./2. 当HZ折4(过渡段为两圆弧相切):1. H≤2T 段差过渡处为非直线段为两圆弧相切展开时,则取两圆弧相切点处作垂线,以保证固定边尺寸偏移以一个料厚处理,然后按Z折1(直边段差)方式展开2. H>2T,请示后再行处理抽孔抽孔尺寸计算原理为体积不变原理,即抽孔前后材料体积不变;一般抽孔,按下列公式计算, 式中参数见右图(设预冲孔为X, 并加上修正系数–0.1):1. 若抽孔为抽牙孔(抽孔后攻牙), 则S按下列原则取值:T≤0.5时取S=100%T0.5<T<0.8时取S=70%TT≥0.8时取S=65%T一般常见抽牙预冲孔按附件一取值2. 若抽孔用来铆合, 则取S=50%T, H=T+T’+0.4 (注: T’是与之相铆合的板厚, 抽孔与色拉孔之间隙为单边0.10~0.15)3. 若原图中抽孔未作任何标识与标注, 则保证抽孔后内外径尺寸;4. 当预冲孔径计算值小于1.0时, 一律取1.0反折压平L= A+B-0.4T1. 压平的时候,可视实际的情况考虑是否在折弯前压线,压线位置为折弯变形区中部;2. 反折压平一般分两步进行V折30°反折压平故在作展开图折弯线时, 须按30°折弯线画, 如图所示:N折1. 当N折加工方式为垫片反折压平, 则按L=A+B+K 计算, K值依附件中参数取值.2. 当N折以其它方式加工时, 展开算法参见“一般折弯(R≠0 θ≠90°)”3. 如果折弯处为直边(H段),则按两次折弯成形计算:L=A+B+H+2K (K=90∘展开系数)备注:a.标注公差的尺寸设计值:取上下极限尺寸的中间值作设计标准值.b.对于方形抽孔和外部包角的展开,其角部的处理方法参照<产品展开工艺处理标准>,其直壁部分按90°折弯展开。
钣金展开图计算方法
一般铁板0.5—4MM之内的都是A+B-1.6T。
(A,B代表的是折弯的长度,T 就是板厚)
例如用2.5mm的铁板折180mm*180mm的直角,那么你下的料长就是
180mm+180mm再减去2.5mm*1.6也就是4mm就好了,也就是356mm
钣金展开图的计算是要用一个系数来计算的,这个系数一般都用1.645!
计算方法是工件的外形尺寸相加,再减去1.645*板厚*弯的个数,
例如,折一个40*60的槽钢用板厚3的冷板折,那么计算方法就是40+40+60(外形尺寸相加)—1.645(系数)*3(板厚)*2(弯的个数)=130.13(下料尺寸)
一般6毫米之内都是这样计算的了
展开的计算法
板料在弯曲过程中外层受到拉应力,内层受到压应力,从拉到压之间有一既不受拉力又不受压力的过渡层--中性层,中性层在弯曲过程中的长度和弯曲前一样,保持不变,所以中性层是计算弯曲件展开长度的基准.中性层位置与变形程度有关, 当弯曲半径较大,折弯角度较小时,变形程度较小,中性层位置靠近板料厚度的中心处,当弯曲半径变小, 折弯角度增大时,变形程度随之增大,中性层位置逐渐向弯曲中心的内侧移动.中性层到板料内侧的距离用λ表示.
展开的基本公式:
展开长度=料内+料内+补偿量
一般折弯:(R=0, θ=90°)
L=A+B+K
0.3时, K=0≤T'1. 当0
2. 对于铁材:(如GI,SGCC,SECC,CRS,SPTE, SUS等)
1.5时, K=0.4T'T'a. 当0.3
2.5时, K=0.35T'T≤b. 当1.5
2.5时, K=0.3T/c. 当T
3. 对于其它有色金属材料如AL,CU:
0.3时,∃当T K=0.5T
2.0时, 按R=0处理.≤注: R
一般折弯(R≠0 θ=90°)
L=A+B+K
K值取中性层弧长
1.5 时'1. 当T λ=0.5T
1.5时/
2. 当T λ=0.4T
一般折弯(R=0 θ≠90°)
L=A+B+K’
0.3 时≤1. 当T K’=0
0.3时∃2. 当T /90)*KυK’=(
注: K为90∘时的补偿量
一般折弯(R≠0 θ≠90°)
L=A+B+K
1.5 时'1. 当T λ=0.5T
1.5时/
2. 当T λ=0.4T
K值取中性层弧长
2.0, 且用折刀加工时, 则按R=0来计算, A、B依倒零角后的直边长度取值'注: 当R
Z折1(直边段差).
5T时, 分两次成型时,按两个90°折弯计算/1. 当H
5T时, 一次成型, L=A+B+K'2. 当H
K值依附件中参数取值
Z折2(非平行直边段差).
展开方法与平行直边Z折方法相同(如上栏),高度H取值见图示
Z折3(斜边段差).
2T时'1. 当H
当θ≤70∘时,按Z折1(直边段差)的方式计算, 即:ϕ展开长度=展开前总长度+K (此时K=0.2)
当θκ>70∘时完全按Z折1(直边段差)的方式计算
2T时, 按两段折弯展开(R=0 θ≠90°)./2. 当H
Z折4(过渡段为两圆弧相切):
1. H≤2T 段差过渡处为非直线段为两圆弧相切展开时,则取两圆弧相切点处作垂线,以保证固定边尺寸偏移以一个料厚处理,然后按Z折1(直边段差)方式展开
2. H>2T,请示后再行处理
抽孔
抽孔尺寸计算原理为体积不变原理,即抽孔前后材料体积不变;一般抽孔,按下列公式计算, 式中参数见右图(设预冲孔为X, 并加上修正系数–0.1):
1. 若抽孔为抽牙孔(抽孔后攻牙), 则S按下列原则取值:
T≤0.5时取S=100%T
0.5<T<0.8时取S=70%T
T≥0.8时取S=65%T
一般常见抽牙预冲孔按附件一取值
2. 若抽孔用来铆合, 则取S=50%T, H=T+T’+0.4 (注: T’是与之相铆合的板厚, 抽孔与色拉孔之间隙为单边0.10~0.15)
3. 若原图中抽孔未作任何标识与标注, 则保证抽孔后内外径尺寸;
4. 当预冲孔径计算值小于1.0时, 一律取1.0
反折压平
L= A+B-0.4T
1. 压平的时候,可视实际的情况考虑是否在折弯前压线,压线位置为折弯变形区中部;
2. 反折压平一般分两步进行
V折30°
反折压平
故在作展开图折弯线时, 须按30°折弯线画, 如图所示:
N折
1. 当N折加工方式为垫片反折压平, 则按L=A+B+K 计算, K值依附件中参数取值.
2. 当N折以其它方式加工时, 展开算法参见“一般折弯(R≠0 θ≠90°)”
3. 如果折弯处为直边(H段),则按两次折弯成形计算:L=A+B+H+2K (K=90∘展开系数)
备注:
a.标注公差的尺寸设计值:取上下极限尺寸的中间值作设计标准值.
b.对于方形抽孔和外部包角的展开,其角部的处理方法参照<产品展开工艺处理标准>,其直壁部分按90°折弯展开。