法院建筑设计
- 格式:docx
- 大小:22.38 KB
- 文档页数:6
法院建筑功能形式和空间构成的思考——吉安市中级人民法院审判办公综合大楼设计摘要:随着我国全面推进依法治国和城市化进程的加快,过去城市中的人民法院建筑由于建筑规模有限,功能单一,难以适应现代法院执法办公的需要。
本文通过以新建的吉安市中级人民法院审判办公综合大楼为例谈谈现代人民法院审判建筑在建筑形式和空间构成的相互关系。
关键词:中级法院功能形式空间构成前言:随着我国全面推进依法治国和城市化进程的加快,过去城市中的人民法院建筑由于建筑规模有限,功能单一,难以适应现代法院执法办公的需要。
现在的社会对法院建筑提出了更高的要求,不仅要满足现在法院的功能需要还有满足流线避免交叉和法院整体形象。
本文通过以新建的吉安市中级人民法院审判办公综合大楼(后简称“吉安中级法院”)为例谈谈现代人民法院审判建筑在建筑形式和空间构成的相互关系。
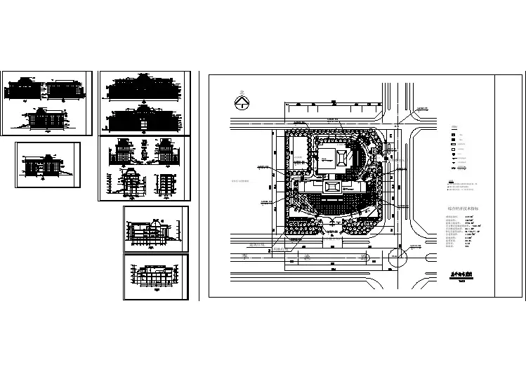
1.项目概况及规划布局本项目选址为江西省吉安市城南新区,规划范围是吉州大道与迎宾大道交汇出西北角。
征地面积:24779平方米,项目总用地22766平方米,地块成方形,东西长约200米,南北长约100米。
基地南面紧邻迎宾大道,东面紧邻吉州大道。
法院建筑其特殊性宜建设地段应位置适中,交通便利。
法院建筑是对公众进行法制教育的生动场所,因此整体特征应明显、突出,且具有庄严肃穆的风貌特征,以显示其影响。
吉安中级法院总体规划设计采用了整体性的策略,既充分考虑到新城的总体城市规划的特点,同时又考虑到法院建筑规划的特征性,使之相互依托,交相辉映。
通过各个层面及层次的整合设计,使得审判办公综合大楼在建筑的整体性及功能的独立性方面取得完美统一。
吉安中级法院审判区需要座西朝东,紧邻吉州大道一侧;办公区座北朝南,紧邻迎宾大道,生活区需与两者相联系。
由于迎宾大道与吉州大道两条主干道成一定的夹角,设计中考虑审判区与办公区分别平行与道路,审判区与办公区成一定角度。
审判区平行与吉州大道,办公区与审判区有一定角度,临迎宾大道布置,并分别设置入口广场。
规划设计 Planning and design110浅谈法院建筑设计刘原盛开(辽宁科技大学辽宁鞍山 114051)中图分类号:TU7 文献标识码:B 文章编号1007-6344(2017)05-0110-01摘要:法院建筑的特殊性致使简单的建筑形式必然满足不了其的使用功能。
特别是各种各样的人员,导致流线的复杂性。
但是,法院建筑的宗旨依然是要以各类法庭为设计重点,各种功能都必须围绕法庭进行展开布置。
虽然是象征着威严,但是大可不必做得千篇一律。
在外形上可以探求更多的趣味性。
关键词:法院;建筑设计;特色1.法院建筑概况提及法院建筑,我们所能联想到的往往只是庄严与严肃。
应该对其作出一些改变,根据法院特殊的形象特点,参考建筑中古典造型的元素,并巧妙的运用现代的新型的建材,不仅展现法院的建筑个性与气势,并且创造出亲民的古典和雅致的气氛。
法院大楼是一种相当特殊类型的建筑,显然区别于其他的类型的公共建筑。
不仅须要在种种功能和技术方面满足要求,更是要在自身的基础上为环境做出最小的影响。
法院的各类功能流程线路纷繁复杂,可变,而且同时它也是特殊类型建筑——一种具有独特文化内涵的建筑。
随着我国法制化步伐的加快,它的功用和形制上都显示了很多改变。
从中国的几十年实践结果上来看,固然取得了不小的成就,累积了不少经历,但在规划设计和施工速率以及法律层面和社会经济发展水平方面,仍有很大的进步空间。
2.法院建筑设计流线组织法院建筑的特殊性致使简单的建筑形式必然满足不了其的使用功能。
特别是各种各样的人员,导致流线的复杂性。
但是,法院建筑的宗旨依然是要以各类法庭为设计重点,各种功能都必须围绕法庭进行展开布置。
虽然是象征着威严,但是大可不必做得千篇一律。
在外形上可以探求更多的趣味性。
2.1.总体布局法院代表着国家的法制, 是对普通民众进行法制教育的场合。
在法院的总体布局中不妨通过树的形式,生成公共空间阴影广场、小广场、并且伴随着进行人行道的扩大,自然地形成绿色花园,自然不做作。
法院建筑设计方案研讨(doc页)一、整体布局1.入口广场法院的入口广场要体现出庄重、肃穆的氛围。
可以考虑采用对称式设计,广场中央设置一座高耸的雕塑,象征公正与正义。
广场地面用高品质的大理石铺装,两侧种植绿化,营造宁静、舒适的环境。
2.主楼设计主楼是法院的核心建筑,外观要简洁大方,体现出权威与严肃。
可以考虑采用现代主义风格,以玻璃幕墙和金属材质为主,呈现出强烈的现代感。
主楼层数不宜过多,以4-6层为宜,避免给人压抑感。
3.功能分区(1)办公区:包括法官、书记员、法警等办公场所,要求安静、私密。
(2)审判区:包括法庭、调解室、询问室等,要求严肃、庄重。
(3)公共服务区:包括接待大厅、诉讼服务中心、休息区等,要求宽敞、明亮。
(4)设备区:包括电梯、空调、强弱电等设备房,要求安全、可靠。
二、内部装修1.色调搭配法院内部装修色调以冷色调为主,如白色、灰色、黑色等,体现严肃、庄重的氛围。
局部可使用暖色调,如红色、黄色等,点缀空间,增加活力。
2.材质选择地面:采用高品质的大理石或瓷砖,耐磨、易清洁。
墙面:采用乳胶漆或壁纸,简洁大方。
天花:采用石膏板吊顶,内藏灯光,营造舒适的光环境。
家具:选用简洁、实用的办公家具,符合人体工程学。
3.灯光设计(1)办公区:采用吸顶灯或筒灯,提供充足的光线。
(2)审判区:采用轨道灯,突出法庭的权威。
(3)公共服务区:采用吊灯或壁灯,营造温馨的氛围。
三、智能化设计1.信息化系统法院要建立完善的信息化系统,包括审判管理、案件查询、视频监控等,提高工作效率。
2.智能化设备法院可配备智能化设备,如智能门禁、人脸识别、智能语音识别等,提高安全性。
3.互联网+法院利用互联网技术,实现网上立案、网上调解、网上庭审等功能,方便当事人诉讼。
四、环保与可持续发展1.绿色建筑在设计法院建筑时,要充分考虑环保因素,采用绿色建筑技术,如太阳能、雨水收集等,降低能耗。
2.节能减排采用节能型设备,提高能源利用效率,降低碳排放。
第二章建筑设计一、设计资料:1.建设单位认可的总体规划及单体初步设计方案;2.建设单位提供的设计任务书;3.其他专业提供的有关资料;4.参考规范:《民用建筑设计通则》JGJ37-87《建筑设计防火规范》 GBJ16-87(2001年版)《高层民用建筑设计防火规范》 GB50045-95(2001年版)《屋面工程质量验收规范》 GB50207-2002《办公建筑设计规范》JGJ67-89《建筑地面设计规范》 GB 50037-96《砌体结构设计规范》 GB 50003-2001《房屋建筑制图统一标准》 GB50001-2001《建筑制图标准》 GB50104-2001《建筑模数协调统一标准》 GBJ2-86二、设计要求:本工程建筑耐久等级为二级,耐久年限为50年,抗震设防烈度为8度。
内部功能主要满足行政管理人员办公及相应的配套设施,建筑外形简洁明快。
三、办公楼建筑设计1.办公楼概况该工程项目是新乡市人民法院办公大楼,为八层现浇钢筋混凝土框架结构,办公楼总建筑面积为7680m2,建筑高度(从室外地坪到屋面檐口)。
一至七层主要为办公,负一层为停车场。
屋顶塔楼主要为电梯机房、空调机房和水箱间。
2.平面设计办公楼是位于法院区内的办公建筑,是行政管理人员的工作场所。
在设计上以规整的矩形安排平面,充分利用场地,合理划分功能分区。
底层设大厅、传达室、配电室、资料室、档案室、各一个,办公室若干。
二层设置办公室若干、大小会议室、会客室、活动室各一个。
其它层设置办公室若干。
每层设置男女厕所各一个,开水间两个。
根据建筑防火等要求,力求交通路线简捷明确,联系通行方便,每层设置两道两跑楼梯,两台电梯。
3.建筑方案本设计为八层办公楼,选用现浇式框架结构。
总占地面积1265m2,总建筑面积7680m2,总高度为,层高3.9m。
设计标高: 室内设计标高±,室外地坪标高-。
在立面设计中,主要强调建筑的简洁、典雅和亲和的特点,建筑形体采用弧形造型,不追求复杂的装饰,而是利用楼自身外墙材质塑造出色彩明快、富有动感的建筑形象。
法院建筑设计现状分析报告概述法院建筑作为司法基础设施的重要组成部分,直接关系到司法工作的顺利进行和司法公正的实现。
本报告旨在对当前法院建筑设计的现状进行分析,探讨存在的问题,并提出改进的建议,以推动法院建筑设计的规范化和优化。
现状分析1. 设计不合理当前很多法院建筑的设计存在不合理之处,例如庭审区域和办公区域的布局存在问题。
有的法院庭审区域临近办公区域,容易造成噪音干扰,不利于庭审的正常进行。
此外,一些法院的办公区域没有充分考虑到员工的办公环境和工作效率,导致员工工作效率低下。
2. 空间利用不充分部分法院建筑存在空间利用不充分的问题。
例如,有的法院大厅面积较大,但很少用于公众服务,而是浪费在装饰上。
同时,一些法院的卫生间和会议室面积相对较小,无法满足日常工作和会议的需要。
3. 设备设施滞后部分法院建筑的设备设施滞后,不符合现代化的需求。
例如,一些法院的视频监控设备老旧,画质模糊,无法提供有效的庭审录像。
此外,部分法院的会议室缺乏先进的多媒体设备,无法满足庭审和会议的需要。
4. 安全隐患存在部分法院建筑存在安全隐患,给法院工作和公众安全带来潜在威胁。
例如,一些法院的防火设施不完善,无法有效防范火灾的发生。
同时,一些法院的出入口设置不合理,容易成为安全的瓶颈,不利于人员疏散。
改进建议1. 设计合理化在法院建筑的设计中,应注重庭审区域和办公区域的分离,以减少噪音干扰,提高庭审效率。
同时,应合理布局办公区域,保证员工的工作效率和办公环境。
此外,应考虑到未来的发展需求,预留余地,以避免扩建带来的破坏和浪费。
2. 空间利用充分化在法院建筑的设计中,应充分利用空间资源,合理规划各个功能区域的面积。
大厅等公共区域应注重实用性,提供充裕的休息和交流空间。
卫生间和会议室等工作场所应保证面积充足,满足日常工作和会议的需要。
3. 设备设施先进化在法院建筑的设计中,应注重设备设施的先进化,满足现代化的需求。
视频监控设备应更新为高清晰度且功能完善的系统,以提供有效的庭审录像。
建筑设计说明一、城市基因:1.基地分析:1)区位分析:本项目位于深圳市前海合作区核心地段九开发单元03街坊。
规划设计共六个地块(01.02.05.06.07.08),规划用地约3.7万m2。
01、02地块为科技办公用地,05、07、08、地块为复合开发绿地。
06地块为本项目建筑设计的前海法治大厦,项目用地8100 m2,总建筑面积3.37万m2,其中计容2.57万 m2,建筑高度限高50米。
2)项目优势:●双绿轴交汇:东西向主绿轴与南北向次绿轴双绿轴在此交汇,具有绝佳景观资源。
●交通系统:道路:西北面为主干道临海大道,西南面为次干道前湾二路,用地内为7米城市支路。
地铁:距五号线、9号线地铁地铁站均在300米步行范围内,交通极为便利。
2.城市焦点:双绿轴在此交汇交汇,具有良好的开放空间;是开放单元的唯一公建,是唯一水平伸展的体量,构筑城市新焦点。
3.设计愿景:特定时代,特定场所产生的特定建筑,作为新区发展的核心坐标,与周边场地共构设计,将开放空间激活为有主题的城市生活场所,为公众和法律工作者提供一个亲和,开放,高效,舒适的法治平台。
二、城市设计策略:遵循规划设计导则,优化规划形态1)街墙对位:设置街墙对位体系,以贴线方式形成延续的城市界面,2)退台:沿临海大道,低区贴线,高区退台,形成分层次的城市街墙系统。
3)共构设计:从城市出发, 超越红线,将公建与周边公共空间一体化设计。
06地块面对05、07、08三个公共空间开放,共同建构法治公园,并渗透到建筑内部。
4)优化塔楼布局:●01地块塔楼短边临06地块,减少视线干扰及地块间压迫感,提高塔楼视线及景观条件。
●02地块塔楼长边面向景观长轴,并紧临东北面,减少对05地块压迫感,提升塔楼视线及景观条件。
●其他地块塔楼做相应调整,形成外高内低的整体布局,塑造出开敞,怡人,共享的公共绿化空间。
与原规划相比,通过规划调整,有效改善建筑通风,视线及景观条件。
5)立体功能:●地下商业一体化:负一层结合地铁,商业一体化设计,形成连续商业内街,引导地铁人流。
现代法制体系下的人民法院建筑设计研究现代法制体系下的人民法院建筑设计研究引言:随着社会的发展和法治理念的深入人心,人民法院作为司法机构的代表,其建筑设计也逐渐引起了人们的关注。
人民法院的建筑设计要能够体现现代法制体系的要求,既要具备稳重庄重的外观形象,又要符合功能需求和人性化设计。
本文将探讨现代法制体系下的人民法院建筑设计,从建筑外观、功能分区、设计原则等方面进行研究和分析。
一、建筑外观设计人民法院建筑的外观设计应该体现稳重庄重的形象。
一般情况下,人民法院的建筑采用正立面朝向主要街道或广场,以突显其权威。
建筑的外墙常采用石材等坚固耐用的材料,以表现其稳固持重的特点。
同时,为了突出法治的主题,可以在建筑外墙上刻制相关的法律条文、法治文化等内容。
此外,人民法院的建筑设计应注重与周边建筑和谐统一。
法院建筑应考虑与周围环境的协调,以保持整体的城市风貌。
例如,在建筑的选择上可以借鉴当地建筑历史和文化特点,结合现代设计元素,为法院建筑注入地域特色和人文气息。
二、功能分区设计人民法院建筑的功能分区设计是建筑设计的重要组成部分。
合理的功能分区设计可以提高办公效率、满足日常工作需求,提升工作环境的舒适度。
首先,人民法院建筑需要设立审判区域。
审判区域应设置法庭和陪审团室,以满足不同案件类型的审理需求。
法庭的设计应考虑到法官、当事人、律师和观众的空间需求,同时要保证审判过程的公正和合理性。
其次,人民法院建筑还需要设立办公区域。
办公区域根据工作流程和部门设置合理划分,可以包括法官办公室、书记员室、庭审助理室、会议室等。
这些办公区域应该充分考虑到工作人员的隐私和办公环境的舒适性。
另外,人民法院建筑还需要设立公共服务区域。
公共服务区域包括接待区、法律咨询室、证人休息室、法院图书馆等,这些区域的设计应以方便当事人和其他相关人员为出发点,提供便捷的服务。
三、设计原则在进行人民法院建筑设计时,应遵循一些设计原则。
首先,法院建筑的设计要注重安全性。
探讨法院建筑的设计思想——长春市中级人民法院审判法庭及附属用房程伟摘要:随着我国全面推进依法治国,在经济快速发展的今天,法院的业务量剧增,过去的法院建筑规模相对较小,功能流线也不够合理,本文以长春市中级人民法院审判法庭及附属用房项目为例,谈一谈法院建筑的设计思想。
关键词:总体布局、建筑形式、建筑功能一、区位分析及工程概况长春市中级人民法院审判法庭及附属用房地块位于102国道以北,芳草街以东,丙十八路以北,丙三十四路以西地块。
新建大楼是集审判、阅卷、档案图书、法警训练、生活服务等为一体的多功能的大型智能化建筑群,项目总用地面积41471㎡(约62.1亩)。
工程总建筑面积(含地下室)约为43006.6㎡,其中地上建筑面积35918.2㎡,地下建筑面积7088.4㎡,主楼建筑高度为44.9m,裙楼建筑高度为23.9m。
二、设计原则1、在符合城市规划总体要求的基础上, 建成一个绿色建筑,充分利用自然能源,合理使用环保建材,注重与周边环境相协调;要建成一个智能化建筑,实现信息共享与优化利用、机电设备的优化控制,达到高效、节能、安全、方便、实用的要求。
2、要体现法律的公开、公平和公正,体现司法机关的权威和尊严,体现司法文明和法治精神,体现法文化和长春的地域文化,突出法官主体地位,展现长春市审判机关的形象。
3、充分考虑人民法院尤其是审判法庭作为诉讼活动公共场所满足有关国家机关、公民、法人和其它组织参加诉讼活动,以及公民接收法制教育的需要。
4、以提高司法能力建设为主线,体现“两便”原则,即方便法官审判、方便当事人诉讼。
最大限度地满足审判和执行及其它方面工作的需要。
5、按照法院的工作程序,对人员流向进行合理设计,法官、当事人、犯罪嫌疑人均有各自的出入口及独立的通道,法官通道与当事人通道完全分开,办公区和公众区分区明确,互不交叉,互不影响。
三、总体布局总体布局寻求与规划所在地形与城市潜在的轴线关系,充分考虑到基地所处城市中的区位及与周边的环境,从城市文脉的角度考虑本基地的建筑设计,努力达到功能组织合理,用地配置恰当,结构清晰,与周边的自然及建筑环境相融合,整体布局遵循城市规划要求。
关于法院的建筑设计的探讨中国传统的文化是博大精深的,湖湘文化更是长沙这个地域区别于其他地方的一个特色,在前面论述的建筑与法律的相同点,有一点就是建筑和法律都是具有地方特色的,也就是长沙的法院要有长沙的特色。
法院建筑功能的特殊要求,且目前国内还没有专门关于法院建筑设计的规范,所以我们在方案构思长沙中级人民法院二气工程之前专门到长沙市中级人民法院施工现场进行调研,与法院的工作人员进行交流,以后我们也会参观一些高级法院和其他一些法院的现有例子。
争取在短时间里完成一个布局合理、功能完善的方案。
同时在网络和图书方面看了许多法院资料,这些都为图纸的设计提供了很好的借鉴。
(一)观察建筑与法律的相通点1 他们都是凝固中的运动建筑是凝固的音乐,同时也是不断变化的,这点无须论证。
而《法国民法典》颁布也有了200年,其法典的基本原则随着时代的不断发展,在实践与研究中获得了新的生命,不断地更新、超越自身的价值。
所以建筑和法律都是在不断变化的。
2 他们都游离在开放与闭塞之间建筑作为一门艺术和工程相结合的学科,其自身内部无法自给自足,近年来一些新的建筑学名词,诸如建筑生态学、建筑论理学、绿色建筑等相继产生。
而法学也随着经济学、社会学的发展,诞生了法经济学、法社会学、法人类学等等分支学科。
3 都有民族与地域的差异地球上存在多种民族和文化,从而形成了不同的价值观,不可使用统一的建筑理念来统一全球建筑,也不可用统一的法律去治理所有国家。
民族之间心理感受不同,建筑语言也不同。
比如乌鲁木齐天山区法院室内设计的独特地域性。
4 建筑散发出的法治精神比如明理搂是清华大学法学院的院楼,走进去都必上十几级台阶,以示对法律的敬畏。
近年来,由于国家将社会主义法制建设的重任摆在了十分重要的位置,使法院的威严至少从外部的硬件形象上得到了体现。
庞德认为法律是一种社会工程,此种工程构建着人类社会一定局域内的行为规则、人们的思考方式和生活状态。
建筑同时亦是一种工程,构建着人们的居住空间和心理状态。
韶关市法院建筑方案设计说明1. 项目背景韶关市法院建筑方案设计旨在满足现代化审判工作的需求,提升法院的形象和功能,为法官和诉讼参与人提供一个公正、舒适、安全的审判环境。
本项目遵循我国法律法规,结合韶关市地域特色和法院实际需求,进行建筑方案设计。
2. 设计原则1.符合法律法规:遵循我国相关法律法规,确保建筑设计合法、合规。
2.功能优先:以法院功能需求为核心,合理安排空间布局,提高审判工作效率。
3.安全性:确保建筑结构安全、消防安全、信息安全等方面达到规定标准。
4.环保节能:充分考虑建筑节能、环保、低碳等因素,提高资源利用效率。
5.地域特色:融合韶关市地域文化、气候特点,展现法院特色。
6.舒适性:关注法官和诉讼参与人的舒适度,创造良好的工作和生活环境。
3. 设计内容1.建筑规模:根据审判业务需求,合理确定建筑规模和楼层数。
2.空间布局:分为审判区、办公区、诉讼服务区和配套用房等,实现功能分区明确、流线合理。
3.结构形式:根据建筑规模和地质条件,选择合适的结构形式。
4.外立面设计:体现法院建筑的严肃、庄重、权威特点,融入地域文化元素。
5.室内设计:注重空间利用,满足审判业务需求,创造舒适的办公环境。
6.景观绿化:充分利用室外空间,打造宜人的景观环境,提高法院整体品质。
4. 技术经济指标1.建筑占地面积:根据实际需求和地形地貌,合理确定建筑占地面积。
2.总建筑面积:计算各功能区域建筑面积,得出总建筑面积。
3.建筑高度:根据城市规划和周边建筑高度,确定法院建筑的高度。
4.投资估算:根据设计内容和建筑规模,估算项目总投资。
5. 设计进度安排1.前期调研:收集相关资料,了解审判业务需求,进行分析研究。
2.概念设计:提出设计思路,初步确定建筑形态和规模。
3.方案设计:细化设计内容,形成建筑方案。
4.设计评审:组织专家评审,对设计方案进行修改完善。
5.施工图设计:根据评审意见,完成施工图设计。
6. 设计质量保障1.严格遵循法律法规,确保设计合规。
我国中小型法院建筑设计研究分析摘要:法院是一个国家和谐发展的不可缺少的重要机构,因此,其建筑形象对其所代表的意义具有非常直观的影响。
所以,中小型法院的建筑设计在建筑行业当中显得尤为特殊。
文章通过中小型法院在建筑设计方面存在的一些问题作为切入点,进而对中小型法院的建筑设计进行一下细致的分析与研究,希望通过文章相关的论述,能够对今后中小型法院在建筑设计方面提供有利的思考与帮助。
关键词:法院;中小型;建筑中图分类号: tu243.4 文献标识码: a 文章编号:法院建筑是根植在国家的法制制度之下的一种建筑类型,所以,其在设计上必然会受到国家司法程序上的制约,特别是在法庭区空间格局以及秩序特征的体现上。
与此同时,法院的建筑形象也是对司法的公平、公开、公正等精神方面不断追求的结果。
因此,对与中小型法院的建筑设计进行细致的分析与研究是法院建设过程中一个非常重要的步骤,所以,文章就以上问题进行一下细致的分析。
我国的法院在建筑方面存在的一些问题1.地址选择不恰当或者基地的条件比较差法院可以说是国家大机器中一个重要的组成部分,是一个国家的法制象征,也是对大众实施法制教育的重要场所,因此,期最好是选择在交通发达、方便,位置较好的市政区域。
一个恰当的地址对于突出司法在国家发展中所占有的重要地位是非常有利的,但是现阶段,我国有相当一部分法院在地址的选择上都存在着不尽人意之处,首先是选址上的不恰当,其次就是在理想的选址上基地的条件却不理想。
①选址的不恰当。
许多的法院都选择建设在城市中比较偏僻的区域,交通不发达,不仅对审判工作不利,对于公民的诉讼也将会造成很大的影响,通过相关的调查,经常会出现这样尴尬的情况,比如下图1所示,法院“深藏不漏”。
图1 某地区人民法院该法院建筑在居民区之中,同该地相关市政建筑相距的比较远。
若是没有相关的路线指引标识,很难发现该法院建筑的踪影。
②选址同基地条件之间的矛盾在大多数的情况下,理想的选址地点上的基地条件都比较差。
引言——法,刑也,平之如水,从水;去,所以触不直者去之,从去。
中国传统的文化是博大精深的,湖湘文化更是长沙这个地域区别于其他地方的一个特色,在前面论述的建筑与法律的相同点,有一点就是建筑和法律都是具有地方特色的,也就是长沙的法院要有长沙的特色。
法院建筑功能的特殊要求,且目前国内还没有专门关于法院建筑设计的规范,所以我们在方案构思长沙中级人民法院二气工程之前专门到长沙市中级人民法院施工现场进行调研,与法院的工作人员进行交流,以后我们也会参观一些高级法院和其他一些法院的现有例子。
争取在短时间里完成一个布局合理、功能完善的方案。
同时在网络和图书方面看了许多法院资料,这些都为图纸的设计提供了很好的借鉴。
(一)观察建筑与法律的相通点1 他们都是凝固中的运动建筑是凝固的音乐,同时也是不断变化的,这点无须论证。
而《法国民法典》颁布也有了200年,其法典的基本原则随着时代的不断发展,在实践与研究中获得了新的生命,不断地更新、超越自身的价值。
所以建筑和法律都是在不断变化的。
2 他们都游离在开放与闭塞之间建筑作为一门艺术和工程相结合的学科,其自身内部无法自给自足,近年来一些新的建筑学名词,诸如建筑生态学、建筑论理学、绿色建筑等相继产生。
而法学也随着经济学、社会学的发展,诞生了法经济学、法社会学、法人类学等等分支学科。
3 都有民族与地域的差异地球上存在多种民族和文化,从而形成了不同的价值观,不可使用统一的建筑理念来统一全球建筑,也不可用统一的法律去治理所有国家。
民族之间心理感受不同,建筑语言也不同。
比如乌鲁木齐天山区法院室内设计的独特地域性。
4 建筑散发出的法治精神比如明理搂是清华大学法学院的院楼,走进去都必上十几级台阶,以示对法律的敬畏。
近年来,由于国家将社会主义法制建设的重任摆在了十分重要的位置,使法院的威严至少从外部的硬件形象上得到了体现。
庞德认为法律是一种社会工程,此种工程构建着人类社会一定局域内的行为规则、人们的思考方式和生活状态。
建筑同时亦是一种工程,构建着人们的居住空间和心理状态。
但是建筑由于其固有的性质,使其越来越具有了文化的气息和艺术的气质,现代建筑的发展已经不仅仅是为人们提供生活、办公的场所了,而已经成为了一个城市品味的象征,一个国家人民生活水平高低的标志。
法律是社会科学中的工程学科,建筑是工程学科中的社会科学。
建筑是历史的活化石,法律是历史的情侣表,它们分别以各自的方式将人类历史和文明加以固定,加以诠释,加以表达。
我们要感谢建筑,同时也要感谢法律,因为有了它们的交相辉映,使得人类的理性之维与情感空间如此的丰富多彩,魅力四射。
(二)关于法院建筑的浅易分析总的说来,法院应该是坚实的、崇高的、庄重的、威严的。
决不是了米黄大理石的温和和欧陆风格的浪漫,也不是旧有的雕梁画栋和金壁辉煌的宫殿。
我们应该将建筑的主基调定位在明快、稳沉、宁静的氛围上,着力追求严谨方直,尽量弃用柔和的曲面和曲线,强调强有力的多种线形组合,借此寓意法院的执法严肃性和公正性。
在色彩上,应采用明显偏冷的色调为主要饰材,同时为了不使整个建筑显得沉闷,如在地面造型上纵横拼铺着大块的中国黑和微晶石的相间图案。
这样整个建筑看上去清新明亮。
这种宁静而偏冷的的调子倾力地演绎着法院的威严,使人的情感与环境吻合而达到和谐,又充分表达了现代东方人的理念。
这里所探求的正是体验公平民主的社会主义气质。
法院文化是法院在审判和管理等实践活动中产生的文化现象,从广义上讲,法院文化还包括法律规范的完善、司法制度的改革、社会公众法律素养的普遍提高、司法从业人员良好道德的形成等等。
法院文化表象是指法院的建筑、设施和装备以及包括干警着装、法官服饰、法庭的布局和装饰、法槌的使用、工作环境、办公环境等。
法院办公楼、审判大楼的建筑设计和内部装修等所传达的讯号是法院文化的组成部分,是法院文化最为直观的文化要素。
通过极富法院文化特色的法院建筑,传达给公众的必将是司法公正与效率、极富司法专业色彩的文化讯号;通过法院文化建设,我们必将塑造一个公正、高效、廉洁、严谨、文明的法院形象。
由此而及先进的法院建筑文化应该体现法的精神本质,给我们更好的法律实行环境。
湖湘文化则可以根据它的分支进入法院的文化中。
使现有的法院文化与湖湘文化相结合产生更丰富具体的长沙市中级人民法院文化。
我们设计的秩序的基础正是对于一系列价值观,信仰的认同,它们代代相传。
至于改善陈旧法院建筑的必要性更是毋庸置疑的。
这是因为法院建筑以及法庭内景的肃穆庄严是非常重要的。
如果我们生活在一个法院穷巷陋室的国家里,那么良好的法治能够建立是让人难以置信的。
实际上,近年来全国范围内法院屋舍翻新、厅堂华丽的趋向正可以说是我们这个国家走向法治的一个证明。
有些人似乎对这类改变显得不以为然,最常见的观点是:内在的东西不改变,单靠服饰道具的花样翻新,司法公正仍然只是一句空话。
还有人对法院建筑的改善颇有微词。
比如在沈阳中级法院的事件曝光后,某家报纸上这样的指责:法院出了那么大的事情,楼却盖得如此豪华。
法院是司法最集中、最具体、最典型的象征。
现在很多法院建筑由于是泊来品,这种象征便重重地涂抹上了维多利亚时代建筑装饰色彩,使之无处不横溢着巴洛克文化的精髓,又深深地蕴涵着古罗马宗教法庭至高无上的神圣和权威。
到了近代,由于殖民文化的扩张,这种浸透着古欧风格的建筑装饰形式便蔓延到了美洲、非洲和东方,继而形成了全球认同的固定的法院建筑文化形式。
我们要追求的那种法院建筑室内设计感觉是拥有湖湘感情和共同情节的显示文化根源和自豪感的法院空间。
诞生于水洲相拥的湘江河畔,风景独秀的岳麓山下的长沙市中级人民法院不可能和其他法院完全相同的。
而且综观我们现在所看到的大多数新修建的法院,在建筑装饰语言上,都包含了浓浓的“感情”,那些无处不在的泛巴洛克的雕塑、线条、柱头充斥整个建筑空间,墙面千篇一律的西班牙米黄大理石,地面铺砌着埃及黄大理石或印度红花岗岩,这些在西方人看来无比庄重的造型和色彩,在东方人的眼中,恰恰倾诉着浓浓的情意,倾诉着无比的祥和,浸透着无比的“感情”,这种“感情”与法院至高无上的威严,是多么难以吻合,以至使人产生复杂而又滑稽的感受。
在这种环境氛围下,法院的庄重与严肃无疑是受到了东方观念的嘲弄和挑战。
在东方人的眼中,这不是法院,似乎更象贵族庭院、王爵城堡、皇家宫殿。
那些无比安慰人的米黄大理石与那些面目慈祥的雕塑,还有那些充满了观赏趣味的柱头、线条,与典雅华贵、奢侈考究的星级宾馆、娱乐空间何其相似?如果不是几个穿着警服的法警和武警在那里站岗值勤,那么出入这种法院是不是也有一种“宾至如归”的感觉呢?东方民族对法院的感受似乎更能接受那种久违了的、震天动地的威严。
有的法院在门口摆放石狮子,以此来标榜法院的威严。
还有的设有直立的军警,乍一看还以为是什么国家军事秘密机关。
这些都存在诸多争议。
这样是很荒谬的,所以我们的法院要的不是那些陈旧的符号,是新的,更抽象有涵义的东西。
从某种意义上说,“法”的针对性是“情”。
“法”以法律为准则,只有坚决摈弃“情”。
法律才能得以贯彻执行;反之,如果因“情”的干扰,发则难行,法律难免“为情所伤”。
所以法律是坚决排斥感情的。
但是我们关于这个课题是可以介入湖湘文化的,只要我们不把它用成滥情,只要我们控制它的范围,它就不是法律所屏弃的感情。
长沙的法院设计自然离不开长沙的文化,而长沙是湖南省省会,全省政治、经济、文化、科教、信息中心,是国务院首批公布的历史文化名城和第一批对外开放的旅游城市。
辖芙蓉、天心、岳麓、开福、雨花五区,长沙、望城、宁乡三县和浏阳市。
长沙,山青水秀、气候宜人,有风景独秀“霜叶红于二月花”的岳麓山,有水洲相拥“春来江水绿如蓝”的湘江;长沙,人杰地灵、历史悠久;“惟楚有才,于斯为盛”,在中国近现代史上长沙更涌现了一批著名的政治家、军事家和文学家。
长沙市按照区划共设有10个法院,1个中级法院,9个基层法院(芙蓉区、天心区、岳麓区、开福区、雨花区、长沙县、望城县、浏阳市、宁乡县法院)。
长沙中级人民法院座落在长沙市雨花区曙光中路289号,占地面积23亩,法院新办公审判大楼在原旧址上分二期建设,总建筑面积约38600平方米。
一期办公大楼已经于2004年4月28日投入使用,二期审判大楼正在建设之中。
我们设计的正是它二期大楼的室内。
就众多国内外法院建筑而言,现成的有两个很好的例子:一个是荷兰建筑师协会大楼,另一个是罗杰斯的近作法国波尔多法院方案。
前者一反办公建筑伟岸张扬的形象,采用了非常低调的建筑形式,但在处理与城市、与基地关系上十分机智妥当,并且营造了学术性场所具有的那种文雅、淡泊。
是对场所本质的回归。
后者是一个大型法院,除五个实体的“陶罐”之外均为公共空间,极简单实用,形象鲜明。
而我们这次的任务是设计关于法院室内环境的一些空间。
审判厅,办公室,会议室都是重点。
虽然时间很充足,可是对于从未涉及法院建筑领域的我们仍旧是一个艰巨的挑战。
关于法院内部的设计,一方面要延续建筑外观的做法。
一方面要思考新的问题。
比如法院建筑的内部安排如何体现法官的独立性。
跟行政机关的首长负责制不同,法院中的实际决策者就是每一个独立的法官,法庭建筑需要表达这样的理念。
不过,我们的一些法院建筑设计却并非如此。
常见的情况是,院长、副院长办公室宽阔而舒适,而普通法官却只能几个人用一间相对狭小的办公室,问题当然不是院领导不可以用大办公室,而是每一个普通法官也应当拥有自己的一个独立的与院长们差距不大的办公空间。
所以从图中也可以看出,应用而生出许多小办公室和小审判厅。
在法院立面造型的处理上,端庄的形体、粗旷的轮廓、对称的立面、虚实的对比、夸大的尺度、坚实的材质等都可以充分体现出法院作为国家机器的尊严。
在法院内部立面的处理中。
我们可以适当的运用一些湖湘文化的符号,如一些公共严肃的壁画和一些大众认可的花纹。
合理运用设计元素及符号可以塑造出法院鲜明的建筑性格及独特的建筑形象。
这也可以让新的长沙中级人民法院的内部有自己独特的品位。
具体说来现在的城市法院用地一般有两个或两个以上方向与城市道路相连,这样便于合理组织办公入口、审判入口、羁押入口和生活入口不同性质的人流。
还要根据法院建筑自身特殊功能的需要,为实现审判的公正性,法院工作人员、证人、犯罪嫌疑人和旁听人员等各种流线应互不干扰,严格分开。
这点从图纸上也可以看出。
我觉得如果在原图上添加那些而那些与法庭关系较为密切的使用设施。
如要设新闻发布中心、立案大厅、扣押物品仓库;办公、档案室及图书、资料阅览室;羽毛球馆等。
供法院工作人员紧张工作之余锻炼使用,以缓解工作压力。
我们还要注意法院主审判厅的门厅,审判席,被告席,公诉人席,律师席,证人席,观众席等这些关键地方。
而且用于这些地方的家具陈设,颜色氛围都要时刻牢记法院这个课题。