钢结构建筑构造图集(门窗包边部分)
- 格式:docx
- 大小:453.37 KB
- 文档页数:5
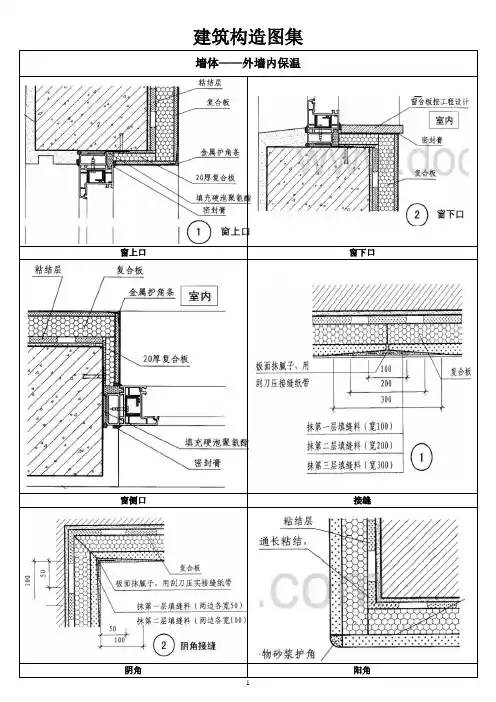
建筑构造图集墙体——外墙内保温窗上口窗下口窗侧口接缝阴角阳角1内外墙交接处木踢脚线踢脚防水轻质隔墙与外墙交接外墙外保温窗上口窗侧口2窗下口阳角阴角3条板内隔墙条板直角连接条板丁字连接双层条板连接条板与结构梁连接双层条板与结构梁双层条板与结构墙4夹心保温墙勒脚窗侧口窗上口窗下口女儿墙阴角5轻钢龙骨内隔墙与墙固定与墙固定隔声做法内隔墙交接与地面固定6与吊顶交接(有防火要求到顶)门框隔声门框与钢梁连接点支玻璃幕墙上封顶下封底7层间梁房间间隔伸缩缝转角转角侧封边8全玻璃幕墙上封顶下封底侧封边转角转角侧面9铝合金单板幕墙上封顶下封底侧封边转角变形缝10上封顶下封底侧封口转角上封顶下封底侧封口转角石材幕墙上封顶下封底侧封边转角墙体节能构造聚苯板薄抹灰阳角阴角勒脚(地下保温层)女儿墙檐沟窗上口窗下口阳台阳台变形缝屋面—坡屋面平瓦屋面檐口平瓦屋面檐沟平瓦屋面屋脊平瓦屋面天沟平瓦屋面管道平瓦屋面变形缝沥青波形瓦檐口沥青波形瓦檐沟沥青波形瓦硬山沥青波形瓦悬山沥青波形瓦泛水沥青波形瓦变形缝防水卷材泛水防水卷材变形缝防水卷材屋脊种植屋面管道种植屋面屋脊种植屋面泛水种植屋面内天沟种植屋面变形缝种植屋面斜天沟玻璃采光顶梁系点支式梁系点支式桁架点支式拱形隐框拱形隐框拱形隐框轮辐式拉杆A节点轮辐式拉杆拱形拉杆明框单坡明框单坡明框单坡明框单坡明框双坡隐框单坡隐框单坡隐框单坡隐框双坡典型构造1典型构造2平屋面不上人屋面铺块材上人屋面架空隔热屋面倒置式屋面女儿墙檐沟檐口女儿墙压顶泛水天沟变形缝屋面人孔管道穿屋面排气管刚性防水屋面三级刚性防水屋面二级刚性防水屋面有隔气层种植屋面蓄水屋面楼地面—地下建筑防水构造楼底板外墙顶板施工缝施工缝外墙变形缝顶板变形缝底板变形缝顶板后浇带底板后浇带穿墙管双墙底板楼地面—整体面层现浇水磨石彩色耐磨混凝土楼地面—整体树脂面层、地毯聚氯乙烯板橡胶板双层地毯楼地面—块材面层陶瓷锦砖钛金不锈钢覆面砖玻璃板面层楼地面—木材面层双层长条硬木地板强化复合木面层楼地面—不发火、防静电等不发火水泥砂浆不发火细石混凝土不发火沥青砂浆防静电活动面层耐油细石混凝土低温热水地板辐射采暖建筑装修—玻璃应用防火玻璃隔断门玻璃地板玻璃地板建筑装修—隔断隔断墙与墙体连接隔断墙水平连接附墙式隔断墙中间附墙式隔断墙水平连接附墙式隔断墙与墙体附墙式隔断墙与楼板内装修—铝合金吊顶明架方板吊顶明架金属方板吊顶暗架金属方板吊顶彩色涂层钢板门窗50系列平开窗70系列中悬窗、上悬窗90系列地弹簧门塑料门窗下框塑料门窗侧框保温墙体侧框上框组合窗拼接木门窗侧口(混凝土墙)侧口(用于石膏板隔墙)侧口(轻隔墙)上口门侧口窗侧口窗上口。
钢结构建筑构造图集
编制说明编制人
山墙
压型板墙门窗洞口包边压型板墙门窗洞口包边YX09a型雨蓬
压型板墙压型板屋面天沟山墙校核人
审定人
CDI02J
目 录
02070910
0805060403技 术 负 责 人
编制技术负责人
编制负责人技 术 审 定 人
八、图集选用方法:
拉铆钉连接,间距为50mm,外露钉头涂胶。
岩棉或玻璃保温屋面时应加隔气层,隔气层作法:可以采用下层压型钢板搭接处用密封条密封或在保温层下铺塑料布隔气层等。
五、凡有可能产生渗漏水的接缝、接头处,均以建筑密封膏封严,被涂面
六、当室内湿度大、室内外温差大时,为了防止结露,用该压型钢板制作
七、图中所注尺寸以毫米为单位。
板要清洁。
编制人
一、钢结构建、构筑物已越来越多地应用于各类工业与民用建筑中。
本图
集为统一本院此类建筑的构造做法而编制
四、泛水板长向搭接应≥60顺水流方向或主导风向,搭接处涂胶两道并采用
业与民用建筑轻型屋盖的防水屋面、墙面。
二、金属压型钢板是采用彩色涂层钢板,通过辊扎机冷弯成型,适用于工
三、本图集包括单层及夹芯复合板两种,对有保温、隔热的建筑应优先选
用夹芯复合板。
校核人
编 制 说 明
审定人
详图所在的页号
详图编号
X X
CDI02J
图集号图 名
页 次图集号编 制 说 明
1
CDI02J。
钢结构建筑构造图集
编制说明编制人
山墙
压型板墙门窗洞口包边压型板墙门窗洞口包边YX09a型雨蓬
压型板墙压型板屋面天沟山墙校核人
审定人
CDI02J
目 录
02070910
0805060403技 术 负 责 人
编制技术负责人
编制负责人技 术 审 定 人
八、图集选用方法:
拉铆钉连接,间距为50mm,外露钉头涂胶。
岩棉或玻璃保温屋面时应加隔气层,隔气层作法:可以采用下层压型钢板搭接处用密封条密封或在保温层下铺塑料布隔气层等。
五、凡有可能产生渗漏水的接缝、接头处,均以建筑密封膏封严,被涂面
六、当室内湿度大、室内外温差大时,为了防止结露,用该压型钢板制作
七、图中所注尺寸以毫米为单位。
板要清洁。
编制人
一、钢结构建、构筑物已越来越多地应用于各类工业与民用建筑中。
本图
集为统一本院此类建筑的构造做法而编制
四、泛水板长向搭接应≥60顺水流方向或主导风向,搭接处涂胶两道并采用
业与民用建筑轻型屋盖的防水屋面、墙面。
二、金属压型钢板是采用彩色涂层钢板,通过辊扎机冷弯成型,适用于工
三、本图集包括单层及夹芯复合板两种,对有保温、隔热的建筑应优先选
用夹芯复合板。
校核人
编 制 说 明
审定人
详图所在的页号
详图编号
X X
CDI02J
图集号图 名
页 次图集号编 制 说 明
1
CDI02J。