外包式刚性柱脚构造示意图
- 格式:pdf
- 大小:35.60 KB
- 文档页数:1
外露式钢结构刚性固定柱脚设计探讨摘要本文在矩形底板的压弯剪刚性固定柱脚设计的基础上,对拉弯剪刚性固定柱脚以及圆形底板柱脚的求解方程,进行了详细地推导,给工程技术人员在设计时一个可以借鉴的计算公式,并给出了实际的算例。
关键词钢结构拉弯剪柱脚,圆形柱脚底板,锚栓DISCUSS ABOUT THE DESIGN OF BARE AND RIGID BASE OF STEEL COLUMNAbstract On the basis of the design of rigid column base with a rectangular base plate under a combination loading of compression ,shear and bending, this article gives detailed deduction of the equations for rigid column base with a circle base plate and one under a combination loading of tension,shear and bending. It also gives calculation formula which can be used for reference for the engineers. In addition ,it presents practical cases.Key words steel column base under a combination loading of tension,shear and bend ;circle bottom plate of column base; anchor bolt.外露式钢结构刚性固定柱脚是我们工程实际中最常见的柱脚节点,这其中又以受压弯剪的矩形柱脚底板的最为普遍,我们设计中能参考的规范及手册中所介绍的公式也都是针对这种情况。
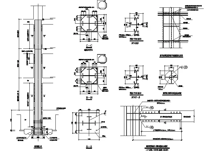
(10)授权公告号 (45)授权公告日 2014.05.21C N 203603264U (21)申请号 201320414455.9(22)申请日 2013.07.12E04B 1/41(2006.01)E02D 27/01(2006.01)(73)专利权人中建八局大连建设工程有限公司地址116021 辽宁省大连市沙河口区高尔基路235、237号专利权人中国建筑第八工程局有限公司(72)发明人毛立贤 张林林 齐骥 臧永久刘浩(54)实用新型名称外包式柱脚(57)摘要本实用新型涉及建筑领域,特别是劲性结构钢骨预埋的一种预埋结构。
一种外包式柱脚,其钢结构柱脚底板和螺栓固定连接,螺栓上钢结构柱脚底板两侧分别安装标高调节螺母和固定螺母,其特征在于:螺栓固定连接支撑架,支撑架固定在底板下皮钢筋上。
所述钢结构柱脚底板上表面与楼板结构标高在同一水平面上。
本实用新型中支撑架上设有固定连接螺栓的贯穿孔,定位更准确,将预埋螺栓与钢结构柱脚安装同时进行,降低了二次吊装柱脚的施工难度,同时避免二次灌浆造成预埋螺栓偏位的质量隐患。
采用整体一次灌浆代替底板灌浆和钢结构柱脚灌浆二次灌浆,减小施工难度,同时缩短凝固的技术间歇等待时间,加快工期。
(51)Int.Cl.权利要求书1页 说明书2页 附图2页(19)中华人民共和国国家知识产权局(12)实用新型专利权利要求书1页 说明书2页 附图2页(10)授权公告号CN 203603264 U1/1页1.一种外包式柱脚,其钢结构柱脚底板和螺栓固定连接,螺栓上钢结构柱脚底板两侧分别安装标高调节螺母和固定螺母,其特征在于:螺栓固定连接支撑架,支撑架固定在底板下皮钢筋上。
2.根据权利要求1所述的一种外包式柱脚,其特征在于:所述钢结构柱脚底板上表面与楼板结构标高在同一水平面上。
3.根据权利要求1所述的一种外包式柱脚,其特征在于:所述底板下皮钢筋与底板间固定设置混凝土垫块,所述支撑架与底板间固定设置混凝土垫块。
钢结构刚性固定柱脚的3个方法一、钢柱柱脚形式的分类(1)刚性固定柱脚:1)埋入式柱脚;2)外包式柱脚;3)插入式柱脚。
(2)铰接柱脚:外露式柱脚。
二、埋入式柱脚1、基本概念埋入式柱脚是指将钢柱底端直接埋入混凝土基础筏板、地基梁或地下室墙体内的一种刚性连接的柱脚。
其特点是埋入相对自身绝对刚性的基础中而形成刚性固定柱脚节点。
这种柱脚构造可靠,常用于高层钢结构框架柱的柱脚。
2、埋入式柱脚的受力特点(1)柱的轴向压力N,由钢柱的柱脚底板直接传递给钢筋混凝土基础;柱的轴向拉力,则是通过柱脚底板悬出部分将其上部混凝土的反向压力传递给基础,或经由锚栓(底脚螺栓)直接传给基础。
(2)柱的弯矩M有2种传递方式:1)均由H形钢柱翼缘上的抗剪圆柱头焊钉传递给基础,在实际工程设计中大多采用该方法;2)依靠钢筋混凝土对钢柱翼缘的侧向承压力所产生的抵抗拒来传递给基础。
(3)柱脚顶部的水平剪力V由钢柱翼缘与基础混凝土侧向承压力来传递。
(4)钢柱翼缘与基础混凝土在侧向承压应力状态下,由于钢柱翼缘与混凝土摩擦而产生的抵抗力,设计时不考虑。
(5)钢柱翼缘与基础混凝土之间的粘结作用设计时不考虑。
(6)在确定埋入钢柱周边对称配置的垂直纵向钢筋面积时,不考虑由钢柱承担的弯矩。
3、埋入式柱脚一般构造要求及部分细部设计计算(1)埋入式柱脚的钢柱埋入基础的深度一般可以在以下范围内采用(h c为钢柱截面的高度或管径):1)轻型工字钢截面柱:H=(2.0~2.5)h c;2)圆管形截面柱和箱形截面钢柱:H=(2.5~3.0)h c。
(2)埋入式柱脚,在钢柱埋入部分的顶部,应设置水平加劲肋或横隔板;对H形截面柱,其水平加劲肋外伸宽度的宽厚比应不大于9(235/f ay)½,对于箱型截面柱,其内部横隔板的宽厚比应不大于30(235/f ay)½。
(3)埋入式柱脚在钢柱的埋入部分,应设置圆柱头抗剪栓钉,栓钉的数量和布置,应按计算要求确定。
1.设计简图2.外露式半刚性柱脚1)半刚性柱脚的定义满足 M u≥α*c M pc 公式的为刚性柱脚,不满足的为半刚性柱脚。
其中: M u=柱脚的最大弯曲耐力,节点系数α=1.3,c M pc=钢柱的全塑性弯矩。
2)确保外露式柱脚变形能力的三种途径(1)按锚栓杆部先屈服来设计,底板无大的变形,其恢复力特性曲线呈滑移型,耗能小。
(2)按底板先屈服来设计,其恢复力特性曲线呈纺锤型,耗能大。
(3)按钢柱先屈服来设计,即刚性柱脚。
本计算按上述(1)进行。
3)半刚性柱脚的弹性刚性计算(1)同时考虑锚栓伸长,螺纹部塑性变形,底板的平面外变形,混凝土和二次灌浆的压缩变形,来求弹性刚性的理论值,非常困难。
(2)本计算的弹性刚性计算公式,仅考虑锚栓的伸长。
同时假定回转中心位于钢柱弯曲受压侧的翼缘的外侧。
(3)柱脚的弹性刚性,可视为回转弹簧,位于底板下。
可用于计算柱的反屈点和水平位移。
本计算仅限于计算柱脚的弹性刚性。
3.设计条件方管柱:□-450x450x19,材料BCP325(冷压),最低抗拉强度490N/mm 2,屈服点325N/mm 2柱脚受力:压力N=1800 kN 剪力Q=480 kN弯矩M=850 kN-m基础:混凝土设计基准强度(相当于混凝土强度等级C30)Fc=30 N/mm2锚栓:12-M42×1100 (埋深)锚栓材料SNR490B,屈服点F by =325 N/mm2锚栓长度lb=1100+65+50=1215 mm锚板:FB-140×16 扁钢制成回字形锚板框底板:750×750×65mm,材料SN490B,最低抗拉强度490N/mm 2,屈服点325N/mm 2B=750 mmD=750 mm 基础主筋:12-D25 材料 SD345d r =25.407 mm抗拉强度 T r u =345 N/mm24.柱脚弹性刚性计算设受拉锚栓数n t =6 个锚栓断面积A b =1385 mm2柱中心至受压柱翼缘外侧的距离d c =450/2=225 mm柱中心至受拉锚栓群重心的距离d t =233 mm锚栓材料的弹性模量E=205000N/mm 2外露式柱脚的弹性刚性K BS =1.47E+05kN-m/rad5.柱脚及砼基础校核计算1)应力分布状态的判别偏心距 e=M/N=472 mm受拉锚栓群重心至底板边距离 d t '=D/2-d t =142 mmd=D-d t '=608 mme'=172 mm判别式 e>e', 故锚栓受拉。
钢结构厂房柱脚设计要点钢结构厂房柱脚设计要点钢结构厂房柱脚应能可靠传递柱身承载力,宜采用埋入式、插入式或外包式柱脚,6、7度时也可采用外露式柱脚。
震害表明,外露式柱脚破坏的特征是锚栓剪断、拉断或拔出,由于柱脚锚栓破坏,使钢结构倾斜,严重者导致厂房坍塌。
外包式柱脚表现为顶部箍筋不足的破坏。
厂房钢柱可划分为两类,其一是单肢柱,即通常所称的实腹柱(包括钢管、轧制或焊接H型钢);其二则是格构柱。
两类钢柱的受力状态不同,其柱脚设计也应区别对待。
一、实腹柱(单肢柱)实腹柱刚接柱脚,承受弯矩、剪力和轴力的共同作用。
一般情况下,首先应考虑柱脚的承载力不小于柱截面塑性屈服承载力的1.2倍。
即满足下式要求:M u≥1.2M pc,N式中:M u—刚接柱脚的极限受弯承载力;M pc,N—柱截面全塑性受弯承载力,需计入多遇地震组合轴力的影响。
1、埋入式、插入式柱脚:(1)埋入式、插入式柱脚进入砼基础的深度,应符合下式要求。
式中:d—柱脚埋入深度;b f—翼缘宽度;f c—基础砼抗压强度设计值。
并且,埋入式柱脚埋入砼的深度不宜小于2.0倍的柱截面高度;插入式柱脚不宜小于2.5倍的柱截面高度。
(2)埋入式柱脚埋入段柱受拉翼缘外侧所需焊钉数量,可按下式计算:n≥?(NA f/A+M/h co)/V s式中:n—柱受拉翼缘外侧所需焊钉数量;M、N—分别为多遇地震组合的柱脚弯矩设计值、轴力设计值;A、A f—分别为柱截面的面积、柱翼缘的截面面积;h co—柱翼缘截面的中心距;V s—一个圆柱头焊钉连接件的受剪承载力设计值,可按现行《钢结构设计规范》GB50017的规定计算。
(3)插入式柱脚插入段的剪力传递(轴力)需满足下式:N≤0.75f t sd式中:f t—基础砼抗拉强度设计值;S—插入段实腹柱截面的周长。
2、外包式柱脚:外包式柱脚属于钢和砼组合结构,内力传递复杂,影响因素多,目前还存在一些未充分明晰的内容,因此诸如各部分的形状、尺寸以及补强方法等构造要求较多。
《钢结构设计标准》解说专题(8)-柱脚设计《钢结构设计标准》解说专题(8)柱脚设计柱脚是钢结构节点中极其重要的一部分,在《钢结构设计标准》(GB 50017-2017,简称“钢标”)中,随节点单独成第12章,柱脚设计的规定独立为12.7一节。
本文专门谈谈钢标柱脚设计的规定,主要围绕两点作一些解释:1)新增内容;2)改动较大的内容。
一、关于柱脚的总体规定关于柱脚设计,原钢规的规定很少几条,还是放在构件的构造要求一节中。
原来做设计,只能看一些散落在各个规范和手册中的内容,如《高层民用建筑钢结构技术规程》(JGJ 99-2015)(简称“高钢规”)、《建筑抗震设计规范》(GB 50011-2010)(简称“抗规”)、《构筑物抗震设计规范》(GB 50191-2012)(简称“构抗规”)、《钢结构节点设计手册》(第三版,建筑工业出版社,简称“节点手册”,内容尚未按钢标升版)、《钢结构设计手册》(建筑工业出版社,简称“钢构手册”,第四版中已根据钢标规定更新)。
但你会发现,规定还不统一。
钢标这次的柱脚设计规定,等于做了一次系统梳理。
钢标关于柱脚的规定,总体上并列地给出了四种形式:外露式、外包式、埋入式、插入式柱脚。
其余三种柱脚没啥好说,而插入式柱脚的内容,以前主要出现在工业建筑的相关规范中。
钢标明确规定,插入式柱脚可用于多层钢结构框架柱,等于正式认可了插入式柱脚在民用建筑中的应用。
虽然钢标12.7.1的条文说明表示适用范围与高钢规协调了,实际上关于插入式柱脚在民用建筑中作为并列的柱脚形式还是第一次隆重登场。
【条文】12.7.1 多高层结构框架柱的柱脚可采用埋入式柱脚、插入式柱脚及外包式柱脚,多层结构框架柱尚可采用外露式柱脚,单层厂房刚接柱脚可采用插入式柱脚、外露式柱脚,铰接柱脚宜采用外露式柱脚。
【条文说明】12.7.1 刚接柱脚按柱脚位置分为外露式、外包式、埋入式和插入式四种。
四种柱脚的适用范围主要与现行行业标准《高层民用建筑钢结构技术规程》JGJ 99的有关规定相协调,同时参考了国内相关试验研究以及多年来的工程实践总结。
352019.03 |底层垫板之间的摩擦力为s N f ×=4.0。
在实践过程中需要保证各元件的设计参数均切合实际标准,具体标准(《高层民用建筑钢结构技术规》)。
保证钢柱底部位置的剪力参数、塑性参数、极限剪力参数在合理的规范内,进而保证及设计原理能够切合基本设计需求
[2]。
因此,需要就剪力参数进行复合二阶段设计,促使核心设计切合
实际参数值。
图1 模型结构示意图
[1]孙家刚.钢结构柱脚设计与研究综述[J].科学技术创新,2016(7):222-222.
[2]朱坤,马真迪.浅埋式钢柱脚抗震性能与设计方法研究[J].丝路视野,2016(23):134-135.
[3]朱大伟.浅谈外包式钢柱脚设计应用[J].建筑工程技术与设计,2016(14).
[4]匡小波,李贤,李健.外包式钢管混凝土柱脚滞回性能研究[J].建筑结构学报,2017(s1):190-197. 36|CHINA HOUSING FACILITIES。
工程技术幸福生活指南42幸福生活指南钢结构的柱脚形式杨艳霞信息产业电子第十一设计研究院科技工程股份有限公司南京分公司 江苏 南京 210000摘 要:本文介绍钢结构柱脚的各种形式的适用范围和注意事项。
关键词:铰接柱脚;刚接柱脚;外露式;外包式;埋入式;插入式Abstract: This paper introduces the application scope and matters needing attention of various forms of steel structure column foot. Keywords: Hinged column foot; Just answer column foot; The leakage type; Outsourcing type;Embedded type;Plug-in.0、引言 目前钢结构建筑越来越多,笔者作为工业院的一员,几乎接触到主要建筑的结构形式都是钢结构,仅仅一些辅助性的建筑才会是混凝土结构形式。
钢结构和混凝土结构最大的区别就是钢结构有很多的节点需要绘图并计算,其中就包含钢柱的柱脚节点。
1、柱脚形式的分类 1)根据钢柱柱脚的受力,可以分为两种形式,一种是铰接柱脚,一种是刚接柱脚。
铰接柱脚一般用于不带吊车的轻型门式刚架,或者承受荷载较小的钢平台。
刚接柱脚一般用于5t 以上桥式吊车的门式刚架结构和规模荷载较大的钢框架结构。
2)根据柱脚的位置可以分为四种形式:外露式柱脚、外包式柱脚、埋入式柱脚和插入式柱脚。
2、铰接柱脚 铰接柱脚一般是外露式柱脚,钢柱在基础短柱上面,是造价最低最方便施工的柱脚形式。
铰接柱脚的地脚锚栓布置在翼缘的内侧,不能承受弯矩,仅承受轴力。
在承受剪力方面,目前国内比较统一的做法刚接柱脚和铰接柱脚都不考虑锚栓受剪,如果有剪力,靠柱底摩擦力或者设置抗剪键来抵抗剪力。
3、刚接柱脚 1)刚接柱脚的外露式和铰接柱脚的外露式一样,都是钢柱底板在基础短柱上面。
(1)劲性柱模板支设
本工程外框筒劲性柱部分为K型钢骨,模板支设难度极大,劲性柱施工详见蝶型钢骨柱模板支设详图。
K型钢骨柱模板支设流程示意图
劲性混凝土柱浇筑
(1)钢柱混凝土采用混凝土泵泵送下料。
混凝土浇筑前需保持混凝土接触面湿润。
浇筑混凝土时,从钢骨柱外侧下料,为保证下料自由高度不大于2m,施工中采取前端接DN100的软管,下料时软管离混凝土面高度小于1m。
(2)混凝土采用分层浇筑,每层浇筑高度不得大于300mm。
软管边下料边提升,同时辅以插入式高频振动棒振捣,上下振动,垂直且缓慢拔棒,插点按梅花型三点振捣,逐点移动,按顺序进行,根据所配混凝土的性能振动时间每点控制在20~30s。
为了更好地控制高频振动棒按梅花点位置准确下振,保证振动均匀,操作人员应用拉绳控制振动棒下振点。
(3)钢骨外包混凝土施工由于内部钢骨限制混凝土的正常流动,故在浇筑过程必须四周对称均匀下料、分层投料厚度一致、振动棒四周插振。
(4)当混凝土浇筑到要求标高处时,改用普通型振动棒振捣,并适当控制振捣时间,使混凝土中石子不完全下沉,呈均匀分布。
若表面出现少量浮浆,则可用人工刮除浮浆至完成标高,并将混凝土表面进行拉毛处理。
天津大学网络教育学院专科毕业论文题目:钢结构柱脚分类、特点与适用范围完成期限:2014年1 月3 日至2014年5月5 日学习中心某某某年级2010级专业某某某某指导教师某某某姓名某某某学号 102000000000摘要目前,钢结构建筑发展迅速。
在钢结构建筑中,构件的承载力虽然重要,但是节点部位对结构的安全性尤为重要。
其中最重要的节点部位就是梁柱节点和柱脚节点,这两种节点若有一个出现问题,将会对建筑结构造成很大的损失,所以在设计中对于钢结构的节点形式的选择和构造处理方法尤为重要。
本文从钢结构柱脚的分类形式入手,对不同形式的柱脚进行了分析,分别从受力特点、构造方式等方面进行比较。
最后结合选择柱脚形式时应考虑的各方面因素,给出了选择钢结构柱脚形式的建议。
关键字:钢结构;外露式柱脚;外包式柱脚;埋入式柱脚钢结构柱脚分类、特点与适用范围一、引言目前,钢结构建筑发展迅速。
在钢结构建筑中,构件的承载力虽然重要,但是节点部位对结构的安全性尤为重要。
其中最重要的节点部位就是梁柱节点和柱脚节点,这两种节点若有一个出现问题,将会对建筑结构造成很大的损失,所以在设计中对于钢结构的节点形式的选择和构造处理方法尤为重要。
但多年来人们对梁柱的节点连接比较重视,而对柱脚节点连接形式及构造重视不足。
因此,我们要对柱脚节点形式的选用和设计原则有个概念性的把握。
对钢结构的柱脚而言,不是指柱构件下端,而是指最下层柱构件的下端和基础混凝土的连接部分。
柱脚是将最下层柱下端所受的轴力、弯矩、剪力有效地传递给基础。
柱的柱的下端的作用是固定在底座上,和内力轴传递到基础。
根据应力性能列的不同可分为刚接和铰接。
一般来说,多铰柱轴压柱,承受轴向力和剪切力,并与多个刚性节点偏心受压柱,承受轴向力,剪力和弯矩。
其中,刚性节点可以采用嵌入式,外包,暴露,埋葬了整个组件的类型被称为插入式;铰接塔可以实现外包的形式暴露。
根据不同的方法,嵌入式结构,外包是铸造;暴露,插接式组装式。