11G101钢筋平法 计算规则汇总表
- 格式:doc
- 大小:1.25 MB
- 文档页数:15
钢筋算量基本方法第一章梁第一节框架梁一、首跨钢筋的计算1、上部贯通筋上部贯通筋(上通长筋1)长度=通跨净跨长+首尾端支座锚固值2、端支座负筋端支座负筋长度:第一排为Ln/3+端支座锚固值;第二排为Ln/4+端支座锚固值3、下部钢筋下部钢筋长度=净跨长+左右支座锚固值注意:下部钢筋不论分排与否,计算的结果都是一样的,所以我们在标注梁的下部纵筋时可以不输入分排信息。
以上三类钢筋中均涉及到支座锚固问题,那么,在软件中是如何实现03G101-1中关于支座锚固的判断呢?现在我们来总结一下以上三类钢筋的支座锚固判断问题:支座宽≥Lae且≥0.5Hc+5d,为直锚,取Max{Lae,0.5Hc+5d }。
钢筋的端支座锚固值=支座宽≤Lae或≤0.5Hc+5d,为弯锚,取Max{Lae,支座宽度-保护层+15d }。
钢筋的中间支座锚固值=Max{Lae,0.5Hc+5d }4、腰筋构造钢筋:构造钢筋长度=净跨长+2×15d (11G101-1第28页)抗扭钢筋:算法同贯通钢筋(11G101-1第28页)5、拉筋拉筋长度=(梁宽-2×保护层)+2×11.9d(抗震弯钩值)+2d (宽度减去保护层厚度算的是到主筋的外包尺寸,而拉筋是挂在主筋上的,所以要加上拉筋的直径,才是拉筋的实际长度。
此为11G101之前的算法,实际在11G101-1第54页规定钢筋保护层是最外层钢筋外边缘至混凝土表面之后,钢筋的保护层从箍筋的外皮算起,所以不再需要+2d)拉筋根数:如果我们没有在平法输入中给定拉筋的布筋间距,那么拉筋的根数=(箍筋根数/2)×(构造筋根数/2);如果给定了拉筋的布筋间距,那么拉筋的根数=布筋长度/布筋间距。
(11G101-1第87页规定)6、箍筋箍筋长度=(梁宽-2×保护层+梁高-2×保护层)*2+2×11.9d+8d (宽度减去保护层厚度算的是到主筋的外包尺寸,而箍筋是挂在主筋上的,所以要加上箍筋的直径,才是箍筋的实际长度。
钢筋工程工程量计算(依据11G101平法图集)基础部分A:独立基础一、独立基础底部钢筋配筋长度不缩减(1)X向钢筋长度=X向混凝土构件外形尺寸-2*bhcX向钢筋根数=[Y向混凝土构件外形尺寸—2*min(75;s/2)]/布筋间距(s)+1(2)Y向钢筋长度=Y向混凝土构件外形尺寸-2*bhcY向钢筋根数=[X向混凝土构件外形尺寸-2*min(75;s/2)]/布筋间距(s)+1二、独立基础底部钢筋长度缩减10%当独立基础底板长度≥2500mm时,除外侧钢筋外,底板配筋长度可取相应方向底板长度的0.9倍.配筋长度缩减10%(均为隔一缩减)对称独立基础配筋(柱在基础四面的中心)(1)X向外侧钢筋长度=X向混凝土构件外形尺寸—2*bhcX向外侧钢筋根数=2根(一侧各一根)X向其余钢筋长度=X向混凝土构件外形尺寸—c(一侧保护层)—(0。
1*基础边长)X向其余钢筋根数=[Y向混凝土构件外形尺寸-2*min(75;s/2)]/布筋间距(s)—1(2)Y向外侧钢筋长度=Y向混凝土构件外形尺寸—2*bhcY向外侧钢筋根数=2根(一侧各一根)Y向其余钢筋长度=Y向混凝土构件外形尺寸—c(一侧保护层)—(0.1*基础边长)Y向其余钢筋根数=[X向混凝土构件外形尺寸—2*min(75;s/2)]/布筋间距(s)—1当非对称独立基础底板长度≥2500mm,但该基础某侧从柱中心至基础底板边缘的距离<1250mm时,钢筋在该侧不应缩减非对称独立基础配筋(一端为隔一缩减)(1)X向外侧钢筋长度=X向混凝土构件外形尺寸—2*bhcX向外侧钢筋根数=2根(一侧各一根)X向其余钢筋(两侧均不缩减)长度(与外侧钢筋相同)=X向混凝土构件外形尺寸-2*bhcX向其余钢筋根数=(Y向混凝土构件外形尺寸—两端起步距离)/间距+1X向其余钢筋(右侧缩减的钢筋)长度=X向混凝土构件外形尺寸-c(一侧保护层)—(0。
1*基础边长)X向其余钢筋(右侧缩减的钢筋)根数=两侧均不缩减的钢筋根数—1(因为隔一缩减,所以比另一种少一根)(2)Y向外侧钢筋长度=Y向混凝土构件外形尺寸—2*bhcY向外侧钢筋根数=2根(一侧各一根)Y向其余钢筋(两侧均不缩减)长度(与外侧钢筋相同)=Y向混凝土构件外形尺寸—2*bhcY向其余钢筋根数=(X向混凝土构件外形尺寸—两端起步距离)/间距+1Y向其余钢筋(右侧缩减的钢筋)长度=Y向混凝土构件外形尺寸-c(一侧保护层)-(0。
直锚弯锚高标高钢筋弯锚低标高钢筋弯锚跨内外无高差直径相同弯锚直锚中间支座直锚连接同梁下部钢筋长度勾住箍筋当梁宽<350时当梁宽>350时根数上部通长筋斜弯通过,不断开梁宽度不同(二) 侧部钢筋总结max(0.5hc+5d,La)+15d悬挑梁跨内框架梁上部通长筋根据支座宽度直锚或弯锚悬挑梁上部钢筋伸入跨内弯锚G101平法钢筋计算总结大表第一节 梁构件钢筋计算总结大表一、抗震楼层框架梁(一) 上部通长筋总结max(0.5hc+5d,La E )max(0.5hc+5d,0.4La E )+15d梁顶有高差且c/hc>1/6max(0.5hc+5d,0.4LaE)+15d 宽出的不断直通的钢筋弯锚max(0.5hc+5d,0.4La E )+15d端支座悬挑梁比跨内顶面底,c/hc>1/6跨内框架梁上部通长筋根据支座宽度直锚或弯锚悬挑梁上部钢筋伸入跨内直锚max(0.5hc+5d,La)La E中间支座变截面梁顶有高差且c/hc<1/6上部通长筋伸至悬挑远端,下弯至梁底后回弯5d 悬挑梁比跨内顶面底,c/hc<1/6上部通长筋斜弯通过,不断开上部通长钢筋连接悬挑梁比跨内顶面高,c/hc<1/6上部通长筋斜弯通过,不断开悬挑梁比跨内顶面高,c/hc>1/6跨中1/3范围连接直径不同两端与制作钢筋搭接悬挑梁上部钢筋伸入跨内直锚max(hc-c,0.4LaE)+15d侧部受扭钢筋侧部构造钢筋锚固(同梁下部钢筋)端支座锚固搭接12d 上部通长钢筋锚固150mm 8max(0.5hc+5d,0.4LaE)+15d max(0.5hc+5d,LaE)max(0.5hc+5d,LaE)搭接长度L LE=1.6La E,即100%接头间距为箍筋非加密区的两倍拉筋 b b -c+箍筋直径+弯勾直径6直锚弯锚底标高钢筋弯锚max(0.5hc+5d,0.4LaE)+15d 高标高钢筋直锚连接第一排Ln/3第二排Ln/4第三排Ln/5端支座锚固贯通小跨主梁高>800主梁高<800(三) 下部钢筋总结端支座max(0.5hc+5d,LaE)max(0.5hc+5d,0.4LaE)+15d下部通长钢筋的锚固梁宽度不同宽出的不能直通的弯锚max(0.5hc+5d,0.4LaE)+15d中间支座变截面梁底有高差且c/hc<1/6梁底有高差且c/hc>1/6La E上部通长筋斜弯通过,不断开(四) 支座负筋总结情 况延伸长度超过三排,由设计者注明若第一排全是通长筋没支座筋Ln/3Ln/4支座两边配筋不同支座负筋(五) 箍筋总结跨端1/3范围,且避开箍筋加密区下部不伸入支座钢筋净长-2*0.1Ln(Ln为本跨的净跨值)同上部通长筋小跨是指其净长小于左右两大跨的净之和的长1/3多出的钢筋可直锚多出的钢筋可弯锚max(0.5hc+5d,LaE)max(0.5hc+5d,0.4LaE)+15d箍筋根数计算考虑的因素一级抗震: 2h b二级抗震: 1.5hb计算加密区的根数时,加了1艮,计算非加密区时就要减1根 采用四舍五入(六) 吊筋总结 加密区长度起步距离 50mm 加1减1下平直段次梁宽度+2*50夹角夹角为60夹角为45小数点的取值吊筋高度当次梁位于主梁跨段1/3时20d 当次梁位于主梁跨中1/3时10d次梁高度<主梁高度的1/2时次梁高度>主梁高度的1/2时吊筋下平直段距主梁底h/2(h为次梁高)吊筋按主梁计算直锚弯锚高标高钢筋弯锚低标高钢筋直锚直锚弯锚高标高钢筋弯锚低标高钢筋直锚(一)抗震和非抗震楼层框架梁的区别二、 非抗震楼层框架梁抗震楼层框架梁非抗震楼层框架梁锚固长度LaE La有直锚(La)和弯锚(0.4La+15d)俩种(二)非抗震楼层框架梁总结钢筋骨架有上部通长筋无上部通长筋,上部钢筋有架立筋和制作负筋组成箍筋加密区有箍筋加密无箍筋加密La 宽出的不断直通的钢筋弯锚变截面(梁顶或梁底有高差,或宽不同的弯锚钢筋锚固长度=max(0.5hc+5d,0.4LaE)+15d锚固长度=0.4La+15d 端支座max(0.5hc+5d,La)max(0.5hc+5d,0.4La)+15d 下部钢筋中间支座锚固直锚(max(0.5hc+5d,LaE))中间支座变截面0.4La+15d上部支座钢筋锚固架立筋净长-2*支座负筋延伸长度+2*150梁顶有高差且c/hc>1/6梁顶有高差且c/hc<1/6梁宽度不同上部通长筋斜弯通过,不断开0.4La+15d 中间支座变截面下部钢筋端支座max(0.5hc+5d,LaE)max(0.5hc+5d,0.4LaE)+15d 梁底有高差且c/hc>1/6抗震屋面框架梁0.4La+15d上部通长筋斜弯通过,不断开0.4La+15dLa+梁底有高差且c/h<1/6梁宽度不同上下部纵筋锚固方式不同有直锚和弯锚两种方式只有弯锚(屋面框架梁纵向钢筋没有直锚)上部和下部纵向钢筋锚固方式相同上部和下部纵钢筋锚固不同三、抗震屋面框架梁(一)楼层框架梁和屋面框架梁的区别抗震楼层框架梁和抗震屋面框架梁的区别抗震楼层框架梁上下部纵筋具体锚固长度不同楼层框架梁上下部纵筋在端支座弯锚长度为:max(0.5hc+5d,0.4LaE)+15d屋面框架梁上部纵筋有弯至梁底和下弯1.7LaE两种构造变截面梁顶有高差时纵筋锚固不同直锚:LaE 直锚:1.6LaE 弯锚max(0.5hc+5d,0.4LaE)+15d弯锚:0.4LaE+15d+c悬挑端钢筋跨内钢筋端支座负筋锚固梁顶有高差且c/hc>1/6高标高钢筋弯锚0.4La+15d+c截面下部钢筋中间支座锚固直锚max(0.5hc+5d,0.4LaE)+15d由直锚La和弯锚0.4La+15d两种(二) 非抗震屋面框架梁的总结情 况端支座伸至柱边下弯到梁底(hc-c)+(hb-c)伸至柱边下弯1.7La (hc-c)+1.7La 钢筋骨架有上部通长筋无通长,由架立筋和支座负筋箍筋加密区有箍筋加密区无箍筋加密区抗震屋面框架梁非抗震屋面框架梁锚固长度LaE La 中间支座变截面max(0.5hc+5d,0.4LaE)+15d 同抗震框架梁下部钢筋非抗震屋面框架梁(一)抗震屋面框架梁和非抗震屋面框架梁的区别中间支座变截面上部钢筋(通长筋、支座负筋)锚固悬挑端锚入跨内按屋面框架梁端节点梁顶有高差且c/hc<1/6上部通长筋斜弯通过,不断开梁宽度不同宽出的不能直通的钢筋弯锚上部钢筋:0.4LaE+15d 下部钢筋:max(0.5hc+5d,0.4LaE)+15d (hc-c)+1.7LaE梁顶有高差且c/hc>1/6高标高钢筋弯锚低标高钢筋直锚0.4LaE+15d+c1.6LaE (hc-c)+(hb-c)非抗震楼层框架梁和非抗震屋面框架梁的区别非抗震楼层框架梁非抗震屋面框架梁上下部纵筋锚固方式不同有直锚和弯锚两种方式只有弯锚(屋面框架梁纵向钢筋没有直锚)上部和下部纵向钢筋锚固方式相同上部和下部纵钢筋锚固不同上下部纵筋具体锚固长度不同楼层框架梁上下部纵筋在端支座弯锚长度为:max(0.5hc+5d,0.4La)+15d屋面框架梁上部纵筋有弯至梁底和下弯1.7La两种构造变截面梁顶有高差时纵筋锚固不同直锚:La 弯锚max(0.5hc+5d,0.4La)+15d直锚:1.6La 弯锚:0.4La+15d+c (二) 抗震屋面框架梁的总结情 况端支座伸至柱边下弯到梁底伸至柱边下弯1.7LaE悬挑端钢筋跨内钢筋端支座端支座低标高钢筋直行梁弧形梁直行梁弧形梁直行梁弧形梁弧形梁井字梁第二排max(0.5hc+5d,0.4La)+15d中间支座变截面同非楼层框架梁下部钢筋支座负筋锚固锚入跨内按屋面框架梁端节点(弯到梁底或下弯1.7La悬挑端顶高差c/hc<1/6上部通长筋斜弯通过,不断开梁宽度不同宽出的不能直通的钢筋弯锚0.4La+15d梁顶有高差且c/hc>1/6高标高钢筋弯锚低标高钢筋直锚0.4La+15d+c 1.6La中间支座变截面五、抗震框之梁钢筋计算总结锚 固上部通长筋及第一排支座负筋hc-c+hb-c+LaE 拉筋根数拉筋排数下部钢筋以下各排支座负筋hc-c+15d 各排支座负筋延伸长度侧部钢筋箍筋加密区Ln/3hc-c+15d 梁宽<350:6梁宽>350:8箍筋非加密区间距的2倍沿梁高<200hc-c+15dmax(0.2Ln,1.5hb)拉筋直径六、非框架梁钢筋计算总结情 况0.4La+15d梁顶有高差且c/(b-50)》1/6高标高钢筋max(b-c,0.4La)+15d(b支座宽,c保护层0.4La+15d 上部支座钢筋梁宽度不同或钢筋根数不同多出或宽出的钢筋弯锚12d 0.4La+15d中间支座Ll 150mm 延伸长度Ln/5Ln/3按45°角下弯后平伸至远端架立筋下部钢筋箍筋根数七、悬挑梁计算总结与负筋搭接支座锚固间距按弧形梁凸面度量井字梁相交处,只有一个方向箍筋贯通布置La 伸至0.75La位置上部钢筋悬挑端下部钢筋锚固12d第一排L<4hb,全部伸至远端L>4hb,除角筋外,第一排总根数的1/2不伸至悬挑远端下弯伸至远端下弯在回弯5d长度根数直锚底部非贯通筋上部上排筋上部下排筋下部上排筋下部下排筋箍筋根数上部筋下部筋上部筋下部筋上部筋下部筋上部筋下部筋有外伸上部钢筋下部第一排下部第二排下部高标高端梁宽度不同箍筋根数十字交叉丁字交叉拉筋max(hc-c,0.4La)+15d max(0.5hc+5d,La)+5d 伸至悬挑远端弯折12d 八、04G101基础主梁和基础次梁总结情 况上部和下部贯通筋成对连通布置悬挑远端变截面按平均高度计算与边梁竖直相交时,布置到边梁边箍筋纯悬挑梁锚固弯锚高标高第一排钢筋伸至低标高梁顶面再加La 锚固La 上部和下部多出贯通筋伸至端部弯折15d自轴线起max(Lo/3,1.2La+hb+0.5hc)有外伸伸至悬挑远端弯折12d 不伸至悬挑端,在悬挑根部支座弯折12d 伸至悬挑远端不弯折锚固La 伸至变截面顶再+La 锚固La 伸至尽端且总锚》La 与柱相交的节点内要布置箍筋,按跨端第一种箍筋布置底标高第一排钢筋底标高第二排钢筋宽的上下部第一排钢筋连通设置伸至尽端且总锚》La高标高第二排钢筋伸至尽端且总锚》La锚固La 锚固max(0.5hc,12d)锚入支座La底部非贯通筋自轴线起max(Lo/3,1.2La+hb+0.5hc)变截面梁顶底有高差处基础主梁JZL情 况上部贯通筋梁宽度不同宽的上下部第一排钢筋同基础主梁(JZL)锚固(0.5hc,12d)下部低标高端伸至变截面顶再+La 伸至尽端且总锚》La 下部贯通筋只有在净长范围内布置箍筋锚固15d 横梁外侧的侧部构造钢筋贯通,其余锚固15d 侧部钢筋锚固La 变截面梁顶底有高差处基础次梁JCL 下部各派多出的钢筋伸至尽端且总锚》La 直径为8,间距为箍筋间距的2倍侧部构造筋九、06G101基础类梁钢筋计算总结上下部贯通筋箍筋上下部纵筋箍筋上部纵筋下部纵筋地下框架梁第二节 柱构件钢筋计算总结大表上下部纵筋端支座锚固上下部纵筋中间支座锚支座负筋延伸长度max(hc-c,0.4LaE)+15dmax(LaE,0.5hc+5d)Ln/3(Ln为本跨净长度,端支座和中间支座相同)伸至端部+下弯c (顶标高差)+15d锚固La 在净长范围内布置在全长范围内布置变截面伸至梁端部弯折12d 伸至梁端部弯折15d 自轴线起Lo/3(1)基础梁JL和基础圈梁JQL同伐基础基础主梁JZL基础圈梁JQL变截面同基础梁JZ,基础圈梁上部和下部一般只有一排钢筋,这排在变截面时就同基础梁JL中的上部和下部第一排钢筋情 况上部各排贯通筋下部各排贯通筋底部非贯通筋延伸长度基础梁JL 有外伸多跨基础连梁各跨两端支座锚固La 净长范围内布置基础连梁无外伸单跨基础连梁基础连顶面低于承台顶面>5d(d为上部钢筋基础连梁顶面和承台顶面一平,或者基础连梁顶面低于承台顶面<5d基础梁顶面高于但地面低于承台顶面箍筋根数锚固La柱角插筋插至基础底部柱中部插筋插入基础LaE容许竖向直锚深度<LaE底部弯折max(6d,150)侧部钢筋同伐基础基础主梁JZL (2)06G101承台梁、基础连梁、地下框架梁钢筋总结承台梁伸至梁端不弯折10d 全长布置一、柱插筋总结容许竖向直锚深度>LaE全部纵筋插至基础底部底部弯折a(a值查表)梁板式伐基柱角插筋插基础底部柱中部插筋插基础LaE 底部弯max(6d,150)板厚《2m容许竖向直锚深度>LaE芯柱伸出基础高度芯柱竖直长度>0.5LaE,12d且>150;>0.6,10d且>150;>0.7,8d且>150;>0.8,6d且>150基础内长度容许竖向直锚深度<LaE 柱角部插筋支在基础板中部配筋上表面柱中部插筋插基础LaE 底部弯max(6d,150板厚》2m容许竖向直锚深度>LaE容许竖向直锚深度>LaE容许竖向直锚深度<LaE板式伐基柱角插筋插至基础底部柱中部插筋插入基础LaE底部弯折max(6d,150单柱独基、条基全部纵筋插至基础底部底部弯折a(a值查表)板厚《2m 板式伐基、独基、条基、桩承台间距《500,且不少于两道举行封闭箍全部纵筋插至基础底部底部弯折a(a值查表)容许竖向直锚深度>LaE容许竖向直锚深度<LaE柱角插筋及与基础梁轴线平行布置的柱中部插筋伸至基础底底部弯折max(6d,150)全部纵筋插至基础底部基础容许竖向直锚深度>LaE且>35d设基础梁的双柱独基柱角插筋插至基础底部柱中部插筋插至LaE深度底部弯折max(6d,150)桩基础独立承台底部弯折a(a值查表)柱中部锚入基础梁横断面得差筋插至LaE柱插筋梁底与板底一平梁板式伐基锚入桩>35d,>LaE 底部弯折max(6d,150)大直径灌注桩锚入>0.7LaE 全部纵筋插至基础底部底部弯折a(a值查表)基础容许竖向直锚深度<LaE且>35d梁顶与板底一平基础板高度范围内箍筋根数间距《500,且不少于两道举行封闭箍基础梁内箍筋根数同基础以上柱箍筋hn/3上部非链接区max(hn/6,hc,500)纵筋箍筋加密区同纵筋非连接区同基础以上芯柱箍筋箍筋二、地上框架柱钢筋计算总结下部非连接区hn/3普通柱间距《500,且不少于两道举行封闭箍箍筋加密区全高加密基本计算公式本层层高-本层非链接区高度-伸入上层非连接区高度短柱三、中间层框架柱钢筋计算总结下部非连接区max(hn/3,hc)上部非链接区hc纵筋箍筋外侧钢筋梁剪力墙圈梁砖墙梁剪力墙圈梁砖墙洞口边伸到洞口边弯折悬挑端支座锚固根数起步距离梁多出的钢筋伸入上层1.2LaE基本计算公式本层层高-本层非链接区高度-伸入上层非连接区高度下部加密区高度上柱比下柱钢筋直径大纵筋上柱比下注钢筋多上部非链接区高度+梁顶板高下部非连接区高度上柱大直径的钢筋伸入下层,在下层的上部非连接区以下位置连接下柱销直径钢筋由下层直接伸到本层上部,下上层伸下来的大直径的钢筋连接下柱比上住钢筋多多出的钢筋伸入下层1.2LaE max(hn/3,hc)hc全高加密纵筋箍筋普通柱下部非连接区高度上部非连接区高度短柱上部加密区高度四、顶层框架柱钢筋计算总结直锚:伸至柱顶-保护层弯锚:伸至柱顶-保护层+15d中柱外侧钢筋直锚:伸至柱顶-保护层内侧钢筋不少于65%,自梁底气1.5LaE梁纵筋与柱纵筋直搭接型边、角柱第三节 板构件钢筋计算总结大表一、板底钢筋计算总结伸至柱顶-保护层+12d 直锚:伸至柱顶-保护层梁纵筋与柱纵筋弯折搭接型弯锚:伸至柱顶-保护层+12d 弯锚:伸至柱顶-保护层+12d内侧钢筋伸至悬挑梁-保护层12d剩下的位于第一层钢筋,伸至柱顶、柱内侧边下弯8d剩下的位于第二层钢筋,伸至柱顶、柱内侧边max(120,h)延伸悬挑板长度>5d,且到支座中心线max(120,h)中间支座h-2*15(保护层)端支座>5d,且到支座中心线1/2板筋间距二、板顶钢筋计算总结La两端支座锚固剪力墙圈梁连接洞口边延伸悬挑板根数起步距离延伸长度弯折长度弯折长度在基础内的插筋容许竖向直锚深度<LaE 全部墙插筋伸至基础底部并做弯折条基/伐基容许竖向直锚深度>LaE 墙部分插筋采用伸至LaE位置并弯折墙部分插筋采用伸至LaE位置截断(哪些钢筋截断)外侧钢筋水平筋极数从基础到屋顶连续布置二、墙身竖向筋计算总结端部遇端柱转角处同内侧钢筋遇暗柱同内侧钢筋遇端柱连续布置第四节 墙构件钢筋计算总结大表伸到洞口边弯折h-2x15(保护层)La两端支座锚固跨板支座负筋跨长+延伸长度+弯折1/2板筋间距长度三、支座负筋计算总结丁字相交支座负筋遇丁字相交不空缺跨中Lo/3两邻跨板顶筋配置不同配置较大的钢筋穿越气标注的起点或终点,伸至邻跨跨中连接自支座中心线向跨内的延伸长度h-15转角处分布筋扣减分布筋和与之相交的制作负筋搭接150mm基本公式+延伸长度+弯折板顶进伸至悬挑远端,下弯至板底在回弯5d 支座负筋替代板顶筋分布筋双层配筋的办上又配置负筋时,支座负筋可替代同行的板筋分布筋自支座中心线向跨内的延伸长度h-15端支座负筋两侧与不同长度的制作负筋相交其两侧分布筋分别按各自的相交情况计算内侧钢筋弯锚:伸至端柱对边弯折15d 伸至斜交墙内拐点+LaE 伸至尽端弯折15d在洞变切断,与外侧钢筋交错5d板顶筋提到负筋分布筋双层配筋,又配置支座负筋时,板顶客替代同向的负筋分布筋中间支座基本公式=延伸长度+弯折延伸长度断开布置,断开后,分别弯折20d斜交墙端部无暗柱洞口处端部遇暗柱一、墙身水平筋计算总结锚入端柱伸至暗柱对边弯折15d直锚:LaE锚入端柱下层竖向筋端柱顶层长度同墙身竖向筋端部为墙身端部为暗柱中间层中间层上部钢筋下部钢筋暗梁纵筋在洞口宽度内布置,起步距离50mm 在纵筋长度范围内布置,洞口里侧妻孥距离50mm,洞口外侧起步距离100mm端部锚固同墙身水平筋顶层伸至梁端下弯LaE 端部锚固同墙身水平筋情 况纵筋锚入墙身内max(LaE,600)锚入墙柱内max(hc-c,0.4LaE)+15d 连梁同墙身竖向筋中间层长度层高-本层非链接区高度+伸入上层非连接区高度(错开,错开35d)箍筋顶层伸入板内LaE(注意是从板底起算)容许竖向直锚深度<LaE 全部墙插筋伸至基础底部并作弯折桩基承台暗柱四、墙梁钢筋计算总结在基础内的插筋容许竖向直锚深度<LaE 全部墙插筋伸至基础底部并作弯折条基/伐基容许竖向直锚深度>LaE 阳角插筋伸至基础底弯折其余钢筋采用伸至LaE位置容许竖向直锚深度>LaE 阳角插筋伸至基础底弯折其余钢筋采用伸至LaE位置截断端部为约束型柱竖向钢筋根数三、墙柱钢筋计算总结纵筋箍筋均为框架柱约束型柱扩展部位单独计算剩下的:(墙净长-起步距离)/间距+1(此时的经常=墙长-约束柱核心部位宽-约束柱扩展部位起步距离为1/2竖筋间距端部为构造型柱(墙净长-起步距离)/间距+1起步距离为1/2竖筋间距无变截面层高-本层非链接区高度+伸入上层非连接区高度(错开,错开35d)变截面上层竖向筋下层墙身竖向钢筋伸至变截面处向内弯折,至对面竖各分部筋处截断伸至下层1.5LaE 容许竖向直锚深度<LaE 全部墙插筋伸至基础底部并做弯折中间层长度顶层长度伸入板内LaE(注意是从板底起算)桩基承台在基础内的插筋容许竖向直锚深度<LaE 全部墙插筋伸至基础底部并做弯折墙部分插筋采用伸至max (LaE,35d)位置并做弯锚容许竖向直锚深度>LaE 墙部分插筋采用伸至max (LaE,35d)位置截断(哪些钢筋截断,有设计注明)与连梁重叠中间层上部钢筋下部钢筋LaE:抗震锚固长度 La:非抗震锚固长度 hc:柱宽 hb:梁高 hw:梁腹板高度L:悬挑端净长 Ln:梁净长 Lo:轴线长度 hn:柱净高 h:板厚 L l E:抗震受拉钢筋绑扎搭接长度 L l:非抗震受拉钢筋绑扎搭接长度 c:保护层厚度 135°弯勾计算长度:1.9d 180°弯勾计算长度:6.25d 箍筋起步距离1/2间距与连梁重叠时,连梁范围内边框梁与连梁箍筋各自设置边框梁与连梁重叠与连梁纵筋重叠的,搭接max(LlE)与连梁纵筋不重叠的,穿过连梁连通布置纵筋暗梁端部锚固同墙身水平筋顶层伸至梁端下弯LaE 端部锚固同墙身水平筋上、下部钢筋与连梁纵筋搭接:max(LaE,600)纵筋箍筋起步距离1/2间距与连梁重叠时,连梁范围内不布置暗梁箍筋。
以下我将以该工程为例和大家一起探讨柱,梁,板的11G101的平法计算例:通过结构总说明,已知该工程的结构为三层框架,框架抗震等级为三级,按8度采取抗震构造措施,结构各部分混凝土强度等级:素混凝土垫层C10其余均采用C25,受力钢筋混凝土的保护层厚度:基础底板40;基础梁35;上部:柱30,梁25,板15.(本图中所有钢筋连接方式以焊接为例)柱的平法配筋(主要看11G101-1中P57、P60、P63)基础中钢筋短插筋:=Max(6d,150)+(承台高-保护层)+Hn(第一层净高)/3=150+(700-40)+(4870-750)/3长插筋:=短插筋+Max(500,35d)= 2184+875=3059箍筋长度:=(b-2*BHC)*2+(h-2*BHC)*2+1.9d*2+Max(10d,75)=(450-30*2)*2+(450-2*30)*2+1.9*10+10*10=1679箍筋根数=(基础高度-基础保护层-50)/间距-1 ,且≥2根=(700-40)/100-1=6一层钢筋=1层净高-1层非连接区(Hn/3)+2层的非连接区(Max(Hn/6,hc(柱截面长边),500))=4870-(4870-750)/3+Max((3800-750)/6,450,500)=4005由右图可知一层钢筋和二层相比,不仅截面积变小,而且钢筋变少了,这就是变截面,即我们来看11G101-1中P60具体给变截柱的规范,由规范可知,变截面 4.170到7.970KL1柱配筋图的计算规则。
由P57可知又可知下柱钢筋比上柱多的钢筋又该怎么计算。
1层比2层多的钢筋长:=第一层净高-1层非连接区+1.2Lae=(4870-750)-(4870-750)/3+1.2*42*20=3755短:=长插筋-错开距离Max(500,35d)=3755-Max(500,35*20)=3055中间层=本层层高-本层非连接区Max(Hn/6,hc,500)+上层非连接Max(Hn/6,hc,500)=3800- Max((3800-750)/6,400,500)+ Max((3800-750)/6,400,500)=3800顶层柱钢筋7.970到11.770KL1柱配筋长:=顶层净高-顶层非连接区(Hn/6,hc,500)+(梁高-保护层)+12d=3800+(3800-750/6,400,500)+(750-30)+12*16=3444短:=长钢筋- Max(500,35d)=3444-Max(500,35*16)=2884箍筋长度只要截面不变,即箍筋长度不变=(b-2*BHC)*2+(h-2*BHC)*2+1.9d*2+Max(10d,75)箍筋根数注:一层箍筋计算中只有一层非连接区为Hn/3,其余不变为Max(hc,Hn/6,500)根部根数=(加密区长度-50)/加密间距+1梁下箍筋根数=加密区长度/加密间距+1梁高范围根数=梁高/加密间距非加密区根数=非加密区长度/非加密间距-1梁平法配筋在学习梁平法配筋图之前让我们来先看一下各个标注的意思,详见11G101-1 P25-35一、箍筋表示方法:⑴φ10@100/200(2) 表示箍筋为φ10 ,加密区间距100,非加密区间距200,全为双肢箍。
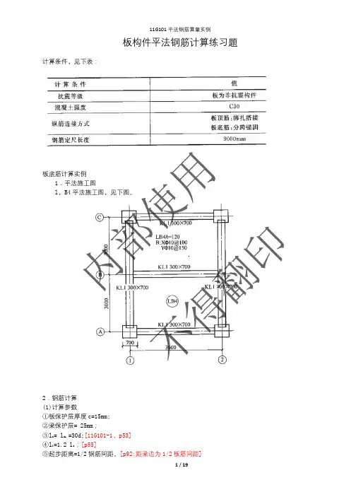
板构件平法钢筋计算练习题计算条件,见下表:板底筋计算实例1.平法施工图l,B4 平法施工图,见下图。
2.钢筋计算(1)计算参数①板保护层厚度c=15mm;②梁保护层= 25mm;③l a= l ab =30d;[11G101-1,p53]④l l=1.2 l a;[p55]⑤起步距离=1/2 钢筋间距。
[p92:距梁边为1/2 板筋间距](2)钢筋计算过程1) B-C 轴①XΦ10@100端支座锚固长度=max(h b/2,5d)=max(150,5*10) =150180°弯钩长度=6.25d总长=净长十端支座锚固十弯钩长度=3600-300+ 2×150+2×6.25×10 = 3725 根数 =(钢筋布置范围长度一起步距离)/间距+1=(3000-300-100)/100+1 = 27②YΦ10@150端支座锚固长度=max(h b/2,5d)=max(150,5*10) =150180°弯钩长度=6.25d总长=净长十端支座锚固十弯钩长度=3000-300+2*150+2×6.25×10=3125 根数=(钢筋布置范围长度一起步距离)/间距+1=(3600-300-2×75)/150+1=222) A-B 轴①XΦ10@100端支座锚固长度=max(h b/2,5d)=max(150,5*10) =150180°弯钩长度=6.25d总长=净长十端支座锚固十弯钩长度=3600-300+ 2×150+2×6.25×10 = 3725 根数 =(钢筋布置范围长度一起步距离)/间距+1=(3000-300-100)/100+1 = 27②YΦ10@150端支座锚固长度=max(h b/2 )=max(150,5*10) =150180°弯钩长度=6.25d总长=净长十端支锚固十弯钩长度=3000-300+2*150+2×6.25×10=3125根数=(钢筋范围长度一起步距离)/间距+1=(3600-300-2×75)/150+1=22板上部纵向钢筋计算实例:LB8 平法施工图,见下图。
第一章梁第一节抗震楼层框架梁纵筋计算(11G101-1 P79)1、上部贯通筋(可采用直锚或弯锚)上部贯通筋(上通长筋)长度=通跨净跨长+首尾端支座锚固值2、端支座负筋(可采用直锚或弯锚)端支座负筋长度:第一排为Ln1/3+端支座锚固值;第二排为Ln1/4+端支座锚固值中间支座负筋长度:第一排为max{Ln(i),Ln(i+1)}/3×2+支座(柱)宽;第二排为max{Ln(i),Ln(i+1)}/4×2+支座(柱)宽注意:当中间跨两端的支座负筋延伸长度之和≥该跨的净跨长时,该跨为“小跨”,支座负筋全跨通过3、下部钢筋(可采用直锚或弯锚)下部钢筋长度=净跨长+左右支座锚固值支座锚固:直锚和弯锚①支座宽≥Lae且≥0.5Hc+5d,为直锚,取Max{Lae,0.5Hc+5d }。
②支座宽≤Lae或≤0.5Hc+5d,为弯锚:梁上部端支座弯锚:取max{0.4Labe,0.5Hc+5d}+15d 或端柱宽b-柱混凝土保护层c-柱外侧纵筋d+15d(伸至柱外侧纵筋的内侧)。
梁下部端支座弯锚:取max{0.4Labe,0.5Hc+5d}+15d 或端柱宽b-柱混凝土保护层c-柱外侧纵筋d-梁上部纵筋d+15d(伸至梁上部纵筋弯钩段的内侧)或端柱宽b-柱混凝土保护层c-柱外侧纵筋d+15d(伸至柱外侧纵筋的内侧)。
③钢筋的中间支座锚固值=Max{Lae,0.5Hc+5d }4、腰筋构造钢筋:构造钢筋长度=净跨长+2×15d抗扭钢筋:抗扭钢筋长度=净跨长+2×Lae(锚固方式同下部纵筋)5、拉筋拉筋长度=(梁宽-2×保护层)+2×11.9d(抗震弯钩值)拉筋根数:一排拉筋的根数=布筋长度/布筋间距,排数=腰筋的根数/26、箍筋箍筋长度=(梁宽-2×保护层+梁高-2×保护层)×2+2×11.9d箍筋根数=加密区根数+非加密区根数加密区根数=(加密区长度-50)/加密区间距+1非加密区根数=(非加密区长度)/非加密区间距-1注意:①加密区在梁的两端均有;②钢筋混凝土保护层厚度为构件边缘至最外层钢筋的距离。
综合11G101-3图集钢筋规定本页仅作为文档页封面,使用时可以删除This document is for reference only-rar21year.March自制:当前实用11G101-3图集钢筋综合规定一、 11G101-3基础平法:一》、独立基础截面形状通常有两种:1、阶梯独立基础编号:DJ J×× 杯口阶梯独立基础编号:BJ J××说明:当阶梯截面普通独立基础竖向尺寸标注为400/300/300时,表示基础总厚度为1000,最下部h1尺寸为400厚,向上h2尺寸300,再向上h3尺寸是300.........2、坡形独立基础编号:DJ P×× 杯口坡形独立基础编号:BJ P××(口内深为a0)说明:当坡形截面普通独立基础竖向尺寸标注为350/300时,表示基础总厚度为650,最下部h1尺寸为350厚,向上h2尺寸300.........;(11G101-3 7、8页)3、独立基础底部双向配筋规定:1》以B代表各种独立基础底板的底部配筋(从左向右为X向,从下向上为Y 向)。
2》各向筋以各字母打头,当两向配筋相同时,则以X﹠Y打头注写。
(一般短向在下)。
如:独立基础底板的底部配筋标注为 B:X16@150,Y16@200(11G101-3 10页)。
4、杯口独立基础顶部焊接网片:以Sn打头引注杯口顶部焊接钢筋网片各边钢筋。
如:Sn 214就是每边两根14的筋,双杯口同(11G101-3 10页);当杯口独立基础中间杯壁厚度小于400时,中间杯壁设置构造筋见相应标准构造详图,设计不注。
5、杯口独立基础的杯壁外侧和短柱配筋:1》以O 代表杯壁外侧和短柱配筋。
2》先注写杯壁外侧短柱竖向纵筋,再注写箍筋:角筋/长边中部竖筋/短边中部竖筋,箍筋(两种间距:杯口范围间距/短柱范围间距)例杯口外短柱标注为:O:420/16@220/16@200,φ10@150/300。
11G101与03G101变化解析核心提示:11G101系统平法图集较03G101系列图集较大变化有11G101系列新平法2011年9月1日正式实施:《混凝土结构施工图平面整体表示方法制图规则和构造详图(现浇混凝土框架、剪力墙、梁、板)》 11G101-1《混凝土结构施工图平面整体表示方法制图规则和构造详图(现浇混凝土板式楼梯)》11G101-2《混凝土结构施工图平面整体表示方法制图规则和构造详图(独立基础、条形基础、筏形基础及桩基承台)》 11G101-311G101系统平法图集较03G101系列图集较大变化有:一、适用范围变化:11G101-1适用于非抗震和抗震设防烈度为6~9度地区的现浇混凝土框架、剪力墙、框架-剪力墙和部分框支剪力墙等主体结构施工图的设计,以及各类结构中的现浇混凝土板(包括有梁楼盖和无梁楼盖)、地下室结构部分现浇混凝土墙体、柱、梁、板结构施工图的设计。
包括基础顶面以上的现浇混凝土柱、剪力墙、梁、板(包括有梁楼盖和无梁楼盖)等构件的平法制图规则和标准构造详图两大部分。
11G101-3适用于各种结构类型下现浇混凝土独立基础、条形基础、筏形基础(分梁板式和平板式)、桩基承台施工图设计。
包括常用的现浇混凝土独立基础、条形基础、筏形基础(分梁板式和平板式)、桩基承台的平法制图规则和标准构造详图两大部分内容。
二、受拉钢筋锚固长度等一般构造变化:11G101系列平法图集依据新规范确定了受拉钢筋的基本锚固长度lab、labe,以及锚固长度la、lae的计算方式。
较03G101系列平法图集取值方式、修正系数、最小锚固长度都发生了变化。
三、构件标准构造详图变化:11G101-1中抗震KZ边柱和角柱柱顶纵筋构造,较03G101有如下变化:1、新图集中各个节点可以进行组合使用;2、柱外侧纵筋不少于柱外侧全部纵筋的65%伸入梁内;(与原图集一致)3、A节点,外侧伸入梁内钢筋不小于梁上部钢筋时,可以弯入梁内作为梁上部纵向钢筋。
一、剪力墙身的规范要求与计算1、剪力墙身插筋(注:所有插筋应插至基础底部配筋表面并做90°弯钩)a.当竖直长度h1≥0.5LaE(≥0.5La),弯折长度a取12d且≥150mm; 其中h1=H-c-2db.当竖直长度h1≥0.6LaE(≥0.6La),弯折长度a取10d且≥150mm;其中h1=H-c-2dc.当竖直长度h1≥0.7LaE(≥0.7La),弯折长度a取8d且≥150mm; 其中h1=H-c-2dd.当竖直长度h1≥0.8LaE(≥0.8La),弯折长度a取6d且≥150mm;其中h1=H-c-2d(注:H为基础厚度;c为基础底部保护层厚度;d为基础纵筋直径;h1为基础内竖直长度)2、a.剪力墙身基础中纵筋长度=竖直长度h1+弯折长度a+剪力墙竖向搭接长度(注:采用搭接时二级抗震等级搭接长度1.2laE,三、四级抗震或非抗震搭接长度1.2LaE、1.2La)b.剪力墙身基础层定位水平筋长度=墙长度-2*墙柱保护层厚度-2*d1(d1为墙柱外侧钢筋直径+2*15dc.楼层剪力墙垂直分布筋长度=层高+1.2倍锚固长度d.楼层剪力墙水平分布筋=墙长度-2*墙柱保护层厚度-2*d1(d1为墙柱外侧钢筋直径)+2*1e.顶层剪力墙垂直分布筋=层高-顶板板厚+1个锚固长度(LaE)(注:a.垂直分布筋根数=[(墙净长度-垂直分布筋间距)/垂直分布筋间距+1]*排数b.水平分布筋单侧根数=[层高-水平分布筋间距/2]/水平分布筋间距+1c.剪力墙身基础中水平定位钢筋根数=max(2;h1/500+1)。
)3.拉筋长度=(b-2c+2d)+max(10d,75)*2+1.9d*2 (注:b墙宽、c保护层厚度、d箍筋直径)拉筋根数=墙净面积/(横向间距*纵向间距)二、剪力墙梁的规范要求与计算1、剪力墙梁纵筋锚入支座的判断:a、当支座宽≥Lae且≥0.5Hc+5d,为直锚,取Max{Lae,0.5Hc+5d}b、当钢筋的端支座锚固值=支座宽≤Lae或≤0.5Hc+5d,为弯锚,取Max{Lae,支座宽度-保护层+15d}2、①连梁纵筋两端均采用直锚时,连梁纵向钢筋长度=洞口宽度+2*max(LaE,600)②连梁纵筋两端均为弯锚时,连梁纵向钢筋长度=洞口宽度+(左支座宽-保护层厚度)+(右支座宽-保护③连梁纵筋一端为直锚一端为弯锚时,连梁纵向钢筋长度=洞口宽度+(左支座宽-保护层厚度)+15d+ma④连梁箍筋根数=(洞口宽-2*50)/箍筋间距+1⑤顶层连梁的箍筋:箍筋的直径与跨中相同,间距150mm,距支座边缘100mm开始。
根据11G新平法手把手教你算钢筋KZ5(中柱截面尺寸500x500)柱嵌固在独立基础(DJ)顶采用焊接接头四级抗震一、基础插筋计算(-0.70标高)1、纵筋计算判断柱插筋伸入基础内的长度已知:基础高度hj=700mm,基础保护层厚度为40mm,双向底筋为 14@200纵向钢筋进入基础内的长度h1=700-40-2*14=632mm (查11G101-3 P54或11G101-1 P53)纵筋锚固长度LaE=35d=35*16=560mm﹤h1所以:纵筋在基础内的弯折长度a取值见11G101-3 P59图一(若h1≤la E 则a取值见11G101-3 P59图二 a=15d)a=max(6d,150)=max(96,150) 取150mm基础插筋长度=Hn1/3+h1+a (见11G101-1 P57=1/3(3870+700-600)+632+150=3970/3+782=1323.3+782=2105.3mm钢筋的根数N=12根总长度=12*2105.3=25263.6mm=25.264m2、箍筋计算见11G101-1 P61(若有地下室见P58)柱保护层厚度c=20mm⑴大箍筋长度=〔(B-2c)+(H-2c)〕*2-4ds+2*13.6d=〔(500-2*20)+(500-2*20)〕*2-4*8+2*13.6*8 =〔460+460〕*2-4*8+2*13.6*8=1808+217.6=2025.8mm大箍筋个数=Hn1/3中的个数+基础内的个数说明:底部加密区有两个条件:①柱底非连接区加密;②±0.00有刚性地面上下各500高的区域设加密区(见11G329-1 P24`27 若室外地面也有刚性地面时也按此方法计算)。
本工程KZ5在±0.00有刚性地面,如底部非连接区和±0.00上下各500高的区域加密区有重叠时,取大值。
基础内的个数=(hj-c-2d-100-100)/500+1≧2=(700-40-2*14-200)/500+1=0.86+1=1.86 取2根11G101-3 P59图一、二柱根部Hn1/3部分的个数=(Hn1/3-50)/加密区间距+1=(3970/3-50)/100+1=(1323.3-50)/100+1=12.7+1=13.7≈14根总长度=(2+14)*2025.8=32412.8mm=32.413m⑵小箍筋长度横向箍筋长度=〔(H-2c)+((B-2c-d*2-Dc)/(n-1)*1+D〕*2+2*13.6d=〔(500-2*20)+((500-2*20-8*2-16)/(4-1))*1+16〕*2+2*13.6*8=〔460+((460-16-16)/3)*1+16〕*2+217.6 =(460+158.7)*2+217.6=1237.3+217.6=1454.9mm横向箍筋个数=大箍筋个数=14根(基础内不设)总长度=14*1454.9=20368.6mm=20.369m纵向箍筋长度(小)与横向相同L=1454.9mm总长度=14*1454.9=20368.6mm=20.369m二、首层钢筋计算(-0.70~3.870标高)1、纵筋长度=首层层高-本层底部非连接区长度+上一层非连接区长度 =(3870+700)-3970/3+max(Hn2/6,柱长边,500)((见11G101-1 P57 )=4570-1323.3+max(2700/6,500,500)=4570-1323.3+500=3746.7mm根数N=12根总长度=12*3746.7=44960.4mm=44.96m2、箍筋计算⑴大箍筋长度同插筋=2025.8mm箍筋个数=柱上部非连接区/加密区间距+1+梁高/加密区间距+(首层层高-底部非连接区-上部非连接区-梁高)/非加密区间距-1 (见11G101-1 P61 )=max(Hn1/6,hc,500)/100+1+600/100+〔4570-Hn1/3-max(3970/6,500,500)-600〕/200-1=max(3970/6,500,500)/100+1+600/100+〔4570-3970/3-max(3970/6,500,500)-600〕/200-1=662/100+1+6+(4570-1323.3-662-600)/200-1=(6.62+1)+6+(1984.7/200-1)=8+6+9=23根总长度=23*2025.8=46593.4mm=46.593m⑵小箍筋长度纵向、横向(小)箍筋同插筋长度=1454.9mm纵向、横向(小)箍筋根数分别=大箍筋个数=18根横向(小)箍筋总长度=18*1454.9mm=26188.2mm=26.188m纵向(小)箍筋总长度=横向(小)箍筋总长度=26.188m三、二层钢筋计算(3.870~7.170标高)1、纵筋计算 (见11G101-1 P57 )纵筋长度=二层层高-本层底部非连接区长度+上一层底部非连接区长度=3300-max(Hn2/6,hc,500)+max(Hn3/6,hc,500)=3300-500+500=3300mm根数N=12根总长度=12*3300=39600mm=39.6m2、箍筋计算(见11G101-1 P61 )⑴大箍筋长度同首层大箍筋长度=2025.8mm大箍筋个数=本层底部非连接区-50/加密区间距+1+本层上部非连接区/加密区间距+1+三层梁高/加密区间距+(本层层高-底部非连接区-上部非连接区-梁高)/非加密区间距-1=500/100+1+500/100+1+600/100+(3300-500-500-600)/200-1=(5+1)+(5+1)+6+1700/200-1=6+6+6+8.5-1=18+9-1=26根总长度=26*2025.8=52670.8mm=52.671m⑵纵、横向小箍筋长度同首层小箍筋长度=1454.9mm纵、横向小箍筋个数分别=大箍筋个数=26根纵向(小)箍筋总长度=26*1454.9=37827.4mm=37.827m横向(小)箍筋总长度=37.827m四、顶层钢筋计算(7.170~10.470标高)1、纵筋计算(见11G101-1 P60 )(角柱及边柱见11G101-1 B 大样)判别柱顶是否直锚LaE=35d=35*16=560﹤hb-c-db=600-20-8=572mm可以直锚(见11G101-1 P60大样 D );若LaE>hb- c-db则需弯锚,见11G101-1 P60大样A.B纵向钢筋长度=顶层层高-本层底部非连接区-屋面梁高+锚固长度=3300-max(Hn3/6,hc,500)-600+hb-c-db =3300-max(2700/6,500,500)-600+572=3300-500-600+572=2772mm钢筋根数N=12根总长度=12*2772=33264mm=33.264m角柱、边柱纵筋锚固长度取值①内侧钢筋计算方法同中柱②外侧钢筋锚固长度= max(1.5LaE,hb-c-db+15d)2、箍筋计算(见11G101-1 P61 )⑴大箍筋长度同二层=2025.8mm箍筋个数=本层底部非连接区/加密区间距+1+本层上部非连接区/加密区间距+1+屋面梁高/加密区间距+(本层层高-底部非连接区-上部非连接区-梁高)/非加密区间距-1=(500/100+1)+(500/100+1)+600/100+(3300-500-500-600)/200-1=6+6+6+1700/200-1=6+6+6+(8.5-1)=26根箍筋总长度=26*2025.8=52670.8mm=52.671m⑵纵、横向小箍筋长度同二层小箍筋长度=1454.9mm纵、横向小箍筋个数分别=大箍筋个数=26根纵向(小)箍筋总长度=26*1454.9=37827.4mm=37.827m 横向(小)箍筋总长度=37.827mWKL3 钢筋计算WKL3(2) 240×570 6@100/200(2),218砼C30 ,纵筋HRB400级、四级抗震查11G101-1 P53 LaE=35d,查11G101-1 P54 C=20mm(一)通长筋计算(通筋为218)判断是否直锚La E=35*18=630mmhc-c-dc-Dc=406mm La E>hc-c-dc-Dc (只能弯锚)•钢筋长度=梁净跨+左支座锚固长度(按屋面)+右支座锚固长度(按屋面)左支座锚固长度= max(0.4La E+h b-d b-c,hc-c-dc-Dc+h b-c-d b)=406+570-20-6=950mm右支座锚固长度=max(0.4La E+h b-d b-c,hc-c-dc-Dc+h b-c-d b)=406+570-20-6=950mm•钢筋长度L=14160+950+950=15640mm 按8m一个接头(一个闪光对焊接头)根数N=2根(二)支座负筋计算1、中间支座负筋 122 L=2×Ln/3+(支座宽)450•钢筋长度L=2×(7200-330-225)/3+(支座宽)450=4880mm 根数N=1根(三)底筋计算1、○3轴交A~C轴处(2跨)底筋222 按贯通计算.钢筋长度L=净长+左锚长度+右锚长度净长=14400-330-330=13740mm左锚长度=max﹛0.4la E+15d,hc-c-dc-Dc+15d﹜=406+15*22=736mm右锚长度(直锚)=max﹛0.4la E+15d,hc-c-dc-Dc+15d﹜=406+15*22=736mm•钢筋长度L=13740+736+736=15212mm,根数N=2根(四)箍筋计算1、○3轴交B~C轴处6@100/200(2)a、箍筋长度=(B+H-4c)*2—4d+3.6d*2+max﹛10d,75mm﹜*2=(240+570—4×20)*2—4*6+3.6*6*2+75*2=1460-24+43.2+150=1629.2mmb、箍筋根数=左加密区根数+右加密区根数+非加密区根数(四级抗震,取≥1.5h b且≥500mm,查11G101—1,P83)左加密区根数=(1.5×梁高-50)/加密区间距+1=(1.5×570—50)/100+1=9根右加密区根数=(1.5×梁高-50)/加密区间距+1=(1.5×570—50)/100+1=9根非加密区根数=(净跨长-左加密区长-右加密区长)/非加密区间距-1=(7200-330-225-855-855)/200-1=24根主次梁交接处附加箍筋个数 2*3=6根此跨箍筋总根数=9*2+24+6=48根(2)、○3轴交A~B轴处6@100/200(2)a、箍筋长度=(B+H-4c)*2—4d+3.6d*2+max﹛10d,75mm﹜*2=(240+570—4×20)*2—4*6+3.6*6*2+75*2=1460-24+43.2+150=1629.2mmb、箍筋根数=左加密区根数+右加密区根数+非加密区根数(四级抗震,取≥1.5h b且≥500mm,查11G101—1,P83)左加密区根数=(1.5×梁高-50)/加密区间距+1=(1.5×570—50)/100+1=9根右加密区根数=(1.5×梁高-50)/加密区间距+1=(1.5×570—50)/100+1=9根非加密区根数=(净跨长-左加密区长-右加密区长)/非加密区间距-1=(7200-330-225-855-855)/200-1=24根此跨箍筋总根数=9×2+24=42根WKL3(2)①轴交A~C轴处箍筋总根数=90根WL7(1) 钢筋计算WL7(1) 150×350 6@200(2),212; 218砼C30 ,纵筋HRB400级、四级抗震查11G101-1 P53 La=35d,查11G101-1 P54 C=20mm(一)通筋计算212判断是否直锚La=35*12=420mmb b-c-d b-D b=240-20-6-20=194mm La> b b-c-d b-D (只能弯锚) •钢筋长度=梁净跨+左支座锚固长度+右支座锚固长度左支座锚固长度=max(0.35La E+15d, b b-c-d b-D +15d)=(0.35*420+15*12,240-20-6-20+15*12)= max(327,374)=374mm右支座锚固长度= max(0.35La E+15d, b b-c-d b-D +15d)= max (0.35*420+15*12,240-20-6-12+15*12)= max(327,382)=382mm钢筋长度L=3600-120*2+374+382=4116mm 根数N=2根(二)底筋计算2181、判别: 12d=12*18=216mm>b b-c-d b-D b=240-20-6-20=194mm,弯锚查11G101-1 P55 六种做法任选一种,直线段可减少5d(按2010版混凝土规范确定),选第一种做法最小锚固长度=12d-5d+15d=22d=22*18=396mm选第二种做法最小锚固长度=12d-5d+8.6d=15.6d=15.6*18=281mm或按下式计算第一种锚固长度=max(b b-c-d b-D b+15d,22d)第二种锚固长度=max(b b-c-d b-D b+15d,8.6d)钢筋长度L=梁净跨+左支座锚固长度+右支座锚固长度左支座锚固长度=15*18+240-20-6-20=464mm右支座锚固长度=左支座锚固长度钢筋长度L=3600-120*2+464*2=4288mm 根数N=2根(三)箍筋计算a、箍筋长度=(B+H-4c)*2—4d+3.6d*2+5d*2=(150+350—4×20)*2—4*6+3.6*6*2+5*6*2=919.5mmb、箍筋根数=(梁净跨-2*50)/箍筋间距+1= ( 3600-240-100)/200+1=18根箍筋总长度=919.5*18=16551 mm=16.51mWL6(2) 钢筋计算WL6(2) 240*550 6@200(2), (212)砼C30 ,纵筋HRB400级、四级抗震查11G101-1 P53 La=35d,查11G101-1 P54 C=20mm(一)支座负筋计算边支座214, 中间支座214 判断是否直锚La E=35*14=490mmb b-c-d b-D b =192mm La> b b-c-d b-D b (只能弯锚)1、左、右支座负筋214根数N=2*2=4根钢筋长度=(3600-240)/5+max(0.35la+15d, b b-c-d b-D b +15d)=672+402=1074mm2、中间支座负筋214钢筋长度=max(Ln1/3,Ln2/3)*2+支座宽= (3600-240/3)*2+240=2480 根数N=2根(二)架立筋计算212第一跨钢筋长度L=梁净长-边支座钢筋伸入跨中长度-中间支座钢筋伸入跨中长度+搭接长度*2钢筋长度L=3600-240-(3600-240)/5- (3600-240)/3+150*2=3360-672-1120+300=1868mm 根数N=2根第二跨钢筋长度同上L=1868mm 根数N=2根(三)底筋计算218,216a、第一跨钢筋长度 218判别: 12d> bb-c-db-Db,弯锚钢筋长度L=梁净跨+左支座锚固长度+右支座锚固长度左支座锚固长度=15*18+240-20-8-20=462mm右支座锚固长度=12*18=216mm钢筋长度L=3600-120*2+462+216=4038mm 根数N=2根b、第二跨钢筋长度216判别:12d=192<bb-c-db-Db=240-20-6-12=202,直锚钢筋长度L=梁净跨+左支座锚固长度+右支座锚固长度左支座锚固长度=12*16=192mm右座锚固长度=192mm钢筋长度L=3600-120*2+192*2=3744mm 根数N=2根(四)箍筋计算a、箍筋长度=(B+H-4c)*2—4d+3.6d*2+5d*2=(240+550—4×20)*2—4*6+3.6*6*2+5*6*2=1499.2mmb、箍筋根数=(净跨长-2*50)/箍筋间距+1=[(3360-100)/200+1]*2=36根WL2(2A) 钢筋计算WL2(1A) 240*550 6@150/200(2), (212) 砼C30 ,纵筋HRB400级、四级抗震查11G101-1 P53 La=35d,查11G101-1 P54 C=20mm(一)支座负筋计算322, 216a、B轴线支座负筋长度判断是否直锚La=35*16=560mmb b-c-d b-D b =192mm La E> b b-c-d b-D b (只能弯锚)负筋长度L=梁净长/5+ max(0.35La E+15d, b b-c-d b-D b +15d)钢筋长度L =(7200-120-120)/5+max(0.35La E+15d, b b-c-d b-D b +15d)=(7200-120-120)/5+max(0.35*560+15*16,192+15*16)=1828mmb、悬挑端纵筋与A轴线支座负筋连通322钢筋长度L= max(梁右跨净长/3,悬挑端净长/3) +梁支座宽+悬挑端净长-C+12d 钢筋长度L=max{(7200-120-120)/3,(1500-120)/3}+240+(1500- 120+120-20)+12*22=4304mm 根数N=3根(二)内跨架立筋计算212钢筋长度=梁净长-边支座钢筋伸入跨中长度-悬挑端钢筋伸入跨中长度+搭接长度*2=7200-240-(7200-240)/5-(7200-240)/3+150*2=3548mm 根数N=2根(三)底筋计算A、跨中底筋 325判别: 12d=12*25=300mm>b b-c-d b-D b,弯锚钢筋长度L=梁净跨+左支座锚固长度+右支座锚固长度A轴线支座钢筋锚固长度= b b-c-d b-D b +15d=567mmB轴线支座钢筋锚固长度= b b-c-d b-D b +15d=563mm钢筋长度L=7200-240+567+563=8090mm根数N=3根B、悬挑跨下部钢筋长度212钢筋长度L=悬挑端净长-C+15d钢筋长度L=1500-120+120-20+15*12=1660mm 根数N=2根(四)箍筋计算a、A~B轴线间(内跨)箍筋长度L=(B+H-4c)*2—4d+3.6d*2+5d*2=(240+550—4×20)*2—4*6+3.6*6*2+5*6*2 =1499.2mm 箍筋根数=(梁净跨长-2*50)/箍筋间距+1=(7200-240-100)/200+1=36根附加箍筋2*3=6根总根数=36+2*3=42根b、悬挑跨箍筋长度L=(B+H-4c)*2-4d+3.6d*2+5d*2=(240+550—4*20)*2-4*8+3.6*8*2+5*8*2 =1525.6mm箍筋根数=(净跨长-50-c)/箍筋间距+1=(1500-120+120-50-20)/200+1=9根总根数=42+9=51根。