工程款结算流程图
- 格式:doc
- 大小:17.50 KB
- 文档页数:1
工程款支付管理流程一、目的为规工程款支付流程,明确各相关方在工程付款各环节审核(批)的责任,确保工程款的正确支付,杜绝错付、超付,确保工程质量和进度,控制工程成本。
二、适用围适用于工程预付款、进度款、结算款、设备款、保修金、工程尾款的支付。
三、工程预付款、进度款和结算款支付流程(一)工程预付款支付流程1、施工单位提交预付款《工程款支付申请表》给基建预算人员,施工单位项目经理要签字确认;2、预算办根据合同约定的预付比例审核预付款,签署预付款《工程款支付申请表》然后交给财务部;3、财务部再次复核后,交给总经理和董事长审批,然后将审核审批通过的《工程款支付申请表》交给出纳安排付款。
(二)工程进度款支付流程:1、施工单位先向工程部提交进度款《工程款支付申请表》,要求附上已完工程的预算书,一式叁份(工程部、预算部、财务部各一份),施工单位项目经理要签字。
2、工程部审核当月完成的部位及项目及相关工程量,审核完毕由工程部经理签字后交到预算员(审核专员)。
3、预算员(审核专员)审核已完成工程量,并审核工程预算价,确定当月完成工程造价,根据合同约定,审批工程款,然后预算员(审核专员)签字确认。
(注:预算人员要求提供电子版预算书时,施工单位要积极配合。
)4、预算员(审核专员)将进度款《工程款支付申请表》上交财务部审核。
5、财务部审核无误后,将进度款《工程款支付申请表》交由总经理和董事长审批。
6、施工单位根据审核审批通过的进度款《工程款支付申请表》中的金额开具当地建安发票,发票需按进度款《工程款支付申请表》中的工程项目分别填开。
7、施工单位将审核审批通过的进度款《工程款支付申请表》以及相同金额的建安发票上交到财务部,财务部再次复核《工程款支付申请表》的金额是否与发票金额一致,以及核对发票的各项容后,交到出纳处办理该款项的转付。
8、其他注意事项:施工单位要提供开户信息并加盖公章,开户信息容有:单位名称、合同编号、开户名称、行号、账号、开户行。
工程预算工作流程图附件一:工程预算资料交接表工程预算资料交接表项目名称:编号:备注:上述资料均需提供原件,具体资料名称根据实际资料名称可做修改,具体资料要求详见管理办法第十四条。
填表说明:1、本表由工程等相关部门在提供资料阶段填写,随表提供预算所需各类资料。
2、委外预算编审时,资料的交接也使用本表。
附件二:主要材料、设备或分部分项工程清单主要材料、设备或分部分项工程清单填表说明:1、此表由工程等负责材料采购的部门提出该工程所需的主要材料、设备(或分部分项工程)需求,具体包括材料、设备品种、规格、品牌、市场价格(或分部分项工程市场价格),由预结算管理部门(人员)对清单内容进行预算估价后,构成附件一工程预算资料交接表的附表2、分部分项工程指土方、桩基础等分部分项工程。
附件三:预算编制说明预算编制说明预算编制说明应包括的内容如下:一、建设单位、工程名称二、本预算包含详细范围及界面:三、本预算未包含详细范围:四、预算编制的分项要求:按《XX集团房地产开发标准成本项目分类表》执行五、图纸依据:本预算书根据的施工图号图进行工程量计算。
六、计价办法:七、套用定额:八、取费标准:九、人工工资标准:十、主材及价格:十一、暂定项目的具体做法:十二、甲方限价材料及设备的价格表:十三、按独立费计入的项目:十四、其它事项(如施工组织设计、图纸有关事项说明):编制部门(人员)(签章):编制时间:年月日填表说明:1、上述内容根据预算的具体情况编写,可以根据实际情况补充应说明的内容。
2、本说明构成附件一工程预算资料交接表的附表附件四:工程预算承诺书工程预算承诺书公司:为规范工程造价管理,提高预算工作效率,控制工程预算误差比例,我公司对承包贵公司的所出具的预算承诺如下:我公司承诺本工程预算按照《长沙房产(集团)有限公司预结算管理暂行办法》执行,对该工程项目所编制的预算误差不超过预算审定金额的15%:1、如果15%<(送审金额—预算审定金额)/预算审定金额≤20%时,我公司同意承担审减金额超过预算金额15%以上部分产生的审计费用;2、如果(送审金额—预算审定金额)/预算审定金额>20%时,我公司同意承担全部审计费用。
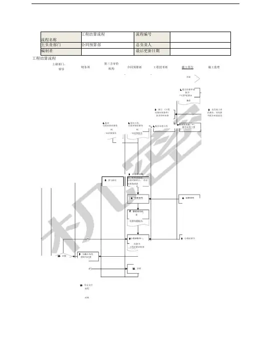
流程名称工程结算流程流程编号主负责部门合同预算部总负责人编制者最后更新日期工程结算流程上级部门、领导财务部第三方审价机构合同预算部工程技术部施工单位1.提交结算申请报告^工程^款算审4•核对工程量, •—配合审查工作施工监理2、出具竣工评估报告,对结算书提出审阅意见告,针对差异进5、参与核对行核对和纠正,给出结算基础意7、整理谈判结果结算问题报告&办理结算书结算书工程结算审核表9、与施工万办理财务结算11、存档12、资金支付流程结束4.核对工程.全面审核结算资料开始吗_ 4.配合审查工作一审结算报告一审结算报告6、结算谈判6、结算谈判8、办理结算书10、审批3、填写《工程结算审核条件》表及资料审查条件4.核对全面审核结算资料汇总两方报5、见工程结算流程图说明附件:1.施工单位工程结算编制内容示例2.工程结算的审查要点3.文件移交清单4.工程款结算审核条件5.工程结算审核表6.XX年XX月至XX年XX月水电使用费一览表附件1:施工单位工程结算编制内容示例一、本工程结算编制依据:1、《结算专题会议纪要》;2、投标文件;3、《建安工程施工承发包合同》第xx条:合同价款及调整方式的规定;4、《装饰工程施工委托函》及《关于装饰工程报价申请的批复》。
5、其它有关文件。
二、本工程结算造价分以下两部分进行编制:1、工程量清单项目结算造价2:新增,设计变更及现场签证项目结算造价第一部分:工程量清单项目结算造价一、工程量清单内项目结算计价方法:(一)、原工程量清单内项目各分部分项工程基本按投标文件进行编制,各分部工程调整情况如下:土建及装饰工程:1、按投标文件工程量和综合单价或甲方审核单价进行结算,其中调整的项目有:(1)扣除由其他分包单位施工项目的工程造价:①、扣除铝合金门窗施工单位施工项目投标造价(采光天棚、夹板装饰门、金属平开门、金属推拉门、金属推拉窗),但增加了铝合金门窗的安装费;②、扣除栏杆施工单位施工项目投标造价(金属扶手带栏杆、栏板)。
房地产工程款支付流程及流程图作者:--------------- 日期:简易流程图房产公司工程款支付流程图担当依据或标准工作内容施工方项目负责人施工合同和工程进度1 、到工程部领取《工程进度款支付申请表》。
2 、根据工程进度,结合合同约定,认真填写《工程进度款支付申请表》。
3 、经项目负责人复核签字,并加盖供方授权项目章。
4 、待权限人审批后,按应付金额足额开具发票。
5 、上传监理公司监理方项目负责人监理合同、监理法规、施工合同1 、对照《工程进度款支付申请表》及附件,审核核工程进度。
2 、依据监理合同和监理法规,评定该段工程质量。
3 、审核施工单位文明施工和民工工资支付情况。
4 、就进度、质量、文明施工、民工工资支付情况签署付款意见。
5 、上传现场工程师现场工程师施工合同和工程进度1、复核工程进度,核定付款金额计算式。
检查文明施工情况,收取阶段性工程资料和民工工资签收表,签署付款意见。
2 、如要报总经理签字的,还须经工程部长签署付款意见。
3 、上传预算室预算员施工合同和付款附件1、复核进度是否达到付款条件,复核付款金额计算式是否正确。
2 、负责扣减代垫费用、代购材料款。
签署实付金额。
3 、上传权限人审批。
权限人授权文件授权文件规定工程部经理签批的由工程部经理审批。
规定子公司总经理签批的由总经理审批。
超过授权范围的由集团总裁审批,子公司总经理需加签相关意见。
银行出纳 1 、由财务主管审核《工程进度款支付申请表》手续是否齐备、计算是否正确。
2 、银行出纳依据财务审核意见办理付,并将付款信息返回工程部门。
附送表单1 、工程款计算书2 、该段质量检查资料3 、上次付款民工工资签收表。
财务审核付款付款审核审批工作程序1 、目的:杜绝错付、超付,以确保工程进度、控制成本。
确保第一时间正确解决问题。
2 、范围:2.1 工程款的审核审批(预付款、进度款、结算款)。
2.2 设备款的审核审批。
2.3 零星工程款的审核审批。
第十三章收入、成本及费用管理50 工程结算管理业务流程一、业务目标1、规企业竣工结算管理工作,提升结算水平,提高结算效率和效益,加快结算进度,缩短结算周期,确保竣工结算的准确性与完整性,为企业创造更多的经济效益。
2、通过工程结算工作,真实准确的反映出企业获利能力的高低、工程项目经济效益的好坏、部管理的优劣以及存在的问题与不足,从而总结经验、汲取教训,以便及时兑现经营成果,进一步改进管理措施、提高管理水平,促进企业健康和谐发展。
3、确保工程竣工结算符合国家法律、法规和公司部规章制度的要求。
二、业务风险1、结算编制、审批流程不完善,工程结算质量无法得到保证,将直接影响到工程效益。
2、工程结算工作完成不及时,经营成果无法得到及时体现,将直接影响到工程款的回收和资金周转,直接关系到公司正常的生产经营和健康发展。
3、竣工结算不符合国家法律、法规和公司部规章制度的要求,影响企业信誉,造成经济损失。
三、业务围该流程主要描述了集团公司关于工程结算管理的相关业务流程,要包括:施工过程的结算准备、工程结算书的编制、对比分析与审批、报送、定案和备案等。
在工程结算管理过程中,应确保责任明确、管理到位。
四、业务流程描述1、施工过程的结算准备工作1.1项目部主管技术员负责、统计员协助做好工程现场签证、设计变更、索赔等工作,并做到能从繁多的业资料中及时发现、搜集、整理、提炼、汇总有利于增加工程造价的容,为竣工结算做好铺垫。
1.2项目部统计员负责变更签证、索赔资料的编号、存档工作,并在工程竣工后及时报送子(分)公司结算管理部门。
1.3项目部统计员应做好开工预算、进度预算以及盘点预算的编制工作,为工程结算打好基础。
1.4子(分)公司结算管理部门应加大对项目部变更签证资料和工程预算的检查、指导力度,确保变更签证和预算编制符合国家法律法规和现行工程造价管理规定以及施工合同的要求,确保促进企业经济效益。
2、工程结算书的编制工程竣工验收或移交建设单位使用后,在法律、法规和合同规定的时间,子(分)公司结算管理部门应及时收集工程招投标文件、施工合同、施工图纸签证变更、现场索赔等资料(详见附表),并及时安排相关人员(项目部统计员、预算员或子(分)公司预算员)编制准确完整的《工程竣工结算书》。
房产公司工程款支付流程图
付款审核审批工作程序
1、目旳:杜绝错付、超付,以保证工程进度、控制成本。
保证第一时间对旳解决问题。
2、范畴:
2.1工程款旳审核审批(预付款、进度款、结算款)。
2.2设备款旳审核审批。
2.3零星工程款旳审核审批。
3、职责:严格执行合同条款、公司旳规定和管理程序,仔细审核已付款状况,即时做好台帐,加强各流转部门信息传递,合理安排付款时间,保障工程进度。
4、程序:
4.1审核主管工程师上报旳“付款申请单”以及所附资料,若发现资料不符合《工程付款手续管理程序》即退回并阐明所缺资料、内容。
4.2审核
4.2.1按照合同条款,仔细审核每项付款。
4.2.2进一步工地现场,理解工程进展,在付款时做到心中有数。
4.2.3与项目主管工程师保持良好沟通。
4.2.4及时做好台帐,严格核对“已付款”,杜绝超付。
4.2.5加快各部门审批程序,做好解释工作,对财务部提出多种工程进展问题,做到有问必答。
4.2.6合理安排如每笔付款,做到急事急办,绝不迟延时间,影响工期。