地下排桩+预应力锚索基坑支护施工图(新规范)
- 格式:doc
- 大小:758.00 KB
- 文档页数:8
XXX项目基坑支护工程施工组织设计XXXX二O一四年七月目录1。
前言 (3)1.1 工程概况 (3)1。
2 工程内容 (3)1.3 编制依据及原则 (3)1.4 设计概况 (4)2。
施工组织机构配备 (6)2。
1 施工队伍组织 (6)2.2 施工组织机构 (7)2。
3 岗位责任制 (7)3。
施工总体安排及主要施工工艺方法 (10)3。
1总体安排 (10)3.2土方施工方案 (10)3。
3土钉墙施工方法 (13)3.4旋挖灌注桩施工 (15)3。
5 混凝土梁换撑施工 (20)3.6桩侧挂网喷砼施工 (22)3.7预应力锚索施工 (22)3.8 压密注浆施工 (22)3.9雨季施工措施 (26)3.10降水排水措施 (27)3。
11 基坑变形观测及变形应对措施 (27)4。
质量管理体系和保证措施 (29)4.1 质量目标 (29)4.2 工程质量保证体系 (30)4。
3 工程质量控制流程 (31)4。
4 工程质量保证措施 (31)4。
5 施工过程中质量检验 (32)5。
安全管理体系与措施 (34)5.1 安全生产管理目标 (34)5。
2 安全生产管理体系 (34)5.3 安全生产措施 (34)5.4 安全用电措施 (36)5.5 土方开挖安全环保管理计划 (37)6。
工程进度计划与措施 (38)6。
1 施工进度目标 (38)6.2工程进度计划 (38)6。
3 工期保证措施 (38)7。
施工平面布置 (40)7。
1 施工现场总平面布置 (40)7。
2 现场排水系统 (40)7.3 施工用水 (40)7.4 施工用电 (41)8。
资源配备计划 (41)8。
1 项目法施工 (41)8。
2 劳动力安排计划 (42)8。
3 施工机械安排及进场计划 (43)9。
施工重点和难点及保证措施 (44)9.1重点、难点分析 (44)9。
2针对重点、难点采取的措施 (44)10。
原始资料的整理及竣工报告编制 (46)附录:附图:施工进度计划横道图1。
预应力锚索+排桩基坑支护技术简介随着城市的高速发展,城市用地越来越紧缺,结合城市建设和改造开发大型地下空间已成为一种必然趋势,诸如高层建筑多层地下室、地下铁道及地下车站、地下道路、地下停车库等,基坑开挖深度也越来越深,因此基坑支护成为深基坑工程的重中之重。
在兰州市安宁区金牛路西侧地下停车场基坑工程中,采用了预应力锚索+排桩支护技术。
本文结合该工程对预应力锚索+排桩基坑支护技术及其工程应用进行了研究,取得的结论如下:(1)通过布设预应力锚索可以有效地减小桩身的内力,锚索在作用过程中,打入锚索的位置附近桩身钢筋的应力减小,但在其他位置桩身钢筋的应力受锚索拉力的影响就比较小了。
(2)排桩的嵌固深度并不是越长越好,嵌固深度过长,并不可以改善它的受力情况。
关键词:深基坑;基坑支护;预应力锚索+排桩支护;工程应用;1.1 选题依据随着经济实力的提升,城市的发展越来越快,与此同时,城市也变得日渐拥挤,在城市里开发地下空间已经是一种必要的选择,比如高层建筑多层地下室、地下停车场、地下商场以及地下仓库等。
目前地下空间的开发规模变得越来越大,例如近些年来上海市地下空间的开发面积越来越大,其中面积达到10~302410m ⨯的项目就有几十个;除了基坑面积日渐变大之外,基坑的开挖深度也变得越来越深,普通的基坑深度都在16~25m 以上,上海地铁四号线董家渡修复基坑的深度更是达到了41m 。
这些大型基坑一般都位于城市的中心地带,基坑的周边往往布设着各种地下管线、各类建筑物、地铁隧道等各种地下构筑物,施工场地紧张、工期紧、施工条件复杂、地质条件复杂、周边设施环境保护要求高。
这些问题给基坑工程的设计和施工带来的的难度非常大,重大恶性基坑事故不断发生,工程建设的安全问题越来越严峻[]1。
基坑的支护结构首先直接承受着基坑施工阶段的侧向土压力以及水压力,然后再把这些压力传递到支撑体系。
在需要隔水的基坑工程中,当周边的支护结构不具备隔水功能时,需要在支护结构的外侧布设隔水帷幕。
预应力锚索及冠(腰)梁施工方案§1编制依据4、《岩土锚杆(索)技术规程》(CECS22:2005)5、《锚杆喷射混凝土支护技术规范》(GB50086-2001)6、《岩土锚固技术手册》7、《锚固工程设计计算与施工》§2工程概况本工程位于主楼地面以上71层,高度约309.4米,地下五层,地下室底板面相对标高-28.00米。
建筑规划总用地面积10635.9m2,建筑基底面积约8261.50m2,地下建筑面积41307m2。
总建筑面积211408m2,拟建工程采用钢-混凝土混合结构体系,基础形式为筏板结构(天然基础)加桩基础结构。
基坑大致成矩形,基坑面积约为9066.24m2,周长约为400米,基坑开挖深度约为29.5米。
本工程场地岩土层按成因类型自上往下可分为人工填土层、冲淤积成因的淤泥质土、粉质粘土和粘土、粉细砂、中粗砾砂和残积成因粉质粘土,基岩为白垩系上统大朗山组泥质粉砂岩,粉砂岩、细砂岩、砂砾岩和砾岩。
本工程基坑围护结构采用排桩(人工挖孔桩)+预应力锚索及在稳定中、微风化岩层的基坑侧壁岩体采用喷锚网支护的形式。
排桩加预应力锚索采用“一桩一锚”,挖孔桩直径为1.2m,间距为1.5m,护壁厚0.15m。
根据设计桩长的不同分为短桩段和长桩段,短桩段为A-C段、F-J段、P-A段和M-O段,长桩段为C-F段、J-L段和L-M段,详见图1所示。
短桩段剖面上设置4排锚索,长桩段剖面上设置5排锚索,见图2所示。
原设计挖孔桩有252根,东北段基坑支护形式变更后取消34根,且173#~183#孔桩段和218#~231#孔桩段为放坡段,目前剩有挖孔桩218根。
锚索数量也相应改变,第一排现有193条,第二排现有199条,第三、四排现有均为206条,第五排现有107条,总共有911条锚索。
锚索钻孔直径为150mm,索体材料采用7A5(d=15.2)钢绞线,其强度标准值为1860MPa;注浆材料采用32.5R普硅纯水泥浆,水灰比0.45,强度不低于M20,为了提早进行张拉,注浆液中掺入水泥重量的0.5%TL-20早强减水剂;外锚头钢垫板尺寸为-200×200×16mm,锚具为JM型。
图文分析六种基坑支护类型简介,一看就懂基坑支护工程是指在基坑开挖时,为了保证坑壁稳定,保护主体地下工程施工时的安全以及周围环境不受损害所采取的工程措施。
一般基坑支护形式的选取主要取决于基坑挖深、场地条件、周边环境(邻近既有建构筑物、市政道路、管线)、场地水文地质条件、项目工期要求等因素,应综合分析合理选取。
一般同等条件下支护形式的造价从低至高依次为:放坡开挖<土钉墙(复合土钉墙)<水泥土重力式挡墙<型钢水泥土搅拌墙(SMW工法)<排桩<地墙。
一、放坡开挖图 1 放坡开挖实景照1、坡率应根据土层性质、挖深确定,挖深大于4m应采用多级放坡,多级放坡应设置平台;土质条件较好的地区,应优先选用天然放坡;软土地区大面积放坡开挖的基坑,边坡表面应设置钢筋网片护坡面层;图2 多级放坡示意(注:开挖面在地下水位之下需要设置降水井)2、若开挖面在地下水位之下,坡顶和平台处应采取井点降水措施,提高坡体稳定性;坡顶设置挡水坎或排水沟,防止坑外积水流入坑内,侵蚀坡体;3、坡脚附近如有局部深坑,坡脚与局部深坑的距离应不小于2倍深坑落深,如不能保证,应按深坑的深度验算边坡稳定。
二、土钉墙(复合土钉墙)若场地条件限制无法满足大放坡开挖的需要,可采用土钉墙支护,减少放坡范围。
图 3 土钉墙实景照1、土钉形式有钢管土钉和钢筋土钉,坡面采用钢筋网片喷射混凝土面层;2、当土钉墙后存在滞水时,应在含水层部位的墙面设置泄水孔或采取其他疏水措施,减小墙背后的水压力,提高土钉墙稳定性;3、当采用预应力锚杆复合土钉墙时,预应力锚杆应采用钢绞线锚杆,且锚杆应布置在土钉墙的较上部位;当用于增强面层抵抗土压力的作用时,锚杆应布置在土压力较大及墙背土层较软弱的部位。
三、水泥土重力式挡墙图 4 水泥土重力坝实景照1、重力式挡墙形式:一般选用双轴或三轴水泥土搅拌桩,搅拌桩可按搭接施工,搭接长度控制在150mm~200mm,挡墙顶面宜设置混凝土面板;2、一般土层条件下,搅拌深度小于16m的应优先选用造价更低的双轴,超过16m的应选用三轴,遇到淤泥等软弱土层,水泥掺量适当提高;3、水泥土搅拌桩应按格栅布置,建议格栅布置形式如图所示(以双轴为例)。
可编辑修改精选全文完整版基坑支护、地基加固工程施工说明书及附图基坑支护施工说明一、支护结构形式支护结构采用支护桩+内支撑形式。
支护桩采用拉森Ⅳ型钢板桩,钢板桩顶高出围堰顶标高30cm,围檩均采用I40b及I45b双拼工字钢每两米加一道加劲肋。
角撑采用钢管,钢材选用Q235b,焊条选用E43型。
各构件均采用焊接,除钢板桩与围檩连接采用点焊配合局部满焊,其余构件均采用满焊。
管道沟槽采用对撑,承台采用四角撑。
二、钢支撑施工方案1、管道基坑支护主要采用φ426×12mm钢管支撑支护,由于基坑深度不同,分为单层钢支撑及双层钢支撑,设置在钢板桩上的围檩上。
单层位置为地面向下1.5m处安装一道钢支撑;双层位置为地面向下1m处及基坑底部向上3m处各安装一道钢支撑。
钢支撑示意图承台基坑内只设置角撑,钢围檩采用I45b双拼工字钢制作而成。
由于钢支撑均为角撑,为防止钢围檩由于侧向受力而产生位移,需在钢围檩上焊接抗剪蹬,将钢围檩与拉森钢板桩卡死。
2、钢围檩安装方法及流程钢围檩采用2I45b组合钢围檩。
钢牛腿三角托架采用L75*10角钢加工焊接制作而成。
每节钢围檩设置不少于3个钢牛腿三角托架,间距4m沿钢围檩中心处等距布置,转角等位置根据现场实际情况增设钢牛腿三角托架。
三角托架与拉森钢板桩焊接牢固,然后在其上安装钢围檩,钢围檩与拉森钢板桩之间的缝隙,采用细石混凝土填充密实,保证钢围檩与钢板桩之间贴合密实,能够均匀受力。
牛腿示意图钢腰梁转角示意图钢管支撑与腰梁连接示意图3、钢支撑架设方法及流程钢支撑架设极具时间性和协调性,支撑架设的时间、位置及预加力的大小关系到深基坑稳定的成败。
钢支撑架设随土方开挖一同施工,土方开挖至钢支撑标高下0.5后及时架设钢支撑。
基坑开挖时,钢支撑采用人工配合50T吊车架设及拆除。
由于钢支撑长度较短,所以吊装和拆除钢支撑时,利用1台50T整体起吊钢支撑,将钢支撑从地面吊起后应将两端调整水平后,吊运至架撑处,再向下下放钢支撑到所在位置处,此时可拆除钢丝绳,起吊千斤顶至钢支撑处加力至设计要求,并加塞钢楔子塞紧。
常见基坑支护结构形式,结构图及实景图解说一、概述1、基坑工程:建筑物或构筑物地下部分施工时,需开挖基坑,进行施工降水,同时要对基坑四周的建筑物、构筑物、道路和地下管线进行围护及监测,确保正常、安全施工。
这项涉及勘查、设计、施工、监理、监测、应急等内容的综合系统性工程称为基坑工程。
2、支护结构:基坑工程中采用的围护墙、支撑(或土层锚杆)、围檩、防渗帷幕、降排水等结构体系的总称。
3、深基坑:开挖深度超过5M(含5M)或深度虽未超过5M,但地质条件和周围环境及地下管线极其复杂的工程。
4、基坑安全等级:三个安全等级。
一级基坑:(1)软土地区基坑开挖深度大于8M。
(2)支护结构作为主体结构的一部分。
(3)在基坑开挖影响范围内有重要建(构)筑物或需严加保护的管线。
三级基坑:开挖深度小于5M,且周围环境无特殊要求。
二级基坑:除一级和三级以外的基坑。
二、基坑支护结构形式1、放坡开挖(坡率法):利用土体自身的强度保持边坡不发生坍滑、移动、松散或不均匀下沉,达到边坡稳定。
关键是坡度i = H / L ,一般取1 : 0.5 — 1 : 2.0一般适用于杂填土、粘性土或粉性土,且环境条件允许的基坑。
2、土钉墙:由被加固土体、设置于土中的土钉体和挂钢筋网的喷射砼面板等共同作用形成的补强复合土体。
一般适用于:(1)稍密至中密状态的粉性土、砂土;(2)密实的碎石土层;(3)坚硬状态的含砾粘性土及风化岩层;(4)可塑至硬塑状态的一般粘性土;(5)素填土、人工杂填土;以上土层安全等级为二、三级的基坑。
注意:土钉墙在软粘土中(塘泥、淤泥、淤泥质粘土、淤泥质粉质粘土等)要严格控制,特别是周围环境要求较严的基坑点这 .☞免费下载施工技术资料。
3、复合土钉墙土方开挖前施打水泥搅拌桩、振动灌注桩、钢板桩、木桩等,然后按土钉墙的施工方法进行施工。
排桩复合土钉4、水泥重力式挡墙:水泥搅拌桩(旋喷桩)采用格栅形或连续形布置形成重力坝墙。
有时增加砼桩、钢板桩、毛竹等,以增强挡墙的强度。
防城港国际大酒店基坑支护专项施工方案编制单位:广西大业建设集团有限公司编制人:审核人:批准人:编制日期:2012年月日目录一、工程概况 21.工程简介 2 2.基坑设计说明 3 3.施工工期错误!未定义书签。
二、工程地质条件及周边环境 31.工程地质情况 3 2.水文地质情况 4 3.周边环境 4 三、放坡挂网喷锚支护施工方案 51.结构图示 5 2.施工工艺流程图 5 3.工流程详解 5 4.质量保证措施8四、砼管桩锚拉支护施工方案91、结构图示102、施工工艺流程图103、工序详述104、质量控制措施12五、安全保障措施151.基坑开挖安全15 2.喷锚施工安全153.静压管桩施工过程的安全管理16 4.预应力施工安全17 5.用电安全17 六、雨季施工措施18一、工程概况1.工程简介1、本工程项目名称:防城港国际大酒店建设地点:防城港金花茶大道与金山大道交汇处建设单位:广西富乐华房地产开发有限公司2、本工程总建筑面积为:172924.22㎡,其中地下建筑面积为:46395.46㎡(包括负一、二层3#~4#地块交接处各F4#地块负二层下室),地上建筑面积为:126528.76㎡。
本工程建筑占地面积为:9314.23㎡,其余指标详见总平面图。
3、建筑性质与规模:本工程地下室2层,地上酒店一单元26层,二单元28层,建筑高度(室外地坪至屋面高度):一单元99.5m、二单元99.8m;本项目为:为集餐饮、娱乐、会议、酒店客房及酒店公寓为一体的综合性建筑。
一层为商业、餐饮及酒店大堂、门厅等;二层为餐饮;三层为娱乐场所及用房,四层办公会议场所、多功能厅、康体理疗中心,五层为健身及休闲中心、会所、公寓套间等。
一单元及二十六层为酒店客房部分,共设置479门/套,其中:459个标准间、12套豪华套房、4套行政套房、4套总统套房。
二单五层及二十八层为酒店公寓部分,共设置:664间公寓套间。
4、建筑结构形式为框架-剪力墙结构,设计合理使用年限为50年,抗震列度为6度。
排桩+预应力锚索基坑支护设计说明第二部分:基坑支护设计图纸:详后。
第一部分:基坑支护设计说明目录一、工程概况二、设计依据三、基坑支护设计标准、使用年限、设计荷载、计算软件四、地形及地貌、场地的工程地质及水文地质条件五、基坑支护结构设计原则六、基坑支护结构类型比选七、基坑支护结构设计概要八、主要材料九、基坑支护结构施工组织方案十、主要施工步骤十一、主要施工技术要求十二、基坑监测十三、基坑支护应急措施十四、基坑施工质量检验及验收十五、主要工程量十六、其它需要说明的事项第一部分:基坑支护设计说明一、工程概况1.工程名称:2.建设单位:3.工程地点:4.设计单位:5.勘察单位:6.施工、监理单位:7.用地面积:13838平方米。
8.总建筑面积:约138000m2(地上约102000 m2,地下约36000 m2)。
9.建筑层数:地上45层,地下3层。
10.建筑高度:主屋面标高约195.0m。
地下室底板面相对标高为-16.900m。
11.设计地面标高:暂定±0.000标高相当于绝对标高约为23.950m。
12.自然地面标高:绝对标高约为18.500~23.000m。
13.地下室平面尺寸:87.5m(长)x78.45m(宽)。
14.结构型式:现浇钢筋混凝土结构,框架-核心筒体系。
15.基础型式:机械钻孔嵌岩灌注桩,地下室边界处最厚基础约1.5m。
二、设计依据本工程初步设计所遵循的主要标准、规范、规程、资料:1.《建筑结构可靠度设计统一标准》(GB 50068-2001)2.《岩土工程勘察规范》(GB 50021-2001,2009年版)3.《高层建筑岩土工程勘察规程》(JGJ 72-2004)4.《建筑地基基础设计规范》(GB 50007-2002)5.《建筑桩基技术规范》(JGJ 94-2008)6.《建筑地基处理技术规范》(JGJ 79-2002)7.《建筑基坑支护技术规程》(JGJ 120-99)8.《建筑边坡工程技术规范》(GB 50330-2002)9.《基坑土钉支护技术规范》(CECS 96:97)10.《锚杆喷射混凝土支护技术规范》(GB 50086-2001)11.《混凝土结构设计规范》(GB 50010-2002)12.《高层建筑混凝土结构技术规程》(JGJ 3-2002)13.《高层建筑筏形与箱形基础技术规范》(JGJ 6-2011)14.《工程测量规范》(GB 50026-2007)15.《建筑工程设计文件编制深度规定》(2008年版)16.《工程建设标准强制性条文》(房屋建筑部分,2009年版)17.《XX中心大楼岩土工程勘察报告》(详细勘察)18.《市XX中心试桩质量检测报告》19.业主提供的由有关部门审批通过的实施本设计所需的批准文件。
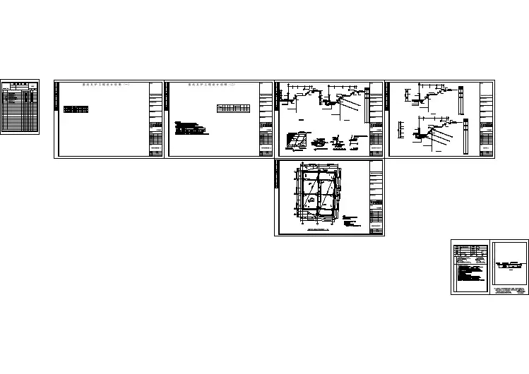
地下排桩+预应力锚索基坑支护施工图〔新规范采用新规范设计,经典的案例,图面整洁,有双排桩、坡道、旋喷桩帷幕、土钉等设计详图及降水、监测等,非常值得参考。
资料目录•设计说明〔4张•基坑周围环境图•护坡灌注桩平面布置图•冠梁平面布置图•预应力锚索平面布置示意图•高压旋喷桩及搅拌桩平面布置图•基坑降水管井平面布置图•基坑变形监测点平面布置示意图•坡道支护立面图•1-1剖面及护坡桩配筋图•1′-1′剖面及护坡桩配筋图•2-2剖面及护坡桩配筋图•3-3剖面及护坡桩配筋图•4-4剖面及护坡桩配筋图•5-5立面、剖面图•构造详图<3张>内容简介基坑开挖深度:15.45米侧壁安全等级:一级地下水位:8.5米相关规范:《建筑基坑支护技术规程》JGJ120-2012《建筑地基基础设计规范》GB50007-2011基坑支护:上部土钉墙,下部排桩+850型搅拌桩帷幕+锚索[土钉墙]孔径110mm,倾角15度,深度应大于设计长度100mm。
钢筋网采用∅6.5圆钢,间距250mmX250mm,搭接长度不小于300mm。
土钉钢筋采用ƒ20、…22钢筋制做,注浆采用PO42.5水泥。
加强筋采用ƒ14钢筋[护坡灌注桩和冠梁]均采用C30混凝土,桩径∅800mm/∅1000mm1500mm[预应力锚索和腰梁]锚索直径150mm,间距同灌注桩,采用15.24mm,1860级有粘结钢铰线。
浆液为PO42.5级纯水泥浆,水灰比为0.45-0.50,每米水泥用量75Kg;一次注浆压力1MPa进行注浆,二次注浆为劈裂注浆,开口压力应在3.0MPa。
腰梁采用2根25b槽钢;楔形垫板为250X250钢板,厚15mm;锚具、夹具OVM15[高压旋喷桩和搅拌桩帷幕]高压旋喷桩水泥采用Po42.5级水泥,水泥掺入量为每米180Kg,水泥浆液的水灰比采用1:1。
轴搅拌桩水泥采用Po42.5级水泥,水灰比0.45~0.55、水泥掺入量为20%。
地下排桩+预应力锚索基坑支护施工图(新规范)
采用新规范设计,经典的案例,图面整洁,有双排桩、坡道、旋喷桩帷幕、土钉等设计详图及降水、监测等,非常值得参考。
资料目录
•设计说明(4张)
•基坑周围环境图
•护坡灌注桩平面布置图
•冠梁平面布置图
•预应力锚索平面布置示意图
•高压旋喷桩及搅拌桩平面布置图
•基坑降水管井平面布置图
•基坑变形监测点平面布置示意图
•坡道支护立面图
•1-1剖面及护坡桩配筋图
•1′-1′剖面及护坡桩配筋图
•2-2剖面及护坡桩配筋图
•3-3剖面及护坡桩配筋图
•4-4剖面及护坡桩配筋图
•5-5立面、剖面图
•构造详图(3张)
内容简介
基坑开挖深度:15.45米
侧壁安全等级:一级
地下水位:8.5米
相关规范:《建筑基坑支护技术规程》JGJ120-2012
《建筑地基基础设计规范》GB50007-2011
基坑支护:上部土钉墙,下部排桩+850型搅拌桩帷幕+锚索
【土钉墙】孔径110mm,倾角15度,深度应大于设计长度100mm。
钢筋网采用∅6.5圆钢,间距250mmX250mm,搭接长度不小于
300mm。
土钉钢筋采用ƒ20、…22钢筋制做,注浆采用PO42.5水泥。
加强筋采用ƒ14钢筋
【护坡灌注桩和冠梁】均采用C30混凝土,桩径∅800mm/∅1000mm@1500mm
【预应力锚索和腰梁】锚索直径150mm,间距同灌注桩,采用15.24mm,1860级有粘结钢铰线。
浆液为PO42.5级纯水泥浆,水灰比为0.45-0.50,每米水泥用量75Kg;一次注浆压力1MPa进行注浆,二次注浆为劈裂注浆,开口压力应在3.0MPa。
腰梁采用2根25b槽钢;楔形垫板为250X250钢板,厚15mm;锚具、夹具OVM15
【高压旋喷桩和搅拌桩帷幕】高压旋喷桩水泥采用Po42.5级水泥,水泥掺入量为每米180Kg,水泥浆液的水灰比采用1:1。
轴搅拌桩水泥采用Po42.5级水泥,水灰比0.45~0.55、水泥掺入量为20%。
【基坑降水】管井降水,管井间距约18~23米
采用新规范编制,编制与2013年9月。
排桩+止水帷幕剖面
坡道支护立面图
管井降水大样图
预应力锚索平面布置示意图
高压旋喷桩及搅拌桩止水帷幕平面布置图
预应力锚索大样图。