建设单位(业主方)工程项目管理流程图(最新整理)
- 格式:docx
- 大小:77.38 KB
- 文档页数:25
精品文档V图1-1项目管理工作总体流程(一)建设单位(业主方)工程项目管理工作流程图项目管理工作总体流程(一)工程指挥部建设部工程部物资公司设计单位项 目 \立 项 与 可 研 设 计 与 招 标 制定物资 采购计划物资采购否初步设计1 F施工图设 计及预算1图1-2 项目管理工作总体流程(二)图1-3 施工协调管理流程图1-4 工程建设月报上报流程图1-5 档案信息管理流程安全监察部监督检查工程安全管理体的建立和运行项目安全管理工作总体流程(工程指挥部参建单位建设部工程部项目刖期及施工11建立安全1 *1‘管理网络1111111建立安全管理1制度和安全管111理台账1111f11督促、检查参11建单位编制安全管理制度、111台账及危险点111 [预控措施监理项目部1 r施工项目部编制安全监理工作方案,建立安全管理台账修改完善达到安全文明施工开工条件 ,条件-- +:编制安全文明施工实施细则方案及危险点预控措施,建立安全管理台账r施工项目部监理项目部开工前,落实审核安措费使安全文明措用情况,对现施,落实安全 4 场安全文明施会议精神和风工条件及措施险、应急、分落实情况进行包等管理措施把关整改完善图2-1 项目安全管理工作总体流程(一)项目安全管理工作总体流程(二)项冃施工及竣工阶段图2-2 项目安全管理工作总体流程(二)图3-1 项目质量管理工作总体流程(一)图3-2 项目质量管理工作总体流程(二)图3-3 施工质量控制管理流程领导小组项目造价管理工作总体流程(一) 工程指挥部建设部工程部监理单位参建单位刖 期 阶 段初 步 设 计 阶 段V施 工 图 设 计阶 段 ■■开始组织可研 估算工作 组织初步设计评审批复初步 设计组织施工图 及预算会审批复施工 图预算 参与施工图 及预算评审编制底标,组织 施工单位招标审核工程 变更审查工程 变更预算设计单位编制 初步设计概算设计单位配合 初步设计评审设计单位编制 施工图预算施工单位提 出工程变更1 f否施 工 阶 审核申请段 是施工单位申 请其他付款 审批重大设 计变更预算施工单位申 请支付工程进度款 施工单位申 请支付工程 预付款 重大设 计变更审查批准支付工程变更费用图4-1 项目造价管理工作总体流程(一)领导小组项目造价管理工作总体流程(二)工程指挥部建设部工程部监理单位参建单位竣工验收阶段签署审查意见图4-2 项目造价管理工作总体流程(二)图4-3工程进度款管理工作流程图4-4 工程变更管理工作流程图4-5成本控制管理工作流程图5-1 项目进度管理工作总体流程图5-2 项目设备、材料供应计划管理流程图5-3 材料进货检验(设备开箱)流程图6-1 项目技术管理工作总体流程。
工程项目管理工作流程图
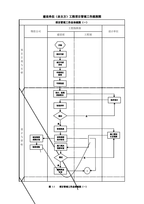
图1-1 项目管理工作总体流程(一)
图1-2 项目管理工作总体流程(二)
图1-3 施工协调管理流程
图1-4 工程建设月报上报流程
图1-5 档案信息管理流程
图2-1 项目安全管理工作总体流程(一)
图2-2 项目安全管理工作总体流程(二)
图3-1项目质量管理工作总体流程(一)
图3-2 项目质量管理工作总体流程(二)
图3-3
图4-1项目造价管理工作总体流程(一)
图4-2项目造价管理工作总体流程(二)
图4-3 工程进度款管理工作流程
图4-4 工程变更管理工作流程
图4-5 成本控制管理工作流程
图5-1 项目进度管理工作总体流程
图5-2 项目设备、材料供应计划管理流程
图5-3 材料进货检验(设备开箱)流程
图6-1 项目技术管理工作总体流程。
建设单位(业主方)工程项目管理工作流程图
图1-4 工程建设月报上报流程
图1-5 档案信息管理流程
图3-1项目质量管理工作总体流程(一)
图3-2 项目质量管理工作总体流程(二)
图3-3 施工质量控制管理流程
图4-1项目造价管理工作总体流程(一)
图4-2项目造价管理工作总体流程(二)
图4-3 工程进度款管理工作流程
图4-4 工程变更管理工作流程
图4-5 成本控制管理工作流程
图5-1 项目进度管理工作总体流程
图5-2 项目设备、材料供应计划管理流程
图5-3 材料进货检验(设备开箱)流程
[文档可能无法思考全面,请浏览后下载,另外祝您生活愉快,工作顺利,万事如意!]
21 / 21。
建设单位(业主方)工程项目管理工作流程图
图 1-1 项目管理工作总体流程(一)
图1-2 项目管理工作总体流程(二)
图1-3 施工协调管理流程
图1-4 工程建设月报上报流程
图1-5 档案信息管理流程
图 2-1 项目安全管理工作总体流程(一)
图2-2 项目安全管理工作总体流程(二)
图3-1项目质量管理工作总体流程(一)
图3-2 项目质量管理工作总体流程(二)
图3-3 施工质量控制管理流程
图4-3 工程进度款管理工作流程
图4-4 工程变更管理工作流程
图4-5 成本控制管理工作流程
图5-1 项目进度管理工作总体流程
图5-2 项目设备、材料供应计划管理流程
图5-3 材料进货检验(设备开箱)流程。
建设单位(业主方)工程项目管理工作流程图项目管理工作总体流程(一)工程指挥部建设部工程部图1-1 项目管理工作总体流程(一)物资公司设计单位项目\立项与可研可研批复设计与招标制定物资采购计划设计、监理招标配合物资采购施工图及预算审查通过是编制资金计划否初步设计施工图设计及预算图1-2 项目管理工作总体流程图1-3 施工协调管理流程图1-4 工程建设月报上报流程图1-5 档案信息管理流程安全监察部监督检查工程安全管理体的建立和运行项目安全管理工作总体流程(工程指挥部参建单位建设部工程部项目刖期及施工11建立安全1 *1‘管理网络1111111建立安全管理1制度和安全管111理台账1111f11督促、检查参11建单位编制安全管理制度、111台账及危险点111 [预控措施监理项目部1 r施工项目部编制安全监理工作方案,建立安全管理台账修改完善达到安全文明施工开工条件 ,条件-- +:编制安全文明施工实施细则方案及危险点预控措施,建立安全管理台账r施工项目部监理项目部开工前,落实审核安措费使安全文明措用情况,对现施,落实安全 4 场安全文明施会议精神和风工条件及措施险、应急、分落实情况进行包等管理措施把关整改完善安全监察部全过程安全管理监督检查指导组织开展各类安全检查项目安全管理工作总体流程(二)工程指挥部建设部工程部检查指导项目安全管理参建单位项冃施工及竣工阶段落实季度及专项安全大检查总结并制定安全管理改进计戈y监督改进落实*-情况并提出预防措施定期召开安全会议组织开展安全管理活动监督指导项目问题整改组织实施全过程安全管理定期开展危险点预控管理分包管理评价,总结上报■ 组织月度和随机安全检查持续动态改进保持良好按文明施工环境图3-2 项目质量管理工作总体流程(二)领导小组工程指挥部建设部工程部监理单位参建单位刖期阶段初步设计阶段V 施工图设计阶段■■开始组织可研估算工作组织初步设计评审批复初步设计组织施工图及预算会审批复施工图预算参与施工图及预算评审编制底标,组织施工单位招标设计单位编制初步设计概算设计单位配合初步设计评审设计单位编制施工图预算审查批准支付审批重大设计变更预算施工单位提出工程变更图4-1 项目造价管理工作总体流程(一)V领导小组工程指挥部建设部工程部监理单位参建单位竣工验收阶段签署审查意见图4-2 项目造价管理工作总体流程(二)图4-3工程进度款管理工作流程图4-4 工程变更管理工作流程图4-5成本控制管理工作流程图5-1 项目进度管理工作总体流程图5-2 项目设备、材料供应计划管理流程图5-3 材料进货检验(设备开箱)流程图6-1 项目技术管理工作总体流程。
- - - 建立单位〔业主方〕工程工程管理工作流程图
-
-图1-1 工程管理工作总体流程〔一〕
图1-2 工程管理工作总体流程〔二〕
图1-3 施工协调管理流程
图1-4 工程建立月报上报流程
图1-5 档案信息管理流程
图3-2 工程质量管理工作总体流程〔二〕
图3-3 施工质量控制管理流程
图4-1工程造价管理工作总体流程〔一〕
图4-2工程造价管理工作总体流程〔二〕
图4-3 工程进度款管理工作流程
图4-4 工程变更管理工作流程
图4-5 本钱控制管理工作流程
图5-1 工程进度管理工作总体流程
图5-2 工程设备、材料供给方案管理流程
图5-3 材料进货检验〔设备开箱〕流程
-
-
图6-1 工程技术管理工作总体流程
- word.zl-。
建设单位(业主方)工程项目管理工作流程图图1-3 施工协调管理流程图1-4 工程建设月报上报流程图1-5 档案信息管理流程图4-3 工程进度款管理工作流程图4-4 工程变更管理工作流程图4-5 成本控制管理工作流程图5-2 项目设备、材料供应计划管理流程图5-3 材料进货检验(设备开箱)流程图6-1 项目技术管理工作总体流程图6-1 项目技术管理工作总体流程图6-1 项目技术管理工作总体流程图6-1 项目技术管理工作总体流程图6-1 项目技术管理工作总体流程图6-1 项目技术管理工作总体流程图6-1 项目技术管理工作总体流程图6-1 项目技术管理工作总体流程图6-1 项目技术管理工作总体流程图6-1 项目技术管理工作总体流程图6-1 项目技术管理工作总体流程图6-1 项目技术管理工作总体流程图6-1 项目技术管理工作总体流程图6-1 项目技术管理工作总体流程图6-1 项目技术管理工作总体流程图6-1 项目技术管理工作总体流程图6-1 项目技术管理工作总体流程图6-1 项目技术管理工作总体流程图6-1 项目技术管理工作总体流程图6-1 项目技术管理工作总体流程图6-1 项目技术管理工作总体流程图6-1 项目技术管理工作总体流程图6-1 项目技术管理工作总体流程图6-1 项目技术管理工作总体流程图6-1 项目技术管理工作总体流程图6-1 项目技术管理工作总体流程图6-1 项目技术管理工作总体流程图6-1 项目技术管理工作总体流程图6-1 项目技术管理工作总体流程图6-1 项目技术管理工作总体流程图6-1 项目技术管理工作总体流程图6-1 项目技术管理工作总体流程图6-1 项目技术管理工作总体流程图6-1 项目技术管理工作总体流程图6-1 项目技术管理工作总体流程图6-1 项目技术管理工作总体流程图6-1 项目技术管理工作总体流程图6-1 项目技术管理工作总体流程图6-1 项目技术管理工作总体流程图6-1 项目技术管理工作总体流程图6-1 项目技术管理工作总体流程图6-1 项目技术管理工作总体流程图6-1 项目技术管理工作总体流程图6-1 项目技术管理工作总体流程图6-1 项目技术管理工作总体流程图6-1 项目技术管理工作总体流程图6-1 项目技术管理工作总体流程图6-1 项目技术管理工作总体流程图6-1 项目技术管理工作总体流程图6-1 项目技术管理工作总体流程图6-1 项目技术管理工作总体流程图6-1 项目技术管理工作总体流程图6-1 项目技术管理工作总体流程图6-1 项目技术管理工作总体流程图6-1 项目技术管理工作总体流程图6-1 项目技术管理工作总体流程图6-1 项目技术管理工作总体流程图6-1 项目技术管理工作总体流程图6-1 项目技术管理工作总体流程图6-1 项目技术管理工作总体流程图6-1 项目技术管理工作总体流程图6-1 项目技术管理工作总体流程图6-1 项目技术管理工作总体流程图6-1 项目技术管理工作总体流程图6-1 项目技术管理工作总体流程图6-1 项目技术管理工作总体流程图6-1 项目技术管理工作总体流程图6-1 项目技术管理工作总体流程图6-1 项目技术管理工作总体流程图6-1 项目技术管理工作总体流程图6-1 项目技术管理工作总体流程图6-1 项目技术管理工作总体流程图6-1 项目技术管理工作总体流程图6-1 项目技术管理工作总体流程图6-1 项目技术管理工作总体流程图6-1 项目技术管理工作总体流程图6-1 项目技术管理工作总体流程图6-1 项目技术管理工作总体流程图6-1 项目技术管理工作总体流程图6-1 项目技术管理工作总体流程图6-1 项目技术管理工作总体流程图6-1 项目技术管理工作总体流程图6-1 项目技术管理工作总体流程图6-1 项目技术管理工作总体流程图6-1 项目技术管理工作总体流程图6-1 项目技术管理工作总体流程图6-1 项目技术管理工作总体流程图6-1 项目技术管理工作总体流程图6-1 项目技术管理工作总体流程图6-1 项目技术管理工作总体流程图6-1 项目技术管理工作总体流程图6-1 项目技术管理工作总体流程图6-1 项目技术管理工作总体流程图6-1 项目技术管理工作总体流程图6-1 项目技术管理工作总体流程图6-1 项目技术管理工作总体流程图6-1 项目技术管理工作总体流程。
建设单位(业主方)工程项目管理系统流程图工程项目管理工作流程图项目管理工作总体流程(一)工程指挥部物资公司设计单位建设部工程部项目建议书项目项目可研立项项目可研评审与可研申请项目核准可研批复设计、监理招标配合初步设计初设评审通过否是初设批复设计施工图设计及预算与制定物资材料技术协采购计划议招标物资采购施工图及预算审查通过否是编制资金计划A 图1-1 项目管理工作总体流程(一)文档项目管理工作总体流程(二)工程指挥部物资公司监理单位施工单位建设部工程部A初设材料清册与补充物资施工图材料清册采购对比编制并下达工程进度计划落实开工条件建否设满足施是合同管理土建(基础施工)进度管理安全管理安装(杆塔组立)质量管理造价管理调试(架线附件)技术管理档案管理竣工验收否通过竣工是验启动投运收与工程结算评资料移交价工程结算审计竣工决算评价考核资产移交图1-2 项目管理工作总体流程(二)文档施工协调管理流程图工程指挥部监理单位施工单位建设部工程部开始办理开工手续条件满足审批工程开工报审表审核工程开工报审表组织编写工程开工报审表组织工程开工提出相关需要施工单位解决的施工问题是否下达工程暂停令否召开工程例会,解决相关施工出现的问题是负责落实解决影响工程施工的相关事项下达工程暂停令配合协调解决问题确认整改完成后提出复工申请审批复工申请工程竣工后结束参加启动工作图1-3 施工协调管理流程文档工程建设月报上报流程图工程指挥部监理单位施工单位建设部工程部开始编制月报(包括各个汇总物资、施工、监理工程建设情况,报有关部门汇总物资、施工、监理月报,编制《电网建设月报》,每月 5日前报工程指挥部审查施工月报,并编制监理月报,每月27 日前报工程部专业本月工作情况,存在的困难和问题以及相应对策,下月进度计划),每月23日前报监理单位图1-4 工程建设月报上报流程文档档案信息管理流程图工程指挥部监理单位施工单位建设部工程部开始提出档案管理的确认工程档案管理目目标计划及要求标、档案范围及要求收集自身负责的审核相关文档所有相关文档案及影像资料做好纸质文档的收发保管工作,每月整理影像资料按要求对文件资料进行归档工作项目竣工审查工程竣工档案审核工程竣工档案经施工单位审核后上报验竣工资料工程竣工档案移交至公司档案室接受工程竣工档案移交确认工程竣工档案移交工程竣工档案移交结束图1-5 档案信息管理流程文档项目安全管理工作总体流程(一)工程指挥部安全监察部参建单位建设部工程部开始监督检查工程安全管理体的建立和运行建立安全管理网络建立安全管理监理项目部施工项目部制度和安全管理台账编制安全监编制安全文明理工作方施工实施细则案,建立安方案及危险点督促、检查参全管理台账预控措施,建建单位编制安立安全管理台全管理制度、账台账及危险点预控措施项目前期审批参建单位及的安全文明施修改完善工策划施工准否符合备要求阶段是施工项目部监理项目部开工前,召开开工前,落实审核安措费使第一次安全会安全文明措用情况,对现议施,落实安全场安全文明施会议精神和风工条件及措施险、应急、分落实情况进行包等管理措施把关否达到安全文明施工开工条件条件整改完善是A文档实用标准图2-1 项目安全管理工作总体流程(一)项目安全管理工作总体流程(二)工程指挥部安全监察部参建单位建设部工程部检查指导项目安全管理A全过程安全管理监督检查指导组织实施全过程安全管理组织开展各类安全检查监理项目部监督检查项目施工现场定期召开安全安全文明状况,对重要会议组织开展工序、危险点、特殊作安全管理活动业实施旁站,协调交叉作业和工序交接中安全文明施工问题组织月度和随机安全检查项施工项目部目施工落实季度及专项安全大检查每月开展安全教育,开展安全检查活动,落实安全会议决定和安评、及竣工定期开展危险点预控管理分包管理危险点、应急和分包管理制度和措施,实行隐患整改闭环管理,保持安全文明施工环境阶总结并制定安监督改进落实段全管理改进计划情况并提出预防措施评价,总结上报对检查和评价中存监督指导项目在的隐患进行整改问题整改闭环否符合继续整顿要求是持续动态改进分析总结结束保持良好按文评价结果明施工环境总结上报文档实用标准图2-2 项目安全管理工作总体流程(二)项目质量管理工作总体流程(一)工程指挥部物资公司参建单位建设部工程部开始建立质量管理体系及规章制度建立设计质量管理制度设计单位保证供图进度和质量;派驻工地代表;及时答复参建各方提出的设计问题;参加歌唱质量检查歌唱质量事故调查等工作施工单位建立健全施工质量管理体系和制度;制定落实质量保证措施;加强工程加工程质量检查,质量事故调查和实定期随机检查在建工程对项目质量进行全过程处理等工作;完善施工质量档案管理施质量管理阶监理单位段组织中间验收建立健全监理质量控制保证体系,制定见证、旁站、巡视、平行检验等监理工作制度,并确保有效实施;审查施工单位的《施工组织设计》等有关文件;组织检查验收进场设备和材料;严格施工过程质量控制,定期编写过程质量报告;组织或参加过程质量检查,过程质量事故调查和处理;建立健全工程监理质量档案设备供应公司严格执行国家及行业标准、合同规定,提供全套产品质量证明文件,并加强设备采购按合同规定提供技术培训和现场安质量管理和监装试验技术指导及相关服务,配合监造工作造工作调试试验单位严格执行有关规定,编制调试试验大纲,提交准确、齐全的工程调试、试验报告AB文档图3-1 项目质量管理工作总体流程(一)项目质量管理工作总体流程(二)工程指挥部领导小组参建单位建设部工程部A B工批准工程项目编制工程项目程启动计划书启动计划书验收组织工程质量竣工验收阶段工程竣工启动验收参加工程竣工验收工汇总竣工验收出现的缺陷并组织复检配合做好复检工作在规定的时限内完成消陷工作程总负责投产后的质量保修工作结阶结束段图3-2 项目质量管理工作总体流程(二)文档施工质量控制管理流程图工程指挥部监理单位施工单位建设部工程部开始建设部组织施工图交接组织技术交底参与技术交底成立施工项目部审批质量通病防范措施1、编制施工组织设计2、编制质量通病防范措施3、建立质量管理审批施工组织设计体系批准备案审查质量管理体系1、组织机构2、工序管理3、质量自检检查监督1、上岗证2、施工设备工程质量控制跟踪监督管理关键工序过程控制关键材料跟踪管理1、检查材料、设备2、审查设计变三级自查更、工程变更3、检查验收隐蔽工程4、签认分部分项工程质量5、分析处理质配合中间验收或初检量事故组织中间验收或初检配合竣工验收组织竣工验收参与竣工验收质量回访结束文档实用标准图3-3 施工质量控制管理流程项目造价管理工作总体流程(一)工程指挥部领导小组监理单位参建单位建设部工程部前开始期阶段组织可研估算工作初步组织初步设计评审设计单位编制初步设计概算设设计单位配合计初步设计评审阶批复初步设计段参与施工图设计单位编制施及预算评审施工图预算工图设计组织施工图及预算会审阶编制底标,组织批复施工施工单位招标图预算段审核工程审查工程施工单位提变更变更预算出工程变更审批重大设计变更预算是否重大设计变更施工单位申请支付工程施预付款工施工单位申阶段审查批准支付审核申请请支付工程进度款施工单位申请其他付款A工程变更费用文档实用标准图 4-1 项目造价管理工作总体流程(一)项目造价管理工作总体流程(二)工程指挥部领导小组监理单位参建单位建设部工程部A汇总工程变更、编制施工结签证、索赔等资算书,提出竣竣工料,对资料的完整性进行审查工结算申请验收通过否审查阶段是审查批准签署审查意见竣工决算及审计结束图 4-2 项目造价管理工作总体流程(二)文档工程进度款管理工作流程图工程指挥部监理单位施工单位建设部工程部开始编制工程预付款报审表,申请支付工程预付款审查付款申请审核批准根据工程施工完成形象进度编制工程进度款报审表办理预付款进度款审核材料供应、劳务分包提出的付款申请监督材料供应、劳务分包款项的支付情况支付预付款进度款结束图4-3 工程进度款管理工作流程文档。
-------------精选文档-----------------
建设单位(业主方)工程项目管理工作流程图
图1-1 项目管理工作总体流程(一)
图1-2 项目管理工作总体流程(二)
图1-3 施工协调管理流程
图1-4 工程建设月报上报流程
图1-5 档案信息管理流程
图2-1 项目安全管理工作总体流程(一)
图2-2 项目安全管理工作总体流程(二)
图3-3 施工质量控制管理流程
图4-1项目造价管理工作总体流程(一)
图4-2项目造价管理工作总体流程(二)
图4-3 工程进度款管理工作流程
图4-4 工程变更管理工作流程
图4-5 成本控制管理工作流程
图5-1 项目进度管理工作总体流程
图5-2 项目设备、材料供应计划管理流程
图5-3 材料进货检验(设备开箱)流程
图6-1 项目技术管理工作总体流程。