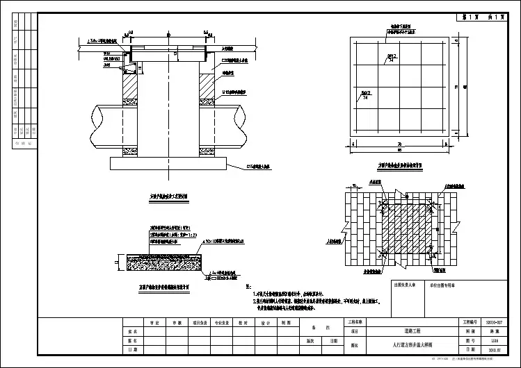
110020.8020.501%100024001300幼儿园活动场地平面R200019.90详119.9020.20注:方格网尺寸为1MX1M人行道1:10019.8019.9020.2020.50沙坑20.50R380020.5019.9020.2020.801%121.05_详19.701面铺30厚弹性安全胶垫规格尺寸:600X600,45%%D斜拼弹性安全胶垫活动场地2600600_21.201%详19.9020.2021.4020.8021.10绿化21.70120019.9020.2020.50幼儿园活动场地平面TEL: 3776850 3776851 3777619中华人民共和国 深圳市振华路100号深纺大厦C座东五楼 ARCHITECTURAL DESIGN & RESEARCH INST. OF TONGJI UNIV.同济大学建筑设计研究院IVEIUNRSGJYTTONI图名图别TYPESCALE比例 园施SEAL校对图章FAX: 3777624P.C.:518031CHECKTITLE及其详图图号DR NO日期DATE222001.4.515厚1:2彩色水刷豆石面层(用棕红色水泥),粒径3~51其中,黑色10%浅啡色20%,棕红色70%,面铺30厚弹性安全胶垫(600x600)150厚6%水泥石粉渣稳定层素土夯实>90%拼接方式详见平面100厚C15混凝土层(米黄色系列)彩色水刷豆石铺装21.3048001%21.10面铺30厚弹性安全胶垫规格尺寸:600X600,45%%D斜拼20.5020.801%21.0021.0520.8020.50600弹性安全胶垫活动场地11_详1%168021.35280421.30下21.35上120021.351%下1%21.35绿化彩色水刷豆石铺装(米黄色系列)1_详21.4021.1020.8021.304591370109169365321.251%2100绿化绿化22.0021.3522.30200用50宽的深色水刷豆石兜边其中(黑色10%浅啡色20%,棕红色70%,)形状分别由半径250,375,500的圆,正方形,正三角形自由布置.图案由彩色豆石或瓷片排列而成,可采用动物,植物的题材,亦可由幼儿园小朋友进行创作.白水泥勾宽10凹缝颗粒表面必须清洗干净100厚C15混凝土层20厚1:3水泥砂浆打底其中,白色20%,米黄色80%150厚6%水泥石粉渣稳定层素土夯实>90%其中,黑色10%浅啡色20%,棕红色70%,15厚1:2彩色水刷豆石面层(用白水泥),粒径3~5要求图案活泼生动,色彩鲜艳明快.弹性胶垫场地断面详1%2207621.35下1:20白水泥勾宽10凹缝刷素水泥浆一道20020010012023001415100421.3021.3521%绿化沙坑及花池断面21%100020.8021.351:20颗粒表面必须清洗干净M5砂浆砌MU7.5红砖20厚1:3水泥砂浆打底其中,黑色10%,浅啡色20%,棕红色70%,60100白水泥勾宽10凹缝630200圆角r4010060180经冲洗过精制细砂底藏外包无纺布%%C100盲管排水100400片区二景观设计碧水天源(一期)设计单位同意,方可做改动.均须做小样,经甲方及设计单位认可后2.所有铺装.环境小品外装饰材料质感.色彩1.施工时要按图施工,如有改变,需征得东莞00-01东莞市碧水天源物业有限公司专业负责人设计制图工程审核人设计总负责工程业主工程名称分项名称工程编号方可大面积施工.CLIENTCHIEFDESIGNEXAMINATIONPROJECT CHIEFDRAFTINGITEMPROJECTPR NO.负责人给排水暖 通 备注NOTEPROFE.专 业建 筑结 构电 气会 签 栏DATECHIEF日期APPROVE彩色水刷豆石遇场地边缘.花池兜边200宽(棕红色系列)方格网定位起始点彩色水刷豆石遇场地边缘.花池兜边200宽(棕红色系列)