轴系扭振保护(tsr)的原理,功能与定值原则
- 格式:docx
- 大小:28.58 KB
- 文档页数:3
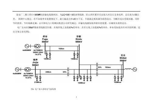
1某电厂二期工程4×600MW 机组输电线路两回,为LGJ-300×6紧凑型线路,经山西忻都开关站接入河北石北变电所,总长度为438公里。
国调中心规定,在不加装串补装置情况下,最大输送功率185万千瓦,不能满足机组满负荷的送出。
为解决送出受限问题,同时节约投资,节约线路走廊,由中国电力工程顾问集团公司研究确定,在输电线路加装串联补偿装置,以确保负荷的送出。
电厂出双回500kV 紧凑型线路至忻都,在锦忻线上加装35%的串补,在忻石线上加装35%的串补,串补均加装在忻州开闭所侧。
送出方案示意见图1。
图1 电厂接入系统电气接线图串联补偿电容使整个电网形成R-L-C回路,此回路将发生次同步谐振。
次同步谐振是电力系统的一种运行状态,在这种状态下,电气系统与汽轮发电机组以低于同步频率的某个或多个网机(电网或电机)联合系统的自然振荡频率交换能量。
由次同步谐振导致的感应发电机效应,可能出现负阻尼使次同步电气振荡不衰减或增强。
当次同步电气振荡频率与机组轴系某阶扭振固有频率互相耦合将产生次同步谐振(SSR)。
经过各方面的详细论证,电厂采用SVC补偿的方式来抑制SSR,同时由TSR系统来提供保护。
23图2 电气系统主接线图图3 电厂SVC配置方案及其控制关系4△ω:汽轮发电机转速偏差信号 UC:35KV母线电压信号(经PT)图3 SSR-DS三相接线示意图SSR-DS的基本原理本装置主要作用就是用于抑制次同步谐振(SSR)。
选取含有原动机扭振模式分量的测量量(发电机转速信号)作为控制器的输入信号,据此控制晶闸管的触发角,改变TCR支路的电流大小,进而微调发电机的输出功率,产生抑制SSR的阻尼转矩,实现抑制SSR的目的。
5以转速偏差信号作为控制器的输入信号时,需将TCR中的无功电流调制成与发电机转子速度偏差反相即错相180°。
这样,当转速增加时,TCR中的感性电流减小,即TCR吸收的无功功率减小,则发电机机端电压上升,发电机送出的电磁功率增加,对恒定的机械输入,电磁功率的增加将导致转子动能的减小,从而最终导致转子速度的降低。
600MW火力发电汽轮机轴系保护与谐波抑制装置共同作用机理下的机组稳定性研究摘要:汽轮机轴系断裂事故是汽轮机事故中最严重的事故,它不但会造成主设备严重损坏,而且还极易引发火灾和人员伤亡。
在国内外众多已发生的轴系断裂事故表明,有些事故是由于汽轮机严重超速,有些是由于扭振、螺栓材质及装配工艺而发生疲劳断裂。
电网为了实现远距离电力系统互联,提高输电能力,实现大功率的中、远距离输电,我国的特高压输电线路已逐步建成。
特高压输电线路中的大容量机组、长距离输电需要电网采用可控串补(TCSC)技术提高输电能力。
输电线路中串联电容补偿、直流输电、电力系统稳定器的加装,可控硅控制系统、发电机励磁系统、汽轮机电液调节系统的反馈作用等,均有可能诱发机组产生次同步振荡现象。
解决次同步谐振带来的危害,对各火电厂而言,显得更加的迫切。
可控串联电容补偿(TCSC)、附加励磁阻尼控制(SEDC)、机端附加阻尼控制(GTSDC)等方法虽然可对次同步谐振产生抑制效果,但并不能准确评估每次抑制后,对汽轮机轴系产生的影响。
这些抑制手段与汽轮发电机组轴系扭振控制保护装置(TSR)互相配合,可有效解决这一问题。
关键词:疲劳断裂;特高压;次同步振荡;TCSC;SEDC;GTSDC;TSR;抑制。
Abstract:Steam turbine shafting fracture accident is the most serious accident insteam turbine accidents. It not only causes serious damage to main equipment, but also easily leads to fire and casualties. Many shafting fracture accidents at home and abroad show that some accidents are caused by severe overspeed of steam turbine, and some are caused by fatigue fracture due to torsional vibration, bolt material and assembly process.In order to realize the interconnection of long distance power systems, improve the transmission capacity, and realize the medium andlong distance transmission of high power, China's ultra-high voltage transmission lines have been gradually built. Large capacity units and long distance transmission in UHV transmission lines need to use thyristor controlled series compensation (TCSC) technology to improve transmission capacity. The installation of series capacitor compensation, DC transmission and power system stabilizer in transmission lines, as well as the feedback effect of silicon controlled rectifier control system, generator excitation system and turbine electro-hydraulic control system, may induce sub synchronous oscillation of units.It is more urgent for thermal power plants to solve the harm of subsynchronous resonance. Although methods such as thyristorcontrolled series capacitor compensation (TCSC), additional excitation damping control (SEDC) and generator terminal additional damping control (GTSDC) can suppress subsynchronous resonance, they cannot accurately evaluate the impact on turbine shafting after each suppression. These suppression measures can effectively solve this problem by cooperating with the turbine generator shaft torsional vibration control and protection device (TSR).Key words: Fatigue fracture;UHV;Subsynchronous oscillation;TCSC;SEDC;GTSDC; TSR;inhibition.一、概述随着电网中单机容量的不断增大,功率密度亦相应增加,轴系长度加长和轴系截面积相对下降,整个轴系不可再视为转动刚体,而是由多跨转子组成的弹性质量系统。
转轴扭振测量基本原理1 转轴扭振测试基本原理[1]图1 转轴发生扭振时的角速度变化图[1]轴系扭振是在轴系的旋转过程中同时发生的运动现象。
轴系正常稳定运行无扭振时,其按某一角速度0ω回转。
当轴系出现扭振时,会在轴截面上相应产生往复扭转变形值弧长 '''BB 或扭角ϕ,此时轴系的回转角速度因扭振引起的交变角速度ωΔ而发生了变化,其瞬时角速度为0ωω+Δ,如图1所示。
按扭振信号的拾取方式分,扭振测量方法主要有两大类,即接触测量法和非接触测量法。
接触测量法是将传感器(应变片等)安装在轴上,测量信号经过集流环或者无线电方式传给二次仪表。
非接触测量一般采用“测齿法”,即利用轴上的齿轮或其他等分结构,由磁电式、涡流式或光电式非接触传感器感受扭振引起的不均匀脉冲信号,通过二次仪表的解调处理后达到测量扭振的目的。
图2 角位移测试原理图[1]扭振角位移测量基于非接触测齿原理,如图2所示。
图2(a)所示为扭振非接触测量信号拾取装置,由齿轮和传感器(如电涡流传感器等)组成,齿轮随轴转动,传感器感应脉冲信号(每个齿轮经过传感器时,将产生一个脉冲信号)。
当轴平稳旋转,亦即无扭振时,传感器将输出如图2(b)所示的均匀的脉冲波,其基本频率为0Z ω×(0ω为转速频率,Z 为齿轮齿数)。
当轴发生扭振时,这个基频分量将被调制成图2(c)所示的疏密相间的脉冲波,并经扭振仪解调后获得图2(d)所示的扭振角位移信号,由此,可测出扭振振幅,经记录并分析得出扭振频率。
2 消除转轴弯曲振动影响的措施[1]图3 消除弯曲振动双接头180度布置图[1]对于小扭幅的扭振信号,为消除转轴弯曲振动的影响,每个测点应装设二只相对180度的传感器如图3所示,由质量不平衡等引起弯曲振动可分解成垂直和水平两方向。
水平方向的弯曲振动对传感器的调制信号无影响,而垂直方向的弯曲振动则会使靠近传感器的齿轮瞬时线速度叠加上一个由该振动形成的附加分量,影响传感器的调频信号。
第38卷第6期电力系统保护与控制Vol.38 No.6 2010年3月16日 Power System Protection and Control Mar.16, 2010 上都电厂轴系次同步扭振保护系统陈大宇1,赵永林1,刘 全2,张远取3,谢小荣 3(1.上都发电有限责任公司,内蒙古自治区 锡林郭勒盟 027200;2.四方电气(集团)有限公司,北京 100084;3.清华大学电机系电力系统国家重点实验室,北京 100084)摘要:针对次同步谐振(SSR)危及机组轴系安全问题,研发了轴系次同步扭振保护系统。
该保护系统包括底层的扭应力继电器(TSR)和上层的保护协调机(Tmaster)。
TSR实时采集轴系模态转速信号,进而判别扭振模态稳定性和疲劳寿命是否越限,并将判断结果传递给Tmaster,由后者执行选择性跳机逻辑,从而起到保护机组轴系的作用。
将所述次同步扭振保护系统应用于上都电厂串补输电系统,分析了其运行机制和定值设置。
保护系统自2008年9月投运以来,经历了现场试验和实际故障的考验,起到了正确检测次同步扭振和保护机组轴系安全的作用。
关键词:次同步谐振(SSR);扭应力继电器(TSR);轴系扭振保护;串补输电系统;现场试验Shafting torsional protection system at Shangdu power plantCHEN Da-yu1,ZHAO Yong-lin1,LIU Quan2,ZHANG Yuan-qu3,XIE Xiao-rong3(1.Shangdu Power Plant Co.,Ltd,Xilingol 027200,China;2. Sifang Electric(Group)Co.,Ltd,Beijing 100084,China;3. State Key Lab of Power System, Department of Electrical Engineering, Tsinghua University,Beijing 100084,China)Abstract:A subsynchronous torsional protection scheme is developed to protect generator shafts from damage caused by subsynchronous resonance (SSR). The scheme is composed of the bottom-layered torsional stress relay (TSR) and the upper-layered coordinator, called Tmaster. The TSR gathers the modal speed of generator shafts in real time and detects dangerous SSR according to the criteria of torsional stability and fatigue loss-of-life. The Tmaster coordinates the response from multiple TSRs and trips generators selectively. The proposed “TSR+Tmaster” scheme is implemented for the Shangdu series-compensated transmission system, of which the operation principle and the protection setting are elaborated in this paper. Since it was put into practice in September 2008, the protection system has experienced various field tests and real system faults, demonstrating its effectiveness in detecting subsynchronous vibration and protecting generator shafts.Key words:sub-synchronous resonance(SSR); torsional stress relay(TSR); shafting torsional protection; compensated transmission system;field test中图分类号: TM77;TM76 文献标识码:A 文章编号: 1674-3415(2010)06-0122-040 引言二十世纪七十年代以来,由固定串联电容补偿(FSC)引起的次同步谐振(SSR)问题受到广泛的关注[1-2]。
发电厂轴系扭振保护装置动作分析王虎军;任晓朦;刘锋;武占国【摘要】为了避免接入系统中存在串补和直流输电而产生次同步谐振,国华宝日希勒电厂一期工程2×600 MW机组加装了TSR装置.针对TSR装置在运行中频繁启动录波器,在机组出力100 MW、300 MW的情况下,分别对TSR装置保护的录波文件及频谱进行了分析,认为该机组可能已出现SSO/SSR现象,但扭振幅值未达到轴系疲劳累积的程度,并提出相关建议.【期刊名称】《内蒙古电力技术》【年(卷),期】2011(029)005【总页数】4页(P24-26,29)【关键词】TSR;次同步振荡;扭振保护;疲劳累积;阻尼控制器【作者】王虎军;任晓朦;刘锋;武占国【作者单位】内蒙古电力科学研究院,内蒙古呼和浩特010020;华北电力大学,北京102206;内蒙古电力科学研究院,内蒙古呼和浩特010020;内蒙古电力科学研究院,内蒙古呼和浩特010020【正文语种】中文随着电力系统电压等级的不断提升以及输、配电技术的发展,大规模交、直流混合输电将成为未来发展的主要趋势。
为了提高远距离输电系统传输容量、系统稳定性,可控串补技术在电网中得到广泛应用[1];但输电线路中的串联电容补偿、电力系统稳定器的加装及可控硅控制系统等,均有可能诱发、导致次同步振荡(以下简称SSO)/次同步谐振(以下简称SSR)[2]。
另外,在交、直流混合输电系统中,靠近直流换流站的发电机组也可能产生SSO现象。
由于汽轮机和发电机转子惯性较大,对轴系本身的低阶扭转模态十分敏感,呈低周高应力的受力状态,这种机电共振直接威胁着发电机组和电网的安全可靠运行[3]。
为了避免串补所带来的SSO/SSR问题造成汽轮发电机组的轴系损坏,最大限度地提高线路传输能力,本文对国华宝日希勒电厂机组轴系扭振保护装置(以下简称TSR)的动作情况进行分析。
1 国华宝日希勒电厂概况国华宝日希勒电厂位于内蒙古呼伦贝尔市宝日希勒镇,规划容量为6×600 MW,其中一期工程2×600 MW机组以500 kV交流双回线路经巴彦托海开关站送入伊敏直流换流站,线路总长约139.5 km。
扭振简化原则
内燃机在工作过程中由于曲轴上作用的周期性变化力矩,使得轴系产生扭振振动。
扭振危害:使发动机相关部件产生附加应力应变,严重时候造成曲轴、齿轮、螺栓断裂。
尤其在激振力矩与轴系出现共振时,这种现象尤为严重。
内燃机轴系运转时,在传递扭矩承受应力的同时,还承受由系统的扭转振动引起的扭振附加应力,扭振应力是周期性变化的应力,叠加在扭转应力之上。
为了确保轴系的疲劳强度,必须了解扭振应力的,并予以限制(曲轴动力学与有限元范畴)
内燃机扭振分析内容
1、将内燃机轴系简化为一个多自由度盘轴系统,计算固有频率和振型;
2、对激振力矩进行谐量分析,算出能在工作转速范围内引起强共振的两三个简谐分量的幅值和初相位;
3、计算强共振转速、共振振幅及曲轴的扭振附加应力;
4、确定减振措施
在内燃机扭振计算初期,可以把内燃机轴系简化为理想的只有转动惯量而无弹性形变形的刚体质量和一些只有弹性变形而无转动惯量的轴段组成的离散系统——当量系统。
转换的基本原则是:
1、惯量较大且较集中的部件作为非弹性惯量元件;
2、惯量较小而分散的部件作为无惯量的弹性元件;
3、阻尼可分为作用在弹性元件上的轴段阻尼和作用在惯性元件上的质量阻尼;
4、激振力矩只作用在惯性元件上。
轴系扭振保护(tsr)的原理,功能与定值原则轴系扭振保护(Torsional Shaft Oscillation Protection, TSR)是一种用于保护旋转轴系免受扭振损坏的控制技术。
在大型机械设备
和发动机中使用轴系扭振保护可以防止扭振引起的破坏性振动和损坏,提高设备的可靠性和寿命。
轴系扭振保护的原理是通过检测旋转轴系的扭振状态,当扭振振
幅超过预设值时,通过控制系统采取相应的措施,如减小负载、改变
转速或调整阻尼,以降低扭振的振幅和危害。
轴系扭振保护的主要功能是保护旋转轴系免受扭振损坏。
扭振会
引起轴系的振动增大,导致轴系元件受到过大的应力,甚至造成脱位
或断裂,严重损坏设备。
通过实时监测和控制扭振振幅,轴系扭振保
护可以阻止扭振振幅继续增大,从而保护设备免受损坏。
轴系扭振保护的定值原则是根据设备的特性和预期工作条件,设
定适当的扭振振幅上限。
通常,扭振振幅上限会根据实际情况进行工
程计算或试验确定。
定值原则的目的是使系统在正常工作状态下不受
扭振干扰,同时在扭振超过上限时能够及时启动保护措施,保护设备。
从技术上讲,轴系扭振保护需要实时监测旋转轴系的扭振状况。
常见的监测方法包括测量旋转轴系的扭振振幅、相位、频率等参数。
这些监测数据可以通过各种传感器和信号处理技术获取,并送到控制系统进行处理。
控制系统会根据扭振监测数据进行实时计算和判断,判断扭振是否超过设定的上限。
当扭振超过上限时,控制系统会触发相应的保护措施。
常见的保护措施包括调整负载、改变转速、调整阻尼等。
例如,如果扭振振幅超过预设值,控制系统可以通过改变负载来降低扭振振幅。
这可以通过调整机械传动装置或控制电机的负载来实现。
如果调整负载无法降低扭振振幅,控制系统还可以考虑改变转速或调整阻尼等其他措施。
此外,轴系扭振保护还可以与其他保护系统和监测系统相结合,形成完整的设备保护系统。
例如,可以与温度监测系统结合,根据扭振和温度数据判断设备的工作状态,并采取相应的保护措施。
总结起来,轴系扭振保护是一种用于保护旋转轴系免受扭振损坏的控制技术。
通过实时监测扭振状况,并采取相应的保护措施,可以有效地保护设备,并提高其可靠性和寿命。
轴系扭振保护的定值原则
是根据设备的特性和预期工作条件,设定适当的扭振振幅上限。
为了保证保护系统的可靠性,通常还需要与其他保护系统和监测系统相结合,形成完整的设备保护系统。