预应力钢结构的结构体系及节点设计
- 格式:doc
- 大小:407.50 KB
- 文档页数:16
大跨空间钢结构预应力施工技术分析发布时间:2021-07-21T17:34:14.810Z 来源:《城镇建设》2021年3月第8期作者:林现[导读] 近年来,随着社会经济的发展,城市大跨度结构日益增多。
林现身份证号:44172119710829****摘要:近年来,随着社会经济的发展,城市大跨度结构日益增多。
大跨钢结构一般适用于大规模建筑工程,具有跨度大、环境复杂等特点,对于施工质量及工艺要求十分严格,为提高构件刚度、减小构件挠度、改善结构性能,预应力技术逐渐得到了广泛运用。
关键词:大跨空间钢结构预应力施工技术引言钢结构预应力是现代经济和科技发展下的产物,也是建筑业一直在推广使用的新技术,预应力施工技术经过混凝土结构的应用发展到了大跨度空间钢结构的应用,这一发展体现了我国过程建设技术的进步。
给钢结构施加预应力对于钢结构结构变形的调控和调整杆件应力分布有着积极的作用,当对钢结构变形和杆件应力进行有效的调控以后,钢结构的承载力将大大的提升,可以减少施工过程中的用钢量,这样不仅可以节约资源还可以使结构变得轻盈,便于大跨度、大空间的跨越。
大跨空间钢结构的预应力施工技术会涉及到很多的结构形式和各种新型的拉索材料,此外还需要与各种高强材料、高级非线性力学分析和施工技术进行融合,所以其应用的难度还是比较大的,但在近些年来,我国大跨空间钢结构预应力施工还是取得了显著的进步和发展,主要以现在拉索材料、结构形式以及施工技术这三个方面。
1钢结构优点与其他类型的建筑结构相比,钢结构的优点主要有:(1)理论分析可靠性高。
钢材是理想的弹塑性材料,内部材质均匀,晶体结构接近于各向同性。
钢结构的实际工作性能可以被目前的计算理论较好的反应,具有较高的可靠性。
(2)强度较高,质量较轻。
钢材强度高于砌体,混凝土和木材,弹性模量也较高。
在受力条件相同的情况下,与其他结构相比,钢结构结构质量更轻,构建截面面积更小,在运输和安装上有明显优势,是建造大跨度建构筑物的理想材料。
大跨度预应力张弦桁架结构设计与施工要点分析现如今,钢结构已经在建筑领域得到了广泛推广和应用,通过预应力技术,能够有效改善大跨度空间结构刚度,是一种新型的建设体系。
对此,本文首先对预应力大跨度空间钢结构进行了介绍,然后以大道速滑馆为研究对象,对大跨度预应力张弦桁架结构设计施工要点进行了详细探究,以期为类似工程提供借鉴。
标签:大跨度;张弦桁架结构;施工1、引言鋼结构自身稳定性较高,因此在建筑行业中,钢结构的使用十分普遍,钢结构未来的发展也会被人们所重视。
预应力大跨度空间钢结构的运用功能在房屋建设当中具有不可或缺的地位,因此对预应力大跨度空间钢结构施工要点进行详细探究具有十分重要的现实意义。
2、预应力大跨度空间钢结构概述现如今,在大型建筑工程施工中,预应力大跨度空间钢结构十分常见,具有承重性能强、刚度性能好、延伸性好、施工便捷等应用优势。
在以往大型建筑工程施工中,一般采用混凝土结构模式,但是,由于混凝土的结构模式采用单向板结构,因此,混凝土结构会随着空间的跨度增加而使楼板的厚度随之增加,而在工程计划中,所使用的钢筋数量无法满足厚度增加所带来的重量。
因此,在大型建筑工程施工中,可以应用预应力大跨度空间钢结构,这样不仅能够提高施工质量,而且还能够保证施工进度。
3、工程概况大道速滑馆钢主体结构形式为张弦桁架结构形式,张弦桁架与横向联系桁架组成屋盖钢结构系统。
建筑长度约为189.8m、宽度约为109.4m,高度最高为40.28m,最低为25.980m。
屋盖钢结构主要受力结构为张弦桁架通过支座落在混凝土柱顶上,桁架结构为倒置三角形桁架,张弦桁架最大跨度89.4m。
桁架节点一般采用相贯焊接节点、张弦桁架采用预应力索连接节形式。
根据钢结构设计图纸,山墙钢架由弦杆、横杆、撑杆及腹杆构成,钢材截面规格均为矩形管。
钢架与混凝土柱中预埋件焊接形式连接。
4、大跨度预应力张弦桁架结构设计与施工4.1钢结构吊装张弦桁架吊装方法:主桁架在场外指定区域地面胎架分成三段拼装,拼装好后搭设支撑架将三段桁架合拢成一整榀桁架,穿索张拉至50%,320吨履带吊(主臂工况)双机抬吊挪位安装。
钢结构梁柱节点设计优化方案引言:钢结构在现代建筑领域中得到了广泛运用,其优势在于高强度、轻量化和施工速度快等方面。
然而,梁柱节点作为钢结构的重要组成部分,其设计对结构的稳定性和抗震性能具有至关重要的影响。
本文将探讨钢结构梁柱节点设计的优化方案,从减小节点刚度、提高节点刚度以及增强节点抗震性能等角度进行讨论。
1. 减小节点刚度节点刚度较大往往会导致节点承受较大的弯矩和剪力,增加节点构件的厚度和重量,从而影响结构的整体性能。
为了减小节点刚度,可以采用以下优化方案:- 使用薄板梁柱构件:采用薄板梁柱构件替代厚板构件,可以减小节点的刚度并降低节点的重量。
- 采用高强度钢材:使用高强度钢材可以在达到相同强度要求的前提下减小梁柱的截面尺寸,从而减小节点的刚度。
- 采用灵活的连接方式:选择适当的连接形式,如销钉连接或焊接连接,可以降低节点的刚度。
2. 提高节点刚度在某些情况下,为了保证结构的安全性和稳定性,需要提高节点的刚度。
以下是一些提高节点刚度的优化方案:- 加大梁柱截面尺寸:增加梁柱截面的尺寸可以提高节点的刚度。
但是,需要将节点的刚度和整体结构的刚度进行合理的匹配,以避免刚度不均衡导致的结构性能问题。
- 增加连接构件的数量:在节点处增加连接构件的数量,如剪力板、角钢等,可以提高节点的刚度。
但是,同样需要考虑节点的刚度与整体结构刚度之间的匹配。
3. 增强节点抗震性能节点在地震等外部荷载作用下容易发生破坏,因此需要增强节点的抗震性能。
以下是一些增强节点抗震性能的优化方案:- 采用预应力技术:在节点处采用预应力技术可以提高节点的抗震能力。
通过引入预应力力矩,可以减小节点的应力集中,并提高节点的延性。
- 使用加强板:在节点处使用加强板,可以增加节点的刚度和稳定性。
加强板可以承担部分载荷,并分散节点的应力集中。
- 优化焊接工艺:合理选择焊接工艺,采用先进的焊接材料和工艺参数,可以提高焊缝的质量和强度,从而增强节点的抗震性能。
目录一钢结构课程设计任务书 (1)二钢结构课程设计计算书 (3)1 支撑布置 (3)2 荷载计算 (4)3 内力计算 (6)4 杆件设计 (7)5 节点设计 (18)三附图1钢屋架施工图2钢屋架节点详图和材料表一、 钢 结 构 课 程 设 计 任 务 书一、设计资料 1、结构形式某厂房跨度为21m ,总长90m ,柱距6m ,采用梯形钢屋架、1.5×6.0m 预应力混凝土大型屋面板,屋架铰支于钢筋混凝土柱上,上柱截面400×400,混凝土强度等级为C30,屋面坡度为10:1 i 。
地区计算温度高于-200C ,无侵蚀性介质,地震设防烈度为7度,屋架下弦标高为18m ;厂房内桥式吊车为2台150/30t (中级工作制),锻锤为2台5t 。
2、 屋架形式及选材屋架形式、几何尺寸及内力系数如附图所示。
屋架采用的钢材及焊条为:1班学号为单号的同学用235Q 钢,焊条为43E 型,学号为双号的同学用345Q 钢,焊条为50E 型;2班学号为单号的同学用345Q 钢,焊条为50E 型,学号为双号的同学用235Q 钢,焊条为43E 型。
3、荷载标准值(水平投影面计)① 永久荷载:三毡四油(上铺绿豆砂)防水层 0.4 KN/m 2 水泥砂浆找平层 0.4 KN/m 2保温层 0.65KN/m 2(按附表取) 一毡二油隔气层 0.05 KN/m 2 水泥砂浆找平层 0.3 KN/m 2预应力混凝土大型屋面板 1.4 KN/m 2屋架及支撑自重:按经验公式L=计算: KN/m212.0+.0q11悬挂管道: 0.15 KN/m2②可变荷载:屋面活荷载标准值:27.0mkN/雪荷载标准值: 0.35KN/m2积灰荷载标准值: 1.0 KN/m2(按附表取)二、设计内容1、计算书部分进行桁架支撑布置,画出屋架结构及支撑的布置图;选择钢材及焊接材料,并明确提出对保证项目的要求;进行荷载计算、内力计算、内力组合,设计各杆件截面;设计一个下弦节点、一个上弦节点、支座节点、屋脊节点及下弦中央节点。
体外预应力在钢结构加固工程中的设计和施工首先,体外预应力加固的设计一般分为以下几个步骤:1.结构评估:对原有结构进行全面评估,包括结构受力性能、材料状况、设计荷载等。
2.设计目标确定:根据结构评估结果,确定设计加固的目标,如提高承载力、修复裂缝等。
3.预应力筋布置:根据结构受力分析,在结构外部规划出合理的预应力筋布置方案,使得预应力筋能够平衡结构内部的应力。
4.预应力力学分析:根据预应力筋布置方案,进行力学分析,确定预应力筋的张拉力和锚固长度,保证结构能够达到设计要求。
5.构件设计:根据预应力筋布置方案和力学分析结果,进行构件设计,包括截面尺寸、钢筋配筋等。
其次,体外预应力加固的施工一般包括以下几个步骤:1.设备准备:准备好预应力设备,包括张拉设备、锚固设备等,并对设备进行检测和校准。
2.钢筋预处理:对预应力钢筋进行处理,包括清洗、除锈等,保证钢筋的质量。
3.筋具制作:根据预应力筋布置方案,制作预应力筋具,用于施加预应力。
4.筋具安装:将预应力筋具按照设计要求安装在结构外部,并进行固定。
5.张拉预应力:使用预应力设备对预应力筋进行张拉,达到设计要求的预应力张拉力。
6.锚固:对张拉后的预应力筋进行锚固,将预应力转移到结构中。
7.后张拉:根据设计要求,可进行后张拉操作,进一步调整预应力筋的应力分布。
8.钢结构加固:根据预应力设计要求,进行钢结构加固,包括焊接加固、螺栓加固等。
9.质量检测:对加固后的结构进行质量检测,包括钢筋焊接质量检测、构件尺寸检测等。
10.施工记录:对施工过程进行记录,包括材料消耗、工艺控制等。
体外预应力在钢结构加固工程中具有比较明显的优势,可以提高结构的承载力和刚度,同时能够减小结构的变形和裂缝,延长结构使用寿命。
然而,体外预应力加固也存在一些问题,如加固过程中的施工控制、加固后的监测与维护等,需要在设计和施工过程中加以重视。
屋盖预应力索节点深化设计导言大跨度张弦拱壳结构是一种新型的大跨度自平衡空间结构体系,该结构利用高强索的强抗拉性能,有效地改善了整体结构的受力性能,具有变形小、稳定性强、承载能力高、结构稳定性强等优点。
某宴会厅及屋顶花园屋面结构采用的张弦拱壳结构由屋面钢结构、拉索、拉杆组成,沿跨度方向长72m,共41榀(图1)。
每榀张弦拱壳均设有1根拉索,通过锚固节点与钢结构相连,并在跨中利用2根拉杆将拉索分为3段,在该处拉索和拉杆通过索夹节点相连(图2)。
图1 屋面结构三维示意图2 单榀张弦拱壳结构1-锚固节点;2-钢拱壳;3-拉杆;4-拉索;5-索夹节点索节点结构设计作为张弦拱壳的主要构成部分,拉索与钢拱壳结构的连接方式是发挥其功能的关键,因此索节点的深化设计是张弦拱壳结构设计的重要组成部分。
对张弦拱壳结构施工而言,其深化设计也是极其重要的环节。
在索节点设计过程中,需考虑拉索与节点的连接强度、节点构造要求、节点功能要求和节点的力学性能。
索结构节点构造应符合计算假定,应做到传力路线明确、确保安全并便于制作和安装。
本工程涉及的索节点主要包括锚固节点和索夹节点。
1.锚固节点结构设计锚固节点是拉索与钢拱壳直接相连的部位,拉索通过锚固节点对钢拱壳施加预应力,以减轻钢拱壳的载荷负担,形成一种自平衡体系,锚固节点的深化设计是整个张弦拱壳结构深化设计的重要组成部分。
锚固节点设计过程中,应考虑拉索与节点的连接形式并满足简洁美观的要求,节点与屋面钢拱壳焊接成为一体,下部与滑动支座相连。
锚固节点在与拉索连接处采用单耳板形式,拉索则通过销轴与钢拱壳形成一个整体结构,如图3(a)所示。
拉索的端头部位选用双叉耳可调节式索头,如图3(b)所示。
(a)(b)图3 锚固节点和拉索示意(a)锚固节点;(b)双叉耳可调节拉索完成锚固节点初步构思设计后,需考虑施工的可行性,由于锚固节点是承载拉索拉力的主要构件,施工过程中需以其做反力点,使用张拉工装对拉索施加预应力,目前常用的张拉工装有抱箍式工装和叉耳式工装如图4所示。
拦;塑:堡.凰.村镇建设中农村污水处理设施的选择王勇(洪泽县老子山镇建设服务站,江苏洪泽223100)脯要】有机废弃物是村镇朝:境的主要污染源,污水处理已成为村镇建设中亟待解决的问题。
受经济发展水平限刺,常规的污水处理设施在村镇难以实施,为此硌须采用适合村镇经济水平和管理水平的污水处理方式。
针对村镇的实施务件,在对几类小型简易污水处理设施特点进行分析的基础上,提出在村镣:j差设中易推行结构简单、费用低廉、便于管理、实施方便的沼气发酵池和地埋式无动力污水女魄设施,以初步解决村镇污水问题。
目撇】村镇污水处理;沼气发酵池;无动力污水处理设施近年来,中央和地方政府高度重视“三农“问题,在改善农村地区人居环境方面做了大量的工作,取得了明显成效,但与城市相比,由于底子薄、基础差,当前中国农村的基础设施建设十分落后,人居环境差,环境安全隐患与问题突出。
中国村镇污水大多是生活污水和畜禽养殖污水,而畜禽养殖排污又是村镇有机废弃物排污的主要部分,已占到城镇有机污染物排放的很大L-t i苑J。
目前中国村镇污水处理水平很低,除珠三角、长三角地区少数经济发达的城镇有污水处理设施外,绝大多数干寸镇没有常规的污水处理设旌甚至没有污水管道,以致很多村镇污水横流,环境面貌很差。
村镇污水除处理水平低这一显著特点外,间歇排放排量少且分散,这是村镇污水的又一典型特征,这给村镇污水的收集和处理带来了一定的难度。
重视与加强农村地区的污水排放收集和处理设施建设工作,避免因污水未经处理直接排放而对农村地区的水体、土地等自然环境产生污染影响,确保农村水源安全和农民身体健康,是新农村建设中加强基础设施建设,推进村镇建设工作的一项重要内容。
中国地域发展不平衡,不同地域间丰寸镇差别较大,加之农村地区长期以来形成的居住方式、生活习惯等方面的差异,使得污水处理方式不能过于单一,而应根据村镇具体现状、特点、风俗习惯以及自然、经济与社会条件,对各种污水处理模式的经济性比较和适用性比较,因地制宜地采用适合的污水处理模式以初步解决村镇污水问题是当前村镇建设及改善农村人居环境工作中所要解决的最急需、最迫切、最突出的问题,具有重要的现实意义。
第一节钢结构现场安装及索预应力张拉方案第一小节脚手架及结构加固措施体育馆屋盖为单层网壳,其安装过程对支架的要求非常高,特别控制施工过程中结构的应力和变形是重点,同时保证在结构被支撑的情况下不影响环向索和径向拉杆的布索和张拉施工。
所以整个结构对脚手架的设计提出了较高的要求。
■ 1 一、脚手架设计的控制原则1、变形控制网壳结构施工过程中,脚手架承受承受整个结构的重量,由于结构为球冠体系,由此满堂架还承受一定的水平荷载,由此承重胎架属于复杂的受力体系。
脚手架在施工过程中的变形直接影响了网壳的安装精度,对预应力施工影响比较大。
因此操作架的设计要使得在施工荷载作用下的变形需满足规范和本工程技术条件的要求。
2、稳定性和刚度满足要求满堂架具有一定的高度,最高约28m高,在施工过程中需要严格保证其稳定。
3、沉降量控制满堂架在受力后产生的沉降量不应超过5mm。
4、满足预应力施工要求由于预应力施工在结构形成之后,且索穿行在结构于脚手架内部,脚手架的设计直接影响到预应力索的布索和张拉。
满足预应力施工要求是脚手架控制的重点和难点。
■ 2 二、满足预应力施工要求的二阶平台设计1、通过对上述情况的充分理解和对钢结构和预应力索施工方案的充分研究,我们提出了满足预应力施工要求的二阶平台设计思想。
即脚手架平台搭设分两阶段进行,第一阶段搭设平台控制在预应力索撑杆的下端节点以下约500mm的水平位置处,此步完成后形成一阶梯状台阶。
一阶平台搭设好后,开始铺设预应力索,将索卷用吊机吊至一阶平台上后,在撑杆垂直下方将环向索张开,形成圆形,搁置在满堂架上。
2、一阶平台搭设完成,开始搭设二阶平台,此时的二阶平台以一阶平台为基础,往上搭设,满足网壳安装要求。
3、考虑到环向索的张拉及撑杆的安装,在网壳结构安装完成后,需要设置一部分支撑支承整个结构,且支承应该不影响预应力索的张拉。
4、我们对施工过程的验算结果,对结构采取隔环设置支撑的方式能满足对结构支承的要求。
钢结构施加预应力的方法有哪些
一是钢索张拉法,在钢结构公司的结构体系中布置索系,通过千斤顶张拉索端,因而在结构中产生卸载应力而受益。
这是国内外应用广泛、技术成熟的一种工艺。
但索端须有锚头固定,增大材耗,除需要张力设备等外,还需要加大施工成本。
二是支座位移法,在连续梁、刚架和其它超静定结构中,人为地强迫支座位移(垂直或水平移位),改变支座设计位置,可调整内力,降低弯矩峰值,减小结构截面面积。
这种方法可节省钢索、锚头等附加材耗及张拉工艺,适用于地基基础较好的工程。
三是弹性变形法,钢材在弹性变形条件下,将组成结构的杆件和板件用焊接或螺栓连成整体。
在卸除强制外力后,结构内出现恢复力产生的有益预应力。
四是手工简易法,用于中、小跨钢结构设计工程中施加张力不大的情况下。
譬如,依靠拧紧螺母张拉拉杆,用正反扣螺栓横向推拉拉索产生张力等。
此法工艺简易可行,便于推广,适用于缺少机械设备的广大地区。
预应力加固钢结构方案及选材设计预应力加固钢结构方案及选材设计随着工业化发展和城市化进程的不断推进,钢结构建筑的应用范围越来越广泛,如桥梁、厂房、商业和住宅等领域。
然而,时间的推移和负荷的作用会使钢结构产生疲劳和强度衰减等问题,为了保证安全性和延长结构的使用寿命,需要采用适当的加固方案。
本文将介绍预应力加固钢结构的方案和选材设计。
预应力加固方案预应力加固是一种有效的钢结构加固方案,其主要原理是通过预应力力学的规律,使钢结构承载能力得到提高。
其具体步骤分为以下几个:1. 预应力后张:在预应力加固前,先对待加固构件进行紧固、拉直等处理,以消除构件的内应力和缺陷。
2. 预应力成型:在构件预应力加固前,先在构件的一侧进行拉压,形成预应力状态,然后再进行加固处理。
3. 预应力加固:预应力加固是通过张紧钢绞线或钢带等装置对构件进行加固,以提高钢构造件的承载力和刚度。
预应力加固的优势在于其可以提高结构成员的刚度和承载能力,从而避免结构产生裂缝和塌落等安全问题。
同时,预应力加固后,结构体系的耗能能力也有所提高,从而保证结构的抗震性能。
预应力加固方案适用于各种大跨度钢结构建筑,如钢桥、钢屋盖、钢厂房等。
预应力加固的材料选择预应力加固材料的选择在预应力加固方案中至关重要,主要包括预应力钢绞线、预应力锚具、预应力钢板等。
1. 预应力钢绞线:预应力钢绞线是一种由许多绞合的钢丝绳构成的预应力材料。
其具有强度高、耐腐蚀、寿命长等特点。
预应力钢绞线的品质和数量对加固效果有着重要影响,应根据预应力加固的具体情况选用合适的牌号和材质。
2. 预应力锚具:预应力锚具是附加在构件上的一组固定钢绞线和钢板的装置,用于对钢绞线进行张力固定。
预应力锚具的材质应具有耐腐蚀、耐疲劳、承载能力高等特点,以保证其持久可靠。
3. 预应力钢板:预应力钢板主要用于对梁、柱等构件进行加固,其具有重量轻、安装方便等优点,同时,预应力钢板的材质应具有高强度、刚度等特点。
一、设计资料:1.某厂房总长度60m ,跨度为18m.,柱距6m 。
车间内设有两台30/5吨中级工作制吊车。
屋架端高1900mm,屋面坡度为1/10,置于钢筋混凝土柱上,上柱截面400x400,柱的混凝土强度品级为C25,无檩屋盖体系,采纳×6.0m 。
计算最低温度-200C 。
采纳×6.0m 预应力混凝土大型屋面板和卷材屋面。
二、结构形式与布置图:屋架支撑布置图如以下图所示。
2.51507.5150a ceA acege 'c '+2.5370.000-4.371-5.636-4.551-3.357-1.8-4.754-1.862+0.615+1170+1.344++3.158+0.540-1.632-1.305-1.520-1.0-1.0+0.4060.000.00-0.5+5.325+5.312+3.967+2.637+B C D E F G F 'E 'D 'C '0.51.01.01.01.01.01.0c . 18米跨屋架半跨单位荷载作用下各杆件的内力值四、荷载计算与组合一、荷载计算预应力混凝土大型屋面板 ㎡×=m 2 三毡四油防水层 ㎡×=m 2 找平层(20mm 厚) ㎡×=m 2 泡沫混凝土保温层 (80mm ) ㎡×=m 2 钢屋架和支撑自重 (+×30)×=㎡ 管道荷载 ×= kN/㎡ 永久荷载总和 kN/㎡ 屋面活荷载 ×=㎡积灰荷载×=㎡可变荷载总和kN/㎡二、荷载组合计算屋架杆内力时,应考虑如下三种荷载组合:1全跨永久荷载+全跨可变荷载F=(+)××6=2全跨永久荷载+半跨可变荷载全跨节点永久荷载:F1=××6= kN半跨节点可变荷载:F2=××6= kN3全跨屋架(包括支撑)自重+半跨屋面板自重+半跨屋面活荷载全跨节点屋架自重:F3=××6=半跨节点屋面板自重及活荷载:F4=(+)××6= kN四、杆件截面设计腹杆最大内力,N=(压),由屋架节点板厚度参考可知:支座节点板刚度取12mm;其余节点板与垫板厚度取10mm。
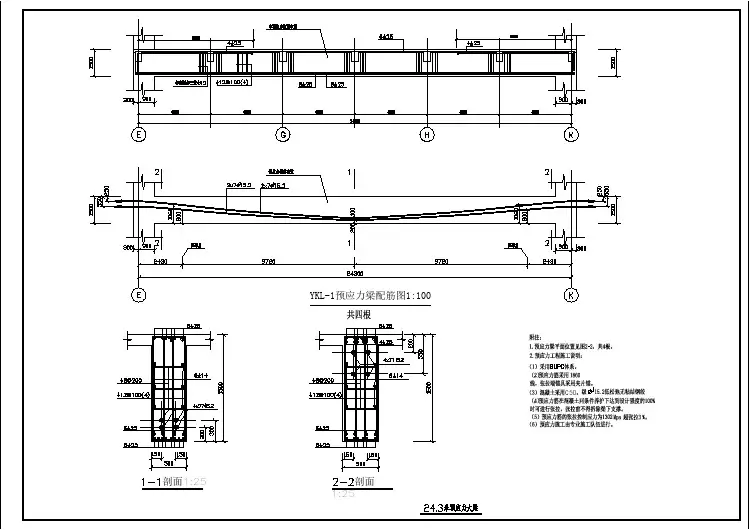
预应力钢结构的结构体系及节点设计摘要预应力钢结构学科自诞生以来已经走过了60年历程。
最近20年有较大的发展。
尤其是近几年来的新材料、新工艺、新结构发展迅猛,且倍受国内建筑界重视和关注,对其研究越来越深入,技术越来越完善,应用也越来越广泛,新型的空间结构体系不断发展。
,预应力钢结构的应用范围几乎已覆盖了全部钢结构领域。
本文以综述的形式概述预应力钢结构的结构体系及节点设计。
关键词预应力钢结构结构体系节点设计引言钢结构在设计、制造、施工、加固工程中,与外荷载应力符号相反的预应力被人为地在承重结构体系内引入,用来改善结构的承载特性,尽量利用材料强度幅值或者在主承重结构中引入预张力以使全部构件能够抗压或成型的,称为预应力加固钢结构或预应力钢结构。
预应力钢结构的结构体系可大致分为预应力平面结构体系和预应力空间结构体系。
预应力平面结构体系包括预应力梁及楼盖系统、预应力钢桁架、预应力拱架、预应力框架结构、吊挂结构以及索绳结构体系。
预应力空间结构体系包括预应力网架结构、预应力网壳结构、张弦结构、索穹顶结构、索膜(张拉膜)结构等等。
空间结构体系模型一预应力钢结构设计原理和基本方法1.1 预应力钢结构的工作机理传统的钢结构引入预应力后受力机制受到改善,因为预应力调整为外部荷载与结构的内部抗力的关系,充分的挖掘了材料弹性强度的潜力,所以预应力钢结构的静,动力性能得到改善,刚度得到加强,众所皆知,在预应力作用下,任何结构的内力体系都是自相平衡的,预应力荷载及内力必须满足下列条件:0X ∑= 0Y ∑= 0Z ∑=0X M ∑= 0y M ∑= 0Z M ∑=从预应力自平衡体系概念出发,除非结构的预应力体系与荷载作用系统完全吻合一致,否则在结构体系内总会产生杆件的卸载效应与增载效应,即某些杆件因预应力卸载的同时伴随着另外一些杆件的增载。
因此,预应力的机理不是降低外部荷载力度,改变其作用状态或加固结构本身,而是利用材料弹性强度幅值的重复使用,内力的改性及转移来提高结构整体和杆件本身的承载能力和刚度。
预应力效应的几种主要的机制图1-1 结构的承载力比较a-非预应力结构 b-单次预应力结构 c-多次预应力结构力的重复图1-2 预应2.力梁的内力质变示意图图1-3 最佳受力杆件示意图1.2 预应力钢结构的加载方案图1-4 三种加载方案承载力比较(F3>F2>F1)a-先张法 b-中张法 c-多张法1.3施加预应力的几种方法:a 拉索法 b 位移法 c-弹性变形法1.4 预应力钢结构的设计计算原则设计计算原则应按照与《预应力钢结构的设计规程》为依据并因符合现行国家标准《钢结构设计规范》及有关其他的标准,规范的规定。
二预应力钢结构的平面结构体系及节点设计预应力平面结构体系只考虑在二维空间承受荷载的结构。
其中有些结构在实际工程中只在结构平面内受力,不承受平面荷载。
而多数结构在实际中是可能三维受力的,但其侧向刚度小或简化计算方法等原因,不考虑其平面外的承载功能,视作平面结构体系进行分析和计算。
预应力平面结构体系包括预应力梁(预应力轴心受压,受拉构件),及楼盖系统、预应力钢桁架、预应力拱架、预应力框架结构、吊挂结构以及索绳结构体系。
2.1 预应力轴心受拉压杆件体系图2-1 预应力拉杆图预应力轴心受拉杆件一般由刚性杆件和柔性杆件组成。
拉杆的受力和强度计算预应力轴心拉杆的最大承载力计算是以荷载作用下刚性杆与拉索中的应力同时达到各自材料的强度设计值为准则的。
图2-2 预应力拉杆分步受力曲线图先张法与中张法的区别先张法根据内力平衡原则可列出各阶段方程式:预应力阶段:022011x A A σσ==荷载阶段:0111()(202)21122F f A f A f A f a σσ=++-=+式中 12120102A A f f x F σσ-----刚性杆和拉索截面积刚性杆和拉索的强度设计值刚性杆和拉索预应力力度计入分项系数的拉索预应力计入分项系数的外加荷载值从荷载作用下刚性杆与拉索的变形量相等条件,可得协调方程式:从上面三式中可以得出满足设计准则的刚性杆及拉索的截面积公式:式中m=221,211,,E f k E E E f =为刚性杆和拉锁的弹性模量 中张法中先令刚性杆首先承受部分荷载FP,然后施加预应力,最后刚性杆与拉索共同承受其余荷载Fq 至各自的强度设计值。
这种方法可使材料的强度幅值得到更充分的利用,因此经济效益比先张法好。
根据力的平衡方程与变形协调方程同样得到中张法时所需的刚性杆及拉索截面积公式:2.2 预应力实腹梁预应力实腹梁的研究与应用在国内外都比较久远与普遍,主要分为三类,一是拉索预应力梁,二是变形预应力梁,三是支座位移预应力梁。
单跨简直梁的拉索布置都在受拉的下翼缘一侧,连续梁原理类似,拉索虽不一定布置在下翼缘,但必须是布置在受拉翼缘一侧。
拉索的形式主要有三种:一是直线形,最常用;二是折线形,用在梁需要较大卸载弯矩时;三是曲线形,用在支座反力较大时;一般情况下可直线布索,索锚头置于梁端,构造简单方便。
跨度较大时为节省材料也可只在跨中布索,同时锚头也移向跨中,锚头构造容易对翼缘及腹板产生应力集中降低耐久性,尤其对承受动力荷载的结构不利。
考虑引入较大卸载弯矩时可以加大预应力力臂而在下翼缘下部增设撑杆,预应力索从梁端及撑杆端通过形成折线。
当支座反力较大时可以考虑提高预应力效应亦可沿全跨曲线布置,梁端拉索的方向与主拉应力方向一致,对卸载有利。
梁跨较长时可在跨中区段重叠布索,拉索根数随梁跨弯矩大小变化,可节约材料。
拉索预应力简支梁形式关于拉索预应力梁的节点设计根据受力力度可选用钢缆、钢绞线、高强钢丝束作拉索。
力度较小时可采用高强圆钢借助螺帽拧紧,力度较大时也可采用环形钢丝束用顶推法张拉。
在锚头连接处拉索的巨大集中荷载传至梁上。
在梁的腹板及翼缘处引起很大局部应力,应在相应位置设置辅助加劲肋。
以保证腹板的稳定性及均匀受力。
为了保证张拉过程中下翼缘的稳定性,应设定位板沿索长方向将拉索与下翼缘相连以保证索与下翼缘共同工作。
这些带有过索孔的定位隔板允许索在纵向自由位移而阻止翼缘在梁平面外翘曲。
定位隔板的间距可由下翼缘受压时稳定性的近似验算公式确定:2T ET Ex X X f A W γγσϕ=+≤其中ϕ -----梁下翼缘板对垂直轴长细比而确定的抗压稳定系数,所取翼板的自由长度即为定位隔板间距。
X------拉索预应力e------ 拉索至梁截面重心距离A 2W ------为梁截面面积及下翼缘抵抗矩t γ为张拉系数另外根据下式还可以确定保证翼缘稳定时拉索的最大允许张拉应力为:X=22()t fAW r w Ae ϕ+拉索的锚固节点构造图2.3预应力平面桁架体系平面的桁架是预应力钢筋领域中研究的最早的,最广泛的一种结构。
因此在许多工程领域都得到应用。
其中尤以简支桁架、连续桁架、悬臂桁架、拱式桁架和立体桁架研究和应用较多。
绝大多数是借助张拉锚固于支座和节点间的拉索而引入预应力的, 所以又称其为拉索预应力桁架。
平面结构体系中预应力钢桁架的类型多种多样 如钢 混凝土混合钢桁架、钢索桁架、弹性变形钢桁架、张弦梁式钢桁架及拉索钢桁架等。
他们都是利用各种手段在承受全部荷载之前单次或多次地引入预应力以对多数杆件卸载、降低内力峰值或提高结构刚度。
目前在国内外研究和应用较多的当属后者。
桁架的形式取决于跨度、荷载及功能的要求外, 还要考虑预应力的经济效益与工艺可能。
一般单跨时采用平行弦桁架, 制造安装方便(图, a、b) 。
预应力钢桁架的拉索一般布置在拉杆范围内,如悬臂桁架布置于桁架上弦,简支桁架布置于下弦,连续桁架布置于跨中下弦和支座处上弦。
当弦杆的内力差异较大时,可按受力大小相应重叠布索以节约索材。
也可以用不贯穿全跨长的整体布索方案改善部分杆件的受力条件,尽量减少增载杆的出现。
预应力桁架的高度理应不大于非预应力桁架高度,一般不大于1/10~1/12 跨长。
廓外布索时宜取拉索至跨中上弦高度为1/6~1/8 跨长。
如下图所示。
桁架的构造要根据杆件的内力大小选择合适的型钢截面,般可选用成对热轧角钢组成的截面, 但条件允许时采用封闭截面更为合适, 如圆管、方管或对焊角钢截面,不仅便于拉索的维护,而且减少拉索锚头的数量。
并且这种对称封闭截面,具有等稳定性, 能承受较大的预压应力。
轻型钢结构可选用单角钢或冷弯薄壁型钢,重型桁架时则选用工字钢和槽钢组成的截面,便于拉索的设置和监护。
双腹板的焊接封闭截面,具有较好的稳定性, 适于较大内力的受压构件。
杆件截面的各种形式为保证杆件与拉索的共同工作, 要每问隔40 一50 倍截面最小回转半径的距离用隔板将拉索与杆件相连。
隔板沿接触边与杆肢焊牢, 隔板上设孔洞允许拉索穿越。
孔与索的间隙尽可能小些(1 一Z m m )既可允许拉索在幅孔中纵向自由伸缩, 又可保证拉索与杆件横向共同工作。
也可用圆管段或角钢段代替隔板, 构造简单, 但其加固效果不如隔板。
局部预应力的拉索沿杆长布置时应位于杆件截面的重心或轴对称位置以保证施加预应力时杆件轴向受力。
整体预应力的拉索布置要考虑在桁架中产生最大的预应力效益, 即其布索方案可以产生最多数量的卸载杆, 最少数量的增载杆和中性杆。
其拉索穿越杆件截面时仍应遵守轴对称布置原则, 以防止张拉时在桁架平面外失稳。
拉索预应力钢桁架结构的节点设计关键在于拉索的锚固处的节点设计和转折处的节点设计。
在一般工程中是将预应力平面桁架的锚固节点和转折节点分开设计,因为这样可以使节点构造简化,便于节点设计以及施工。
拉索预应力钢桁架属于平面桁架结构,其节点处受力处于桁架平面内,故依然可按普通平面桁架采用节点板进行节点连接设计。
但由于预应力的引入,使得节点板上的应力分布比较复杂。
其分布不是按线性分布的,但只要在设计时能保证节点板上的最大应力不大于材料强度即可保证结构安全。
对于节点设计上来说,受压节点要比受拉节点容易设计,因此应尽量将桁架节点设计为受压节点而非受拉节点。
节点的构造以及节点处焊缝必须保证安全可靠地传递拉索张力,并且节点板尺寸选取及布置要考虑各杆件合力能通过节点板重心。
此外,在转折处节点设计中,还应考虑拉索强度的折减以及构件之间的摩阻力影响。
钢结构桁架中还有一种错列桁架,该体系由WiIIiam LeMessurier 的研究小组在20 世纪60 年代初期提出,目的是为高层公寓建筑提供更经济的结构形式,美国麻省理工学院在20 世纪60 年代中期将其开发成功。
错列桁架体系中,对节点采用何种方案设计,刚性连接还是柔性连接(铰接)。
许多文献中都少有提及。
由于节点的做法直接影响到结构内力的分析,比如,能准确建立结构分析(有限元)模型的前提条件是已经明确了结构中节点做法,再明确是刚性、半刚性节点还是柔性节点后,程序才能够准确模拟。