标准化钢筋加工棚做法ppt课件
- 格式:ppt
- 大小:38.51 MB
- 文档页数:26
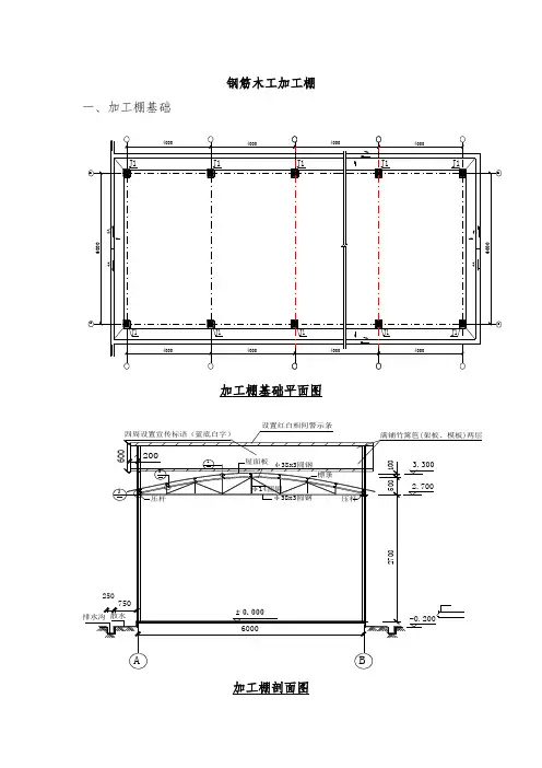
钢筋木工加工棚一、加工棚基础加工棚基础平面图加工棚剖面图加工棚基础平面图说明:本加工棚为工具式,可周转利用,加工棚外设散水明沟,确保排水畅通。
加工棚基础说明:1、如无筋基础不能满足加工棚安全要求时,可浇灌有筋基础。
2、加工棚内地面需进行硬化,采用C20砼。
3、基础本加工棚为工具式,可周转利用,加工棚外设散水明沟,确保排水畅通。
4、该防护棚主要作用是防止高处落物伤人和保护机械设备,采用角钢焊接而成的,柱子采用方钢或圆形钢柱。
防护棚上方四周可挂安全警示标志牌和宣传标语。
5.在建筑物危险半径以内或建筑物高度大于24米以上时,必须采用双层防护。
在塔吊半径以外或建筑物高度小于24米时,可采用单层防护,棚内设施、设备有防雨要求时,防护棚应有防雨措施。
6.防护棚内的防护栏杆刷红白油漆相间@300,其余所有杆件刷黄色油漆。
7.该防护棚设计宽度为6米,高度为4米,如长度不够可增加一跨但结构不得随意改动。
8.开关箱的摆放位置应靠近操作人员,与所控制设备的距离不加工棚有筋基础加工棚无筋基础1001501501002280803-3φ6@2004011010015015010020010033J-1100501501505010015015050100501005540110550.000-0.200φ6@200φ6@200φ6@200得大于3米。
木工棚内应设置灭火器。
钢筋加工棚搭设说明
一、钢筋加工棚长18米X宽6米,上部高1.8米,上部中间间隔净空0.6米,双层、周边加防护栏杆和1米高档脚板,刷0.5米一道红白油漆。
用模板封闭,防护栏杆立杆间距1.5米,用安全网围护。
二、4个柱0.80X0.80米,间隔3.2米,每个柱12根立杆,(4个角,每个角4根+每个角中间4根+顺6米宽方向两个面中间再加一边2根X2个面=4根,共计12根)。
入土0.3米用砼浇灌,地基平整,上部距地3.9米(6米—入土0.3米—上部1.8米=3.9米)。
三、每个柱下部距地0.2米加扫地杆,一般中间间隔1.2米高(根据实际情况调整),每根杆用扣件、钢管加固。
四、柱距( 18米—3.2米X3跨—0.8米X4根柱)÷2边=单边2.7米。
五、加斜撑距下部主节点必须在0.2——0.3米以内,柱主节点离地大约2米左右,两边每根柱有8根斜撑(2根柱X8根=16根),中间两根柱每根有6根斜撑(2根柱X6根=12根),距最边上第二根水平杆左右位置,中间选在柱中间节点加固,并且斜撑上下都要有加固的扣件。
六、平杆宽6米距离10根,间距0.6米,柱两边2根+一边4根X两个面=10根。
长18米距离28根,间距0.6米,每中间间隔4根。
4根X5跨+每根柱2根x4根柱=20+8根=28根。
七、四个角及中间加缆风绳(钢丝绳、化篮螺杆)加固六个点(地锚)。
平时取掉,台风、大雨时加固。
钢筋加工场标准化1 场地选址1.1钢筋加工场以施工标段为单位集中设置,合理选择设置地点,减少二次搬运量,做到加工与施工互不干扰。
1.2易产生粉尘、有害气体的加工场、存放场应采取除尘、有害气体净化措施,且远离生活区、居民区,尽量将加工厂设于场地下风向。
2场地建设2.1钢筋加工场必须实行封闭管理,可釆用通透式的围栏或彩钢板进行围护,钢筋加工场应作硬化处理并做好排水。
钢筋加工棚内地面应用5cm 厚C15 砼进行硬化,有车辆行驶区砼硬化厚度为12~15cm。
2.2 钢筋加工占地不宜小于表 2-1所列,场内应分区合理,便于施工管理,表 2-1 钢筋加工场地面积要求一览表2.3配备桁吊或龙门吊,并设置防10级台风的保护措施。
按照其使用功能分为:原材料堆放区、钢筋下料区、加工制作区、半成品堆放区。
2.4钢筋加工区、成品堆放区应搭设钢筋加工棚,加工棚顶棚及结构原则采用钢结构搭设。
3材料堆放3.1 钢筋应垫高堆放要离地20cm 以上,下部支点应以保证钢筋不变形为原则。
3.2钢绞线的存放应保持干燥,防止被雨水淋湿。
3.3已经加工好的钢筋半成品应编号堆放,在旁边设置钢筋加工标识牌,标明其型号、规格、长度、编号等参数,防止用错。
4 施工临时用电4.1场内施工用电应规范管理,各作业区用电回路分开设置,加设断路器和漏电保护器。
4.2照明设施应加设网罩防护。
4.3场内消防设施符合防火要求。
钢筋加工棚内应设置4Kg干粉灭火器2套,灭火砂箱(1.0M3)1个,铁锹2把,铁桶2只。
5施工管理5.1钢筋加工场应实行封闭管理,储存区、加工区、成品区布设合理。
项目部应根据钢筋加工制作的工艺需求配置功能齐全的加工制作设备,所有的钢筋加工设备都应安装在设置防雨棚的制作加工区内。
5.2加工场内醒目位置应设置工程公示牌、施工平面布置图、安全生产牌、消防保卫牌、管理人员名单及监督电话牌、文明施工牌等明示标志。
5.3 焊接、切割场所应设置禁止标志、警告标志。
钢筋加工棚标准化图集钢筋加工棚是建筑行业中常见的设备,用于对钢筋进行切割、弯曲、焊接等加工,是建筑施工中不可或缺的重要设备。
为了提高钢筋加工棚的效率和安全性,标准化图集的制作显得尤为重要。
本文将针对钢筋加工棚标准化图集进行详细介绍,以期为相关行业提供参考和指导。
一、钢筋加工棚的结构图。
钢筋加工棚的结构图是对其整体结构和各部件的详细展示,包括整体框架、传动装置、控制系统等。
结构图的制作需要考虑设备的稳定性、安全性和操作便捷性,以及各部件之间的配合关系。
通过结构图,可以清晰地了解钢筋加工棚的整体布局和各部件的功能,为设备的安装和维护提供参考依据。
二、钢筋加工棚的工作原理图。
工作原理图是对钢筋加工棚工作过程中各部件的协调配合进行详细展示,包括电气控制系统、液压系统、机械传动系统等。
工作原理图的制作需要考虑设备的工作流程和各部件之间的协调配合,以及安全保护装置的设置。
通过工作原理图,可以清晰地了解钢筋加工棚的工作过程和各部件的作用,为设备的操作和维护提供参考依据。
三、钢筋加工棚的安全防护图。
安全防护图是对钢筋加工棚安全防护装置的设置进行详细展示,包括警示标识、紧急停车装置、防护罩等。
安全防护图的制作需要考虑设备在使用过程中可能出现的安全隐患,以及如何通过安全防护装置来保障操作人员的安全。
通过安全防护图,可以清晰地了解钢筋加工棚的安全防护措施,为设备的安全操作提供参考依据。
四、钢筋加工棚的维护保养图。
维护保养图是对钢筋加工棚的维护保养工作进行详细展示,包括设备的清洁、润滑、检查、调整等。
维护保养图的制作需要考虑设备在长期使用过程中可能出现的磨损和故障,以及如何通过维护保养工作来延长设备的使用寿命。
通过维护保养图,可以清晰地了解钢筋加工棚的维护保养工作内容和周期,为设备的正常运行提供参考依据。
五、钢筋加工棚的使用说明图。
使用说明图是对钢筋加工棚的操作流程和注意事项进行详细展示,包括设备的启动、停车、调整、故障处理等。
钢筋棚标准化一、设计标准钢筋棚的设计应符合国家相关标准,包括建筑结构设计规范、安全防范标准等。
在设计过程中,需要考虑结构强度、稳定性、耐久性等方面的要求,确保钢筋棚在使用过程中安全可靠。
二、材料标准钢筋棚所使用的材料应符合相关规范和标准,包括钢筋、钢板、焊接材料等。
对于钢筋的直径、材质、力学性能等方面需进行严格检验,确保其符合设计要求。
同时,对于其他材料也需要进行质量检验,如焊接材料的质量、焊接工艺等。
三、施工标准钢筋棚的施工应遵循相关施工规范和标准,包括建筑结构施工规范、电气施工规范等。
在施工过程中,需要注意以下几点:1.钢筋加工:钢筋加工前应对钢筋进行调直、除锈等处理,加工过程中应严格按照设计图纸进行切割和加工,确保钢筋的尺寸和形状符合要求。
2.焊接工艺:钢筋棚的焊接工艺应采用合适的焊接方法,确保焊接质量符合要求。
同时,在焊接过程中应注意安全,避免发生意外事故。
3.安装调试:钢筋棚安装完成后需要进行调试,确保其结构稳定、安全可靠。
对于安装调试过程中发现的问题应及时进行处理,确保钢筋棚的正常使用。
四、尺寸要求钢筋棚的尺寸应符合设计要求,长度、宽度、高度等尺寸应符合相关标准。
同时,在制作过程中需要注意尺寸的精度和误差,避免影响使用效果。
五、屋面要求钢筋棚的屋面应具有一定的防水、防风、防晒等功能,以保障内部物品的安全。
因此,在设计和施工过程中需要注意以下几点:1.防水材料的选择:钢筋棚的防水材料应选择耐老化、耐腐蚀、耐水性的材料,如防水卷材或防水涂料等。
同时,在施工过程中应注意防水层的施工质量,确保其防水效果。
2.防风措施:钢筋棚的防风措施应采用可靠的防风固定措施,避免大风天气下发生晃动或倒塌等事故。
一般可采用钢板固定、钢丝绳固定等方式进行防风固定。
3.防晒措施:钢筋棚的防晒措施可采用遮阳网或涂刷防晒涂料等方式进行保护。
遮阳网可选择密度较高的材质,以减少阳光照射;防晒涂料则可选择耐高温、耐紫外线、耐腐蚀的涂料进行涂刷。
瓯北12#地块农房改造集聚一期建设项目钢筋加工棚搭设方案h /7J7H77T ■WSW二二二lbh>L—:中国建筑一局(集团)有限公司瓯北12#地块农房改造集聚一期建设项目部2013年12月施工现场标化――钢筋加工棚的制作一、钢筋加工棚的基础1 、钢筋加工棚基础放线以3m—个点,各点之间在同一条直线上。
2 、以放线点为基准点外开挖宽100x100cm 深度1m3、钢筋加工棚预埋件:钢板厚10mm宽60>60cm 钢板上焊三排①22mm长80cm弯15d 共9根钢筋4、预埋件用水准仪打水平,要求预埋件在同一水平面上,预埋整齐,用C20的混凝土夯实硬化。
二、钢筋加工棚主架5、钢筋加工棚立柱:国标①200mm6mn钢管的中心点每3m—根做为立柱,每根立柱预先和600 X500m>0mn的钢板及4块边长为150>150mn厚度为10mm的等边三角钢板支腿焊制在一起,然后采用螺栓连接在600X600mn预埋件钢板上,立柱咼3.8m。
(见详图)6、立柱离预埋件3m做钢筋加工棚主架,主架 宽6m 长12m 高80cm7、立柱离预埋件3m 位置,在立柱四个方向分 别焊接厚10mn 钢板打两 个①14mm 勺孔,以立柱中心点两边挑14#槽钢各3m 每隔3m 设一 道,采用 ①14mrh50mn 螺丝固定,立柱与立柱之间用槽钢连接螺丝固^定O8、挑出14#槽钢用 ①48mn 钢管 ①14mrh50mn 螺丝斜拉立柱,槽钢 必须同一水平面,迎着短边方向每隔 1.5m 焊接一根高66cm ①48mm 钢管立柱,长边方向每隔3m 焊接①48mm 一根钢管立柱,便于用钢管 搭设第二层防护。
三、双层防护搭设及刷油漆上色9 、钢筋加工棚除立 柱以外的刷防锈漆一遍(槽钢、①48mm 钢管、 钢板及焊接处都要刷防 锈漆),防锈漆干后刷 一道黄色油漆。
10、铺第一层防护: 在槽钢主架上,沿短边方向每隔1.5m 搭设①48mm 钢管骨架(加工棚中心位置由槽钢代替钢 管),短边方向槽钢中心位置需预先开 ①60mn 孔,以便钢管从中穿 过,,二.三O二二3000]iim-3000mm300mm4000>250>50mn脚手板铺设在槽钢及钢管上用铁丝绑扎,要求方木铺设整齐美观。
1 . 木工加工棚工具式加工棚搭设尺寸宜选用3000mm×4500mm 单组加工棚拼装加长,如木工加工棚一,具体尺寸根据现场实际情况确定。
当对环境保护有特殊要求的项目,采用板房搭设封闭式木工房,如木工加工棚二尺宜为5400mm×5400mm。
1. 搭设在塔吊回转半径和建筑物周边的工具式木工加工棚必须设置双层硬质防护。
2. 加工车间地面需硬化,宜选用砼地面。
3. 立柱与地面连接方式与工具式钢筋加工棚相同。
4. 加工车间顶部应张挂安全警示标识和安全宣传用语的横幅,横幅宽度宜为1m。
5. 工具式木工加工棚需在醒目处挂操作规程图牌,图牌的尺寸为:宽×高=3000mm×1500mm,图牌朝内。
6.各种型材及构配件规格为参考值,具体规格应根据当地风荷载、雪荷载进行核算1.桁架除主梁,全部采用50×150mm 方钢;2. 桁架主梁采用150×150mm;2.顶铺0.5mm 厚压型钢板;4. 上层檩条上设置20×20mm 网孔钢板网;5.下层檩条上方铺设脚手板;6. 下层檩条下挂0.5mm 厚压型钢板或塑料扣板吊顶;7. 檩条为40×40 方钢;8. 立柱与桁架各焊接一片250×250×10mm 耳板,以M12 螺栓连接;9. 立柱为150×150mm 方钢提示:图纸(图片)仅供参考以实际生产加工图纸数据为准。
河南新乡锦银丰护栏厂(henan xinxiang jinyinfeng fence factory)是成立于2002年的生产型老护栏厂。
是建筑施工安全定型标准化产品研发、生产、销售和服务的综合型企业,全称为河南新乡锦银丰金属制品有限公司,生产热镀锌喷塑护栏,锌钢阳台护栏,空调栏杆,仿木纹护栏,组装楼梯,锌钢百叶窗,工地护栏网,基坑临边防护,建筑工地围栏,临时围挡,建筑防护栏杆,工地电梯门,电梯井防护门,爬架网,工地木工棚,钢筋加工棚,工地防护棚,安全通道,标准化建筑工地组装式钢筋加工棚,围墙护栏,铁艺护栏等,设备齐全质量稳定的实体生产型护栏厂家,品种齐全,在建筑行业拥有良好口碑的建筑护栏生产厂家。
一、钢筋加工棚的基础1、钢筋加工棚基础放线以3m一个点,各点之间在同一条直线上。
2、以放线点为基准点外开挖宽800mm、长 800mm、深度 800mm3、钢筋加工棚预埋件:钢板500mm×350mm×16××,钢板上焊5 根Φ22mm、长 700mm弯 15d钢筋。
4、预埋件用水平仪取水平,要求预埋件同一水平面上,要求预埋齐整,用C25的混凝土夯实硬化。
二、钢筋加工棚主架5、钢筋加工棚立柱: 18 的工字钢做为立柱,立柱采纳螺栓连结在厚16mm的预埋件钢板上,立柱高 3.8m。
6、立柱离预埋件 3m做钢筋加工棚主架宽 6m 长 12m高 80cm;7 立柱与立柱之间在3M高的地点焊上 12#的工字钢,将立柱进行加固。
8、立柱顶焊上钢板( 350mm×200mm×10mm),横梁采纳 12#的工字钢,在此中心 3M处焊上钢板( 350mm×200mm×10mm),两块钢板搭接采纳 M18的螺栓连结。
9 在 12#工字钢上搭设钢管,纵方向上每 1.5M 搭设一根 6M的钢管(Φ48mm,3.5mm), 横方向上每 0.6M 搭设一根6M 的钢管。
在周围搭设 800mm高的钢管,横方向用 6M的钢管进行拉接9钢板加工的尺寸大三、双层防备搭设及刷油漆上色10、钢筋加工棚除立柱之外的刷防锈漆一遍(Φ48mm钢管、钢板及焊接处都要刷防锈漆),防锈漆干后刷一道黄色油漆。
11、铺第一层防备:方木铺设在12 工字钢上用铁丝绑扎,要求方木铺设齐整雅观;用模板装订在方木上,要求模板装订铺设齐整、密封美观。
12、铺第二层防备: a、用Φ48mm钢管搭设离 2 工字钢钢底部80cm高的骨架,竖向与横向地点(与立柱同排的为竖向)每隔 1.5m 搭设一排,要求搭设周边与下边一排周边同一垂直面;b、模板满铺绑扎固定在Φ 48mm钢管上,并在模板上铺布防雨彩钢板用铁钉固定,做到防雨水。
2.8.1 建设规模要求路线短、施工场地集中或运输条件好的项目可将钢筋加工完全集中,施工线路较长时可考虑增设临时钢筋加工厂(钢筋拼装场)。
钢筋加工厂建设面积主要参考业主招标文件要求和实际需要。
一般桩基钢筋笼、墩柱钢筋笼加工区域平均每5 平方米每天能加工1 米长钢筋笼,但总面积不得小于500 平方;一般下构、箱梁等半成品箍筋、曲筋加工厂地按每平米加工0.5 吨考虑;一般盖梁骨架钢筋加工及拼装场地平均每150 平方米每天能加工拼装1 个盖梁骨架。
表2.8.1 钢筋厂分级规模加工总量(吨)钢筋厂面积(m2)小〉1000 〉800较小≥3000 ≥2000中≥6000 ≥3000较大≥10000 ≥4000大≥15000 ≥5000特大≥20000 ≥60002.8.2 标准建设要点1、选址基本要求(1)选择交通、水电便利的位置,尽量避开居民集中地带。
(2)严禁设置在河床河滩、洪水位下等危险区域,避开取土、弃土场、坍 方等地段。
(3)避开高压线路及高大树木。
与通信、天然气等地下管线保持一定距离。
2、硬件设施要求 (1)总体要求①钢筋加工厂的规模及功能应符合投标文件承诺的有关要求。
功能区划分包括加工制作区、原材料堆放区、半成品、成品堆放区、废料堆放区、运输及安全 通道等;②钢筋加工厂内消防设施、临时用电,并按照相关行业主管部门颁布的有关 文件规定办理。
(2)具体要求 ①面积集中式钢筋加工厂面积一般不少于3000 ㎡;②场地处理A、钢筋加工厂的所有场地必须进行混凝土硬化处理,场地、道路平整采用碎石或砂砾垫层(厚度≥20cm);场地硬化采用C20 混凝土(厚度≥20cm);道路硬化采用C30 混凝土(厚度≥25cm),场地混凝土浇筑后要及时分块切割伸缩缝,道路应设排水沟;B、场地硬化一般按照四周低,中心高的原则进行,面层排水坡度不应小于1.5%,场地四周应设置排水沟。
排水沟底面采用M7.5 砂浆进行抹面,做到雨天场地不积水、不泥泞,晴天不扬尘;场地处理参照“水泥混凝土搅拌站标准化建设”部分设置。