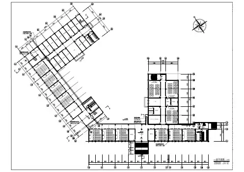
办公室教室教室审 定计设总程目称项工工程负责人对校审图核制总平面图阜阳市城乡规划设计研究院别图设计号期号日图2013.06新建教学楼4F原有建筑大门阜阳经济技术教学楼阜阳经济技术开发区六里小学教学楼}教室1#楼梯间大样详见大样详图卫生间大样详见大样详图2#楼梯间大样详见大样详图办公室教室教室阜阳经济技术开发区六里小学教学楼}教室上人屋面阜阳经济技术开发区六里小学教学楼}杂物间雨篷不上人屋面阜阳经济技术开发区六里小学教学楼}阜阳经济技术开发区六里小学教学楼}阜阳经济技术开发区六里小学教学楼}阜阳经济技术开发区六里小学教学楼}阜阳经济技术开发区六里小学教学楼}阜阳经济技术开发区六里小学教学楼}阜阳经济技术开发区六里小学教学楼}