日标角钢规格,日标槽钢规格,欧标工字钢规格
- 格式:xls
- 大小:38.00 KB
- 文档页数:14
工字钢规格表及工字钢理论重量表工字钢也称钢梁,是截面为工字形的长条钢材。
其规格以腰高( h)*腿宽(b)*腰厚(d)的毫数表示,如“工160*88*6”,即表示腰高为160毫米,腿宽为88毫米,腰厚为6毫米的工字钢。
工字钢的规格也可用型号表示,型号表示腰高的厘米数,如工16#。
腰高相同的工字钢,如有几种不同的腿宽和腰厚,需在型号右边加a b c 予以区别,如32a# 32b# 32c#等。
工字钢分普通工字钢和轻型工字钢,热轧普通工字钢的规格为10-63#。
经供需双方协议供应的热轧普通工字钢规格为12-55#。
工字钢广泛用于各种建筑结构、桥梁、车辆、支架、机械等。
品名型号明细规格理论重量工字钢10# 100*63*4.5 11.261工字钢12# 120*74*5.0 13.987工字钢14# 140*80*5.5 16.89工字钢16# 160*88*6.0 20.513工字钢18# 180*94*6.5 24.143工字钢20#A 200*100*7.0 27.929工字钢20#B 200*102*9.0 31.069工字钢22#A 220*110*7.5 33.07工字钢22#B 220*112*9.5 36.542工字钢25#A 250*116*8.0 38.105工字钢25#B 250*118*10.0 42.03工字钢尺寸规格表工字钢理论重量表型号高度*脚宽*腰厚理重10 100*68*4.5 11.26112 120*74*5 13.987 14 140*88*6 20.513 18 180*94*6.5 24.143 20a 200*100*7 27.929 20b 200*102*9 31.069 22a 220*110*7.5 33.0722b 220*112*9.5 38.10525b 250*118*10 42.0328a 280*122*8.5 43.49228b 280*124*10.5 47.88830a 300*126*9 48.084 30b 300*128*11 52.79430c 300*130*13 52.71732b 320*132*11.5 57.74132c 320*134*13.5 62.76536a 360*136*10 60.03736b 360*138*12 65.68936c 360*140*14 71.34140a 400*142*10.5 67.59840b 400*144*12.5 73.87840c 400*146*14.5 80.15845a 450*150*11.5 80.4245b 450*152*13.5 87.48545c 450*154*15.5 94.5556a 560*166*12.5 106.31656b 560*168*14.5 115.10856c 560*170*16.5 123.963a 630*176*13 121.407 63b 630*178*15 131.298 63c 630*180*17 141.189Welcome To Download欢迎您的下载,资料仅供参考!。
日标角钢产品特点
日标角钢,又称日本标准角钢,是指按照日本国家标准(JIS G 3192)生产的角钢。
以下是日标角钢的一些产品特点:
1. 规格齐全:日标角钢的规格从较小的小角钢到较大尺寸的大角钢,应有尽有,可以满足各种工程需求。
2. 精度高:日标角钢的尺寸精度高,公差小,保证了产品的质量。
3. 表面质量好:日标角钢的表面光滑,无裂纹、夹杂、折叠等缺陷,提高了产品的使用寿命。
4. 性能稳定:日标角钢的力学性能、化学性能和工艺性能都稳定,保证了产品的可靠性。
5. 环保:日标角钢的生产过程中,注重环保,减少了对环境的影响。
6. 售后服务好:日标角钢的生产商通常都提供优质的售后服务,包括产品安装、使用培训、故障维修等。
以上只是日标角钢的一些基本特点,具体的特性还需要根据产品的具体规格和生产厂商来确定。
常用型钢规格表普通工字钢符号:h—高度;b—宽度;tw—腹板厚度;t—翼缘平均厚度;I—惯性矩;W—截面模量i—回转半径;Sx—半截面的面积矩;长度:型号10~18,长5~19m;型号20~63,长6~19m。
型号尺寸〔mm〕截面面积(cm2)理论重量(kg/m)x-x轴y-y轴hmmbmmt wmmtmmRmmI xcm4W xcm3i xcmI x/S xcmI ycm4W ycm3I ycm10 100 68 4.5 7.6 6.5 14.3 11.2 245 49 4.14 8.69 33 9.6 1.51 12.6 126 74 5 8.4 7 18.1 14.2 488 77 5.19 11 47 12.7 1.61 14 140 80 5.5 9.1 7.5 21.5 16.9 712 102 5.75 12.2 64 16.1 1.73 16 160 88 6 9.9 8 26.1 20.5 1127 141 6.57 13.9 93 21.1 1.89 18 180 94 6.5 10.7 8.5 30.7 24.1 1699 185 7.37 15.4 123 26.2 2.0020 a200100 711.4 935.5 27.9 2369 237 8.16 17.4 158 31.6 2.11b 102 9 39.5 31.1 2502 250 7.95 17.1 169 33.1 2.0722 a220110 7.512.3 9.542.1 33 3406 310 8.99 19.2 226 41.1 2.32b 112 9.5 46.5 36.5 3583 326 8.78 18.9 240 42.9 2.2725 a250116 813 1048.5 38.1 5017 401 10.2 21.7 280 48.4 2.4b 118 10 53.5 42 5278 422 9.93 21.4 297 50.4 2.3628 a280122 8.513.7 10.555.4 43.5 7115 508 11.3 24.3 344 56.4 2.49b 124 10.5 61 47.9 7481 534 11.1 24 364 58.7 2.4432 a320130 9.515 11.567.1 52.7 11080 692 12.8 27.7 459 70.6 2.62b 132 11.5 73.5 57.7 11626 727 12.6 27.3 484 73.3 2.57c 134 13.5 79.9 62.7 12173 761 12.3 26.9 510 76.1 2.5336 a360136 1015.8 1276.4 60 15796 878 14.4 31 555 81.6 2.69b 138 12 83.6 65.6 16574 921 14.1 30.6 584 84.6 2.64c 140 14 90.8 71.3 17351 964 13.8 30.2 614 87.7 2.640 a400142 10.516.5 12.586.1 67.6 21714 1086 15.9 34.4 660 92.9 2.77b 144 12.5 94.1 73.8 22781 1139 15.6 33.9 693 96.2 2.71c 146 14.5 102 80.1 23847 1192 15.3 33.5 727 99.7 2.6745 a450150 11.518 13.5102 80.4 32241 1433 17.7 38.5 855 114 2.89b 152 13.5 111 87.4 33759 1500 17.4 38.1 895 118 2.84c 154 15.5 120 94.5 35278 1568 17.1 37.6 938 122 2.7950 a500158 1220 14119 93.6 46472 1859 19.7 42.9 1122 142 3.07b 160 14 129 101 48556 1942 19.4 42.3 1171 146 3.01c 162 16 139 109 50639 2026 19.1 41.9 1224 151 2.9656 a560166 12.521 14.5135 106 65576 2342 22 47.9 1366 165 3.18b 168 14.5 147 115 68503 2447 21.6 47.3 1424 170 3.12c 170 16.5 158 124 71430 2551 21.3 46.8 1485 175 3.0763 a630176 1322 15155 122 94004 2984 24.7 53.8 1702 194 3.32 b 178 15 167 131 98171 3117 24.2 53.2 1771 199 3.25H型钢符号:h—高度;b—宽度;t1—腹板厚度;t2—翼缘厚度;I—惯性矩;W—截面模量i—回转半径;Sx—半截面的面积矩。
日标型钢规格
日标型钢规格是指符合日本标准(JIS)的型钢规格。
根据日本JIS标准,常见的日标型钢规格包括但不限于以下几种:
1. H型钢:例如JIS G3101 SS400,宽度从100mm到400mm,高度从100mm到800mm,厚度从6mm到16mm。
2. I型钢:例如JIS G3192 SS400,宽度从100mm到300mm,
高度从55mm到400mm,厚度从4.5mm到17mm。
3. U型钢:例如JIS G3101 SS400,宽度从50mm到400mm,
高度从25mm到110mm,厚度从4.5mm到14mm。
4. 角钢:例如JIS G3101 SS400,等边角钢边长从20mm到
200mm,厚度从3mm到20mm。
以上只是一些常见的日标型钢规格,实际上还有许多其他规格和种类的日标型钢。
不同的具体型号和用途,规格会有所不同。
在选择具体的日标型钢规格时,还需要考虑到具体的工程需求和规范要求。
1t钢结构,大约和40m2锅炉一t约13m250mm厚棉1m³约20m2拱顶面积计算为圆的面积*系数1.05角钢的规格规格型号材质规格型号材质Q是“屈”字汉语拼音的首位字母,代表屈服点数值(以N每平方毫米为单位),Q235表示屈服强度大于等于235N每平方毫米的钢。
25*25*3 Q235B 90*90*7 Q235B 30*30*3 Q235B 90*90*8 Q235B 30*30*4 Q235B 90*90*9 Q235B 38-*38*3 Q235B 90*90*10 Q235B 38*38*4 Q235B 100*100*8 Q235B 40*40*3 Q235B 100*100*9 Q235B 40*40*4 Q235B 100*100*10 Q235B40*40*5 Q235B 100*100*12 Q235B 50*50*4 Q235B 125*125*8 Q235B 50*50*5 Q235B 125*125*10 Q235B 56*56*5 Q235B 125*125*12 Q235B 56*56*6 Q235B 140*140*10 Q235B 63*63*5 Q235B 140*140*12 Q235B 63*63*6 Q235B 140*140*14 Q235B 70*70*5 Q235B 160*160*10 Q235B 70*70*6 Q235B 160*160*12 Q235B 70*70*7 Q235B 160*160*14 Q235B 75*75*5 Q235B 160*160*16 Q235B 75*75*6 Q235B 180*180*12 Q235B 75*75*7 Q235B 180*180*14 Q235B 80*80*6 Q235B 200*200*12 Q235B 80*80*7 Q235B 200*200*14 Q235B 80*80*8 Q235B不锈钢管圆管规格表:不锈钢板厚度标准@不锈钢板标准厚度Φ3Φ4Φ5Φ6Φ7Φ8Φ9Φ9.5Φ10Φ12.7Φ15.9Φ19.1Φ22.2Φ25.4Φ31.8Φ38.1Φ42.16Φ50.8Φ63.5Φ76.2Φ88.9Φ101.6Φ108Φ114.3Φ127Φ133Φ141Φ159Φ168Φ219Φ273Φ323.85,厚度:0.1~8.0mm;不锈钢管圆管规格表:不锈钢板厚度标准@不锈钢板标准厚度Φ3Φ4Φ5Φ6Φ7Φ8Φ9Φ9.5Φ10Φ12.7Φ15.9Φ19.1Φ22.2Φ25.4Φ31.8Φ38.1Φ42.16Φ50.8Φ63.5Φ76.2Φ88.9Φ101.6Φ108Φ114.3Φ127Φ133Φ141Φ159Φ168Φ219Φ273Φ323.85,厚度:0.1~8.0mm;不锈钢板厚度0.1、0.2/0.3/0.5/0.6/0.7/0.8/0.9/1.0/1.5、2.0/2.5/3.0/4.0/5.0/6.0/8.0/9/10/12/16/18/20/22/25/30mm工字钢规格前面的数字表示型号,决定了外型尺寸。
附录常用型钢规格表普通工字钢符号:h—高度;b—宽度;tw—腹板厚度;t—翼缘平均厚度;I—惯性矩;W—截面模量i—回转半径;Sx—半截面的面积矩;长度:型号10~18,长5~19m;型号20~63,长6~19m。
型号尺寸(mm)截面面积(cm2)理论重量(kg/m)x-x轴y-y轴hmmbmmt wmmtmmRmmI xcm4W xcm3i xcmI x/S xcmI ycm4W ycm3I ycm10 100 68 4.5 7.6 6.5 14.3 11.2 245 49 4.14 8.69 33 9.6 1.51 12.6 126 74 5 8.4 7 18.1 14.2 488 77 5.19 11 47 12.7 1.61 14 140 80 5.5 9.1 7.5 21.5 16.9 712 102 5.75 12.2 64 16.1 1.73 16 160 88 6 9.9 8 26.1 20.5 1127 141 6.57 13.9 93 21.1 1.89 18 180 94 6.5 10.7 8.5 30.7 24.1 1699 185 7.37 15.4 123 26.2 2.0020 a200100 711.4 935.5 27.9 2369 237 8.16 17.4 158 31.6 2.11b 102 9 39.5 31.1 2502 250 7.95 17.1 169 33.1 2.0722 a220110 7.512.3 9.542.1 33 3406 310 8.99 19.2 226 41.1 2.32b 112 9.5 46.5 36.5 3583 326 8.78 18.9 240 42.9 2.2725 a250116 813 1048.5 38.1 5017 401 10.2 21.7 280 48.4 2.4b 118 10 53.5 42 5278 422 9.93 21.4 297 50.4 2.3628 a280122 8.513.7 10.555.4 43.5 7115 508 11.3 24.3 344 56.4 2.49b 124 10.5 61 47.9 7481 534 11.1 24 364 58.7 2.4432 a320130 9.515 11.567.1 52.7 11080 692 12.8 27.7 459 70.6 2.62b 132 11.5 73.5 57.7 11626 727 12.6 27.3 484 73.3 2.57c 134 13.5 79.9 62.7 12173 761 12.3 26.9 510 76.1 2.5336 a360136 1015.8 1276.4 60 15796 878 14.4 31 555 81.6 2.69b 138 12 83.6 65.6 16574 921 14.1 30.6 584 84.6 2.64c 140 14 90.8 71.3 17351 964 13.8 30.2 614 87.7 2.640 a400142 10.516.5 12.586.1 67.6 21714 1086 15.9 34.4 660 92.9 2.77b 144 12.5 94.1 73.8 22781 1139 15.6 33.9 693 96.2 2.71c 146 14.5 102 80.1 23847 1192 15.3 33.5 727 99.7 2.6745 a450150 11.518 13.5102 80.4 32241 1433 17.7 38.5 855 114 2.89b 152 13.5 111 87.4 33759 1500 17.4 38.1 895 118 2.84c 154 15.5 120 94.5 35278 1568 17.1 37.6 938 122 2.7950 a500158 1220 14119 93.6 46472 1859 19.7 42.9 1122 142 3.07b 160 14 129 101 48556 1942 19.4 42.3 1171 146 3.01c 162 16 139 109 50639 2026 19.1 41.9 1224 151 2.9656 a560166 12.521 14.5135 106 65576 2342 22 47.9 1366 165 3.18b 168 14.5 147 115 68503 2447 21.6 47.3 1424 170 3.12c 170 16.5 158 124 71430 2551 21.3 46.8 1485 175 3.0763 a630176 1322 15155 122 94004 2984 24.7 53.8 1702 194 3.32 b 178 15 167 131 98171 3117 24.2 53.2 1771 199 3.25c 780 17 180 141 102339 3249 23.9 52.6 1842 205 3.2H型钢符号:h—高度;b—宽度;t1—腹板厚度;t2—翼缘厚度;I—惯性矩;W—截面模量i—回转半径;Sx—半截面的面积矩。
中外钢材标准对照表常用国内外钢材牌号对照表中国美国日本德国英国法国前苏联国际标准化组织GB AST JIS DIN 、DINEN BS 、BSEN NF 、NFEN ΓOCT ISO 630品名牌号牌号牌号牌号牌号牌号牌号Q195Cr.B Cr.CSS330 SPHC SPHDS185 040 A10 S185S185CT1K ПCTlC П CTl ПCQ215A Cr.C Cr.58SS 330 SPHC040 A12CT2K П—2CT2C П—2 CT2ПC —2 Q235ACr.DSS400 SM400A080A15CT3K П—2CT3C П—2 CT3ПC —2E235B Q235B Cr.DSS400 SM400AS235JR S235JRGl S235JRG2S235JR S235JRGl S235JRG2S235JR S235JRGl S235JRG2CT3K П—3 CT3C П—3 CT3ПC —3 E235B Q255ASS400 SM400ACT4K П—2CT4C П—2 CT4ПC —2 普通碳素结构钢Q275 SS490 CT5C П—2 CT5ПC —2E275A中国美国日本德国英国法国前苏联国际标准化组织GB AST JIS DIN 、DINENBS 、BSEN NF 、NFEN ΓOCT IS0 630品名牌号牌号牌号牌号牌号牌号牌号 08F1008 1010 SPHD SPHE040A1080K П10 1010S10C S12C CKl0 040A12 XCl0 10 C101151015 S15C S17C CKl5 Fe360B 08M15 XCl2 Fe306B 15 C15E4201020 S20C S22C C22IC22 C222025 1025 S25C S28C C25 IC25 C25 25 C25E440 1040 S40C S43C C40 IC40 080M40 C40 40 C40E445 1045 S45C S48C C45 IC45 080A47 C45 45 C45E450 1050 S50C S53C C50 IC50 080M50 C50 50 C50E4 优质碳素结构钢15Mn1019080A1515r中国美国日本德国英国法国前苏联国际标准化组织 GB AST JIS DIN 、DINEN BS 、BSENNF 、NFENΓOCT IS0 630品名牌号牌号牌号牌号牌号牌号牌号 T7(A)SK7 C70W2060A67 060A72 C70E2Uy7TC70T8(A)T72301 WlA —8SK5 SK6 C80W1 060A78 060A81 C80E2Uy8 TC80T8Mn(A)SK5 C85W 060A81 Y75 y8r T10(A) T72301 W1A —91/2 SK3 SK4 C105W11407C105E2Uy10TCl05T11(A) T72301 W1A —10l/2SK3C105W1 1407 C105E2U y11 TCl05碳素工具钢T12(A) T72301 WlA —111/2 SK2 1407 C120E3U y12 TCl20 Crl2T30403(UNS)(D3)SKDl X210Crl2 BD3 X210Crl2 X12 210Crl2Crl2MolVl T30402(UNS)(D2)SKDll X155CrVMo121BD2160CrMoVl25CrMnMo5X ΓM 5CrNiMo T61206(UNS)(L6) SKT4 55NiCrMoV6BH224/5 55NiCrMoV75XHM合金工具钢3Cr2W8V T20821SKD5BH21X30WCrV93X2B8Φ30WCrV9中国美国日本德国英国法国前苏联国际标准化组织GB AST JIS DIN 、DINEN BS 、BSEN NF 、NFEN ΓOCT IS0 630品名牌号牌号牌号牌号牌号牌号牌号Y12 1211 G12110(UNS) SUM12 SUM21 10S20 S10M15 13MF4 A12 10S20 Y12Pb 12L13 SUM22L10SPb2010SPb20 11SMnPb28Y20 1117 G11170(UNS)SUM32 C22 C22 210M15 C22 A20Y40Mn 1144 G11440(UNS)SUM43 226M4445MF6.3 A40Γ 44Mn28Y45Ca 1145C45 C45 C45易切削结构钢Y1Crl8Ni9 SUS303 X8CrNiSl8—9 303S31 303S21 17Q295A Gr.42 Gr.A SPFC490 E295 E295E295 295Q295B Gr.42 Gr.A SPFC490 S275JR S275JR S275JR 295Q345CGr.50Gr.A Gr.C ,Gr.D A808MSPFC590 S335JO S335JO S335JO 345 E355DDQ345EType7 Gr.50 SPFC590 S355NL S355ML S355NL S355ML S355NL S355MLE355E E355DD 低合金结构钢Q420B Cr60 Gr.ESEV295 SEV345S420NL S420MLS420NL S420MLS420NL S420MLS420C E420CC中国美国日本德国英国法国前苏联国际标准化组织GB AST JIS DIN 、DINEN BS 、BSEN NF 、NFEN ΓOCT IS0 630品名牌号牌号牌号牌号牌号牌号牌号 Q420C Gr.B Type7SEV295 SEV345 S420NL S420MLS420NL S420MLS420NL S420MLHS420D E420DD低合金结构钢Q460DGr.65 SM570SMA570W SMA570PS460NL S460MLS460NL S460MLS460NL S460MLE460DD F460E20Mn2 1524 SMn420 P355GH 0355GH P0355GH 22Mn615Cr 5115 SCr415 17Cr3 527A17 15X20Cr 5120 SCr420 20Cr4 590M17 20x 20Cr430Cr 5130 SCr430 34Cr4 34Cr4 34Cr4 30x 34Cr440Cr5140 SCr440 41Cr4 41Cr4 41Cr4 40x 4lCr445Cr5145 SCr445 4lCr4 41Cr4 4lCr4 45x 41Cr430CrMo 4130 SCM430 25CrMo4 25CrMo4 25CrMo4 30xM 25CrMo435CrMo 4317 SCM435 34CrMo4 34CrMo4 34CrMo4 35xM 34CrMo442CrMo 4140 SCM440 42CrMo4 42CrMo4 42CrMo4 38xM 42CrMo438CrMoAl SCM645 41CrAlMo7 905M39 38x2MIoA 41CrAlMo7450CrVA 6150 SCPl0 5lCrV4 51CrV4 51CrV4 50x ΦA 51CrV4合金结构钢40CrMnMo 4140 4142SCM440 42CrM 04 42CrMo4 708Mn4042CrMo4 42CrMo4中国美国日本德国英国法国前苏联国际标准化组织GB AST JIS DIN 、DINEN BS 、BSEN NF 、NFEN ΓOCT ISO630 品名牌号牌号牌号牌号牌号牌号牌号 85 1084 SUP3 CK85 FMR86 TypeDC 55Si2Mn9260 H92600 SUP6 SUP7 55Si7251H6056SC756SiCr760Si2Mn H92600 SUP6 SUP7 60SiCr7 25H60 61SiCr7 61SiCr7 55CrMnA H51550 G51550 SUP9 55Cr3 525A58 527A60 55Cr3 55Cr3 60Si2CrVA 弹簧钢50CrVA H51500 G61500 SUPl0 50CrV4 735A51 50CV4 50x ΦA 5lCrV4 GCr951100 SUJl GCrl552100 SUJ2 100Gr6 100Gr6 WXl5 l 轴承钢9Crl8Mo440C SUS440C Z100CDl7 2l 35W250 36F320M 35A250 M250—35A M250—35A M250—35A 2413 电工钢27QGll0 27P146M27P110M103—27PM103—27PM103—27P3408中国美国日本德国英国法国前苏联国际标准化组织GB AST JIS DIN 、DINEN BS 、BSENNF 、NFEN ΓOCT IS0 630品名牌号牌号牌号牌号牌号牌号牌号 W18Cr4VT12001(UNS)(T1) SKH2BTlHSl8-0-1P18HSl8-0-1 (S1) W18Cr4VCo5T12004(UNS)(T4) SKH3 S18-l-2-5 BT4 HSl8-1-1-5HSl8-1-1-5(S7) 高速工具钢W6Mo5Cr4V2 T11302(UNS)(M2) SKH51 S6-5-2 BM2 HS6-5-2 p6M5HS6-5-2 (S4) 1Crl8Ni9 S30200(UNS)(302) SUS302 X10CrNis 18-9 302S31 302S25 Z12CNl8-09 12X18H912 10 1Crl8Ni9Ti S32100(UNS)(321)SUS321 X6CrNiTi 18-10 X6CrNiTi 18-10 X6CrNiTi 18-10 12X18H 10TX6CrNiTi181011 2Crl3S42000(UNS) (420)SUS420J1X20Crl3420S37 X20Crl3 X20Crl320X13440Mn1043 SWRH42B C40 080M40 1C40 C40 40ΓSL SM 45Mn 1046 SWRH47B C45 080M47 2C45 C45 45ΓSL SM 不锈钢65Mn 1065 65ΓASLSM TypeSC TypDC。
工字钢规格型号表工字钢是一种常用的钢材,具有优良的抗拉强度和强度性能,广泛应用于建筑、桥梁、工厂、高速公路等领域。
根据各个行业和使用场合的需要,工字钢还有许多不同的规格型号,下面就是工字钢的规格型号表。
1、5号工字钢:高度为50mm,底宽为37mm,腰厚为5.5mm,顶厚为6.97mm。
2、6.5号工字钢:高度为65mm,底宽为40mm,腰厚为6.0mm,顶厚为8.04mm。
3、8号工字钢:高度为80mm,底宽为43mm,腰厚为6.0mm,顶厚为8.64mm。
4、10号工字钢:高度为100mm,底宽为48mm,腰厚为5.3mm,顶厚为8.45mm。
5、12号工字钢:高度为120mm,底宽为53mm,腰厚为5.5mm,顶厚为9.03mm。
6、14号工字钢:高度为140mm,底宽为58mm,腰厚为6.0mm,顶厚为9.70mm。
7、16号工字钢:高度为160mm,底宽为63mm,腰厚为6.5mm,顶厚为10.47mm。
8、18号工字钢:高度为180mm,底宽为68mm,腰厚为7.0mm,顶厚为11.26mm。
9、20号工字钢:高度为200mm,底宽为73mm,腰厚为7.0mm,顶厚为12.04mm。
10、22号工字钢:高度为220mm,底宽为78mm,腰厚为7.5mm,顶厚为12.83mm。
11、24号工字钢:高度为240mm,底宽为83mm,腰厚为8.0mm,顶厚为13.62mm。
12、27号工字钢:高度为270mm,底宽为88mm,腰厚为8.5mm,顶厚为14.63mm。
13、30号工字钢:高度为300mm,底宽为94mm,腰厚为8.5mm,顶厚为16.35mm。
14、36号工字钢:高度为360mm,底宽为100mm,腰厚为9.5mm,顶厚为19.55mm。
以上是工字钢的规格型号表,根据钢材的规格型号选择相应的钢材,可以更好地满足所需的工程或场合的使用需求。
日标型钢规格1. 引言型钢是一种常用的结构材料,广泛应用于建筑、桥梁、船舶、机械制造等领域。
为了确保不同厂家生产的型钢具有统一的标准和规格,各国都制定了相应的标准。
本文将重点介绍日本标准中关于型钢规格的内容。
2. 日本标准体系日本的型钢标准主要由日本工业规格(JIS)组成。
JIS是由日本工业标准化协会(JISC)负责制定和管理的一套国家标准。
其中,JIS G系列是关于铁与钢制品的标准,包括了各种型号和规格的钢材。
3. JIS G系列中的型钢规格3.1 型号命名方式在JIS G系列中,每个型号都有一个特定的编号。
以JIS G3101为例,其中“G”代表“铁与钢制品”,“3101”代表该系列下第一个被发布的标准。
3.2 型号分类根据用途和形状特点,JIS G系列中的型钢可以分为多个分类。
常见的分类包括角钢(JIS G3192)、工字钢(JIS G3192)、槽钢(JIS G3192)等。
3.3 型号表示方法每个型号都有一套特定的规格要求,包括材料成分、力学性能、尺寸等。
以JIS G3101中的SS400为例,其中“SS”代表结构用普通碳素钢,而“400”代表该钢材的屈服强度为400MPa。
3.4 型号对照为了方便国际贸易和交流,不同国家的型钢标准之间进行了对照。
例如,中国的GB/T 700标准中的Q235与日本标准中的SS400是相对应的。
4. 型钢规格示例以下是一些常见型钢规格的示例:4.1 角钢型号尺寸材料成分力学性能JIS G3192 20×20×3 Q235 屈服强度≥235MPa型号尺寸材料成分力学性能JIS G3192 50×50×5 SS400 屈服强度≥400MPaJIS G3192 75×75×6 Q345 屈服强度≥345MPa4.2 工字钢型号尺寸材料成分力学性能JIS G3192 100×50×5 Q235 屈服强度≥235MPaJIS G3192 125×65×6.5 SS400 屈服强度≥400MPaJIS G3192 200×100×8 Q345 屈服强度≥345MPa4.3 槽钢型号尺寸材料成分力学性能JIS G3192 50×25×3 Q235 屈服强度≥235MPaJIS G3192 75×40×5 SS400 屈服强度≥400MPaJIS G3192 100×50×5.5 Q345 屈服强度≥345MPa5. 总结日本标准中的型钢规格主要由JIS G系列标准来定义。
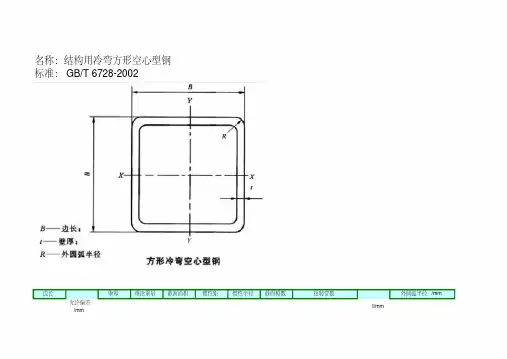
名称:结构用冷弯方形空心型钢标准:GB/T 6728-2002边长壁厚理论重量截面面积惯性矩惯性半径截面模数允许偏差/mm 扭转常数t/mm外圆弧半径/mmB/mm t/mm M/(kg/m)A/cm^2Ix=Iy/c m^4rx=ry/cmWx=Wy/cm^3It/cm^4Ct/cm^3碳素钢(σs≤320MPa)低合金钢(σs ≥320MPa)FGDA—FGXT ————————1.20.6790.8650.4980.7590.4980.8230.75t ≤3 1.0~2.5t 1.5~2.5t 1.50.826 1.0520.5830.7440.5830.9850.883<t ≤61.5~2.5t2.0~3.0t 1.750.941 1.1990.6420.7320.642 1.1060.986<t ≤10 2.0~3.0t 2.0~3.5t 2 1.05 1.340.6920.720.692 1.215 1.06t >102.0~3.5t2.5~4.0t1.20.867 1.105 1.0250.9630.82 1.655 1.241.51.061 1.352 1.2160.9480.973 1.998 1.471.75 1.215 1.548 1.3570.936 1.0862.261 1.652 1.363 1.736 1.4820.923 1.186 2.502 1.8定尺精度级别长度范围/mm 允许偏差/mm 1.5 1.296 1.652 2.195 1.152 1.4633.555 2.21普通级别4000~12000(+70,0)1.751.491.8982.471.141.6464.0482.49精确级别4000~6000(+5,0)2 1.677 2.136 2.721 1.128 1.814 4.5112075精确级别>6000~12000(+10,0)2.5 2.032 2.5893.154 1.103 2.102 5.347 3.23 2.361 3.008 3.5 1.078 2.333 6.06 3.581.5 1.767 2.525 5.489 1.561 2.7448.7284.131.752.039 2.598 6.237 1.5493.11810.0094.692 2.305 2.936 6.939 1.537 3.46911.2385.232.5 2.817 3.5898.213 1.512 4.10613.5396.213 3.303 4.2089.32 1.488 4.6615.6287.074 4.198 5.34711.064 1.438 5.53219.1528.481.5 2.238 2.85211.065 1.969 4.42617.395 6.651.752.5893.29812.641 1.957 5.05620.0257.622.9333.73614.1461.9455.65822.5788.51允许偏差/mm 厚度t/mm20±0.50FGXR25±0.5030±0.5040±0.5050±0.502.53.6024.58916.941 1.921 6.77627.43610.223 4.2455.40819.463 1.8977.78531.97211.774 5.4546.97423.725 1.8479.4940.04714.432 3.56 4.5425.12 2.358.3839.8112.62.54.3875.58930.34 2.32910.11348.53915.223 5.1876.60835.13 2.30511.7156.89217.654 6.718.54743.539 2.25614.51372.18821.9758.12910.35650.468 2.20716.82285.5625.612.55.176.5949.4 2.7414.178.521.23 6.1297.80857.522 2.71416.43492.18824.7447.96610.14772.108 2.66520.602117.97531.1159.69912.35684.602 2.61624.172141.18336.652.5 5.957.7.58975.147 3.14718.787118.5228.2237.0719.00887.838 3.12221.959139.6633.0249.22211.747111.031 3.07427.757179.80841.84511.26914.356131.414 3.02532.853216.62849.6838.01310.208127.277 3.53128.283201.10842.51410.47813.347161.907 3.48235.979260.08854.17512.83916.356192.903 3.43442.867314.89664.71615.09719.232220.42 3.38548.982365.45274.16411.73411.947226.337 3.89145.267361.21368.1514.40918.356271.071 3.84252.214438.98681.72616.98121.632311.415 3.79462.283511.55894.12412.9916.548305.94 4.355.625486.4783.63515.9820.356367.95 4.25266.9593.6100.74618.86624.033424.57 4.20377.194694.85116.47414.24618.147402.26 4.70867.043635.603100.75517.54922.356485.441 4.65980.906776.632121.75620.74926.432562.0944.61193.683910.281141.2250±0.5060±0.6070±0.6580±0.7090±0.75100±0.80110±0.90120±0.90826.8434.191696.639 4.513116.1061155.01174.58415.50219.748516.97 5.11779.534814.72119.48519.1224.356625.68 5.06896.258998.22144.77622.63428.833726.64 5.02111.791173.6168.36828.92136.842882.86 4.895135.821502.1209.54416.75821.347651.598 5.52453.0851022.18139.8520.68926.356790.523 5.476112.9311253.57169.78624.51731.232920.359 5.428131.4791475.02197.9831.86440.5911155.74 5.331164.8191887.61247.69418.01422.948807.82 5.933107.711264.8161.73522.2628.356982.12 5.885130.951554.1196.79626.40233.6331145.9 5.837152.791832.7229.84833.94543.2421411.8 5.714188.252364.1289.03419.2724.547987.152 6.341123.3941540.13185.25523.82930.3561202.32 6.293150.2891893.79225.79628.28536.0321405.41 6.245175.6762234.57264.18836.88846.9911776.5 6.148222.0622876.94333.56420.52626.1481191.3 6.75140.151855.8210.37525.432.3561453.3 6.702170.972285.3256.8630.1738.4331701.6 6.654200.182701300.91838.96949.6422118.2 6.532249.23503.1381.28421.827.714227.16158221023752734.417377.111932724290632.140.820377.062263223340841.552.82546 6.94283418943242329.316807.571762607265528.536.420557.522163216325633.943.224137.4725438073818445632087.353194958486130±1.00140±1.10150±1.20160±1.20170±1.30180±1.40190±1.50424.330.919687.971973049295530.138.424107.932413763362635.845.628337.882834459426846.559.235667.763575815544105772.642517.654257072651533.242.432388.742945038442639.650.438138.73475976521851.565.648288.5843978156681063.280.657828.4752695338041273.593.764878.325901114992253848.448059.973847443577645.257.656729.924548843681859.175.272299.8578115988781072.792.687079.76971419710621284.810898599.55789166911226542.754.4681011.248610513730650.964.8805411.157512504863866.684.810317117371643611171082.1104.61247910.98912017313561296.1122.51423210.810172*********54.769.699641266415434997871.691.21280111.88532031212931088.41131551911.71035249661572121041321776711.61184295141829664.181.61600814915246831372884.21072061813.91182325571787101041332518913.81439401272182121231562905413.61660475982552896.71233126915.91564489342362200±1.60220±1.80250±2.00280±2.20300±2.40350±2.80101201533821615.81911604312892121411804431915.72216718433395141632085041415.62521827353877810913944966181999700433016101351735510017.92449866293702121602046416417.728511031504357141852367321017.632541190004989812215562172202487964833750101511937634119.930541194704612121792288918719.8356814242054401420726410101019.7408016453062411623529911426019.645701861407013描述(D)1.空心型钢系用带钢冷弯后焊接而成。
欧标工字钢规格表工字钢是当今建筑业非常重要的构造材料之一,它具有强度高、变形能力强的特点,因此被广泛应用于建筑结构、桥梁、装配式楼房等领域。
欧标工字钢是欧洲规格的工字钢,其尺寸、厚度、重量均有标准,下面就对欧标工字钢规格表做详细介绍。
一、IPE型号工字钢:IPE型号工字钢又称欧标I型工字钢,是一种普通的型材钢,尺寸范围为80-600mm。
下面是IPE型号工字钢具体规格表:尺寸(mm)|重量(kg/m)|截面积(cm^2)---|---|---IPE80|6.0|7.64IPE100|8.1|10.3IPE120|10.4|13.2IPE140|12.9|16.4IPE160|15.8|20.1IPE180|18.8|23.9IPE200|22.4|28.5IPE220|26.2|33.4IPE240|30.4|38.8IPE270|35.3|44.9IPE300|40.2|51.1IPE330|46.0|58.8IPE360|52.2|66.6IPE400|59.5|75.8IPE450|67.2|85.6IPE500|76.1|96.9IPE550| 87.0|110IPE600|97.6|124二、HEA型号工字钢:HEA型号工字钢又称欧标H型工字钢,是一种H形梁钢,尺寸范围为100-1000mm。
下面是HEA型号工字钢具体规格表:尺寸(mm)|重量(kg/m)|截面积(cm^2)---|---|---HEA100|16.7|21.3HEA120|19.9|25.3HEA140|24.7|31.4HEA160|30.4|38.8HEA180|35.5|45.3HEA200|42.3|53.8HEA220|50.5|64.3HEA240|60.3|76.8HEA260|68.2|87.0HEA280|76.4|97.3HEA300|87.3|110HEA320|97.6|124HEA360|125|159HEA400|141|179HEA450| 161|204HEA500|182|231HEA550|199|253HEA600|221|280三、 HEB型号工字钢:HEB型号工字钢是欧洲标准的H型工字钢,尺寸范围为100-1000mm。
日标工字钢规格全文共四篇示例,供读者参考第一篇示例:日标工字钢是一种常见的建筑材料,广泛应用于各种领域的建筑和制造工程中。
工字钢的形状像一个工字形,具有很好的承重性能,可以有效支撑建筑结构,同时也具有良好的抗弯性能。
日标工字钢规格繁多,不同规格的工字钢适用于不同的工程项目。
本文将介绍日标工字钢规格的分类、主要规格参数及其应用场景等信息。
日标工字钢规格可以根据不同材质进行分类。
目前市场上常见的日标工字钢主要有Q235B、Q345B等材质,其中Q235B工字钢是最常用的一种。
Q235B工字钢的强度高,耐磨性好,适用于承重要求较高的建筑工程;而Q345B工字钢的强度更大,适用于承重要求更高的大型建筑工程。
日标工字钢规格还可以根据截面形状不同进行分类。
日标工字钢的截面形状包括H型、HW型、HM型等多种类型。
H型工字钢是最常见的一种,具有较大的弯曲强度和承载能力,适用于大跨度和大高度建筑工程;HW型工字钢的截面较H型更宽,适用于板柱结构的支撑和横向连接;HM型工字钢的截面较H型更高,适用于承受纵向力和梁柱连接等工程。
日标工字钢规格的选择要根据实际工程需求来确定。
在选择工字钢规格时,需要考虑工程的承重要求、跨度和高度等因素,选择适合的规格参数,以保证工程质量和安全。
在购买日标工字钢时,还要注意其质量等级和生产厂家,选择正规信誉好的生产厂家,以确保工字钢的质量和性能。
日标工字钢规格繁多,应用广泛,可以满足不同工程项目的需要。
在选择和使用工字钢时,要根据实际需求和项目要求进行合理选择,以确保工程质量和安全。
希望本文对您了解日标工字钢规格有所帮助,谢谢阅读!第二篇示例:工字钢是一种常见的建筑材料,通常用于制作各种钢结构和框架。
日标工字钢是按照日本国家标准制造的工字钢,具有一定的规格和规范。
在日本,工字钢的规格种类繁多,不同型号的工字钢适用于不同的建筑项目和需求。
接下来,我们将介绍一些常见的日标工字钢规格以及其特点和用途。
工字钢规格一览表工字钢是截面为工字形的长条钢材。
其规格以腰高( h)*腿宽(b)*腰厚(t)的毫数表示,如“工160*88*6”,即表示腰高为160毫米,腿宽为88毫米,腰厚为6毫米的工字钢。
工字钢是截面为工字形的长条钢材。
其规格以腰高( h)*腿宽(b)*腰厚(t)的毫数表示,如“工160*88*6”,即表示腰高为160毫米,腿宽为88毫米,腰厚为6毫米的工字钢。
工字钢的规格也可用型号表示,型号表示腰高的厘米数,如工16#。
腰高相同的工字钢,如有几种不同的腿宽和腰厚,需在型号右边加a b c 予以区别,如32a# 32b# 32c#等。
工字钢分普通工字钢和轻型工字钢,热轧普通工字钢的规格为10-63#。
经供需双方协议供应的热轧普通工字钢规格为12-55#。
工字钢广泛用于各种建筑结构、桥梁、车辆、支架、机械等。
工字钢理论重量表:型号高度*脚宽*腰厚理重10 100*68*4.5 11.26112 120*74*5 13.98714 140*88*6 20.51318 180*94*6.5 24.14320a 200*100*7 27.92920b 200*102*9 31.069 22a 220*110*7.5 33.0722b 220*112*9.5 38.105 25b 250*118*10 42.03 28a 280*122*8.5 43.492 28b 280*124*10.5 47.88830a 300*126*9 48.084 30b 300*128*11 52.794 30c 300*130*13 52.717 32b 320*132*11.5 57.74132c 320*134*13.5 62.76536a 360*136*10 60.037 36b 360*138*12 65.689 36c 360*140*14 71.341 40a 400*142*10.5 67.59840b 400*144*12.5 73.87840c 400*146*14.5 80.15845a 450*150*11.5 80.4245b 450*152*13.5 87.48545c 450*154*15.5 94.5556a 560*166*12.5 106.316 56b 560*168*14.5 115.10856c 560*170*16.5 123.963a 630*176*13 121.407 63b 630*178*15 131.298 63c 630*180*17 141.189 MMMG-6BFW-JSWS-ZVY2。