某市地铁路网管理中心电气施工组织设计(完整版)
- 格式:doc
- 大小:205.00 KB
- 文档页数:49
轨道交通工程供电系统工程施工组织设计1.2工程特点1.2.1设计特点1)系统结线简单,供电可靠。
全线均采用高压电缆供电,大大降低了事故发生几率,增加了供电可靠性。
2)电缆均敷设于支架或桥架上,便于施工及维护。
由于全线均采用电缆,提高了施工安全系数,减少了材料及施工机具、工具、仪器仪表种类便于施工管理。
3)主变电所开关数量少,35KV电缆数量少,投资较省。
4)设计界面清晰,接口明确有利于施工配合。
1.2.2施工特点1)窗口工程,社会效应大津滨快速轨道交通工程的建设受到了社会各界的极大关注,能否按期投入运营,工程具有举足轻重的地位。
同时也是反映承包商整体实力和形象的窗口。
2)施工作业面狭窄轻轨工程是集土建、装修、轨道、机电安装为一体的大型系统工程,在有限的空间内多专业同时施工,施工作业面狭窄。
合理组织工程施工,安排好平行的多点作业,灵活地利用有限的空间进行专业间穿插施工,是本工程的难点。
3)工种单一,施工程序简单工种单一,施工程序简单,便于人员、工具、仪器仪表的统一调配。
便于作业程序、工艺标准的统一。
便于程序化作业和大面积展开。
4)工程接口多、配合协调工作量大本工程专业之间配合协调范围广,施工与通信、信号、接触网、站前铺架、房建施工等专业、部门关系密切,做好各项接口与配合、交叉作业和施工衔接等工作,是保证本工程顺利实施的重点5)工程成品防护工作量大由于施工点多、施工专业多,且不同专业间交叉施工,因此在每道工序施工完毕和竣工验收交接前,采取有效措施,做好对本专业和其它各专业已完工程成品的保护,避免损坏、丢失,是保证整个工程优质按期完工的一个重要环节。
6)文明施工要求高某市区内施工,必须搞好文明施工,尽可能减少对周围环境的的影响。
根据对工程特点的分析我们认为影响施工的主要和特殊环节是:电缆中间接头、终端制作及检测。
详情请下载附件:轨道交通工程供电系统工程施工组织设计。
施工组织设计范本某工程电气施工方案电气施工方案是对电气工程施工过程进行组织和管理的规划,目的是确保电气工程施工过程顺利、安全、高效地进行。
下面是一个电气施工方案的范本,供参考。
一、工程概况工程地点:地工程规模:XX平方米二、工程组织安排1.项目经理:负责整个电气工程的组织、协调和管理工作,包括施工人员的配备和安排、施工计划的制定等。
2.主管工程师:负责电气工程的设计、施工过程的监督和质量控制等。
3.现场施工队伍:由电气工程师、电工、技术工人等组成,负责具体的施工工作。
4.安全员:负责施工现场的安全管理。
三、施工流程与方法1.施工准备阶段a.制定电气施工计划和进度表,明确施工任务和工期要求。
b.确定施工现场布置和安全措施,包括施工区域划分、人员通行路线、安全警示标识等。
2.施工阶段a.移交调试:将已经完成的工程区域进行移交,并进行初步调试,确保单元之间的接口正常。
b.布线敷设:根据电气设计方案,进行电缆、电线的布线敷设,确保符合设计要求和安全标准。
c.设备安装:按照设备安装图纸和规范要求,安装电气设备,并进行接线连接。
d.系统调试:对已完成的电气系统进行整体调试,确保各设备正常运行。
e.安全检查:定期进行施工现场的安全检查,确保施工过程的安全性和卫生环境。
f.预验收与终验收:对完成的电气工程进行预验收和终验收,确保施工质量符合规范要求。
四、质量控制措施1.对施工人员进行培训,提高其技术水平和施工质量意识。
2.严格按照电气设计方案和相关施工规范进行施工。
3.定期进行施工过程的质量抽查和检验,对不符合要求的部分进行整改。
4.建立施工记录和档案,及时反馈施工过程中的问题和改进意见。
五、安全措施1.制定施工安全管理制度和操作规程,明确责任和要求。
2.安排专职安全员负责施工现场的安全管理和事故预防工作。
3.定期组织安全培训和教育活动,提高施工人员的安全意识和应急处理能力。
4.加强现场交通管理,设立合理的安全警示标识,确保施工区域的安全通行。
电气工程施工组织设计一、工程概况本工程为某城市综合体项目,包括购物中心、办公楼、酒店和公寓等四个部分,总建筑面积约为300000平方米。
电气工程主要包括供电系统、照明系统、防雷及接地系统、弱电系统等。
二、施工安排及组织1. 施工前期:进行施工现场的勘查,了解现场条件,制定施工方案。
组织施工人员培训,提高施工技能和安全意识。
2. 施工期间:按照施工图纸和施工方案,组织施工人员有序进行电气设备安装、线路敷设、系统调试等工作。
确保各个环节符合规范要求,保证施工质量。
3. 施工后期:进行系统验收,对存在的问题进行整改。
组织施工人员参与售后服务,及时解决用户在使用过程中遇到的问题。
三、施工方法及措施1. 供电系统:按照设计图纸,安装高压配电柜、低压配电柜、变压器等设备。
线路敷设采用埋地或架空方式,确保线路安全可靠。
2. 照明系统:根据设计要求,安装照明设备,包括普通灯具、应急灯具、景观灯具等。
线路敷设采用埋地或架空方式,确保照明效果和用电安全。
3. 防雷及接地系统:按照设计要求,安装避雷针、接地装置等设备,确保建筑物的防雷及接地安全。
4. 弱电系统:包括通信、网络、监控等系统,按照设计图纸,安装相关设备,调试系统正常运行。
四、质量保证措施1. 严格把控原材料质量,对进场的电气设备、材料进行验收,确保质量合格。
2. 加强施工过程控制,对施工过程中的关键环节进行验收,确保施工质量。
3. 加强施工人员培训,提高施工技能,保证施工安全。
4. 严格按照设计图纸和施工规范进行施工,确保工程质量。
五、安全文明施工措施1. 制定安全施工方案,加强施工现场安全管理,确保施工安全。
2. 做好施工现场的清洁卫生工作,保持环境整洁。
3. 加强施工现场的保卫工作,确保施工物资安全。
4. 做好施工现场的防火、防盗、防爆等工作,确保施工安全。
六、工期保证措施1. 制定合理的施工计划,确保各个环节按计划进行。
2. 加强施工人员调度,确保施工力量充足。
(新版)电气工程施工组织设计方案.doc 范本一:一、前言电气工程施工组织设计方案是为了正确、高效地进行电气工程施工而制定的指导性文档。
本方案旨在明确施工的组织设计、进度计划、安全管理、质量控制等各方面内容,确保电气工程施工顺利进行。
二、项目概况1.项目名称:xxxx电气工程2.项目地点:xxxx地区3.项目范围:包括电气设备、电缆线路、开关柜等4.项目进度:具体项目开工、完工时间等三、组织设计1.施工组织结构:包括项目经理、施工队长、技术员等岗位安排2.人员配备:从事电气工程施工所需人员数量及资质要求3.责任与义务:各岗位人员的具体责任和工作内容4.协调与合作:与其他工种的协调合作,确保施工进度和质量四、进度计划1.总体进度计划:详细列出各施工阶段的工期安排2.施工工艺流程:描述电气工程施工的工艺流程及关键环节3.施工节点:确定施工过程中的关键节点,如设备安装、线路敷设等五、安全管理1.安全责任与义务:确定施工现场各岗位人员的安全责任和义务2.安全措施和预防措施:列出施工中需要采取的安全措施和预防措施3.应急预案:制定应急预案,应对各类突发事件六、质量控制1.质量标准和要求:明确电气工程施工的质量标准和要求2.质量检查与验收:描述质量检查和验收的具体流程和要求3.质量整改措施:提供质量整改措施和改进意见七、附件1.施工平面图纸:包括设备布置图、线路敷设图等2.技术规范:包括电气工程施工技术规范等八、法律名词及注释1.xxxx法律及注释2.xxxx法律及注释范本二:一、前言电气工程施工组织设计方案是为了规范电气工程施工流程、提高施工质量而制定的重要文件。
本方案旨在明确施工的组织设计、进度计划、安全管理、质量控制等内容,确保施工进度顺利、安全可靠。
二、项目概况1.项目名称:xxxx电气工程2.项目地点:xxxx地区3.项目范围:包括电气设备安装、线路敷设、开关柜调试等4.项目进度:具体项目开工、完工时间等三、组织设计1.施工组织架构:包括项目经理、施工队长、技术员等岗位配置2.人员配备:从事电气工程施工所需人员数量及资质要求3.责任与职责:各岗位人员的具体责任和工作内容4.协调与配合:与其他工种的协调配合,确保施工顺利进行四、进度计划1.总体进度计划:详细列出各施工阶段的工期安排2.施工流程:描述电气工程施工的流程及关键节点3.施工节点:确定施工过程中的关键节点,如设备安装、线路敷设等五、安全管理1.安全责任与义务:确定施工现场各岗位人员的安全责任和义务2.安全措施和预防措施:列出施工中需要采取的安全措施和预防措施3.应急预案:制定应急预案,应对各类突发事件六、质量控制1.质量标准和要求:明确电气工程施工的质量标准和要求2.质量检查与验收:描述质量检查和验收的具体流程和要求3.质量整改措施:提供质量整改措施和改进意见七、附件1.施工平面图纸:包括设备布置图、线路敷设图等2.技术规范:包括电气工程施工技术规范等八、法律名词及注释1.xxxx法律及注释2.xxxx法律及注释。
路网管理中心电气施工组织设计方案一、设计依据1.1 工程地点:路网管理中心1.2 工程名称:路网管理中心电气施工1.3 工程规模:该工程规模较大,包括了路网管理中心大楼内各个区域的电气设计和施工,总面积为20000平方米。
1.4 工程任务:本次电气施工的任务是要保障路网管理中心大楼内各个区域的安全用电,确保设备运行的稳定和高效,以及保证员工的生命安全。
1.5 工程性质:本工程为民用工程,属于建设单位自建楼宇的一般性质工程。
1.6 相关标准与规范:本次工程需严格根据国家的电气安全标准和建筑电气设计规范执行。
二、设计内容2.1 工程概述本次工程需要进行建筑内部各区域的电气设计和施工,其中包括电容器组、配电箱、高压开关等设备的安装和布线等各种工作,以达到保障路网管理中心内部各区域电能的有效和安全使用。
2.2 系统设计电力系统:路网管理中心电力系统由110V、220V、双回路供电组成。
为了保证路网管理中心各区域的运行安全和可靠性,需在各区域设置节点电气设备,如电容器组、配电箱、高压开关等,以提高电能质量和稳定性。
同时,系统设计需要较好的功率因数,以达到节能效果。
照明系统:路网管理中心大楼各区域的照明系统需要根据办公室区域、停车场区域、走廊区域等各个区域的特点进行设计,照明设备需满足国家光度要求,并且保证光源稳定和能耗低。
同时,还需要保证照明设备的安全,防止电气火灾的发生。
供配电系统:本次施工前需要对建筑物原有的供配电系统进行检验和测试,以确保建筑物的电气设备正常运行,并根据检验结果优化系统设计,以提高设备运行的可靠性和安全性。
3. 技术措施3.1 工程施工基本流程此次电气施工工程的基本步骤如下:(1)准备施工:施工前需要对电气设计方案进行仔细的审核和评估,确保设计方案与实际情况的符合。
同时对施工现场进行布置、清洁、搭建临时用电线路等准备工作。
(2)设备安装:由专业施工队伍安装各类设备,包括电容器组、配电箱、高压开关和各种电缆等。
地铁电气工程设施工方案一、项目概述地铁电气工程设施是地铁系统中重要的组成部分,其作用是提供电力、信号和通讯等各种电气设施,保障地铁系统的正常运行。
本工程设施工方案旨在对地铁电气工程设施的施工进行详细规划和安排,确保施工过程安全、高效、质量可控。
本工程设施工方案的主要内容包括:地铁电气工程设施施工概况、施工组织设计、关键工程的施工方案、安全生产保障措施、环境保护和文明施工要求等。
二、地铁电气工程设施施工概况1. 项目名称:某市地铁电气工程设施施工2. 施工范围:地铁电气工程设施包括电力系统、信号系统、通讯系统等各种设施。
3. 施工内容:地铁电气工程设施的主要施工内容包括:电力供应系统、信号系统、通讯系统、隧道配电系统、车站设备接线等。
4. 施工单位:本工程设施的施工单位为某地铁建设公司。
5. 工期要求:本工程设施的总工期为24个月,其中包括设计、施工、调试和验收等各个阶段。
6. 施工人员:本工程设施的施工人员包括电气工程师、电气技术员、电工等。
三、施工组织设计1. 总体施工组织设计根据地铁电气工程设施施工的实际情况,制定施工计划和安排,明确施工任务、施工程序和施工责任等内容。
确保施工组织紧密、协调,统一管理,实现施工任务的有序进行。
2. 施工部门设置本工程设施的施工部门主要包括总调度部、电力设施施工部、信号设施施工部、通讯设施施工部等。
3. 施工班组为了确保地铁电气工程设施的施工质量和进度,将按照施工要求,设立相关施工班组,包括电力设施班组、信号设施班组、通讯设施班组等。
四、关键工程的施工方案1. 电力供应系统电力供应系统是地铁电气工程设施中的重要组成部分,其施工方案包括:电源线路施工、变电站设施施工、接地装置施工、配电装置施工等。
2. 信号系统信号系统是地铁电气工程设施中的关键部分,其施工方案包括:信号系统设备安装、线路接线、信号制表调试等。
3. 通讯系统通讯系统是地铁电气工程设施的重要组成部分,其施工方案包括:通讯设备安装、线路敷设、联调联试等。
地铁站电气工程施工方案一、项目背景地铁站作为城市交通系统的重要组成部分,其电气设施的运行状况直接关系到乘客的出行体验和安全。
因此,地铁站电气工程的施工工作显得尤为重要。
本方案旨在对地铁站电气工程的施工过程进行详细规划,确保施工过程顺利进行,工程质量达到设计要求。
二、工程概况本项目是某城市新建地铁站的电气工程施工项目,包括电力系统、照明系统、防火系统、监控系统等内容。
工程总占地面积约10000平方米,总建筑面积约2000平方米。
本工程施工任务包括线路布线、设备安装、验收调试等工作,施工周期为6个月。
三、施工前准备1. 制定施工计划:根据工程要求和施工条件,制定详细的施工计划,包括施工任务分解、进度计划、质量控制计划等内容。
2. 组织施工人员:确定项目经理、施工队长及各专业施工人员,确保施工人员具有相关资质和经验。
3. 采购施工材料:根据设计要求和施工计划,采购所需施工材料和设备,保证施工质量。
4. 安全预防工作:对施工现场进行安全检查,制定安全生产计划,保证施工过程中没有安全事故发生。
5. 现场勘查和定位:对施工现场进行勘查,确定各电气设备的安装位置和线路布线方案。
6. 施工设备准备:根据施工需要,准备好所需的施工设备和工具,确保施工过程顺利进行。
四、施工过程1. 电力系统施工:根据设计要求,对电力系统进行布线和设备安装工作。
根据线路布置图,进行线路敷设和接线工作,保证电力设备的正常运行。
同时,对电力系统进行验收调试,确保工程质量符合规范要求。
2. 照明系统施工:对地铁站的照明系统进行设计、安装和调试工作,确保各区域的照明亮度能够满足使用要求。
同时,选用节能、环保的照明设备,提高照明系统的使用效率。
3. 防火系统施工:对地铁站的防火系统进行设计、安装和调试工作,确保系统的正常运行。
采用先进的防火设备和技术,提高地铁站的防火安全性。
4. 监控系统施工:对地铁站的监控系统进行设计、安装和调试工作,确保系统的正常运行。
地铁站电气工程施工方案一、工程概况本项目为地铁站电气工程,主要包括供电系统、照明系统、通信系统、监控系统、自动售票系统等。
地铁站位于城市中心区域,为地下三层岛式站台车站,有效站台中心线的里程为XXKXXX.XXX,车站起点里程为XXKXXX.XXX,车站终点里程为XXKXXX.XXX,车站总长度为XXXm,标准段宽XXm,标准段深约XXm。
主体构造及内部构件的设计运用年限为100年。
二、施工原则1. 严格按照国家相关法律法规、行业标准和规范进行施工,确保工程质量、安全、进度和投资控制目标的实现。
2. 充分考虑地铁站特殊环境,确保施工过程中对周边环境影响最小化。
3. 采用先进技术、设备和材料,提高工程质量和效益。
4. 强化项目管理,确保施工安全、文明、环保。
三、施工内容1. 供电系统:包括主变电站、配电室、馈线、开关柜等设备的安装、调试和验收。
2. 照明系统:包括站内站外照明设备的安装、调试和验收。
3. 通信系统:包括通信设备、线路、接入网、核心网等设备的安装、调试和验收。
4. 监控系统:包括视频监控、安全防范、自动化控制等设备的安装、调试和验收。
5. 自动售票系统:包括自动售票机、闸机、票务管理系统等设备的安装、调试和验收。
四、施工步骤1. 施工准备:包括人员组织、施工方案编制、施工图纸审查、施工材料和设备准备等。
2. 施工放样:根据设计图纸,进行施工放样,确保施工精度。
3. 设备安装:按照施工方案和施工图纸,进行设备的安装,包括基础施工、设备固定、接线等。
4. 系统调试:设备安装完成后,进行系统调试,确保设备正常运行。
5. 联合调试:各系统调试完成后,进行联合调试,确保各系统之间的协同运行。
6. 验收交付:项目完成后,进行验收交付,确保工程质量符合设计要求。
五、施工要求1. 施工过程中,严格遵守国家和地方法律法规,确保施工安全、环保。
2. 施工人员应具备相应的资质和经验,确保施工质量。
3. 施工材料和设备应符合国家相关标准和规定,确保工程质量和安全。
电气施工组织设计电气工程施工组织设计方案范本范本1:正式风格正文:1. 项目概述1.1 项目背景1.2 项目目标1.3 项目范围2. 组织架构2.1 项目团队组成2.2 项目负责人与责任分工3. 施工计划3.1 施工工期安排3.2 施工资源调配3.3 施工进度管理4. 施工方案4.1 施工流程4.2 施工环境准备4.3 施工材料准备4.4 施工设备安排4.5 施工安全措施5. 质量控制5.1 质量标准与验收要求 5.2 质量检查与测试5.3 问题处理与改进措施6. 资源管理6.1 人力资源管理6.2 物资管理6.3 设备管理7. 风险管理7.1 风险识别与评估7.2 风险控制与应对7.3 突发事件应急预案8. 费用控制8.1 施工预算编制8.2 费用监控与成本控制8.3 变更管理与成本影响评估9. 项目沟通9.1 内部沟通机制9.2 外部沟通渠道与内容附件:1. 施工图纸及设计文件2. 工作票与作业指导书3. 监测报告与分析数据法律名词及注释:1. 建设工程法建设工程法是中华人民共和国为规范建设行为、维护建设市场秩序,保障建设工程质量、安全、环境保护、公共利益而制定的法律。
2. 施工许可证施工许可证是国家行政主管部门依法授权施工单位进行施工活动的许可证书,必须在施工前获得。
范本2:活泼风格正文:1. 项目简介1.1 项目背景1.2 项目目标1.3 项目范围2. 团队构成2.1 项目团队成员2.2 团队角色与分工3. 施工计划3.1 施工时间表3.2 施工资源分配3.3 施工进度管理4. 施工方案4.1 施工步骤4.2 施工场地准备4.3 施工材料准备4.4 施工设备调配4.5 施工安全措施5. 质量控制5.1 质量标准与验收要求 5.2 质量检查与测试5.3 问题处理与改进措施6. 资源管理6.1 人力资源管理6.2 物资管理6.3 设备管理7. 风险管理7.1 风险识别与评估7.2 风险控制与应急措施7.3 突发事件应急预案8. 费用控制8.1 施工预算制定8.2 费用监控与成本控制8.3 变更管理与成本影响评估9. 项目沟通9.1 内部沟通机制9.2 外部沟通渠道与内容附件:1. 施工图纸与设计文件2. 工作票与作业指导书3. 监测报告与数据分析法律名词及注释:1. 施工许可证施工许可证是国家行政主管部门根据施工单位的资质要求,授权其进行特定的建设工程施工活动的许可证书。
电气工程施工组织设计方案一、工程概况电气工程是指建筑物内的配电系统、照明系统、接地系统等设施的安装和调试工作。
电气工程施工组织设计方案是为了对工程施工进行合理的规划和安排,以确保工程质量和安全,提高工程的施工效率和经济效益。
本项目为某大型商业综合体的电气工程施工,包括主配电室、子配电室、楼层配电室、照明系统等设施的安装和调试工作。
本施工组织设计方案旨在制定合理的施工方案和安全措施,确保工程按时按质顺利完成。
二、项目目标1. 安全施工:确保电气工程施工过程中的安全问题,预防和避免施工中的安全事故发生。
2. 质量保证:确保电气工程施工符合相关标准和规范,保证工程质量。
3. 施工进度:合理制定施工计划,保证施工进度,按时完成工程。
4. 成本控制:合理安排施工人员和设备,控制成本,提高经济效益。
三、施工组织设计方案1. 施工前准备(1)确定施工方案:根据施工图纸和规范,制定详细的施工方案,包括工艺流程、施工顺序、安全措施等。
(2)组织施工人员:按照工程需要,合理安排施工队伍和施工人员,配备必要的专业技术人员。
(3)采购材料设备:根据施工计划,购买所需的材料和设备,确保施工所需的材料充足。
2. 安全管理(1)安全教育培训:对所有施工人员进行安全教育和培训,交底施工安全规范和注意事项。
(2)施工现场管理:设立警示标志和安全警戒线,确保施工现场的安全,严禁违章作业。
(3)施工设备检查:定期检查和维护施工设备,确保设备的正常运转。
3. 质量控制(1)材料验收:对进场的材料进行严格的验收,不合格的材料及时退换。
(2)施工过程监控:通过专业人员的监督和把关,及时发现和解决施工中的质量问题。
(3)工程验收:在各阶段和工序结束后,严格按照规范进行工程验收,确保工程质量。
4. 施工进度控制(1)施工计划制定:制定详细的施工计划,包括工期安排、施工进度和节点计划等。
(2)进度监控:通过施工日志和进度表等管理工具,定期对施工进度进行监控和调整。
电气施工组织设计方案1. 引言电气施工组织设计方案是为了确保电气施工工程的顺利进行而制定的重要文档。
本文档将详细介绍电气施工组织设计方案的主要内容和要求。
2. 项目背景本项目为某工业园区新建的电气设施建设工程,包括变电站、输电线路、配电系统等。
项目规模庞大,需要精细的组织和协调才能保证工程按时高质量完成。
3. 组织结构电气施工组织设计方案的组织结构是项目成功实施的关键。
本项目的电气施工组织结构如下:3.1 项目经理项目经理负责全面组织、协调和指导电气施工工作。
他/她需要具备丰富的电气工程施工经验和良好的沟通能力,能有效地管理施工团队和资源。
3.2 施工队伍施工队伍由各类电气工程专业技术人员和施工人员组成。
他们应具备相关工作经验和证书,并且熟悉施工过程和现场安全要求。
施工队伍需要按照项目计划和施工标准进行施工,并及时汇报工作进展和问题。
3.3 项目监理项目监理是对施工过程进行监督和控制的关键角色。
项目监理需要具备相关专业知识和经验,能够确保施工符合规范和质量要求。
项目监理还负责与施工队伍沟通和协调,并解决施工过程中的问题。
3.4 其他相关部门除了上述角色外,还需要与其他相关部门(如设计部门、供应商等)进行有效的沟通和协调,确保施工工作能够顺利进行。
4. 施工过程电气施工组织设计方案需要明确施工过程和任务分工,以确保施工工作的顺利进行。
本项目的施工过程如下:在施工开始之前,需要进行充分的准备工作。
包括但不限于:施工现场勘察、施工资源准备、施工方案制定、施工图纸确认等。
4.2 施工执行阶段在施工执行阶段,根据施工方案和施工图纸进行施工,包括安装设备、布线、接线等工作。
施工队伍需要按照施工计划和质量要求进行施工,并及时处理施工过程中的问题。
在施工完成之后,需要进行施工验收。
项目监理将对施工质量进行检查和评估,确保施工符合规范和要求。
5. 安全措施在电气施工过程中,安全是首要考虑的因素。
为了确保施工期间的安全,需要采取以下措施:•施工人员必须穿戴符合要求的安全装备。
地铁供电系统施工组织设计方案目录1. 项目概述 (2)1.1 工程背景 (2)1.2 设计原则与目标 (3)1.3 工程范围及重点 (4)2. 供电系统设计方案 (5)2.1 总体设计思路 (6)2.2 供电系统架构 (7)2.3 设备选型与配置 (8)2.4 供电系统布局 (10)3. 施工组织设计 (11)3.1 施工准备工作 (12)3.2 施工进度计划 (14)3.3 施工现场管理 (15)3.4 安全防护措施 (16)4. 质量控制与验收标准 (17)4.1 质量控制措施 (18)4.2 验收标准与流程 (19)4.3 后期维护与保养 (20)5. 风险评估与应对措施 (21)5.1 风险识别与评估 (23)5.2 风险防范措施 (24)5.3 应急预案制定 (25)6. 环境保护与节能减排方案 (26)6.1 环境保护措施 (28)6.2 节能减排技术应用 (29)6.3 环境影响评估与监控 (30)7. 文档管理与其他资料汇总 (31)7.1 文档管理分类与内容 (32)7.2 资料汇总与整理要求 (34)7.3 技术资料归档与备份管理 (35)8. 培训与人员配置计划 (36)1. 项目概述随着城市化进程的加快,地铁作为现代城市交通的重要组成部分,其建设与发展日益受到关注。
地铁供电系统是地铁运营的核心,为列车运行、通风照明、通信信号等系统提供稳定可靠的电源。
为确保地铁供电系统的顺利施工和高效运行,本方案针对地铁供电系统的施工组织设计进行了全面细致的规划。
本项目旨在确保地铁供电系统的施工质量、安全、进度与成本控制,同时注重技术创新与科学管理相结合,确保施工过程的顺利进行及后续运营的安全稳定。
在设计过程中,充分考虑了施工现场的实际情况,包括地质条件、环境因素、材料设备采购与运输等各个方面的影响。
通过深入分析研究,制定了切实可行的施工组织设计方案。
通过本项目的实施,将有效提升地铁供电系统的施工水平,为地铁的顺利运营提供有力保障。
电气施工组织设计完整版doc 【范本一:正式规范风格】电气施工组织设计完整版1. 项目概述1.1 项目名称1.2 项目背景1.3 项目目标1.4 项目范围2. 组织管理2.1 项目组织结构2.2 项目团队角色和职责2.3 沟通与协作机制3. 工程进度安排3.1 总体工期计划3.2 分项工期计划3.3 关键路径分析4. 施工资源配置4.1 施工人员需求与配置4.2 施工设备需求与配置4.3 施工材料与物资需求与配置5. 施工方法与技术5.1 施工工艺与流程5.2 施工质量控制措施5.3 施工安全措施5.4 施工环保措施5.5 施工技术要求6. 施工风险与应对措施6.1 施工过程风险评估6.2 风险管理与控制6.3 应急预案与措施7. 施工质量管理7.1 质量管理体系7.2 质量控制点与检查7.3 质量验收标准与程序8. 施工安全管理8.1 安全管理体系8.2 施工现场安全要求8.3 防火与消防措施8.4 事故应急预案与处置9. 文件管理与归档9.1 文件管理与版本控制9.2 文件归档与备份10. 附件本文档涉及的附件包括但不限于:图纸、施工计划、技术规范、合同文件、相关证照等。
11. 法律名词及注释11.1 法律名词1:注释11.2 法律名词2:注释【范本二:简洁实用风格】电气施工组织设计完整版1. 项目概述1.1 项目名称1.2 项目背景1.3 项目目标1.4 项目范围2. 组织管理2.1 项目组织结构2.2 项目团队角色和职责2.3 沟通与协作机制3. 工程进度安排3.1 总体工期计划3.2 分项工期计划3.3 关键路径分析4. 施工资源配置4.1 施工人员需求与配置4.2 施工设备需求与配置4.3 施工材料与物资需求与配置5. 施工方法与技术5.1 施工工艺与流程5.2 施工质量控制措施5.3 施工安全措施5.4 施工环保措施5.5 施工技术要求6. 施工风险与应对措施6.1 施工过程风险评估6.2 风险管理与控制6.3 应急预案与措施7. 施工质量管理7.1 质量管理体系7.2 质量控制点与检查7.3 质量验收标准与程序8. 施工安全管理8.1 安全管理体系8.2 施工现场安全要求8.3 防火与消防措施8.4 事故应急预案与处置9. 文件管理与归档9.1 文件管理与版本控制9.2 文件归档与备份10. 附件本文档涉及的附件包括但不限于:图纸、施工计划、技术规范、合同文件、相关证照等。
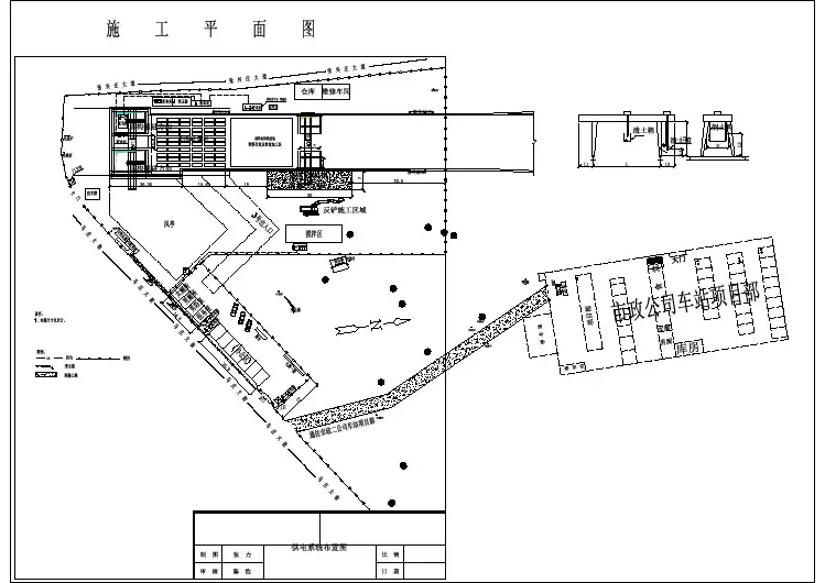
市轨道交通路网管理服务中心工程配电柜安装施工方案编制:审核:审批:施工组织设计(施工方案)审批表工程名称北京市轨道交通路网管理服务中心结构类型框剪,局部钢结构建筑面积59521平方米层数地下2层,地上10层建设单位北京京投轨道交通路网管理服务中心有限公司施工单位北京城建集团有限责任公司编制部门北京城建集团轨道交通路网管理服务中心项目部编制人编制时间2006年7月18日报审时间 2006年7月18日审批部门项目部总工办审批时间年月日审批人方案名称配电柜安装施工方案审批意见:(填写讨论的主要结论包括应修改的部分)目录1 工程概况 22 编制依据 23 施工准备和部署 24 施工工艺与方法 35 质量标准 86 成品保护 107 质量记录 118 安全消防措施 11成套配电柜安装方案1 工程概况本方案属北京市轨道交通路网管理服务中心一期工程成套配电柜安装方案。
配电柜总共71台。
所有配电柜均为金属材料制作,外表采用喷漆、喷塑或烤漆。
配电柜采取落地式安装。
2 编制依据** 北京市城建设计研究总院绘制的电气施工图。
** 电气装置安装施工及验收规范。
** 《建筑电气通用图籍》(92DQ3)。
** 《建筑电气安装分项工程施工工艺标准》。
3 施工准备和部署** 施工准备** 材料要求:3.1.1.1 配电柜:箱体应有一定的机械强度,周边平整无损伤,油漆无脱落,二层底板厚度不小于 1.5mm,但不得采用阻燃型塑料板做二层底板,箱内各种器具应安装牢固,导线排列整齐,压接牢固、应为两部定点厂产品,并有产品合格证。
** 镀锌材料有角钢、扁铁、铁皮、机螺丝、木螺丝、螺栓、垫圈、圆钉等。
** 绝缘导线:导线的型号规格必须符合设计要求,并有产品合格证。
** 基础槽钢用10#槽钢,应有产品合格证。
** 主要机具:** 铅笔、卷尺、方尺、水平尺、钢板尺、线坠、桶、刷子、灰铲等。
** 手锤、錾子、钢锯、锯条、木锉、扁锉、圆锉、剥线钳、尖嘴钳、压接钳,活扳子、套筒扳子,锡锅、锡勺等。
第一章工程概况及项目难点分析第一节工程概况优胜广场项目位于北京市丰台区,广场主要功能包括甲级写字楼、会议厅和少量辅助性的餐饮和商业。
项目总用地面积1011m2,总建筑面积约153783m2,共63层(其中地上58层、地下5层),设计高度303米。
1. 工程合同造价与范围:优胜广场项目机电工程合同造价约3.83亿元;承包工程包括:1.1机电设备安装、建筑智能化工程进行材料、设备采购、安装、调试、验收、保修、必要的深化设计。
1.2建筑智能化系统:建筑设备集成管理系统、建筑设备监控系统、能源管理系统、安全防范集成管理系统(含视频监控系统、入侵报警系统、出入口控制系统、电子巡更系统、无线电对讲系统、一卡通管理系统)、停车场管理系统、公共/应急广播系统、公众信息系统、UPS配电系统、机房工程等;包系统深化设计、检测、调试、验收、培训等所有内容,停车场管理系统要办理相关营业手续。
1.3各设备机房环保处理工程 (专业工程暂估价项目) :各种设备基础及防震支吊架等制作、安装,噪音处理等。
2. 相关单位:发包人:优胜房地产开发有限公司设计单位:北京市建筑设计研究院监理单位:北京工程建设监理公司总承包单位:中建三局有限公司3 施工进度总要求:计划开工日期:2010年X月X日;计划竣工日期:2012年X月X日前3.1 2010年X月X日前完成机电、建筑智能化安装工程(配合精装修部分除外);3.2 2010年X月X日前完成完成机电、建筑智能化系统联动调试;3.3 2012年X月 X日前完成各专项验收;3.4 2012年X月X日竣工验收。
4 机电工程各专业概况4.1 电气系统工程概况本工程电气系统有:低压配电系统、动力、照明系统、智能照明控制系统、漏电火灾报警系统、智能应急疏散指示系统、分布式光纤在线感温报警系统、智能电力监控系统、防雷接地系统等。
4.1.1变配电系统本工程从丰台区的110KV变电站引来三路10KV电源至负1层的高压配电室,三路电源二用一备,二路电源同时分段供电,中间设联络开关,当任一路工作电源失压时,通过BZT自动操作联络开关,第三路备用电源能通过联络开关投入工作。
电气工程施工组织设计一、项目概况本工程为某某公司新建厂房电气工程项目,总建筑面积为XXXX平方米,分为厂房主体建筑和辅助设施。
主要包括电力系统、照明系统、排插系统、智能化系统等。
电气工程施工组织设计是工程施工前的重要工作,它的合理性和科学性直接影响到工程施工的进度、质量和安全。
二、组织设计的基本原则1. 符合国家相关规定和标准,确保施工安全和施工质量;2. 合理规划施工进度,确保工程按时完成;3. 各部门之间紧密合作,高效配合,形成协调、有序的施工流程;4. 充分考虑成本因素,优化施工方案,合理控制施工成本。
三、组织设计内容1. 项目管理机构和人员配备(1)项目管理机构主要包括总包单位、监理单位、设计单位和施工单位。
(2)总包单位负责统筹协调项目,协调各方关系,确保施工进度和质量。
(3)监理单位负责对施工过程进行监督和验收,确保施工质量符合标准要求。
(4)设计单位负责提供施工图纸和设计方案,协助施工单位解决设计问题。
(5)施工单位负责具体施工工作,按照设计要求完成电气工程施工任务。
2. 施工进度计划(1)制定详细的施工进度计划,包括施工工期、工序安排、施工分包等;(2)根据项目实际情况,调整施工进度计划,确保施工顺利进行。
3. 施工组织机构及职责分工(1)建立清晰的施工组织机构,包括总监、工程师、技术人员、作业人员等;(2)明确各岗位职责,建立有效的协调机制,确保施工工作有序进行。
4. 安全措施及质量保障措施(1)制定施工安全管理方案,包括防火防爆措施、作业场所安全、用电安全等;(2)建立质量保障体系,确保电气设备的选购、安装、调试等工作符合质量要求。
5. 现场管理及监督(1)建立现场管理制度,包括施工现场秩序、材料管理、施工派遣等;(2)加强监督检查,及时发现和解决施工中的问题,确保施工质量和进度。
6. 现场设施及设备安排(1)合理安排施工现场设施,包括施工用房、设备、材料堆放等;(2)确保现场设施与设备符合施工需要,维护设施设备的正常使用。
某市轨道交通路网管理服务中心电气安装工程施工组织设计(完整版)1、编制说明1.1依据:1.1.1根据国家施工电气施工规范、标准、图集。
化北标办《建筑电气通用图集》、1—13册、DBJ-26-96《建筑安装分项工程施工工艺规范》第四分册、《施工现场临时用电安装技术规范》JGJ46-88、《电气装臵安装施工质量验收规范》GB50303-2002、《建筑安装工程质量检验评定标准》GBJ303-88。
1.1.2该项工程有关的设计施工图:某市轨道交通路网管理服务中心一期工程电施;某市轨道交通路网管理服务中心一期工程弱电施。
1.1.3施工图纸会审记要。
1.1.4土建工程总体施工组织与设计。
1.2定额:1.2.1全国安装工程预算定额。
1.2.2全国安装工程预算定额某市基价。
2 工程概况:本工程为某市轨道交通指挥中心、清算管理中心。
分为中心综合楼、综合楼辅楼、研发、培训中心、办公楼及职工公寓的建筑群体,属一类高层建筑,防火等级为一级建筑工地面积为5.595万平方米、地上十一层、地下二层、下二层为汽车库、ACC、TCC、OCC电源室;地下一层为变电所、制冷机房、水泵房及部分ACC机房,一至五层为ACC、TCC、OCC机房,六层以上为办公用房。
3 电气工程概况3.1 电气工程包含内容3.1.1 10KV╱0.4 KV供配电系统3.1.2..动力、照明系统;3.1.3 防雷接地系统;3.1.4 火灾报警及联动系统3.1.5 有线广播系统3.1.6 楼宇设备自控系统3.1.7 闭路电视监视系统3.1.8 安全防范系统3.1.9 停车场自动化管理系统3.1 10 综合布线系统2.1.11 有线电视系统3.1.12 无线信号接入系统2.1.13 无线对讲系统;3.1.14 地卡通系统3.1.15 多功能会议系统;3.1.16 主计时时钟系统;3.1.17 智能化建筑管理系统;3.2 供电控制方案本工程为一类高层建筑,防火等级为一级。
3.2.1 负荷等级一级负荷;程控、网络机房等电源;三层指挥大厅照明。
UPS电源室照明。
消防电梯、消防水泵、加压风机、排烟风机、防火卷帘门等消防设备;应急照明,消防安防控制室。
指挥中心:中央监控的高度大厅、通信系统、电源室;清算管理中心;系统机房、数据库室.控制中心:通信、信号系统机房、电源室的工艺用电及为其服务的空调用电为一级负荷中的特别重要负荷。
二级负荷为办公照明、汽车库照明、生活水泵、非消防电梯、排水泵等。
三级负荷为生活用空调系统用电等。
3.2.2 配电系统配电电压380V/220V,采用TN-S三相五线制配电,工作零线(N)保护线(PE)自变电所低压柜分开后不再相连。
消防电梯、消防水泵等消防用电设备均采用双电源供电,电源分别取自低压母线及消防应急母线,并在供电末端进行自动切换。
单台容量的负荷或重要负荷采用放射式供电方式;对于一般负荷采用树干式各放射式相结合的供电方式。
消防设备配电箱的备用回路不得接入非消防设备。
所有的插座回路均装漏电开关,漏电动作电流时间30mA动作时间0.1秒.3.2.3 动力控制污水泵采用液位传感器就地控制,水位超高报警,水位显示及故障由楼宇自控系统完成.冷冻机、冷冻泵、冷却泵、冷却塔、空调机房、新风机、排风机、送风机、等采用DDC及手动控制。
防火卷帘门及电梯要受消防报警系统及消防联动控制。
非消防电源要受消防报警系统及消防联动控制。
消防专用设备:消火栓泵、喷淋泵、消防稳压泵、排烟风机、加压送风机等要受消防报警系统及消防联动控制。
消防专用设备的过载保护只报警,不跳闸。
排风兼排烟风机,进风兼补风风机;平时由DDC系统控制,火灾时由消防控制室控制.4施工部署4.1施工管理:为确保工程质量和工期,我公司建立以徐谦为项目经理的管理领导班子。
4.2方针目标及主要管理目标4.2.1认真贯彻我公司ISO9001质量管理体系质量方针:“科学管理,精心施工,诚实服务,质量第一”,坚持按程序、按标准办事强化现场施工管理,塑造精品工程质量放在第一位,对用户负责的态度顺利、按时完成此工程。
4.2.2质量目标:创市优质工程。
成品、半成品材料检验合格率百分之百。
4.2.3安全目标;无死亡、重大工伤事故,轻伤事故频率控制在千分之五以下。
4.2.4文明施工目标:创市级文明施工单位。
4.2.4工期目标:开工日期2005年12月25日,竣工日期2006年3月17日。
电气安装按期完成合同规定项目。
4.3 施工原则:严格按图纸和设计变动施工,如施工有变,应办理洽商,再按洽商内容施工。
进入装修阶段时,设备、器具较多,电气施工人员要根据总的施工进度和各系统需要,在必保工期和质量的前提下合理安排工作,按工艺穿插作业,能提前安排的工作尽量往前安排,保证交工日期。
4.4 施工安排:根据土建的施工安排,电气分层分段施工,密切配合土建结构工程将各种电线管、箱盒、预留孔、洞预留到位。
4.4.1地下室工作内容:预埋管盒、预留孔洞、防雷引下线连接、接地极敷设。
4.4.2主体结构配合工作内容:随结构配管、稳箱盒,内墙二次接管稳盒,暗装配电箱体稳装。
4.4.3装修阶段工作内容:桥架、封闭母线安装,电缆敷设、配电箱、照明灯具安装,变电所设备安装,消防报警系统和弱电系统安装。
施工进度计划见下表。
5 施工准备5.1人员准备:公司要求本工程达到优质工程。
根据工程竣工日期和配合安装的工作量,劳资部门组织安排施工人员技术素质高,责任心要强的施工专业人员。
专业人员要持证上岗,按工期投入足够的劳动力,并根据工程实际情况及时做适当调整,确保竣工。
5.2机电专业施工现场平面布臵要服从施工总平面布臵,施工现场供电统一布署,按施工现场用电情况,由专业电工架设线路,安装电闸及用电设备,各专业要按总平面布臵好的现场操作用地,搭设必要的仓库和操作棚。
5.3技术准备:认真做好施工前的技术准备工作,工程技术人员根据设计单位提供的施工图纸,在认真看图的基础上做好图纸会审,并和水暖通风、土建各专业在施工搭接、相互作业等技术问题上做通盘综合考虑。
5.4组织好设计交底,将图纸自审、会审中的问题提请设计人员和甲方解决,办好一次洽商。
5.5开工前组织有关人员学习《施工方案》及相关的国家规范、标准,施工现场需配备必要的规范、标准、图集。
5.6工程项目电气技术负责人在熟悉掌握图纸的基础上,有针对性地对操作人员培训,使操作人员对电气专业有所了解,特别是重要部位的讲解,并组织讨论,提出问题,制定切实可行的施工方法。
5.7由主任工程师进行二次技术交底,由工长对施工队进行详细的书面技术交底,其内容要符合技术部门的规定和要求。
5.7施工机具使用计划所有机具、工具、仪器在进入施工现场前要进行全面检修、校正,同时应有定期和经常检修制度,并设专人负责,确保机具设备在施工过程中能可靠运行。
5.7.1材料准备:施工前做材料计划,材料部门应按工长所提材料计划提前进材料。
保证能及时供应合格的材料、设备,无合格证的、达不到甲方要求的或不合格产品严禁进入施工现场。
材料到现场后应分类堆放,有防雨措施。
5.7.2根据工程总体进度计划编制电气分部工程施工进度计划,劳资部门要保证提供符合工程建设需要的劳动力。
6主要施工方法6.1干式变压器安装土建工程基本施工完毕,标高、尺寸、预埋件均符合设计要求,墙面、顶棚喷漆完毕,屋顶无漏水,门窗及玻璃安装完好,室内地面工程结束,场地清理干净,道路畅通,室内相对湿度在70%以下。
6.1.1工艺流程:设备点验检查→变压器二次搬运→变压器安装→附件安装→交接试验→送电前检查→送电运行验收。
6.1.1.2设备点验检查应由安装单位、供货单位会同建设单位代表共同进行、并做好记录。
按照设备清单、施工图纸及设备技术文件核对变压器本体及附件备件的规格型号是否符合设计图纸要求,是否齐全,变压器外观检查无损伤及变形,油漆完好,接线无松动。
6.1.1.3变压器二次搬运应由起重工作业,电工配合,用汽车吊沿现场预设的吊装孔至地下一层,再用滚杠,导链移动至变压器安装位臵移动过程中应行车平稳,尽量减少振动。
6.1.1.4拆除包装箱底座、核对高低压侧方向,将变压器找平找正,直接就位在安装位臵的地面上,变压器安装时要求离开墙壁800mm。
6.1.1.5将变压器温度控制器用螺栓固定在变压器防护罩外侧(变压器防护罩在设备出厂时已组装为一体),按照温度控制器的产品说明书,将变压器内热电阻的温度信号引出线的插头插入温度控制器的信号输入端,将控制电源线引至温度控制器的电源接线端子,检查无误,可以进行温度控制器的设定和调试。
6.1.1.6变压器的交接试验由供电部门许可的试验室进行,试验标准应符合国家规范要求。
试验内容:(1)测量绕组的直流电阻;(2)检查所有分接头的变压比;(3)检查变压器的三相结线组别;(4)测量绕组的绝缘电阻;(5)绕组的交流耐压试验;(6)测量与铁芯绝缘的各紧固件的绝缘电阻。
6.1.1.7变压器试运行前的检查内容:各种交接试验数据齐全,符合要求。
变压器清理、擦试干净,本体及附件无缺损,变压器一、二次引线相位正确,绝缘良好,接地线良好,通风设施安装完毕,工作正常,变压器的分接头位臵定值符合规定要求,操作及联动试验正常。
6.1.1.8变压器第一次投入时,可全电压冲击合闸,应进行 5次冲击合闸,砺磁涌流不应引起保护装臵误动作,变压器试运行要注意冲击电流、空载电流、一、二次电压、温度,并做好调试记录。
变压器空载运行24小时,无异常情况,方可投入负荷运行,并办理验收手续。
6.1.2质量标准6.1.2.1主控项目:变压器及其附件的试验调整和器身检查结果必须符合施工规范规定。
6.1.2.2一般项目:变压器安装位臵正确,固定可靠,连接温度控制器的引线整齐美观、变压器与线路连接紧密,零线沿器身向下接至接地装臵的线段固定可靠、变压器及其附件外壳和其他非带电金属部位接地支线敷设连接紧密牢固,接地线截面选用正确,需防腐的部分涂漆均匀无遗漏。
6.1.3 成品保护6.1.3.1 产品开箱检查完毕,如不立即安装运行,应妥善保存或重新包装好,以防损防盗。
6.1.3.2对于安装就位的变压器,要采取保护措施,防砸防碰撞,防铁件掉入线圈内。
6.1.4注意事项6.1.4.1变压器的冷却风机应使其正转(正转时,风从线圈底部向上进入线圈)。
6.1.4.2温控器调试正常后,先将变压器投入运行,后投入温控。
6.1.4.3变压器在运输和安装过程中,不应有严重冲击和振动。
6.1.4.4变压器室应有较好的干燥通风环境,保证设备的绝缘不受潮湿和污染6.2成套配电柜(盘)及电力开关柜安装6.2.1施工程序设备开箱检查→二次搬运→基础型钢制作安装→柜(盘)母线配制→试验调整→送电运行验收6.2.2设备开箱检查6.2.2.1设备和器材到达现场后。