教室平面图
- 格式:doc
- 大小:4.59 MB
- 文档页数:3
平面图说明1、北排教室(1)总长度28.8米,宽6.5米。
总占地面积:28.8米×6.5米=187.2平方米(2)每间教室的内径长9.2米,宽6.1米,使用面积56.12平方米。
(3)使用面积:一共三个教室9.2米×6.1米×3=168.36平方米2、东排平房(1)总长度35.5米,宽5.1米。
总占地面积35.5米×5.1米=181.05平方米。
(2)每间屋子内径长6.8米,宽4.6米,使用面积31.28平方米。
(3)东排平房共五间,6.8×4.6×5=156.4平方米。
3、中排平房(1)总长度20.7米,宽6.5米。
总占地面积20.7米×6.5米=134.55平方米。
(2)一间教径长9.2米,宽6.1米,使用面积56.12平方米。
办公室长8.3米,宽6.1米,使用面积50.63平方米。
园长室长2米,宽6.1米,使用面积12.2平方米(3)使用面积:教室9.2×6.1+办公室8.3×6.1+园长室2×6.1=118.95平方米。
4、西排平房(1)总长度14.05米,宽6.5米。
占地面积14.05米×6.5米=91.3平方米。
(2)警卫室长4.5米,宽6.1米,使用面积27.47平方米。
锅炉房长8.8米,宽6.1米,使用面积53.68平方米。
(3)使用面积:警卫室4.5×6.1+锅炉房8.8×6.1=81.13平方米。
5、北厕所长8.9米,宽3.8米,使用面积33.82平方米。
6、学校长43.6米,宽39.3米,占地面积1713.48平方米。
车站幼儿园平面图北东。
二层一层北门北文化主60长廊米跑道绿
道
绿
篮球
场
综合楼建筑
物编号:002幢三层:1098
㎡石板镇高章小学校园及区域分布平面图
三层教学楼 建筑物编号:001幢高二层:516㎡厨房52㎡
队部室31㎡校长室31㎡教师宿舍
36㎡幼儿班教室50㎡运 动 区
升旗台
多功能室
、音乐室、美术室8.8×6.9
科学室62㎡
二
层
一
层
楼梯
楼梯
图书阅览室62㎡厕所28㎡五年级教室50㎡宿舍22㎡宿舍22㎡
厕所28㎡厕所28㎡教师宿舍36㎡教师宿舍36㎡教师宿舍36㎡教师宿舍36㎡教师宿舍36㎡电脑室8.8×6.9办公室62㎡器械场
大门口三年级教室50㎡二年级教室50㎡四年级教室50㎡一年级教室50㎡宿舍22㎡宿舍22㎡。
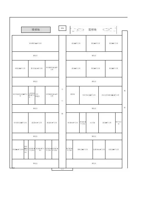
国旗
心理咨询
17.5平方
米
卫生
保健室
宿舍17.5平方米4
校产办公室
教室26.5
平方米4
宿舍17.5平方米4宿舍17.5平方米4宿舍17.5平方米4宿舍17.5平方米4保卫17.5
平方米4
硬化区
硬化区
大门
中 心 路
侧 路
硬化区硬化区
教室26.5平方米4
微机室53平方米仪器室34.5平方米实验室53平方米
硬化区
硬化区
科学探究室53平方米教室34.5平方米教室34.5平方米教室34.5平方米
办公室3教室53平方米
硬化区硬化区
综合实践活动室53平方米音美器材室34.5平
方米
教导处
美术书法室53平方米音乐室多功能室60.5平方米
阅览室53平方米图书室34.5平方米
体育器材室34.5平
方米
教室53平方米教室53平方米教室53平方米
伙房餐厅210平方米教室53平方米教室53平方米教室53平方米
硬化区硬化区
篮球场
排球场
厕所。
培训中心教室容量及规格
【多媒体三教室】8.5X16=136平米(班容量90名学生)【一到六教室】7X9=63平米 (班容量42名学生)
【七教室】9.5X10=95平米 (班容量64名学生) 【多媒体二教室】7X9=63平米(班容量42名学生)
【多媒体一教室】7X14=98平米(班容量64名学生)【机房】7X9=63平米(班容量36名学生)
培训中心教室平面图
中心多媒体教室均有配备计算机、投影机、固定银幕、音响播放设备。
中心还有两部活动投影机及银幕,以供培训时可灵活调配使用。
中心机房设施配备齐全,可供学员上机培训和上网查询相关学习资料。
中心培训实况剪影。