门洞过梁规范
- 格式:docx
- 大小:36.95 KB
- 文档页数:2
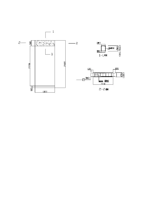
康定和园安置小区电梯门洞口上方门头过梁本项目共30台电梯,要求电梯门洞口上方梁距成活地面2200mm,现将现场各楼号洞口尺寸统计如下:楼号门洞高(距成活地面mm)门洞宽(mm)过梁截面尺寸砼标号250*350(普通电梯)250*500(普通电梯)250*300 200*3001#,2# 2200(2550,2700)1100 -2层-1层1,2层C255#,10# 2500(2550,2700)1100 -2层-1层1—6层7—32层C256#,8# 2500(2550,2700)1100 -2层-1层1—6层7—27层C2511# 2500(2550,2700)1100 -2层-1层1—6层7—32层C2513# 2200(2550,2700)1100 -2层-1层1层(2层不设置层站)C25根据规范标准及实际情况,1#、2#、13#楼三层以上电梯门洞口结构高度为2300mm,符合据成活地面2200mm要求;5#、6#、8#、10#、11#楼一层以上电梯门洞口结构高度为2600mm,上方需设置300mm高门头梁;地下室普通电梯门洞口结构高度为-2层2550mm,-1层2700mm,需分别设置350mm、500mm高门头梁,过梁根据陕09J05《钢筋混凝土过梁》及实际情况,现植筋4根12纵向钢筋,箍筋采用φ6@150,250*500过梁两侧分别设置2根φ10构造筋,其中梁上下纵筋需两端分别植筋,并错开在其净跨1/3处搭接,搭接长度600mm植筋深度120mm,具体图例如下:。
门洞过梁施工工艺1. 引言门洞过梁施工工艺是指在建筑施工过程中,为了满足建筑结构和功能需求,对门洞上方的梁进行施工的一种工艺。
本文将详细介绍门洞过梁施工的步骤、工艺要点以及注意事项。
2. 施工步骤门洞过梁施工通常可以分为以下几个步骤:2.1. 准备工作在施工前,需要进行一些准备工作,包括:•确定门洞的尺寸和位置。
•评估门洞上方的结构承载能力。
•准备所需的施工材料和工具。
2.2. 搭建脚手架在门洞上方搭建脚手架,用于支撑施工过程中的材料和工人。
脚手架的搭建需要按照相关的安全规范进行,确保施工过程的安全性。
2.3. 施工模板根据门洞的尺寸,制作施工模板。
模板的制作需要精确的测量和加工,以确保梁的尺寸和形状符合设计要求。
2.4. 配筋在模板内安装钢筋,根据设计要求和结构承载能力进行配筋。
配筋需要按照相关的标准进行,以确保梁的强度和稳定性。
2.5. 浇筑混凝土将预制的混凝土倒入模板中,确保混凝土充分填充模板内的空隙。
在浇筑混凝土之前,需要确保模板的密封性和支撑性,以免混凝土漏出或模板变形。
2.6. 养护混凝土浇筑后,需要进行养护。
养护的目的是保持混凝土的湿度和温度,促进混凝土的硬化和强度发展。
养护时间一般为7至14天,期间需要定期进行湿润和覆盖保护。
2.7. 拆除模板和脚手架混凝土养护结束后,可以拆除模板和脚手架。
在拆除过程中需要小心谨慎,以免对梁和周围结构造成损坏。
3. 工艺要点门洞过梁施工工艺需要注意以下几个要点:3.1. 安全第一在施工过程中,要始终将安全放在首位。
施工现场应设置警示标志,工人应佩戴安全帽和防护鞋,操作时要注意防滑和防坠落。
3.2. 质量控制施工过程中要严格控制质量,确保梁的尺寸、强度和稳定性符合设计要求。
对混凝土的配合比、浇筑工艺和养护过程进行严格监控,以确保施工质量。
3.3. 材料选用在门洞过梁施工中,应选用符合国家标准的混凝土和钢筋。
混凝土的强度等级和抗渗性能要满足设计要求,钢筋的型号和规格要符合相关标准。
预制门洞过梁施工方案1. 简介预制门洞过梁施工方案是指在建筑施工过程中,使用预制构件来搭建门洞过梁的一种施工方法。
该方法的优点是施工周期短、工期紧凑、质量可控,并且能够降低施工现场的噪音和灰尘污染。
2. 施工工艺流程2.1. 准备工作在进行预制门洞过梁施工之前,需要进行一些准备工作,包括确定门洞尺寸、选择预制构件型号和材料、制定施工计划、准备必要的施工设备和工具等。
2.2. 预制构件制作根据门洞的尺寸和要求,制作预制构件,包括预制梁、预制柱等。
预制构件的制作可以在工厂内完成,确保构件的质量和尺寸的精确度。
2.3. 现场施工2.3.1. 基础处理根据设计要求,在门洞两侧的墙体上进行基础处理,打破原有的墙体结构,为门洞过梁留出空间。
2.3.2. 安装门洞立柱使用吊车将预制柱运至施工现场,然后将其准确地安装在门洞两侧的墙体上。
确保立柱的垂直性和水平性,使用水平仪进行校准。
2.3.3. 安装门洞梁将预制梁运至施工现场,使用吊车将其准确地安装在立柱之间。
确保梁的平整度和水平度,使用水平仪进行校准。
2.3.4. 确定梁柱间的连接方式根据设计要求和实际情况,确定梁柱间的连接方式,使用适当的连接件将梁和柱连接起来,确保连接牢固可靠。
2.3.5. 封堵预制构件与墙体之间的缝隙使用预制封堵材料,将预制构件与墙体之间的缝隙进行封堵,确保门洞过梁的密封性和防水性能。
3. 施工注意事项3.1. 安全措施在进行预制门洞过梁施工时,必须严格遵守相关的安全规定和操作规程,确保施工人员的人身安全。
必要时,应设置安全警示标志,进行安全防护措施。
3.2. 质量控制在施工过程中,要进行严格的质量控制,对预制构件的尺寸、强度、平整度等进行检测和验收。
对施工过程中的关键点进行抽样检验,确保施工质量符合设计要求和相关标准。
3.3. 现场管理对施工现场进行合理规划和管理,确保施工顺利进行。
包括现场材料的堆放、施工设备的摆放、施工区域的划分等。
过梁验收规范篇一:11#楼过梁、构造柱等隐蔽验收记录表篇二:《建筑装饰工程施工及验收规范》《建筑装饰工程施工及验收规范》第一章总则第1.0.1条本规范适用于工业与民用建筑装饰工程的施工及验收。
(注:有放射性、防腐蚀、防火等要求的装饰工程,应按设计要求或有关规定执行)第1.0.2条装饰工程所用的材料,应按设计要求选用,并应符合现行材料标准的规定。
对材料质量发生怀疑时,应抽样检查,检查合格后方可使用。
第1.0.3条装饰工程所用的砂浆、石灰膏、玻璃、涂料等,宜集中加工和配制。
第1.0.4条装饰材料和饰件以及有饰面的构件,在运输、保管和施工过程中,必须采取措施防止损坏和变质。
第1.0.5条抹灰、涂料和刷浆工程的等级及适用范围,应符合设计的要求。
第1.0.6条装饰工程应在基体或基层的质量检验合格后,方可施工。
第1.0.7条高级装饰工程施工前,应预先做样板(样品或标准间),并经有关单位认可后,方可进行。
其他等级的装饰工程是否需做样板,应由设计确定。
第1.0.8条室外抹灰和饰面工程的施工,一般应自上而下进行。
高层建筑采取措施后,可分段进行。
第1.0.9条室内装饰工程的施工,应待屋面防水工程完工后,并在不致被后继工程所损坏和玷污的条件下进行。
室内抹灰在屋面防水工程完工前施工时,必须采取防护措施。
第1.0.10条室内吊顶、隔断的罩面板和花饰等工程,应待室内地(楼)面湿作业完工后施工。
第1.0.11条室内装饰工程的施工顺序,应符合下列规定:一、抹灰、饰面、吊顶和隔断工程,应待隔墙、钢木门窗框、暗装的管道、电线管和电器预埋件、预制钢筋混凝土楼板灌缝等完工后进行;二、钢木门窗及其玻璃工程,根据地区气候条件和抹灰工程的要求,可在湿作业前进行;铝合金、塑料、涂色镀锌钢板门窗及其玻璃工程,宜在湿作业完工后进行,如需在湿作业前进行,必须加强保护;三、有抹灰基层的饰面板工程、吊顶及轻型花饰安装工程,应待抹灰工程完工后进行;四、涂料、刷浆工程,以及吊顶、隔断罩面板的安装,应在塑料地板、地毯、硬质纤维板等地(楼)面的面层和明装电线施工前,以及管道设备试压后进行。
二次结构图纸深化要求
一、构造柱的设置
1、混凝土小型空心砌块、蒸压加气混凝土砌块等轻质墙体,当墙长大于5m时,应增设间距不大于3m的构造柱。
2、不同材质墙体交接处设置构造柱。
3、砌体无约束的端部必须增设构造柱。
4、洞口宽度大于2m时,两边应设置构造柱。
5、窗间墙宽度小于300mm的位置设置构造柱。
6、填充墙长大于2倍墙高时,墙中设构造柱,构造柱遇窗时锚入窗台压顶。
7、钢筋混凝土墙、柱边小于20cm的小墙垛与墙柱一同浇注。
8、蓝图中原有的构造柱。
二、门窗过梁的设置
1、过梁的长度:
⑴当洞宽不大于1.5m设90厚过墙板,板底配3φ8,φ6@200,每边搁置300。
宽度大于300mm的预留洞口应设置钢筋混凝土过梁,做法与其相同。
⑵当洞宽大于1.5m且小于3.0m,在门洞顶设梁200×200,内配4φ12,每边搁置300。
⑶大于3.0m的门窗洞,洞顶过梁做满一跨,跨间按3m间距设置吊柱。
⑷顶层门窗洞口过梁宜结合圈梁通长布置,若采用单独过梁时,过梁伸入每边墙内每边600mm。
三、其他构造要求
1、砌体工程顶层和底层应设置通长的现浇钢筋混凝土窗台梁,梁高120mm,纵向配筋4φ10,箍筋φ6@200;其它层在窗台标高处,应设置通长的现浇钢筋混凝土板,板带厚度60mm,混凝土强度等级不应小于C20,纵向配筋3φ8。
2、填充墙高4m,墙内设现浇混凝土板带;所有混凝土加气块墙体中部设置现浇混凝土板带,内配3φ6主筋,φ6@300拉结筋。
3、所有填充墙下部设置20cm高C20素混凝土导墙,厚度与墙同。
门洞过桥板规范
如果门洞的宽未超过一米,梁高为十二厘米;若宽在一米到一米五之间,梁高为十八厘米;若宽在一米五到两米五,梁高为二十四厘米;若宽在两米五到四米,梁高为三十厘米。
而梁宽则是墙面的长度,通常情况下,施工图纸上的表格会注明门洞过梁尺寸,按标准施工即可。
其中过梁上墙的大小,则是按它跨墙高的三分之一来算,但若有楼板,还需算出楼板的荷载力,但大小超过跨墙高数值而出现楼板的话,则可忽略它传来的荷载力。
当墙面凿门洞洞口的时,为了将它产生的荷载力传送给墙体,应在洞口建横梁。
若房屋的荷载力很大或出现不固定的沉降,应设置混凝土过梁,从而增加它的稳固性。
但若过梁长度小于一米五时,则可使用钢筋砖过梁,如果小于一米二的话,可设置砖砌平拱过梁。
其中后面两种过梁方式可有效节省材料,从而减少施工费用,但它的承重力不是很理想,不适用于荷载力很大或出现不固定沉降的房屋,因此选择后两种过梁的房产范围比较小,受到限制。
而不同性质的建筑物门洞过梁厚度是不一样的,其中高层板楼厚度应在15-18厘米,而塔楼应在12-15厘米。
另外别墅的过梁宽应大于24厘米,而它的常见高度有6厘米、12厘米、24厘米等。
而施工工艺分为预制和现浇,可根据它的断面结构,来选择相应的施工。
过梁设置规范一、引言过梁设置是在城市道路或高速公路建设中常见的工作,它们用于提供桥梁结构上方的通行空间。
合理的过梁设置不仅能确保车辆和行人的安全,还能有效提高交通流量和减少拥堵。
因此,如何制定规范的过梁设置要求至关重要。
二、基本原则1. 安全性原则:过梁设置必须优先考虑道路使用者的安全。
要根据实际情况设置合适的过梁高度、宽度和跨度,以确保车辆和行人能够安全通过。
2. 通行能力原则:过梁设置应该尽量避免对交通流量造成影响,尤其是在繁忙的路段或高速公路上。
应根据道路的设计交通量和速度制定过梁的数量和布局,以确保交通的顺畅和效率。
3. 经济效益原则:过梁设置还应考虑经济效益,即在保证安全和通行能力的前提下,尽量减少过梁数量和投资成本。
三、过梁设置的基本要求1. 过梁高度:根据道路的功能和用途,过梁的高度应满足相关规范的要求。
一般来说,城市道路的过梁高度应为4.5米以上,高速公路的过梁高度应为5.5米以上,以确保大型车辆能够顺利通过。
2. 过梁宽度:道路上的过梁宽度应根据交通需求和通行能力要求来确定。
对于城市道路上的步行道过梁,宽度一般不小于2.5米;对于高速公路上的过梁,宽度应满足相关规范的要求。
3. 过梁跨度:过梁的跨度应根据道路的宽度和设计要求来确定。
较短的跨度可采用板梁或箱梁结构,较长的跨度则需要考虑采用悬索桥或斜拉桥等更复杂的结构形式。
4. 过梁间距:过梁之间的间距应根据交通流量和速度来确定。
一般来说,城市道路上的过梁间距不应小于100米,高速公路上的过梁间距不应小于250米,以确保车辆能够充分利用通行空间。
四、影响过梁设置的因素1. 道路环境:过梁设置受到道路环境的限制,包括道路的宽度、坡度、曲线半径等。
在道路条件受限的情况下,过梁的高度、宽度和跨度可能需要进行相应调整。
2. 交通流量和速度:交通流量和速度是决定过梁设置的重要因素。
交通流量大且速度较快的路段,需要设置更多的过梁以确保交通的顺畅和安全。
过梁设置要求
过梁是指在建筑施工中,在两个支点之间设置的横跨于两个支点之间的木梁、钢梁或混凝土梁。
在建筑工程中,过梁的设置是非常关键的,因为过梁的质量和安全性直接影响着整个建筑结构的稳定性和安全性。
过梁的设置要求主要包括以下几个方面:
1. 材料要求:过梁的材料应该具有足够的强度和稳定性,能够承受建筑物的自重和外力荷载。
常见的过梁材料有木材、钢材和混凝土等。
2. 尺寸要求:过梁的尺寸应该根据实际情况进行设计,要考虑到支点的距离、荷载大小、材料的强度等因素,确保过梁的尺寸和强度满足设计要求。
3. 安装要求:过梁的安装要求非常严格,必须按照设计图纸的要求进行施工,确保过梁和支点之间的连接牢固、稳定。
在安装过程中,要注意使用正确的工具和设备,遵守相关的安全规定。
4. 检验要求:在过梁安装完成后,必须进行严格的检验,确保过梁的质量和安全性符合设计要求。
检验内容包括过梁的尺寸、强度、支点连接等方面。
总之,在建筑施工中,过梁的设置是一个重要的环节,必须严格按照要求进行设计、施工和检验,确保过梁的质量和安全性,保障建筑结构的稳定和安全。
- 1 -。
门洞构造做法及要求篇一门洞构造做法及要求咱们今儿就来好好聊聊门洞构造的那些事儿。
为啥要整这么一出要求呢?很简单,这门洞构造要是弄不好,那麻烦可就大啦!比如说,门装不上,或者装上了关不严实,透风漏雨的,多闹心啊!咱的目标就是要让门洞构造得既美观又实用,还得坚固耐用。
那具体都有啥要求呢?咱分分类哈。
先说尺寸要求,门洞的高度,一般不能低于 2 米,**不然个子高的人进门还得低头,多憋屈**?宽度呢,单扇门至少 90 厘米,双扇门至少 150 厘米,**这可都是有讲究的,太窄了进出不方便**。
再说说平整度要求,门洞的墙面必须平整垂直,误差不能超过 5 毫米,**要是歪歪扭扭的,门装上能好看吗**?还有垂直度要求,门洞的四个角必须是 90 度直角,偏差不能超过 2 度,**不然门装上能合缝吗**?材料要求也不能马虎,要用质量好的砖块、水泥和沙子,**可别为了省几个钱用那些劣质材料,到时候出了问题后悔都来不及**。
这些要求可都重要得很呐!要是不按照要求来,那后果可严重啦!门装不好得返工,费时费力还费钱,您说是不是?所以啊,大家可得把这些要求记在心里,认真施工,别给自己找麻烦!篇二门洞构造做法及要求嘿,朋友们!今天咱们来唠唠门洞构造的做法和要求。
为啥要这么重视这个呢?您想想,要是门洞没弄好,那家里的整体美观度不就大打折扣啦?而且门用起来也不顺手,这多影响生活质量啊!先看看施工流程的要求。
第一步,得精确测量门洞的尺寸,这可不能马虎,**量错一点,后面都得乱套**!然后呢,按照设计要求进行砌墙,这墙得砌得笔直笔直的,**要是歪了,那可就成笑话了**。
接着说说门洞的加固要求。
在门洞上方,一定要加过梁,而且过梁得有足够的强度,**不然时间长了,上面的墙体会下沉,那可就危险了**。
防水要求也不能忘啊!门洞周边要做好防水处理,**不然一到下雨天,雨水渗进来,这墙还不得发霉啊**?还有门洞的收口要求,得处理得光滑平整,不能有毛刺和裂缝,**要不然看着多粗糙啊**。
一、中南地区建筑标准设计:1、设计依据:2、过梁:门窗过梁设计说明:1)本门窗过梁设计使用于非抗震设防地区和抗震设防烈度为6、7、8度地区的假期混凝土砌块填充墙体门窗洞口过梁。
2)过梁断面形式为矩形,梁宽同常用墙厚100、150、200三种。
过梁净跨Ln=800~3000mm,过梁上面砌体高度600、1200二种。
3)材料自重标准:钢筋混凝土25KN/m3,加气混凝土砌体8.4KN/m3,(按B06级干密度600Kg/m3×1.4考虑),墙体双面抹灰1.0KN/㎡。
4)墙体荷载:当墙厚100时,按过梁上墙体高度hw=600或1200均布荷载采用;当墙厚为150或200,过梁上墙体高度hw≥净跨Ln/2时,按高度为Ln/2墙体均布荷载采用;当过梁上墙体高度hw<净跨Ln/2时,按时间墙体高度均布荷载采用。
5)设计系数:安全系数二级,重要系数r0=1.0,永久荷载分项系数rG=1.35,弯矩计算跨度Lo=1.05Ln。
6)混凝土等级强度C20,混凝土保护层厚度25mm。
7)安装预制过梁时,支座处先浇水,水侵入砌块8~10mm后,铺15厚1:2.5水泥砂浆。
8)过梁一端为混凝土墙或柱时,预埋钢筋伸入柱内200mm,或柱内预埋钢板,后与钢筋焊接。
9)其他以中南标03ZG313《钢筋混凝土过梁》选用。
钢筋混凝土门窗过梁表蒸压加气混凝土建筑应用技术规程(行业标准JGJ/T17-2008):本规范适用于在抗震设防烈度为6~8度的地震区及非地震区施工,强度等级为A2.5级以上的蒸压加气混凝土砌块,强度等级为A3.5级以上的蒸压二、加气混凝土配筋板材的设计、施工与质量验收。
(行标中编号)1、在下列情况下不得采用加气混凝土制品:(3.0.3)1)建筑物防潮层以下的外墙;2)长期处于浸水和化学侵蚀的环境;3)承重制品表面温度经常处于80°C以上的部位。
2、加气混凝土制品砌筑或安装时的含水率宜小于30%(3.0.4)3、加气混凝土砌块应采用专用砂浆砌筑。
门洞过梁规范门洞过梁规范指的是在建筑施工中,门洞下部有横梁横跨而过的一种设计规范。
以下是关于门洞过梁规范的1000字介绍。
一、门洞过梁规范的基本要求门洞过梁是指在门洞下部设置横梁,用以支撑上部结构和分散上部结构荷载。
门洞过梁的设计应符合以下基本要求:1. 建筑安全:门洞过梁的设计应满足建筑安全的要求,能够承受建筑上部结构的荷载,并且能够抵抗自重、风载和地震力等外力。
2. 结构稳定:门洞过梁的结构应具有良好的稳定性,不应有过大的挠曲变形或扭转变形。
门洞过梁在横向和纵向上的刚度要满足规范要求。
3. 施工方便:门洞过梁的施工应方便快捷,同时还要兼顾施工安全和质量。
二、门洞过梁的设计参数和尺寸门洞过梁的设计参数和尺寸是根据具体的建筑要求和结构力学计算而得出的。
以下是一些常见的设计参数和尺寸:1. 横梁截面形式:一般采用矩形截面或槽钢截面。
矩形截面较常见,尺寸可根据承载力计算确定。
2. 横梁截面尺寸:横梁截面的高度和宽度根据结构力学计算确定。
一般情况下,门洞过梁的高度不应超过门洞的1/4。
3. 横梁的布置形式:横梁可以布置在门洞的上方或下方。
根据具体的设计要求和实际情况,选择合适的布置形式。
4. 横梁与上部结构的连接方式:横梁与上部结构的连接方式一般采用焊接或螺栓连接。
连接的方式应符合相关规范和标准。
5. 横梁的材料选择:横梁的材料要具备足够的强度和刚度,一般采用钢材或混凝土。
根据具体的设计要求和施工条件选择合适的材料。
三、门洞过梁的施工注意事项门洞过梁的施工应符合相关的施工规范和标准,并注意以下事项:1. 施工顺序:门洞过梁的施工顺序应符合设计要求和施工要求。
一般情况下,门洞过梁应在上部结构施工之前完成,以确保施工的连贯性和安全性。
2. 施工质量:门洞过梁的施工应注意施工质量,避免出现裂缝、变形等质量问题。
施工过程中应严格控制浇注混凝土的质量和工艺参数,确保横梁的强度和稳定性。
3. 安全防护:门洞过梁的施工过程中应加强安全防护,保证施工人员的安全。
过梁高度标准
过梁的高度和门窗洞口的长度有关,当门窗洞口长度不足1米时,过梁的高度通常在120毫米左右;当门窗洞口长度在1米至1.5米之间时,过梁的高度为180毫米;当门窗洞口长度在1.5米至3米之间时,过梁的高度应在240毫米左右。
过梁是砌体结构房屋墙体门窗洞上部的横梁,其作用是承受门窗洞口上部的荷载,并把它传到门窗等洞口两边的墙上,以免门窗框被外荷载压坏或变形。
过梁的长度一般应满足门窗洞口每边搁置不小于240毫米,并伸入墙内不小于60毫米的要求。
如果门窗洞口宽度超过3米,则需要专门设计过梁或采用钢筋混凝土梁进行加固。
请注意,具体的过梁高度标准可能因地区、建筑类型和工程要求而有所不同。
因此,在实际工程中,应根据具体情况和相关标准来确定过梁的高度。
过梁设置规范要求
过梁设置规范要求是什么
1、当墙体的上方有设置门或者是窗户的洞口的时候,一般都需要在门或者是窗户的洞口上方设置一根横梁,这根横梁就是所谓的“过梁”。
为了确保门窗结构的安全性和稳定性,门窗过梁的时候,一般都需要根据相关的设置规范要求进行设置。
2、设计师一般都会在施工图纸上列出门窗过梁的尺寸,一般都会根据门窗的洞口宽度的范围来分别给出过梁的高度和宽度、支座长度、钢筋的配筋情况等等,其中梁宽一般都是和墙面宽度是一样的。
3、假如门窗的洞口宽度低于1000毫米的话,那么过梁的高度就应该是120毫米,而支座长度则应该是240毫米。
假如门窗的洞口宽度是在1000毫米到1500毫米之间的话,那么过梁的高度应该是180毫米,而支座长度则应该是240毫米。
4、假如门窗的洞口宽度是在1500毫米到2000毫米之间的话,那么过梁的高度应该是240毫米,而支座长度则应该是240毫米。
假如门窗的洞口宽度是在2000毫米到2500毫米之间的话,那么过梁的高度应该是240毫米,而支座长度则应该是240毫米。
5、假如门窗的洞口宽度是在2500毫米到3000毫米之间的话,那么过梁的高度应该是300毫米,而支座长度则应该是360毫米。
门窗过梁的具体设置尺寸一般需要根据实际的施工图纸来进行施工,从而避免出现问题。
砌体结构设计规范·圈梁、过梁、墙梁及挑梁·墙梁7.3.1 墙梁包括简支墙梁、连续墙梁和框支墙梁。
可划分为承重墙梁和自承重墙梁。
7.3.2 采用烧结普通砖和烧结多孔砖砌体和配筋砌体的墙梁设计应符合表7.3.2的规定。
墙梁计算高度范围内每跨允许设置一个洞口;洞口边至支座中心的距离αi,距边支座不应小于0.15l oi,距中支座不应小于0.07l oi。
对多层房屋的墙梁,各层洞口宜设置在相同位置,并宜上、下对齐。
表7.3.2 墙梁的一般规定注:1 采用混凝土小型砌块砌体的墙梁可参照使用;2 墙体总高度指托梁顶面到檐口的高度,带阁楼的坡屋面应算到山尖墙1/2高度处;3 对自承重墙梁,洞口至边支座中心的距离不宜小于0.1l0i,门窗洞上口至墙顶的距离不应小于0.5m;4 h w—墙体计算高度,按本规范第7.3.3条取用;h b—托梁截面高度;l0i—墙梁计算跨度,按本规范第7.3.3条取用;b h—洞口宽度;h h—洞口高度,对窗洞顶至托梁顶面距离。
7.3.3 墙梁的计算简图应按图7.3.3采用。
各计算参数应按下列规定取用:1) 墙梁计算跨度l0(l oi),对简支墙梁和连续墙梁取1.1l n(1.1l ni)或l c(l ci)两者的较小值;l n(l ni)为净跨,l c(l ci)为支座中心线距离。
对框支墙梁,取框架柱中心线间的距离l c(l ci);2) 墙体计算高度hw,取托梁顶面上一层墙体高度,当h w>l0时,取h w=l0(对连续墙梁和多跨框支墙梁,l0取各跨的平均值);3) 墙梁跨中截面计算高度H0,取H0=h w+0.5h b;4) 翼墙计算宽度b f,取窗间墙宽度或横墙间距的2/3,且每边不大于3.5h(h为墙体厚度)和l0/6;5) 框架柱计算高度H c,取H c=H cn+0.5h b;H cn为框架柱的净高,取基础顶面至托梁底面的距离。
7.3.4 墙梁的计算荷载,应按下列规定采用:1 使用阶段墙梁上的荷载1) 承重墙梁(1) 托梁顶面的荷载设计值Q1、F1,取托梁自重及本层楼盖的恒荷载和活荷载;(2) 墙梁顶面的荷载设计值Q2,取托梁以上各层墙体自重,以及墙梁顶面以上各层楼(屋)盖的恒荷载和活荷载;集中荷载可沿作用的跨度近似化为均布荷载。
简介过梁的定义(原创版)目录1.过梁的定义概述2.过梁的分类与结构3.过梁的作用和应用场景4.过梁的安装与维护5.结论正文一、过梁的定义概述过梁,又称之为门梁、横梁,是一种在建筑物门洞上方跨越的横向承重构件。
过梁的作用主要是承受门洞上部的荷载,并将这些荷载传递给两侧的墙体,保证建筑物的稳定和安全。
二、过梁的分类与结构根据过梁的材料和结构形式,可以将其分为以下几类:1.木过梁:采用木材制成的过梁,在我国传统建筑中应用广泛。
2.钢筋混凝土过梁:由钢筋和混凝土组成的过梁,具有较好的抗压和抗拉性能,适用于各种类型的建筑物。
3.预应力混凝土过梁:通过预应力钢筋提高混凝土的抗拉性能,使过梁具有更好的承载能力和耐久性。
4.钢结构过梁:采用钢材制成的过梁,具有较高的强度和刚度,适用于大跨度和重载的建筑物。
三、过梁的作用和应用场景过梁作为建筑物的重要构件,具有以下作用:1.承重:过梁承担着门洞上部的荷载,保证建筑物的稳定和安全。
2.分隔空间:过梁将建筑物内部空间进行分隔,起到隔层的作用。
3.装饰:过梁在建筑物中具有一定的装饰作用,可以提升建筑物的美观程度。
过梁广泛应用于各类建筑物,如住宅、商业建筑、公共建筑等。
四、过梁的安装与维护1.安装:过梁的安装需要严格按照设计图纸进行,确保过梁与墙体的连接牢固可靠。
安装过程中应注意保护过梁的表面,避免破损和污染。
2.维护:过梁在使用过程中应定期进行检查和维护,发现问题及时处理。
维护内容包括清洁、修补、更换等。
五、结论过梁是建筑物中重要的承重构件,具有重要的实用价值和装饰作用。
建筑砌体施工时门窗过梁、构造柱、圈梁施工应该重点关注什么?一、门窗过梁、构造柱、圈梁注意要点1、门窗洞口过梁设置,大于500mm以上洞口都必须设置钢筋砼预制过梁,过梁的墙体搁置长度不小于240mm。
2、墙高超过4米时应设置圈梁,圈梁高度宜为砌块高度的倍数,且不小于120mm。
配筋要求纵筋不少于4φ10,箍筋φ6@200。
3、当不同标高过梁设置在相邻门窗洞口,为满足规范要求,采取整体浇筑。
4、构造柱的设置和配筋按照构造柱施工图进行施工,墙体拉墙筋应锚入构造柱内,间距不大于500mm。
5、构造柱部位砌筑须先退后进设置马牙槎,马牙槎深度不小于60mm。
高度不大于300mm。
6、构造柱模板加固时,加气块不允许打洞,以保证模板的加固质量,并在加固之前贴泡沫胶条,避免浇筑砼时,造成胀模和漏浆。
二、砌体施工安全注意事项1、必须佩戴好安全帽。
2、脚手架上堆料量不得超过规定荷载,堆砖高度不得超过3 皮侧砖,同一块脚手板上的操作人员不应超过二人。
3、在楼层施工时,堆放机具、砖块等物品不得超过使用荷载。
4、砍砌块或砖时必须面向室内敲打,严禁砍砖朝外,以免碎砖从穿透外架网跌落伤人甚至更为严重的安全事故。
5、砌块运输车辆两车前后距离平道不小于2m,坡道上不小于10m,装砖时要先取高处后取低处,防止垛倒砸人。
6、在同一垂直面内上下交叉作业时,必须设置安全隔板。
7、人工垂直往上或往下转递砌块时,要搭递砖架子,架子的站人板宽度应不小于60cm。
8、不准勉强在超过胸部以上的墙体上进行砌筑,以免将墙体碰撞倒塌或上砖时失手掉下造成安全事故。
9、在砌块砌体上,不得作为其他施工临时设施的支撑支承点。
10、做到工完料尽场地清。
每施工完一层后,对落地的砂浆、碎砖等应及时清理回收使用或运送至指定地点。
11、不准随地大小便,不准乱扔烟头,以免引起火灾。
12、不准酒后上岗。
13、不准高空抛物。
14、外架连墙件不得拆除。
门洞过梁规范
门洞过梁是建筑设计中的一个重要环节,其规范有助于保证建筑结构的安全和稳定。
本文将介绍门洞过梁的规范内容,包括尺寸要求、材料选择、施工工艺等方面。
首先是门洞过梁的尺寸要求。
门洞过梁的宽度要与门洞宽度相同,并且在门洞两侧各增加适当的宽度以保证梁与墙体之间的连接牢固。
门洞过梁的高度一般为2.8-3.5米,具体要根据建
筑设计的需要确定。
此外,门洞过梁的厚度一般不小于
150mm,以保证其足够的强度和稳定性。
其次是门洞过梁的材料选择。
门洞过梁的主要材料一般为混凝土,其强度等级要根据建筑设计的要求确定。
同时,在混凝土浇筑前,应先在门洞两侧的墙体上安装预埋钢筋,以增加门洞过梁的承载能力。
此外,门洞过梁还应配备必要的钢筋混凝土附属构件,如抗震构件、连接件等,以增强门洞过梁的整体稳定性和抗震性能。
再次是门洞过梁的施工工艺。
门洞过梁的施工应按照专业规范进行,包括基础处理、模板搭设、钢筋布置、混凝土浇注、养护等环节。
首先,应确保门洞过梁的基础充分坚固,以满足其承重要求。
然后,在基础上搭设模板,按照设计要求布置预埋钢筋,并确保其位置准确、固定牢靠。
接着,进行混凝土浇筑,要求浇筑过程中均匀振捣、顺序浇筑,以保证混凝土的质量。
最后,进行养护,常见的养护方法包括喷水养护、覆盖湿麻袋等,以保证混凝土的强度和稳定性。
另外,门洞过梁的规范还包括施工时遵循的安全操作规程。
施工人员应戴好安全帽、安全鞋,正确使用安全工具,注意施工现场的整理和安全防护措施。
对于高空作业,要采取必要的安全措施,如使用安全带、防护网等,防止施工人员意外坠落。
总结起来,门洞过梁的规范内容包括尺寸要求、材料选择、施工工艺和安全操作规程等方面。
遵循这些规范有助于确保门洞过梁的安全和稳定,保证建筑结构的整体质量。
在实际施工中,需要严格按照专业规范进行操作,并做好相应的质量检查和安全防护工作。
只有这样,才能建造出安全可靠的门洞过梁。