房地产公司设计变更管理流程范本
- 格式:doc
- 大小:350.50 KB
- 文档页数:7
第一章总则第一条为规范保利房地产(集团)股份有限公司及各级子公司的设计变更管理工作,加强对设计变更的监控,制定本制度。
第二条公司内房地产开发项目建设中所涉及的所有设计变更,施工现场变更等均适用本制度。
第三条设计变更是指:对于非总价包干的合同,在最终版施工图下发到现场施工后发生的变更;对于总价包干的合同,相对于作为合同定价依据的图纸下发后发生的变更。
第二章设计变更的分类及发起第四条根据变更成因的角度分类,可将设计变更分为Ⅰ类变更和Ⅱ类变更两大类别:(一)Ⅰ类变更:设计院、技术管理部门主动对原设计缺陷补正、优化设计、补缺补漏引起的变更;(二)Ⅱ类变更:包括但不限于以下情况:由于施工条件变化、施工错漏或施工质量问题,需要调整原设计或进行补救而引起的变更;根据营销部门配合销售的要求而提出的变更;根据成本管理部门提出的成本优化要求的变更;根据物业公司在日常管理中提出的优化管理的要求的变更。
第五条设计变更的发起(一)Ⅰ类变更的发起:设计院在工作中自发现的设计错漏、在图纸会审过程中或施工过程中发现了设计文件本身存在的设计缺陷,应由设计单位直接发起,经设计部确认同意出具变更,并经审核签发流程同意后下发。
Ⅰ类变更的流程是:设计院发起变更单→技术部发出变更联系单→公司内部审核签发→现场(二)Ⅱ类变更:在施工过程中由于施工条件变化或者由于施工单位发生错漏而产生的变更,应由施工单位发出工程联系单,由监理单位及工程部签署意见,再由技术部发出设计变更联系单,由设计院出具设计变更文件;根据营销、成本和物业等其他部门要求而提出的设计变更必须附上由提出部门发出的工作联系单,并注明要求变更的原因。
Ⅱ类变更的流程是:1、施工单位发起工程联系单→工程部、监理单位签署意见→技术部发出变更联系单+设计图纸→公司内部审核签发→现场2、营销、成本、物业等相关部门发出工作联系单→技术部发出变更联系单+设计图纸→公司内部审核签发→现场第三章设计变更文件的内容管控第六条应尽量减少设计变更的数量。
精品文档精品文档设计变更管理流程 设计管理部 相关部门 设计管理部负责人 常务副总裁/总裁甲方及设计院变更申请设计变更申请设计变更信息汇总确认变更部位情况如认为不可行,需经部门负责人签字,回复书面意见 :错漏、补充、图纸会审意见、紧急事项等可先执行再补签审提出初步方案并组 织可行性论证单次单项金额< 10万元修改并形成变更方案证论更变重大设计变更整理变更方案交设计供方 2万<单次单项金额施实更变 变更实施营销管理部、开发 部:变更备案下发设计变更通知单责任设计师组织变 更实施复核跟踪落实设计单位 发出变更图纸并审 核1.目的1.1.对设计的变更的原因、方案进行论证和统计,使设计变更按规范程序进行,并提高设计管理能力,规避设计变更控制不严导致的各类风险(成本失控、客户承诺、工期拖延、报批报建等)。
2.适用范围2.1.适用于项目施工图完成后设计方面的变更控制,包括景观、装修装饰工程。
3.术语和定义3.1.设计变更:对原设计的错漏及欠合理、欠经济的地方进行修改,设计变更是对设计内容进行完善、修改及优化。
3.2.重大设计变更:单次单项金额》10万元或进度延迟〉15天,或涉及功能、外立面、交楼标准等的变更。
3.3.设计变更的来源主要包括:1)公司高层基于经营意图和要求发生变化发出指令;2)设计系统,即工程管理部(设计)、设计单位等,包括因设计内容自身的错、漏、碰、缺或改进设计效果等原因,而导致做法变动、材料代换或其他变更事项;3)工程系统,即项目工程部、工程管理部或施工单位提出,统一由施工单位上报情况至工程管理部(设计),包括未来方便施工,或施工过程中发现的地质、水文实际与勘察报告、资料不符而提出、工程质量事故引起的变更;4)营销系统,即营销管理部,以反馈客户提出意见为主;5)成本管理系统,即工程管理部(成本)提出。
5.支持文件1)工程签证管理流程6.相关记录1)设计变更审批单2)工作联系单3)重大设计变更范围(参考)附件1设计变更审批权限符号释义:①②③审核顺序审批参与编制/评审▲抄送附件2设计变更审核及论证的其他要求。
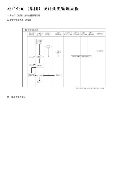
地产公司(集团)设计变更管理流程***房地产(集团)设计变更管理流程设计变更管理流程1.流程图第⼀章⼯作相关定义第⼆章变更⼯作程序3.1设计变更的提出3.1.1⼆级公司技术部门负责设计变更信息的收集、分类和整理;接受提出部门填写的《设计变更审批表》按流程进⾏审批。
3.1.2设计变更的原因:通常因以下⽅⾯产⽣设计变更设计类:设计错漏、设计优化、超⽬标成本、补充设计和现场条件等;现场施⼯类:施⼯错误、施⼯困难和施⼯进度要求;营销类:策划补充修改、客户要求;成本类:涉及⼯程造价成本调整的;其它类:领导要求、政府要求等。
3.2设计变更的论证3.2.1 ⼆级公司技术部门负责设计变更的论证,收到设计变更需求后,组织相关部门分析论证,论证中应考虑是否影响规划要求、消防等专项验收、销售承诺、成本变化等因素。
3.2.2论证的形式1)公司造控部对上述信息进⾏收集记录和判断,判断是否属于重⼤变更或是影响成本,根据具体情况判断设计变更可⾏性论证会的参与部门和形式。
2)对于⼀般变更,由⼆级公司技术部门给出基本可⾏性及合理建议⽅案,并组织部各专业设计师和⼯程师会签、论证。
3)对于重⼤设计变更,⼆级公司技术部门应组织由运营中⼼、设计单位、营销、造控部门等各专业⼈员参加论证会。
3.2.3论证的要求1)⼆级公司⼯程管理部应对设计变更涉及施⼯现场当时的进度情况描述清楚,确认有⽆返⼯、变更的⼯程量,对⼯期有⽆影响等,并对⽅案的可⾏性和对进度的影响提出明确意见。
对严重影响⼯期的可予以否决;认为可⾏的,签署进度评审意见。
2)⼆级公司造控部应明确设计变更相关⼯程量的核减及与原图纸作法进⾏⽐较,并对由此产⽣的造价成本增减予以确认。
评审认为不合理、不必要的,或设计变更会导致⼤幅度增加造价的,可予以否决;认为可⾏的,签署造价评审意见。
3)⼆级公司造控部应对设计变更所涉及的材料/设备的价格或现场⼯作的变化数额的描述,对变更影响造价估算或预算控制意见,并提出明确意见。
建筑设计/变更管理流程编制日期审核日期批准日期修订记录一、流程图二、流程概述三、工作程序3.1概念方案阶段1)收集资料a)集团成本控制中心提供建设成本限额;b)项目公司营销管理部提供《产品定位报告》;c)集团开发部提供项目简报和与土地相关的资料信息。
2)编制《概念方案设计任务书》a)集团规划设计部根据收集的资料,编制《概念方案设计任务书》;b)集团规划设计部负责组织相关部门参与会审《概念方案设计任务书》,报集团常务副总审核,董事长审批。
3)设计单位选择a)集团规划设计部在第1)、2)项工作进行的同时,按照【设计单位选择管理流程】选定设计单位。
4)概念设计a)集团规划设计部向设计单位发放《概念方案设计任务书》,并提供相关资料;b)集团规划设计部负责跟踪设计单位的概念设计过程;c)沟通过程应当尽量以书面形式进行记录,形式包括“设计过程沟通记录”、会议纪要、传真等。
集团研发设计部负责归档整理。
5)概念设计评审a)集团规划设计部负责组织项目公司工程部、综合部部、成本管理部、营销管理部、商业管理部、项目公司决策层、集团商业运营中心参加概念方案阶段的设计评审工作。
b)设计评审会以“会议纪要”或“设计评审表”的形式形成评审结论,集团规划设计部负责联系设计单位,根据评审结论调整方案,报集团常务副总审核,董事长审批。
3.2规划、单体方案设计阶段1)收集资料a)集团成本控制中心提供土地版目标成本及设计限额;b)集团开发部提供土地成交确认资料;c)项目公司综合部提供四源情况调查报告;d)项目公司营销管理部提供产品建议书。
2)编制《规划、单体方案设计任务书》a)集团规划设计部根据收集的资料,编制《规划、单体方案设计任务书》(一般应含项目名称、地址、用地现状、设计阶段、设计依据、功能定位、设计理念提要、技术经济指标、功能设置、设计文件内容、设计文件提交时间等内容要求);b)设计部负责组织相关部门参与会审《规划、单体方案设计任务书》,报集团常务副总审核,董事长审批。
一:发起人:
二、变更原因:第1项为招标缺项,第2项原图纸为C0715、成本招标时按普通窗招标,第3项施工图外审要求增加,第4项为设计增加成品保护、原技术要求中未包括
三、变更内容:
1.新增顶层露台铝包木门M0920, 24#8樘,27#6樘,28#6樘,29#6樘,共26樘46.8㎡。
2.一层楼梯间新增铝包木门MC0718,24#4樘,27#3樘,28#3樘,29#3樘,(原设计及成本计价为普通窗C0715)
共13樘。
3.新增地下室铝包木门MC0918,24#4樘,27#3樘,28#3樘,29#3樘,共13樘21.06㎡。
4.新增门下口6mm防踏钢板。
四、工期:2021年3月30日—2021年10月30日
一:发起人:王涛
二、变更原因:中瑞鼎峰城项目26#楼及周围车库基础局部采用级配砂石换填,具体做法详见变更图纸、工作内容及工程量详见现场签证图纸。
三、变更内容:
1.新增顶层露台铝包木门M0920, 24#8樘,27#6樘,28#6樘,29#6樘,共26樘46.8㎡。
2.一层楼梯间新增铝包木门MC0718,24#4樘,27#3樘,28#3樘,29#3樘,(原设计及成本计价为普通窗C0715)
共13樘。
3.新增地下室铝包木门MC0918,24#4樘,27#3樘,28#3樘,29#3樘,共13樘21.06㎡。
4.新增门下口6mm防踏钢板。
四、工期:2021年3月30日—2021年10月30日。
设计变更管理制度第一条为加强工程设计变更的管理工作,使之程序化、规范化,结合本部具体情况,制定本办法。
第二条总工办负责设计方案及施工阶段施工图的设计变更。
第三条设计变更分类一、一般变更是指涉及建筑外观、建筑功能布局、装饰装修方案、景观设计方案、结构形式、给排水方案、暖通方案、电气方案、智能化方案,对质量和工期不产生影响,引起的费用增减在5万元以下的设计变更。
二、重要变更是指不涉及建筑外观、建筑功能布局、装饰装修方案、景观设计方案、结构形式、给排水方案、暖通方案、电气方案、智能方案的变更及对质量和工期影响较小的变更设计,引起的工程费用增减在5万元以上的变更。
第四条设计变更控制程序一、一般变更,由工程部出《设计变更通知单》,由各设计主管、项目经理、成本主管、总工办会签,报主管领导批准,一般变更通知须在3日内完成。
二、重要变更,由综合办公室出《重要变更会签单》,由各相关设计主管、项目经理、成本主管会签,报主管领导批准后下发。
该类变更由综合部安排设计。
重要变更设计一般应在5日内完成。
三、对涉建筑外观、建筑功能布局、装饰装修方案、景观设计方案、结构形式、给排水方案、暖通方案、电气方案、智能化方案的变更,以及对工程质量和建设周期有明显的变更,由综合办公室根据方案调整情况提出;也可由工程部以上工作联系单的方式提出,由综合办公室安排进行变更。
该类变更由部长核决。
该类变更一般应在提出后一周内完成。
第五条变更费用控制流程一、凡属有适用定额和适用合同单价的变更,其单价仍执行定额单价或合同价。
二、上述变更以外的变更,其单价须经预算部审批,认可后方可执行,具体操作流程如下:施工单位在接到变更通知后,按规定的格式向监理单位申报变更单价(价款),监理单位根据合同规定审核。
审核结果经预算监理工程师和总监工程师签字,并加盖公章后报建设单位;建设单位预算部成本主管负责审核,审核结果经项目经理复核签字后,再报主管领导签字批准,加盖公章后正式生效。
设计变更管理程序编制xx 日期xx-7-30审核xx 日期xx-7-30批准xx 日期xx-修订记录日期修订修改内容修改人审核人批准人状态xx1.程序概况N变更金额界定审批Y 审核审批评审YY执行设计变更参与图纸会审参与图纸会审参与图纸会审图纸会审组织设计单位进行图纸调整50万<变更10万<变更金额≤50万5万<变更金额≤10万变更评估确认设计变更申请表设计变更申请设计变更申请设计变更申请提出设计变更文档说明工程管理部营销管理部成本管理部规划设计部项目公司总裁WT-BP-GH07 设计变更管理流程2.流程图3.职责4.工作程序4.1设计变更的一般来源:4.1.1设计缺陷或设计错误引起的设计变更。
4.1.2客户需求变更:在项目施工过程中,来自营销、成本管理、物业管理等方面提出的修改建议进行的变更设计。
4.1.3现场施工管理引起的设计变更:在施工过程中,因施工错误、材料/设备变更、施工现场条件误差、施工工艺技术等原因引起的设计变更。
4.2设计变更控制原则4.2.1事先变更原则:不管是设计缺陷与错误、客户需求,还是现场施工管理引起的设计变更,尽量在需要变更的部分施工之前进行变更,避免返工、浪费成本和影响工期。
4.2.2先算后做原则:对设计变更必须事先测算成本,经相关领导批准后才能施工。
4.2.3设计变更完工确认原则:设计变更完工后必须予以确认,避免重复计算或“变而不做或少做”。
4.3设计变更流程4.3.1规划设计部根据现场情况提出设计变更或接受其它部门的《设计变更申请审批单》。
4.3.2规划设计部组织相关工程师进行技术论证,做出是否可行的结论,如可行,由成本管理部进行成本测算并审定,规划设计部建筑师填写《设计变更申请审批单》,规划设计部经理签字确认。
4.3.3测算结果大于 5 万元小于(含等于)10 万元的变更,需报公司管理层审批,公司管理层不批准的则不通过。
公司管理层批准的,审批过程结束。
设计变更管理流程
某某流程指引手册
1. 流程目的
1.1. 规范设计变更管理流程,提高办理效率。
明确设计变更管理的责任人及责任人权限。
2. 适用范围
2.1. 所有住宅类开发项目。
3. 术语/定义
3.1. 重大设计变更:
A. 对使用功能、户型结构、建筑外立面、设计标准和质量标准有影响的更改
B. 销售许可证取得后涉及销售承诺的交楼标准和法律责任的更改
C. 导致工期延误,影响一级节点计划的更改
D. 单次更改(指对应于其承包合同)经成本测算可能产生的变化±20万元及以上 3.2. 一般设计变更:
E. 5万元<成本变化(±)≤20万元
F. 成本变化(±)≤5万元 4. 表单模板
4.1. 《设计变更审批表》 4.2. 《设计变更单》 4.3. 《变更签证台账》
某某流程指引手册
某
某流程指引手册
6. 程序
某某流程指引手
册
某某流程指引手
册
某某流程指引手
册
某某流程指引手册。
房地产公司设计变更管理流程范本设计变更是房地产项目实施过程中常常发生的情况,为了确保设计变更的顺利进行,需要建立科学有效的变更管理流程。
下面是一个房地产公司设计变更管理流程的范本,供参考:一、设计变更的定义和范围设计变更是指在项目实施过程中,由于设计方案不完善、建筑材料变更、技术要求变动等原因所引起的设计文件的修改和调整。
设计变更的范围包括但不限于建筑结构、建筑外观、室内布局、装修材料等方面。
二、设计变更申请和评估流程1.变更申请设计变更由项目经理或者相关设计人员提出申请,需提交变更申请表,明确变更的内容及原因,并附上必要的相关资料。
2.变更评估项目经理将变更申请表和相关资料提交给设计评估小组进行评估。
设计评估小组由建筑师、结构工程师、装修设计师等专业人士组成。
评估小组会对变更申请进行全面分析,评估其对项目进度、成本、质量等方面的影响,并给出评估报告。
3.变更批准项目经理根据评估报告,结合项目整体规划和目标进行综合考虑,决定是否批准变更,如果批准,则将变更内容以变更通知书的形式发给相关设计人员和参建单位。
4.变更实施设计人员在收到变更通知书后,根据变更要求修改设计文件,并及时与相关方面进行沟通和协调。
参建单位根据设计文件的变更要求进行施工调整,确保变更内容的顺利实施。
三、设计变更的控制1.严格控制变更发生的频率和范围,避免不必要的变更。
2.设计变更必须经过评估和批准程序,确保变更的合理性和可行性。
3.变更后的设计文件必须及时分发给相关方面,确保施工按照最新的设计进行。
4.变更后的设计文件必须进行版本管理,记录变更内容和原因,方便后期跟踪和审计。
四、设计变更的监控和评估1.项目经理对设计变更的实施情况进行监控和控制,确保变更按照规定程序进行,避免超出原定的预算和进度。
2.设计变更的实施结果需要进行评估和审核,确保变更达到预期效果,不影响项目的整体质量和品质。
3.变更实施过程中出现的问题和经验教训需要及时总结和反馈,以便在后续的项目中进行改进和优化。
房地产开发有限公司设计变更管理流程1.流程概况2.流程图3.工作程序3.1.设计变更的提出3.1.1.总工室负责设计变更信息的收集、分类和整理,根据工作联系单填写《设计变更审批单》。
3.1.2.总工室在收到各部门变更信息后,1个工作日内未填写《设计变更审批单》,扣罚总工室主任50元,总工室主任有权处扣罚责任设计师100元。
计划管理中心考核。
3.1.3.设计变更的原因分类:1)设计类:设计错漏、设计优化、超目标成本、补充设计和现场条件等。
2)现场施工类:施工错误、施工困难和施工进度要求。
3)营销类:策划补充修改、客户要求。
4)其它类:领导要求、政府要求等。
3.2.设计变更的论证3.2.1.总工室收到设计变更需求后,组织相关部门分析论证,论证中应考虑是否影响规划要求、消防等专项验收、销售承诺、成本变化等因素。
3.2.2.论证的形式1)总工室对上述信息进行收集记录和判断,判断是否属于重大变更,根据具体情况判断设计变更可行性论证会的参与部门和形式。
2)对于一般变更,由总工室给出基本可行性及合理建议方案,并组织本部门各专业设计师和工程师会签、论证。
3)对于重大设计变更,总工室应组织由设计单位、工程管理中心及成本控制中心等各专业人员参加论证会,影响到销售承诺时须由营销策划中心参与,影响物业设施设备的须邀请物业公司参与,影响到报建的须由项目开发中心参与。
3.2.3.一般变更不需要组织评审,总工室2天内完成设计变更技术确认,拖延则扣罚总工室主任50元,总工室主任有权对责任设计师处扣罚100元。
计划管理中心考核。
3.2.4.重大变更,评审会后总工室2个工作日内完成对项目开发中心、营销策划中心关于设计变更意见的收集,做出技术可行性判断并提交设计变更方案至成本控制中心。
3.2.5.重大变更评审会后,2个工作日内总工室未将变更方案传达成本控制中心,扣罚总工室主任50元,总工室主任有权对责任设计师处扣罚100元。
计划管理中心考核。
1.流程概述1.1.流程目的及适用范围1.3.责任部门2.操作指引2.1.设计变更控制原则(1)符合国家规范:设计变更应是对原设计中不满足国家规范、法规的部分进行变更,使之满足国家相关规范、法规;(2)保证使用功能:设计变更应是对原设计中不合理的部分进行变更,变更后应比原设计更合理、更满足使用功能;(3)降低建造成本:在不影响使用功能、满足国家规范的前提下,变更方案应尽量控制成本调整,或以最节省方式变更方案;(4)保证建造工期:在不影响使用功能、满足国家规范的前提下,变更方案应更缩短施工周期。
(5)一项变更在同一时期、在一个分期内涉及多专业的,应分专业变更、发放、归档,成本变化合计,整体报批,禁止化整为零。
2.2.设计变更内容(1)原设计中不符合国家规范、法规的内容;(2)原设计中某些施工工艺做法现场难以实现、改进后更加合理的内容;(3)原设计中某些功能要求不能达到或违背销售承诺而需要进行改进的内容;(4)原设计中存在的遗漏、缺陷等内容;(5)由于某种需要公司提出的对原设计的更改内容;(6)客户提出的变更。
2.3.工作程序3.3.1.设计变更的提出及审核(1)一般情况下设计变更由区域设计部或设计院提出,区域设计部负责发起OA线上《设计变更审批单》;(2)施工单位、项目部、营销部或公司其他部门在遇到需要提出设计变更时,应向区域设计部提出书面变更申请:其中,施工单位提交《工程联系单》至项目部,项目部审核无误后提交OA线上《工程签证内部审核单》至区域设计部;项目部、营销部或公司其他部门提交《工作联系单》至区域设计部,区域设计部审核各部门提交的表单后发起OA线上《设计变更审批单》。
(3)区域设计部应对变更进行施工工艺、技术要求等审核,必要时填写《设计工作联系单》提交委托设计单位审核,明确变更实施可行性,并提出变更方案;对于已经从技术角度确认可以实施的变更项目,项目部负责对变更部位的现场施工、进度等情况进行描述并提出建议;3.3.2.设计变更的审批、实施及验收(1)成本部收到《设计变更审批单》负责进行成本估算,填写《工程(设计)变更估算单》(此单仅用于公司内部领导决策参考,不得下发施工单位),估算价格在3万元以内(含)的《设计变更审批单》,由区域总经理审批;估算价格在3万元至5万元(含)之间的非功能性遗漏《设计变更审批单》,报总裁审批;估算价格在3万元至5万元(含)之间的功能性遗漏《设计变更审批单》,报区域总经理审批;估算价格5万元以上的《设计变更审批单》,由区域设计部报重大事项评审会审批;《设计变更审批单》审批完成后由区域设计部打印并加盖部门章后提交项目部和成本部,项目部下发至施工单位执行;(2)其中,因功能性遗漏或设计院下发的设计变更,由区域设计部发起OA线上《设计变更审批单》(设计院下发的《设计修改单》拍照作为OA线上附件),经项目部签字确认后提交成本部进行估算;估算价格在5万元(含)以下的《设计变更审批单》,经区域总经理审批后由项目部下发至施工单位实施具体变更内容;估算价格在5万元以上的《设计变更审批单》,由区域设计部报重大事项评审会批准后提交项目部,项目部下发至施工单位执行。
设计变更管理流程1范围适用于集团所有开发项目的设计变更控制。
2控制目标与关键绩效指标2.1控制目标:适用于集团所有开发项目的设计变更控制。
2.2关键绩效指标:3术语和定义3.1设计变更:原设计单位、设计部门或项目公司设计部门对经设计验证的设计文件的更改。
4职责4.1项目设计/项目工程部4.1.1提出设计变更要求;4.1.2审核各方提出的设计变更要求,形成变更方案;4.1.3组织各部门对变更要求和方案进行可行性论证;4.1.4填写并提交设计变更通知单进行审批;4.1.5发设计变更联系单,通知设计单位修改设计图纸并审核;4.1.6确认变更实施情况;4.1.7选择有价值的案例提交区域设计。
4.2项目成本部/顾问估算师4.2.1出具造价影响报告;4.2.2与顾问估算师沟通变更情况,并审核顾问估算师出具的造价影响报告;4.2.3参与设计变更可行性论证。
4.3区域设计/区域工程管理部4.3.1提出设计变更要求;4.3.2参与设计变更可行性论证;4.3.3按权限审批项目总监权限外的设计变更;4.3.4对产品设计图纸进行完善,建立产品标准;4.3.5选择有价值的案例纳入案例库。
4.4项目客服、项目客服、睿智营销公司4.4.1提出设计变更要求。
4.5项目总监4.5.1参与设计变更可行性论证,并在权限内对设计变更审批单进行审批;4.5.2审核变更图纸和发出关于设计变更的工程指令;4.5.3审批权限内的设计变更。
4.6区域总裁4.6.1审批区域工程管理部权限外的设计变更。
5主要控制点5.1设计变更信息的分类收集和甄别;5.2设计变更的审批,特别是客户需求变更的审批;5.3设计变更及设计图纸的修改和发放;5.4设计变更实施的控制;5.5设计变更定期的汇总和分析,并形成案例。
6流程说明。
地产公司项目设计变更程序简介地产公司在开展项目设计过程中,由于各种原因,可能会出现需要进行项目设计变更的情况。
本文档旨在规范地产公司项目设计变更程序,确保变更过程高效、合规,并保证项目的顺利进行。
目录1.设计变更申请2.设计变更评审3.设计变更批复4.变更后续处理5.变更记录和归档设计变更申请1.1 变更需求识别变更需求识别是变更过程的起点,旨在明确项目设计变更的原因和目标。
在此阶段,项目团队应与业主或相关利益相关者深入沟通,确保充分理解需求变更内容,并对其合理性进行评估。
1.2 变更需求分析变更需求分析是在需求识别的基础上,对变更需求的可行性和影响进行详细分析。
项目团队应当综合考虑各方面因素,包括但不限于技术可行性、成本影响、项目进度和风险等,对变更需求进行综合评估和分析。
1.3 变更需求确认在变更需求分析完成后,项目团队需要将分析结果以书面形式呈现给相关利益相关者,与其共同确认变更需求的内容和目标。
确认后,需制定变更申请书。
1.4 变更申请书编写变更申请书应包括以下内容:•变更申请的目的和原因•变更的具体内容和范围•变更对项目进度、成本、质量和风险的影响评估•变更后需要做出的调整和补充措施•变更申请的提交日期和提出人签字设计变更评审2.1 变更申请审核变更申请书提交后,需要由相关审核机构或部门进行审核。
审核人员需要对变更申请进行充分的审查和评估,确保变更的合理性、可行性和符合相关法规法规定。
2.2 变更影响评估通过审核后,项目团队应对变更进行细致评估,并对其可能带来的影响进行预测和分析。
影响评估应包括但不限于项目进度、成本、质量和风险等方面的影响。
2.3 变更决策基于变更申请审核和影响评估的结果,相关决策机构或部门需作出决策,包括批准、拒绝、推迟或需要额外评估等。
决策结果需以书面形式记录,并通知相关利益相关者。
设计变更批复3.1 变更批复申请在变更申请得到批准后,项目团队需要编写变更批复申请书,包括以下内容:•批复申请的目的和原因•批复的具体内容和范围•批复后需要做出的调整和补充措施3.2 变更批复审查变更批复申请提交后,需要相关审查机构或部门进行审查。
房地产公司设计变更管理流程
1.目的
1.1.对设计的变更的原因、方案进行论证和统计,使设计变更按规范程
序进行,并提高设计管理能力,规避设计变更控制不严导致的各类风险(成本失控、客户承诺、工期拖延、报批报建等)。
2.适用范围
2.1.适用于项目施工图完成后设计方面的变更控制,包括景观、装修装
饰工程。
3.术语和定义
3.1.设计变更:对原设计的错漏及欠合理、欠经济的地方进行修改,设
计变更是对设计内容进行完善、修改及优化。
3.2.重大设计变更:单次单项金额≥10万元或进度延迟>15天,或涉
及功能、外立面、交楼标准等的变更。
3.3.设计变更的来源主要包括:
1)公司高层基于经营意图和要求发生变化发出指令;
2)设计系统,即工程管理部(设计)、设计单位等,包括因设计内容自身的错、漏、碰、缺或改进设计效果等原因,而导致做法变
动、材料代换或其它变更事项;
3)工程系统,即项目工程部、工程管理部或施工单位提出,统一由施工单位上报情况至工程管理部(设计),包括未来方便施工,
或施工过程中发现的地质、水文实际与勘察报告、资料不符而
提出、工程质量事故引起的变更;
4)营销系统,即营销管理部,以反馈客户提出意见为主;
5)成本管理系统,即工程管理部(成本)提出。
4.工作程序
5.支持文件
1)工程签证管理流程
6.相关记录
1)设计变更审批单
2)工作联系单
3)重大设计变更范围(参考)
附件1 设计变更审批权限
符号释义:①②③审核顺序√审批○参与编制/评审▲抄送附件2 设计变更审核及论证的其它要求
附件3 异地项目公司文件使用对照表。