钢结构连接节点计算表格
- 格式:xls
- 大小:230.00 KB
- 文档页数:2
软件主要针对型钢混凝土埋入式刚性柱脚节点,计算主要遵循《钢结构连接节点设计手册》(第二版)及《钢骨混凝土结构设计规程》(YB 9082-2006)中的相关条文及规定。
《钢结构连接节点设计手册》(第二版)中埋入式柱脚相关技术内容,主要针对钢柱做埋入式柱脚节点。
设计注意事项刚性固定埋入式柱脚时直接将钢柱埋入钢筋混凝土基础或基础梁的柱脚。
其埋入办法:一是预先将钢柱脚按要求组装固定在设计标高上,然后浇灌基础或基础梁的混凝土;另一种是预先按要求浇灌基础或基础梁的混凝土,在浇灌混凝土时,按要求留出安装钢柱脚用的插入杯口,待安装好钢柱脚后,再用混凝土强度等级比基础高一级的混凝土灌实。
通常情况下,前一种方法对提高和确保钢柱脚和钢筋混凝土基础或基础梁的组合效应或整体刚度有利,所以在工程实际中多被采用。
在埋入式柱脚中,钢柱的埋入深度是影响柱脚的固定度、承载力和变形能力的重要因素,而且有时对于中柱、边柱和角柱,其埋入深度也不尽相同,这就需要选择易于进行钢筋混凝土补强的埋入深度来处理。
为防止钢柱的局部压屈和局部变形,在钢柱向钢筋混凝土基础或基础梁传递水平力处压应力最大值的附近,设置水平加劲肋是一个有效的补强措施;对箱型截面柱和圆管形截面柱处设置水平加劲肋的环形横隔板外,在箱内和管内浇灌混凝土也将获得良好的效果。
为防止基础或基础梁中混凝土早期的压坏和剪坏,应配置补强钢筋,合理地确定钢柱周边的钢筋混凝土保护层厚度及其配筋是很重要的。
在中柱、边柱和角柱中,其钢筋混凝土保护层厚度有时是不尽一致,特别在边柱和角柱的柱脚中,对没有设置基础梁的一侧,钢柱翼缘面处的钢筋混凝土保护层厚度;中柱不得小于180mm;边柱、角柱的外侧不宜小于250mm。
配置在钢柱埋入部分中的钢筋,出基础或基础梁应有的配筋外,尚应在钢柱周边增设补强垂直纵向主筋、架立筋、箍筋、顶部加强箍筋、基础梁主筋在钢柱埋入部分水平方向弯折处的加强箍筋。
在整体框架的内力分析时,对柱脚部分的刚度和刚度区域应留有一定的富裕量,刚度区域的高度应比基础或基础梁混凝土顶面高出1.2倍的钢柱截面高度。
50个钢结构计算表格excel版钢结构计算是建筑工程中非常重要的一部分,对于保证结构的安全性和稳定性起着至关重要的作用。
为了方便工程师进行钢结构计算,通常会使用计算表格来进行基本的计算。
在这篇文章中,我将介绍一些常见的钢结构计算表格,并提供一个包含50个钢结构计算表格的Excel版供读者参考。
1.钢梁计算表格:用于计算钢梁在静力荷载下的弯曲强度和承载力。
2.钢柱计算表格:用于计算钢柱在静力荷载下的抗压强度和承载力。
3.钢板计算表格:用于计算钢板在静力荷载下的弯矩和剪力。
4.节点连接计算表格:用于计算节点连接在静力荷载下的强度和稳定性。
5.焊接连接计算表格:用于计算焊接连接在静力荷载下的强度和稳定性。
6.螺栓连接计算表格:用于计算螺栓连接在静力荷载下的强度和稳定性。
7.钢桥计算表格:用于计算钢桥在静力荷载下的强度和稳定性。
8.钢塔计算表格:用于计算钢塔在静力荷载下的强度和稳定性。
9.钢拱计算表格:用于计算钢拱在静力荷载下的强度和稳定性。
10.钢筋计算表格:用于计算钢筋在静力荷载下的强度和承载力。
这些计算表格也可以根据具体工程的需要进行修改和扩展。
通常,计算表格中包括了输入数据、计算公式、计算结果等内容,以便于工程师进行计算和分析。
在下面,我将给出一个包含50个钢结构计算表格的Excel文件供读者参考。
该文件包含了上述提到的各种计算表格,并经过了编排和整理,方便读者使用。
这些表格的内容非常丰富,包括了静力荷载、材料性能、截面特性、计算公式等。
读者可以根据自己的需要使用这些表格,并根据实际情况进行修改和扩展。
总之,钢结构计算是建筑工程中不可或缺的一部分。
通过使用计算表格,可以方便快捷地进行结构的计算和分析。
希望这个包含50个钢结构计算表格的Excel文件对读者有所帮助,能够在实际工程中发挥作用。
钢结构节点详图制图方法的探索1 引言节点是钢结构设计中的重要组成部分,独立的钢结构构件通过节点连接形成结构。
因此在钢结构施工图设计中节点详图也占据了很大的比例。
然而,传统钢结构节点详图的绘制存在大量的重复工作。
笔者作为一名钢结构设计人员,针对上述问题,经过长期探索,特此提出一种新的制图方法:“示意图+表格”,经实践检验证明该方法简捷、明确。
2 传统节点详图做法通常的节点设计包括柱脚节点、柱柱拼接节点、梁柱节点、梁梁节点等。
节点详图中所反映的是与钢结构构件连接相关的所有信息,其中包括构件截面、构件相对位置、连接方式、焊缝形式、焊角尺寸、螺栓种类、螺栓数量、开孔位置、孔径大小、节点板尺寸、节点板厚度、加强板尺寸等。
如图1所示:14a1-1图1 传统梁柱节点图图1是用传统做法完成的一个梁柱节点图。
梁柱都是H型钢,通过栓焊混合的方式进行连接。
图中包含了所有与此连接相关的信息,将这种连接方式反映得很清楚。
但是这个图只反映了某一特定位置的连接信息,如果在其它位置相同的连接形式下,图中任何参数发生变化,就会产生出新的节点图。
虽然通常钢结构设计过程中最后都要做标准化设计,但是出于工程造价等因素的考虑一般情况下不会将构件形式和截面尺寸归并得太过统一,而且即使是相同的构件由于受力情况不同其节点设计也要做出相应的调整,所以就加大了节点详图绘制的工作量。
尽管在实际绘制过程中制图人员可以通过复制已完成的类似图形并加以修改来减少工作量,但是当需要修改的内容较多时操作起来也难免会有疏漏而致使详图发生错误。
所以每次的钢结构施工图绘制过程中节点详图的绘制都要花费很多的时间和精力。
3 节点详图新制图方法1-1图2 梁柱节点详图新做法图2表示的是H型钢梁与方钢管混凝土柱的连接。
图中包含了与此类节点相关的所有参数。
其中可以确定的参数直接标注在图中,如方钢管混凝土柱的截面、对接焊焊脚尺寸、螺栓横向定位尺寸、柱排气孔直径和定位尺寸、浇筑孔直径、横隔板焊缝尺寸、短梁外伸长度等。
第一章普通结构建模1.1 几何建模| 梁单元控制页面几何建模| 梁单元控制页面用于创建和编辑由两点间的连线所组成的结构实体,如梁,柱和框架等结构构件的几何模型。
当打开几何建模| 梁单元控制页面后,在数据区会出现一个节点数据表和梁单元数据表。
下面是节点数据表,梁板单元数据表同理。
在节点数据表中显示节点编号和坐标值。
在这个表中也可以指定新的节点或编辑已有的节点。
节点表中的节点坐标数据与主视图窗口中的结构模型是完全对应的。
1.2总体信息| 截面特性控制页面总体信息| 截面特性控制页面用于增加和编辑构件或单元的材料和物理特性。
截面…构件的截面特性可以定义为以下几种:A) 楞柱截面B) 标准型钢截面库C) 用户定义截面库D) 变截面E) 程序指定截面截面特性可以通过两种方法来指定。
一种是先增加一个截面特性然后选择结构或单元进行赋值。
另一种是先选择构件或单元,然后再定义一个截面特性并指定给它。
截面库…截面库…按钮用于从已有的截面库中选择截面。
截面库中有多个国家的标准截面,选择所需要的型钢类型然后从对话框中选择截面尺寸。
在每一个菜单的下方还有一个定义所选截面材料特性的对话框。
默认的材料特性是钢材。
定义截面…定义截面…按钮用于由用户自定义截面特性。
单击这个按钮,就会出现一个如图所示的属性对话框。
该对话框包含以下菜单:圆形截面,矩形截面,T性截面,不规则四边形截面,一般截面,变截面和指定截面。
每一个菜单下都有一个选择截面材料的材料特性对话框。
默认的材料是混凝土。
比如,如果要定义一个变截面,单击变截面按钮。
输入起始端节点截面高度F1,腹板厚度F2,终止端节点截面高度F3,上端翼缘宽度F4,上翼缘厚度F5,下端翼缘宽度F6和下翼缘厚度F7。
如果没有输入F6,默认它与F4相同。
如果没有输入F7,默认它与F5相同。
厚度…厚度…按钮用于指定板单元的厚度。
单击厚度…按钮,就会出现如图所示的板单元截面特性对话框。
可以利用这个对话框输入板单元的厚度和材料。
钢结构合同工程计价表英文回答:Steel structure contract engineering pricing is acrucial aspect of any construction project. It involves determining the cost of the steel structure based onvarious factors such as materials, labor, equipment, and overhead expenses. The pricing table serves as a guide to estimate the overall cost of the project.In order to accurately price a steel structure contract, several key elements need to be considered. Firstly, thesize and complexity of the structure play a significantrole in determining the cost. Larger and more intricate structures require more materials and labor, resulting in higher pricing.Secondly, the type of steel used in the structure is another important factor. Different types of steel have varying costs, with high-grade steel being more expensivethan lower-grade options. The quality and strength of the steel also affect the pricing.Additionally, the location of the project can impact the pricing. Construction costs can vary based on regional factors such as labor rates, transportation costs, andlocal regulations. For example, constructing a steel structure in a remote area with limited access to resources may result in higher pricing due to increased logistics costs.Furthermore, the timeline of the project can influence the pricing. If there is a tight deadline, the contractor may need to allocate additional resources and manpower to complete the project on time, which can lead to higher costs.Other factors that may be considered in the pricing table include the contractor's experience and reputation, the complexity of the design, and any additional services required such as engineering or design work.To illustrate the pricing process, let's consider an example. Suppose I am a contractor pricing a steelstructure contract for a warehouse. The warehouse is large, spanning 10,000 square feet, and requires high-grade steel to ensure durability. The project is located in a remote area with limited resources and has a tight deadline of three months.Based on these factors, I would estimate the cost of materials, labor, equipment, and overhead expenses. I would consider the current market prices for high-grade steel and factor in the transportation costs to the remote location. Additionally, I would allocate sufficient resources and manpower to meet the tight deadline.Considering all these factors, I would then create a pricing table that outlines the estimated costs for each component of the project. This table would serve as a reference for both myself and the client, providing transparency and clarity regarding the pricing of the steel structure contract.中文回答:钢结构合同工程计价表是任何建筑项目中至关重要的一部分。
摘要本工程为三层钢框架超市设计,长64.00m,宽30.00m,层高为4.5m,建筑高度为14.4m,建筑面积5760.00m2,综合运用所学专业知识,进行了钢结构建筑设计和结构设计。
主体采用钢框架结构,钢筋混凝土现浇楼板。
首先确定结构方案并进行荷载统计、梁柱截面选择及刚度验算,计算恒载、活载作用下的框架内力,然后计算风载、地震作用下的框架内力,经内力组合后得出构件的最不利组合内力,最后进行梁、柱截面验算、节点设计、楼板、楼板配筋计算,绘制施工图。
计算竖向荷载效应时采用分层法,计算水平荷载效应时采用D值法;在荷载组合时。
考虑以可变荷载效应控制的组合和以永久荷载效应控制的组合方式;在活荷载计算过程中,采用满布荷载法;框架节点设计采用栓焊混合的连接方式。
关键词:建筑设计;钢框架;内力分析;节点设计ABSTRACTBased on the professional knowledge for learned,the building was designed. The works include two parts: architecture design and structure design.This project is commercial building of 3-floors,steel structure,which is located in Xi An. It is 64.00m long, 30.00m wide. The height of story are 4.5m and5m. The height of the whole building is 14.4m.The total area is 5760.00m2.Architecture design tries hard for simple and clear,which has the ages feels and assort with surroundings environment.Steel frame and reinforce concrete floor were used in the structure. Firstly,the size of the beam and column was determined by the type of the structure and the calculation of the loads. Secondly,the inner forces of the frame under the wind load and earthquake load,the dead load,and the living loads were analyzed separately. By the combination of the inner forces,the most dangerous forces can be got,and then the steel beam,steel column,the frame connections and reinforce concrete floor can be designed. After these,the drawing can be made. In the progress of inter force analysis,the vertical forces are calculated by the layer-wise method,and the horizontal forces are calculated by the D method. In the process of the live load calculation,full load is used. Mixed connection with welding and bolts was used in steel frame,and independent foundation under column was adopted.Key Words:architecture design; steel frame; internal force analysis; connection design目录前言 (1)第1章建筑设计 (2)1.1设计任务和设计要求 (2)1.1.1设计任务 (2)1.1.2设计要求 (2)1.2建筑物所处的自然条件 (2)1.2.1气象条件 (2)1.2.2地形、地质及地震烈度 (2)1.2.3水文 (3)1.3建筑物功能与特点 (3)1.3.1平面设计 (3)1.3.2立面设计 (3)1.3.3防火 (3)第2章结构设计 (4)2.1结构方案选型及布置 (4)2.1.1柱网布置 (4)2.1.2结构形式选择 (4)2.1.3楼板形式选择 (4)2.2荷载计算 (4)2.2.1恒荷载标准值 (5)2.2.2活荷载标准值 (5)2.2.3风压标准值 (5)2.2.4雪荷载标准值 (6)2.2.5地震作用 (6)2.3竖向荷载计算 (6)2.3.1屋面恒荷载 (6)2.3.2楼面恒荷载 (6)2.3.3屋面活荷载 (7)2.3.4楼面活荷载 (7)2.4风荷载计算 (8)2.5内力分析 (9)2.5.1截面初选 (9)2.6内力计算 (12)2.6.1竖向荷载标准值作用下 (12)2.6.2风荷载作用下的内力计算 (18)2.7水平地震作用下结构各层的总重力荷载代表值计算 (20)2.7.1墙自重 (20)2.7.2梁,柱重力荷载标准值汇总 (21)2.7.3集中于各楼层标高处的重力荷载代表值Gi (22)2.7.4水平地震作用下框架内力合侧移的计算 (22)2.7.5水平地震作用下框架内力计算 (25)2.8内力组合 (28)2.9结构构件验算 (33)2.9.1框架柱的验算 (33)2.9.2框架梁的验算 (37)2.10框架连接设计 (39)2.10.1主梁与中柱Z-1的连接: (39)2.10.2次梁与主梁的铰接连接 (40)2.11柱脚设计 (42)2.11.1中柱柱脚的设计 (42)2.11.2边柱柱脚的设计 (44)2.12楼板计算 (47)总结 (49)参考文献 (50)致谢词 (51)前言本次毕业设计是大学教育培养目标实现的重要步骤,是毕业前的综合学习阶段,是深化、拓宽、综合教学成果的重要过程,是对大学期间所学专业知识的全面总结。
钢结构中GJ\GL\GZ\XG\SC\YC\ZC\LT\GZL\GXL\CG代表含义及识图常识GJ钢架GL钢架梁或GJL钢架梁GZ钢架柱或GJZ钢架柱XG系杆SC水平支撑YC隅撑ZC柱间支撑LT檩条TL托梁QL墙梁GLT刚性檩条WLT屋脊檩条GXG刚性系杆YXB压型金属板SQZ山墙柱XT斜拉条MZ门边柱ML门上梁T拉条CG撑杆HJ桁架FHB复合板YG:压杆或是圆管(从材料表中分别)XG:系杆LG:拉管QLG:墙拉管QCG:墙撑管GZL直拉条GXL斜拉条GJ30-1跨度为30m的门式刚架,编号为1号1。
算量最基本的就是看图纸,土建的人都烦钢构图纸的太乱,其实我也有这种看法,因为平法并没有用在其上面,图样还保留了一前土建制图的原则,所以做为老人看比较习惯(101图集出之前的人),后来像我这样人看钢结构图纸真的看不习惯,不过没有办法,还是要习惯的,我们知道麻烦,但任何事情都有规律的,钢结构的详图结点相当的多,但这些变化真的在算的时候影响相当的小,重要是大的方向把握好,钢结构的结点图也是相当科学的,都和科学受力相对应。
有许多是重复或对称等。
认真的看都会看出来。
对于图纸的特点,我会在下面讲2。
算重量,因为钢结构的算量基本上全是按吨计(板按M2)。
钢材+钢材就是钢结构。
而钢材多指型钢,对于型钢的分类算量的方法,我也会一一列出。
并做出讲解。
3。
统计汇总,哈哈,此类应该是不难的,以清单为基本,分类汇总而以了。
识图问路1。
我对钢结构的认识,应该比大家深一些,因为我毕业的时候就进了一家钢结构公司,工作不到两个月,经常的工作就是画一个图纸的钢构件,把这个钢构件看明白了,画出来,他们叫钢结构深化设计(细化方案)做加工所用,说白了,一钢板怎么加工这样的东东的。
我讲的图识别,其它就是03G102上面的东东,大家有机会可以去下载看一下。
闲言碎语不多讲,说说吧,钢结构图应该怎么看不头痛。
把握好看图不难的原则,其实很简单,比建筑的施工简单多了,因为他每个部分都有详图,哪里不明白了,就看此图有没有什么详图符号,有就找,其实我看明白的地方不是详图的地方,拿出来与原图一对就明白了,是什么柱,是什么梁就明白了许多。
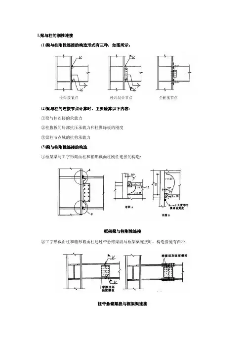
1.梁与柱的刚性连接(1)梁与柱刚性连接的构造形式有三种,如图所示:(2)梁与柱的连接节点计算时,主要验算以下内容:①梁与柱连接的承载力②柱腹板的局部抗压承载力和柱翼缘板的刚度③梁柱节点域的抗剪承载力(3)梁与柱刚性连接的构造①框架梁与工字形截面柱和箱形截面柱刚性连接的构造:框架梁与柱刚性连接②工字形截面柱和箱形截面柱通过带悬臂梁段与框架梁连接时,构造措施有两种:柱带悬臂梁段与框架梁连接梁与柱刚性连接时,按抗震设防的结构,柱在梁翼缘上下各500mm 的节点范围内,柱翼缘与柱腹板间或箱形柱壁板间的组合焊缝,应采用全熔透坡口焊缝。
(4)改进梁与柱刚性连接抗震性能的构造措施 ①骨形连接骨形连接是通过削弱梁来保护梁柱节点。
骨形连接梁端翼缘加焊楔形盖板梁端翼缘加焊楔形盖板在不降低梁的强度和刚度的前提下,通过梁端翼缘加焊楔形盖板。
(5)工字形截面柱在弱轴与主梁刚性连接当工字形截面柱在弱轴方向与主梁刚性连接时,应在主梁翼缘对应位置设置柱水平加劲肋,在梁高范围内设置柱的竖向连接板,其厚度应分别与梁翼缘和腹板厚度相同。
柱水平加劲肋与柱翼缘和腹板均为全熔透坡口焊缝,竖向连接板与柱腹板连接为角焊缝。
主梁与柱的现场连接如图所示。
2梁与柱的铰接连接(1)梁与柱的铰接连接分为:仅梁腹板连接、仅梁翼缘连接:仅梁腹板连接 仅梁翼缘连接柱上伸出加劲板与梁腹板相连 梁与柱用双盖板相连(2)柱在弱轴与梁铰接连接分为:柱上伸出加劲板与梁腹板相连、梁与柱用双盖板相连柱的拼接节点一般都是刚接节点,柱拼接接头应位于框架节点塑性区以外,一般宜在框架梁上方1.3m 左右。
考虑运输方便及吊装条件等因素,柱的安装单元一般采用三层一根,长度10~12m 左右。
根据设计和施工的具体条件,柱的拼接可采取焊接或高强度螺栓连接。
按非抗震设计的轴心受压柱或压弯柱,当柱的弯矩较小且不产生拉力的情况下,柱的上下端应铣平顶紧,并与柱轴线垂直。
柱的25%的轴力和弯矩可通过铣平端传递,此时柱的拼接节点可按75%的轴力和弯矩及全部剪力设计。
第二十三届全国高层建筑结构学术会议论文 2014年PKPM钢结构节点设计与施工图朱恒(中国建筑科学研究院建研科技股份有限公司设计软件事业部北京100013)提要:本文介绍了PKPM钢结构模块的节点库,列举了有代表性的节点类型,对类型特点做了简单介绍。
同时就节点设计中常见的一些问题和程序的处理方法做了详细介绍,探讨了合理的解决方案。
本文最后还就钢结构框架施工图的三种表达方式,以及其他相关的施工图方式做了介绍。
关键词:钢结构节点施工图1前言钢结构和其他结构的最显著的区别就在于节点,由于连接的构件截面、构件数量、角度、位置、变形要求等等情况的不同,使得钢结构的节点形式也是五花八门,形态各异。
虽然节点连接形式的任意性很大,但是一般常用的节点都通过图集或者设计手册的形式将其构型规范化。
PKPM钢结构软件在编制过程中参考了目前市面上常见的图集和设计手册,尽可能多的完善软件的节点系统,应该说,只要是常用的节点形式,都能在PKPM钢结构软件中找到。
2 PKPM目前所能设计的节点形式由于PKPM钢结构软件的节点库是一个比较庞大的体系,跨越了钢结构软件的多个模块,所以这里也是分模块来介绍各个节点库。
节点库的关系可以用下面一张图来说明:作者简介:朱恒(1981—), 男, 本科, 工程师图1 节点库与模块的关系2.1框架节点这个节点库是钢结构软件最基本的节点库,为各个模块所共享,也是内容最丰富最庞大的节点库。
目前程序可以进行设计的框架节点可分为梁柱节点、柱脚节点、支撑节点等,每个种类中又根据其连接的关系、连接柱的截面又可细分为多个小类。
下面表格列举了比较有代表性的节点:2.2门式刚架节点门式刚架节点在节点库中分为两类,一类是主刚架节点,有梁柱、柱脚、牛腿等节点。
图2 自动生成的主刚架节点另一类是围护构件节点,主要有檩托、隅撑等节点。
图3 程序内置的围护连接节点2.3网架节点网架节点主要是球节点和支座节点,其中球节点分为螺栓球和焊接球两种。
1、拱架计算书1.1 设计依据1、《务川县本桥施工图设计》;2、《公路桥涵施工技术规范》(JTG/T F50-2011);3、《钢结构设计规范》(GB50017-2003);4、《公路桥涵地基与基础设计规范》(JTG D63-2007);5、《公路桥涵施工技术规范》(JTJ 041-2000);6、《公路桥涵钢结构和木结构设计规范》(JTJ 025-86);7、《装备式公路钢桥使用手册》;8、《路桥施工计算手册》。
9、《建筑施工模板安全技术规范》(JGJ 162-2008)10、《钢结构工程施工质量验收规范》(GB50205—2001)11、《建筑结构荷载规范》(GB50009—2001)12、《桥梁工程》、《结构力学》、《材料力学》,《拱桥》,《桥梁设计与计算》;13、其他相关规范手册;1.2 工程概况本桥位于务川县县郊,跨越龙塘河。
桥跨布置为1×16m(预应力混凝土空心板)+125m(钢筋混凝土箱拱)+ 1×16m(预应力混凝土空心板),大桥全长170.6米。
桥梁平面位于直线上,桥面纵坡为双向1.0%,桥面横坡为双向2%。
1.3支架计算荷载的取用原则根据《公路桥涵施工技术规范》JTG/T TF50-2011第5.2.6条:模板、支架的设计应考虑下列各项荷载,并应按表1-3-1进行荷载组合。
⑴模板、支架自重;⑵新浇筑混凝土、钢筋、预应力筋或其他圬工结构物的重力;⑶施工人员及施工设备、施工材料等荷载;⑷振捣混凝土时产生的振动荷载;⑸新浇筑混凝土对侧模板的压力;⑹混凝土入模时产生的水平方向的冲击荷载;⑺其他可能产生的荷载。
如雪荷载、冬天保温设施荷载等。
表1-1 模板、支架和拱架设计计算的荷载组合普通模板荷载计算:⑴模板、支架和拱架的容重按设计图纸计算确定。
⑵新浇筑混凝土和钢筋混凝土的容重:混凝土24KN/m3;钢筋混凝土的容重可采用25KN/m3~26KN/m3(以体积计算的含筋量≤2%时采用25KN/m3,>2%时采用26KN/m3),本检算资料按26×1.2=31.2KN/m3计。
结构设计计算书系统(根据新规范编写)土建类钢结构
矩形截面单双筋--抗弯抗剪验算支撑系统---ST梁,墙面斜撑,风拉杆计算
单筋T形截面--抗弯验算工型拉(压)弯构件强度及稳定性校核计算
深梁与短梁--抗弯验算箱形拉(压)弯构件强度及稳定性校核计算
矩形截面受弯剪扭--抗扭验算工字型、T型、箱型截面斜撑计算
框架柱计算长度(有侧移及无侧移)
砼-钢组合梁计算
钢梁(工字型、箱型)受扭计算
工型梁加劲肋计算
荷载统计表简支钢梁计算
墙体荷载计算高强度螺栓连接计算
楼面荷载计算端板厚度计算系统
端板连接节点计算
吊车反力/牛腿受力 计算
吊车梁整体稳定性计算
柱脚计算
报价系统。