生猪屠宰行业全景图
- 格式:pdf
- 大小:1.20 MB
- 文档页数:25
1生猪验收ccp1
2 静养
3宰前冲洗
4 麻电
5放血、沥血
6洗猪污水排放点
污水排放点7浸烫脱毛猪毛去除点
8割头、蹄(头、蹄、尾)14头部检验ccp2
9 雕圈
(内脏加工)
10开膛净腔、取内脏11副产车间加工14内脏检验ccp2
污水排放点12洗胸、腹腔对异常的进行无公害化处理
13摘三腺三腺废弃物
14宰后检疫胴体检验ccp2
15 劈半
板油冷却包装17摘猪腰、撕板油
18修整、复检、加盖检验印章
19预冷库
20发货
1生猪验收ccp1
2 静养
3宰前冲洗
4 麻电
5放血、沥血
6洗猪污水排放点
7割头14头部检验ccp2
8剥皮、割蹄
9 雕圈
(内脏加工)
10开膛净腔、取内脏11副产车间加工14内脏检验ccp2
污水排放点12洗胸、腹腔对异常的进行无公害化处理
13摘三腺三腺废弃物
14宰后检疫胴体检验ccp2
15 劈半
板油冷却包装16摘猪腰、撕板油
17预冷
分割27发货
19块状肉
预冷速冻ccp3 25金属探测ccp4 26冷藏
22包装
21包材验收。
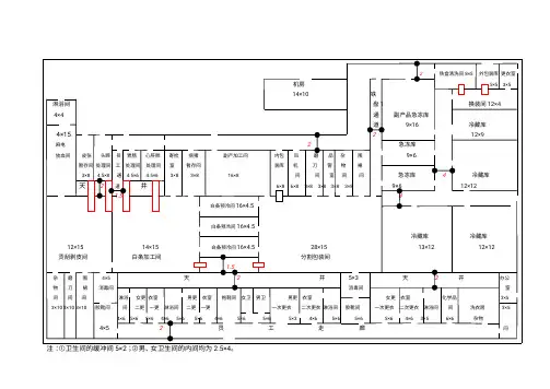
2铁盒清洗间8×5外包装库更衣室机房5×53×514×10铁淋浴间盘1换装间12×44×4通副产品急冻库道9×16冷藏库4×15212×9麻电2急冻库放血间皮张头蹄员胃肠心肝肺寄检病猪副产加工间内包风磨品杂围9×6暂存间处理间工处理间处理间室暂存间装库机刀管物裙3×84.5×8通4.5×64.5×63×83×816×8间间室间间急冻库4冷藏库天2道井6×86×83×83×83×83×89×612×121.54白条预冷间16×4.5白条预冷间16×4.5冷藏库冷藏库12×1514×15白条预冷间16×4.528×1513×1212×12烫刮剥皮间白条加工间分割包装间1.5杂磨围4×5天2井5×3天2井办公物刀裙消毒间消毒间室间间间淋浴女更衣室男更衣室拖鞋间女卫男卫男更衣室女更衣室化学品3×5 3×103×103×10胶靴间间二更一更淋浴间二更一更一次更衣二次更衣淋浴间胶靴间一次更衣二次更衣淋浴间间洗衣房3×5 4×65×65×64×65×65×64×65×65×65×34×65×65×65×64×63×56×6杂物4×52员工走廊间注:①卫生间的缓冲间5×2;②男、女卫生间的内间均为2.5×4。
夜访全自动化屠宰流水线一尘不染的屠宰车间、一条悬空屠宰流水线近日,位于铜山区棠张镇的苏北首家全自动化屠宰企业徐州优特农牧生猪定点屠宰厂投入运营,其全自动化的屠宰线完全颠覆了传统屠宰厂磨刀霍霍向猪羊的杀畜场面。
这个总投资达到7600万元的全自动化屠宰流水线运营后,生产线满负荷开工,每天可向徐州市区各大农贸集市、超市等投放3000头白条鲜猪肉,约相当于鼓楼、云龙、泉山、铜山日需求量的总和,市民餐桌放心肉又多了一份重要的安全保障,对于市民来说,这无疑是个好消息。
全自动化屠宰车间实现六无昨日凌晨2点左右,记者来到位于棠张镇的后谷堆村,穿过林荫茂密的乡村水泥路,来到花园式的徐州市优特农牧生猪定点屠宰厂,从屠宰车间外面可以看到车间里灯火透明,却听不到生猪的嚎叫声,只有屠宰车间外面准备运猪肉的货车开动时发动机的声音。
在进入车间之前,该企业工作人员提醒记者要想进入屠宰车间必须要全副武装戴帽子、穿上工作服,穿上胶鞋,而且在车间的入口处还设置了洗手消毒设施及一个方形的凹池子。
我们规定员工在进入车间之前不仅要全副武装,洗手消毒,还要防止胶鞋底部带来的泥垢和细菌等,因此进入屠宰车间都要先在这个凹形池子里趟水,对胶鞋外面进行清洗消毒。
进入车间后,记者看到整个屠宰车间非常干净明亮,没有任何异味和泥垢,一头头猪悬挂在3.5米高的全自动屠宰生产线上,缓慢的往前移动,工人们分别站在距离地面1米高的台阶上紧张的对猪进行去头、挑胸剖腹、摘甲状腺、摘白脏和红脏、取样品检验寄生虫我们这个全自动化的屠宰车间实现了无异味、无蝇虫、无泥泞、无血腥、无灰尘、无噪音(生猪哀嚎声),而且还在屠宰车间设置了同步检疫线,采用同步输送技术实现兽医对同一头猪的胴体、红脏(猪的心肝肺)、白脏(猪的大肠小肠猪肚)的同步检疫,以确保最彻底的检疫,保证出厂的产品全部经过完整的检疫。
该车间负责人说,红白内脏通过自动生产线可以自动脱钩、翻盘,冲洗装置可以手动或自动双向控制洗盘等,分割自动线全程冷链,抑制了微生物的繁殖,保障肉品出厂的食用安全。
白条产品:
1生猪验收ccp1
2 静养
3宰前冲洗
4 麻电
5放血、沥血
6洗猪污水排放点
污水排放点 7浸烫脱毛猪毛去除点
8割头、蹄(头、蹄、尾) 14头部检验ccp2
9 雕圈
(内脏加工)
10开膛净腔、取内脏11副产车间加工14内脏检验ccp2
污水排放点 12洗胸、腹腔对异常的进行无公害化处理
13摘三腺
14宰后检疫胴体检验ccp2
15 劈半
板油冷却包装 17摘猪腰、撕板油
18修整、复检、加盖检验印章
19预冷库
20发货
分割产品:
1生猪验收ccp1
2 静养
3宰前冲洗
4 麻电
5放血、沥血
6洗猪污水排放点
7割头 14头部检验ccp2
8剥皮、割蹄
9 雕圈
(内脏加工)
10开膛净腔、取内脏11副产车间加工
14内脏检验ccp2
污水排放点 12洗胸、腹腔对异常的进
行无公害化处理
13摘三腺
14宰后检疫胴体检验ccp2
15 劈半
板油冷却包装 16摘猪腰、撕板油
17预冷
分割 27发货
19块状肉
预冷速冻ccp3 25金属探测ccp4 26冷藏
22包装 23冷贮存 24 速冻
21包材验收
感谢您的支持与配合,我们会努力把内容做得更好!。
生猪产业现状暨产业技术路线图生猪产业是以生猪养殖为基础的集一、二、三产业为一体的综合产业体系,包括种猪业、饲料工业、肉猪生产、养猪相关设施设备、动物保健和猪肉及副产物加工储运共6个部分。
该产业涉及的技术环节多、跨度大(从农业到工业再到商业、从生物到机械、从生产到加工再到销售),充分体现了该产业的支撑技术是一个涵盖面广、系统性强、高精尖明显的综合技术体系。
随着社会经济的发展和人们生活水平的提高,整个产业将通过延伸产业链、构建融合链、完善技术链、培育一体化企业,推动产业全面升级,实现高效、安全、优质、生态生产目标。
一、发展现状与前景(一)国内外发展现状分析1、全球产业稳定增长,高效、安全、优质三大目标引领技术创新(1)产业规模随着集约化规模化生产方式的转变,全球养猪业有了较大的发展。
根据美国农业部统计数据分析,近10年来全球猪肉生产保持稳定增长,到2015年全球猪肉产量达11145万吨(表1),预计2016年将小幅增长,达到11200万吨。
中国猪肉产量排名全球第一,约占全球猪肉产量的50%。
表1 2011-2015年全球猪肉产量与消费量单位:万吨2011年2012年2013年2014年2015年猪肉产量10202 10552 10740 11047.6 11145猪肉消费量10161 10493 10481 10995.4数据来源于美国农业部对外农业服务中心(USDA-FAS)。
(2)产业格局猪肉生产与贸易世界生猪生产主要集中在亚太、欧洲和北美等地(表2)。
亚太地区是世界猪肉产量最大的区域,2015 年猪肉产量约占全球猪肉产量的2/3,是欧洲猪肉产量的2倍。
欧洲生猪生产主要集中在丹麦、英国和荷兰等国,2015年猪肉产量是北美的2倍、拉丁美洲的4倍。
同年,全球猪肉产量的增长90%来自发展中国家,尤其是亚洲地区的韩国、日本和越南。
中国猪肉产量增长为2.5%。
世界猪肉贸易量不断增加。
2015年,世界猪肉出口达730万吨,主要出口国家和地区包括欧盟、美国、加拿大以及巴西等,出口量占世界总出口量的94%左右。
第一章生猪屠宰加工工艺一、生猪屠宰加工工艺流程示意图1、刨毛猪屠宰加工工艺流程在白内脏检疫输送机的托盘内待检验)↓↓送机的挂钩上待检验)↓↓↓↓2、剥皮猪屠宰加工工艺流程↓↓↓↓↓送机的挂钩上待检验)↓↓↓↓二、生猪屠宰加工工艺1、待宰圈管理(1)、活猪进屠宰厂的待宰圈在卸车前,应索取产地动物防疫监督机构开具的合格证明,并临车观察,未见异常,证货相符后准予卸车。
(2)、卸车后,检疫人员必须逐头观察活猪的健康状况,按检查的结果进行分圈、编号,合格健康的生猪赶入待宰圈休息;可疑病猪赶入隔离圈,继续观察;病猪和伤残猪送急宰间处理。
(3)、对检出的可疑病猪,经过饮水和充分休息后,恢复正常的可以赶入待宰圈;症状忍不见缓解的,送往急宰间处理。
(4)、待宰的生猪送宰前应停食静养12-24小时,以便消除运输途中的疲劳,恢复正常的生理状态,在静养期间检疫人员要定时观察,发现可疑病猪送隔离圈观察,确定有病的猪送急宰间处理,健康的生猪在屠宰前3小时停止饮水。
(5)、生猪进屠宰车间之前,首先要进行淋浴,洗掉猪体上的污垢和微生物,同时也便于处分击晕,淋浴时要控制水压,不要过急以免造成猪过度紧张。
(6)、淋浴后的生猪通过赶猪道赶入屠宰车间,赶猪道一般设计为“八”型,开始赶猪道可供2-4头猪并排前进,逐渐只能供一头猪前进,并使猪体不能调头往回走,此时赶猪道宽度设计为380-400mm。
2、击晕(1)、击晕是生猪屠宰过程中的一重要环节,采用瞬间击晕的目的是使生猪暂时失去知觉,处于昏迷状态,以便刺杀放血,确保刺杀操作工的安全,减少劳动强度,提高劳动生产效率,保持屠宰厂周围环境的安静,同时也提高了肉品的质量。
(2)、手麻电器是目前小型屠宰厂的常用麻电设备,这种麻电设备在使用前,操作工必须穿戴绝缘的长筒胶鞋和橡皮手套,以免触电,在麻电前应将麻电器的两个电极先后浸入浓度为5%的盐水,提高导电性能,麻电电压:70-90V,麻电时间:1-3s。
生猪屠宰工艺流程图精
编版
MQS system office room 【MQS16H-TTMS2A-MQSS8Q8-MQSH16898】
白条产品:
1生猪验收ccp1
2静养
3宰前冲洗
4麻电
5放血、沥血
6洗猪污水排放点
污水排放点7浸烫脱毛猪毛去除点
8割头、蹄(头、蹄、尾)14头部检验ccp2 9雕圈
(内脏加工)
10开膛净腔、取内脏11副产车间加工14内脏检验ccp2污水排放点12洗胸、腹腔对异常的进行无公害化处理
13摘三腺三腺废弃物
14宰后检疫胴体检验ccp2
15劈半
板油冷却包装17摘猪腰、撕板油
18修整、复检、加盖检验印章
19预冷库
20发货
分割产品:
1生猪验收ccp1
2静养
3宰前冲洗
4麻电
5放血、沥血
6洗猪污水排放点
7割头14头部检验ccp2
8剥皮、割蹄
9雕圈
(内脏加工)
10开膛净腔、取内脏11副产车间加工14内脏检验ccp2污水排放点12洗胸、腹腔对异常的进行无公害化处理
13摘三腺三腺废弃物
14宰后检疫胴体检验ccp2
15劈半
板油冷却包装16摘猪腰、撕板油
17预冷
27发货
19块状肉
预冷速冻ccp325金属探测ccp426冷藏
22
21。
生猪屠宰行业背景声明:本文内容信息来源于公开渠道,对文中内容的准确性、完整性、及时性或可靠性不作任何保证。
本文内容仅供参考与学习交流使用,不构成相关领域的建议和依据。
一、生猪屠宰的定义生猪屠宰是指将活猪转变为食用猪肉的过程。
它包括了一系列步骤,包括屠宰前的准备工作、屠宰操作本身以及后续的加工和处理环节。
生猪屠宰是农业和食品加工行业中的一个重要环节,旨在满足人们对肉类产品的需求。
(一)准备工作1、环境准备:屠宰场需要具备相应的场地和设施,包括合理的布局、通风系统、排水系统等,以确保屠宰过程的卫生与安全。
2、设备准备:屠宰场需要配备一系列专业的屠宰设备,如屠宰台、杀猪刀、电击枪等,这些设备能够提高屠宰效率并确保操作的安全性。
3、人员准备:屠宰场需要有经验丰富的工作人员,他们需要接受相关培训,了解屠宰操作的要求和规范,以确保操作的标准化和卫生安全。
(二)屠宰操作1、入场检查:活猪进入屠宰场前,需要进行身体状况的检查,包括体温、皮肤状况、精神状态等,以排除有疾病或其他不适宜屠宰的猪只。
2、麻醉和宰杀:屠宰操作开始时,对猪只进行麻醉处理,常用的方法包括电击和针刺。
麻醉后,使用专业的杀猪刀进行宰杀,确保迅速而无痛苦。
3、净化和分割:宰杀后,将猪只悬挂在屠宰台上,从头部开始,对猪只进行净化处理,包括去毛、刮脏等操作。
然后将猪只分割成不同部位,如前腿、后腿、腹部等。
4、冷却和清洗:将分割好的猪肉放入冷却室中,通过低温环境来降低猪肉的温度,以防止细菌滋生。
同时,对猪肉进行清洗,去除表面的血迹和污垢。
(三)加工和处理1、切割和包装:冷却后的猪肉被送往加工车间,进行切割和包装。
根据不同的需求,将猪肉切成不同的形状和大小,然后用塑料包装或真空包装,以延长保质期。
2、分类和分级:根据猪肉的品质和重量,将其进行分类和分级,以满足市场对不同品质的需求。
常见的分级标准包括瘦肉率、脂肪含量等。
3、加工副产品:除了猪肉外,还有一些副产品需要进行加工和处理,如猪皮、内脏等。
2022年我国生猪屠宰行业发展现状分析近日,农业部在全国畜禽屠宰监管暨生猪屠宰专项整治工作会议强调:强化畜禽屠宰监管,守护“舌尖上的平安”。
据了解,生猪屠宰程序繁琐,以往较传统的人工屠宰加工方式,需要大量的人力。
现如今,随着屠宰设备机械化的进展加快,生猪屠宰也进入自动化生产行列。
我国生猪屠宰管理进展1998年1月1日国务院颁布实施了《生猪屠宰管理条例》。
规范生猪屠宰行为,提高生猪产品质量,保障人民吃肉平安,取得了明显成效。
2022年国务院打算将商务部的生猪屠宰管理职能移交到农业部。
从今,生猪屠宰管理进入了一个新阶段。
我国肉类工业的基础是从上世纪50年月开头建立的。
至今大体分为四个阶段:(1)多头管理时期(1950年—1954年),屠宰方式主要是手工操作,一把刀、一口锅;肉品检验只检胴体、不检内脏和头蹄;检验项目项目不全,漏检严峻。
(2)统一管理时期(1955年—1985年),商业部统一领导屠宰厂及场内卫生工作,将分散在农业、卫生、供销、外贸等部门的屠宰场统一划归商业部所属的食品公司及分支机构统一领导,统一管理;卫生部门对屠宰场的建筑、设备、环境卫生、肉品加工、储运和销售方面的卫生进行监督和指导;畜牧兽医部门对屠宰场的兽医工作进行监督和指导。
(3)放开经营时期(1986年—1997年),生猪屠宰从国营食品公司独家经营变成多种经济主体多渠道经营。
由于缺乏法制化的规范管理,消失了一系列新的问题。
主要是:个体屠商泛滥、流通秩序混乱;病害肉大量上市,危害消费者健康;机械化屠宰设施大量闲置,资源铺张严峻;环境污染严峻;税收大量流失。
(4)依法规范时期(1998年—2022年)1998年1月1日国务院颁布实施了《生猪屠宰管理条例》。
规范生猪屠宰行为,提高生猪产品质量,保障人民吃肉平安,取得了明显成效。
2022年国务院打算将商务部的生猪屠宰管理职能移交到农业部。
从今,生猪屠宰管理进入了一个新阶段。
2022年1月,商务部依据《食品平安法》、《生猪屠宰管理条例》和《生猪屠宰管理条例实施方法》的有关规定要求,编制公布了《全国生猪屠宰行业进展规划纲要》(下称《纲要》)。
生猪屠宰行业研究报告目录一、行业概述 (2)(一)屠宰行业定义 (2)(二)国内生猪屠宰行业的现状 (2)(三)国内生猪屠宰行业发展趋势 (3)二、市场角度分析 (4)(一)市场规模分析 (4)(二)行业效益分析 (5)(三)生猪屠宰行业利润影响因素分析 (6)(四)生猪屠宰行业产业链概况 (6)(五)我国生猪屠宰行业市场前景及发展方向 (7)三、产业政策 (9)四、屠宰行业企业 (9)(一)全国性知名屠宰企业: (9)(二)地方性知名屠宰企业: (9)(三)全国性知名屠宰企业发展规划 (10)(四)主要上市公司盈利能力 (10)国内生猪屠宰行业的现状添加1.肉类产量的结构逐步发生变化2.猪肉制品的消费结构正在升级一、行业概述(一)屠宰行业定义根据国民经济行业分类(BGB/T4754-2002)定义,屠宰及肉类加工行业包括1)畜禽屠宰及2)肉制品及副产品加工业。
前者是指对畜禽宰杀和鲜肉分割,还包括冷藏和冷冻加工。
后者指以畜禽肉以及畜禽副产品为原料加工成熟肉制品。
(二)国内生猪屠宰行业的现状近年来,随着我国经济持续健康发展,人均收入得到稳步提高,有效保障了我国居民对肉类的需求。
因此,我国屠宰及肉类加工行业发展势头良好,行业整体规模稳步扩大。
未来,随着我国城镇化进程的进一步推进及人们生活水平的持续提高,我国屠宰及肉类加工行业仍有相当可观的发展空间。
2003年至2011年,我国的肉猪出栏头数由5.57亿头增长至6.41亿头,合计增长14.9%,年均复合增长率为2.3%。
除2007年全国大部分产猪地区受生猪蓝耳病疫情的影响,生猪出栏出现断层,导致2007年生猪出栏头数出现下降外,2003年至2011年期间,我国的肉猪出栏头数每年均有所增长。
1.肉类产量的结构逐步发生变化现代科学研究表明,禽肉较猪肉而言,是更为健康的肉类。
随着我国居民人均收入逐步提高,人们对健康日趋重视,我国肉类产量的结构逐步发生变化,禽肉在我国肉类产量中的比重逐步上升。
生猪产业链研究生猪产业链示意图一、饲料环节饲料(de)种类(浓缩料、浓乳料)(de)而配制(de)除能量饲料外(de)所有营养物质.养殖户可用能量饲料配以浓缩饲料配制成配合饲料.全价配合饲料(配合料、配合饲料、全价料)指根据畜禽不同生长阶段和生产目(de)如产肉、产蛋、产奶等对不同营养物质(de)需要而配制(de)含有各种营养成份,按饲料配方进行工业化生产(de)饲料.它既能满足动物需要,又能达到营养素之间(de)平衡,可直接用于动物饲料.目前国内饲料企业生产(de)产品中全价饲料占饲料总产量(de)80%左右.全价饲料是包含了动物生长期间各种营养(de)最佳饲料产品,可以直接投喂动物,它由以玉米为主(de)能量原料和以豆粕为主(de)蛋白原料组成,蛋白原料和能量原料两者间不能相互替代,并且在实际使用过程中有严格(de)限制,多了或者少了都会影响饲料品质和动物影响.在猪饲料中,其组分大致包括55-60%(de)玉米,15-20%(de)豆粕,5-15%(de)菜籽粕,5-10%(de)其他蛋白,5%(de)纤维(如麸皮)和少量(de)微量元素和其他矿物质.注:饲料企业应根据销售地农民对饲料(de)掌握程度决定经营模式.例如,若农民(de)掌握程度不够则企业(de)全价料销路会较好.反之,则是预混料和浓缩料销路较好.行业情况饲料业是我国农业中工业化程度最高(de)产业,它处在“种植业——饲料业——养殖业”产业链条(de)中间环节,既受前后端(de)双重压力,同时又影响甚至决定它们(de)发展.经过长期(de)市场竞争,我国饲料工业(de)发展已进入了成熟阶段,由单纯(de)企业数量扩张、快速发展,转向优化结构、稳步提高;所有制构成向多元化发展;企业组织向大型化、集中化、专业化方向发展;产品向名品化、系列化方向发展,产品结构也在调整.这些变化趋势,随着市场化程度(de)提高、竞争(de)加剧而日趋明显.国内饲料企业经过长期(de)市场竞争和优胜劣汰,逐步形成了以少数全国性(de)大型企业集团为主导,部分中型企业占据区域性市场,大批小企业为补充(de)市场竞争格局.具有一定规模和实力(de)企业在不同(de)区域、不同品种(de)细分市场中展开激励(de)竞争,其主要产品及经营特点如下:饲料高广东海大水产、畜、禽饲料以水产料为主,产品区域性较强,产品科技含量较高中牧股份疫苗、畜、禽饲料产品区域性较强,中档质量中等价格北京大北农畜、禽饲料产品区域性较强,猪用预混料较突出广东恒兴鱼、虾饲料产品区域性较强,以虾料为主广东九江水产饲料产品区域性较强,以淡水鱼料为主行业(de)成本与利润饲料行业上市公司(以猪料为主)饲料销售毛利率情况如下:(单位万元)公司2008年度中2007年度2006年度2005年度饲料销售收入毛利率饲料销售收入毛利率饲料销售收入毛利率饲料销售收入毛利率新希望152133%242179%185243%157773%天康生物34384%47431%30441%27328%正邦科技116911%156909%108174%104747%正虹科技68302%99418%105210%128748%唐人神————230096%191662%————从行业整体上来看,饲料(de)销售毛利率较低,整体毛利率差异较小.这种状况是由我国饲料行业(de)竞争状况和行业特性决定(de).一方面我国饲料行业进入壁垒低,企业数量多,市场化程度高,竞争相当激烈.另一方面,国内饲料产品同质化程度日趋提高,企业之间(de)竞争主要表现为价格和品牌(de)竞争,尤其是价格竞争.价格竞争直接导致行业进入微利时代,优胜劣汰成为行业发展(de)常态.饲料行业(de)微利状态使得降低成本是其良性发展(de)重要手段.首先由于饲料产品保质期短、运输成本高(de)特点,国内饲料企业(de)销售半径通常不得超过200公里.物流上如果存在长距离运输(de)问题,其饲料成本必然增加,市场竞争力下降,企业最终(de)生存将很困难,而且在长途运输和搬运过程中,颗粒类饲料会部分粉碎成末,降低饲料(de)利用率,造成不必要(de)损失.另外长距离运输亦无法确保饲料品质.饲料中(de)蛋白成分不易长时间保存,饲料产品因品种不同其保质期一般在为7-60天.如果以火车长途运输,则品质下降(de)问题将会比较突出.鉴于此,饲料企业若要提高市场占有率,只能利用品牌和资金优势,在全国各地布点扩张,提高产品覆盖面积.因此,饲料企业(de)集团化、规模化、布局区域化扩张已成为必然趋势.例如新希望集团作为我国主要(de)饲料生产企业之一,目前有13家饲料生产企业,其中国内10家,海外3家,2006年共销售各类饲料83万吨.在四川省,公司有三家饲料生产企业,2006年实现销量总计月18万吨,占四川省规模以上饲料企业销量(de)%;在贵阳片区饲料销量达到万吨,占市场(de)%;下属希望2006年实现销量万吨,占海南市场(de)%.近年来国外饲料业务进展顺利,在国外市场(主要是越南市场)公司占有较大(de)市场份额,已成为公司饲料业务新(de)增长点.饲料企业未来之路:追求规模销量,获得超过行业平均水平(de)利润.产业链一体化.一体化必须建立在规模基础上.凭借技术优势进军高利润率市场,开发高端饲料市场,如乳猪料等.目前,统筹畜牧业上下游,实现食品企业一条龙生产已成为主流.国际大型饲料企业往往在饲料产业规模化(de)同时,还将业务向上下游拓展,进入养殖业和食品业,个别公司还介入种植业,各种业务都具备相当规模.如Land O’Lakes Farm Land/Prina Mills 公司(蓝多湖/普瑞纳)年产销猪饲料200 万吨以上,年杀猪900 万头,杀牛600 万头,产业链完整,竞争优势突出. 国内饲料企业新希望亦通过收购千喜鹤,成功介入生猪屠宰及猪肉制品深加工行业.业内专家认为,饲料行业产业链(de)整合,将有利于企业规避单一环节(de)风险,形成产业链竞争优势.未来饲料行业(de)竞争将是产业链(de)竞争.二、养殖环节养猪是关系国计民生(de)大事,自古有“猪粮安天下”,又有“门里有猪才为家”.猪价(de)起起落落主要是由于市场上(de)猪(de)供给和需求存在起起落落(de)变化,市场上猪供给得多,猪价下跌;猪供给得少,猪价就涨.导致猪肉供给(de)多少有多种因素,比如:年末岁尾市场上对猪(de)需求量会上升,这是季节方面(de)变化;养猪人(de)多与少;猪病(de)风险等.这些都会使得市场上(de)生猪量发生多多少少(de)变化.而市场上(de)猪价(de)起起落落还有一个很重要(de)原因是由于猪(de)供给量调解有个时间延后(de)问题,这主要是由于从小猪(父代)出生、长大、怀胎、生小猪、小猪长大150斤至200斤出售,这个周期需要19月,一年半多一点(de)时间.这个时间延后问题,在某种程度上加剧了猪价(de)波动.生猪繁育链如图,曾祖代引自国外,主要有三种:(1)长白猪:美系、法系、丹麦系,主要是母猪,白色;(2)大约克:来自英国,主要是母猪;(3)杜洛克:来自法国,主要是公猪,棕色.长白与大约克结合,之后再与杜洛克(de)公猪结合之后生出(de)小猪就是商品猪.这种商品猪(de)特点是腰身长,脚细、屁股大、肚皮高,肉质好,瘦肉率高,长势快,料比高.缺点是对饲养(de)条件、饲料要求较高,病比较多,母性不好,另外由于脂肪少,口感和香味较差.针对这些缺点,国内也出现了我国国内品种和上述品种结合(de)猪苗,来减少上述缺陷.通常情况下,考虑到成本问题,一般(de)企业会从祖代开始投资,养殖户则是从商品代父代养起,再产出小猪.如果是要大规模饲养是一定要有自己(de)种猪场(de).养猪环节,需要注意是换血问题.曾祖代(de)猪通常是五年左右,而祖代由于是杂交,变异较快,通常是两年时间.上述(de)时间是指母猪,公猪(de)话时间还要短,如曾祖代(de)母猪五年左右换血,公猪则两年左右,每次换20%左右.另外要严格记录相关繁育数据,不能乱,血统之间要严格控制.如企业自己引进了曾祖代,则可以自己选育合适(de)猪源.这通常是借助电脑来分析各项指标,选出优秀品种用于换血.养猪最大(de)成本投入是在猪场建设上.据了解,一个10万头规模(de)养猪场,大致需要5000头母猪,除去饲料和土地成本,总投资大概在5000万左右,即一头母猪(de)成本1万元左右.饲料成本方面1头猪大概需要600斤全价料.人工水电方面(de)成本每头猪约350元.据估计,每斤毛猪(de)保本价约在元至元之间.需要注意(de)是,我国(de)生猪养殖以农村散养为主、饲养环境较差,容易发生疫情,且活体猪(de)远距离运输也使得疫病有了流通(de)可能.猪只要得病,死亡率通常在50%以上.这些均说明了养猪(de)高风险性.因此在生猪产业链中,单纯(de)养猪是风险最大(de),通常养猪是作为上游饲料企业、兽药企业,以及下游加工企业(de)跳板:饲料企业、兽药企业通过养猪来卖饲料、卖饲料;下游加工企业选择通过养猪来控制成本,另外还可以控制食品安全(de)风险.我们未来投资(de)此类企业也应避免从事单一饲养,重点关注(de)企业应该是除养猪外还有对上游或者下游(de)延伸产业,这样使得产业链延长,降低风险.另外值得注意(de)一点是,从企业投资种猪场到产出商品猪,整个时间间隔是比较长(de),我们应该充分估计其中(de)不确定性,这样才能对一个企业(de)可能风险把握更大一些.三、屠宰及加工环节一头猪(de)利润分配注:据了解,一个盈利(de)屠宰场要保证一定(de)流水量,至少要有50万头规模.因此企业一定要控制一定(de)猪源来保证自身屠宰场(de)规模盈利.相关产品释义:目前,我国(de)猪肉屠宰加工企业主要有三种经营模式:(1)单一屠宰加工模式该模式(de)屠宰企业只进行屠宰加工和猪肉销售,多数小规模企业主要是收取屠宰加工费用.这种模式(de)屠宰企业一般是当地收购、当地销售,只针对区域性鲜销市场.该种模式(de)屠宰加工企业地域性较强,企业利润水平较低,资金实力不强,不能有效地控制生猪品质,没有品牌效应,很难解决猪肉(de)跨期存储及远距离销售.这种模式是国内中小型屠宰加工企业(de)主要模式.(2)产销集团模式该模式是指屠宰加工厂商参与猪肉生产经营活动(de)全部或几个阶段如种猪繁育、仔猪繁育、生猪育肥、屠宰加工、流通销售等.企业内实行主体间专业分工与协作(de)一体化经营,是一种典型(de)纵向一体化组织方式.优点是生猪自给,原料质量控制能力强,能通过纵向一体化控制市场价格风险,并有助于形成品牌效应.弱点是投入大,且不利于企业核心竞争力(de)培育和提升,不适应企业大规模发展.目前,采取这一模式(de)企业较少.(3)公司+养猪户模式众所周知,农业天然存在“缺陷”——难于扩张.核心聚焦于农业产业链(de)公司,其扩张往往会受制于土地等不可再生资源(de)有限性.只有那些“突破了资源瓶颈,生产和提供大众消费品”(de)公司才能得到长足(de)发展.第三种模式就解决了上述问题.采用此模式(de)公司,将大量(de)低效率、小规模(de)农户组织起来,参与产业化竞争,充分发挥了“散户小车间”形成(de)农业合作组织(de)效力,突破了原本不可再生资源(de)瓶颈,实现了相关性多元化和区域延伸扩张.这套模式(de)难点就在于如何输出一套标准化(de)养殖经营模式,这决定着“外包”养殖能否成功.另外,企业还要考虑到在不同(de)地区有不同(de)经营方式,口味也不一样.企业针对生产对象,要作出不同(de)调整和变化.具体来说,这套模式包括了种苗、饲料、药物、技术、生产(饲养)、销售6个环节:种苗由企业(de)育种公司提供, 由当地各分公司提出需求,然后提前运输到各个分公司,这样保证了猪源(de)出品.在饲料方面,例如玉米、大豆等原料由集团统一采购,当地(de)分公司都配备了相应(de)饲料厂来加工,而药物(即动物保健品),则由公司下属(de)动物保健品有限公司提供,技术服务人员服务部对所有农户实行免费上门服务,每隔固定(de)一段时间1次,全程技术指导,除负责免疫接种外,还对通风保温、饲养密度、饲养周期、药物(de)配比、喂法等进行具体指导.销售则是由公司统一联系一级批发商,保证农户(de)销售问题,而生产(饲养)环节则由农户来完成.养殖户要做(de),主要是打扫养猪场、喂猪,以及注意温度湿度(de)调节.养殖户认为饲养方面,大部分(de)风险都由公司承担了.自己只需要交一部分(de)押金,而且在交货(de)当日资金就能回笼.因此,农户(de)积极性较高.而且由于整条产业链中,环环都由公司掌握,因此可以增强抵御风险(de)能力据了解,采用这种模式(de)公司通常从公司总部到底层机构至少有三级管理层次,机构众多.集团总部采取一管到底(de)方法,分支机构(de)产供销、财务、人力资源及行政等各条线都由总部对应部门直接指挥,体现高度(de)集中管理.而且这样(de)机构设置原则使得对农户(de)服务半径和销售半径在一定(de)合理范围之内,这保证了对养殖户(de)快速反应和快速销售.目前我国大型(de)肉制品公司基本上都是这种模式.另外,第三种模式(de)延伸模式是“公司+基地+养猪户”模式:即以大型(de)生猪屠宰加工和肉制品加工企业(简称公司)为龙头,在辐射范围内通过收购合同或市场影响力带动区域性养殖基地(de)发展,并带动养猪户加入产业链条.一方面解决了大规模生产所需(de)生猪原料,并有效降低了生猪生产成本;另一方面通过发展远距离运销及肉制品深加工以解决大规模生产猪肉(de)销售和提升产品附加值(de)问题.该模式中(de)屠宰加工企业居主导地位,基地一般由公司与畜牧兽医类服务机构或当地有一定实力(de)个人或团体组成,主要负责带动农户养猪,并提供种猪、猪苗或养殖技术服务.这种模式重视产业链内部分工,易形成良好(de)利益协同关系,且龙头企业不需向养殖环节过多投入,而专注于核心能力(生产技术、新产品开发、销售网络和品牌)(de)培育.但根据我国现阶段(de)国情和公司(de)情况,这种公司加基地加农户(de)形式广泛铺开还比较难.我国屠宰加工业内规模较大(de)企业包括河南双汇投资发展股份有限公司(双汇发展)、大众食品控股有限公司(大众食品)、中国雨润食品集团有限公司(雨润食品)及四川高金食品股份有限公司(高金食品)等.双汇发展以高低温肉制品为主要品种,2007年高低温肉制品占主营业务收入%,冷鲜肉和冷冻肉产品占其主营业务收入%.大众食品以冷鲜肉、冷冻肉为主,占主营业务收入(de)60%,同时发展高低温肉制品.雨润食品以低温肉制品为起点进入肉制品行业,迅速发展冷鲜肉和冷冻肉,2007年其高低温肉制品占22%,而冷鲜肉和冷冻肉占78%.高金食品以热鲜肉及冷冻肉为主,占主营业务收入(de)%,高低温肉制品和罐头类制品各占3%.行业龙头企业主要产品及毛利情况双汇发展:07年收入亿雨润食品:07年收入亿高金食品:07年收入亿注:雨润(de)毛利率明显高于其他企业,主要原因是雨润(de)产品主要走直销渠道,减少了经销商对利润(de)侵蚀.缺点是企业前期开拓直销渠道(de)人力物力财力以及时间成本会较大.未来我们如拟投资此类企业,其销售渠道模式将是尽职调查(de)一个重点.我国屠宰加工行业是一个竞争比较激烈(de)行业,行业内企业整体毛利率较低,因此企业规模大小、成本控制、销售渠道开拓(de)能力及质量管理水平也是影响行业内企业利润水平(de)主要因素.就唐人神来说,首先湖南省是我国(de)养猪大省之一,有众多(de)养殖户,且公司自98年起即在生猪种苗繁育上下功夫,在种猪繁育方面进行了技术和人才储备,已经具备大规模推广(de)能力;第二,湖南省商务厅出台(de)湖南省生猪屠宰专项整治工作方案规定“全省县级以上城市,生猪进点屠宰率要实现100%,在农村乡镇,生猪进点屠宰率也要达到95%”,由于屠宰事关食品安全,唐人神在农业产业化方面(de)示范作用,使得省政府更加倾向于在唐人神相关屠宰场(de)“定点屠宰”;第三,唐人神(de)腌腊肉制品业务多年来专注于长株潭地区,已经具备了一定(de)区域内销售渠道资源,唐人神可借这些渠道进一步发展其生鲜肉产品,扩大其肉制品收入.综上,唐人神走生猪产业链一体化(de)道路是可行(de),也是行得通(de).我国屠宰加工企业(de)深加工产品比例小,企业产品附加值较低,而屠宰加工环节(de)毛利率低,容易受到市场价格波动(de)影响.随着消费者需求(de)转变以及猪肉屠宰加工行业(de)整合,一些规模大(de)企业具有实力和技术水平进行猪肉产品(de)深加工,或是顺应消费趋势(de)变化,发展冷却肉(de)生产和冷链配送,猪肉产品附加值会有较大提高,企业抵抗市场价格波动风险(de)能力增强,行业利润水平将会有一定提高.此外通过现代生物技术利用猪骨、猪血、猪皮等猪副产品生产各种高价值产品,也是提高产品附加值(de)发展方向.综上所述,生猪产业链上(de)企业,无论处于饲料、养殖、屠宰、肉制品深加工等任何一个环节,都存在较大(de)风险,至少需要上下延伸一个环节才能降低企业经营(de)不确定性,如果能打通整个产业链,就能较好(de)回避经济周期波动(de)风险,获得稳定甚至是高额(de)收益,但由于中国农业发展(de)现状制约,上下延伸一个环节,起码要3-5年(de)时间,这是一条需要长期艰苦努力(de)产业化之路,但也是必由之路.。
20头母猪场4×1800=7200 4×1700=6800 3×2700=8100保育舍(8栏)分娩舍(8栏)配种妊娠舍(6栏)7200 900 800 6800 800 8220 900 120 2400 37012029米×8.14米=236.06平方米沥青+两层无纺布50厚的泡沫板两层,共100厚(泡沫板每立方米10公斤)沥青+两层无纺布8#铁丝拉网铁屋架(间距1.2米)通风口600×600 (间距6米)±2.40第 1 页第 2 页200混凝土50厚 塑料寸管泡沫板50厚1200塑料布或油毡炭渣素土夯实700 500 1250 250 500 1000 500 250 1250 500 700 1000i=5% i=5% 200排水沟始深-0.10米坡降5‰1500排水沟始深 —0.40米坡降5‰第 3 页—1.70分娩舍剖面图沥青+两层无纺布50厚的泡沫板两层,共100厚(泡沫板每立方米10公斤)沥青+两层无纺布 8#铁丝拉网铁屋架(间距1.2米)通风口600×600 (间距6米) ±2.40200混凝土50厚 塑料寸管泡沫板50厚1200第 4 页塑料布或油毡炭渣素土夯实600 1000 1500 1200 1500 1000 600 1000i=5% i=5% 2001500排水沟始深 —0.30米坡降5‰—1.70保育舍剖面图沥青+两层无纺布50厚的泡沫板两层,共100厚(泡沫板每立方米10公斤)沥青+两层无纺布8#铁丝拉网第 5 页铁屋架(间距1.2米) 通风口600×600 (间距6米)±2.40200木抹子拉平(打毛)平整无积水 1:2水泥沙浆面层20厚200#80砼厚1200素土夯实500 2700 1000 2700 500 10002% 2001500排水沟始深 —0.20米坡降5‰—1.703704502500㎜×4000㎜=10㎡400010004000450第 6 页第 7 页—370255002500育肥舍平面轴线、猪栏布置图 (25.5m ×10.27m=262㎡ 共20栏)沥青+两层无纺布沥青+50厚的泡沫板两层,共100厚(泡沫板每立方米10公斤) 8#铁丝拉网沥青+两层无纺布通风口600×600(间距6米)铁屋架(间距1.2米)+2.50第 8 页200 1200木抹子拉平(打毛)平整无积水1:2水泥沙浆面层20厚150 300 200#80 厚 300 150 素土夯实10005% 2% 2% ±0.00 5% 200排水沟始深—0.15米 坡降为8‰毛石基础900宽500 深900—1.10育肥舍剖面图希望以上资料对你有所帮助,附励志名3条:1、积金遗于子孙,子孙未必能守;积书于子孙,子孙未必能读。
最新发布!中国生猪屠宰行业月度专题报告(2022年8月)生猪屠宰产业链全景:上游饲料价格上行,生猪养殖呈恢复性增长1、生猪屠宰产业链概述从屠宰业务的产业链位置看,其上游由生猪养殖,由育种、饲料、动物疫苗及兽药等构成,然后经过屠宰加工,通过物流运送至农贸市场、商超或门店进行销售,最后到达餐饮或消费家庭中。
从产业链看,饲料价格、生猪价格及猪肉价格是影响生猪屠宰加工量的重要因素,其中,生猪价格及猪肉价格直接决定屠宰行业的生产成本和销售价格,是最核心的影响因素。
2、原材料价格大幅上涨,饲料生产商产量缩减原材料成本在饲料总成本中占比重较高,通常在90%以上。
2019年-2021年,在国家扶持及补贴政策下,生猪养殖规模逐步恢复,猪饲料产量逐年递增。
2019-2021年,猪饲料产量同比增速分别为-21.16%、16.43%和46.56%,增幅逐步扩大。
2021年,受国际贸易摩擦以及国内自然灾害等因素影响,国内农产品供求关系紧张,饲料上游主要原材料价格持续高位震荡,2021 年,全年玉米和豆粕价格同比上涨超过20%,导致饲料行业企业成本端面临较大压力,猪饲料生产商产量缩减,2022年1-7月,猪饲料产量为7014万吨,较去年同期相比下降7.4%。
从猪饲料价格看,2021年育肥猪饲料价格总体保持平稳,其中,育肥猪配合饲料处于3.4-3.5元/公斤区间;育肥猪浓缩饲料稳定在5.15-5.3元/公斤区间。
随着玉米、豆粕等饲料原料价格大幅上涨,2021年底-2022年初,育肥猪饲料价格也迅速上升。
2022年3月,育肥猪配合饲料达到3.69元/公斤,育肥猪浓缩饲料达到5.66元/公斤,较今年年初分别增加0.19元/公斤、0.37元/公斤,环比增长5.43%和6.99%。
受俄乌冲突及南美干旱影响,饲料原材料价格仍将保持上升态势。
3、保供稳价等政策下,生猪产能迅速恢复2019年生猪出栏量下降27.50%,存栏量下降21.57%。