TPO施工方案
- 格式:doc
- 大小:6.16 MB
- 文档页数:21
TPO施工方案范文TPO(热塑性聚乙烯丙烯合成橡胶)是一种广泛应用于建筑屋面的材料,其具有耐候性、耐化学腐蚀、环保可回收等优点,因此在建筑屋面施工中得到了广泛应用。
本文将详细介绍TPO施工方案。
一、材料准备:1.TPO卷材:根据施工图纸中的需求,提前预定合适尺寸和规格的TPO卷材。
2.TPO接缝胶:选用经过测试合格的TPO接缝胶,保证接缝处的密封性。
3.其他辅助材料:包括TPO卷材切割工具、刷子、胶刀等。
二、施工准备:1.屋面检查:在施工前,对屋面进行彻底检查,确保屋面结构完好无损,无明显渗漏点。
2.屋面清洁:清除屋面上的杂物和灰尘,确保屋面表面干净。
3.基层处理:根据屋面状态,进行基层处理,例如修补破损处、平整不平整处等。
三、施工步骤:1. 底层安装:将TPO卷材展开并按照施工图纸的要求进行布置,从一侧向另一侧逐渐铺设,确保卷材之间的重叠部位不小于50mm。
2.粘接固定:使用专用的寿命久、粘接强度高的粘结剂对TPO卷材边缘进行粘接固定,确保卷材与屋面结构有良好的粘接。
3.防水层安装:将TPO卷材通过热风枪进行热熔,熔化卷材底部的熔融背胶,与屋面结合在一起,形成防水层。
4.接缝处理:在TPO卷材的重叠处涂抹TPO接缝胶,确保接缝处的密封性。
5.边角处理:对屋面边缘和拐角处进行专门处理,确保边角部位的完整性和防水性能。
6.其他细节处理:根据施工图纸要求,对屋面上的天窗、通风口等细节部位进行处理,确保细节部位的防水性能。
7.验收和维护:施工完成后,进行验收,确保施工质量符合要求。
同时,建议定期检查和维护TPO屋面,延长屋面使用寿命。
四、施工注意事项:1.施工前要仔细阅读TPO卷材的施工说明书,了解施工步骤和注意事项。
2.在施工前对屋面进行彻底检查,确保屋面结构完好,无明显渗漏点。
3.施工过程中要保持施工现场清洁,防止杂物和灰尘进入TPO卷材。
4.施工过程中要注意安全,使用合适的人身防护装备,避免发生意外。
TPO防水卷材木结构屋面施工方案1.引言本文档旨在介绍TPO防水卷材在木结构屋面施工中的方案。
TPO防水卷材是一种具有优良的防水和耐候性能的材料,适用于各种建筑屋面的防水施工。
本方案将详细介绍施工前的准备工作、材料选用及施工步骤,确保施工过程中的质量和安全。
2.施工前准备在进行TPO防水卷材施工前,需要进行以下准备工作:2.1 预施工检查在施工开始之前,需要对屋面进行详细的检查,确认木结构屋面的平整度和结构稳定性,确保木结构屋面符合施工要求。
2.2 清洁与修复清理屋面表面的灰尘和杂物,并修复破损的木结构。
确保屋面表面干净、平整。
2.3 防水层设计根据具体需求和屋面结构,进行防水层的设计,确定TPO防水卷材的铺设方案、孔洞位置和排水斜度等。
2.4 材料准备准备需要的TPO防水卷材、胶水、焊接剂、隔离膜等工具和材料。
确保材料的质量、数量和规格符合要求。
3.施工步骤TPO防水卷材在木结构屋面的施工步骤如下:3.1 清洁屋面使用清洁工具将屋面表面的灰尘和杂物清除干净,确保屋面表面光滑、干燥。
3.2 胶接处理使用胶水将TPO防水卷材的边缘和接缝处固定牢固,确保防水层的密封性。
3.3 卷材铺设将TPO防水卷材根据设计方案进行铺设,在铺设过程中保持卷材的平直,并确保卷材之间的接缝牢固、密封。
3.4 管道和天窗处理对于管道和天窗等特殊部位,使用隔离膜或焊接剂进行处理,确保这些部位的防水性能。
3.5 热风焊接使用专业设备进行热风焊接,将不同卷材的接缝牢固焊接在一起,确保接缝处的防水性能。
3.6 排水斜度设置根据设计要求,在TPO防水卷材的铺设过程中设置适当的排水斜度,保证屋面的排水顺畅。
3.7 施工检查在施工完成后,对施工质量进行检查,确保每个步骤的施工质量和安全性。
4.安全注意事项在TPO防水卷材木结构屋面施工过程中,需要注意以下安全事项:使用合适的个人防护装备,包括手套、防护眼镜和防滑鞋等。
施工现场要设置警示标志,确保施工区域安全。
TPO防水外墙施工方案1. 引言本文档旨在提供一种TPO(热塑性聚烯烃)防水外墙施工方案。
TPO防水材料具有优异的耐候性、抗老化性能和防水性能,广泛应用于建筑物外墙的防水工程中。
本文档将详细介绍TPO防水外墙施工方案的步骤和要点。
2. 施工步骤2.1. 表面准备在施工TPO防水层之前,需要对外墙表面进行充分的准备工作,以确保防水层能够牢固地附着在墙面上。
具体步骤如下:•清除墙面上的尘土、油污和松散的材料。
•处理墙面上的粗糙表面,如填平裂缝和凹陷。
•清理墙面上的锈蚀部分,并做必要的防锈处理。
2.2. 底层防水膜的铺设在表面准备完成后,需要先铺设一层底层防水膜,以提供额外的防水屏障。
具体步骤如下:•在墙面上涂抹底层防水膜粘结剂,确保粘结剂均匀且完全覆盖墙面。
•将底层防水膜铺设在墙面上,并将其固定在墙面上。
•确保底层防水膜的接缝处密封良好,以防止水分渗漏。
2.3. TPO防水层的铺设在底层防水膜铺设完成后,需要铺设TPO防水层,以提供主要的防水保护层。
具体步骤如下:•在底层防水膜上涂抹TPO防水层粘结剂,确保粘结剂均匀且完全覆盖底层防水膜。
•将TPO防水层铺设在底层防水膜上,并将其固定在墙面上。
•确保TPO防水层的接缝处密封良好,并使用热风枪对接缝处进行热焊接,以确保接缝处的完全密封。
2.4. 保护层的安装为了保护TPO防水层免受外部环境的侵害,需要安装一层保护层。
具体步骤如下:•在TPO防水层上涂抹保护层粘结剂,确保粘结剂均匀且完全覆盖TPO防水层。
•将保护层材料铺设在TPO防水层上,并将其固定在墙面上。
•检查保护层的表面是否平整,修复可能存在的缺陷。
3. 注意事项在进行TPO防水外墙施工时,需要注意以下几点:•施工人员应严格按照相关规范和安全操作流程进行操作。
•施工前应检查TPO防水材料是否完好无损,如有损坏应及时更换。
•在施工过程中应注意防水层的完整性和接缝处的密封性,以防止水分渗漏。
•底层防水膜、TPO防水层和保护层的材料选择应符合相关标准和要求。
TPO怎么施工方案引言TPO(Thermoplastic Olefin)是一种热塑性聚合物,广泛应用于建筑屋面和防水系统。
TPO屋面具有耐候性、耐化学品、耐紫外线和防火等特点。
本文将介绍TPO施工的一般流程和一些关键步骤。
施工准备在进行TPO屋面施工之前,需要进行一些准备工作:1.设计评估:根据实际需求,对建筑物进行评估和设计,确定TPO屋面的类型、厚度和施工方法。
2.材料准备:采购TPO薄膜、胶粘剂、密封条和其他所需材料,并进行质量检验。
3.工具准备:准备好安装TPO屋面所需的工具,如喷涂机、热风枪、施工刀具等。
施工步骤TPO屋面的施工过程包括以下几个主要步骤:步骤1:准备基层在施工TPO屋面之前,需要确保基层的平坦和清洁。
下面是准备基层的具体步骤:1.清理基层:清除基层表面的灰尘、油脂和其他杂物。
可以使用扫帚、吸尘器或清洁剂来清洁基层。
2.修补基层:检查基层是否有裂缝或破损。
如果有,使用合适的修补材料进行修补。
步骤2:安装TPO薄膜1.布置TPO薄膜:根据设计要求,将TPO薄膜铺设在基层上。
确保薄膜边缘有足够的重叠和余量,以便后续焊接。
2.焊接TPO薄膜:使用热风枪对TPO薄膜进行焊接。
将热风枪置于两个薄膜的交接处,加热薄膜并使其融化,然后加压使其黏合在一起。
确保焊接处均匀、牢固。
3.处理细节部位:对于柱子、墙角和天沟等细节部位,根据实际情况进行切割和焊接,以确保完全密封。
步骤3:安装辅助材料在安装完TPO薄膜后,需要安装一些辅助材料来加强防水效果和保护TPO层。
以下是常见的辅助材料:1.胶粘剂:使用胶粘剂将TPO薄膜与基层牢固地粘合在一起。
根据厂家的建议,选择合适的胶粘剂。
2.密封条:在需要密封的地方(如伸缩缝和接缝处)安装密封条,确保完全密封。
步骤4:质量检验和清理在施工完成后,进行质量检验是必要的。
检查每个焊接区域和细节部位的质量,确保没有漏水或其他问题。
最后,对施工现场进行清理,清除废弃材料和工具,确保安全和整洁。
TPO防水卷材施工方案1. 简介TPO防水卷材是一种高分子合成材料,常用于建筑物的屋面、地下室以及其他需要防水的场所。
本文档将介绍TPO防水卷材的施工方案,以确保施工质量和防水效果。
2. 施工准备在开始施工之前,需要做好以下准备工作:•检查施工现场,确保基层结构牢固、无杂物和污垢;•清理准备防水层表面,确保无油污、灰尘和其他杂质;•准备好所需的工具和材料,包括刷子、滚筒、刮刀、聚合物膨胀胶、丁基胶等;•检查天气状况,确保施工期间无降雨。
3. 施工步骤3.1 清洁基层在开始铺设TPO防水卷材之前,需要确保基层表面干净且平整。
首先,清除基层表面的油污、灰尘和杂物,可以使用刷子和刮刀进行清理。
然后,将基层表面进行打磨,以确保平整一致。
3.2 铺设底层防水卷材在清洁基层之后,可以开始铺设底层的TPO防水卷材。
先将卷材展开,并将其对准基层的一侧,然后逐步铺设开来。
在铺设过程中,需要确保卷材的边缘与墙体或其他结构对齐,并保持卷材的平整。
3.3 粘贴卷材铺设底层卷材后,需要使用聚合物膨胀胶将其粘贴在基层上。
将聚合物膨胀胶均匀地涂抹在卷材的背面,然后将卷材贴合在基层上。
在粘贴过程中,需要确保卷材与基层的贴合紧密,并排除空气泡。
3.4 接缝处理在铺设和粘贴卷材的过程中,可能会出现接缝的情况。
为了确保防水效果,需要对接缝进行处理。
首先,使用刀片或刮刀将接缝处的卷材切割成平整的边缘,并清除卷材与基层之间的杂质。
然后,使用热风枪或其他加热设备将卷材加热,使其软化,并将接缝处的卷材覆盖在一起,确保接缝紧密。
3.5 安装配件在完成卷材铺设和接缝处理后,需要安装相应的配件,如雨水口、排水管等。
安装配件时,需要确保其与卷材的贴合紧密,使用丁基胶或类似材料进行密封。
3.6 检查和修复在施工完成后,需要对防水层进行检查,确保没有破损或缺陷。
如发现漏水或其他问题,需要及时进行修复。
修复时,可以使用聚合物膨胀胶或修补材料进行处理。
4. 施工质量控制4.1 施工人员培训为确保施工质量和工艺的一致性,施工人员需要接受专业的培训,掌握TPO防水卷材的施工技巧和注意事项。
TPO无穿孔固定施工方案引言TPO材料是一种常用于屋顶水密层的合成材料,具有优良的耐候性、耐化学腐蚀性和耐热性。
在TPO屋面的施工中,固定屋面材料是非常重要的环节。
传统的做法是通过在TPO膜上穿孔,然后使用螺钉进行固定。
然而,这种方法会在TPO膜上形成孔洞,可能导致水漏和其他潜在问题。
因此,本文将介绍一种不需要穿孔的TPO无穿孔固定施工方案,以确保屋顶的完整性和耐久性。
TPO无穿孔固定施工方案的优势TPO无穿孔固定施工方案相对于传统的穿孔固定方法有以下几个优势:1.无需穿孔:传统的穿孔固定方法会在TPO膜上留下孔洞,而无穿孔固定方案可以避免这个问题。
这意味着TPO膜不会被削弱,减少了水漏和其他潜在问题的风险。
2.提高施工效率:无穿孔固定方案不需要在TPO膜上进行穿孔操作,简化了施工过程,提高了施工效率。
这可以节省时间和人力成本。
3.降低维护成本:由于无穿孔固定方案减少了水漏和其他潜在问题的风险,维护成本也会相应降低。
这可以为业主节省维护和修复费用。
TPO无穿孔固定施工方案的具体步骤下面是TPO无穿孔固定施工方案的具体步骤:1.准备工作:在施工前,首先需要清理屋顶表面,确保其平整、干净。
所有不平整的表面应进行修复。
确保屋顶表面没有松动的部分或其它障碍物。
2.固定片安装:在TPO屋面上安装固定片。
固定片通常由高强度的塑料或金属制成,具有抗腐蚀性能。
使用适当的工具和材料,将固定片固定在屋面上。
固定片应该分布均匀,并与屋面边缘对齐。
3.TPO膜安装:将TPO膜展开铺设在固定片上。
确保膜与固定片完全贴合,并且没有任何褶皱或起泡现象。
使用适当的工具和技术,将TPO膜固定在固定片上。
4.边缘处理:在TPO膜的边缘处进行处理,以确保密封性。
可以使用专用的边缘条、热风枪或其他适当的工具进行边缘处理。
5.测试和验收:在完成TPO无穿孔固定施工后,应进行相应的测试和验收工作。
检查屋顶的密封性和固定性能。
确保屋顶符合技术规范和设计要求。
TPO施工方案一、前言TPO屋顶是一种较为常见的屋面防水材料。
它以聚丙烯为基础材料,经过特殊工艺处理,形成了一层高耐候性、高强度、抗老化、反射热辐射的屋面防水材料。
TPO屋顶施工方案规范化、标准化正变得越来越重要,因为在施工过程中如果存在施工质量问题,将会影响屋顶的防水性能和使用寿命。
因此,本文将详细介绍TPO屋顶施工方案。
二、施工材料与工具1. TPO屋面防水材料:包括TPO防水膜、胶乳、牵引带、TPO屋面外护板等。
2. 基础层材料:包括基面处理材料、隔离层材料、保护层材料等。
3. TPO屋顶配件:包括J形边角、内外角、排水口等。
4. TPO屋顶施工工具:包括切割机、热风枪、焊接枪、压轮、笤帚等。
三、施工步骤1. 基面处理1.1 基面清理清理工具可以使用铲刀、钢丝刷等。
对于水泥基础层,应除去浮灰、油污、沥青等,并用高压水枪清洗干净,基础层表面不应有明显的起砂、脱落、孔洞或其他损坏。
清洁后,基面应保持干燥,无明显积水。
1.2 基面处理材料施工基面用处理材料施工,可以使用基层调节材料、底涂、隔离层等。
首先应先涂刷一遍底涂,再将调节材料均匀的刮在基面上,然后将隔离层铺设在顶部。
2. TPO屋面防水施工2.1 定位在进行TPO防水膜铺设前,应先按照实际情况进行定位。
首先确定好排水口的位置,其它点位应按照施工图纸进行准确的定位。
2.2 铺设TPO屋面防水膜先铺设TPO防水膜,再将铺设好的TPO防水膜从中心处向两侧展开,然后使用胶乳沿边角固定,边缘处注意要留下足够长的捻股带。
同时,还要注意膜与排水口之间的缝隙要留足。
2.3 膜的焊接在TPO膜的焊接过程中,应尽量对焊接轨道、焊接机的温度进行多次测试和调整。
同时,还要注意焊接时的速度和力度,以避免过渡和不足焊接。
2.4 安装TPO屋面配件在焊接完成之后,应及时安装J形边角、排水口、内外角等TPO配件,并使用胶乳和牵引带进行固定。
2.5 外护板安装在TPO屋面防水膜的铺设完成后,应及时安装TPO屋面外护板,外护板的安装应从下往上进行,同时应注意外护板的尺寸和安装角度。
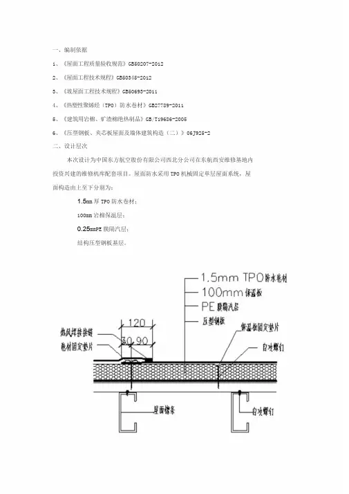
一、编制依据1、《屋面工程质量验收规范》GB50207-20122、《屋面工程技术规程》GB50345-20123、《坡屋面工程技术规程》GB50693-20114、《热塑性聚烯烃(TPO)防水卷材》GB27789-20115、《建筑用岩棉、矿渣棉绝热制品》GB/T19686-20056、《压型钢板、夹芯板屋面及墙体建筑构造(二)》06J925-2二、设计层次本次设计为中国东方航空股份有限公司西北分公司在东航西安维修基地内投资兴建的维修机库配套项目。
屋面防水采用TPO机械固定单层屋面系统,屋面构造由上至下分别为:➢ 1.5mm厚TPO防水卷材;➢100mm岩棉保温层;➢0.25mm PE膜隔汽层;➢结构压型钢板基层。
三、施工机具1)自动热空气焊接机适用于平面TPO卷材接缝焊接。
2)无穿孔焊机主要用于天沟部位防水层的焊接固定,通过电感焊接,将带有高分子涂层的垫片与TPO卷材热熔焊接(见后附细部节点处理:现场焊接图)。
3)手持热空气焊接机用热空气焊接TPO卷材和泛水。
手持硅酮橡胶辊与焊接机结合使用,由压辊施加压力把受热的卷材表面熔合在一起。
当修理接缝时或者在当使用自动热空气焊接机不合适时(如在细部节点部位或在大坡度表面上),通常使用手持焊接机。
4)硅酮辊20mm和40mm宽两种硅酮辊,用来滚压热空气焊接接缝。
5)电动螺丝刀功率大于600W的电动螺丝刀(用于自攻螺钉机械固定)6)检测设备焊缝钩针:用于检测TPO卷材接缝处的焊接效果;真空侧漏罩:用于检测TPO卷材T型接头的焊接效果;四、屋面紧固件布置屋面周边和角部区域风荷载较大,紧固件需加密布置,可以采取以下方法进行加密:加密区示意图如下:加密方式示意图:五、工艺流程前期准备→基层处理→铺贴隔汽层→机械固定保温层→机械固定卷材→热熔焊接卷材→细部节点处理→竣工验收5.1、前期准备1)材料准备施工前应将卷材及系统配套材料准备齐全;并检验质量是否符合相关标准。
一、编制依据1、《屋面工程质量验收规范》GB50207-20122、《屋面工程技术规程》GB50345-20123、《坡屋面工程技术规程》GB50693-20114、《热塑性聚烯烃(TPO)防水卷材》GB27789-20115、《建筑用岩棉、矿渣棉绝热制品》GB/T19686-20056、《压型钢板、夹芯板屋面及墙体建筑构造(二)》06J925-2二、设计层次本次设计为中国东方航空股份有限公司西北分公司在东航西安维修基地内投资兴建的维修机库配套项目。
屋面防水采用TPO机械固定单层屋面系统,屋面构造由上至下分别为:1.5mm厚TPO防水卷材;100mm岩棉保温层;0.25mmPE膜隔汽层;结构压型钢板基层。
三、施工机具1)自动热空气焊接机适用于平面TPO卷材接缝焊接。
2)无穿孔焊机主要用于天沟部位防水层的焊接固定,通过电感焊接,将带有高分子涂层的垫片与TPO卷材热熔焊接(见后附细部节点处理:现场焊接图)。
3)手持热空气焊接机用热空气焊接TPO卷材和泛水。
手持硅酮橡胶辊与焊接机结合使用,由压辊施加压力把受热的卷材表面熔合在一起。
当修理接缝时或者在当使用自动热空气焊接机不合适时(如在细部节点部位或在大坡度表面上),通常使用手持焊接机。
4)硅酮辊20mm和40mm宽两种硅酮辊,用来滚压热空气焊接接缝。
5)电动螺丝刀功率大于600W的电动螺丝刀(用于自攻螺钉机械固定)6)检测设备焊缝钩针:用于检测TPO卷材接缝处的焊接效果;真空侧漏罩:用于检测TPO卷材T型接头的焊接效果;四、屋面紧固件布置屋面周边和角部区域风荷载较大,紧固件需加密布置,可以采取以下方法进行加密:加密区示意图如下:加密方式示意图:五、工艺流程前期准备→基层处理→铺贴隔汽层→机械固定保温层→机械固定卷材→热熔焊接卷材→细部节点处理→竣工验收1.6、前期准备1)材料准备施工前应将卷材及系统配套材料准备齐全;并检验质量是否符合相关标准。
密封膏、清洗剂应存放在阴凉、干燥的库房,并配备足够的消防器材,避免阳光暴晒。
tpo防水卷材施工方案TPO防水卷材施工方案。
TPO防水卷材是一种新型的高分子聚合物合成材料,具有优异的抗老化、抗紫外线、抗根穿刺和耐化学腐蚀等特点,广泛应用于建筑屋面、地下室、隧道、水池等工程的防水工程中。
本文将就TPO防水卷材的施工方案进行详细介绍,以便工程施工人员能够准确、高效地进行施工工作。
一、施工前准备。
1. 材料准备,根据设计要求,准备好TPO防水卷材、底层材料、配件、胶粘剂等施工所需材料。
2. 工具准备,准备好热风枪、手工热风焊接机、刷子、滚筒、刮刀、尺子、剪刀等施工工具。
3. 现场准备,清理施工现场,确保基层平整、清洁无尘,清除尖锐物、杂物等障碍物。
二、施工步骤。
1. 底层处理,对基层进行处理,确保平整、牢固、无裂缝、无尘土、无水渍,底层处理材料应符合设计要求。
2. 底层材料铺设,根据设计要求,铺设底层材料,采用机械固定或粘贴固定。
3. TPO防水卷材铺设,将TPO防水卷材按照设计要求进行铺设,边缘留有足够的余量,采用机械固定或粘贴固定。
4. 热风焊接,采用热风枪或手工热风焊接机对TPO防水卷材进行热风焊接,确保焊接牢固、均匀、无泡、无皱。
5. 边缘处理,对TPO防水卷材的边缘进行处理,确保边缘牢固、无松动,采用专用配件进行固定。
6. 检查验收,对施工完成的TPO防水卷材进行检查验收,确保施工质量符合设计要求。
三、施工注意事项。
1. 施工环境,施工时避免在雨雪天气、强风天气或温度过高或过低的环境下进行施工。
2. 施工质量,施工过程中严格按照设计要求和施工工艺进行操作,确保施工质量达标。
3. 安全防护,施工人员需佩戴好安全防护用具,注意施工现场的安全,确保施工过程中无意外事件发生。
四、施工结束。
1. 清理整理,施工结束后,对施工现场进行清理整理,清除杂物、废料等。
2. 完工验收,完成施工后,进行完工验收,确保施工质量符合设计要求。
3. 编制施工记录,对施工过程进行记录,包括施工人员、施工日期、施工材料、施工工具等。
TPO防水材料施工步骤步骤1:准备工作在施工TPO防水材料之前,需要先进行准备工作。
这包括清理和修复基层,确保基层平整干燥,没有明显的凹凸不平和破损。
同时,检查基层是否具备防水施工的强度和稳定性。
如果有必要,还需要使用底漆处理基层,以提高防水层和基层的粘结强度。
步骤2:涂刷底漆在基层上涂刷底漆,提高基层与TPO防水材料的粘结强度。
底漆通常以涂刷或喷涂的方式施工,确保底漆均匀覆盖在基层上。
底漆需要干燥后,才能进行下一步的施工。
步骤3:铺设TPO防水材料将TPO防水材料铺设在基层上。
TPO防水材料通常以卷材形式提供,可以根据需要进行裁剪。
将TPO卷材依次铺放到基层上,注意保持卷材之间的重叠边缘,并保持卷材与基层之间的紧密结合。
使用热气枪或热风焊机热熔卷材的底层,使其和基层紧密粘接。
步骤4:焊接卷材使用热风焊机对TPO卷材进行焊接。
在卷材边缘处,使用热风焊机将卷材热熔焊接在一起,形成连续的防水层。
焊接时需要注意温度控制,避免将卷材烧损或过热。
焊接好的卷材需要进行压实,确保卷材与基层之间的粘结牢固。
步骤5:处理细部和接缝在TPO防水层的细部和接缝处,需要进行专门的处理。
如墙体与屋面的交界处、通风口、天窗、排水口等地方,需要采用专用的配件进行封闭处理。
同时,在卷材的重叠接缝处,也需要进行热风焊接,确保接缝处密封牢固。
细部和接缝处的处理需要特别注意,以防止漏水和损坏。
步骤6:进行防水层测试在TPO防水层施工完成后,需要进行防水层的测试。
测试方法可以有多种,如压力测试、水柱测试、渗透测试等。
测试结果应符合设计要求和相关规范要求,以保证防水层的质量和性能。
步骤7:保护和维护综上所述,TPO防水材料的施工步骤包括准备工作、涂刷底漆、铺设TPO防水材料、焊接卷材、处理细部和接缝、进行防水层测试以及保护和维护工作。
在施工过程中,需要按照规范和要求进行操作,确保TPO防水层的质量和效果。
TPO施工方案1. 背景介绍TPO(Thermoplastic Olefin)是一种合成材料,广泛应用于建筑屋顶的防水和隔热层。
TPO具有耐候性、耐化学腐蚀性以及较高的反射性能,因此成为了商业和工业建筑中广受欢迎的屋顶材料选择。
本文将介绍TPO施工方案的主要步骤和注意事项。
2. 施工步骤2.1 屋顶准备在施工TPO屋顶之前,首先需要确保屋顶的表面清洁、平整且干燥。
下面是准备工作的主要步骤:•清除屋顶上的积水和杂物。
•检查并修复任何潜在的损坏或渗水问题。
•将屋顶清洗干净,以确保没有灰尘、油脂或其他污物。
2.2 防水层施工TPO防水层的施工通常包括以下步骤:1.底层安装:在清洁的屋顶表面上,铺设TPO底层。
在每一卷TPO薄膜之间,要留足够的重叠区域,一般建议20-25cm。
2.热风焊接:使用热风焊接机将TPO底层与屋顶表面进行强力粘合。
需要确保焊接机的温度和速度适当,以确保完全融合。
3.薄膜安装:将TPO薄膜安装在底层上,并按照制造商的指示进行粘合或焊接。
4.边缘处理:对屋顶边缘和角落处进行特殊处理,确保防水层的连续性和完整性。
2.3 附件施工在TPO施工过程中,还需要特别注意附件的安装,如:•排水口和通风口的安装:确保正确安装并与TPO屋面完全密封。
•天窗和管道穿越口的处理:通过添加防水垫片或专用接口件,确保这些区域的密封性。
•边缘细节处理:在屋顶边缘、管道和设备周围等敏感区域,需要特别注意密封和保护。
2.4 最终检查在完成TPO施工后,进行最终检查以确保施工质量和屋顶的密封性。
以下是要注意的几个方面:•检查焊缝和粘接处是否完全密封。
•检查边缘处理是否准确,是否有任何裂缝或松动。
•检查附件安装是否正确。
3. 注意事项在进行TPO施工时,需要注意以下几个问题:•温度:TPO施工的环境温度应在5°C以上,以确保材料的柔韧性和粘合性。
•季节性因素:在施工过程中应考虑到季节性的因素,如风向和雨季等,以避免水分渗透导致施工质量下降。
屋面TPO卷材防水工程施工组织设计方案一、前言本文档描述了关于屋面TPO卷材防水工程的施工组织设计方案。
该方案旨在确保工程质量,保证施工顺利进行,减少工程隐患。
二、施工前准备2.1 材料采购2.1.1 TPO卷材选用具有国家检测报告的产品,确认产品质量符合要求,并妥善存储,避免受潮、破损等情况。
2.1.2 防水涂料选用符合国家标准的产品,确认产品质量符合要求,并妥善存储,避免受潮、破损等情况。
2.2 设备材料准备2.2.1 工具- 必备工具:锤子、刮刀、尺子、铅笔、扫帚- 电动工具:风扇、焊接机、切割机2.2.2 安全设施- 安全带、安全绳- 安全帽、安全鞋- 黄色警示带三、工程施工3.1 施工准备- 封闭施工区域并做好标识;- 确认气温、湿度等施工环境符合要求;- 按照材料、设备清单核对是否齐全。
3.2 屋面清理清理屋面,确保屋面表面洁净、平滑,无凸起、起泡、杂物等。
3.3 卷材铺设1. 将TPO卷材平铺在屋面上,留有5-10cm的边缘。
2. 从中心线(或水平线)处开始,将钉子固定在屋面上。
3. 钉子间距一般不大于30cm。
4. 焊接两边卷材,注意正确的焊接温度、时间和速度。
5. 翻转剩余部分并重复以上步骤。
3.4 焊接处理焊接处理包括侧焊和头焊。
侧焊要求边缘不少于30mm,头焊不少于50mm。
3.5 防水涂料施工在TPO卷材施工完成后,采用滚涂或喷涂方式在TPO卷材表面均匀涂布防水涂料,厚度一般不小于0.8mm。
四、施工安全- 工人进入施工现场前需进行安全培训,并佩戴好安全帽、安全鞋、安全带等安全用品;- 操作具有危险性的工具设备前严格按照使用说明操作;- 遇到特殊情况要及时止损,避免事故发生。
五、施工质量检验- TPO卷材的焊接质量,侧焊制作质量;- 防水涂料涂覆质量;- 施工现场清洁及卫生情况。
六、总结本文档描述了屋面TPO卷材防水工程的施工组织设计方案。
该方案具有操作性,为确保工程质量、保证施工顺利进行提供了有效的指导思路。
(完备版)TPO防水卷材施工指南1. 简介本文档旨在为施工人员提供TPO防水卷材施工的指导和步骤。
TPO防水卷材是一种常用于建筑物屋面和地下室的防水材料,具有较好的抗老化和耐用性。
2. 施工前准备在开始施工之前,请确保以下准备工作已完成:- 确定施工区域的平整度和光洁度,清除任何尖锐物体和杂物。
- 检查并修复任何损坏的建筑结构或屋面。
- 确保工具和设备的完好,并准备好所需材料。
3. 施工步骤3.1 清洁和底层处理1. 使用清洁剂和水清洗施工区域,确保表面干净和无尘。
2. 对底层进行处理,如需要,在基层上涂刷底层处理剂以增强粘结性。
3.2 卷材的安装1. 将TPO防水卷材铺设在施工区域上,保持边缘对齐。
2. 使用卷材粘合剂或热风焊接机焊接卷材的接缝处,确保防水效果。
3. 将卷材平整固定在施工区域上,使用固定钉或适当的粘合剂。
4. 如果需要在卷材上切割或安装其他构件,请使用适当的工具进行操作。
3.3 措施和验收1. 完成施工后,进行一次全面的检查,确保无明显的安装错误或缺陷。
2. 检查卷材的接缝处,确保焊接牢固且无漏水。
3. 进行必要的水压试验,检查防水层的完整性。
4. 若需要进行修补或调整,请及时进行。
4. 安全措施在进行TPO防水卷材施工时,请遵循以下安全措施:- 戴好防尘口罩和手套,避免直接接触有害化学物质。
- 在高处作业时,使用安全带和脚手架以确保施工人员的安全。
- 使用安全工具和正确的工作姿势,避免受伤。
5. 后续维护完成TPO防水卷材的施工后,建议进行定期检查和维护,以确保其长期的防水效果。
请根据实际情况,制定适当的维护计划并执行。
请注意:以上内容仅为指导,具体施工步骤和细节应根据实际情况和相关法规进行调整和遵循。
> 注意:本文档所陈述的内容仅作参考,应按实际情况进行施工,如有需要,请咨询相关专业人士以获取准确的指导。
TPO防水施工方案1. 引言Thermoplastic Olefin (TPO)是一种常用于建筑防水的新型材料,具有高度的耐候性和耐化学性,广泛应用于屋顶、地下室、泳池和地下停车场等领域。
本文将介绍TPO防水施工的步骤和要点,以确保施工质量和使用寿命。
2. 施工准备在开始TPO防水施工之前,需要进行一系列的准备工作:2.1 清理表面确保施工表面干净、平整,无雨水、灰尘和其他杂物。
使用高压水枪清洗表面,去除积水和松动的物质。
2.2 基层检查检查基层是否均匀、结实,无裂缝和凹凸不平。
修复任何基层缺陷,确保施工表面平整。
2.3 排水系统设置根据建筑设计要求,设置好排水系统,包括排水管道、雨水收集器和排水口等。
确保良好的排水能够从施工区域流出。
2.4 材料准备准备好TPO防水卷材、接头胶水、接头贴带和可熔接设备等材料和工具。
将这些材料放置于安全、干燥的地方,避免严重湿气和阳光暴晒。
3. 施工步骤以下是TPO防水施工的基本步骤:3.1 底涂层施工先将底涂层均匀涂刷于基层上,以增强TPO卷材的附着力。
底涂层通常为粘合剂或底漆,根据TPO材料厂家的要求进行涂刷。
3.2 卷材铺设将TPO防水卷材按照设计要求铺设在涂刷好底涂层的基层上。
确保卷材的搭接部分足够密合,无空隙和裂缝。
3.3 热风枪焊接使用专业的热风枪将TPO卷材的搭接部分进行热风焊接。
保持焊接温度和时间的标准,确保焊接部分牢固和密封。
3.4 边缘处理对TPO防水卷材的边缘部分进行处理,包括倒角、修剪和固定。
确保边缘部分牢固固定,无松动和突出。
3.5 接头处理处理卷材的接头部分,使用专用的接头胶水和接头贴带。
按照厂家的要求,进行接头胶水和贴带的涂抹和固定。
3.6 检查和修复在施工完成后,进行全面的检查,发现任何潜在的问题和缺陷。
及时修复任何泛水、起皮和开裂等问题,确保防水层质量可靠。
4. 施工注意事项在TPO防水施工过程中,需要注意以下几个方面:4.1 温度和湿度施工时需确保环境温度和湿度符合TPO材料厂家的要求,以确保施工质量和附着力。
tpo柔性屋面施工方案一、材料准备与检验1.1 材料准备根据工程需求准备充足的TPO柔性屋面材料,确保材料规格、颜色、质量等符合设计要求及国家相关标准。
准备辅助材料,包括但不限于:密封胶、专用粘合剂、加强带、紧固件等。
1.2 材料检验对所有进场的TPO材料进行严格检验,确保材料无损伤、无污渍、无老化等现象。
检查材料的生产日期、质保单、合格证等文件,确保其在使用期限内。
二、基层处理与验收2.1 基层处理清理基层表面,除去油污、尘土、杂质等,确保基层干燥、平整、无松动。
修补基层缺陷,如凹坑、裂缝等,确保基层完整。
2.2 基层验收检查基层处理后的表面质量,确保其符合施工要求。
验收合格后方可进行下道工序。
三、防水层施工3.1 施工前准备确保基层验收合格,并做好防水层施工前的准备工作。
准备好施工所需工具和设备,如卷材铺设机、热焊机、压辊等。
3.2 防水层铺设按照设计要求铺设TPO柔性防水材料,确保铺设平整、无气泡、无褶皱。
使用热焊机对卷材进行焊接,保证焊缝牢固、密封。
3.3 质量检查对防水层进行全面检查,确保无漏焊、无破损、无漏水等现象。
四、保护层施工4.1 保护层材料选择根据设计要求选择合适的保护层材料,如水泥砂浆、细石混凝土等。
4.2 保护层施工在防水层上按照设计要求施工保护层,确保保护层与防水层紧密结合。
保护层施工应确保表面平整、无裂缝、无空鼓。
五、质量检测与验收5.1 质量检测对防水层和保护层进行全面质量检测,确保施工质量符合要求。
进行必要的非破坏性试验,如渗漏试验、拉拔试验等。
5.2 验收验收合格后方可进行下道工序或交付使用。
准备相关验收文件和记录,供日后参考。
六、安全文明施工措施6.1 安全教育对施工人员进行安全教育和培训,提高安全意识和自我保护能力。
6.2 安全设施设置明显的安全警示标志和防护设施,确保施工现场安全。
6.3 文明施工保持施工现场整洁有序,减少噪音、粉尘等对周边环境的影响。
七、施工进度与计划7.1 施工进度安排制定合理的施工进度计划,确保工程按时完成。
钢结构tpo屋面施工及方案目录一、内容概述 (2)1.1 项目背景 (3)1.2 方案目的与意义 (3)二、工程概况 (4)2.1 工程地点与规模 (5)2.2 工程结构形式 (6)2.3 施工条件与基础 (7)三、TPO 屋面系统介绍 (8)3.1 TPO 材料概述 (10)3.2 TPO 屋面设计要点 (11)3.3 TPO 屋面系统组成与功能 (12)四、施工准备 (13)4.1 材料准备 (14)4.2 施工设备选择 (15)4.3 劳动力组织 (16)五、施工工艺与方法 (17)5.1 屋面铺装施工流程 (18)5.2 关键施工技术要点 (20)六、质量控制与验收标准 (21)6.1 质量控制措施 (22)6.2 检验批划分与验收标准 (24)6.3 不良现象防治措施 (25)七、安全防护与文明施工 (26)7.1 安全防护设施设置 (27)7.2 操作人员安全培训 (28)7.3 现场文明施工管理 (29)八、应急预案与注意事项 (30)8.1 应急预案制定 (31)8.2 突发事件处理流程 (32)8.3 注意事项提示 (34)一、内容概述本“钢结构屋面施工及方案”文档旨在详细介绍钢结构屋顶铺设的施工流程、技术要求、材料选择、安全措施以及监测与维护。
文档将提供从设计、施工准备、施工工艺到质量控制和验收等全方位的信息,以确保屋面工程的顺利进行并达到预定的性能标准。
钢结构屋面施工方案的编制基于工程具体需求,考虑了防渗漏、耐久性、抗风雪、美观性等多方面因素。
本方案适用于各种工业和民用建筑的屋顶,特别是在需要快速安装、维护成本低且要求耐候性好的情况下。
文档还将详细介绍膜材的特性和屋面系统的设计原则,以及如何采用合适的钢结构支撑系统来进行屋面施工。
施工过程中,将严格遵循国家有关钢结构与屋面工程的标准和规范,确保工程的稳定性和安全性。
此外,本文档还将提供施工现场的管理和员工培训计划,以确保所有施工人员都能按照规范进行作业。
TPO施工方案
一、编制依据
1、《屋面工程质量验收规范》 GB50207-
2、《屋面工程技术规程》 GB50345-
3、《坡屋面工程技术规程》 GB50693-
4、《热塑性聚烯烃(TPO)防水卷材》 GB27789-
5、《建筑用岩棉、矿渣棉绝热制品》 GB/T19686-
6、《压型钢板、夹芯板屋面及墙体建筑构造(二)》 06J925-2
二、设计层次
本次设计为中国东方航空股份有限公司西北分公司在东航西安维修基地内投资兴建的维修机库配套项目。
屋面防水采用TPO 机械固定单层屋面系统,屋面构造由上至下分别为:➢1.5mm厚TPO防水卷材;
➢100mm岩棉保温层;
➢0.25mm PE膜隔汽层;
➢结构压型钢板基层。
三、施工机具
1)自动热空气焊接机
适用于平面TPO卷材接缝焊接。
2)无穿孔焊机
主要用于天沟部位防水层的焊接固定,经过电感焊接,将带有高分子涂层的垫片与TPO卷材热熔焊接(见后附细部节点处理:现场焊接图)。
3)手持热空气焊接机
用热空气焊接TPO卷材和泛水。
手持硅酮橡胶辊与焊接机结合使用,由压辊施加压力把受热的卷材表面熔合在一起。
当修理接缝时或者在当使用自动热空气焊接机不合适时(如在细部节点部位或在大坡度表面上),一般使用手持焊接机。
4)硅酮辊
20mm和40mm宽两种硅酮辊,用来滚压热空气焊接接缝。
5)电动螺丝刀
功率大于600W的电动螺丝刀(用于自攻螺钉机械固定)6)检测设备
焊缝钩针:用于检测TPO卷材接缝处的焊接效果;
真空侧漏罩:用于检测TPO卷材T型接头的焊接效果;
四、屋面紧固件布置
屋面周边和角部区域风荷载较大,紧固件需加密布置,能够采取以下方法进行加密:
加密区示意图如下:
加密方式示意图:
五、工艺流程
前期准备→基层处理→铺贴隔汽层→机械固定保温层→机械固定卷材→热熔焊接卷材→细部节点处理→竣工验收
5.1、前期准备
1)材料准备
施工前应将卷材及系统配套材料准备齐全;并检验质量是否符合相关标准。
密封膏、清洗剂应存放在阴凉、干燥的库房,并配备足够的消防器材,避免阳光暴晒。
不要破坏TPO卷材原始包装,并贮存在阴凉处,并加以覆盖。
保温板应堆放在仓库内的平整干燥场地上,应保存于地势较高处,并用防水透气的帆布遮盖,避免雨淋及雨水浸泡。
2)施工机具准备
施工前应准备齐全必要的施工机具,确保施工机具完好。
3)技术准备
施工项目部在施工前应根据施工现场实际情况,与业主、设计、总包等相关单位协商节点做法,并取得相关单位确认。
4)天气条件
施工应在良好的气候条件下进行,不应在雨、霜和五级及其以上大风天气下施工。
5.2、基层处理
施工前,东方雨虹施工项目部应对基层进行验收,以确保基层符合铺设TPO卷材的要求。
铺设TPO 卷材屋面系统的压型钢板,必须与主体结构有可靠的连接,能够承受屋面风揭荷载的作用。
压型钢板间的连接要平顺、连续,不得有任何尖锐突出物,以免刺穿、割伤隔汽层及卷材,压型钢板屋面节点做法符合设计及相关国家规范的要求。
在铺放卷材以前,清除基层上的碎屑和异物。
5.3、铺贴隔汽层
在经验收合格的基层上铺设PE膜隔汽层,注意铺设时保持顺直。
相邻PE膜搭接10cm,搭接缝采用10×1mm丁基胶带粘结并压实,确保隔绝室内空气,避免室内水汽进入保温层。
5.4、机械固定保温层
保温板应采用机械固定安装,本工程采用双层保温板,上下层保温板应错缝安装,避免形成通缝以影响保温效果。
保温板铺
设过程中注意搭接紧密、平整,保温板安装与后续卷材施工应同步进行,防止沾水受潮。
保温板的固定位置应严格按下图确定:
注:适用于0.6m×1.2m保温板,当保温板固定件位置与卷材固定件重合时,取消保温板固定件,优先保证卷材固定件的位置。
螺钉必须保证锚固在压型钢板波峰位置,螺钉紧固过程中,应始终确保螺钉与压型钢板垂直,紧固程度应适宜,紧固过足或不足均严重地影响屋面体系的抗风揭能力。
对于较松软的保温层,适宜的紧固能够看见垫片周围轻微的压缩变形,应确保垫片不使保温板表面出现裂缝,固定螺钉应穿透压型钢板,至少露出压型钢板20mm。
5.5、卷材的铺设及固定
首幅卷材进行放线,施工时首先要进行卷材预铺,采用压型钢板基层时卷材的铺设方向应与压型钢板波纹方向垂直,把自然疏松的卷材按轮廓布置在基层上,平整顺直,不得扭曲,卷材长边搭接宽度为120mm,卷材短边搭接70~80mm,根据前述风荷载计算结果及钢板板型确定紧固件实际间距,安装时注意固定件应确保顺直,螺钉距离卷材边缘的距离为30mm,误差不超过。