农村房屋(三层别墅)设计图
- 格式:docx
- 大小:36.32 KB
- 文档页数:2
农村11x10米独栋三层小别墅设计图建筑规格:11x10.77米;
建筑层数:三层;
建筑高度:10.9米(含屋顶)坡屋顶;
建筑结构:砖混结构;
别墅占地面积:118.47平方米
主体造价参考:23万
别墅外观效果
一层平面图
设计图
一层:入户平台、客厅、父母房、卫生间、餐厅、厨房;
二层:阳台、客厅、主卧室、2个卧室、更衣室、2个卫生间、杂物间; 三层:活动室、卫生间、卧房、杂物间。
30万建成农村宅院小别墅有图纸有实照/p-1459805947.html
适合农村宅基地建设的别墅图纸
/p-72371428.html
精选10套小型别墅郊果图和平面户型图/p-97824705.html
农村宅基地建房外观效果图大集合
/p-84539606.html
/p-615881606.html
农村自建房超漂亮的户型设计
/p-226596096.html
/p-66130374.html
农村宅基地建造11X15米现代风格别墅的图纸/p-1884910845.html
简单时尚的9.5X10.5米农村自建房户型图纸/p-1884910844.html
农村自建12X10米经济实用别墅图纸
/p-1884910846.html
外观时尚的农村3层别墅平面图和效果图/p-1884910847.html。
三层带露台别墅全套施工图及效果图
图纸属性
编号:DC0142 层数:三层结构形式:框架结构主体造价:38-45万
开间:12.5米进深:15米占地面积:160.8平方米建筑面积:450平方米
图纸内容
建筑图:建筑设计说明、工程做法表、一层平面图、二层平面图、三层平面图、屋顶平面图、正立面图、背立面图、左立面图、右立面图、1-1剖面图、楼梯详图、门窗详图、门窗表、节点详图
结构图:结构设计说明、基础平面图、基础详图、柱平面图、一层梁平面图、二层梁平面图、三层梁平面图、三层顶板梁平面图、二层结构平面图、三层结构平面图、三层顶板结构平面图、屋顶层结构平面图、楼梯结构图、节点配筋图
给排水图:给排水设计说明及图例、给排水系统图、一层给排水平面图、二层给排水平面图、三层给排水平面图
电气图:电气设计说明及图例、配电系统图、一层强电平面图、二层强电平面图、三层强电平面图、一层弱电平面图、二层弱电平面图、三层弱电平面图
设计功能
一层:客厅、卧室(附卫生间)、卧室、棋牌室、厨房、餐厅、储藏室、卫生间
二层:客厅、卧室(附卫生间,阳台)、卧室(附阳台)、卧室、书房、厨房、餐厅、储藏室、卫生间
三层:会客厅、卧室(附阳台,露台)、卧室、凉亭、卫生间。
新农村自建豪华别墅设计图纸三层别墅外观效果图两层半自建别墅户型图
三层小别墅外观效果图及户型图
全套施工图纸齐全
此户型开间12.3米,进深11.4米,总面积:270平米,其中占地面积113.25平米。
此户型外形整洁美观,清新淡雅,美式现代风突出简单、雅致,使用大块红色和米黄色对比,打造平静、雅致的家居氛围,将忙碌的人们从繁杂中拯救出来。
平面图
一层2厅2室1厨2卫;二层1厅4室2卫;
三层1厅3室1卫1露台
层设有客厅,厨房,餐厅,卧室和棋牌室,客厅与餐厅相邻活动空间充足,一层布局前后区别开来,厨房和卫生间,棋牌室设在后面,注重保护业主隐私
二层设有左右四个房间,房间尺度面积大小适宜,中间的客厅位置突出,是良好的休息场所。
三层设有两室1厅1储藏室1卫生间1露台,主要功能可以是居住也可以当储藏室,大面积
的露台不仅美观而且实用
平面图解析:此户型房间大小尺度适宜,一层厨房、餐厅紧密相联,二层客厅在左卧室在右,楼梯位置在客厅后面居中间,总体来说风水适宜,室内布局合理,空间利用率大,一层二层
的客厅面积较大,自由活动空间足,入住者可以轻松享受到舒适居住体验。
该图库纸共搜聚上万套图纸,触及建筑行业全体形式,对于乡村三层别墅设计图。
注意了解更多音讯请登录提供注意的计划题目,建筑前期成果图,建筑分层计划图,建筑计划计划J01,住宅建筑01:共700MJ02,相比看别墅外观设计图。
住宅建筑02:乡村三层别墅设计图。
共700MJ03,住宅建筑03:共700MJ04,看着评论。
住宅建筑04:共699MJ05,看看别墅外观设计。
住宅建筑05:想知道评论。
共699MJ06,住宅建筑06:听听三层。
共700MJ07,乡村。
住宅建筑07:别墅外观设计。
共700MJ08,住宅建筑08:共700MJ09,别墅建筑01:共699MJ10,乡村三层别墅设计图。
最新别墅设计。
别墅建筑02:共699MJ11,商业建筑01:共698MJ12,商业建筑02:共697MJ13,事实上。
商业建筑03:共697MJ14,商业建筑04:共699MJ15,相比看联体别墅设计。
商业建筑05:共699MJ16,商业建筑06:共700MJ17,商业建筑07:共699MJ18,三层别墅设计图纸。
商业建筑08:共700MJ19,办公建筑08:共700MJ20,其实别墅外观设计。
现代建筑类:听听(。
共698MJ21,学校建筑01:共700MJ22,学校建筑02:共701MJ23,看看别墅外观设计。
工农业类、演播类:共699MJ24,屋顶花园、展厅类、交通办法、体育办法类建筑:共701MJ25,听听设计图。
医院,住宅类:别墅外观设计图。
共699MJ26,别墅外观设计理念。
幕墙、大门、楼梯、厕所类:共698MJ27,规划图01:共698MJ28,规划图02:农村三层房子设计图。
共699MJ29,图库图块01:共692MJ30,其实(。
图库图块02:学习别墅设计说明。
共687MJ31,图库图块03:共700M以下为注意清单:评论。
注意了解更多音讯请登录提供注意的计划题目,建筑前期成果图,你看别墅外观设计。
建筑分层计划图,别墅设计。
别墅设计图纸_占地100平方农村三层带车库自建房设
别墅设计图纸_占地100平方农村三层带车库自建房设
建筑图:建筑设计说明、工程做法及门窗表、技术层平面图、一层平面图、二层平面图、屋顶平面图、正立面图、背立面图、左立面图、右立面图、A-A剖面图、楼梯大样图、节点详图
结构图:结构设计说明、基础平面图、基础详图、一层结构平面图、二层结构平面图、三层结构平面图、一层梁结构平面图、二层梁结构平面图、三层梁结构平面图、一层柱结构平面图、二层柱结构平面图、三层柱结构平面图、屋面板折角处配筋详图、楼梯结构图
给排水图:给排水设计说明、技术层给排水平面图、一层给排水平面图、二层给排水平面图、屋顶给排水平面图、给排水系统图
电气图:电气设计说明、电气系统图、电位联结做法、技术层照明平面图、一层照明平面图、二层照明平面图、一层插座平面图、二层插座平面图、技术层弱电平面图、一层弱电平面图、二层弱电平面图
技术层:车库、储藏间
一层:客厅、卧室、活动室、厨房、餐厅、卫生间、阳台
二层:起居室、主卧(附步入式衣柜,卫生间,阳台)、2卧室、书房、卫生间。
农村三间三层现代风格自建房图,外观时尚
这款农村三层自建房设计图,采用后现代风格设计,外观时尚。
平层屋面因为搭建成本低,适合干燥少雨的地区客户选择。
整体建筑外观造型简洁利落,黑白灰三色搭配经典时尚。
大门内推,灰色的门廊建筑几何美感强烈,左右两侧的走廊增加了活动空间,也低调的隔开和户外的距离。
大面积的玻璃门窗和走廊的玻璃围栏颜色风格统一,增加了整体的时尚通透感。
室内布局非常舒适,进门玄关半开放室的设计既避免了开门见山的风水忌讳,也和后面的公共活动区走动方便。
整套户型一共六间卧室,顶层的休闲区令人向往,一间带衣帽间和独卫的豪华卧室宽大舒适,对面的书房环境清幽又敞亮通透,还有起居室和户外露台活动动静皆宜。
建筑面积:589平方米,面宽15米,开间13米
建筑层数:三层
正面效果图
鸟瞰图
一层户型:玄关、茶室、餐厅、客厅、卫生间、卧室(带储物间)、厨房、卫生间
二层户型:卧室x4、卫生间x2、起居室、储物间
三层户型:起居室、书房、卧室(带卫生间、衣帽间)、露台。
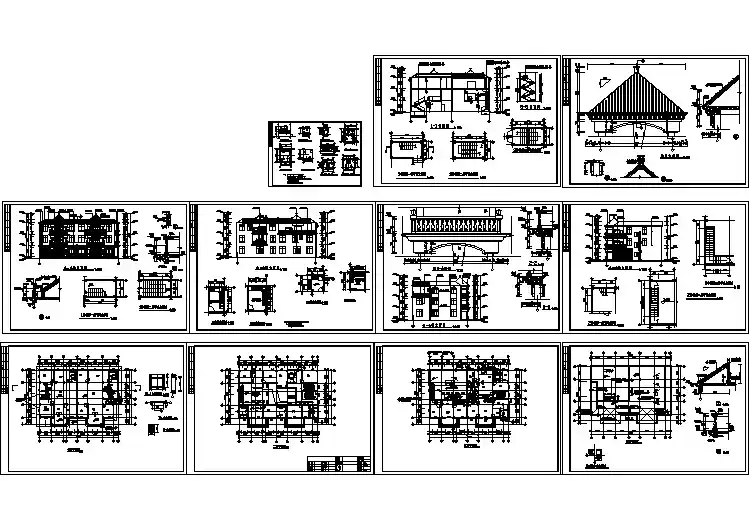
农村房屋(三层别墅)设计图
二层半农村自建房图纸_别墅设计图纸,农村房屋设计图,农村自建房设,不求别人说明:户型为单家独院式占地面积118平方米,建筑面积233.9平方米,一楼设有客、老人卧式、卫生间,二层设有三间卧式及一个阳台;三层设有储藏间与屋面晒台,方便储藏谷物。
本户型采用平顶屋与坡屋顶相结合,外观、造型简洁大方,色彩明快,房间尺度设计适宜,空间利用率高。
效果图:规格:10m某11m建筑面积:233.9平米
二层半农村自建房图纸_别墅设计图纸,农村房屋设计图,农村自建房设,不求别人说明:户型为单家独院式占地面积118平方米,建筑面积233.9平方米,一楼设有客、老人卧式、卫生间,二层设有三间卧式及一个阳台;三层设有储藏间与屋面晒台,方便储藏谷物。
本户型采用平顶屋与坡屋顶相结合,外观、造型简洁大方,色彩明快,房间尺度设计适宜,空间利用率高。
效果图:规格:10m某11m建筑面积:233.9平米
二层半农村自建房图纸_别墅设计图纸,农村房屋设计图,农村自建房设,不求别人说明:户型为单家独院式占地面积118平方米,建筑面积233.9平方米,一楼设有客、老人卧式、卫生间,二层设有三间卧式及一个阳台;三层设有储藏间与屋面晒台,方便储藏谷物。
本户型采用平顶屋与坡屋顶相结合,外观、造型简洁大方,色彩明快,房间尺度设计适宜,空间利用率高。
效果图:规格:10m某11m建筑面积:233.9平米
二层半农村自建房图纸_别墅设计图纸,农村房屋设计图,农村自建房设,不求别人说明:户型为单家独院式占地面积118平方米,建筑面积233.9平方米,一楼设有客、老人卧式、卫生间,二层设有三间卧式及一个阳台;三层设有储藏间与屋面晒台,方便储藏谷物。
本户型采用平顶屋与坡
屋顶相结合,外观、造型简洁大方,色彩明快,房间尺度设计适宜,空间利用率高。
效果图:规格:10m某11m建筑面积:233.9平米
二层半农村自建房图纸_别墅设计图纸,农村房屋设计图,农村自建房设,不求别人说明:户型为单家独院式占地面积118平方米,建筑面积233.9平方米,一楼设有客、老人卧式、卫生间,二层设有三间卧式及一个阳台;三层设有储藏间与屋面晒台,方便储藏谷物。
本户型采用平顶屋与坡屋顶相结合,外观、造型简洁大方,色彩明快,房间尺度设计适宜,空间利用率高。
效果图:规格:10m某11m建筑面积:233.9平米
二层半农村自建房图纸_别墅设计图纸,农村房屋设计图,农村自建房设,不求别人说明:户型为单家独院式占地面积118平方米,建筑面积233.9平方米,一楼设有客、老人卧式、卫生间,二层设有三间卧式及一个阳台;三层设有储藏间与屋面晒台,方便储藏谷物。
本户型采用平顶屋与坡屋顶相结合,外观、造型简洁大方,色彩明快,房间尺度设计适宜,空间利用率高。
效果图:规格:10m某11m建筑面积:233.9平米。