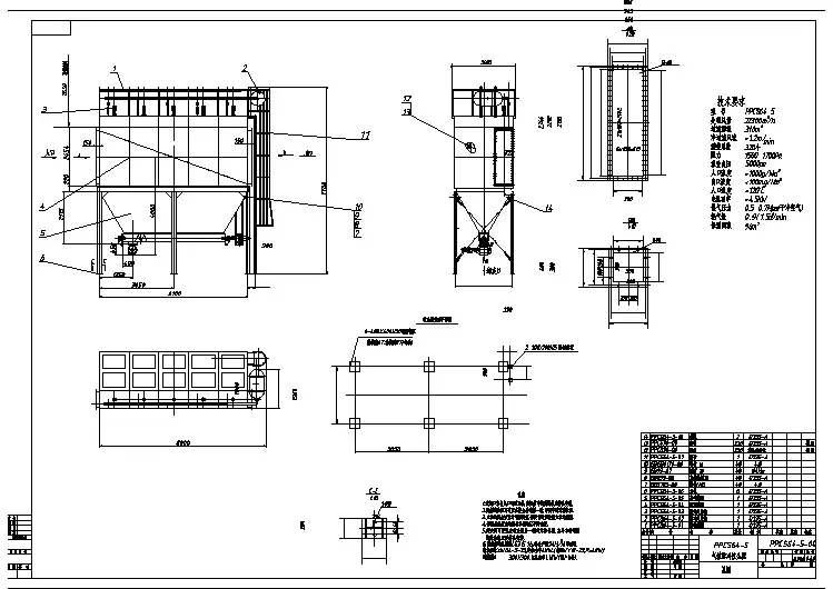
PPC(W)FMQD气箱脉冲除尘器技术参数及图纸
- 格式:ppt
- 大小:301.50 KB
- 文档页数:7
脉冲除尘器技术参数表格
脉冲除尘器是在袋式除尘器的基础上改进的新型高效脉冲除尘器,综合了分室反吹各种脉冲喷吹除尘器的优点,克服了分室清灰强度不够,进出风分布不均等缺点,扩大了应用范围。
脉冲布袋除尘器的型号种类很多,有MC-II型,PPC气箱脉冲除尘器,DMC 脉冲除尘器等常用型号,这些型号的确定是根据各行业的实际应用情况来进行确定的,广西贵港通达环保提供技术参数表参考。
MC-Ⅱ型脉冲布袋除尘器技术性能参数:
PPC气箱脉冲布袋除尘器详细技术参数:
型号
DMC-32DMC-48DMC-64DMC-80DMC-96DMC-112技术参数
处理风量
(m3/h)
1500-21002100-32002900-43004000-60005200-70006000-9000总过滤面积
(m2)
243648607284
过滤风速
(m/min)
滤袋数量(条)3248648096112
设备阻力(Pa)≤1200
入口粉尘浓度
(g/m3)
<200
出口排放浓度(mg/m3)≤50
DMC型系列单机脉冲除尘器具有设计结构简单,除尘效率高,造价低等特点。
其中,DMC-48单机脉冲除尘器规格暂时有六个规格,每种规格又可分为标准带灰斗式A型和敞开法兰式(无灰斗)B型二种。
其结构主要由过滤室、滤袋、净气室、灰斗、卸灰阀、脉冲喷吹装置、电控箱等组成,箱体全部采用焊接结构,检修门用泡沫橡胶条密封,保证除尘器严密不漏风。
PPCS气箱式脉冲袋式收尘器说明书目录一、概述 (3)二、型号说明 (3)三、构造和工作原理 (3)四、气箱式脉冲 (4)五、设备选型 (4)六、清灰电气控制装置 (5)一、概述气箱式脉冲(plenun pulse)袋收尘器是从美国(Fuller)公司引进具有九十年代先进水平的高效率袋收尘器。
它克服了分室反吹清灰强度不够,脉冲喷吹清灰和过滤同时进行的缺点。
综合了分室反吹和脉冲喷吹清灰各类袋收尘器的优点。
从而扩大了袋收尘器的应用范围,提高了收尘效率。
延长了滤袋的使用寿命。
PPCS型系列收尘器为户外式,由不同室数和每室的不同袋数,组成多种不同规格。
每室的袋数有32、64、96和128袋四种,全系列共有33种规格。
滤袋直径均为φ130mm,滤袋长度有2450mm和3060mm两种。
本系列收尘器能负压或正压操作,其本体结构无任何改变。
PPCS型系列收尘器进口浓度最高可达1000g/m³,其收尘效率可达99.9%,本系列收尘器的主要技术性能分别见下本系列收尘器可广泛应用于冶金、矿山、电力、建材、机械制造、粮食加工、化工、锅炉等行业。
采用本系列收尘器,可不设置旋风除尘器作一级收尘。
本系列收尘器的滤材,一般采用涤纶针刺毡,允许连续使用温度小于120ºC,如处理的废气温度高于上述滤料允许温度,可采用芳纶针刺毡(Nomex)。
其允许使用温度为210ºC,但这种材质的滤料价格昂贵。
如处理废气温度高于上述滤料的允许温度,应在废气进入收尘器之前采取降温措施。
二、型号说明举例:PPCS96-2×5型,表示双列十室,每室96个袋的气箱式脉冲袋收尘器,排灰装置为螺旋输送机。
三、构造和工作原理PPCS型系列收尘器由壳体、灰斗、排灰装置、脉冲清灰系统和支架等部分组成。
当含尘气体从进风口进入收尘器后,首先碰到进出风口中间的斜隔板,气流便转向流入随后折而向上通过内部装有金属骨架的滤袋,粉尘被捕集在滤袋的外表面,净化后的气体进入滤袋室上部清洁室,汇集到出风管排出。
产品名称:DFC脉冲袋式除尘器产品类型:袋式除尘器产品说明DFC系列脉冲袋式除尘器本系列反吹风袋式除尘器是采用反吹风作为清灰动力,在离线切换阀的配合下,逐室喷入每条滤袋,使滤袋由正常过滤的“膨胀”状态,转变为“缩瘪”状态,从而抖落滤袋表面的粉尘。
该系列除尘器多采用5-10米的大布袋,多用于处理风量大,占地面积要求较小,烟尘、粉尘相对易于从滤袋表面剥离的除尘场所。
广泛应用于冶金、矿山、化工、机械、建材、水泥、耐火材料、电力、粮食加工、医药、铸造及工业锅炉等行业的含尘气体净化。
一、工作原理袋式除尘器的过滤机理是一个综合效应的结果,如重力、惯性力、碰撞、静电吸附、筛滤作用等。
当含烟尘、粉尘气体经进气口进入除尘器,较大的粉尘颗粒因截面积的增大,风速下降,而直接沉降;较小的烟尘、粉尘颗粒被滤袋阻留在滤袋表面。
经过滤袋的净化气体,经出气口,由引风机排出。
随着过滤的不断进行,滤袋表面的烟尘、粉尘越积越多,滤袋阻力不断升高,当设备阻力达到一定的限值时,滤袋表面积聚的烟尘、粉尘需及时清除;在外力(主要是脉冲压缩气体、反吹风气体、机械振打等)的作用下,抖动和反吹滤袋,将附着在滤袋表面的烟尘、粉尘清除,使滤袋再生,周而复始,实现连续过滤,以保证设备连续稳定运行。
二、特点1、过滤风速一般为0.5-1m/min,滤袋使用寿命较长。
2、尘器采用5-10米的大长袋,使单位过滤面积所需的占地面积较小。
3、适于大流量烟尘、粉尘处理。
4、设备故障率低;操作、维护简单容易,费用低。
5、分室停风逆气流三状态清灰,清灰效果好;四、除尘器的选用1、过滤风速的选定:过滤风速是指通过滤料的风速(m/min),也称气布比。
过滤风速的选取需按照过滤介质的特性、温度、湿度、粉尘浓度、清灰方式及滤料性质等多方面的因素综合考虑。
过滤风速不仅决定了除尘器的大小,而且对通过滤料的阻力、除尘效率、清灰效率等有很大的影响。
一般袋式除尘器的过滤风速取值范围在0.5-2.5m/min之间。
PPC气箱袋式除尘器
PPC气箱式脉冲除尘器是采用分箱式清灰的,清灰时,逐箱隔离、轮换进行。
各除尘室的脉冲喷吹宽度和清灰周期,由清灰程序控制器自动连续进行,从而保证了压缩空气清灰的效果,整个箱体设计利用了进口和出口总管结构,灰斗可延伸到进口总管下。
使进入的含尘烟气直接进入已扩大的灰斗内达到预收的效果,且能去掉易出现堵塞的水平直管。
所以,气箱布袋除尘器不仅能处理一般浓度的含尘气体,且能处理达1300mg/m3n的高浓度含尘气体。
PPC气箱式脉冲除尘器集合分室风机反吹和喷吹脉冲等诸类除尘器的优点,克服了分室反吹时动能强度不够的缺点,因而扩大了袋除尘器的使用范围,提高了除尘效率,延长了滤袋使用寿命。
它不仅能净化一般的含尘气体,还能处理入口浓度达1300/m3n的高浓度气体,成为与O-Sepa类选粉机、立式磨配套的成品回收设备。
在国家新的环保标准下(排放浓度,热力设备<100mg/m3n,通风设备<50mg/m3n),不仅广泛用于水泥行业,在电力、化工、冶金、钢铁行业也被广泛采用。
PPC气箱式脉冲除尘器技术参数:
相关产品。
PPC系列气箱脉冲袋式除尘器使用说明书驻马店市龙山通用机械有限公司目录一、概述 (1)二、型号说明 (1)三、基本结构及工作原理 (2)四、选用说明 (6)五、安装与调试 (7)六、使用维护要求 (8)七、订货须知 (9)八、PPC系列气箱脉冲袋式除尘器规格性能表 (10)九、PPC气箱脉冲袋式除尘器外形图 (13)PPC系列气箱脉冲袋式收尘器说明书一、概述PPC系列气箱脉冲袋式除尘器(Plenum-Pulse)是在引进美国富乐公司(Fuller.Co)高效除尘器技术的基础上,我公司结合众多使用厂家的实际情况研制开发的新一代除尘器。
它集分室反吹和喷吹脉冲等除尘器的优点,克服了分室反吹时动能强度不够和喷吹脉冲清灰过滤同时进行的缺点,因而增强了使用适应性,提高了除尘效率,延长了滤袋使用寿命。
本系列产品不仅可作为破碎机、烘干机、煤磨、生料磨、篦冷机、水泥磨、包装机及各库顶、底的除尘设备,而且可直接作为高浓度生料立式磨(500g/Nm3)、O-sepa选粉机(1000g/Nm3)的工艺除尘,并能确保出口排放浓度小于30mg/Nm3。
用在煤磨收尘时,收尘器要增设防燃防爆措施,并且其本体结构也要做相应的改变。
滤料依据粉尘的特性可选用不同类型的针刺毡,使用寿命平均可达二年以上。
滤袋上口不设文氏管,也没有喷吹管,降低了工作阻力,使检修、维护都相当简便。
电磁脉冲阀数量为每室1-2个,规格有1.5英寸、2英寸、2.5英寸三种,收尘器实际配置的脉冲阀的数量和规格根据收尘器的规格和烟气特性不同而不同。
脉冲阀全部采用美国ASCO(ASCO·Co)产品。
与国内同类产品相比,它采用双膜片结构,具有控制灵敏、效率高、寿命长等特点。
目前,这种形式的袋除尘器已被广泛选用,尤其在水泥、电力、冶金、化工等行业得到了迅速的推广。
二、型号说明气箱脉冲袋除尘器,其产品型号用大写英文字母PPC表示,产品分32、64、96、128四个系列,其数字分别表示每室的滤袋数,每一系列又按室数分成若干规格,96、128二个系列又分为单列和双列二种形式。
PPW系列气箱脉冲袋收尘器一、概述气箱脉冲袋收尘器(Plenum—Pulse)是我院引进美国富乐(Fuller)公司技术基础上,吸收德国除尘器技术优点,结合我国实际国情研制开发的具有八十年代技术水平的高效袋收尘器。
此系列袋收尘器,集合分室风机反吹和喷吹脉冲等诸类收尘器的优点,克服了分室反吹时动能强度不够的缺点,因而扩大了袋收尘器的使用范围,提高了袋收尘效率,延长了滤袋使用寿命。
它不仅能净化一般含尘气体,还能处理入口浓度达1300g/Nm3的高浓度气体,成为与O—Sepa 类选粉机、立式磨配套的成品回收设备。
在国家新的环保标准下(排放浓度,热力设备<100mg/Nm3,通风设备<50mg/Nm3),不仅广泛用于水泥行业,在电力、化工、冶金、钢铁行业也被广泛采用。
二、工作原理气箱脉冲袋收尘器本体分隔成数个箱区,每箱有32、64、96、128等条袋子。
并在每箱侧边出口管道上有一个气缸带动的提升阀。
当收尘器过滤含尘气体一定时间后(或阻力达到预先设定值),清灰控制器就发出信号。
第一个箱室的提升阀就开始关闭以切断过滤气流。
然后这个箱的脉冲阀开启,以大于5kg/cm2的压缩空气冲入净气室,清除滤袋上的粉尘。
当这个动作完成后(大约6~15秒时间),提升阀重新打开,使这个箱室重新进行过滤工作,并逐一按上述要求进行以至全部清灰完毕。
气箱式脉冲袋收尘器,是采用分箱清灰的,清灰时,各箱隔离、轮换进行。
各除尘室的脉冲宽度和清灰周期,由清灰程序控制器自动连续进行,从而保证了压缩空气清灰的效果,整个箱体设计利用了进口和出口总管结构,灰斗可延伸到进口总管下。
使进入的含尘烟气直接进入已扩大的灰斗内达到预收尘的效果,且能去掉易出现堵塞的水平直管。
所以,气箱脉冲袋收尘器不仅能处理一般浓度的含尘气体,且能处理达1300g/Nm3的高浓度含尘气体。
该收尘器,由于采用整箱大脉冲阀2寸半(英寸)反吹喷射清灰,换袋时,打开顶部盖子,直接抽出滤袋即可,维护简单、方便。
气箱脉冲袋式除尘器的详细介绍标签:气箱脉冲袋式除尘器气箱脉冲袋式除尘器最早是从美国富乐公司引进的一种高效脉冲除尘器,我公司结合多年的实践经验,改型后的除尘器具有结构简单、易操作、清灰效果好、运行费用低等优点。
可以广泛应用于水泥厂、化工厂、粮食加工、破碎机和磨机等收尘系统。
气箱脉冲袋式除尘器是具有九十年代先进水平的高效率袋式收尘器。
它综合分室反吹和喷吹脉冲清灰各类袋式收尘器优点,克服了分室反吹清灰强度不够,喷吹脉冲清灰和过滤同时进行的缺点,因而扩大了本收尘器的应用范围,由于这种类型的除尘器结构特点,所以提高了收尘效率,延长了滤袋的使用寿命。
本系列产品广泛用于水泥厂的破碎包装库顶熟料冷却机磨机等系统的收尘,冶金、化工、食品、粮食、电力和民用锅炉等废气的收尘和物料的回收。
本收尘器的滤料材质,使用温度小于℃,一般选用涤纶针刺毡,若温度达℃,则选用芳纶针刺毡。
但此滤料价格昂贵。
如温度过高应采取降温措施。
本系列收尘器为户外式有不同室数和每室不同袋数组成种规格。
每室有、、、袋四种。
收尘室个数由个,过滤面积由,处理风量由。
本除尘器可负压或正压操作,其收尘效率可达。
若室外温度小于—℃时,需加保温装置。
气箱脉冲袋式除尘器技术参数参数处理风量() 过滤风速() 过滤面积()滤袋数(个) 阻力() 含尘浓度() 保温层面积() 重量()型号<<×××××××××××××××浏览更多关于型系列旁插侧喷脉冲扁布袋除尘组型微振屏闭式机械回转除尘器旋风除尘器()Ⅱ型环隙吹脉冲袋式除尘器多接头骨架系列电除尘器旋风除尘器及配件静电除尘器的内容版权申明本文部分内容,包括文字、图片、以及设计等在网上搜集整理。
版权为个人所有, , , . .用户可将本文的内容或服务用于个人学习、研究或欣赏,以及其他非商业性或非盈利性用途,但同时应遵守著作权法及其他相关法律的规定,不得侵犯本网站及相关权利人的合法权利。
PPC128-8气箱式脉冲袋式收尘器使用说明书环保科技有限公司2014年06月引进美国富乐公司技术PPCAS系列气箱脉冲袋收尘器用户手册目录一、概述二、性能特点及选用说明三、基本结构及工作原理四、安装与调试五、保温六、维护、检修七、性能及可靠性测试方案一、概述富乐公司(FULLER)是美国一家从事研究、设计、生产建材成套设备的专业化大型国际公司,该公司从事袋收尘器的设计和制作已有六十多年历史,尤其在水泥工业收尘技术方面有相当丰富的经验,是该公司首先将大型布袋收尘器用于水泥回转窑和篦式冷却机的收尘并获得成功和推广。
富乐袋收尘技术的特点是:技术先进、性能优良、品种多、规格全,完全能满足我国水泥、电力、冶金、化工等行业各种工业粉尘的治理需要。
我厂引进的富乐袋收尘技术有以下品种:上述每一品种,均有各种规格供用户选用。
二、性能特点及选用说明:气箱脉冲袋式收尘器是美国富乐公司具有八十年代技术水平的高效收尘器,它集分室反吹和喷吹脉冲等收尘器的优点,克服了分室反吹时动能强度不够和喷吹脉冲清灰过滤同时进行的缺点,因而增强了使用适应性,提高了收尘效率,延长了滤袋使用寿命,不仅可作为破碎机、烘干机、煤磨、生料磨、篦冷机、水泥磨、包装机及各库顶底的收尘设备,而且可直接作为高出口浓度的立式磨(700g/m3)、O-sepa选粉机(1300g/m3标)的工艺收尘,并保证出口排放浓度小于100mg/m3(标)。
滤料采用涤纶针刺毡,使用寿命平均可达二年以上,耐温120℃,若采用Nomex滤料,耐温可达220℃。
滤袋上口不设文氏管,也没有喷吹管,降低了工作阻力,使检修、维护都相当简便。
电磁脉冲阀数量为每室1—2个,规格有11/2英寸和21/2英寸二种,是按美国产品进行研制而成,与国内同类产品相比,它采用双膜片结构,具有控制灵敏、效率高、寿命长等特点,同时我厂还备有直接从国外进口的电磁脉冲阀供用户选择。
目前,这种型式的袋收尘器已被广泛选用,尤其在水泥行业得到了迅速的推广。
PP系列气箱脉冲袋除尘器一、概述气箱脉冲袋除尘器是从美国富乐(Fuller)公司引进的高效袋除尘器,它综合了分室反吹和脉冲喷吹等袋式除尘器的优点,克服了分室反吹清灰强度不足,喷脉冲清灰和过滤同时进行的缺点,因而扩大了袋除尘器的应用范围,由于这种类型的除尘器在结构上有其独特之处,所以提高了效率,延长了关键部件的使用寿命。
气箱脉冲袋式除尘器可广泛用于水泥厂的破碎、包装、库顶、熟料冷却机和各种磨机等工艺设备后的除尘。
如对除尘器的结构的作局部的调整,增设防燃防爆措施,除尘器也可用于爆炸性粉尘捕集,如煤粉、面粉、木屑和具爆炸性的金属,非金属化合物等。
同时由于其自身的结构特点,它还可以直接用于处理1000g/Nm3的高含尘浓度气体,如处理O-Sepa选粉机或立式磨粉系统含尘气体时无需一级预除尘。
目前除在水泥工业得到广泛应用外,在冶金钢铁、化工、机械、粮食、电力等行业了已充分运用。
得到了良好的社会环境效益。
二、构造和工作原理气箱脉冲系列袋式除尘器结构上为户外型设计,分为数个箱区,由不同的室数和每室不同的袋数组成多种不同规格。
每袋数有32、64、96、128四种,全系列有几十种规格。
针对部分特别工况的需要,在标准高计的基础上我公司还可以为适应特别工况提供非标设计。
本系列除尘器由壳体、灰斗、排灰装置、支架和脉冲清灰系统等部他组成。
当含尘气体从进风口进入除尘器后,首先碰到进出风口中部的斜隔板,气流便转缶流入灰斗,同时气流速度变慢,由于惯性作用,使气体中粗颗粒粉尘直接落入灰斗,起到预收尘的作用。
进入灰斗的气流随后折而向上通过滤袋,粉尘被捕集在滤袋的外表面,净化后的气体进入箱体上部的清洁室,最后汇集到出风管排出。
PPS32型除尘器的进风口设在灰斗上,气流进入灰斗后首先碰在进风管端部的挡板,其作用与上述原理相同。
壳体用隔板分成若干个独立的箱室,当除尘器运行阻力达到预先设定值时(一般为1500Pa),清灰程序控制器发出指令,除尘器就按照预定的时间间隔对每室轮流进行清灰。
PPC系列气箱脉冲袋收尘器性能参数表
说明:1、表中处理风量仅列到300000 M3/H,如需300000 M3/H以上处理风量的收尘器,可以与我公司技术部联系。
2、敬告客户由于产品更新换代可能发生产品的外形及产品的技术指标升级,恕不一一通告。
详情望与我公司技术部保持联系,
有利于您的选型及性价比。
2、敬告客户由于产品更新换代可能发生产品的外形及产品的技术指标升级,恕不一一通告。
详情望与我公司技术部保持联系,
有利于您的选型及性价比。
2、敬告客户由于产品更新换代可能发生产品的外形及产品的技术指标升级,恕不一一通告。
详情望与我公司技术部保持联系,
有利于您的选型及性价比。
脉冲除尘器工作原理及选型设计(附图)一、脉冲除尘器简介脉冲除尘器,是以压缩空气为清灰动力,利用脉冲喷吹机构在瞬间放出压缩空气,诱导数倍的二次空气高速摄入滤袋,使滤袋急剧膨胀,依靠冲击振动和反向气流而清灰的除尘器。
脉冲式除尘器是一种高效除尘净化设备,采用脉冲喷吹的清灰方式,具有清灰效果好、净化效率高、处理气量大、滤袋寿命长、维修工作量小、运行安全可靠等优点;但需要压缩空气,而且当供给的压缩空气压力不能满足要求时,请回效果会大大降低。
由于脉冲袋式除尘器优点突出,所以,它的应用越来越广泛。
脉冲除尘气具有多种形式,如逆喷、顺喷、对喷、旋转喷吹等。
吹气源压为低于0.25MPa 者成为低压喷吹;吹气源压为高于0. 5MPa者成为高压喷吹。
二、脉冲除尘器工作原理图以脉冲袋式除尘器为例,工作原理如下图所示。
脉冲阀一端接压缩空气包,另一端接喷吹管,脉冲阀背压室接控制阀,脉冲控制仪控制着控制阀及脉冲阀开启。
当控制仪无信号输出时,控制阀的排气口被关闭,脉冲阀喷口处关闭状态;当控制仪发出信号时控制排气口被打开,脉冲阀背压室外的气体泄掉压力降低,膜片两面产生压差,膜片因压差作用而产生位移,脉冲阀喷吹打开,此时压缩空气从气包通过脉冲阀经喷吹管小孔喷出(从喷吹管喷出的气体为一次风)。
当高速气流通过文氏管诱导器诱导了数倍于一次风的周围空气(称为二次风)进入滤袋,造成滤袋内瞬时正压,实现清灰。
了解脉冲除尘器的基础知识,是设计或正确选型的基础。
并且,根据我们过去积累的经验,我们还对脉冲除尘器清灰装置的选型理论做了如下论述。
三、脉冲除尘器清灰装置的选型设计脉冲除尘器清灰装置由脉冲阀、喷吹管、贮气包、导流器和控制仪等几部分组成。
其设计选型主要包括气源气包设计、喷吹管设计和电磁脉冲阀选型3大项。
1.气源气包设计气源气包又称分气箱,简称气包,它对袋式除尘器脉冲清灰系统而言,起定压作用。
原则上讲,如果气包本体就是压缩气稳压罐,其容积越大越好,对于脉冲喷吹清灰效果越好。
PPW系列气箱式布袋除尘器选型手册山西紫光聚环保科技有限公司PPW系列气箱式布袋除尘器一、概述气箱脉冲袋式除尘器的主要设计特点是在滤袋上口不设文氏管,也没有喷吹管,而是用脉冲阀直接往净气室喷压缩空气进而向滤袋清灰。
这样既降低喷吹工作阻力,又便于逐室进行检测、换袋。
阀数量为每室1-2个,规格为2-3in。
该机集分室反吹和脉冲喷吹等特点,增强了使用适用性。
可作为破碎机、烘干机、煤磨机、生料磨、水泥磨、包装机及各库顶除尘设备,也可作为其他行业设备。
二、结构主体由箱体、袋室、灰斗、进风口和出风口四大部分组成,并配有支柱、楼梯、栏杆、压气管路系统、清灰控制机构等。
(1)箱体。
箱体主要是固定骨架、布袋及气路元件之用,并制成全密闭形式,清灰时,压缩空气管先进入箱体,不再入各滤袋内部。
顶部设有人孔检修门,安装和更换骨架,滤袋全部在这里进行,十分方便,根据规格的不同,箱体内又分成若干个室,相互之间均用钢板隔开,互不透气,以实现离线清灰。
每个室内均设有一个提升阀,以切换过滤气流。
(2)袋室。
袋室在箱体的下部,主要用来容骨架和滤袋,且形成一个过滤空间,含尘气体的净化主要在这里进行,同箱体一样,根据规格的不同也分成若干个室,并用隔板隔开,以防在清灰时各室之间的互相干扰,同时形成一定的滑降空间。
(3)灰斗。
灰斗布置在袋室的下部,它除了存放收集下来的粉尘以外,还作为下进气总管使用,当含尘气体进入袋室前先进入灰斗,由于灰斗内容积较大,使得气流速度降低,加之气流方向的改变,使得较粗的尘粒在这里就得到分离,灰斗下部布置有粉尘输送设备,出口还有翻板阀等锁风设备,可边续进行排灰。
(4)进出风口。
进出风口根据除尘器的结构形式分为两种,一是进风口为圆筒形,直接焊在灰斗的侧板上,出风口安排在箱体下部,通袋室侧面,通过提升阀板孔与箱体内部相通。
二是进出风口制成一体,安排在袋室侧面、箱体和灰斗之间中间用斜隔板隔成互不透气的两部分,分别为进风口和出风口,这种结构形式体积虽大些,但气流分布均匀,灰斗内预除尘效果好,适合于气体含尘浓度较大的场合使用。