污水处理控制电路原理图
- 格式:doc
- 大小:105.50 KB
- 文档页数:5
电气控制设计——某污水处理控制系统设计专业:电气工程及其自动化班级:学号:姓名:指导教师:完成日期:目录1.1 研究目的和意义 (3)1.2 课题主要设计的内容 (4)2. 1信号输入 (4)2. 2控制输出信号 (5)3.1主要组成部分 (6)3.2电气控制系统 (6)3.3工业污水处理系统的工作原理 (6)3.3.1控制系统总体框图 (6)3.3.2工作过程 (7)3.3.3工业污水处理系统主电路设计 (8)3.4 PLC选型 (10)3.5 PLC的I/O资源配置 (10)3.5.1数字量输入部分 (10)3.5.2数字量输出部分 (11)3.5.3模拟量输入部分 (12)3.5.4 模拟量输出部分 (12)4.1总体流程设计 (13)4.1.1手动模式 (14)4.1.2自动模式 (14)参考文献 (20)附录Ⅰ控制程序 (21)附录Ⅱ部分主电路图 (23)附录Ⅲ硬件接线图 (24)绪论1.1 研究目的和意义1号磁滤器的滤水工艺流程见图。
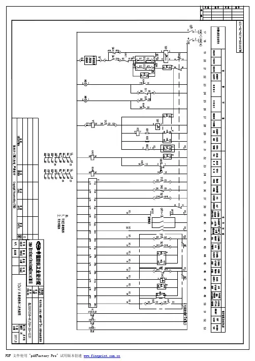
1号磁滤器的I/O分配表见图(以三菱系列PLC为例)。
2号和3号磁滤器的I/()分配表与1号相同,只是将输入地址编号X0~X5改为X400~X405和X500~X505,将输出地址编号Y30~Y35改为Y430 ~Y435和Y530~Y535。
按下启动按钮AN1,使X0接通。
“电源信号”是输出端“电源通断”Y30的反馈信号,当PLC的Y30正常接通,则接入电源通路中的控制接点导通,使Xl接通,滤水工艺顺利运行下去。
同理,“进水阀信号”是输出端“进水阀通断”接通时的反馈信号。
这种控制方式提高系统的可靠性,若有某个输出信号不正常,就会立刻停止滤水工序。
本系统要求:三台或二台滤水器应能各自按滤水工艺流程并行工作;反洗时,只能单台工作,其他需反洗者必须等待;在滤水时,只要出现“管压差高”的信号,则立即停止滤水工序,自动进入反洗工序。
1.2 课题主要设计的内容本课题主要设计的内容是工业污水处理工艺及工业污水处理系统的组成和PLC控制系统设计,主要由以下内容组成:(1)介绍了工业污水处理的基本内容,包括工业污水处理的发展现状以及工业污水处理的工艺流程;(2)介绍了PLC的基本结构和工作原理,并对工业污水处理控制系统进行设计分析;(3)具体分析设计工业污水处理的硬件系统;(4)具体分析设计工业污水处理的软件系2. 1信号输入工业污水处理系统信号输入检测方面主要涉及四类信号的监测,主要包括:按钮的输入检测、液位差的输入检测、液位高低的输入检测,以及曝气池中含氧量的输入检测。
自动控制流程图标准化文件发布号:(9312-EUATWW-MWUB-WUNN-INNUL-DQQTY-PLC为核心控制器,通过检测操作面板按钮的输入、各类传感器的输入,以及相关模拟量的输入,完成相关设备的运行、停止和调速控制。
3-2电气控制系统框图工作过程控制过程可以分为单设备手动控制功能和自动运行功能。
在手动控制模式下,单设备可以单独运行,不影响其他设备运行。
如图4-1所示。
图4-1模式选择流程图手动模式在就地箱手动模式下,可单独调试每个设备的运行,如图4-2所示。
在此模式下,可以通过按钮对加氯系统、电动阀门、曝气机、刮泥机,以及各类泵进行控制。
图4-2手动操作模式流程图自动模式处于自动方式时,系统上电后,按下自动启动确认后系统运行,系统开始工作,其工作过程包括以下几个方面。
PLC检测到传感器状态进行启动如图4-3所示。
图4-3 自动操作模式流程图2自动控制流程在自动控制模式流程图中,调用了各个控制系统的程序,主要包括提升泵、潜水泵程序、加药系统程序、曝气沉砂系统程序、污泥回流泵系统程序。
以及污泥脱水系统程序,以下将分别介绍各个子程序的工作过程。
1提升泵控制流程图2潜水泵程序主要控制潜水泵的运行和停止,其工作过程包括以下几个方面:(1)自动过程开始启动潜水泵。
(2)检测液面高度,低于最低位传感器时,开始定时防止误判。
(3)定时到后,若仍低于最低位传感器,则停止潜水泵运行,否则潜水泵继续运行。
(4)检测液面处于中位和高位传感器之间时,开始定时防止误判。
(5)定时到后,若液面仍持续处于高位传感器,则输出报警信号。
潜水泵工作流程图如图4-5所示。
图4-5潜水泵工作流程图3曝气沉砂系统工作流程图如图4-7所示。
4-7曝气沉砂系统工作流程图4污泥回流系统程序主要控制污泥回流泵的运行和停止,其工作过程包括以下几个方面。
(1)自动过程开始首先检测液面高低,若低于最低位传感器,启动定时。
(2)定时到,若液面仍低于最低位传感器则停止回流泵运行。
污水处理工艺流程图如下图
污水由进水系统通过粗格栅和清污机进行初步排除大块杂质物体,到达除砂池中。
在除砂池系统中细格栅和转鼓清污机进一步净化污水中的细小颗粒物体,将污水中的细小沙粒滤除后进入氧化沟反应池。
在该氧化沟系统中进行生化处理,分解污水中的有害物质,此环节用到一些化学药剂来加强处理效果,如复合碱、氯气、油絮凝剂等。
对污水进行除油、消毒、调整PH值。
同时在该系统中设置有溶解氧仪超声波检测器,通过它对污水中的含氧量进行检测,根据其反馈到PLC的值来控制曝气机变频器的运行,改变污水中溶解氧的含量。
潜水搅拌机的作用是推进水流,使氧化沟的污水和活性污泥处于剧烈搅拌充分混合接触,使生化反应更加充分,以最大程度地分解污水中的有害成分。
经处理的污水进入沉淀池中,在刮泥机的作用下进行物理沉淀,为了加强沉淀效果,同时加入混凝剂和絮凝剂利用高分子助凝剂的强烈吸附架桥作用更加容易沉降。
污水经沉淀池处理最后到达脱
水环节,离心式脱水机作用下进行脱水处理后排出清水
PLC为核心控制器,通过检测操作面板按钮的输入、各类传感器的输入,以及相关模拟量的输入,完成相关设备的运行、停止和调速控制。
数据通讯网络将泵站的运行数据与厂站数据中心进行实时数据交换
PLC的监控部分
水泵的监控系统
PLC控制电路图
污水处理系统部分主电路图L11。