电动执行器接线图
- 格式:doc
- 大小:373.50 KB
- 文档页数:4
ROTORK执行器接线图-图号
基本的 ROTORK 罗托克 IQ系列执行器接线图3000-000和IQT系列执行器6000-000,包括就地控制和指示、远程开阀/停止/关阀、紧急保护远程控制、联锁和4个可组态指示触点。
*CTT不能与模拟量控制—Folomatic合用。
**120V AC执行器内部远程控制电源不是用于IQD和IQT 24V 供电执行器。
补充:ROTORK执行器接线图的使用
1. 从执行器铭牌上查看执行器接线图图号,即WIRING DIAGRAM项。
2. 根据上图图号,即可了解执行器内部参数。
3. 根据图号查找接线图,即可了解执行器内部配置。
下面为常见型号接线图
图号:3000-000 接线图:图号:3010-100 接线图:图号:5010-100 接线图:
图号:6010-100 接线图:图号:6000-000 接线图:图号:3010-000 接线图:图号:3000-700 接线图:。
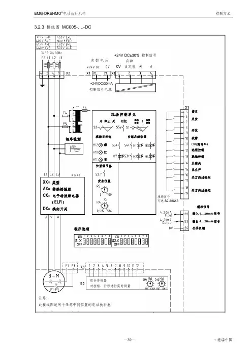
电动执行器操作维护余热发电目前用的电动执行器主要有两种:上海上仪牌智能型电动执行机构、重庆川仪M8500/M8600系列智能变频执行机构。
首先介绍一下执行机构的安装,然后分别介绍两种执行器的接线、操作及常见故障。
一、下面是接线图上仪执行器DO双驱阀接线图:(开阀/关阀点动控制)注:1、4-36跨接;2、4:内部DC24V电源-V e(零线);3、36:远程控制公共端,20V~60VDC或AC;4、5:内部DC24V电源+Ve(或内部AC120V电源)设备:14101,14131,14190,14191, 14201,14231,14290,1429113101,13191,131901,131902,13196,131903, 13201,13291,132901,132902,13296,132903, 11112,12124,12100,15141,15142,15143,15144,上仪执行器AO控制阀接线图:(模拟比例控制)注:1、4-41,5-39跨接;2、4:内部DC24V电源-V e(零线);3、36:远程控制公共端,20V~60VDC或AC;4、5:内部DC24V电源+Ve(或内部AC120V电源)设备:14151,14161,14162,14251,14261,14262,13151,13161,13162,13251,13261,13262,11114,11115,11116,11117,11121,12119,12120,12121川仪执行器DO双驱阀接线图:(开阀/关阀点动控制)13101,13191,131901,131902,13196,131903, 13201,13291,132901,132902,13296,132903, 11112,12124,12100,15141,15142,15143,15144,川仪执行器AO控制阀接线图:(模拟比例控制)13151,13161,13162,13251,13261,13262,11114,11115,11116,11117,11121,12119,12120,12121二、操作要领:上仪和川仪执行器都是智能型的,调试相对比较简单。
一、Rotork 1.作调节型执行机构IQM型:4~41短接5~39短接26+、27-模拟信号指令22+、23-阀位反馈信号2.作开关型电动阀门IQ型4~36短接5~34短接有停止指令中间停不短接指令:开:35、5 关:33、5 反馈:开:8、9 关:6、7 模拟量电流反馈:22+、23—电源失电故障反馈:42、43常闭二、Autork 1、作调节型执行机构IKM型:4~36短接5~39短接模拟信号指令:26+、27—:阀位反馈信号:22+、23— 2、作开关型电动阀门IK型4~36短接5~34短接有停止指令中间停不短接指令:开:35、5 关:33、5 停:34、5 反馈:开:8、9 关:6、7 模拟量电流反馈:22+、23—电源失电故障反馈:42、43常闭三、Auma 1、作调节型电动阀门指令:2+、3—反馈:24+、23—2、作开关型电动阀门指令:开:3、11 关:2、11、停:11 4 反馈:开:39、40 关:35、36四、扬州西门子一体化电动门1、MK系列1、作调节型电动阀门模拟量指令:15+、16- 模拟量反馈:13+、14- 2、作开关型电动阀门指令:开:18、21 关:19、21 反馈:开:3、4 关:1、2 模拟量反馈:13+、14—;3、电源AC380V:22A、23B、24C; AC220V:23L、24N 2. LK系列国产技术作开关型电动阀门短接:19、20 指令:开:3、4;关:2、4 停止指令1、4 反馈:开:17、18;关:5、6 模拟量反馈:8+、7—电源故障:9 21 自保持:X11需点动则将此插头拔掉五、sipos执行机构1、ECOTRON经济型:带继电器板的圆形插头式连接电动门短接:5、6端子指令:开:3、1;关:2、1 紧急关:9、10 停:4、1 反馈:开:28、29;关:32、33 模拟量反馈:7+、8— 2 .PROFITRON 专业型:带继电器板的圆形插头式连接调节门模拟电流指令:11+、12- 模拟量反馈:7+、8—3 ECOTRON经济型;带继电器板的直接连接电动门;分X3:1、X3:2、X1、X2四个端子排短接:18、19端子X3:2端子排指令:开:5、3;X3:1端子排关:4、3 停:6、3 反馈:开反馈接1、2;X2端子排关反馈接5、6 电源接X1端子排L1、L2、L3 2、PROFITRON 专业型:带继电器板的直接连接调节门;分X3:1、X3:2、X1、X2四个端子排短接:18、15端子X3:2端子排模拟量指令:14+、15-X3:2端子排模拟量反馈:1+、2-X3:1端子排开反馈:1、2X2端子排关反馈:5、6 电源失电故障:17、18常闭六.SCHIEBEL点动控制接线短接:2~3端子提供电源指令:开:1、4 关:1 、3 电流反馈:23+ 24—七.ABB调门指令:34+ 33—反馈:35—36+ 短接:21~15 22~16 用于提供远控电源21+ 22—内部提供的24V电源ABB电动门指令:开11 12 关13 14 反馈:开7 8 关9 10 ABB气动门指令:11 12用于向控制部分供电反馈:31 32需DCS提供24电源八.马来西亚产ROTORK非一体化电源:1 2 3 关行程开关常开:8 9 开行程开关常开:17 18 电流位反:32—23+ 九.QP10POO—02ROTORK 指令:关33 34 开34 35 反馈:开15 16 关6 7十.1614X90—04ROTORK调门指令:22+ 13—反馈:32+ 23—十一. 1410—50 ROTOCK上海国产调门指令:22+ 13—反馈:32+ 23—电动门点动指令:开39 37 关39 38 反馈:开15 16 关8 9 如需要自保持则短接:36~39 电源失电故障:41 42十二.湖南力升信息设备有限公司短接:1~2 1~5 电源:L1 L2 L3 指令:开2 3 关:2 4 反馈:开6 8 关:7 8 力矩开关:开11 9 关11 10十三ABB电泵勺管调门指令:26+ 27—反馈:30+ 31—电源:14+ 15—十四江苏白云电力机器厂产电动门电源:11 12 13A排指令:3+ 4—反馈:5+ 6—远近控切换:7 8 7 8短接远控B排反馈:开1 2 关3 4十五PS 接线反馈:7+ 8—指令:3+ 4—十六重庆川仪电动门电源;L1 L2 L3 PE接地24V内部电源21+ 22—指令:关21 13 开21 11 反馈:关9 10 开7 8 短接:22 ~ 12 24~14是否可以不短接重庆川仪调门短接:21~15 22~16 指令:34+ 33—位反:36+ 35—十七常州兰陵一体化阀门接线指令:开6 8 关6 7 停6 9 反馈:开5 6 关9 10 短接4 1用于远近控1+ 2—用于提供控制板电源24V十八电泵勺管接线电源110V:1 2 紧急指令:开6 7 关6 8 电流指令:9+ 10—反馈:11+ 12—十九瑞基RA系列电动门指令:关5 33 开5 35 反馈:关6 7 开10 11 短接:5~34用于自保持4~36 RQ系列调门反馈:22+ 23—指令:26+ 27—二十.AUMA电动门接线非一体化关行程开关:9 10常闭11 12常开关力矩开关:1 2 常闭开行程开关:13 14常闭15 16常开开力矩开关:5 6 常闭。
ROTORK执行器接线图-图号基本的 ROTORK 罗托克 IQ系列执行器接线图3000-000和IQT系列执行器6000-000,包括就地控制和指示、远程开阀/停止/关阀、紧急保护远程控制、联锁和4个可组态指示触点。
*CTT不能与模拟量控制—Folomatic合用。
**120V AC执行器内部远程控制电源不是用于IQD和IQT 24V 供电执行器。
补充:ROTORK执行器接线图的使用1. 从执行器铭牌上查看执行器接线图图号,即WIRING DIAGRAM项。
2. 根据上图图号,即可了解执行器内部参数。
3. 根据图号查找接线图,即可了解执行器内部配置。
下面为常见型号接线图图号:3000-000 接线图:/admin/DataView/MsgView.asp?articleid =1285图号:3010-100 接线图:/admin/DataView/MsgView.asp?articleid =1286图号:5010-100 接线图:/admin/DataView/MsgView.asp?articleid =1287图号:6010-100 接线图:/admin/DataView/MsgView.asp?articleid =1288图号:6000-000 接线图:/admin/DataView/MsgView.asp?articleid =1289图号:3010-000 接线图:/admin/DataView/MsgView.asp?articleid =1297图号:3000-700 接线图:/admin/DataView/MsgView.asp?articleid =1298。