项目管理工作流程
- 格式:docx
- 大小:22.51 KB
- 文档页数:15
完整的项目管理流程项目管理流程是指在完成一个项目的过程中,项目经理和团队成员需按照一定的方法和步骤进行计划、执行、监控和关闭等各个阶段的工作。
下面将详细介绍完整的项目管理流程。
第一阶段:项目启动在项目启动阶段,项目经理和项目团队需要明确项目的目标、范围和可行性,同时确定项目的组织结构和项目团队的角色与职责,进行项目策划和资源准备工作。
1.确定项目目标和作用:明确项目的目标、价值和作用,为项目的后续工作提供明确的方向和依据。
2.进行市场分析和项目可行性研究:评估项目的可行性和市场潜力,分析竞争对手和市场需求,确定项目是否有利可图。
3.制定项目章程:项目章程是对项目的正式批准和授权,它定义了项目的目标和需求,明确了项目经理的职权和责任。
4.组建项目团队:项目经理需要根据项目需求和范围,组建适合的项目团队,明确团队成员的角色和职责。
5.制定项目计划:项目计划是对项目进行详细规划的文件,它包括项目的时间安排、资源分配、风险管理等内容。
第二阶段:项目执行在项目执行阶段,项目团队需要按照项目计划进行实际的工作,协同合作、管理资源、解决问题和风险,并保持项目与计划的一致性。
1.项目沟通与协调:项目团队成员需要保持良好的沟通和协作,确保任务的顺利进行,消除工作中的障碍。
2.资源管理:项目经理需要合理安排和管理项目所需的各种资源,包括人力、物力、财力、时间等。
3.风险管理:项目团队要不断识别、评估和监控项目中的风险,并采取相应的措施进行应对和控制。
4.问题解决与决策:遇到问题时,项目团队要及时调整,采取适当的措施解决,确保项目的正常进行。
5.绩效评估与报告:项目经理需要定期对项目的绩效进行评估和分析,并向相关方提交项目进度和质量报告。
第三阶段:项目监控与控制在项目执行过程中,项目经理需要根据项目计划和目标进行监控和控制,及时调整和纠正偏差,确保项目达到预期的目标。
1.进度监控:项目经理要根据项目计划对项目进度进行监控,并及时调整工作计划,保证项目按时完成。
工程现场项目管理的工作流程范文工程现场项目管理是指在工程施工阶段中,对项目进行组织、协调、监督和控制的一系列活动。
它涉及到项目的计划、实施、监督和总结等方面,以确保项目的顺利进行和圆满完成。
下面将为大家介绍工程现场项目管理的工作流程范文。
一、项目准备阶段1. 项目启动项目启动是指项目经理和相关团队成员开始讨论项目的目标、范围、目标等方面的问题。
在项目启动阶段,项目经理需明确项目的目标,制定项目计划和时间表,并进行与项目相关的调研和分析等工作。
2. 资源准备资源准备是指项目经理和项目团队确保项目所需的各种资源已得到充分准备。
包括人力资源、物资资源、技术资源等。
3. 成本预算在项目准备阶段,项目经理需要对项目的成本进行预算。
预算范围包括人工费用、材料费用、设备费用等。
预算结果需要与项目目标和范围进行对比,确定是否需要调整。
4. 风险管理在项目准备阶段,项目经理需要进行风险管理。
风险管理包括识别、评估、处理和控制项目中可能存在的各种风险。
项目经理需要与团队成员一起制定相应的风险应对措施,以减少风险对项目的影响。
二、项目执行阶段1. 施工准备在项目执行阶段,项目经理需要组织项目团队进行施工准备工作。
包括确定施工队伍、采购材料、安排设备等。
2. 施工实施施工实施是指按照项目计划和施工方案进行工程施工的过程。
项目经理需要与施工队伍密切合作,确保工程施工按时、按质、按量完成。
3. 质量控制质量控制是指在工程施工过程中,项目经理需要监督和检查工程质量,确保质量目标得到实现。
项目经理需要进行质量检验和测试,及时发现并解决工程质量问题。
4. 进度控制进度控制是指项目经理需要监督和控制工程施工进度,确保按时完成工程目标。
项目经理需要与施工队伍进行日常沟通和协调,解决工期延误和进度冲突等问题。
5. 成本控制成本控制是指项目经理需要监督和控制工程施工成本,确保在预算范围内完成工程目标。
项目经理需要进行成本核算和分析,及时采取措施控制成本。
项目管理8大流程项目管理是指对项目进行规划、组织、指挥、协调和控制,以达到项目目标的过程。
在项目管理中,有着一系列的流程,这些流程包括项目启动、规划、执行、监控、收尾等。
本文将为您详细介绍项目管理的8大流程,帮助您更好地理解和应用项目管理知识。
1. 项目启动。
项目启动是项目管理的第一步,也是最重要的一步。
在项目启动阶段,项目经理需要明确项目的目标和范围,确定项目的可行性和可行性研究,明确项目的利益相关者和沟通计划,制定项目的初步预算和时间表,确定项目的组织结构和团队成员,制定项目的风险管理计划等。
项目启动阶段的主要目标是确保项目的可行性和可行性研究,为项目的后续工作奠定良好的基础。
2. 项目规划。
项目规划是项目管理的第二步,也是非常重要的一步。
在项目规划阶段,项目经理需要制定详细的项目计划,包括项目的范围、时间、成本、质量、资源、沟通、风险、采购等方面的计划。
项目规划阶段的主要目标是明确项目的目标和范围,制定详细的项目计划,为项目的后续工作提供清晰的指导。
3. 项目执行。
项目执行是项目管理的第三步,也是项目管理的核心阶段。
在项目执行阶段,项目经理需要根据项目计划,组织团队成员,分配任务,监督工作进展,解决问题,处理变更,沟通进展等。
项目执行阶段的主要目标是按照项目计划,完成项目的各项任务,确保项目的顺利进行。
4. 项目监控。
项目监控是项目管理的第四步,也是非常重要的一步。
在项目监控阶段,项目经理需要对项目的进展进行监控,及时发现问题,及时解决问题,确保项目按计划进行。
项目监控阶段的主要目标是对项目的进展进行监控,确保项目按计划进行,及时发现和解决问题。
5. 项目收尾。
项目收尾是项目管理的最后一步,也是非常重要的一步。
在项目收尾阶段,项目经理需要对项目的成果进行验收,总结项目经验教训,归档项目文档,交接项目成果,向利益相关者交付项目成果等。
项目收尾阶段的主要目标是确保项目的顺利收尾,向利益相关者交付项目成果,总结项目经验教训,为未来项目提供借鉴。
工程项目管理工作流程图工程项目管理工作流程图一、项目前期管理项目前期管理是指在项目正式立项之前,对项目的构思、规划、设计及可行性研究进行的管理。
主要工作包括:1、项目构思:根据市场需求、公司战略和资源状况,提出项目的初步设想。
2、需求分析:对项目需求进行详细研究,确定项目的目标、范围、约束条件和可行性。
3、项目规划:制定项目计划,包括时间表、预算、人力资源、风险评估等方面的规划。
4、设计:进行项目设计,包括项目的技术方案、组织结构、资源调配等方面的设计。
5、可行性研究:对项目的可行性进行深入研究,包括技术、经济、社会等方面的可行性分析。
二、项目立项管理项目立项管理是指在项目正式立项之后,对项目的启动、组织及调配进行的管理。
主要工作包括:1、项目启动:宣布项目启动,组建项目团队,分配项目资源。
2、组织:明确项目组织结构,分配项目职责和权限,制定沟通机制和会议制度。
3、调配:根据项目计划,对项目资源进行调配,确保项目进度和质量。
三、项目执行管理项目执行管理是指在项目实施过程中进行的管理,主要工作包括:1、进度管理:根据项目计划,对项目进度进行监控和管理,确保项目按时完成。
2、预算管理:根据项目计划,对项目预算进行编制和管理,确保项目不超支。
3、质量管理:对项目质量进行全程监控和管理,确保项目达到预期的质量标准。
4、风险管理:对项目风险进行识别、评估和管理,确保项目顺利进行。
四、项目收尾管理项目收尾管理是指在项目结束阶段进行的管理,主要工作包括:1、项目验收:对项目成果进行验收,确保项目达到预期的目标和标准。
2、项目总结:对项目进行总结,总结经验教训,为今后的项目提供参考。
3、项目评估:对项目的绩效进行评估,评估项目的投资回报率,为今后的项目提供参考。
4、项目收尾:完成项目的收尾工作,包括项目的结算、决算、合同终结、档案整理等。
总之,工程项目管理工作流程图是指导工程项目管理的重要工具,通过它,我们可以清晰地了解工程项目管理的全过程,并针对关键环节进行精细化管理,提高项目的效率和质量。
一、前言工程项目管理部是负责公司工程项目从立项、设计、施工、验收到交付的全过程管理。
为提高工作效率,确保项目顺利进行,特制定本工作流程。
二、工作流程1. 项目立项(1)项目发起:各部门根据业务需求,提出项目立项申请,填写《项目立项申请表》。
(2)可行性研究:项目管理部对项目进行可行性研究,包括市场调研、技术分析、经济效益分析等。
(3)立项审批:项目管理部将可行性研究报告提交给公司领导,由领导审批立项。
(4)立项备案:项目管理部将审批后的项目立项报告备案,并通知相关部门。
2. 项目设计(1)设计招标:项目管理部根据项目需求,组织设计招标,确定设计单位。
(2)设计合同签订:项目管理部与设计单位签订设计合同,明确设计要求、时间、费用等。
(3)设计进度跟踪:项目管理部对设计进度进行跟踪,确保设计质量。
(4)设计评审:设计完成后,项目管理部组织评审,对设计成果进行审核。
3. 项目施工(1)施工招标:项目管理部根据项目需求,组织施工招标,确定施工单位。
(2)施工合同签订:项目管理部与施工单位签订施工合同,明确施工要求、时间、费用等。
(3)施工进度跟踪:项目管理部对施工进度进行跟踪,确保施工质量。
(4)施工验收:施工完成后,项目管理部组织验收,对施工质量进行审核。
4. 项目验收(1)验收准备:项目管理部组织验收准备工作,包括资料收集、验收方案制定等。
(2)验收实施:项目管理部组织验收,对项目质量、进度、安全等方面进行全面检查。
(3)验收结论:验收完成后,项目管理部出具验收报告,对项目进行评价。
5. 项目交付(1)交付准备:项目管理部组织交付准备工作,包括资料整理、交付方案制定等。
(2)交付实施:项目管理部组织项目交付,确保项目顺利交付给客户。
(3)交付验收:客户对项目进行验收,项目管理部配合解答相关问题。
6. 项目总结(1)项目评估:项目管理部对项目进行全面评估,总结项目经验教训。
(2)项目总结报告:项目管理部撰写项目总结报告,提交给公司领导。
项目管理部工作流程及内容1. 概述项目管理部是负责组织、协调和控制项目活动的部门。
本文档旨在介绍项目管理部的工作流程和内容,以确保项目的高效执行和顺利完成。
2. 工作流程2.1 项目启动阶段在项目启动阶段,项目管理部负责与项目发起人和相关部门进行沟通,确立项目目标、范围和时间表。
在此阶段,项目管理部的工作流程包括:- 分析项目需求和目标- 制定项目计划和进度安排- 分配项目资源和人力2.2 项目执行阶段项目执行阶段是项目管理部负责组织和监督项目执行的阶段。
在此阶段,项目管理部的工作流程包括:- 协调项目团队成员的工作- 监测项目进度和质量- 解决项目中的问题和风险- 与项目相关方进行沟通和协调2.3 项目收尾阶段项目收尾阶段是项目管理部负责总结和评估项目的阶段。
在此阶段,项目管理部的工作流程包括:- 完成项目目标的评估- 撰写项目总结和报告- 收集项目团队的反馈和经验教训- 归档项目文件和资料3. 工作内容项目管理部的工作内容涵盖以下几个方面:3.1 项目规划项目管理部负责制定项目计划和进度安排,确保项目目标的实现。
他们需要分析项目需求、评估资源需求,并制定详细的工作计划。
3.2 项目监控项目管理部负责监测项目进度和质量,及时发现和解决项目中的问题和风险。
他们需要与项目团队成员进行沟通,确保项目按照计划进行。
3.3 项目沟通项目管理部需要与项目发起人、项目团队成员和其他相关方进行沟通和协调。
他们需要及时传达项目信息,解答问题和提供支持。
3.4 项目文档管理项目管理部负责归档项目文件和资料,确保项目的可追溯性和文档的安全保密性。
他们需要制定文档管理规范,并进行文件的保存和备份。
3.5 项目评估项目管理部需要对项目完成后进行评估,评估项目目标的达成情况,并总结项目经验教训。
他们需要撰写项目报告并提出改进建议。
4. 结论项目管理部的工作流程和内容对于项目的成功和顺利完成至关重要。
通过对项目的规划、监控、沟通和评估,项目管理部能够提高项目的执行效率和质量。
工程项目管理全部流程完整详细版一、前期准备阶段工程项目管理的首要任务是在项目启动前进行充分的准备工作。
在这一阶段,项目经理需要完成以下工作:1. 确定项目目标:明确项目的目标和范围,与业主或委托方达成一致。
2. 制定项目计划:根据项目目标,制定详细的项目计划,确定项目的时间、成本和质量要求。
3. 确定项目团队:招募和配置项目团队成员,确定各自的职责和任务分工。
4. 确定项目资源:确定项目所需的各类资源,包括人力、物力和财务资源。
5. 进行风险评估:分析项目可能面临的风险,制定相应的风险管理计划。
二、项目启动阶段在前期准备工作完成后,项目经理需要启动项目,开始正式执行项目计划。
在项目启动阶段,需要完成以下工作:1. 召开项目启动会议:项目团队成员齐聚一堂,共同了解项目目标、任务和计划安排。
2. 确定项目执行方法:确定项目执行的具体方法和流程,明确沟通和决策机制。
3. 确定工作分配:根据项目计划,将任务分配给各个团队成员,并设定工作时间表。
4. 确定项目监控机制:建立项目监控系统,及时了解项目进展情况,确保项目按计划进行。
5. 开展项目宣传:向相关单位和人员宣传项目信息,争取支持和配合,确保项目顺利进行。
三、项目执行阶段项目执行阶段是整个工程项目管理过程中最为关键的阶段,项目团队需要全力以赴,按照项目计划和要求开展工作。
在项目执行阶段,需要完成以下工作:1. 资源调配:合理配置项目资源,确保项目进展顺利。
2. 监督施工过程:对项目各个环节进行监督和检查,确保施工质量符合标准。
3. 处理问题和风险:及时处理项目中出现的问题和风险,避免对工程进度和质量造成影响。
4. 沟通协调:保持项目组内外的良好沟通,解决各方面的矛盾和冲突。
5. 完善项目文档:及时更新项目文档和报告,记录项目进展和成果,为项目评估提供依据。
四、项目收尾阶段项目收尾阶段是工程项目管理过程中的最后一个阶段,也是项目取得成功的关键。
在项目收尾阶段,需要完成以下工作:1. 项目验收:与委托方进行项目验收,确认项目成果符合预期。
项目管理公司的工作流程项目管理公司是一个专门负责规划、执行和监督各种项目的机构。
无论是建筑工程、IT项目、市场营销活动还是其他类型的项目,项目管理公司都能提供专业的服务来确保项目的顺利进行。
在这篇文章中,我们将详细介绍项目管理公司的工作流程,包括项目启动、规划、执行、监控和收尾等各个阶段。
1. 项目启动阶段。
项目启动阶段是项目管理公司工作流程的第一步。
在这个阶段,公司与客户进行初步沟通,了解客户的需求和期望。
然后,项目管理公司将与客户签订合同,明确项目的范围、目标、预算和时间表。
同时,公司还会成立项目团队,确定项目经理和其他关键成员,制定项目管理计划,并进行项目启动会议,确保所有人都明白项目的目标和要求。
2. 项目规划阶段。
一旦项目启动,项目管理公司就会开始进行项目规划。
在这个阶段,公司会与客户和团队成员一起制定详细的项目计划,包括项目的工作分解结构(WBS)、进度计划、风险管理计划、质量管理计划、沟通计划、采购计划等。
这些计划将作为项目执行的指导,确保项目按时、按质、按量完成。
3. 项目执行阶段。
一旦项目规划完成,项目管理公司就会开始执行项目。
在这个阶段,公司会根据项目计划分配资源、监督团队成员的工作、跟踪项目进度、处理问题和变更请求,确保项目按计划进行。
同时,公司还会与客户保持密切沟通,及时报告项目进展和风险,确保客户对项目的进展和成果满意。
4. 项目监控阶段。
项目监控是项目管理公司工作流程中非常重要的一环。
在这个阶段,公司会持续监督项目的进度、成本、质量和风险,及时发现和解决问题,确保项目不偏离原定目标。
同时,公司还会与客户进行定期沟通,报告项目的进展和风险,获取客户的反馈和意见,以便及时调整项目方向和计划。
5. 项目收尾阶段。
最后一个阶段是项目收尾。
在这个阶段,项目管理公司会与客户一起进行项目验收,确保项目交付的成果符合客户的期望和要求。
同时,公司还会总结项目经验教训,制定项目收尾报告,归档项目文档和资料,关闭项目账户和资源,确保项目的顺利结束。
项目管理工作流程完整版项目管理工作流程第一章总则为贯彻公司以市场为中心的基本思想,理顺项目管理部门和人员的关系,明确工作责任,遵照国家有关标准规范和公司项目管理规定,制定项目管理工作流程制度。
第二章定义遵循项目经理负责制的原则,通过项目经理和项目组织的努力,运用系统的理论和方法对特定项目及其相关可利用资源进行计划、组织、协调、控制,以实现项目的预定目标。
第三章适用范围公司项目部管理的项目,以及所涉及的项目业务、部门、人员。
第四章名词解释1、项目经理:负责项目全程管理,完成项目计划、组织、协调、控制,实现项目的预定目标,对项目总监负责。
2、项目业务经理:在项目签约前的项目经理,主要负责完成项目的前期需求调研及总体设计方案,从项目的前期公关、跟踪,直至项目的签约。
对项目经理负责。
3、项目实施经理:在项目签约之后的项目经理,主要负责项目的详细调研及详细设计方案,从实施计划的制定、执行,直至项目的完工验收。
对项目经理负责。
4、项目业务员:负责销售业务,与项目成败具有直接利益关系的人员。
对项目经理负责。
第五章项目流程第五条项目准备1、业务信息的管理2、意向客户的确定第六条项目立项1、立项2、跟踪3、签约第七条项目实施1、确定实施组2、制定实施计划3、编制项目预算4、执行实施计划5、协助项目决算6、项目内部评审7、完成竣工验收8、提交竣工文档第八条项目终止第九条项目文件归档第四章项目准备第十条适用范围:项目部第十一条业务信息的管理1、任务:项目信息调研,收集、汇总项目业务信息。
2、工作流程:业务员每日向项目经理汇报,项目经理每日向项目总监汇报。
3、形式:口头报告、书面报告,晨会、例会,重大问题随时报告。
4、报表:《项目业务日报表》、《项目业务周报表》。
5、任务:提出意向客户名单;确定意向客户;提出售前技术支持要求。
6、工作流程:业务员提出、反馈管理建议,项目经理汇总、协调、指导,售前技术人员由项目经理报项目总监,从技术支撑部门调派。
项目管理工作流程1.项目启动:项目启动是指项目开始之前的阶段,包括确定项目的目标、范围、资源、预算等。
在这个阶段,项目经理需要确定项目的目标和可行性,制定项目计划,并获取项目的相关资源。
2.项目规划:项目规划是为了详细规划项目的范围、工作内容、进度安排、资源分配、风险管理等。
在这个阶段,项目经理需要制定详细的工作计划,并分配任务给不同的团队成员。
同时,项目经理还需要评估项目的风险,并制定相应的应对措施。
3.项目执行:项目执行是指根据项目计划进行实际的项目工作,并监督项目的进展情况。
在这个阶段,项目经理需要与团队成员合作,协调资源,解决问题,以保证项目的顺利进行。
同时,项目经理还需要及时向相关方报告项目的进展情况。
4.项目控制:项目控制是为了监控项目的进展和质量,并采取相应的控制措施,以确保项目按计划进行。
在这个阶段,项目经理需要跟踪项目的进展,及时发现问题,并采取相应的措施加以解决。
同时,项目经理还需要进行项目的质量验收,以确保项目的质量符合要求。
5.项目收尾:项目收尾是指项目执行完毕后进行的总结和评估。
在这个阶段,项目经理需要对项目的结果进行总结,评估项目的绩效,并撰写项目报告。
同时,项目经理还需要与相关方进行项目的验收,并确保项目的交付和结算工作顺利进行。
在整个项目管理工作流程中,需要注意以下几点:1.明确项目目标和需求:在项目启动阶段,需要明确项目的目标和需求,以便后续的工作能够有针对性地进行。
2.制定详细的项目计划:在项目规划阶段,需要制定详细的项目计划,包括工作内容、进度安排、资源分配等,以规划项目的具体工作。
3.及时沟通和协调:在项目执行阶段,项目经理需要与团队成员保持良好的沟通与协调,及时解决问题,以保证项目的顺利进行。
4.严格控制项目进度和质量:在项目控制阶段,项目经理需要严格控制项目的进度和质量,并采取相应的措施加以解决问题。
5.项目验收和总结:在项目收尾阶段,需要进行项目的验收和总结,以评估项目的绩效并撰写项目报告,为今后的项目提供经验和教训。
行政事业单位项目管理业务控制流程图
1.项目发起阶段
- 项目启动:明确项目目标、范围和可行性,编制项目启动报告;
- 立项审批:提出项目立项申请,上级部门审批通过后正式立项;
- 组建项目团队:根据项目需求组建项目团队,确定项目负责
人和成员;
- 编制项目计划:制定详细的项目工作计划,包括时间、成本、资源等方面的安排。
2.项目执行阶段
- 分工协作:根据项目计划,将项目工作分解并分配给相应的
成员,加强沟通和合作;
- 进度控制:根据项目计划和实际执行情况,及时监督和调整
项目进度,确保按时完成任务;
- 质量管理:对项目过程进行检查和评估,保证项目质量符合
要求;
- 风险管理:识别、评估和处理项目风险,采取相应的措施以
减轻风险带来的影响。
3.项目收尾阶段
- 项目验收:按照预定的验收标准,对项目交付的成果进行检
查和确认;
- 结项汇报:编写项目结项报告,总结项目过程和成果,并向
上级部门进行结项汇报;
- 项目归档:整理和归档项目相关文档和资料,便于以后查阅
和参考。
以上为行政事业单位项目管理业务控制流程图的简要流程介绍,可根据实际情况进行适当调整和完善。
工程项目管理规章制度及工作流程一、项目立项管理1. 项目建议书由公司各部门负责人提出,报请总经理批准;2. 项目建议书批准后,由项目负责人负责组建项目组,并制定详细的项目实施计划;3. 项目组根据实施计划,开展项目立项前的准备工作,包括资源、技术、市场等方面的调研;4. 完成调研后,编制项目可行性研究报告,并报请总经理审批;5. 总经理审批通过后,项目正式立项。
二、项目团队管理1. 项目组负责人为项目负责人,全面负责项目的组织、协调和管理工作;2. 项目组成员由项目经理根据项目需求进行组织,包括项目经理、项目成员、顾问等;3. 项目组成员应具备相应的专业知识和技能,能够满足项目需求;4. 项目组成员应按照公司要求进行工作,并接受公司监督和考核。
三、项目进度管理1. 项目负责人应制定详细的项目实施计划,包括项目目标、任务、时间表、资源安排等;2. 项目组应根据实施计划,合理分配资源,确保项目进度;3. 项目组应定期向公司汇报项目进度,及时发现和解决问题;4. 如项目进度出现异常,项目负责人应及时调整计划,并向上级汇报。
四、项目质量管理1. 项目组应根据项目需求,制定详细的质量控制计划,确保项目质量;2. 项目组成员应按照质量控制计划进行工作,确保工作质量符合要求;3. 项目组应定期进行质量检查和评估,发现问题及时解决;4. 如出现质量问题,项目负责人应及时采取措施,并向上级汇报。
五、项目风险管理1. 项目组应分析项目可能存在的风险因素,包括技术风险、市场风险、财务风险等;2. 针对风险因素,制定相应的应对措施,降低风险影响;3. 项目组应定期进行风险评估,及时发现和解决风险问题;4. 如出现重大风险,项目负责人应及时向上级汇报,并采取相应措施。
六、项目成本管理1. 项目组应根据项目需求和资源安排,制定详细的成本预算;2. 项目组成员应严格按照预算进行成本控制,避免浪费和超支;3. 项目组应定期进行成本分析和评估,发现问题及时解决;4. 如出现成本异常,项目负责人应及时调整计划或向上级汇报。
项目管理工作流程项目管理工作流程一、项目启动项目启动是项目生命周期的第一阶段,也是最重要的阶段之一。
在这个阶段,我们需要明确项目的目标、范围、时间表和预算。
同时,还需要确定项目的组织结构、人员分配和责任分工。
1.1 确定项目目标和范围在项目启动阶段,我们需要明确项目的目标和范围。
项目的目标是指我们要实现什么,而范围则是指我们在实现目标时需要完成哪些任务。
在确定项目目标和范围时,我们需要与项目干系人进行充分的沟通和协商,确保大家对项目的目标和范围都有一个清晰的认识。
1.2 制定项目计划在确定项目目标和范围后,我们需要制定项目计划。
项目计划是指导项目实施的基础,它包括了项目的目标、范围、时间表、预算、人员分配和责任分工等内容。
在制定项目计划时,我们需要充分考虑项目的风险和不确定性,并制定相应的应对措施。
1.3 确定组织结构在制定项目计划时,我们需要确定项目的组织结构。
组织结构是项目实施的基础,它决定了人员分配和责任分工。
在确定组织结构时,我们需要充分考虑项目的特点和干系人的需求,确保组织结构能够满足项目的需求。
二、项目规划项目规划是项目生命周期的第二阶段,也是非常关键的一个阶段。
在这个阶段,我们需要制定详细的项目计划,包括任务分配、时间表、预算和风险管理等方面。
2.1 制定详细的项目计划在项目规划阶段,我们需要制定详细的项目计划。
项目计划需要具体到每个任务、每个时间节点和每个预算项。
在制定项目计划时,我们需要充分考虑项目的风险和不确定性,并制定相应的应对措施。
同时,我们还需要对项目计划进行审查和评估,确保项目计划能够满足项目的需求。
2.2 任务分配和时间表制定在制定详细的项目计划时,我们需要进行任务分配和时间表制定。
任务分配是指将项目的任务分配给每个成员,并明确他们的职责和任务。
时间表制定则是根据项目的目标和计划,制定出每个任务的时间节点和完成顺序。
在任务分配和时间表制定时,我们需要充分考虑项目的风险和不确定性,并制定相应的应对措施。
项目管理公司的工作流程项目管理公司是专门为客户提供项目管理服务的机构,他们负责规划、执行和监控项目,确保项目按时、按质、按量完成。
项目管理公司的工作流程是他们顺利完成项目的关键,下面我们来详细了解一下项目管理公司的工作流程。
1. 项目立项阶段。
项目立项阶段是项目管理公司接到客户委托后的第一步工作。
在这个阶段,项目管理公司需要与客户进行沟通,了解客户的需求和期望,明确项目的目标和范围。
同时,项目管理公司还需要进行市场调研和竞争分析,为项目的后续工作做好准备。
在项目立项阶段,项目管理公司还需要制定项目管理计划,包括项目的时间安排、资源分配、风险评估等内容。
2. 项目规划阶段。
项目规划阶段是项目管理公司制定详细的项目执行计划的阶段。
在这个阶段,项目管理公司需要与客户和项目团队成员进行深入的沟通,明确项目的目标、范围和可交付成果。
项目管理公司还需要制定项目的工作分解结构(WBS)、制定项目进度计划和资源计划,确定项目的关键路径和关键资源,制定项目沟通计划和风险管理计划等。
3. 项目执行阶段。
项目执行阶段是项目管理公司负责项目实施的阶段。
在这个阶段,项目管理公司需要根据项目管理计划,组织项目团队成员,分配任务和资源,监督和控制项目的执行进度和质量,及时解决项目执行中出现的问题和风险,确保项目按时、按质、按量完成。
4. 项目监控阶段。
项目监控阶段是项目管理公司对项目执行过程进行监督和控制的阶段。
在这个阶段,项目管理公司需要定期进行项目执行情况的跟踪和评估,及时发现和解决项目执行中出现的问题和风险,确保项目能够按照计划进行。
项目管理公司还需要与客户进行沟通,及时向客户汇报项目的执行情况,确保客户对项目的进展和成果有清晰的了解。
5. 项目收尾阶段。
项目收尾阶段是项目管理公司完成项目的阶段。
在这个阶段,项目管理公司需要对项目的执行情况进行总结和评估,总结项目的成功经验和教训,为以后的项目提供借鉴。
项目管理公司还需要向客户交付项目的成果,与客户进行项目验收,确保客户对项目的成果满意。
项目管理系统整体工作流程图项目管理系统整体工作流程图本文档旨在为项目管理过程中的各个参预方提供一份详细的工作流程图,以匡助各方更好地理解整个项目的管理流程,并协同完成项目。
1、项目启动1.1 项目拟定项目拟定阶段主要包括制定项目的目标、定位、战略规划等,具体内容如下:1.1.1 初步确定项目执行人、责任人、执行时限等关键要素。
1.1.2 开展项目前期调研工作,采集相关信息并进行分析。
1.1.3 定义项目的目标和范围,制定项目计划,明确项目实施的业务流程。
1.1.4 确定项目的预算和资金来源。
1.1.5 确定项目的进度计划,主要包括项目周期、里程碑和关键节点。
1.1.6 针对项目中可能浮现的风险进行预测和规避措施的制定。
1.2 项目立项项目立项阶段主要是为了使各方对项目管理流程进行审批,并确定项目的决策层次。
具体内容如下:1.2.1 准备项目申请书,经过评审后、立项。
1.2.2 确认项目负责人及关键人员,明确分工。
1.2.3 定义服务模式,细化项目流程。
1.2.4 预估项目总投资,明确资金来源。
1.2.5 制定项目的控制指标和质量标准。
1.2.6 根据立项批复的内容,确定项目整体的管理流程。
2、项目实施2.1 项目组织架构项目实施阶段主要是通过对项目进行组织、编排,实现项目计划的更新、管理和严密的控制,具体如下:2.1.1 定义项目管理组织架构、制定管理层次。
2.1.2 确认项目人员职责、制定考核标准。
2.1.3 划分项目各个部门之间的职责边界。
2.2 项目计划2.2.1 制定项目计划,并将其详细描述。
2.2.2 定义项目开辟的技术标准和流程。
2.2.3 根据客户要求,进行项目实施,进行研发(Test)、验收(Acceptance)、发布(Deploy)等。
2.2.4 进行项目实施的监控和控制,协调各个部门工作,保证项目能正常进行。
2.3 项目进度控制2.3.1 通常需要采用进度计划表的方式,进行每一个时间节点的任务分配、工作安排。
项目管理的工作程序及流程项目管理是指为了实现项目的目标,对项目的计划、组织、协调和控制等活动的全过程的管理。
项目管理的工作程序及流程是指在项目开展的各个阶段中,按照一定的流程和程序进行相关的工作。
以下是项目管理的一般工作程序及流程。
1.项目启动阶段:项目启动阶段是确定项目的目标、范围及可行性的阶段。
主要工作内容包括项目建议书的编写、项目立项申请、项目目标的明确和范围的界定等。
2.项目规划阶段:项目规划阶段是对项目进行详细规划的阶段。
主要工作内容包括项目计划的制定、任务的分解、资源的调配和预算的编制等。
3.项目执行阶段:项目执行阶段是按照项目计划进行项目实施的阶段。
主要工作内容包括团队的组建、任务的分配、进度的控制和质量的保证等。
4.项目监控阶段:项目监控阶段是对项目执行过程进行监控和控制的阶段。
主要工作内容包括进度的监测、成本的控制、风险的评估和变更的管理等。
5.项目收尾阶段:项目收尾阶段是项目的总结和验收的阶段。
主要工作内容包括项目成果的验收、项目文档的归档和经验总结的提炼等。
一般来说,项目管理的流程分为五个主要的阶段,即启动、规划、执行、监控和收尾。
每个阶段都有特定的工作内容和目标。
在每个阶段中,项目经理和项目团队需要进行相应的工作和协调。
在项目启动阶段,项目经理需要明确项目的目标和范围,并编写项目建议书。
然后提交给相关的领导审批,确保项目得到正式的启动。
在项目规划阶段,项目经理需要制定详细的项目计划,并进行任务的分解和资源的调配。
此外,还需要编制项目预算,并确定项目的时间进度和质量目标。
在项目执行阶段,项目经理需要组建项目团队,并根据项目计划进行任务的分配。
项目团队需要按计划进行项目实施,并及时解决遇到的问题和风险。
在项目监控阶段,项目经理需要对项目的进展和成本进行监控和控制。
同时还需要评估项目风险,并管理变更请求和问题报告。
在项目收尾阶段,项目经理需要确保项目成果得到有效的验收,并进行相应的文档归档和经验总结。
项目管理工作制度
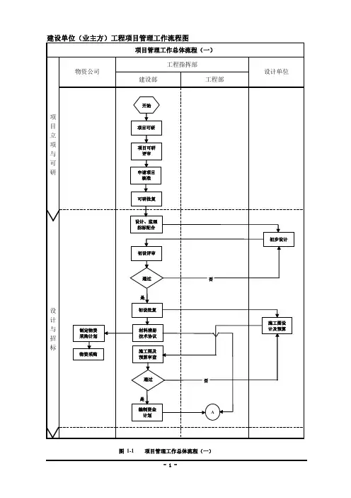
第一章总则
第一条贯彻公司以市场为中心的基本思想,理顺项目管理部门和人员的关系,确定工作流程,明确工作责任,遵照国家有关标准规范和公司项目管理规定,制定项目管理工作流程制度.
第二章定义
第二条遵循项目经理负责制的原则,通过项目经理和项目组织的努力,运用系统的理论和方法对特定项目及其相关可利用资源进行计划、组织、协调、控制,以实现项目的预定目标.
第三条适用范围
公司项目部管理的项目,以及所涉及的项目业务、部门、人员.
第四条名词解释
1、项目经理,负责项目全程管理,完成项目计划、组织、协调、控制,
实现项目的预定目标,对项目总监负责.
2、项目业务经理:在项目签约前的项目经理,主要负责完成项目的
前期需求调研及总体设计方案,从项目的前期公关、跟踪,直至项
目的签约.对项目经理负责.
3、项目实施经理:在项目签约之后的项目经理,主要负责项目的详
细调研及详细设计方案,从实施计划的制定、执行,直至项目的完
工验收.对项目经理负责.
4、项目业务员:负责销售业务,与项目成败具有直接利益关系的人
员.对项目经理负责.
第三章流程
第五条项目准备
1、业务信息的管理业务人员交接
2、意向客户的确定
第六条项目立项
1、立项申请->批准->立项
2、跟踪
第七条项目实施
1、确定实施组人员确定
2、制定实施计划项目组织方案
3、编制项目预算
4、执行实施计划项目执行
5、协助项目决算成本、利润等
6、项目内部评审项目总监及成员
7、完成竣工验收三方验收
8、提交竣工文档
第八条项目终止
第九条项目文件归档
第四章项目准备
第十条适用范围:项目部
第十一条业务信息的管理
1、任务:项目信息调研,收集、汇总项目业务信息
2、工作流程:技术人员每日项目经理汇报
汇总指
导项目经理 随时 业务人员 沟通 项目经理 每日 项目总监 汇报
3、形式:口头报告、书面报告,晨会、例会,重大问题随时、及时报
告.
4、报表:项目日报表、项目周报表
5、任务:提出意向客户名单;确定意向客户;提出售前技术支持要
求.
6、工作流程:业务员 提出、反馈管理建议 项目经理
售前技术人员 项目总监
7、技术人员由项目经理报项目总监,从技术支撑部门调派.
第五章 项目立项
第十二条 定义:通过可行性分析,确定近期内1-6个月公司需要投入人力、
物力、财力的有可能在近期签约的业务项目.
第十三条 适用范围:项目部、涉及的业务部门. 第十四条 任务
1、提出立项申请、进行可行性分析技术可行性、价值可行性、综合
可行性
2、成立项目组
3、项目跟踪
4、项目签约
第十五条 立项审批流程:
1、 程序:业务员先向项目总监提出,然后组织进行可行性分析,一般项
目由项目部和相关部门审批会签,向项目总监汇报;重大项目报总经
理审批.
2、流程
提出立项申请
可行性分析
审核逐级
审批按项目大小规定权限
项目立项
第十六条可行性分析的内容
1、价值预计利润和成本预算;
2、公司技术能否支持;
3、公司资源能否支持;
4、是否符合公司产品方向能否体现公司形象、能否树立样板工程;
5、预计签约时间和工期;
6、成功的可能性;
7、其他需要提供的分析资料.
第十七条立项报表:立项申请表、立项撤消单
第十八条确定项目组
一、原则:由项目部申报人提议,通过项目部初审,再经公司组织的项
目组成员会议讨论决定.
二、成员组成根据项目大小调整
项目总监工程部经理
项目经理兼项目业务经理、项目实施经理 1人
安排、分配工作任
汇报、反馈工作信
工程施工队 1组 业务员 1人 技术人员 1~2人 高新技术支持 1人
第十九条 项目跟踪
1、任务:项目前期需求调研、编写项目总体设计任务书、形成项目
总体设计方案,审核、审批总体设计方案.
2、工作流程
项目业务经理 项目组成员
3、设计方案的管理:送交客户之前必须经技术部门负责人签字,项
目业务经理签字确认,并由项目部总监在书面文档签字同时保存方案的电子文档,以保证技术文档的可追溯性.
4、方案的审批流程:
一般项目:项目总监
较大项目:项目总监、总经理 重特大项目:项目总监、总经理
5、审批表格:项目设计方案审批表.
6、项目预支款按公司日常业务预支款制度执行.
第六章 项目实施
第二十条 定义:实行项目实施经理负责制,项目经理负责管理此项目的各
项费用开销,通过项目实施经理的指挥、协调、组织、沟通,领导整个项目的实施过程,以实现项目的预定目标.
第二十一条适用范围:各部门.
第二十二条项目实施的任务
1、确定实施小组
2、制定实施计划
3、编制项目预算
4、执行实施计划
5、协助项目决算
6、项目内部评审
7、完成竣工验收
8、提交竣工文档
9、其他应当由项目实施小组完成的任务
第二十三条成立实施组的程序
1、项目实施组的确定
一般项目:项目总监审定
大型项目:项目总监、总经理审定
2、项目实施经理的任用范围:
一般项目:由项目经理担任
较大项目:由技术骨干担任
重大项目:由项目经理、技术骨干担任
3、小组成员的确定原则:项目实施小组成员由项目经理提议,通过
项目实施小组成立会议讨论决定;项目务经理、责任业务员必须
为实施小组成员;前期售前技术支持人员应当为实施小组成员.第二十四条制定实施计划
1、详细设计方案施工设计方案,施工图纸等
2、项目实施方案
3、项目任务书
4、材料计划
5、人员计划
6、项目进度计划
7、质量控制计划
8、项目物资供应计划
9、培训计划
第二十五条实施计划的审批
1、程序:由项目实施经理会同技术部门负责人、销售部门负责人实
施计划进行审核,最终必须得到项目总监、总经理的审批,才可以
实施.
2、报表:实施计划审批表
第二十六条项目预算
按实施方案、项目任务书编制项目预算.
第二十七条执行实施计划
按计划安排、指挥项目的具体实施工作;在项目的实施过程中,处理与甲方的协调关系.
第二十八条项目决算
1、配合财务部门做好项目的成本归集、利润确认;
2、最终项目工程量的财务决算.
第二十九条项目内部评审
项目内部评价,项目实施的工作回顾,经验教训总结,项目成员工作考核,作为项目奖惩的依据.
第三十条组织竣工验收
协同公司各相关职能部门,组织用户或第三方项目评审单位竣工验收.
第三十一条提交竣工文档
在项目验收合格后,项目有关文件,提供所有的技术参数和文档,并提供完整的竣工文档.
第七章项目变更及确认
第三十二条项目设计变更
项目实施过程之中发生的项目设计变更导致项目合同的变更,必须及时得到客户的签证.日常可以通过项目联系单得到客户的书面确认.
第三十三条项目合同变更的甲方确认
遵照合同变更程序,依法进行.合同变更必须在项目变更实施之前取得客户的书面确认.
第三十四条项目变更的内部审批
凡变更金额在元以下的,由项目总监审批;超过元,由总经理审批.
第八章项目终结
第三十五条项目终结:办理项目终结手续.
1、全部合同条款履行完毕的项目进入公司项目终止程序,由公司内
部逐级审批项目终止审批表;
2、未履行全部合同条款,因故中途废止的项目合同进入法律程序或
内部责任追究程序.
第九章项目文件归档
第三十六条项目归档:汇集项目文档,按公司资料档案管理入档.
文档包括:
现场勘察记录单
项目立项申请表
项目设计方案审批表
项目组织方案
预算书
项目验收相关文档
项目终止审批表
其他项目相关文档
附件一
立项申请表
立项撤消单
附件三
附件四
附件五
项目联系单
附件六。