消防泵的主备用切换方法比较通用版
- 格式:docx
- 大小:69.23 KB
- 文档页数:8
消防水泵操作规程消防泵组为2台,一用一备(1# 2#),当控制柜面盘上转换开关选择“自动1#泵”,1#泵为主泵2#为备泵:“自动2#泵”,2#泵为主泵1#为备用;选择“手动”;在控制柜面盘上按下1#泵启动/停止,2#泵启动/停止。
消防泵启动方式;泵房内:“手动”启动;自动联动(压力开关直接联动、消火栓按钮联动、电接点压压力仪表控制联动、报警总线联动);消防控制中心远程多线联动)三种启动方式。
一、启泵前的检查1、检查并保证消防系统电源,电路通畅正常,电器设备完好;2、检查水泵进水口。
出水口管路阀门处在常开状态;3、打开水泵前后排气阀、排净泵内空气,直至出水为止,关闭排气阀;二、消防水泵手动/自动启动操作步骤1、水泵房消防水泵手动控制操作步骤:a、打开泵房内泵出口管路上试水阀门;b、将控制柜面盘上转换开关选择“手动”按下1#泵“启动”按钮1#泵启动,在按下1#泵“停止”按钮1#停止。
2#泵相同操作。
关闭水试阀门。
2、消防水泵自动控制操作步骤:a、喷淋泵自动联动;将水泵控制柜面盘上转换开关选择“自动”状态;开启报警阀上试验阀;压力开关动作;喷淋泵启动;关闭试验阀,喷淋泵停止。
b、消火栓泵自动联动;将水泵控制柜面上转换开关选择“自动”状态;打开泵房内水泵出口管路上试水阀;按下消火栓箱内消火栓启泵按钮,消火栓泵自动启动;启泵按钮复位;消火栓泵停止。
三、消防水泵在正常状态下,必须将水泵控制柜面上转换开关选择“自动”自动状态。
1#、2#泵保证一台处于工作状态。
一台处于备用状态。
消防泵操作规程一、概述消防泵是消防系统中的重要设备之一,用于供水及增压,确保消防水源能够在火灾发生时迅速供应。
本文将详细介绍消防泵的操作规程,以保证泵的安全运行和有效使用。
二、操作前准备1. 泵房内应保持整洁干净,设置明显的操作标识。
2. 确保泵的运行环境温度适宜,无明火、易燃物等。
3. 检查泵房内的照明和通风设备是否正常运行。
三、泵的启动1. 操作人员应穿戴好防护装备,包括防护服、手套、安全帽等。
2. 打开泵房门后,先检查泵的电源线路是否正常,然后关闭泵房门。
3. 将电源开关调至"ON"位置,观察泵的运行指示灯是否亮起。
4. 按下启动按钮,启动泵,同时观察泵的压力表和流量表是否正常工作。
四、泵的运行1. 在泵开始运行后,检查泵的压力表和流量表是否指示正常。
若异常,应立即停止泵,并检查原因。
2. 定期检查泵的润滑情况,如有必要,及时添加润滑油。
3. 保持泵房内干燥,以防止设备受潮。
4. 在泵运行期间,严禁在泵周围堆放杂物或储存易燃物品。
5. 定期检查泵的滤网和水泵叶轮,清除其中的杂物。
五、泵的停止1. 当消防泵的任务完成或需要维修时,应及时停止泵的运行。
2. 先关闭出口阀门,再将电源开关调至"OFF"位置。
3. 断开电源后,等待泵完全停止后方可离开泵房。
六、应急情况处理1. 当发生火灾或其他紧急情况时,应立即启动消防泵,向消防系统供水。
2. 在应急情况下,操作人员应冷静应对,迅速启动泵,并按需求调整水压和流量。
3. 在调整泵的运行状态时,应密切观察泵的运行指示灯和仪表,并及时采取措施纠正异常。
七、安全注意事项1. 禁止擅自修改、维修泵的电气部分,如有需要,应由专业人员进行操作。
2. 周期性地对消防泵进行维护保养,定期更换易损件,确保设备的正常运行。
3. 操作人员应定期接受消防设备知识培训,熟悉操作规程和事故应急处理流程。
八、总结消防泵的正确操作对于消防系统的正常运行至关重要。
消防泵控制柜双电源切换操作流程文字下载温馨提示:该文档是我店铺精心编制而成,希望大家下载以后,能够帮助大家解决实际的问题。
文档下载后可定制随意修改,请根据实际需要进行相应的调整和使用,谢谢!并且,本店铺为大家提供各种各样类型的实用资料,如教育随笔、日记赏析、句子摘抄、古诗大全、经典美文、话题作文、工作总结、词语解析、文案摘录、其他资料等等,如想了解不同资料格式和写法,敬请关注!Download tips: This document is carefully compiled by theeditor.I hope that after you download them,they can help yousolve practical problems. The document can be customized andmodified after downloading,please adjust and use it according toactual needs, thank you!In addition, our shop provides you with various types ofpractical materials,such as educational essays, diaryappreciation,sentence excerpts,ancient poems,classic articles,topic composition,work summary,word parsing,copy excerpts,other materials and so on,want to know different data formats andwriting methods,please pay attention!消防泵控制柜双电源切换操作流程详解在消防安全系统中,消防泵控制柜的双电源切换功能起着至关重要的作用,确保在主电源出现故障时,备用电源能立即启动,保证消防设备的正常运行。
常用与备用消防水泵切换条件的探讨汪海良【摘要】The critical parts of the fire-water system are the fire pump and sprinkle pump.So in the codes of the plumping system,it is asked for the double pumps.One for normal use,another for emergency use.When the normal pump is failed,the emergency pump must be%消防、喷淋水泵是消防给水系统中的关键部分,故给排水专业规范强制要求设置一用一备两台泵。
当一台泵发生故障时,另一台泵自动切换供水。
作为电气专业,如何判断主用泵故障是切换至另一台泵的关键,但目前的二次线路中判断这一指标的仅靠热继电器来判断泵的故障是有失偏颇的。
通过分析各种泵的故障及判断标准,以期抛砖引玉,引起大家对消防泵安全切换的重视。
【期刊名称】《现代建筑电气》【年(卷),期】2011(000)006【总页数】4页(P35-37,48)【关键词】消防水泵;常、备用切换;二次原理;水泵故障;扬程;水压【作者】汪海良【作者单位】上海建筑设计研究院有限公司,上海200041【正文语种】中文【中图分类】TU998.130 引言随着高层建筑及大型综合性建筑的日益增多,以及近期火灾的发生对人员及物资造成的巨大损失,公众对消防的要求也越来越高。
消防过程包括两个部分:一是“防”,如消防报警系统及日常的防火安全措施等;二是“消”,即当火灾发生时如何有效地灭火,实践证明消防水泵在初期火灾中起着重要的作用。
GB 50016—2006《建筑设计防火规范》中第8.6.8条规定,“消防水泵应设置备用泵,其工作能力不应小于最大一台消防工作泵”;GB 50045—1995《高层民用建筑设计防火规范》第7.5.3条规定,“消防给水系统应设置备用消防水泵,其工作能力不应小于其中最大一台消防工作泵”。
消防泵操作规程模版1、引言消防泵是消防系统中重要的设备之一,它的正确操作对于灭火和保护人员生命财产安全具有重要意义。
为了保证消防泵的有效运行,制定操作规程对消防人员的操作行为进行规范和指导。
本文将详细介绍消防泵操作规程。
2、操作前准备2.1 确定操作人员每次操作前,应由经过消防泵操作培训合格的专业人员进行操作,确保其具备相关知识和经验。
2.2 确认消防泵状态在操作前,应先确认消防泵的运行状态,包括电源是否接通、泵体是否正常等,并进行必要的检查和维护。
2.3 准备操作工具根据操作需要,确认所需操作工具是否齐全,并进行必要的检查和保养。
3、消防泵操作步骤3.1 启动消防泵1)确认电源接通,并确保电源供应符合要求。
2)检查消防泵的自动启动和停止装置,并确认其正常工作。
3)按照正常启动顺序启动消防泵。
3.2 调试消防泵运行参数1)调节消防泵的流量和压力,使其满足实际需要。
2)监测消防泵的运行参数,确保其在正常范围内。
3)根据需要,对消防泵进行进一步的调试和优化。
3.3 监测消防泵运行状态1)实时监测消防泵的运行状态,包括流量、压力、温度等参数。
2)定期检查消防泵的运行记录,发现异常情况及时处理。
3.4 停止消防泵1)按照操作步骤要求,逐步停止消防泵的运行。
2)在停止过程中,注意监测消防泵的运行状态,确保其平稳停止。
4、紧急情况处理4.1 泵体过热1)在发现消防泵泵体过热时,应立即停止运行。
2)检查散热系统,清除堵塞物,保证散热效果。
3)在泵体温度降低至正常范围后,可重新启动消防泵。
4.2 泵体损坏1)在发现消防泵泵体损坏时,应立即停止运行。
2)通知相关维修人员进行检修,并按照维修方案进行处理。
4.3 回水管堵塞1)在发现回水管堵塞时,应立即停止消防泵运行。
2)清除堵塞物,恢复正常的回水管通道,并可以重新启动消防泵。
5、操作结束1)根据操作步骤要求,逐步停止消防泵的运行。
2)记录消防泵的操作时间和运行状态。
消防泵的主备用切换方法比较概述在消防系统中,消防泵作为重要的设备之一,其功能主要是为消防用水系统提供水力支撑,保证火灾应急响应的实施。
在消防泵的运行过程中,因为种种原因,可能会出现设备故障或停机等问题,因此,备用设备的设置以及备用切换方法对消防泵的安全稳定运行至关重要。
本文将围绕消防泵的主备用切换方法,对比常用的自动切换、手动切换和ATS(自动切换开关)三种切换方式,分析各个方法的优劣势和适用范围,帮助消防工程师更好地选择合适的切换方式。
自动切换自动切换,也称自动备援,是一种将主泵和备用泵连接到同一个管路中,并通过控制系统根据水压或电压等信号实现的自动切换方式。
一般适用于不间断供水要求高,泵组数量多且补水压力高的大型建筑群体,如医院、商场、酒店等。
优势•自动切换能够实现快速无人干涉的备份切换,保证供水稳定不间断。
•自动切换由控制系统完成,自动化程度高,可免除人工巡检换泵操作,减少了人为失误的可能性。
•可以实现负载均衡和节能效果,保证泵的长期运行效率。
劣势•自动切换需要配备高精度的检测仪器和高质量的控制器,成本较高。
•在紧急情况下,自动控制系统可能会出现延迟或故障,降低了备份切换的效率。
•对于级别较低的消防水源,自动切换可能会造成能源浪费,影响基本供水需求。
手动切换手动切换是一种较为简单的备用切换方式,通过人工操作实现主泵和备用泵之间的切换。
该方式一般适用于消防泵数量少的建筑,如住宅小区、单体商务楼等。
优势•手动切换方式简单易操作,成本相对较低。
•经过充分的培训和管理,每个岗位的操作人员都可以熟练掌握手动切换的操作方法,不易出现误操作。
•对于消防底商和小型住宅区等低风险建筑,手动切换方式已经满足基本需求。
劣势•手动切换需要人工参与,相对响应时间长,备份切换时间不确定,不能及时应对紧急情况。
•手动切换操作人员的素质和数量,直接影响了备份切换的效率和稳定性。
•对于运行量较大的消防泵,手动切换的频繁进行可能会加速泵件的磨损,降低设备的使用寿命。
消防泵操作规程引言概述:消防泵是消防系统中非常重要的设备之一,它能够提供稳定的水源供应,确保在火灾发生时能够迅速灭火。
为了保证消防泵的正常运行和操作的安全性,制定了一系列的操作规程。
本文将详细介绍消防泵操作规程的内容和要点。
一、消防泵的启动与停止1.1 检查消防泵的工作状态1.2 启动消防泵1.3 停止消防泵二、消防泵的运行与监控2.1 监测消防泵的运行参数2.2 定期检查消防泵的运行状况2.3 处理消防泵故障及时三、消防泵的维护与保养3.1 清洁消防泵及其周围环境3.2 定期更换消防泵的润滑油3.3 检查消防泵的密封性能四、消防泵的备用电源与切换4.1 安装备用电源系统4.2 定期检查备用电源的工作状态4.3 切换至备用电源的操作流程五、消防泵的应急处理5.1 火灾发生时的应急处理措施5.2 火灾扑灭后的清理与恢复5.3 消防泵事故的报告和记录正文内容:一、消防泵的启动与停止1.1 检查消防泵的工作状态:在启动消防泵之前,要先检查消防泵的工作状态,包括电源是否正常、泵体是否有异常声音或振动等。
同时,还要检查消防泵的润滑油是否充足,水源是否通畅等。
1.2 启动消防泵:在确认消防泵的工作状态正常后,可以启动消防泵。
启动时,应按照操作面板上的指示进行操作,包括打开电源开关、调整泵的转速等。
1.3 停止消防泵:当消防任务完成或需要停止消防泵时,应按照操作规程进行停止操作。
首先,应将电源开关关闭,然后逐渐减小泵的转速,最后完全停止泵的运行。
二、消防泵的运行与监控2.1 监测消防泵的运行参数:在消防泵运行期间,应时刻监测消防泵的运行参数,包括出水压力、泵的转速、电流等。
如发现异常情况,应及时采取措施进行处理。
2.2 定期检查消防泵的运行状况:定期对消防泵进行检查,包括检查泵的密封性能、检查泵的轴承、检查电机的绝缘性能等。
如发现故障或异常情况,应及时维修或更换部件。
2.3 处理消防泵故障及时:当发现消防泵出现故障时,应立即停止泵的运行,并及时通知维修人员进行处理。
消防泵的主备用切换方法比较消防泵是消防给水系统中的心脏。
在消防给水系统中,设置消防备用泵可以增加整个系统的安全性,有利于提高整个消防给水系统的可靠性。
根据国家标准《建筑设计防火规范》(GBJ 16-87)的规定,除室外消防用水量不超过25 L/s的工厂、仓库和七层至九层的单元住宅外,固定消防水泵应设有备用泵,其工作能力不应小于一台主要泵。
《高层民用建筑设计防火规范》(GB50045-95)中7.5.3条也规定,消防给水系统应设置备用消防水泵。
消防泵的主备用切换是实现消防备用泵投人工作的重要手段,也是消防给水系统可靠、安全运行的重要环节。
1消防泵的主备用切换方法从消防泵启动信号的采集和控制角度来看,设计中消防泵的主备用切换主要有两种方法。
其关键是控制信号来源的选择,它可分为电流信号控制方法和压力信号控制方法。
通常消防泵的主备用泵均需按互为备用的方式进行设计。
电流信号控制方法是现在消防设计中消防泵主备用切换的常用方法。
它通过对水泵的电动机电流信号反馈,来判断消防泵是否工作。
当电机短路(断电)、电流过大时,电源自动切换至另一台水泵机组的电机,停止第一台消防泵的工作,启动另一台消防泵工作。
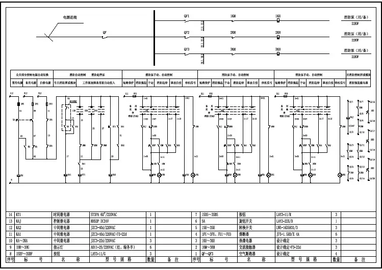
压力信号控制方法是在消防泵的出水总管上设置电节点压力表,如图1,消防泵主备用的切换是由该压力表的信号来判断的。
当消防泵控制箱接到动作指令,立刻启动任一台消防泵,若消防泵工作后的电节点压力表指示的压力未能达到设定的压力值时,控制箱将自动切换到另一台消防泵,启动工作。
当然,电气消防泵控制的原理中可任意指定一台消防泵为主泵或备用泵。
电流信号控制方法在目前国内采用最早、最多,而压力信号控制方法在国外的自动喷水灭火系统开始运用,压力信号控制方法对消防给水系统的自动控制提供了可靠的方式。
2 主备用切换方法的比较2.1 消防泵出现故障的原因分析消防泵出现的故障最终结果是消防泵不能正常给水。
造成消防泵故障的主要原因可分为两类,一类是电机故障,另一类是水泵故障。
消防泵操作规程一、概述消防泵是消防系统的核心设备之一,主要用于供水、增压和输送消防用水。
为了确保消防泵的正常运行和安全使用,制定了本操作规程。
二、操作人员要求1. 操作人员应具备相关消防知识和技能,并持有相应的操作证书;2. 操作人员应熟悉消防泵的结构、性能和操作要求;3. 操作人员应了解消防泵的安全事项和应急处理措施;4. 操作人员应定期接受消防泵操作培训和技术交流。
三、消防泵操作流程1. 开启消防泵前,操作人员应检查消防泵的外观是否完好,电源是否正常,油液是否充足,泵体是否有异物阻塞等;2. 操作人员应按照消防泵的启动顺序挨次操作,包括打开电源开关、打开泵启动开关、观察泵的运行状态等;3. 在消防泵正常运行期间,操作人员应定期观察泵的工作压力、电流、温度等参数,确保泵的运行稳定;4. 当消防泵需要住手运行时,操作人员应按照停机顺序挨次操作,包括关闭泵启动开关、关闭电源开关等;5. 操作人员应及时记录消防泵的运行情况,包括启动时间、运行时间、工作压力、电流等,以备后续分析和维护。
四、消防泵维护保养1. 定期检查消防泵的电源路线、机电、轴承等部件,确保其正常运行;2. 定期更换消防泵的润滑油,清洗过滤器和冷却器,保持泵的散热效果;3. 定期清洗消防泵的进出口阀门,确保其畅通无阻;4. 定期检查消防泵的密封件,如发现损坏应及时更换;5. 定期对消防泵进行性能测试,确保其满足消防系统的要求。
五、应急处理措施1. 当消防泵发生故障或者异常情况时,操作人员应即将住手泵的运行,并报告相关部门;2. 在消防泵故障修复期间,应采取暂时措施保证消防系统的正常运行;3. 操作人员应熟悉消防泵的应急处理流程,包括切换备用泵、调整泵的工作参数等。
六、安全注意事项1. 操作人员应穿戴好个人防护装备,如安全帽、防护眼镜、防护手套等;2. 操作人员应严禁在消防泵运行期间进行维修和清洁工作;3. 操作人员应保持消防泵周围的通道畅通,防止阻塞影响泵的运行;4. 操作人员应定期参加消防演练,熟悉应急处理流程和逃生通道。
柴油消防泵、电动消防泵操作规定引言概述:消防泵是消防系统中的重要设备,用于提供稳定的水源供应。
柴油消防泵和电动消防泵是常见的两种消防泵类型。
为了确保消防泵的正常运行和安全性,有必要遵循一定的操作规定。
本文将详细介绍柴油消防泵和电动消防泵的操作规定。
一、柴油消防泵的操作规定:1.1 燃油供应:确保柴油消防泵有足够的燃油供应,定期检查柴油油箱中的油量,并及时补充。
在补充燃油时,应使用干净的漏斗,避免杂质进入油箱。
1.2 启动程序:在启动柴油消防泵之前,需要检查燃油滤清器和空气滤清器的状态,并定期清洗或更换。
启动程序包括关闭所有阀门、打开泵房门窗、按下启动按钮等步骤。
1.3 运行监测:在柴油消防泵运行期间,需要定期监测其运行状态。
包括检查油压、水压、温度等参数是否正常,并注意是否有异常噪音或震动。
若发现异常情况,应及时停止运行并进行维修。
二、电动消防泵的操作规定:2.1 电源供应:确保电动消防泵有稳定的电源供应,检查电源线路是否完好,并定期清理电动机通风口,避免灰尘堵塞。
2.2 启动程序:在启动电动消防泵之前,需要检查电动机的运行状态,包括轴承温度、绝缘电阻等。
启动程序包括关闭所有阀门、打开泵房门窗、按下启动按钮等步骤。
2.3 运行监测:在电动消防泵运行期间,需要定期监测其运行状态。
包括检查电流、电压、温度等参数是否正常,并注意是否有异常噪音或震动。
若发现异常情况,应及时停止运行并进行维修。
三、消防泵的维护保养:3.1 清洁保养:定期清洁消防泵的外部表面,避免灰尘和杂物积聚。
同时,清洗消防泵的过滤器和冷却器,确保其正常运行。
3.2 润滑维护:定期检查消防泵的润滑系统,包括润滑油的油位和质量。
根据使用情况,及时更换润滑油,并注意润滑油的种类和规格。
3.3 定期检查:定期检查消防泵的关键部件,如密封件、轴承等,确保其完好无损。
同时,定期进行运行试验,检查消防泵的性能和运行状态。
四、应急操作规定:4.1 紧急停机:在发生紧急情况时,如火灾已得到控制或消防泵出现故障,应立即停止消防泵的运行。
手动消防泵操作方法
1. 打开手动消防泵室门,确定手动消防泵的位置。
2. 拉动手动消防泵上的启动柄,启动手动消防泵。
3. 打开水源阀门,使水流进入手动消防泵。
4. 打开压力表阀门,观察压力表的指针,当压力表指针达到合适的水压值时,关闭压力表阀门。
5. 打开放水阀门,将手动消防泵中的空气排出并调整压力。
6. 打开出水阀门,观察水流情况,调整出水压力。
7. 操作完毕后,关闭出水阀门、放水阀门、压力表阀门和水源阀门,停止手动消防泵。
8. 在使用手动消防泵前,应该检查其功能是否完好,并定期对手动消防泵进行维护保养。
消防水泵操作规程一、消防水泵房消防设备投入使用处于状态1、确保消防水泵控制柜电源通电正常:2、确保消防水池水位处于高水位;3、确保消防泡沫罐泡沫液充足和有效期:4、确保消防全部阀门处于工作状态。
二、消火栓水泵操作规程1、消火栓泵组由两台主泵(一主一备)和两台稳压泵(一主一备)组成.2、消火栓泵组应为自动状态投入使用。
消火栓管网工作压力设置为0。
5mpa。
泵房消火栓管网安装一个自动泄压阀,管网压力高时自动泄压,防止压力过高造成管网爆破,泄压阀设置泄压为0.65mpa。
3、水泵启动方式均为手动和自动。
A、手动操作:在消火栓水泵控制柜上将转换开关转到手动位置,启动/停止相应水泵。
B、自动操作:(1)、消防泵房的消防水泵的自动(压力开关控制)启动过程:消防水泵控制柜打到自动状态,当消防水管网的压力低于0.35mpa时,消防泵房的消防泵会自动启动供水;消防水管网的压力达到0。
5mpa时自动停泵.(2)、消防中心报警主机远程启动及联动操作步骤:(远程启动方式)在消防控制中心的消防主控盘的“自动/手动"选择开关上选择手动后,在消防中心的消防主控盘按下消防栓水泵“启动”按钮,启动消防泵房的消防水泵;在消防中心的消防主控盘按下消防消防水泵“停止”按钮,停止消防泵房的消防水泵.(联动启动方式)消防报警主机和消防水泵自动投入使用时,当库区内消火栓报警按钮按下,消防报警主机接收报警信号联动消防警铃报警同时联动启动消防栓水泵起动。
三、消防喷淋水泵操作规程1消防喷淋泵组由三台主泵(二主一备)和两台稳压泵(一主一备)组成。
2、消防喷淋泵组应为自动状态投入使用。
喷淋管网工作压力设置为0。
8mpa。
泵房喷淋管网安装一个自动泄压阀,管网压力高时自动泄压,防止压力过高造成管网爆破,泄压阀设置泄压为0。
9mpa。
3、水泵启动方式均为手动和自动.A、手动操作:在喷淋水泵控制柜上将转换开关转到手动位置,启动/停止相应水泵.B、自动操作:(1)、消防泵房的喷淋水泵的自动(压力开关控制)启动过程:喷淋水泵控制柜打到自动状态,当喷淋水管网的压力低于0。
消防供水设备中泵的主备用切换方法消防泵是消防供水系统中的心脏。
在消防供水设备中,设置消防备用泵可以增加整个系统的安全性,有利于提高整个消防给水系统的可靠性。
根据国家标准《建筑设计防火规范》(GBJ 16-87)的规定,除室外消防用水量不超过25 L/s的工厂、仓库和七层至九层的单元住宅外,固定消防水泵应设有备用泵,其工作能力不应小于一台主要泵。
《高层民用建筑设计防火规范》(GB50045-95)中7.5.3条也规定,消防给水系统应设置备用消防水泵。
消防泵的主备用切换是实现消防备用泵投人工作的重要手段,也是消防给水系统可靠、安全运行的重要环节。
1.消防泵的主备用切换方法从消防泵启动信号的采集和控制角度来看,设计中消防泵的主备用切换主要有两种方法。
其关键是控制信号来源的选择,它可分为电流信号控制方法和压力信号控制方法。
通常消防泵的主备用泵均需按互为备用的方式进行设计。
电流信号控制方法是现在消防设计中消防泵主备用切换的常用方法。
它通过对水泵的电动机电流信号反馈,来判断消防泵是否工作。
当电机短路(断电)、电流过大时,电源自动切换至另一台水泵机组的电机,停止第一台消防泵的工作,启动另一台消防泵工作。
压力信号控制方法是在消防泵的出水总管上设置电节点压力表,如图1,消防泵主备用的切换是由该压力表的信号来判断的。
当消防泵控制箱接到动作指令,立刻启动任一台消防泵,若消防泵工作后的电节点压力表指示的压力未能达到设定的压力值时,控制箱将自动切换到另一台消防泵,启动工作。
当然,电气消防泵控制的原理中可任意指定一台消防泵为主泵或备用泵。
电流信号控制方法在目前国内采用最早、最多,而压力信号控制方法在国外的自动喷水灭火系统开始运用,压力信号控制方法对消防给水系统的自动控制提供了可靠的方式。
2.主备用切换方法的比较2.1 消防泵出现故障的原因分析消防泵出现的故障最终结果是消防泵不能正常给水。
造成消防泵故障的主要原因可分为两类,一类是电机故障,另一类是水泵故障。
消防泵操作规程一、引言消防泵是消防系统中的重要设备,用于提供稳定的水源供应,保障消防系统的正常运行。
为了确保消防泵的安全运行和有效使用,制定本操作规程。
二、适用范围本操作规程适用于所有使用消防泵的单位和个人。
三、术语和定义1. 消防泵:指用于提供消防系统所需水源的设备,包括离心泵、柴油泵等。
2. 主泵:指主要用于供水的消防泵。
3. 备用泵:指在主泵故障或维修时用于替代的备用消防泵。
4. 操作员:指负责消防泵操作的人员。
四、操作要求1. 操作员应熟悉消防泵的结构、性能和操作方法,并具备相关的操作证书。
2. 在操作消防泵前,操作员应检查消防泵的工作状态,包括电源是否正常,油液是否充足等。
3. 操作员应按照操作面板上的指示进行操作,包括启动、停止、调节泵的转速等。
4. 在操作消防泵时,操作员应保持警惕,注意观察泵的运行情况,如有异常应及时报告上级。
5. 操作员应定期检查消防泵的运行记录,包括运行时间、运行状态等,并及时进行维护保养。
6. 在消防泵运行过程中,操作员应随时注意水压的变化,如发现水压异常应立即采取措施解决。
7. 操作员应定期参加消防泵操作培训和演练,提高操作技能和应急处理能力。
五、应急措施1. 在发生火灾等紧急情况时,操作员应立即启动主泵,并通知相关人员采取应急措施。
2. 如主泵故障或维修,操作员应及时启动备用泵,并通知相关人员进行切换。
3. 在消防泵操作过程中,如发现异常声音、异味或其他异常情况,操作员应立即停止泵的运行,并进行检查和处理。
六、维护保养1. 操作员应定期检查消防泵的各项指标,包括电源、油液、滤网等,确保消防泵处于良好的工作状态。
2. 操作员应按照维护保养手册的要求,进行定期的维护保养工作,包括更换润滑油、清洗滤网等。
3. 在维护保养过程中,操作员应关注消防泵的磨损情况,如发现异常应及时更换零部件。
七、安全注意事项1. 操作员在操作消防泵时,应穿戴好防护装备,包括防护眼镜、耳塞等。
消防水泵操作规程
1.0目的
确保操作之安全性,正确性。
2.0适用范围
适用于海峡社区消防水泵的操作。
3.0职责
设备管理员负责消防水泵设备的操作、清洁、维修保养及试运行。
4.0操作程序
4.1消防水泵操作可分为远程操作及就地操作。
正常情况下消防水泵房水泵控制
柜的转换开关应置于“自动状态”。
4.2设备管理员在确定要启动消防水泵时要事先通知消控中心。
4.3启动消防水泵前要先检查水泵进出口阀门确定是在开启的位置,并对水泵舟
车三圈以上,确认转动平滑后再开始运行。
4.4远程操作:泵房内水泵控制柜的转换开关置于“手动状态”。
消控中心消防主
机控制盘将水泵的锁定钥匙转到“允许状态”此时按一下启动按钮消防水泵就启动运行。
按一下停止按钮消防水泵就停止运行。
(远程操作要有两人进行:一人在消控室操作,一人在泵房内监视水泵运行情况)。
4.5就地操作
4.5.1启动水泵:在消防泵房内,把水泵控制柜的转换开关置于“手动状态”选
择要启动水泵相对应的控制按钮,按一下绿色的起动按钮水泵就启动运行。
运行中发现振动、异常声音、异常气味时就立即停止。
4.5.2停止水泵:选择运行水泵相对应的控制按钮。
按下红色的停止按钮时水泵
就停止运行。
水泵停止后要对泵房全面检查一次,查看有无异常情况。
安全管理编号:YTO-FS-PD443
消防泵的主备用切换方法比较通用版
In The Production, The Safety And Health Of Workers, The Production And Labor Process And The Various Measures T aken And All Activities Engaged In The Management, So That The Normal Production Activities.
标准/ 权威/ 规范/ 实用
Authoritative And Practical Standards
消防泵的主备用切换方法比较通用
版
使用提示:本安全管理文件可用于在生产中,对保障劳动者的安全健康和生产、劳动过程的正常进行而采取的各种措施和从事的一切活动实施管理,包含对生产、财物、环境的保护,最终使生产活动正常进行。
文件下载后可定制修改,请根据实际需要进行调整和使用。
消防泵是消防给水系统中的心脏。
在消防给水系统中,设置消防备用泵可以增加整个系统的安全性,有利于提高整个消防给水系统的可靠性。
根据国家标准《建筑设计防火规范》(GBJ 16-87)的规定,除室外消防用水量不超过25 L/s的工厂、仓库和七层至九层的单元住宅外,固定消防水泵应设有备用泵,其工作能力不应小于一台主要泵。
《高层民用建筑设计防火规范》(GB50045-95)中7.5.3条也规定,消防给水系统应设置备用消防水泵。
消防泵的主备用切换是实现消防备用泵投人工作的重要手段,也是消防给水系统可靠、安全运行的重要环节。
1消防泵的主备用切换方法
从消防泵启动信号的采集和控制角度来看,设计中消防泵的主备用切换主要有两种方法。
其关键是控制信号来源的选择,它可分为电流信号控制方法和压力信号控制方法。
通常消防泵的主备用泵均需按互为备用的方式进行设计。
电流信号控制方法是现在消防设计中消防泵主备用切换的常用方法。
它通过对水泵的电动机电流信号反馈,来判断消防泵是否工作。
当电机短路(断电)、电流过大时,电源自动切换至另一台水泵机组的电机,停止第一台消防泵的工作,启动另一台消防泵工作。
压力信号控制方法是在消防泵的出水总管上设置电节点压力表,如图1,消防泵主备用的切换是由该压力表的信号来判断的。
当消防泵控制箱接到动作指令,立刻启动任一台消防泵,若消防泵工作后的电节点压力表指示的压力未能达到设定的压力值时,控制箱将自动切换到另一台消防泵,启动工作。
当然,电气消防泵控制的原理中可任意指定一台消防泵为主泵或备用泵。
电流信号控制方法在目前国内采用最早、最多,而压力信号控制方法在国外的自动喷水灭火系统开始运用,压力信号控制方法对消防给水系统的自动控制提供了可靠的方式。
2 主备用切换方法的比较
2.1 消防泵出现故障的原因分析消防泵出现的故障最终结果是消防泵不能正常给水。
造成消防泵故障的主要
原因可分为两类,一类是电机故障,另一类是水泵故障。
在电机故障中,有电源问题,如供电不正常造成的断电、电压过高或过低等;电机本身问题,如由于电机损坏无法运行;电机过载问题,电机带动的水泵轴功率过大或管道堵塞,形成电流过大而停止工作等等。
在水泵故障中,可能是由于水泵轴承、叶轮等问题造成。
根据工程实践的经验,电机故障的概率要较水泵故障的概率高。
2.2 消防泵主备用切换方法的分析
采用电流信号控制方法,其优点是能及时反映电机的故障。
而电机的故障也是水泵机组的主要故障。
但这种方法并不能说明消防泵实际是否出水。
采用压力信号控制方法,可以真实地反映消防水泵机组实际的工作情况,其切换的信号可信度较高。
无论是电机故障还是水泵故障,只要消防泵出水管的压力没有达到一定的压力值,就需要及时切换主备用消防泵。
然而,压力信号控制方法也有其缺点。
当消防给水系统的实际出水量较大时,消防泵出水管的压力下降后,易造成消防泵压力的切换信号误动作,停止一台消防泵的工作切换成另一台消防泵的启动。
水泵在切换、重新启动需要有一定的时间。
这样,势必会造成消防给水的中断,延误灭火。
此外,压力信号控制方法也可在电路设计考虑电机的短路、
过载、过压、缺相、欠压、过热等保护功能。
从系统的角度分析,将消防泵和电机作为整个消防泵机组来看,判断其给水的最终效果即水泵机组是否出水,理应是采用压力信号控制的主备用切换方法较为合理。
在消防给水系统的用水量超过设计流量时,可以在控制电路上加以调整,扩大消防泵用电容量的设计,保证全部消防泵工作的用电量,而消防泵的用电量在消防期间仅仅是全部消防用电量的一个部分,对整个消防供电系统不至于造成较大的影响。
这样,在出水管压力降低后,及时启动另一台消防泵,可不必考虑原消防泵的关闭问题。
从可靠性的角度出发,消防泵给水系统的可靠性是与可靠性的结构有关。
消防泵机组设置主备用的可靠性框图可表示为水泵与电机的串联关系、机组与机组之间的并联关系"〔1〕如图2。
整个线路的可靠度可简单地表示为R。
R=1一(1一
R1)X(1一R2)=1一(1一R1aXRlb)X(1一R2aXR2b)。
从图2中也可直接看出,提高消防泵与电机的可靠性同等重要。
若仅以1台电机(1B或2B)来判断给水系统的可靠是不完善的。
采用整个系统的可靠度即在消防泵机组出水总管设置信号,这才是具有可靠意义的。
值得注意的是,在消防泵出水管压力值的设定时,应考虑灭火初期时消防高位水箱的给水压力。
因此,对于临
时高压的室内消防给水系统,其设定的压力值应大于平时管网的给水压力。
另在启动消防主泵后,需设置一定的延时,方可去判断电节点压力表的压力值,确定是否需要切换到另一台消防备用泵。
并建议将电节点压力表设置在消防泵出水管阀门后(按水流方向)的消防给水总管,对喷淋系统宜设置在消防泵出水管止回阀与水力报警阀组之间,以确保压力信号的可靠。
2.3 两种控制方法的比较
电流信号控制方法和压力信号控制方法均是消防泵主备用切换的方式。
消防泵控制的要求是一致的,而两种方法对信号的采集不同,最终控制的效果也不同。
两种控制方法的比较如表1。
合理选择消防泵主备用切换的方式具有重要的意义。
它对于消防给水系统的可靠性起重要的保证作用。
压力信号控制方法有利于BA的真实控制,特别适用于自动喷水灭火系统。
2.4 压力信号控制方法需注意的问题
在压力信号控制方法的设计中,需注意以下问题,以确保消防泵主备用切换的可靠。
(1)电节点压力表宜设在消防泵的出水总管上,不应设在消防泵阀门之前(按水流方向)。
压力设定值应大于高位消防水箱的给水压力值。
这是因为压力信号的位置应能真实地反映消防泵和系统的给水运行工况。
若压力表设在消防泵出水阀前,而阀门误关闭,则消防泵虽然正常运行,可显示正常的给水压力,但系统的给水工况并不正常。
因此,采用压力信号控制方法的切换还可调整消防泵的管路不正常的给水工况,及时启动另一给水管路的消防泵。
(2)在信号控制判断的电路设计中,切换需设置一定的时间延时。
这主要是由于消防泵启动后需要有一个启动时间和管道内水流经过的时间,判断的时间延时需大于上述两个因素,一般可采用1~2min。
这样,电节点压力信号的控制值才有真实性。
(3)压力信号控制方法的切换可以任意指定消防泵的主泵或备用泵,也可定期切换。
(4)消防泵的控制除了自动控制外,还应有就地(手动)控制的功能。
消防泵的工作信号需传送至消防控制中心,以便监视、控制和楼宇的自控记录。
在消防电源的设计中宜考虑足够的消防泵用电容量。
在消防泵的切换中,建议不停止第一台消防泵的供电,即按最不利时两台消防泵供电的状况设计,这样有利于满足消防给水系统在超负荷状态下的运行工况,且可减少消防泵在切换时的时间间隔,尽快让消防泵投入运行,提高消防给水的时间。
3 结论
(1)消防泵主备用的切换的关键是控制信号的选择。
切换消防泵主备用的方法主要有电流信号控制和压力信号控制。
(2)在消防给水系统中,综合水泵机组的工作效果,采用压力信号控制方法要优于电流信号控制方法。
压力信号控制方法能真实地反映出消防给水的工况,其切换信号的可靠性较高。
建议在有关的消防规范中明确消防泵主备用的切换的压力信号控制方法。
(3)在采用压力信号控制方法时,切换信号的电节点压力表宜设置在消防泵的出水总管的阀门后或水力报警阀后。
同时,电路设计中需设置一定的延时再去判断电节点压力表的压力值。
该位置可输入公司/组织对应的名字地址
The Name Of The Organization Can Be Entered In This Location。