变电站电气主接线图
- 格式:doc
- 大小:1.00 MB
- 文档页数:17
第5、6章图形,.2×8MW(a)2×10MVA1G G1TG2G2T110KV 35KV2×8MW(b)20MVAG1G 2GG110KV2T2G(c)2×8MW2×10MVAG1G 1T G35KVTMY-100X8ZN21-10/1250配CD10ⅢLZZBJ-101000/5 0.5/10P 2×(ZR-YJV 22-6/3×240)RN2-6/0.5ASFWG8000-6/4950Ue=6.3kV Ie=916.45A COSφ=0.8LZX-10Q800/5 0.5/10PJ Y N 2-10-03(改)1G励磁变(厂家配套)励磁互感器(厂家配套)JDJ-6 36 0.1√3√J Y N 2-10-17J Y N 2-10-18RN2-6/0.5A 36 0.1 0.1JDZJ-63√√3J Y N 2-10-20√ 6 0.1 0.1√333JDZJ-6RN2-6/0.5AHY5WZ-10/302G同左ZN21-10/2500配CD10ⅢLFZJ-102000/5 0.5/0.5/10/10PJ Y N 2-10-03SF9-20000/110Y,d11121±3×2.5%/6.3kV U k %=10.5%LGJ-120GW4-110DW/630左接地LW25-1261250A,40kA GW4-110DW/630双接地LCWB 6-110100/50.2/0.5/10P/10PTYD-110/ -0.07H 3√LRD-60-B 50/5GW4-110DW/630双接地JDCF-110Y5W1-100/260√110 0.1 0.13√√33GW 13-60G/400Y1W-73/15ZN21-10/630配CD10ⅢLZZBJ-10100/5 0.5/10PJ Y N 2-10-03ZR-YJV 22-6/3×50SC9-800/6.3D,yn116.3±5%/0.4kV Ud%=7LMZ1-0.5 1200/5LMZ1-0.5 1200/5SC9-800/10D,yn1110±5%/0.4kV Ud%=7ZR-YJV 22-10/3×50LZZBJ-10100/5 0.5/10PZN21-10/630配CD10ⅢJ Y N 2-10-06(改)ZR-YJV 22-10/3×5010kV外来电源J Y N 2-10-19JDZJ-10HY5WZ-17/51RN2-10/0.5A10/0.1kV0.4kVLMY100×8-40×8DW15-1200DW15-1200DW15-12000.1LMY100×8-40×8G~G~TMY-100X8GW4-110DW/630左接地图5-19 某水电站电气主接线全图图5-20 地区变电所接线8回35kV220kV4 回2×120MVA至无功补偿装置6 回2×60MVA4回2×10MVA1T图5-21 终端变电所接线4回10kV2T110kV 35kVVV22-13×50+1×251#厂变进线V 42L6-A,0~150A DT864-2,380/220V,3(6A)42L6-V,0~450V说明:BT95O9为事故照明切换板,其直流电源用VV22-1-2×4电缆引至直流屏。
变电站一次系统图1、单母线接线特点:只有一组母线,所有电源回路和出线回路,均经过必要的开关电器连接到该母线上并列运行。
主要优点:接线简单、清晰,所用电气设备少,操作方便,配电装置造价便宜。
主要缺点:适应性差,母线故障或检修,全部回路均需停电;任一回路断路器检修,该回路停电。
适用范围:单电源的发电厂和变电所,且出线回路数少,用户对供电可靠性要求不高的场合;10kV纯无功补偿设备出线(电容器、电抗器)。
2、单母线分段接线特点:与单母线接线方法相比,增加了分段断路器,将母线适当分段。
当对可靠性要求不高时,也可利用分段隔离开关进行分段。
母线分段的数目,决定于电源的数目,容量、出线回数,运行要求等。
母线分段一般分为2-3段。
优点:母线发生故障时,仅故障母线段停电,缩小停电范围;对重要用户由两侧共同供电,提高供电可靠性;缺点:当一段母线故障或检修时,与该段所连的所有电源和出线均需断开,单回供电用户要停电;任一出线断路器检修,该回路要停电。
适用:6~10kV,出线6回以上;35~66kV,出线不超过8回时;110~220kV,出线不超过4回时。
3、单母线分段带旁路母线接线优点:增设旁路母线,增设各出线回路中相应的旁路隔离开关,解决出线断路器检修时的停电问题。
为了节省投资,可不专设旁路断路器,而用母线分段断路器兼作旁路断路器。
因为电压越高,断路器检修所需的时间越长,停电损失越大,因此旁路母线多用于35kV以上接线。
适用:6~10kV接线一般不设旁路母线;35~66kV,可设不专设旁路断路器的旁路母线;110kV出线6回以上,220 kV出线4回以上,宜用专设旁路断路器的旁路母线;出线断路器使用可靠性较高的SF6断路器时,可不设旁路母线。
4、双母线接线优点:两条母线互为备用,一条母线检修时,另一条母线可以继续工作,不会中断对用户的供电;任一母线侧隔离开关检修时,只需断开这一回路即可;工作母线故障时,所有回路能迅速切换至备用母线而恢复供电;可将个别回路单独接在备用母线上进行特殊工作或试验;因而可靠性高,运行方式灵活,便于扩建。
精心整理学习帮手精心整理学习帮手精心整理学习帮手精心整理学习帮手精心整理学习帮手精心整理学习帮手精心整理学习帮手精心整理学习帮手2×8MW(a)2×10MVA1G G1TG2G2T110KV 35KV2×8MW(b)20MVAG1G 2GG110KV2T2G(c)2×8MW2×10MVAG1G 1T G35KV精心整理 学习帮手TMY-100X8ZN21-10/1250配CD10ⅢLZZBJ-101000/5 0.5/10P 2×(ZR-YJV 22-6/3×240)RN2-6/0.5ASFWG8000-6/4950Ue=6.3kV Ie=916.45A COSφ=0.8LZX-10Q800/5 0.5/10PJ Y N 2-10-03(改)1G励磁变(厂家配套)励磁互感器(厂家配套)JDJ-6 36 0.1√3√J Y N 2-10-17J Y N 2-10-18RN2-6/0.5A 36 0.1 0.1JDZJ-63√√3J Y N 2-10-20√ 6 0.1 0.1√333JDZJ-6RN2-6/0.5AHY5WZ-10/302G同左ZN21-10/2500配CD10ⅢLFZJ-102000/5 0.5/0.5/10/10PJ Y N 2-10-03SF9-20000/110Y,d11121±3×2.5%/6.3kV U k %=10.5%LGJ-120GW4-110DW/630左接地LW25-1261250A,40kA GW4-110DW/630双接地LCWB 6-110100/50.2/0.5/10P/10PTYD-110/ -0.07H 3√LRD-60-B 50/5GW4-110DW/630双接地JDCF-110Y5W1-100/260√110 0.1 0.13√√33GW 13-60G/400Y1W-73/15ZN21-10/630配CD10ⅢLZZBJ-10100/5 0.5/10PJ Y N 2-10-03ZR-YJV 22-6/3×50SC9-800/6.3D,yn116.3±5%/0.4kV Ud%=7LMZ1-0.5 1200/5LMZ1-0.5 1200/5SC9-800/10D,yn1110±5%/0.4kV Ud%=7ZR-YJV 22-10/3×50LZZBJ-10100/5 0.5/10PZN21-10/630配CD10ⅢJ Y N 2-10-06(改)ZR-YJV 22-10/3×5010kV外来电源J Y N 2-10-19JDZJ-10HY5WZ-17/51RN2-10/0.5A10/0.1kV0.4kVLMY100×8-40×8DW15-1200DW15-1200DW15-12000.1LMY100×8-40×8G~G~TMY-100X8GW4-110DW/630左接地图5-19 某水电站电气主接线全图精心整理学习帮手精心整理 学习帮手图5-20 地区变电所接线8回35kV220kV4 回2×120MVA至无功补偿装置6 回2×60MVA4回2×10MVA1T图5-21 终端变电所接线4回10kV2T110kV 35kV第六章图形精心整理学习帮手精心整理学习帮手精心整理学习帮手精心整理 学习帮手VV22-13×50+1×251#厂变进线V 42L6-A,0~150A DT864-2,380/220V,3(6A)42L6-V,0~450V说明:BT95O9为事故照明切换板,其直流电源用VV22-1-2×4电缆引至直流屏。
2×8MW(a)2×10MVA1G G1TG2G2T110KV 35KV2×8MW(b)20MVAG1G 2GG110KV2T2G(c)2×8MW2×10MVAG1G 1T G35KV图5-18 例5-2方案接线图(a )方案5-2-1接线,(b)方案5-2-2接线,(c)方案5-2-3接线注:图5-19见:“主接线厂用电实例”图TMY-100X8ZN21-10/1250配CD10ⅢLZZBJ-101000/5 0.5/10P 2×(ZR-YJV 22-6/3×240)RN2-6/0.5ASFWG8000-6/4950Ue=6.3kV Ie=916.45A COSφ=0.8LZX-10Q800/5 0.5/10PJ Y N 2-10-03(改)1G励磁变(厂家配套)励磁互感器(厂家配套)JDJ-6 36 0.1√3√J Y N 2-10-17J Y N 2-10-18RN2-6/0.5A 36 0.1 0.1JDZJ-63√√3J Y N 2-10-20√ 6 0.1 0.1√333JDZJ-6RN2-6/0.5AHY5WZ-10/302G同左ZN21-10/2500配CD10ⅢLFZJ-102000/5 0.5/0.5/10/10PJ Y N 2-10-03SF9-20000/110Y,d11121±3×2.5%/6.3kV U k %=10.5%LGJ-120GW4-110DW/630左接地LW25-1261250A,40kA GW4-110DW/630双接地LCWB 6-110100/50.2/0.5/10P/10PTYD-110/ -0.07H 3√LRD-60-B 50/5GW4-110DW/630双接地JDCF-110Y5W1-100/260√110 0.1 0.13√√33GW 13-60G/400Y1W-73/15ZN21-10/630配CD10ⅢLZZBJ-10100/5 0.5/10PJ Y N 2-10-03ZR-YJV 22-6/3×50SC9-800/6.3D,yn116.3±5%/0.4kV Ud%=7LMZ1-0.5 1200/5LMZ1-0.5 1200/5SC9-800/10D,yn1110±5%/0.4kV Ud%=7ZR-YJV 22-10/3×50LZZBJ-10100/5 0.5/10PZN21-10/630配CD10ⅢJ Y N 2-10-06(改)ZR-YJV 22-10/3×5010kV外来电源J Y N 2-10-19JDZJ-10HY5WZ-17/51RN2-10/0.5A10/0.1kV0.4kVLMY100×8-40×8DW15-1200DW15-1200DW15-12000.1LMY100×8-40×8G~G~TMY-100X8GW4-110DW/630左接地图5-19 某水电站电气主接线全图图5-20 地区变电所接线8回35kV220kV4 回2×120MVA至无功补偿装置6 回2×60MVA4回2×10MVA1T图5-21 终端变电所接线4回10kV2T110kV 35kVVV22-13×50+1×251#厂变进线V 42L6-A,0~150A DT864-2,380/220V,3(6A)42L6-V,0~450V说明:BT95O9为事故照明切换板,其直流电源用VV22-1-2×4电缆引至直流屏。
变电站主接线图(解释)变电站⼀次系统图1、单母线接线特点:只有⼀组母线,所有电源回路和出线回路,均经过必要的开关电器连接到该母线上并列运⾏。
主要优点:接线简单、清晰,所⽤电⽓设备少,操作⽅便,配电装置造价便宜。
主要缺点:适应性差,母线故障或检修,全部回路均需停电;任⼀回路断路器检修,该回路停电。
适⽤范围:单电源的发电⼚和变电所,且出线回路数少,⽤户对供电可靠性要求不⾼的场合;10kV纯⽆功补偿设备出线(电容器、电抗器)。
2、单母线分段接线特点:与单母线接线⽅法相⽐,增加了分段断路器,将母线适当分段。
当对可靠性要求不⾼时,也可利⽤分段隔离开关进⾏分段。
母线分段的数⽬,决定于电源的数⽬,容量、出线回数,运⾏要求等。
母线分段⼀般分为2-3段。
优点:母线发⽣故障时,仅故障母线段停电,缩⼩停电范围;对重要⽤户由两侧共同供电,提⾼供电可靠性;缺点:当⼀段母线故障或检修时,与该段所连的所有电源和出线均需断开,单回供电⽤户要停电;任⼀出线断路器检修,该回路要停电。
适⽤:6~10kV,出线6回以上;35~66kV,出线不超过8回时;110~220kV,出线不超过4回时。
3、单母线分段带旁路母线接线优点:增设旁路母线,增设各出线回路中相应的旁路隔离开关,解决出线断路器检修时的停电问题。
为了节省投资,可不专设旁路断路器,⽽⽤母线分段断路器兼作旁路断路器。
因为电压越⾼,断路器检修所需的时间越长,停电损失越⼤,因此旁路母线多⽤于35kV以上接线。
适⽤:6~10kV接线⼀般不设旁路母线;35~66kV,可设不专设旁路断路器的旁路母线;110kV出线6回以上,220 kV出线4回以上,宜⽤专设旁路断路器的旁路母线;出线断路器使⽤可靠性较⾼的SF6断路器时,可不设旁路母线。
4、双母线接线优点:两条母线互为备⽤,⼀条母线检修时,另⼀条母线可以继续⼯作,不会中断对⽤户的供电;任⼀母线侧隔离开关检修时,只需断开这⼀回路即可;⼯作母线故障时,所有回路能迅速切换⾄备⽤母线⽽恢复供电;可将个别回路单独接在备⽤母线上进⾏特殊⼯作或试验;因⽽可靠性⾼,运⾏⽅式灵活,便于扩建。
2×8MW(a)2×10MVA1G G1TG2G2T110KV 35KV2×8MW(b)20MVAG1G 2GG110KV2T2G(c)2×8MW2×10MVAG1G 1T G35KVTMY-100X8ZN21-10/1250配CD10ⅢLZZBJ-101000/5 0.5/10P 2×(ZR-YJV 22-6/3×240)RN2-6/0.5ASFWG8000-6/4950Ue=6.3kV Ie=916.45A COSφ=0.8LZX-10Q800/5 0.5/10PJ Y N 2-10-03(改)1G励磁变(厂家配套)励磁互感器(厂家配套)JDJ-6 36 0.1√3√J Y N 2-10-17J Y N 2-10-18RN2-6/0.5A 36 0.1 0.1JDZJ-63√√3J Y N 2-10-20√ 6 0.1 0.1√333JDZJ-6RN2-6/0.5AHY5WZ-10/302G同左ZN21-10/2500配CD10ⅢLFZJ-102000/5 0.5/0.5/10/10PJ Y N 2-10-03SF9-20000/110Y,d11121±3×2.5%/6.3kV U k %=10.5%LGJ-120GW4-110DW/630左接地LW25-1261250A,40kA GW4-110DW/630双接地LCWB 6-110100/50.2/0.5/10P/10PTYD-110/ -0.07H 3√LRD-60-B 50/5GW4-110DW/630双接地JDCF-110Y5W1-100/260√110 0.1 0.13√√33GW 13-60G/400Y1W-73/15ZN21-10/630配CD10ⅢLZZBJ-10100/5 0.5/10PJ Y N 2-10-03ZR-YJV 22-6/3×50SC9-800/6.3D,yn116.3±5%/0.4kV Ud%=7LMZ1-0.5 1200/5LMZ1-0.5 1200/5SC9-800/10D,yn1110±5%/0.4kV Ud%=7ZR-YJV 22-10/3×50LZZBJ-10100/5 0.5/10PZN21-10/630配CD10ⅢJ Y N 2-10-06(改)ZR-YJV 22-10/3×5010kV外来电源J Y N 2-10-19JDZJ-10HY5WZ-17/51RN2-10/0.5A10/0.1kV0.4kVLMY100×8-40×8DW15-1200DW15-1200DW15-12000.1LMY100×8-40×8G~G~TMY-100X8GW4-110DW/630左接地图5-19 某水电站电气主接线全图图5-20 地区变电所接线8回35kV220kV4 回2×120MVA至无功补偿装置6 回2×60MVA4回2×10MVA1T图5-21 终端变电所接线4回10kV2T110kV 35kV第六章图形VV22-13×50+1×251#厂变进线V 42L6-A,0~150A DT864-2,380/220V,3(6A)42L6-V,0~450V说明:BT95O9为事故照明切换板,其直流电源用VV22-1-2×4电缆引至直流屏。
2×8MW
(a)
2×10MVA
1G G
1T
G
2G
2T
110KV 35KV
2×8MW
(b)
20MVA
G
1G 2G
G
110KV
2T
2G
(c)
2×8MW
2×10MVA
G
1G 1T G
35KV
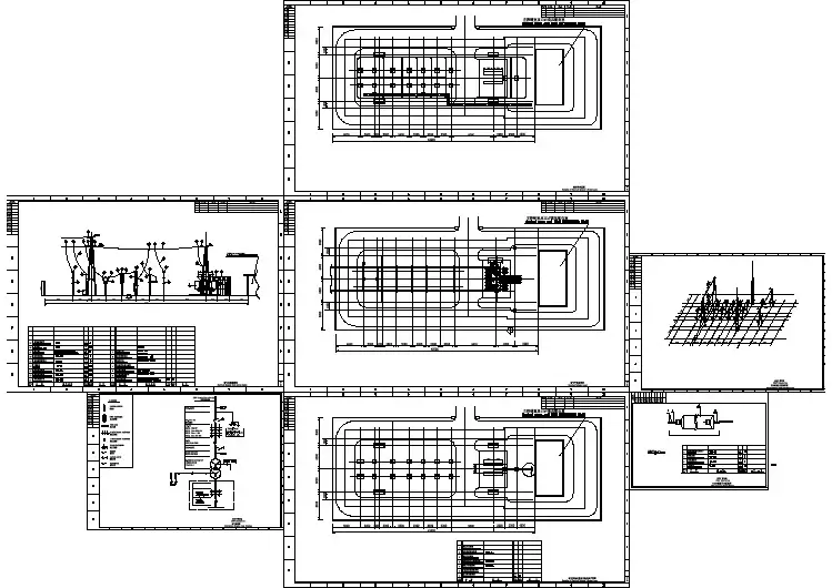
图5-18 例5-2方案接线图
(a )方案5-2-1接线,(b)方案5-2-2接线,(c)方案5-2-3接线
注:图5-19见:“主接线厂用电实例”图
TMY-100X8
ZN21-10/1250配CD10Ⅲ
LZZBJ-101000/5 0.5/10P 2×(ZR-YJV 22-6/3×240)
RN2-6/0.5A
SFWG8000-6/4950Ue=6.3kV Ie=916.45A COSφ=0.8LZX-10Q
800/5 0.5/10P
J Y N 2-10-03(改)
1G
励磁变(厂家配套)励磁互感器(厂家配套)JDJ-6 36 0.1
√
3
√J Y N 2-10-17
J Y N 2-10-18
RN2-6/0.5A 3
6 0.1 0.1
JDZJ-6
3√√3
J Y N 2-10-20
√ 6 0.1 0.1
√33
3
JDZJ-6RN2-6/0.5A
HY5WZ-10/302G
同
左
ZN21-10/2500配CD10Ⅲ
LFZJ-10
2000/5 0.5/0.5/10/10P
J Y N 2-10-03
SF9-20000/110Y,d11
121±3×2.5%/6.3kV U k %=10.5%
LGJ-120
GW4-110DW/630左接地LW25-1261250A,40kA GW4-110DW/630双接地
LCWB 6-110100/5
0.2/0.5/10P/10P
TYD-110/ -0.07H 3
√LRD-60-B 50/5
GW4-110DW/630
双接地JDCF-110
Y5W1-100/260
√110 0.1 0.1
3
√√
3
3
GW 13-60G/400
Y1W-73/15
ZN21-10/630配CD10ⅢLZZBJ-10100/5 0.5/10P
J Y N 2-10-03
ZR-YJV 22-6/3×50SC9-800/6.3D,yn11
6.3±5%/0.4kV Ud%=7
LMZ1-0.5 1200/5
LMZ1-0.5 1200/5SC9-800/10D,yn11
10±5%/0.4kV Ud%=7
ZR-YJV 22-10/3×50LZZBJ-10
100/5 0.5/10P
ZN21-10/630配CD10Ⅲ
J Y N 2-10-06(改)
ZR-YJV 22-10/3×5010kV外来电源
J Y N 2-10-19
JDZJ-10HY5WZ-17/51
RN2-10/0.5A
10/0.1kV
0.4kV
LMY100×8-40×8
DW15-1200
DW15-1200
DW15-1200
0.1LMY100×8-40×8
G
~G
~
TMY-100X8
GW4-110DW/630左接地图5-19 某水电站电气主接线全图
图5-20 地区变电所接线
8回
35kV
220kV
4 回
2×120MVA
至无功补偿装置
6 回
2×60MVA
4回2×10MVA
1T
图5-21 终端变电所接线
4回
10kV
2T
110kV 35kV
VV22-13×50+1×25
1#厂变进线
V 42L6-A,0~150A DT864-2,380/220V,3(6A)42L6-V,0~450V
说明:
BT95O9为事故照明切换板,其直流电源用VV22-1-2×4电缆引至直流屏。
穿管管径
引出电缆型号截面电流互感器断 路 器配电屏编号刀 开 关馈线名称回路电流(A)配电屏型号HD13BX-200/31
DZ20J-100/20A VV22-1-2×4DZ20J-100/20A VV22-13×4+1×2.5LMZ1-0.66,100/5 G25 G25 G25DZ20J-100/40A VV22-13×10+1×6VV22-13×6+1×4DZ20J-100/32A G15 G25DZ20J-100/20A VV22-13×6+1×4DZ20J-100/32A LMZ1-0.66,100/5DZ20J-100/20A G32
G32VV22-1-4×6DZ20J-100/32A VV22-13×25+1×10
DZ20J-100/63A G25DZ20J-100/32A VV22-13×6+1×4LMZ1-0.66,
150/5
DW15-200/120A
事故照明分电箱
BT9509
GGD 1-36HD13BX-200/31整流器一
1
34
吊 车23.6集水井水
泵动力箱
11
备 用28安装场
动力箱
13备 用GGD 1-36(改)
2
HD13BX-200/31主厂房照明 分电箱
31.757
生活区25 1#机动力盘
115
至直流屏
I段380/220V LMY-40×4
A B C
1厂变
K Y N -28-10-78
SC-80/66.3±5%/0.4KV Y,yn0Uk%=4.0
A A A 42L6-A,0~100A
A A A A A A VV 22-3×50+1×25
42L6-A,0~100A
RN1-6/10A
6.3KV G25DZ20J-100/20A VV22-13×4+1×2.510.8厂内油处理室分电箱HD13BX-200/31
LMZ1-0.66,150/5
DW15-200/120A VV22-13×50+1×25图6-3 某水电站厂用电接线图
DW15-200/120A LMZ1-0.66,100/5
DZ20J-100/32A LMZ1-0.66,100/5 G25DZ20J-100/32A VV22-13×6+1×4 G25VV22-13×4+1×2.5DZ20J-100/20A
DZ20J-100/20A
2#厂变进线
HD13BX-200/31GGD 1-10母 线 分 段 3
备 用HD13BX-200/31
GGD 1-36(改) 4
25 2#机动力盘
115
整流器二
备 用11
LMZ1-0.66,100/5
DZ20J-100/20A G25 G25DZ20J-100/32A VV22-13×6+1×4VV22-13×4
DZ20J-100/20A G32
DZ20J-100/32A
VV22-14×6
DZ20J-100/20A
HD13BX-200/31
GGD 1-36
备 用 5
前池动力箱
2710
气系统副厂房照
明分电箱
28
备 用
2厂变
S9-80/3510.5±2×2.5%/0.4KV Y,yn0Uk%=4.0VV 22-3×50+1×25
DT864-2,380/220V,3(6A)42L6-V,0~450V 42L6-A,0~150A
A kwh
A A A A 42L6-A,0~150A A A A
kwh V A 42L6-A,0~100A
PRWG1-10/100
10kV
A
A A 42L6-A,0~100A。