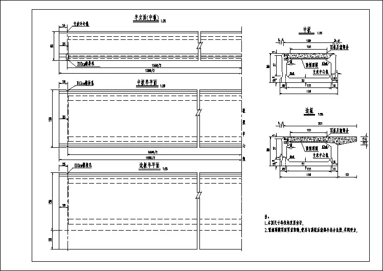
4. 图幅尺寸 :a35. 字符高度 :2,2.2,3.5,4,56. 字符比例 :0.657. 线形粗度 :0,0.25,0.4,1,2公路桥梁计算机辅助设计系统BCAD2. 标注单位 :cm1. 绘图单位 :m3. 绘图比例 :1:50OK设 计复 核审 核江苏省高速公路建设指挥部宁靖盐高速公路二期工程兴化新庄至姜堰寿圣村段 V3标(K32+200~K40+100)K00+000 郭 家 庄 大 桥桥 型 布 置 图比 例日 期1:5001999.4图 号SV3-00-00交通部第二公路勘察设计院4. 图幅尺寸 :a35. 字符高度 :2,2.5,3.5,4,56. 字符比例 :0.657. 线形粗度 :0,0.25,0.4,1,2公路桥梁计算机辅助设计系统BCAD2. 标注单位 :cm1. 绘图单位 :m3. 绘图比例 :1:50OK450.000000000000000DL_K%%C%%C3、N1、N2钢筋上部弯折部分与墩柱钢筋对应焊接。2、N5加强钢筋每2m设置一道,N4定位钢筋沿N5钢筋每圆周均匀布置4根。1、本图尺寸以厘米计,钢筋直径以毫米计。注:墩柱1208710783.5788710立 面IIIIIIIIIIIVIV150VII - IIIII - III150150IV - IVV - V150120.8L1+6001200120.8双面焊20cm132.6平均127.3双面焊20cm140.8一根基桩材料数量表全桥桥墩桩基础材料数量表%%c净54、施工时,钻孔桩桩底必须清孔,其沉淀土厚度不得大于0.2D,即30cm。5、桩基应采取有效的方法进行检测。12x1012x10二 审一 审复 核设 计2003.2S5-3-1-8图号见 图日 期桥 墩 一般 构 造 图K38+130 漳河大桥比 例第 二 公 路 勘 察 设 计 研 究 院中 交第3标段( 路 荆 门 至 当 阳 段湖 北 省荆 宜 高 速 公 路 建 设 指 挥 部501501515200LL1600%%C%%C%%C%%C3.4L-1701515%%C %%c%%c%%c%%c%%c%%c%%c%%c%%c12013.512013.5%%C审查 审核复 核设 计2004.6日 期SⅣ-10图 号墩柱钢筋构造图比 例烟台市路通公路勘察设计有限公司国道206莱州境内改建工程烟台市公路管理局K59+747.09 沙河中桥11V比 例图 号日 期D标段:K57+200~K66+541.024烟台市公路管理局设 计复 核审 核审 查SV-3-1-3墩帽钢筋构造图K59+747.09 沙河中桥国道206莱州境内改建工程2004.061:250烟台市路通公路勘察设计有限公司37第六合同段:K57+200~K66+541.024烟台市公路管理局设 计复 核审 核审 查SV-3-1-3桥墩基桩钢筋构造图K59+747.09 沙河中桥国 道 206 莱 州 境 改 建 工 程2004.06烟台市路通公路勘察设计有限公司1017