CAD教程电气2011之(四)弱电平面图
- 格式:doc
- 大小:981.50 KB
- 文档页数:2
AutoCAD电气工程制图教程AutoCAD电气工程制图设计教程CAD电气制图设计是一个综合的知识领域,大家需要掌握一些什么样的知识,才可以具体的把握CAD电气制图设计。
想学AutoCAD电气工程制图教程吗?下面是考无忧网校小编为你分享的AutoCAD电气工程制图设计教程。
AutoCAD电气工程制图教程1.将“照明设备”图层设为当前图层,单击【常用】标签【绘图】面板【矩形】工具,绘制一个600×240的矩形2.单击【常用】标签【绘图】面板【图案填充】工具,将其填充为实色,并创建为图块,完成配电箱的绘制,如下图所示:(AutoCAD电气工程制图设计教程图例1)3.接下来绘制开关,单击【常用】标签【绘图】面板【直线】按钮,绘制如下图所示的图形:(AutoCAD电气工程制图教程图例2)4.将所绘图形使用【旋转】命令旋转-45度,结果如下图所示:(AutoCAD电气工程制图设计教程图例3)5.绘制一个直径为50的圆,并填充为实色,这样就绘制好了一个双控单联开关,如下图所示:(AutoCAD电气工程制图设计教程图例4)6.将所绘图形复制一个,使用【修剪】工具将图形下半部修剪,改为单联开关图形,如下图所示:(AutoCAD电气工程制图教程图例5)7.将配电箱旋转90度,复制一份,分别移至楼梯处,如下图所示:(AutoCAD电气工程制图设计教程图例6) 8.将开关复制并移到合适位置,如下图所示:(AutoCAD电气工程制图教程图例7)9.新建一个名为“照明电路”的图层,并设为当前图层,使用粗实线连接灯具与开关,结果如下图所示:(AutoCAD电气工程制图设计教程图例8)10.本例中所用插座均为单相三极组合插座,而有线电视插座与插座及网络插座均安排在弱电图线中11.将插座复制并移至合适位置,如下图所示:(AutoCAD电气工程制图教程图例9)12.连接插座线路,为了显示清晰,我们将照明线路图层隐藏。
13.这样我们就将灯具与插座布置好了,完成后如下图所示:(AutoCAD电气工程制图教程图例10)14.在绘制完成电气施工图后,需要对图形进行尺寸标注和文字说明,因为本例直接使用建筑平面图修改,因此不需要再标注尺寸,只需添加说明文字以及图框即可,完成后如下图所示:(AutoCAD电气工程制图教程图例11)以上是考无忧网校小编为你分享的AutoCAD电气工程制图设计教程。
CAD弱电制图准则1 目的规范设计部设计的弱电平面图,确保设计质量。
2弱电平面图制图规定2.1弱电平面图制图必须符合国家有关制图的标准和规定。
2.2比例、图幅、图框●比例:优先采用建筑设计院的建施图比例,其次采用国标系列:建筑单体通常选用1:100、1:150、1:200等;弱电总平面通常采用1:500、1:1000、1:2000;大样图、局部放大图通常采用1:25、1:50、1:75、1:100;必要时可根据具体情况决定。
(大样图、局部放大图最佳的比例是1:50)●图幅:优先采用建筑设计院的建施图图幅,其次参照上一条“比例”要求确定。
●图框:必须根据先前选用的图幅选择公司的标准图框。
公司的标准图框见:Xinxi_NetServer\设计部$\部门文件\深化设计标准\标准图框。
2.3标题栏●工程号:ZK0×(年)-1××(具体工程号)见:Xinxi_NetServer\设计部$\项目设计\工程号(如08年的第一个项目就是ZK08-101)●工程名称:按方案系统图的工程名称。
(主设统一,每个项目要统一)●项目栏:用楼栋名称表示,与建筑设计院建施图的项目名称相统一。
●图号栏:“阶段号-(系统号)+(楼号)+该楼的图纸编号”说明:阶段号:FS-方案设计阶段、CS-初步设计阶段、SS-深化设计阶段;(每个阶段的代号不同,有系统图的加上系统号,如弱电-FS-0201 方案设计第二号楼的第一张图;弱电-FS-PD01方案设计综合布线系统图的第一张)系统号:(总系统图有此号,分楼栋系统图无此号):PD-综合布线系统、NE-计算机网络系统、TV-卫星及有线电视系统、PA-公共广播系统、TT-厅堂场馆系统、IC-智能卡系统、BJ-安防报警系统、SX -摄像监控系统、XG-电子巡更系统、BA-建筑设备监控系统、JX-多媒体教学系统、TP-电话通讯系统、LE-信息发布系统(有些没有规定的可以根据简称来规定)楼号(总系统图、总管线图、只有一栋楼无此号):从01开始,将楼栋编号该楼的图纸编号:从01开始,顺序为设计说明、系统图、弱电平面图(从最下面一层开始)、大样图。
知识目标1.了解电气平面布置图特征2.熟悉变电站常用设备、元器件的绘制3.掌握变电站平面布置图的绘制方法4.熟悉消防安全系统常用元器件的绘制5.掌握弱电工程平面图的绘制方法6.识别建筑平面图基本组成元素,了解典型建筑平面图绘制项目任务完成下列3个电气平面图的绘制,学习如何用定位线进行合理布局;能够快速应用图层功能,熟练应用复制、镜像工具提高绘图效率。
•变电所电气平面布置图•消防报警平面图•35kV变电站电气平面布置图变电所电气平面布置图消防报警平面图35kV变电站电气平面布置图项目相关知识•电气平面布置图介绍•变电所电气平面布置图的识图•消防报警平面图的识图•35kV变电站电气平面布置图识图项目实施•变电所电气平面布置图绘制•消防报警平面图绘制•35kV变电站电气平面布置图拓展知识•建筑平面图的识图•建筑平面图的绘制电气平面布置图介绍电气平面布置图是一种位置图,是用来表示各种电气设备及器件、装置与线路的平面与空间的位置、安装方式及其相互关系的图纸,是进行电气安装的主要依据,也是电气工程图纸中的重要图纸之一。
电气平面布置图也遵循简图规则,即图中所示的电气设备或器件并非真实外形,而是反映该设备或器件占地情况的简单图形,如矩形、圆形等简单的几何平面图形。
电气平面布置图介绍电气平面布置图中表示设备连接情况的导线用单直线或双直线表示,提供的是走线方向、连接方式等信息,而非真实导线数,具体导线类型、规格、数量等信息一般在附近标注。
常用的电气平面布置图有变配电所电气平面图、室外供电线路平面图、照明平面图、弱电平面图等,图中除了提供了设备安装位置、线路敷设方法的详细信息之外,还经常对所用导线型号、规格、数量、管径等施工数据进行标注。
变电所电气平面布置图消防报警平面图35kV变电站电气平面布置图整个变电所由柴油发电机房、低压配电室、高压配电室、变压器室4部分构成,所有设备之间的连接线用两根平行线来表示真实的连接导线,给出连接方式和线路走向。
弱电系统cad图例 CAD建筑制图规范一、总则1、工作目标2、工作范围3、工作风格二、制图1、制图规范2、图纸目录3、图纸深度4、图纸字体5、图纸版本及修改标志7、图纸幅面 8、图层及文件交换格式 9、补充说明一、总则工作目标1.1规范化——有效提高建筑设计的工作质量;1.2标准化——提高建筑设计的工作效率;1.3网络化——便于网络上规范化管理和成果的共享。
工作范围本标准是建筑CAD制图的统一规则,适用于房屋建筑工程和建筑工程相关领域中的CAD制图及软件开发。
工作风格本标准为形成设计院绘图表达的风格的统一,不提倡个人绘图表达风格。
建筑制图的表达应清晰、完整、统一。
二、制图1、制图规范工程制图严格遵照国家有关建筑制图规范制图,要求所有图面的表达方式均保持一致。
2、图纸目录各个专业图纸目录参照下列顺序编制:建筑专业:建筑设计说明;室内装饰一览表;建筑构造作法一览表;建筑定位图;平面图;立面图;剖面图;楼梯;部分平面;建筑详图;门窗表;门窗图。
结构专业:结构设计说明;桩位图;基础图;基础详图;地下室结构图;(人防图纸);地下室结构详图;楼面结构布置;楼面配筋图;梁、柱、板、楼梯详图;结构构件详图。
电气专业:电气设计说明;主要设备材料表;平面图;详图;系统图;控制线路图。
大型工程应按强电、弱电、火灾报警及其智能系统分别设置目录。
给排水专业:给排水设计说明;总图;平面图(自下而上);详图;给水、消防、排水、雨水系统图。
暖通空调专业:暖通设计说明;主要设备材料表,平面图;剖面图;详图;系统图。
3、图纸深度工程图纸除应达到国家规范规定深度外,尚须满足业主提供例图深度及特殊要求。
4、图纸字体除投标及其特殊情况外,均应采取以下字体文件,尽量不使用TureType字体,以加快图形的显示,缩小图形文件。
同一图形文件内字型数目不要超过四种。
以下字体形文件为标准字体,将其放置在CAD软件的FONTS目录中即可。
Romans.shx(西文花体)、romand.shx(西文花体)、bold.shx(西文黑体)、txt.shx(西文单线体)、simpelx(西文单线体)、st64f.shx(汉字宋体)、ht64f.shx(汉字黑体)、kt64f.shx(汉字楷体)、fs64f.shx(汉字仿宋)、hztxt.shx (汉字单线)。
弱电系统cad图例_CAD建筑制图规范讲解弱电系统cad图例CAD建筑制图规范一、总则1、工作目标2、工作范围3、工作风格二、制图1、制图规范2、图纸目录3、图纸深度4、图纸字体5、图纸版本及修改标志7、图纸幅面8、图层及文件交换格式9、补充说明一、总则工作目标1.1规范化——有效提高建筑设计的工作质量;1.2标准化——提高建筑设计的工作效率;1.3网络化——便于网络上规范化管理和成果的共享。
工作范围本标准是建筑CAD制图的统一规则,适用于房屋建筑工程和建筑工程相关领域中的CAD制图及软件开发。
工作风格本标准为形成设计院绘图表达的风格的统一,不提倡个人绘图表达风格。
建筑制图的表达应清晰、完整、统一。
二、制图1、制图规范工程制图严格遵照国家有关建筑制图规范制图,要求所有图面的表达方式均保持一致。
2、图纸目录各个专业图纸目录参照下列顺序编制:建筑专业:建筑设计说明;室内装饰一览表;建筑构造作法一览表;建筑定位图;平面图;立面图;剖面图;楼梯;部分平面;建筑详图;门窗表;门窗图。
结构专业:结构设计说明;桩位图;基础图;基础详图;地下室结构图;(人防图纸);地下室结构详图;楼面结构布置;楼面配筋图;梁、柱、板、楼梯详图;结构构件详图。
电气专业:电气设计说明;主要设备材料表;平面图;详图;系统图;控制线路图。
大型工程应按强电、弱电、火灾报警及其智能系统分别设置目录。
给排水专业:给排水设计说明;总图;平面图(自下而上);详图;给水、消防、排水、雨水系统图。
暖通空调专业:暖通设计说明;主要设备材料表,平面图;剖面图;详图;系统图。
3、图纸深度工程图纸除应达到国家规范规定深度外,尚须满足业主提供例图深度及特殊要求。
4、图纸字体除投标及其特殊情况外,均应采取以下字体文件,尽量不使用TureType字体,以加快图形的显示,缩小图形文件。
同一图形文件内字型数目不要超过四种。
以下字体形文件为标准字体,将其放置在CAD软件的FONTS目录中即可。
浩辰CAD教程电气2011之(四)弱电平面图
在浩辰CAD电气2011软件中,强电平面设计和弱电平面设计是作为两个独立的功能模块存在的。
虽然两个模块的操作模式和操作界面基本一样,但是其具体内容却是不一样的,如图块、图块类别、线缆类型等。
为了让读者更直观的了解弱电平面设计,我们在浩辰CAD官网下载了浩辰CAD电气2011软件(地址:/download_7.html),并实际演示用户应如何在弱电平面图的绘制中定义和修改参数。
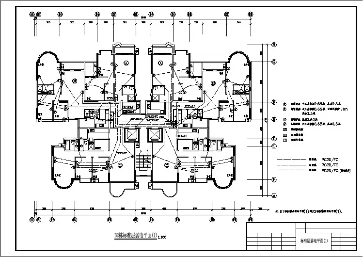
弱电平面设计包括线缆布置和设备布置两个方面的内容。
首先,让我们来看一下线缆布置。
通过线缆布置功能,我们可以根据设置和定义设备布置相关参数和线缆形式。
在线缆设置对话框中,我们可以看出,其操作和强电平面设计完全相同,其它设备的有关设置也和强电平面操作也完全相同,不同的是线缆设置的线型和标注定义的设备类别(如图1)。
图1
接下来,我们就需要输入设备插入参数,进行线型比例调整、探测器计算等操作,限于篇幅,我这里就不多做介绍了。
然后,让我们来看一下设备布置。
要想使用设备布置功能,我们可以点击【弱电平面图】--【设备布置】,对弱电设备进行布置。
布置方法包括任意布置、参数布置、线上布置、行列布置、圆弧布置、沿墙布置、多个沿墙布置、房间均匀布置、开关自动布置、插座穿墙布置等功能。
执行【设备布置】命令,软件会弹出对话框,在对话框中,用户可以进行相关参数的修改(如图2)。
图2
在修改了相关参数之后,我们需要依次点击【弱电平面图】--【设备选择赋值】或【弱电平面图】--【设备整赋值】来将型号规格等信息赋值给平面设备。
完成了线缆布置和设备布置之后,我们所要设计的弱电平面图就已经初具雏形了。
可以看出,弱电平面设计和强电平面设计在功能上存在诸多不同,操作的细节也有差异。
只有熟练的掌握了两者的区别,才有可能在日后的实际应用中得心应手。