医院病房楼设计共29页文档
- 格式:ppt
- 大小:2.54 MB
- 文档页数:29
病房楼1.结施-1页总说明7-2地下部分墙体水平施工缝做法与结施-3地下室侧壁施工缝处构造大样图相矛盾。
答:按图施工2.结施-1页图15图16.梁板后浇带图是否有加强钢筋。
3.结施-3页⑧轴-⑩轴与v轴交汇处,筏板底部附加钢筋在电梯井处是否断开。
4.结施-3页无集水坑,电梯井坑剖面。
5.结施-3页集水坑位置及个数与人防图建施不符合。
答:结合人防6.结施-3页⑾-⑿轴与W轴处符板钢筋怎样布置。
7.结施-3页主楼外墙2截面尺寸是否是300mm。
答:非人防区按400,人防区按图施工8.结施-3页外墙2以外的外墙为外墙1与结施-6页外墙标注Q3,Q4相冲突。
答:较大走9.结施-3页主楼外墙2配筋图与人防图WQ2配筋不一致。
10.结施-3页⒁-⒃与T相交处,标高-5.4m能改为-5.3m吗?11.结施-6页剪力墙柱表中拉筋型号及间距。
12.结施-6页YBZ a³钢筋支数与详图不符合。
13.结施-3页筏板顶标高-5.3m与人防结施-3页人防图区标高5.1m相矛盾。
14.病房楼结施-13页④-⑤与W轴处梁标高是否为4.98m。
15.结施-27页⒀轴与V轴相交处长度2350mm是否为lc17外侧,8轴交u轴Lc19的定位尺寸是否为2000mm。
16.病房楼建施-5页雨篷标高与建施-16页立面图标高不一致。
17.风井盖板尺寸及位置。
18.建施病房楼-7页⒀-⒁轴手术净化设备夹层做法?答:按深化设计走19.病房楼一层板顶标高-0.05与人防结施6页说明7中标高-0.03相冲突。
答-0.0520.人防图结施-6页人防区域板顶标高是否为-0.7m?21.人防图结施-4.5页梁图与地下车库结施-4页关于人防区梁标注有重叠区域,是否按人防结构图纸施工。
答;待定22.地下车库结施-4页⑧-⑨轴与W轴交汇处lc10(2)是否有误。
23.地下车库结施-4页③-④间klb5(6A)是否有误。
24.地下车库结施-5页①轴与⒃轴外侧挑檐400是否与室外台阶相冲突。
关于医院综合病房楼室内设计理念一、医院大厅设计医院,一个与生命密切关联的场所,是不同于其它公共建筑的特殊场所,生命的延续、生命的挽救均与医院联系在一起。
由于医院常常与病痛相关,人们对医院有一种天生的恐惧感。
如何使得医院这一与生命密切相关的地方成为真正关爱生命的场所,这不仅仅是依靠医生高超的医技和医院精良的设备就能完全解决的,良好室内环境和气氛的营造也是关键因素之一。
我们以为市内现有的医院虽然纷纷大规模开始翻新、改造或新建,在室内装修的这个特殊领域始终保持着医院的传统模式。
我们设计风格摆脱传统医院“白色恐怖”的形象,简单模仿宾馆的豪华风格:进口大理石地面,丰富的造型墙面,高档铝塑板带有凹型灯槽的天花,人性化的便捷服务设施等手法纷纷运用到医院装修设计中,不仅只是体现了建筑豪华感,在风格上也不失医院本身的基本格调,尤其是国外的医院虽然很现代化,装修也各有品味,但总不失一种的医院的“感觉”。
国内新建医院缺少的不仅仅是彻底改变传统老医院的形象,还要始终保持一种现代化“医院的感觉”。
在设计中我们除克服传统印象外,也充分体现了现代化风格与医院特色,并逐渐实现与国际接轨,造就真正的现代化医院。
现代医院室内设计应以简洁的造型语言来表达丰富的设计内涵。
简洁不等于简单。
简洁就是用最少的语言来表达更多更深的含义,是另一种意义上的复杂。
建筑大师密斯·凡得罗--“少就是多”(Less is more)的精辟观点用于医院室内设计是最恰当不过的。
简洁的设计不是侧重造型元素的复杂,而是用合乎医院使用功能的最简洁的流线来形成、组织空间,如在大厅中应该配置足够的休息座椅、显眼的问讯导医台、电脑查询机、ATM机、高低台面的公用电话、电子显示屏、宜人的绿化、精巧的商业空间等等。
门诊大厅(问询、挂号、收费、取药)大空间为动区希望环境有顺,对医院第一印象产生信赖感,尽快到达候诊科室。
具备宜人的排队等候环境,具备良好的空间指导。
大量采用简洁、耐用、中高档材料,大量重复性标识指引牌,电子屏、公用电话、室内绿化等设施齐全,较高的室内照度。
关于医院综合病房楼室内设计理念一、医院大厅设计医院,一个与生命密切关联的场所,是不同于其它公共建筑的特殊场所,生命的延续、生命的挽救均与医院联系在一起。
由于医院常常与病痛相关,人们对医院有一种天生的恐惧感。
如何使得医院这一与生命密切相关的地方成为真正关爱生命的场所,这不仅仅是依靠医生高超的医技和医院精良的设备就能完全解决的,良好室内环境和气氛的营造也是关键因素之一。
我们以为市内现有的医院虽然纷纷大规模开始翻新、改造或新建,在室内装修的这个特殊领域始终保持着医院的传统模式。
我们设计风格摆脱传统医院“白色恐怖”的形象,简单模仿宾馆的豪华风格:进口大理石地面,丰富的造型墙面,高档铝塑板带有凹型灯槽的天花,人性化的便捷服务设施等手法纷纷运用到医院装修设计中,不仅只是体现了建筑豪华感,在风格上也不失医院本身的基本格调,尤其是国外的医院虽然很现代化,装修也各有品味,但总不失一种的医院的“感觉”。
国内新建医院缺少的不仅仅是彻底改变传统老医院的形象,还要始终保持一种现代化“医院的感觉”。
在设计中我们除克服传统印象外,也充分体现了现代化风格与医院特色,并逐渐实现与国际接轨,造就真正的现代化医院。
现代医院室内设计应以简洁的造型语言来表达丰富的设计内涵。
简洁不等于简单。
简洁就是用最少的语言来表达更多更深的含义,是另一种意义上的复杂。
建筑大师密斯·凡得罗--“少就是多”(Less is more)的精辟观点用于医院室内设计是最恰当不过的。
简洁的设计不是侧重造型元素的复杂,而是用合乎医院使用功能的最简洁的流线来形成、组织空间,如在大厅中应该配置足够的休息座椅、显眼的问讯导医台、电脑查询机、ATM机、高低台面的公用电话、电子显示屏、宜人的绿化、精巧的商业空间等等。
门诊大厅(问询、挂号、收费、取药)大空间为动区希望环境有顺,对医院第一印象产生信赖感,尽快到达候诊科室。
具备宜人的排队等候环境,具备良好的空间指导。
大量采用简洁、耐用、中高档材料,大量重复性标识指引牌,电子屏、公用电话、室内绿化等设施齐全,较高的室内照度。
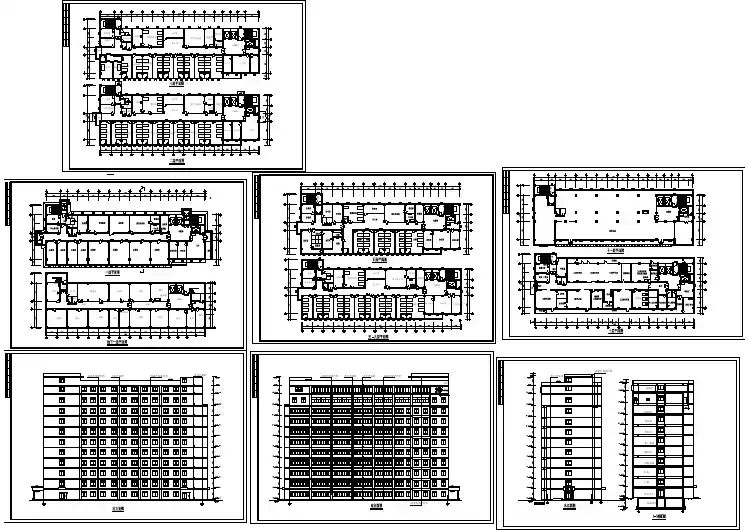
大型公共建筑--病房楼设计任务书综合医院高层病房楼任务书一、设计项目:本选题是大型城市综合医院高层病房楼设计,550床规模,总建筑面积控制在38000m2左右。
二、建设地段:1、人民医院地段——在西直门院区南侧扩建2、海淀医院地段——在海淀医院院区西侧扩建3、306医院地段——在安翔北路与科学院南路转角处扩建4、清华附属医院地段——根据总体规划新建病房楼5、酒仙桥医院地段——根据总体规划新建病房楼以上五处地段任选一处,有关地段的环境、规划要求、高度限制、地面停车要求等详见地段图。
三、设计内容与使用面积分配组成:1.面积配比表:2各护理单元设36-40床左右,病房18-20间;其中三床间4-5间,双床间8-10间、单床间2-3间,单床套间1套。
病房内均设卫生间。
有一个双床或三床间为ICU病房,要求邻近护士站护理单元内设置:护士站、值班室、医生办公室、护士室、主任及护士长室、治疗室、处置室、示教(会议)室、医护人员餐室、更衣室、医用厕卫淋浴室配餐室、开水间、药品器材库房、病区公共卫生间、病员活动室特殊护理单应设特殊用房,如儿科应设游戏室、骨伤科、康复科应设锻炼健身房,产科应设家属陪护等用房各单元建筑面积控制在1400-1600m2左右2.中心供应及病区药房:1800m2中心供应室设置:收件、毁型、清洗间、打包间、蒸馏水制作、手套上粉、灭菌间、无菌物品存放、一次性物品库、发件、更衣室、浴室、卫生间、办公室等病区药房设置:中、西药库、摆药室、发药、候药厅、更衣室、办公室、值班等3.手术中心及重症监护(ICU):3500m2手术中心设净化手术室约20间,其中大手术室2-3间,中手术室10-12间,小手术6-8间手术中心辅助用房设置:换床间、登记、值班、刷手间、器械库、无菌敷料库、药品库、苏醒室、麻醉准备间、家属等候、更衣室、浴室、卫生间、医生办公室、护士休息室、主任办公室、麻醉师办公室、示教室、餐厅、清洗间、消毒室等。
目录第一章工程概况 (3)1.1工程概况 (3)1.2进场情况 (3)1.3临建布置依据 (3)1.4临建布置原则 (4)第二章现场施工形象部署 (5)2.1文明施工 (5)2.2企业文化 (5)2.3 施工现场平面布置说明 (5)2.4生产设施布置 (6)2.5远程监控系统 (8)第三章临时建筑设施尺寸及做法 (9)3.1现场大门布置 (9)3.2施工图牌布置 (10)3.2门卫布置 (13)3.4南侧场区地面硬化做法 (14)3.5旗台做法 (14)3.6标准养护室做法 (17)3.7吸烟室、饮水室做法 (18)3.8安全讲评台做法 (19)3.9场区内操作棚做法 (21)3.10场区内排水沟做法 (23)3.11场区内钢筋堆场做法 (25)3.12场区内配电箱防护做法 (26)3.13消防配置做法 (28)3.14基坑临边防护做法 (28)3.15场区东立面围墙做法 (30)3.16钢筋废料池等做法 (31)第四章施工安排 (32)4.1临时建筑工程目标 (32)4.2施工顺序安排 (32)4.3管理技术措施 (32)第五章施工进度计划 (33)5.1临建施工计划 (33)5.2材料及劳动力计划 (33)第六章施工准备 (34)6.1技术准备 (34)6.2现场准备 (34)6.3资金准备 (34)6.4资源配置计划 (34)6.4.1劳动力配置计划 (35)6.4.2物资配置计划 (35)第七章安全文明施工 (36)7.1确保工程安全的技术组织措施 (36)7.1.1安全基本要要求 (36)7.1.2防触电安全技术措施 (36)7.2文明施工保证措施 (37)7.2.1 工作制度 (37)7.2.2施工现场文明要求 (37)7.2.3施工现场材料管理措施 (37)7.3环境保护措施 (37)7.3节能措施 (38)7.5场区内林木的保护 (38)第一章工程概况1.1工程概况施工现场的临时设施较多,这里主要指施工期间临时搭建、料具堆放、场地硬化、各种工具式用房搭建、临电、临水布置等。
某医院病房楼装配式结构设计随着国家及地方装配式建筑相关政策的推动,装配式建筑已经逐渐从概念变为现实。
某医院病房楼采用装配式建筑技术,通过采用预制混凝土夹心保温外挂墙板、桁架钢筋混凝土叠合板、预制楼梯三种预制构件,使装配式建筑单体预制率达到20.6%,是本市第一个采用装配式的公建项目,希望能给类似的设计提供借鉴。
标签:装配式建筑,单体预制率,预制混凝土夹心保温外墙挂板,桁架钢筋混凝土叠合板一、项目概况本工程为医院病房楼,采用框架剪力墙结构体系。
地下建筑面积为1085m2,地上建筑面积1.19 万m2,地下1层,地上10层,其中半地下1层,建筑主要屋面总高度为38.3m。
地下室建筑功能为设备用房,一层至四层建筑功能为门诊楼,包括放射科、血液透析、手术室等,五层至十层主要建筑功能为病房。
一层至四层层高分别为4.2m、4m、4.0m、4.5m,五层至十层层高为3.6m。
本工程建筑抗震设防类别为重点设防类,即乙类,地基基础设计等级为乙级。
本工程抗震设防烈度为6度,设计基本地震加速度值为0.05g,根据《中震防发2009(49)关于学校、医院等人员密集场所建设工程抗震设防要求确定原则的通知》设计基本地震加速度值提高0.05g,即本工程设计基本地震加速度值采用0.10g。
设计地震分组为第二组,场地类别为Ⅰ1类,框架、剪力墙抗震等级为二级,框架、剪力墙抗震构造措施等级为三级。
基本风压取50年一遇,为0.65KPa,地面粗糙度为A类,基本雪压为0.40KPa。
基础采用柱下钢筋混凝土独立基础、墙下采用条形基础加构造防水底板,基础持力层为中风化石英岩,基础、构造底板、地下室外墙采用C35防水混凝土,抗渗等级为P6。
项目开始设计时间为2016年7月,完成设计时间为2016年10月,2017年4月开工,2018年6月主体结构及非承重围护墙、内隔墙施工完成。
二、装配式设计根据当地政府对建筑产业现代化项目建设的要求,政府投资新建的建设项目(学校、医院、博物馆、保障房等)须采用装配式建筑技术,且装配式建筑单体预制率不低于20%。
长控医院住院楼建筑平面图一楼:阴面西楼梯间病房病房病房病房病房病房病房洗手间洗手间库房电梯间楼梯间 3.4m病房3m一楼大厅表面积为:6.9m*7.6m 。
一楼走廊表面积为: 46.54m*1.9m,一楼至二楼楼梯阶数为: 22 阶,西楼梯间阶数为: 22 阶,一楼至二楼楼梯间平台表面积为:1.6m*3.27m 。
一楼阳面病房表面积为:4.7m*3m ,阴面病房表面积为:3.4m*3m 。
护士办公室地表面积为:4.7m*6.18m 。
一楼阳面八间为带有卫生间病房,其面积为:1.7m*2m,卫生间不铺。
病房病房病房病房病房病房病房病房护士办公室4.7m大厅3m4.7m病房6.18m 阳面二楼:西楼梯间病房病房病房病房病房病房病房洗手间洗手间库房电梯间楼梯间 3.4m病房3m 二楼大厅表面积为: 6.9m*3.7m 。
二楼走廊表面积为:46.54m*1.9m 。
二楼至三楼楼梯阶数为: 22 阶,备用楼梯间阶数为: 22 阶,二楼至三楼楼梯平台表面积为: 1.6m*3.27m 。
病房病房病房病房病房病房病房病房护士办公室4.7m护士长办公室6.9*4.7医生办公室3m4.7m病房 6.18m三楼:西楼梯间病房病房病房病房病房病房病房洗手间洗手间库房电梯间楼梯间 3.4m病房3m 三楼大厅表面积为:6.9m*3.7m 。
三楼走廊表面积为: 46.54m*1.9m 。
三楼至四楼楼梯阶数为: 22 阶,三楼至四楼楼梯平台表面积为:1.6m*3.27m 。
病房病房病房病房病房病房病房病房护士办公室4.7m护士长办公室医生办公室3m4.7m病房 6.18m第三手术室库房办公室洗手间病房病房病房病房洗手间洗手间库房电梯间楼梯间 3.4m病房手术室 3m 四楼大厅表面积为: 6.9m*3.7m 。
四楼走廊表面积为:31.41m*6.9m 四楼至五楼楼梯阶数为: 22 阶,四楼至五楼楼梯平台表面积为:1.6m*3.27m 。