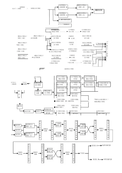
锅炉疏水管路布置简图
- 格式:doc
- 大小:66.00 KB
- 文档页数:3
锅炉疏水系统介绍一,系统概述机组疏排水利于保持合格的蒸汽及炉水品质,通过管道间的阀门疏水加强了蒸汽流动的稳定性。
汽轮机疏水系统有两方面作用:1首先是为了排出冷凝的水,并防止汽轮机进水。
2其次是为了防止在各种状态下的蒸汽管道中发生水冲击。
疏水方法分为两种:启动疏水和连续疏水。
二,设备规范本体疏水阀门编号及阀体名称:(由MKVI控制)注:疏水阀远方控制由汽轮机MKVI 提供,每个阀门在就地均装有按钮以便就地手动控制。
管道疏水阀一览表(由DCS 控制部分)三,疏水系统的投运在机组停机过程中,MKVI 将判断发电机主断路器的位置以便决定各蒸汽截止/控制阀座前/后的疏水阀何时打开。
该功能将自动进行无需运行人员的干预。
机组跳闸后,疏水系统将再决定自己的阀位以便为未定的启动作准备。
⑴当高压蒸汽主控制阀开度低于20%时,再热系统管道疏水阀将打开①高压缸排汽管道疏水阀(LBC20 AA222)②再热蒸汽管道疏水阀(LBB21 AA412)⑵当高压蒸汽主控制阀开度低于10%时,由MKVII 控制的本体疏水阀将自动打开:①高压蒸汽主截止/控制阀阀座前疏水阀 MOV-SSV-1A②高压蒸汽主截止/控制阀阀座后疏水阀 MOV-SSV-2A③右侧再热截止/控制阀阀座前疏水阀 MOV-SSV-3A④右侧再热截止/控制阀阀座后疏水阀 MOV-SSV-4A⑤左侧再热截止/控制阀阀座前疏水阀 MOV-SSV-3B⑥左侧再热截止/控制阀阀座后疏水阀 MOV-SSV-4B⑶当汽轮机低压控制阀达到一个最小的开度时,汽轮机低压控制阀进口疏水阀将打开。
①低压进汽控制阀阀座前疏水阀 MOV-SAD-1②低压进汽控制阀阀座后疏水阀 MOV-SAD-2相关的主要热工参数及整定值四,疏水系统的停运⑴当高压蒸汽主控制阀(CV)开度大于10%时,本体疏水阀由MKVI 控制,将从全开位置(100%)转到全关(0%)位置:①高压蒸汽主截止/控制阀阀座前疏水阀 MOV-SSV-1A②高压蒸汽主截止/控制阀阀座后疏水阀 MOV-SSV-2A③右侧再热截止/控制阀阀座前疏水阀 MOV-SSV-3A④右侧再热截止/控制阀阀座后疏水阀 MOV-SSV-4A⑤左侧再热截止/控制阀阀座前疏水阀 MOV-SSV-3B⑥左侧再热截止/控制阀阀座后疏水阀 MOV-SSV-4B⑵当高压蒸汽主控制阀开度大于20%时,管道疏水阀由DCS 控制按程序依次间隔30 秒关闭。
1、锅炉给水流程图(画图)2.过热器减温水系统过热器系统设有三级喷水减温器,用来调节过热蒸汽温度,一级减温器布置在低过出口集箱至大屏进口集箱的连接管上,二级减温器布置在全大屏过热器出口集箱至屏式过热器进口集箱的连接管上,共两只,三级减温器布置在屏式过热器出口集箱至高温过热器进口集箱的连接管上,共两只。
一级减温器在运行中作汽温的粗调节,是过热汽温的主要调节手段。
当切除高加时,喷水量剧增,此时大量喷水必须通过一级减温器,以防全大屏过热器、屏式过热器和高温过热器超温。
三级减温器作为调节过热蒸汽左、右侧的汽温偏差和汽温微调用,确保蒸汽出口温度。
二级减温器主要调节大屏过热器出口汽温及其左右汽温偏差。
三级减温器均采用多孔喷管式垂直于减温器筒体轴线的笛形管上有许多小孔,减温水从小孔喷出并雾化后,与同方向的蒸汽进行混合,达到降低汽温的目的,调温幅度通过调节喷水量加以控制。
过热器的作用:过热器的作用是锅炉受热面的重要组成部分,它的作用是将饱和蒸汽加热成为具有一定温度的过热蒸汽。
在实际工作时,要求锅炉负荷或其它工况发生变化时,能保证过热蒸汽温度维持在规定范围内。
再热器的作用加热汽轮机高压缸排出的蒸汽,使之成为具有一定温度的再热蒸汽,然后再送回到汽轮机的中低压缸内继续作功。
省煤器再循环的作用在锅炉启动初期,汽包上水结束后,应开启省煤器再循环电动门,以便在点火后升压升温期间使省煤器形成水循环,在汽包连续上水后,关闭省煤器再循环电动门。
对流式过热器的汽温变化具有对流特性,即它的出口温度是随锅炉蒸发量的增大而升高。
辐射和半辐射辐射式过热器的汽温特性与对流式过热器相反,即辐射式过热器的出口温度随锅炉蒸发量的增大而降低。
半辐射过热器同时吸收炉内辐射热量和烟气冲刷的对流热量,因此它的汽温特性介于辐射和对流之间,汽温随蒸发量的变化比较小。
当锅炉蒸发量增大时,其出口汽温可能又小量的增加,也可能有小量的降低,主要取决于辐射和对流两部分吸热量的比例。
锅炉排空气管道布置简图
管路代号:
1.省煤器给水管排空气(左右各一趟,采气点十点)
2.左侧屏过出口集箱排空气(一趟)
3.右侧屏过出口集箱排空气(一趟)
4.低过出口集箱排空气(一趟)
5.前包墙上集箱排空气(一趟)
6.分离器至侧包墙连接管排空气(左右各一趟,采气点十点)
7.饱和蒸汽管排空气(左右各一趟,采气点十点)
8.高过出口集箱排空气(一趟)
9.无压退水管道
注:排水漏斗布置在45米平台外侧,K2、K3柱之间阀门处做8号槽钢支架。
漏斗按断面250×200×250尺寸,长度按边管外余100mm 制作。
蒸汽管道疏水标准图业主图号DOCUMENT INDEX图 号工程名称阶段:详细工程设计版次REV.装置名称专业:热工专业A 序号图纸及文件名称业主图号图 号张数折合1#图版次备注NO.Drawing TitleDrawing NumberDrawing NumberPageEquel SizeA1REV.Remark1图纸目录CQMCP1-SNEC-71002-TME-SDW-027 C00685-71002-10036-1610.125A 2蒸汽管道疏水标准图(10T1等级蒸汽管道启动疏水用)CQMCP1-SNEC-71002-TME-SDW-028 C00685-71002-10036-1610.25A SD-083蒸汽管道疏水标准图(3A1等级蒸汽管道连续疏水用-疏水不回收)CQMCP1-SNEC-71002-TME-SDW-029 C00685-71002-10036-1610.25A OD-024蒸汽管道疏水标准图(4A1等级蒸汽管道连续疏水用-疏水不回收)CQMCP1-SNEC-71002-TME-SDW-030 C00685-71002-10036-1610.25AOD-04合计40.875CQMCP1-SNEC-71002-TME-SDW-027 C00685-71002-10036-16本文件中图样、文字及数据未经宁波工程有限公司书面许可,不得以任何方式复制或扩散至第三方。
THIS DRAWING OR DOCUMENT MAY NOT BE REPRODUCED OR DISCLOSED TO ANY THIRDPARTY IN ANY FORM WITHOUT THE PRIOR WRITTEN PERMISSION OF SNEC第 1 张 共 34 张SHEET OF重庆MDI一体化项目配套热岛中心项目热电联产装置。
(2)——前包墙下集箱疏水管路
(3)——低温过热器进口集箱疏水管路
(4)——屏式过热器进口集箱疏水管路
(5)——高温过热器进口集箱疏水管路
(6)——左右侧双色水位汁疏水管路
(7)——右侧高位水位汁疏水管路
说明:1.疏放水系统厂家只供应阀门,设计院未出管路布置图安装单位根据现场实际情况布置管路,所需材料列在下页名细表中。
2.管路由集箱疏水点向两侧引,沿柱子走,以便管路支吊。
3.管路水平段要留1/50的疏水坡度,管路要安装膨胀弯头,根据管路热位移的大小,确定膨胀弯数量。
锅炉疏水管道零件名细表一.管路部分
二.支吊架部分
三.说明:
1.表中管子合计为898m、其中90m为12Cr1MoV管子.
2.截止阀30只,厂家供27只,水位汁疏水二次阀3只为设计院设计(件
号14).
3.接管座合计为15件,设计院图中编号为11号,管件制作标准为
GD0415—02.
4.件号14——为J61H—200、DN20,3只(碳钢)
5.按设计院排污系统图要求:Φ28×4管支吊架1.4m布置一个,898m
管子约需支吊架600个,系统阀门集中布置在炉两侧排污母管上部,用10号槽钢制作两个阀门支架.。
(2)——前包墙下集箱疏水管路
(3)——低温过热器进口集箱疏水管路
(4)——屏式过热器进口集箱疏水管路
(5)——高温过热器进口集箱疏水管路
(6)——左右侧双色水位汁疏水管路
(7)——右侧高位水位汁疏水管路
说明:1.疏放水系统厂家只供应阀门,设计院未出管路布置图安装单位根据现场实际情况布置管路,所需材料列在下页名细表中。
2.管路由集箱疏水点向两侧引,沿柱子走,以便管路支吊。
3.管路水平段要留1/50的疏水坡度,管路要安装膨胀弯头,根据管路热位移的大小,确定膨胀弯数量。
锅炉疏水管道零件名细表一.管路部分
二.支吊架部分
三.说明:
1.表中管子合计为898m、其中90m为12Cr1MoV管子.
2.截止阀30只,厂家供27只,水位汁疏水二次阀3只为设计院设计(件
号14).
3.接管座合计为15件,设计院图中编号为11号,管件制作标准为
GD0415—02.
4.件号14——为J61H—200、DN20,3只(碳钢)
5.按设计院排污系统图要求:Φ28×4管支吊架1.4m布置一个,898m
管子约需支吊架600个,系统阀门集中布置在炉两侧排污母管上部,用10号槽钢制作两个阀门支架.。