围网、灯光施工
- 格式:docx
- 大小:185.41 KB
- 文档页数:35
围网、灯光的安装
一、预埋件的制作、安装:
1、制作:灯柱采用300*300厚为8mm的钢板及四根Φ14的螺纹钢围焊而成,钢板穿孔(DN100)作为灯柱的插孔。
围网立柱采用200 *200厚为8mm的钢板及四根Φ14的螺纹钢围焊而成,钢板穿孔(DN50)作为灯柱的插孔。
2、确定预埋点:按照平面,以设计间距为基准,以实际长度进行平分及尺寸调整(围网立柱的原则上不高于4米,不低于3米),确定预埋位置,并做上记号。
3、安装:根据预埋位置,挖坑埋件,挖坑深度围网及灯柱为500mm。
制作好基坑后,将预埋件置入并将立柱斜撑及球座连好用混凝土浇筑成型。
混凝土表面留安装孔。
二、围网的安装:
1、安装立柱、横管:根据预埋位置,安装立柱,并将立柱与斜撑焊接一起。
施工中必须注意立柱的垂直性,不得有倾斜。
根据围网的高度,在围网的中部焊接一根横管,横管的安装必须平直,左右高度一致。
立柱和横管安装完后,刷上防水漆,颜色与围网一致。
2、安装围网:将围网(成品)根据设计的高度进行焊接,焊接时必须将网围用力张开、绷紧,不得有任何的松动,焊接完后,用力压网围不能有明显的凹陷。
三、灯光的安装:
安装时先将灯具及电路通过灯柱连接好,并将灯具固定好,再将灯柱整体安放在场地上,安放完后,刷上防水漆,颜色与围网一致。
围网施工方案1. 背景和目的围网施工是指在建筑、工地、公共场所等需要进行封闭性管理和保护的地方设置围墙、围栏或防护网等设施的过程。
围网施工的目的是为了维护施工现场的安全,防止人员和物品流失,保护环境和周边公共利益。
本文档将介绍围网施工的具体方案和步骤。
2. 施工前准备工作在开始围网施工前,需要进行以下准备工作:2.1 施工方案设计根据具体的需求和条件,制定围网施工的方案设计。
方案设计应考虑以下几个方面:围网的布置方式、围网的材料和尺寸、围网的固定方式等。
2.2 施工材料采购根据施工方案设计的要求,采购所需的围网材料。
常见的围网材料包括:钢管、钢丝网、防护网等。
在采购材料时,需要注意确保材料的质量和数量满足施工的需求。
2.3 施工设备准备准备好适用于围网施工的设备,如钳工工具、吊车、挖掘机等。
施工设备的选择应根据围网施工的具体要求和施工现场的条件进行。
2.4 施工人员培训对施工人员进行围网施工相关知识和技能的培训,包括安全操作规范、设备使用方法等。
确保施工人员具备必要的技能和知识,能够安全高效地进行施工工作。
3. 施工步骤3.1 地面准备工作在施工现场进行地面的准备工作,包括清理、平整地面,清理杂物和障碍物,确保施工现场的平整度和无障碍物。
3.2 围网布置根据施工方案设计的要求,开始进行围网的布置工作。
根据围网的材料和尺寸,将围网逐段铺设并组装。
在围网的连接处使用固定件进行固定,确保围网的稳固性和安全性。
3.3 固定围网使用适当的固定件、固定材料等工具,对围网进行固定。
固定方式可以根据施工方案要求选择,如使用钢钉、螺丝、焊接等方式进行固定。
3.4 安全检查和测试在围网施工完成后,进行安全检查和测试,确保围网的安全性和稳定性。
对围网进行检查,包括检查固定件是否牢固,围网是否有破损、松动等。
3.5 完善保护措施在围网施工完成后,需要完善相关的保护措施,如设置警示标识、灯光设施等,确保施工现场的安全性。
网球场施工方案网球场施工组织方案网球场建造工程方案一、工程概况:根据甲方要求,将运动场地庙宇为标准网球场1片约670 m2,围网约440平米,灯光8盏。
二、设计原则:依据甲方提出的要求,按照国家制定的有关标准,结合本场地的实验情况,使本场地适应教学、训练和体育比赛的需要,庙宇以下二种方案供甲方选用:a)基础采用沥青结构,围网采用勾花网,灯光采用飞利浦亚明网球专用灯,面层采用硬地丙烯酸材料。
b)基础采用水泥结构,围网采用勾花网,灯光采用飞利浦亚明灯,面层采用3-5MM弹性丙烯酸材料,三、技术规范:地基要求及标准:平整度要求:3米圆周内误差为±3MM坡度:由中线向两边倾斜0.5%结构:三七灰土层:30㎝无机料层:15㎝粗粒式沥青砼3㎝面层材料:1、硬地丙烯酸:1.3㎜2、弹力丙烯酸:3-5㎜围网材料:1、围网:真径3.5㎜,网孔5㎜*5㎜,钩花包塑网。
2、钢管:2.0寸2㎜厚焊管。
3、扁铁:2㎝宽,1.5㎜厚扁铁。
4、预埋件:直埋,底焊接直径16㎜,长35㎝的钢筋。
5、油漆:采用“红狮”牌,醇酸油漆。
6、燕尾钉:采用“白塔”牌,2.5㎝长的燕尾钉。
灯光材料:1000瓦飞利浦亚明灯质量标准:合格四、详细说明及施式组织方案:运动场沥青地基结构施工工艺流程:施工工艺流程:测量放线→平衡土方→土基(素土夯实)→3:7灰土→无机料层→粗粒式沥青砼→红粒式沥青砼。
测量放线1、对测量工作人员技术要求:场地的排水坡度为0.5%在各层都必须用10-20吨的压路机压实,密实度必须达93%以上。
依据运动员对跑道及场地的不同要求,因此各部位的几何尺寸必须达到施工设计图纸要求的标准;同时由于对排水的特殊要求,除管道应按坡高程设置外,场地地表的竖向及标高尤为重要,因为测量工作不但是确保施工质量的关键,还是本工程能否经过验收的重要环节,因此对工程的测量工作要加强管理及控制。
并严格测量复核制度,未经复测不准进行下道式序。
安全围网施工方案1. 引言本文档旨在提供一份安全围网施工方案,确保施工期间人员与物资的安全,并有效减少事故发生的概率。
施工方案将包含选择合适的围网材料、施工流程以及安全措施等内容。
2. 围网材料的选择围网的材料应具备足够的强度和耐久性,以确保不易被破坏或损坏。
建议选择以下合适的围网材料:- 钢丝网:具备高强度和耐腐蚀性,经济实用;- 网眼较小的铁丝网或网片:可防止小物体或小动物进入施工现场;- 防护网:防止杂物或建筑材料从高处坠落,保护工人的安全。
3. 施工流程根据施工现场的具体情况和围网要求,制定以下施工流程:1. 确定围网范围:依据施工区域的大小和需要,确定围网的具体范围,并确保施工区域清晰可见。
2. 栅栏的设置:根据围网范围,在地面上标出围网的位置,然后逐段安装栅栏,并确保栅栏端部的连接牢固可靠。
3. 围网材料的安装:将选定的围网材料从一个端点开始,沿着栅栏安装,确保正确悬挂并且牢固固定。
4. 栅栏门的设置:根据需要,在围网的合适位置设置栅栏门,并加装锁具以确保安全。
5. 检查与维护:定期检查围网是否受损、是否存在安全隐患,并修复或更换受损部分,以确保施工期间的安全性。
4. 安全措施为减少事故风险和保障人员安全,以下安全措施应被采取:1. 施工现场设置标识:在围网附近设置明确可见的标识,以警示人员和防止闯入。
2. 禁止未经许可的人员进入:除施工人员外,禁止非授权人员进入施工区域,并加强对施工区域的巡视。
3. 安装警示灯光:在围网附近设置适当的警示灯光,以提醒行人和司机避开围网区域。
4. 培训与沟通:对施工人员进行必要的安全培训,并建立良好的沟通机制,如举行安全会议、信息传达等方式。
5. 废弃物处理:及时清理围网周围的废弃物和杂物,以防止事故发生。
5. 总结本文档提供了一份安全围网施工方案,包括围网材料的选择、施工流程和安全措施等。
施工方案的实施将确保施工期间人员与物资的安全,并有效减少事故发生的概率。
避雷针一、照明系统施工工艺二、球场围网施工工艺 为普通铁丝网重新油漆的费用,其使用寿命也比普通铁丝网长三到五年。
一切工程均以甲方要求、施工图及合约为准,如无特殊情况,需经双方有关人员共同协商作决定,并用书面记录为证。
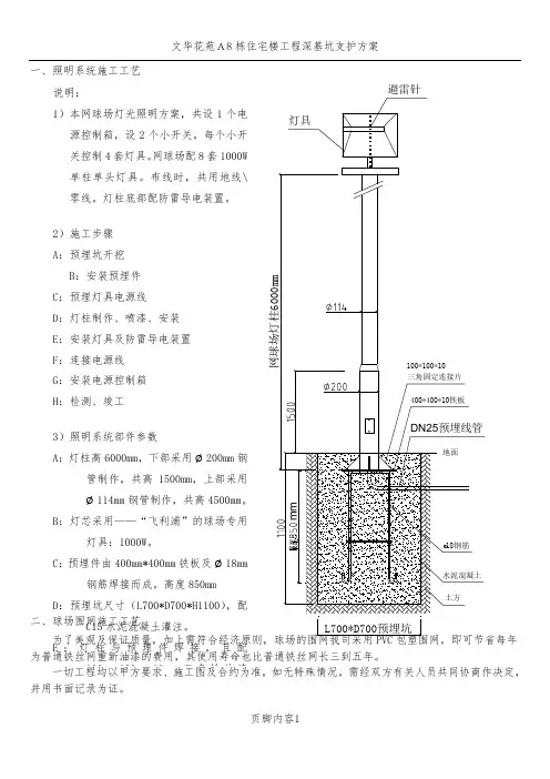
说明:1)本网球场灯光照明方案,共设1个电源控制箱,设2个小开关。
每个小开关控制4套灯具。
网球场配8套1000W 单柱单头灯具。
布线时,共用地线\零线。
灯柱底部配防雷导电装置。
2)施工步骤 A :预埋坑开挖B :安装预埋件C :预埋灯具电源线D :灯柱制作、喷漆、安装E :安装灯具及防雷导电装置F :连接电源线G :安装电源控制箱H :检测、竣工3)照明系统部件参数A :灯柱高6000mm ,下部采用Ø200mm 钢管制作,共高1500mm ,上部采用Ø114mm 钢管制作,共高4500mm 。
B :灯芯采用——“飞利浦”的球场专用灯具:1000W 。
C :预埋件由400mm*400mm 铁板及Ø18mm钢筋焊接而成。
高度850mmD :预埋坑尺寸(L700*D700*H1100),配C15水泥混凝土灌注。
E :灯柱与预埋件焊接,且配100mm*100mm*10mm 三角铁片连(一)、材料及规格:(1)预埋件:根据围网立柱高度、抗风系数及力学原理设计大小及结构并焊接牢固。
(2)框架:全部采用优质本色钢管制作,确保五年内不会生锈。
(3)网片:网线内层使用直径2.1mm 优质镀锌铁线,外层包裹不脱色PVC 塑胶层,外径3.6mm ,美观、防锈、防霉、防水、坚韧、抗紫外线、全天侯、可塑性高。
网片五年内保证不会生锈。
(4)油漆:特制钢管专用之油漆作底漆,面漆采用广州市著名产品“五羊牌”或“电视塔牌”专业墨绿磁漆,面漆分两层喷涂,确保油漆五年内不龟裂、不掉漆、不褪色、不生锈。
(二)、施工工艺:(1)预埋铁件制作与安装:按设计要求制作预埋铁件,钢板长200mmx宽200mmx厚10mm ,支脚为Ø18mm 钢筋600mmx4根,制作成高300mm 的S 型,焊固在钢板四角构成围网立柱预埋铁件。
一、工程概况本工程为某场地灯光安装工程,包括球场、广场、道路等区域的照明系统。
为确保照明效果和施工质量,特制定以下施工方案。
二、施工准备1. 施工人员:组织一支具备专业知识和丰富经验的施工队伍,包括电工、焊工、安装工等。
2. 施工材料:根据设计要求,准备所需的各种灯具、电缆、线管、预埋件、支架等材料。
3. 施工工具:准备电焊机、切割机、扳手、螺丝刀、水平仪、卷尺等施工工具。
4. 施工图纸:熟悉施工图纸,了解设计要求,明确施工工艺和步骤。
三、施工工艺1. 预埋件安装(1)根据设计要求,确定预埋件位置,采用细石砼固定。
(2)通过现场标高,调整预埋件高度,确保水平度。
(3)预埋件保养期满后,进行主附杆的安装。
2. 灯具安装(1)根据设计要求,安装网柱、灯柱、球网柱等,采用电焊焊接方法。
(2)用测量仪器调节主附杆的垂直度,确保安装精度。
(3)安装照明灯具,包括球场专用灯光设备和专用球场灯具。
3. 照明线路安装(1)根据设计要求,铺设照明线路主线和控制线路。
(2)采用VV362电缆作为照明线路主线,VV32.52电缆作为控制线路。
(3)确保线路敷设整齐、安全,并做好标识。
4. 围网安装(1)安装围网,包括立杆、上下横杆及围网。
(2)所有立杆、横杆、围网及门采用醇酸红防锈底漆涂两层以上,再采用醇酸户外磁漆涂两道,颜色为绿色。
(3)围网安装包括扁铁和所有零配固定件。
四、施工质量要求1. 预埋件安装牢固,水平度符合要求。
2. 灯具安装垂直度符合要求,安装牢固。
3. 照明线路敷设整齐,标识清晰,安全可靠。
4. 围网安装牢固,颜色均匀,美观大方。
五、施工进度安排1. 施工准备:5天2. 预埋件安装:3天3. 灯具安装:5天4. 照明线路安装:3天5. 围网安装:2天6. 系统调试:2天总计:20天六、施工安全措施1. 施工现场设置安全警示标志,确保施工安全。
2. 施工人员必须佩戴安全帽、手套等防护用品。
3. 严格遵守施工操作规程,确保施工安全。
围网灯光施工方案1. 引言围网灯光施工方案是指在建筑物、园区、公共场所等需要进行夜间照明的区域,通过安装围网灯具,在保证安全的前提下,提供合适的照明效果。
本文将介绍围网灯光施工的方案、步骤和注意事项。
2. 施工方案2.1 灯具选择围网灯具的选择应根据照明需求和环境特点进行,以下几点需要考虑:•灯具类型:常用的围网灯具有投光灯、装饰灯、景观灯等,根据实际需求选择合适的类型。
•光源选择:常用的光源有白炽灯、荧光灯、LED灯等,根据照明效果和能耗考虑选择合适的光源。
•功率选择:根据需求和区域大小选择合适的功率。
2.2 照明布局围网灯光的布局需要根据照明需求和区域特点进行规划,以下几点需要考虑:•照明区域划分:根据实际需求,将区域划分为主要照明区、次要照明区和辅助照明区。
•灯具位置确定:根据照明区域划分,确定灯具的安装位置和数量,以达到均衡的照明效果。
•照明角度设计:根据照明区域的形状和高度确定照明灯具的角度,以确保照明效果和光线覆盖范围。
2.3 灯光控制系统为方便对围网灯具的开关和亮度进行控制,可以考虑使用灯光控制系统,以下几点需要考虑:•开关控制:通过集中控制设备实现围网灯光的整体开关和关闭。
•亮度调节:通过调光设备实现围网灯光亮度的调节,以满足不同场景的需求。
•定时控制:通过定时设备实现围网灯光的自动开关和亮度调节,提高照明效率。
3. 施工步骤3.1 前期准备在施工前需要进行以下准备工作:•测量和勘察:测量照明区域的大小和形状,勘察围网灯具安装的具体位置和杆塔设置。
•材料准备:准备所需的围网灯具、光源、电缆等材料,并检查其质量和数量是否符合要求。
•工具准备:准备所需的电动工具、手动工具和安全防护设备等。
3.2 灯具安装根据照明布局和灯具位置确定,进行围网灯具的安装工作:1.安装杆塔:根据勘察结果,选择合适的位置安装杆塔,并确保其稳固和垂直。
2.连接电缆:将围网灯具与电缆进行连接,确保连接牢固和杜绝漏电现象。
护栏灯光工程施工方案一、工程概况护栏灯光工程主要是在道路护栏上进行灯光设施的安装,以提高夜间道路的亮度和安全性。
本工程的施工内容包括灯具的选型、安装位置的确定、线路铺设、电源接入等。
本方案将详细介绍护栏灯光工程的施工流程、安全措施、质量要求和施工方案等内容。
二、施工前准备工作1、确定施工方案在施工前,需要制定详细的施工方案,包括灯具的选型、数量、安装位置、电源接入方案、施工进度等内容。
同时,需要对施工区域进行勘察和测量,确定具体的施工现场和施工范围。
2、准备施工材料和设备根据施工方案的要求,准备好所需的灯具、电缆、配电箱、施工机械设备等。
同时,需要对施工人员进行技术交流和安全培训,确保施工人员具备足够的技术水平和安全意识。
3、申请相关手续在施工前,需要向相关部门(如交通部门、电力部门等)申请施工许可和电力接入手续,确保在施工期间能够顺利进行电力接入和施工作业。
4、制定施工计划根据施工方案和现场实际情况,制定详细的施工计划,包括施工人员的安排、施工进度的安排、安全措施的制定等内容。
同时,需要对施工现场进行安全风险评估,确保施工过程中能够保障施工人员和施工设备的安全。
三、施工流程1、现场布置在施工现场,首先需要进行施工区域的标示和封闭,确保施工现场的安全。
同时,根据施工方案确定灯具的安装位置,进行标示和测量,确定准确的安装位置。
2、灯具安装根据施工方案和现场测量结果,确定好灯具的安装位置,并进行灯具的安装。
在灯具安装过程中,需要确保灯具的安装平稳牢固,同时保证灯具的水平和方向正确。
3、电缆铺设在灯具安装完成后,需要进行电缆的铺设。
根据施工方案确定电缆的铺设路径和接线方案,确保电缆的安全可靠。
4、电源接入在电缆铺设完成后,需要进行电源接入。
根据施工方案的要求,接入配电箱或电力设备,确保灯具的正常供电。
5、调试验收在所有施工工作完成后,需要对灯具进行调试和验收。
确保灯具的亮度和照明范围满足施工要求,并且确保灯具的正常运行。
篮球场围网施工方案1. 施工前准备1.1 材料准备- 篮球场围网:采用优质的低碳钢丝,表面处理为热镀锌后喷塑。
- 立柱:采用直径60mm的钢管,表面处理同围网。
- 连接件:包括围网连接件和立柱连接件,均采用优质钢材,表面处理为热镀锌后喷塑。
- 基础:根据现场情况,可以选择混凝土基础或钢管基础。
1.2 工具准备- 水准仪- 卷尺- 经纬仪- 电钻- 螺丝刀- 扳手- 铁锤- 墨斗1.3 施工人员- 项目经理:负责整体施工进度和质量的把控。
- 技术员:负责施工方案的制定和现场技术指导。
- 施工队伍:包括电工、焊工、安装工等。
2. 施工流程2.1 现场勘测- 项目经理和技术员共同到现场进行勘测,了解现场地形、地貌、交通等情况。
- 根据现场情况,制定合理的施工方案和施工进度计划。
2.2 基础施工- 根据设计图纸,挖设混凝土基础或预埋钢管基础。
- 混凝土基础尺寸应符合设计要求,预埋钢管基础应垂直、水平。
2.3 立柱安装- 使用经纬仪确定立柱位置,用墨斗标记。
- 挖设立柱基础,基础尺寸应符合设计要求。
- 将立柱放入基础内,调整垂直度,使用混凝土浇筑固定。
2.4 围网安装- 将围网片展开,用连接件与立柱连接。
- 围网安装应平整、紧密,不得有扭曲、变形。
- 连接件应固定牢固,螺丝紧固。
2.5 电气施工- 根据设计图纸,布设灯光、监控等电气设备。
- 电气设备安装应符合相关规范,确保安全可靠。
2.6 验收- 施工完成后,项目经理组织技术员、施工队伍进行自检。
- 自检合格后,向甲方提交验收申请,甲方组织验收。
- 验收合格后,进行工程结算和交付。
3. 施工注意事项- 施工过程中,严格遵循施工方案和操作规程,确保施工安全。
- 做好现场环境保护,施工垃圾及时清理,减少对周边环境的影响。
- 加强施工现场管理,确保施工材料、设备安全,防止丢失、损坏。
- 做好施工记录,及时反馈施工过程中出现的问题,确保工程质量。
4. 售后服务- 施工完成后,提供一定期限的质保服务。
第1篇一、项目背景随着城市化进程的加快,我国各大城市都在努力提升城市形象,而道路景观建设是城市形象的重要组成部分。
宁波作为我国东南沿海的重要港口城市,近年来在道路景观建设方面取得了显著成果。
灯光护栏作为一种重要的道路景观设施,不仅能够美化城市道路,还能提高道路的安全性。
因此,宁波市政府决定在全市范围内开展灯光护栏工程施工,进一步提升城市道路景观水平。
二、工程概况1. 工程地点:宁波市各区县(市)主要道路2. 工程内容:灯光护栏施工,包括护栏基础、护栏立柱、灯光安装、接线等3. 工程规模:约100公里4. 工程工期:预计6个月三、施工方案1. 施工准备(1)施工图纸及技术规范:严格按照设计图纸及国家相关技术规范进行施工。
(2)人员组织:成立灯光护栏施工项目部,负责施工过程中的组织、协调和管理工作。
(3)设备材料:准备足够的施工设备、材料,确保施工顺利进行。
2. 施工工艺(1)护栏基础施工:根据设计图纸,采用混凝土浇筑方法进行基础施工,确保基础稳固。
(2)护栏立柱施工:采用现场预制或工厂预制方式制作立柱,立柱表面进行防腐处理,确保立柱使用寿命。
(3)灯光安装:选择符合国家标准的LED灯光,按照设计要求进行安装,确保灯光亮度及均匀性。
(4)接线施工:采用优质电线,按照设计要求进行接线,确保电路安全可靠。
3. 施工质量控制(1)原材料质量控制:严格控制原材料的质量,确保施工质量。
(2)施工过程控制:加强施工过程中的质量控制,确保每道工序符合设计要求。
(3)竣工验收:施工完成后,组织相关单位进行竣工验收,确保工程质量。
四、施工保障措施1. 施工安全:严格按照国家相关安全法规,加强施工现场安全管理,确保施工人员安全。
2. 施工环保:遵守国家环保政策,采取有效措施减少施工对环境的影响。
3. 施工进度:制定合理的施工进度计划,确保工程按期完成。
五、工程效益1. 提升城市形象:灯光护栏工程施工完成后,将显著提升宁波市道路景观水平,提高城市整体形象。
一、工程概况项目名称:露天网球场工程施工项目地点:[具体地址]项目规模:[网球场数量及面积]工程内容:包括网球场场地基础施工、丙烯酸面层施工、围网、灯光、网柱、球网、排水系统、场地画线等。
二、施工组织与管理1. 施工准备(1)组织施工队伍,进行人员培训和技术交底。
(2)做好施工材料、设备的采购、运输和验收工作。
(3)制定施工进度计划,明确各阶段施工任务和时间节点。
2. 施工工艺(1)场地基础施工:清除场地内杂物,平整场地,铺设排水管道,浇筑混凝土基础。
(2)丙烯酸面层施工:按照施工图纸要求,进行场地基础处理,涂刷底漆,铺设丙烯酸面层。
(3)围网、灯光、网柱、球网等设施安装:按照设计要求,进行围网、灯光、网柱、球网等设施的安装。
(4)排水系统施工:按照设计要求,铺设排水管道,确保场地排水顺畅。
(5)场地画线:按照国际网球比赛标准,进行场地画线。
3. 施工质量控制(1)严格执行国家相关施工规范和标准。
(2)加强施工现场管理,确保施工质量。
(3)对施工过程中的关键工序进行检测,确保工程质量。
4. 施工安全管理(1)制定施工安全管理制度,明确各工种的安全操作规程。
(2)加强施工现场安全检查,及时发现和消除安全隐患。
(3)加强施工人员的安全教育,提高安全意识。
三、施工进度计划1. 施工准备阶段:5天2. 场地基础施工阶段:10天3. 丙烯酸面层施工阶段:7天4. 围网、灯光、网柱、球网等设施安装阶段:5天5. 排水系统施工阶段:3天6. 场地画线阶段:2天总工期:30天四、施工保障措施1. 人员保障:组织专业施工队伍,确保施工人员具备相关技能和经验。
2. 材料保障:确保施工材料质量合格,满足工程需求。
3. 设备保障:确保施工设备性能良好,满足施工要求。
4. 质量保障:严格执行施工规范,加强质量检测,确保工程质量。
5. 安全保障:制定安全管理制度,加强施工现场安全管理,确保施工安全。
通过以上施工方案的实施,确保露天网球场工程顺利进行,达到预期效果。
第1篇一、工程概述室外网球场照明工程施工主要包括以下内容:1. 照明灯具的选择与安装:根据球场面积、照明要求等因素,选择合适的照明灯具,并按照设计要求进行安装。
2. 供电系统的设计:设计合理的供电系统,确保照明设备正常运行,同时满足安全、节能、环保等要求。
3. 控制系统的安装:安装智能控制系统,实现照明设备的远程控制、定时开关、场景切换等功能。
4. 照明效果测试:对安装完成的照明系统进行测试,确保照明效果达到设计要求。
二、施工流程1. 现场勘查:对施工现场进行勘查,了解球场面积、照明要求、供电条件等情况。
2. 设计方案:根据现场勘查结果,制定合理的照明设计方案,包括灯具类型、数量、安装位置等。
3. 材料准备:准备照明灯具、电缆、控制系统等材料,确保材料质量符合要求。
4. 施工准备:对施工现场进行清理,确保施工环境安全、整洁。
同时,对施工人员进行技术交底,明确施工要求。
5. 照明灯具安装:按照设计方案,将照明灯具安装在指定位置,确保安装牢固、美观。
6. 供电系统施工:按照设计要求,铺设电缆,连接灯具与供电系统,确保供电稳定、安全。
7. 控制系统安装:安装智能控制系统,实现照明设备的远程控制、定时开关、场景切换等功能。
8. 照明效果测试:对安装完成的照明系统进行测试,确保照明效果达到设计要求。
9. 工程验收:对施工完成的工程进行验收,确保工程质量符合要求。
三、施工注意事项1. 确保施工安全:严格遵守施工现场安全管理规定,防止安全事故发生。
2. 材料质量:选择符合国家标准的照明灯具、电缆等材料,确保工程质量。
3. 精确安装:按照设计方案,精确安装照明灯具、供电系统、控制系统等,确保照明效果。
4. 节能环保:选用节能环保的照明灯具,降低能耗,减少对环境的影响。
5. 做好施工记录:对施工过程进行详细记录,便于后期维护和管理。
总之,室外网球场照明工程施工是一项系统工程,需要充分考虑球场面积、照明要求、供电条件等因素,确保施工质量,为运动员和观众提供良好的照明环境。
一、工程概况本工程为某网球场照明系统安装工程,主要包括网球场围网、网柱、球网柱、照明线路、照明灯具等设施的安装。
工程地点位于我国某城市,占地面积约为2000平方米,建设规模为8片网球场。
本方案旨在为网球场提供舒适、安全的照明环境。
二、施工工艺1. 预埋件安装(1)根据设计图纸要求,在水泥石屑层施工完毕后,进行预埋件安装。
(2)网柱预埋件采用250×250×12mm钢板,预埋深度为500mm;灯柱预埋件采用400×400×14mm钢板,预埋深度为600mm,长宽为500×500mm;预埋线管为PVC胶管,预埋深度为120mm;球网柱预埋件采用专用预埋件进行预埋。
2. 网球场围网安装(1)围网立杆、上下横杆及围网采用醇酸红防锈底漆涂两层以上,再采用醇酸户外磁漆涂两道,颜色为绿色。
(2)立杆为?65钢管,横杆为?50钢管,围网采用合成纤维(聚乙烯类)材料,颜色为绿色。
3. 网球场网柱、灯柱、球网柱及照明线路的安装(1)网柱、灯柱、球网柱及线管的预埋安装:在水泥石屑层施工完毕养护过程中,要将所有预埋件工程全部安装完毕。
(2)照明线路:主线采用VV362电缆,控制线路采用VV32.52电缆。
4. 照明系统安装(1)采用球场专用灯光设备,专用球场灯具。
(2)灯柱为114钢管,表面采用静电喷末,颜色与围网、网柱均为一致(绿色),高度为6m-10m。
(3)照明灯具:选用飞利浦亚明网球场专用灯具,可30角调节,功率1000W/盏,每片场地配置8盏,每边4盏,共8千瓦。
5. 照明调试(1)安装完毕后,进行照明系统调试,确保亮度符合国际标准,平均达到750LUX,光照度均匀,灯光柔和不刺眼。
(2)调试过程中,对灯具进行清洗、擦拭,确保照明效果。
三、施工进度安排1. 预埋件安装:2天2. 围网安装:3天3. 网球场网柱、灯柱、球网柱及照明线路的安装:5天4. 照明系统安装:3天5. 照明调试:1天总计:14天四、质量保证措施1. 严格按照设计图纸和施工规范进行施工,确保工程质量。
第1篇一、工程概况本篮球场提升工程旨在对现有篮球场进行升级改造,以满足更高水平的篮球比赛和训练需求。
工程包括篮球场地面、灯光、音响、围网、座椅等设施的更新与完善。
二、施工准备1. 施工图纸及资料:熟悉施工图纸,了解设计要求,对工程量进行核算,确保施工质量。
2. 人员组织:成立项目经理部,明确各岗位职责,确保施工进度和质量。
3. 材料设备:采购合格的篮球场地材料、灯光、音响、围网、座椅等设备。
4. 施工现场:对施工现场进行清理,确保施工环境整洁、安全。
三、施工方案1. 篮球场地面施工(1)拆除原有篮球场地面,清理基层。
(2)铺设防水层,确保地面不渗水。
(3)铺设基层,确保平整度。
(4)铺设篮球场地面,确保颜色、厚度符合要求。
2. 灯光、音响系统施工(1)安装灯光、音响设备,确保满足比赛和训练需求。
(2)调试灯光、音响系统,确保音质、亮度达到最佳效果。
3. 围网、座椅施工(1)安装围网,确保稳固、美观。
(2)安装座椅,确保舒适、安全。
4. 其他设施施工(1)安装篮球架,确保符合国家标准。
(2)安装篮球场排水系统,确保排水顺畅。
四、施工进度安排1. 施工前期:1个月,完成施工图纸、人员组织、材料设备、施工现场准备等工作。
2. 施工中期:3个月,完成篮球场地面、灯光、音响、围网、座椅等设施的施工。
3. 施工后期:1个月,完成其他设施施工,进行验收。
五、质量保证措施1. 严格按照设计要求进行施工,确保工程质量。
2. 对施工人员进行技术培训,提高施工技能。
3. 对施工材料进行严格把关,确保材料合格。
4. 加强施工现场管理,确保施工安全。
5. 定期进行质量检查,发现问题及时整改。
六、安全生产措施1. 严格执行安全生产规章制度,确保施工安全。
2. 对施工人员进行安全教育,提高安全意识。
3. 定期进行安全隐患排查,及时消除安全隐患。
4. 加强施工现场安全管理,确保施工环境安全。
七、环境保护措施1. 严格控制施工现场噪音,减少对周边环境的影响。
- -- 篮球场标准尺寸:篮球场地是一个长方形的无障碍物的坚实平面,按国际篮联要求篮球场长28米,宽15米.在每条边线外应留有余地不小于2米作为缓冲区,即一片标准篮球场地面积〔含缓冲区〕为〔28+2×2〕米×〔15+2×2〕米=608平方米。
假设篮球架为移动式篮球架,篮球架边线外应留有余地不小于4米,即一片标准篮球场地面积〔含缓冲区〕为〔28+4×2〕米×〔15+2×2〕米=684平方米。
室篮球场天花板或最低障碍物的高度至少应为7米。
2021年10月1日实施的国际篮球场标准尺寸比赛场地图图一标准篮球场地尺寸1.禁区由现在的梯形改为长方形宽4.9米长度〔罚球线到端线〕仍为5.8米。
2.禁区小半圆1.25米为「合法冲撞免责区」3.罚球区占位间隔不变,每格85公分、中立区40公分、其它10公分。
图二限制区国际篮球规那么2021年10月篮球场规格一、前言全世界篮球比赛场地,除了美国大学篮球N.C.A.A比赛场馆以及美国职业篮球N.B.A场地之外,2021年10月1日以后将要进展重大- . -考试资料-变革,沿用60年以上的篮球场禁区规格,将由现在的禁区梯形面积,改为禁区长方型面积,虽然篮球场的长宽仍然维持长28米、宽15米。
但是三分线的长度,将由现行的6米25公分,加长到6米75公分。
这项变动使得国际篮球规那么场地局部,已经相似于美国职业篮球N.B.A比赛场地,无疑的对于篮球比赛场地一直无法统一的问题逐渐抑制!国际篮球总会F.I.B.A 在2021年4月25日于召开中央委员会议,由秘书长鲍曼主持,会过两项决议:一是2021年10月1日起修订实施的新规那么,二是2021年10月1日起要执行新一波的篮球规那么,其中涉及到篮球场禁区形状以及三分线的变动。
从规那么修订的容来看,国际篮球规那么无疑的已经逐渐向美国职业篮球比赛N.B.A的规那么靠拢,对篮球比赛的而言,具有正面的意义与效果,毕竟全球各地在美国N.B.A球季当中,有许多篮球观众都在收看美国N.B.A篮球赛,因此对从事篮球运动球员或观众,在规那么逐步整合当中,能够透过电视教育,更能充分了解规那么的执行。
灯光围网俗话说姜太公钓鱼愿者上钩,可你听说过用灯光捕鱼吗?原来动物都有对某些物质的趋性,在海洋中生活的鱼儿,当然也不例外阿,自然界中不少鱼类早就使用灯光捕鱼法了。
例如在大西洋的海底,就生活着一种叫海洋羽毛的鱼,就象一根长长的钓鱼竿。
它一头插在海底淤泥上,另一头则顶着一只“圆碟”鱼竿会发出棍眼的蓝色荧光,“圆碟”也跟着闪闪生光。
小鱼被光亮引诱过去,刚游到光亮处,就被触手缠住,成为海洋羽毛的食物了。
而人类利用灯光捕鱼已经有很长的历史了。
在很早以前,生活在找国南海的渔民,就利用煤油汽灯诱摘鱼类。
后来,又分别采用过大光灯和青石灯等捕鱼。
这些光源虽然都具有一定亮度,但使用起来很不方便。
随着科学技术的不断发展,灯光捕鱼技术也在不断地进步,诱集灯也在不断地改进。
拿电灯诱浦方法来讲吧,由于电灯的亮度可以调节,也可以有不同的颜色,通过电缆线还可以把它放置在水下,改变它的深度,所以能适应各种鱼类的不同趋光要求,提高了诱鱼效率,增加了捕获且。
灯光捕鱼的工具一般由灯船、网船和灯艇等组成。
水下灯通过电缆放入水中,水上灯可以在水面上较大的范围内起到集鱼的作用,将水上灯和水下灯结合,就能在灯船把鱼诱集之后,让网船迅速下网,进行捕捞。
配合灯光捕鱼的工具有很多,围网、鱼竿、鱼泵等是必不可少的。
大型围网仅网的重就有十几吨,围网的下部拴有大量的铁环,在海中张开,就好像一堵巨大无比的墙。
一旦围网把鱼群团团围住,这时先将铁环索锁紧,鱼网就变成好像一个大袋子一样,然后就可以拉网收鱼,由于围网所围的范围广、面积大,因此鱼多的时候,一网就可以捕到几十吨重的鱼。
灯光围网捕获的对象,主要是生活在海洋中上层的一些鱼类,如鲱鱼、鲐鱼、鳗鱼、鲹鱼、竹筴鱼等等。
曾经就有渔民们用1000~2000瓦的白炽灯,一次就成功地诱捕到了近百吨太平洋鲱鱼。
所以,人们又称灯光围网作业是“渔业之王”。
日本、美国、俄罗斯、娜威、澳大利亚和秘鲁等国都是灯光捕鱼的技术的发达国家。
围网工程施工是指采用网片、支架、拉线等材料和设备,在特定区域构建围网,以达到防护、隔离、警示等目的的一种工程。
围网工程施工在各类工程中都有广泛应用,如道路工程、水利工程、农业工程、体育场馆等。
本文将从围网工程施工的概述、施工准备、施工流程和注意事项四个方面进行介绍。
一、概述围网工程施工是一种临时或长期的工程,根据工程需求和现场条件,选用不同材质、规格和结构的围网。
围网工程施工的主要目的是保证施工现场的安全,防止意外事故的发生,同时也能起到美化环境、防止非法侵入等作用。
二、施工准备1. 材料准备:根据工程需求,提前准备好围网材料,包括网片、支架、拉线等。
材料要求符合国家相关标准,具有良好的防腐、抗风、抗张性能。
2. 设备准备:准备足够的施工设备,如电钻、扳手、螺丝刀等,确保施工顺利进行。
3. 技术准备:熟悉施工图纸和施工方案,对施工过程中可能遇到的问题进行提前预判,制定应对措施。
4. 人员准备:组织具备相关资质和经验的施工人员,进行技术培训和安全教育,确保施工安全。
三、施工流程1. 现场勘查:对施工现场进行勘查,了解现场地形、地貌、交通等情况,为施工方案的制定提供依据。
2. 施工放样:根据设计图纸,进行施工放样,标明围网的位置、高度、角度等参数。
3. 挖坑埋柱:按照放样结果,挖坑埋设支架,确保支架稳固、垂直。
4. 网片安装:将网片固定在支架上,采用专用连接件连接,确保网片平整、牢固。
5. 拉线施工:拉设拉线,使围网形成整体,提高围网的稳定性和抗风性能。
6. 检查验收:施工完成后,对围网进行检查验收,确保施工质量符合设计要求。
四、注意事项1. 施工安全:施工过程中,要严格遵守安全操作规程,确保施工人员的人身安全。
2. 质量控制:严格按照设计图纸和施工方案进行施工,确保围网的质量和使用寿命。
3. 环境保护:施工过程中,要注意保护环境,减少对周边环境的影响。
4. 文明施工:遵守施工现场的规章制度,保持施工现场的整洁和秩序。
围网、灯光施工围网施工工艺1、材料及规格:1)预埋件:根据围网立柱高度、抗风系数及力学原理设计大小及结构并焊接牢固。
2)框架:全部采用优质本色钢管制作,确保五年内不会生锈。
3)网片:网线内层使用直径2.3mm优质镀锌铁线,外层包裹不脱色PVC塑胶层,外径3.9mm,美观、防锈、防霉、防水、坚韧、抗紫外线、全天侯、可塑性高。
网片五年内保证不会生锈。
4).油漆:特制钢管专用之油漆作底漆,面漆采用广州市著名产品“五羊牌”或“电视塔牌”专业墨绿磁漆,面漆分两层喷涂,确保油漆五年内不龟裂、不掉漆、不褪色、不生锈。
序号材料名称规格1 本色钢管立柱Ø76壁厚2.8,依据本工程实地情况设计高度为5m。
2 本色钢管横梁Ø60壁厚2.5,依据本工程实地情况设计高度为5m。
3 包塑围网45mm45mm网眼,网径外3.9mm,内2.3mm4 扁铁压条20mm×3mm5 油漆、螺丝等按高标准6 网柱预埋件钢板(25025012mm厚)及Ø18m m,600mm4根钢筋折弯焊固2、施工工艺及要求:1).预埋铁件制作与安装:按设计要求制作预埋铁件,钢板长250mm宽250mm厚12mm,支脚为Ø18mm钢筋600mm4根,制作成高300mm的S 型,焊固在钢板四角构成围网立柱预埋铁件。
预埋件基座尺寸为400400600mm,预埋件均严格按设计安放在同一水平线上,浇注C25水泥混凝土在基座中固定埋实。
2).围网框架:围网立柱采用75mm直径,厚度2.8mm本色钢管,柱高5m,围网横梁采用60mm,厚度2.5mm本色钢管。
各立柱间上、中、下等距位置用叁根横梁钢管组合焊接连成框架,钢管与底座连接处用三片50mm×30mm、厚8mm三角形钢板加固,确保立柱焊接牢固,并全部埋入地下。
围网框架焊接牢固,焊接口焊点需全部打磨平滑,立柱垂直,横管水平,以使场地更美观和更安全。
做好防雷接地装置(具体按施工图)3)清洁:彻底清洁立柱钢管使底漆附着更牢固。
4)油漆:特制网钢管专用之油漆作底漆,外喷两层墨绿色面漆。
油漆工艺采用喷涂方式,先将钢管及扁铁表面除锈打磨、清洁,再喷涂防锈底漆一层(较厚,均匀)及高级色彩面漆二层,待围网施工完毕再全面检查修补碰花及破损部分油漆及其他缺陷;5)拉网:安装包塑围网我司使用专用工具拉紧,再用扁铁条(20mm×3mm)穿在网缝内自攻螺钉按500mm间距锁固在围网框架内侧,使围网结构简洁,风格独特。
包塑网连接用网线编织连接成一体。
6)设置:依据设计制作及安装球场门。
7).全面质检,修复缺陷。
灯光施工工艺1、配电箱、盘安装1.1材料要求1.1.1铁制配电箱(盘):箱体应有一定的机械强度,周边平整无损伤,油漆无脱落,二层底板厚度不小于1.5mm,不得用阻燃型塑料板做二层底板,箱内各种器具应安装牢固,导线排列整齐,压接牢固,并有产品合格证。
应为两部定点厂产品。
1.1.2绝缘导线的规格型号必须符合要求,并有产品出厂合格证。
1.1.3其他材料:电器仪表、熔丝(化熔片)、端子板、绝缘嘴、塑料带、黑胶布、防锈漆、焊锡、焊剂、电焊条、水泥、砂子。
1.2作业条件1.2.1随土建结构预留好暗装配电箱的安装位置。
1.2.2安装配电箱(盘)面时,抹灰、喷浆及油漆应全部完成。
1.3操作工艺1.3.1配电箱(盘)安装要求1.3.1.1配电箱盘应安装在安全、干燥、易操作的场所,配电箱安装时底口距地一般为1.5m,在同一建筑物内,同类盘的高度应一致,允许偏差为10mm。
1.3.1.2安装配电箱盘所需的木砖及铁件应预埋。
1.3.1.3铁制配电箱盘均需先刷一遍防锈漆,再刷灰油漆二道,预埋的各种铁件均应刷防锈漆,并做好可靠的接地。
1.3.1.4配电箱盘带有器具的铁制盘面和装有器具的配电箱门均有明显可靠的祼软铜PE线接地。
1.3.1.5配电箱盘上配线整齐,并绑扎成束,在活动部位应用长钉固定。
盘面引出及引进的导线应留有适当余度,以便于检修。
1.3.1.6导线剥削处不应损伤线芯或线芯过长,导线接头应牢固可靠,多股导线不应盘圈压接,应加装压接端子(端子为内六角)。
1.3.1.7配电箱盘的盘面上安装的各种闸及自动开关,当处于断路状态时,儀片可动部分不应带电。
1.3.1.8垂直装设的闸及熔断器等电器上端接电源,下端接负荷。
横装者左侧接电源,右侧接负荷。
1.3.1.9配电箱盘上的母线应涂有黄、绿、红、淡蓝等颜色,黄绿双色线为保护地线。
1.3.1.10配电箱盘上电器仪表应牢固、平正、整洁间距均匀、铜端子无松动,启闭灵活,零部件齐全。
其排列间距符合要求。
1.3.1.11配电箱面板较大时应加有衬铁,当宽度超过500mm 时,箱门应做双开门。
1.3.2弹线定位:根据设计要求找出配电箱盘位置,并按箱盘的外形尺寸进行弹线定位,弹线的目的是对有预埋铁件的可以更准确的找出预埋件。
1.3.3配电箱盘的固定:在墙上固定配电箱时,根据预留孔洞尺寸将箱体找好标高及水平尺寸,并将箱体固定好,然后用水泥砂浆填实周边并抹平,待水泥砂浆凝固后再安装盘面和贴脸。
箱底与墙体平齐,在墙体固定金属网后再做墙面抹灰。
不得在底板上抹灰。
安装盘面要求平整,周边间隙均匀对称,贴脸平正,不歪斜,螺丝垂直受力均匀。
1.3.4绝缘摇测:配电箱(盘)全部电器安装完毕后,用500V兆欧表对线路进行绝缘摇测,摇测项目包括相线与相线之间,相线与零线之间,相线与地线之间,零线与地线之间。
两人进行摇测,同时做好记录,做技术资料存档。
1.3.5质量标准1.3.5.1主控项目:器具的接地(接零)保护措施和其他安全要求必须符合施工质量验收规范规范规定。
1.3.5.2一般项目:配电箱安装位置应正确,部件齐全,箱体开孔合适,切口整齐,暗装配电箱箱盖紧贴墙面,零线经汇流排连接,无绞接现象;油漆完整,盘内外清洁,箱盖、开关灵活,回路编号齐全,PE线安装明显牢固。
1.3.5.3导线与器具连接牢固紧密,不伤线芯,压板连接时压紧无松动,螺栓连接时,在同一端子上导线不超过两根,防松垫圈等配件齐全。
电气设备、器具和非带电金属部件的接地,支线敷设应符合以下规定:连接紧密,牢固,接地接零线选用正确,需防腐的部分涂漆均匀无遗漏。
线路走向合理,色标准确,涂刷后不污染设备和建筑物。
1.3.5.4允许偏差项目上:配电箱体高50cm以下,允许1.5mm;配电箱体高50cm以上,允许3mm。
3.6成品保护3.6.1配电箱安装后,采取保护措施,避免碰坏、弄脏电气仪表。
3.6.2安装箱盘面板时,应注意保持墙面整洁。
2、二次回路接线2.1二次回路结线应符合下列要求:2.1.1按图施工,接线正确。
2.1.2每个接线端子的每侧接线宜为1根,不得超过2根。
对于插接式端子,不同截面的两根导线不得接在同一端子上;对于螺栓连接端子,当接两跟导线时,中间应加平垫片。
2.1.3二次回路接地应设专用螺栓。
2.2引入盘、柜内的电缆及其芯线应符合下列要求:2.2.1引入盘、柜内的电缆应排列整齐,编号清晰,避免交叉并应固定牢固,不得使所接的端子排受到机械应力。
2.2.2铠装电缆在进入盘、柜后,应将钢带切断,切断处的端部应扎紧,并应将钢带接地。
2.2.3强、弱电回路不应使用同一根电缆管,并应分别成束分开排列。
3、低压电器的安装3.1低压电器的安装,应按已批准的设计图纸进行施工。
3.2采用的设备和器材,均应符合国家现行技术标准的规定,并应有合格证,设备应有铭牌。
3.3低压电器的固定,应符合下列要求:3.3.1当采用膨胀螺栓固定时,应按产品技术要求选择螺栓规格;其钻孔直径和埋设深度应与螺栓规格相符。
3.3.2紧固件应采用镀锌制品,螺栓规格应选配适当,电器的固定应牢固、平稳。
3.3.3固定低压电器时,不得使电器内部受额外应力。
3.4电器的外部接线,应符合施工质量验收规范要求。
3.5电器的金属外壳、框架的接零或接地,应符合现行国家标准《电气装置安装工程接地装置施工及验收规范》的有关规定。
3.6低压电器的试验,应符合现行国家标准《电气装置安装工程电气设备交接试验标准》的有关规定。
3.7通电后,应符合下列要求:3.7.1操作时动作应灵活、可靠。
3.7.2电磁器件应无异常响声。
4、钢管敷设4.1材料要求:钢管材质需表面光亮,壁厚均匀,无裂痕、无砂眼、无棱刺及凹扁现象,管材进场必须有厂家检测报告和合格许可证件,管材进场要请建设单位或监理单位负责人共同核验,填写进场物资报验单及材料检验记录,各方负责人签定认可后方可使用。
4.2作业条件:墙体水平线和墙体厚度线已弹好,楼板内配管在钢筋绑扎时根据施工图尺寸位置配合土建施工。
在绑筋以前在模板上弹好水平线。
4.2.1暗配电线管路宜沿昀近的路线敷设度应减少弯曲;埋入墙或混凝土内的管子,离表面的净距离不小于15mm;管路弯曲半径≥10D,电缆敷设管弯曲半径应≥10D,弯曲位置凹扁≤1/10D。
4.3操作工艺:4.3.1工艺流程4.3.2暗管敷设基本要求4.3.2.2管子敷设于多尘和潮湿场所的电线管路、管口,管子连接处均应作密封处理。
4.3.2.3根据设计图,加工好各种盒、箱、管弯。
4.3.2.3.1钢管煨弯采用冷煨法,管径≤20mm时用手扳煨管器,管径>25mm时使用液压煨管器;4.3.2.3.2管子切断采用钢锯或砂轮机进行,将需要切断管子长度量准确,放在钳口内卡牢固,断口处平齐不歪斜,管口光滑,无毛刺,管内铁屑除净。
4.3.2.3.3管子套丝:采用套丝板牙,根据管外径选择相应板牙,将管子用龙门压架钳紧牢固,再把绞板套在管端,均匀用力不得过猛,随套随浇冷却液,丝扣不乱不过长,管径在25mm及以上时,分三板套成。
4.3.3测定盒、箱位置:根据设计图要求确定盒、箱轴线位置,以土建弹出的水平线为基准,挂线找平,线坠找正,标出盒、箱实际尺寸位置。
4.3.4稳固箱、盒4.3.4.1稳固盒、箱要求灰浆饱满,平整牢固,坐标正确。
4.3.5管路连接4.3.5.1管路连接采用套管连接,套管长度为连接管径的2.2倍,连接管口的对处应在套管的中心,焊口应焊接牢固严密。
4.3.5.2管与管的连接:JDG管采用套管扣压式和紧正扣连接,管口锉光滑平整,接头牢固紧密,管径25mm及以上的厚壁管,可采用套管焊接;4.3.5.3管路超过下列长度时应加装接线盒,其位置应便于穿线,无弯时30米,有一个弯时20米,有二个弯时15米,有三个弯时8米。
4.3.5.4敷设于垂直线管中的导线,每超过下列长度时,应在管口处或接线盒中加以固定,导线截面50mm²及以下时为30m;导线截面70―95mm²时为20m;导线截面120―240mm²时为18m。
电线管路与其他管道昀小距离:4.3.6管进盒、箱要求:4.3.6.1盒、箱开孔应整齐与管径相吻合,要求一管一孔,不得开长孔洞,铁制盒、箱严禁用电气焊开孔,并刷防锈漆。